Property
Account |
| Property ID: | 14767 | Abbreviated Legal Description: | S30 T25 R2W TAX 5(ENLG BY TAX 13) |
| Parcel # / Geo ID: | 502304009 | Agent Code: | |
| Type: | Real | | |
| Tax Area: | 0441 - 1-46F4E4H2C1L1P2 | Land Use Code | 18 |
| Open Space: | N | DFL | N |
| Historic Property: | N | Remodel Property: | N |
| Multi-Family Redevelopment: | N | | |
| Township: | 25N | Section: | 30 |
| Range: | 2W |
Location |
| Address: | 285 FULTON CREEK RD BRINNON, WA 98320 | Mapsco: | 046/072 |
| Neighborhood: | S29 & S30 T25 R2W & PARADISE COVE & PETERSON-SMITH SP | Map ID: | |
| Neighborhood CD: | 1280 |
Owner |
| Name: | ADAM F & VICTORIA I MORGAN | Owner ID: | 113604 |
| Mailing Address: | 888 MEDINA AVE SUTHERLAND, OR 97479-9161 | % Ownership: | 100.0000000000% |
| | | Exemptions: | |
Pay Tax Due
There is currently No Amount Due on this property.
Taxes and Assessment Details
Property Tax Information as of
03/11/2026
Click on "Statement Details" to expand or collapse a tax statement.
* Please enter a valid date ** Please enter a valid date *
Statement Details |
| 2026 | 4385 | STATE - STATE LEVY (SCHOOL) | $73.97 | $73.96 | $0.00 | $0.00 | $147.93 | $0.00 |
| 2026 | 4385 | COUNTY - COUNTY LEVIES (CE, DD, VET, MH) | $29.58 | $29.57 | $0.00 | $0.00 | $59.15 | $0.00 |
| 2026 | 4385 | CONSERVE - CONSERVATION FUTURES | $0.89 | $0.88 | $0.00 | $0.00 | $1.77 | $0.00 |
| 2026 | 4385 | COROADS - COUNTY ROADS (ROADS, DIV TO CE) | $23.86 | $23.85 | $0.00 | $0.00 | $47.71 | $0.00 |
| 2026 | 4385 | PORTPT - PORT DISTRICT | $11.94 | $11.94 | $0.00 | $0.00 | $23.88 | $0.00 |
| 2026 | 4385 | PUD1 - PUD #1 | $1.93 | $1.92 | $0.00 | $0.00 | $3.85 | $0.00 |
| 2026 | 4385 | LIB1 - LIBRARY DIST #1 | $9.23 | $9.23 | $0.00 | $0.00 | $18.46 | $0.00 |
| 2026 | 4385 | HD2 - HOSP DIST #2 | $1.73 | $1.72 | $0.00 | $0.00 | $3.45 | $0.00 |
| 2026 | 4385 | SD46 - SCHOOL DIST #46 | $22.17 | $22.16 | $0.00 | $0.00 | $44.33 | $0.00 |
| 2026 | 4385 | FD4 - FIRE DISTRICT #4 | $53.69 | $53.68 | $0.00 | $0.00 | $107.37 | $0.00 |
| 2026 | 4385 | EMS4 - FIRE DIST #4 EMS | $14.94 | $14.94 | $0.00 | $0.00 | $29.88 | $0.00 |
| 2026 | 4385 | CEM1 - CEMETERY DIST #1 | $0.35 | $0.34 | $0.00 | $0.00 | $0.69 | $0.00 |
| 2026 | 4385 | FP - DNR Forest Fire Protection Assmt | $8.50 | $8.50 | $0.00 | $0.00 | $17.00 | $0.00 |
| 2026 | 4385 | FPLCA - DNR Landowner Contingency Assmt | $3.00 | $3.00 | $0.00 | $0.00 | $6.00 | $0.00 |
| 2026 | 4385 | JCCD - JC Conservation District | $2.61 | $2.61 | $0.00 | $0.00 | $5.22 | $0.00 |
| 2026 | 4385 | NWA - Noxious Weed Assessment | $3.43 | $3.42 | $0.00 | $0.00 | $6.85 | $0.00 |
| 2026 | 4385 | OSS - On Site Septic | $23.10 | $23.10 | $0.00 | $0.00 | $46.20 | $0.00 |
| 2026 | 4385 | WAT - Clean Water District | $13.00 | $13.00 | $0.00 | $0.00 | $26.00 | $0.00 |
| 2026 | 4385 | FP ADMIN - FP ADMIN | $0.50 | $0.00 | $0.00 | $0.00 | $0.50 | $0.00 |
| 2026 | 4385 | TOTAL: | $298.42 | $297.82 | $0.00 | $0.00 | $596.24 | $0.00 |
|
| 2026 | 4385 | $298.42 | $297.82 | $0.00 | $0.00 | $596.24 | $0.00 |
Statement Details |
| 2025 | 4404 | STATE - STATE LEVY (SCHOOL) | $54.01 | $54.01 | $0.00 | $0.00 | $108.02 | $0.00 |
| 2025 | 4404 | COUNTY - COUNTY LEVIES (CE, DD, VET, MH) | $21.24 | $21.23 | $0.00 | $0.00 | $42.47 | $0.00 |
| 2025 | 4404 | CONSERVE - CONSERVATION FUTURES | $0.64 | $0.63 | $0.00 | $0.00 | $1.27 | $0.00 |
| 2025 | 4404 | COROADS - COUNTY ROADS (ROADS, DIV TO CE) | $17.02 | $17.01 | $0.00 | $0.00 | $34.03 | $0.00 |
| 2025 | 4404 | PORTPT - PORT DISTRICT | $8.67 | $8.66 | $0.00 | $0.00 | $17.33 | $0.00 |
| 2025 | 4404 | PUD1 - PUD #1 | $1.39 | $1.39 | $0.00 | $0.00 | $2.78 | $0.00 |
| 2025 | 4404 | LIB1 - LIBRARY DIST #1 | $6.59 | $6.58 | $0.00 | $0.00 | $13.17 | $0.00 |
| 2025 | 4404 | HD2 - HOSP DIST #2 | $1.24 | $1.24 | $0.00 | $0.00 | $2.48 | $0.00 |
| 2025 | 4404 | SD46 - SCHOOL DIST #46 | $14.28 | $14.27 | $0.00 | $0.00 | $28.55 | $0.00 |
| 2025 | 4404 | FD4 - FIRE DISTRICT #4 | $39.56 | $39.56 | $0.00 | $0.00 | $79.12 | $0.00 |
| 2025 | 4404 | EMS4 - FIRE DIST #4 EMS | $10.98 | $10.97 | $0.00 | $0.00 | $21.95 | $0.00 |
| 2025 | 4404 | CEM1 - CEMETERY DIST #1 | $0.26 | $0.25 | $0.00 | $0.00 | $0.51 | $0.00 |
| 2025 | 4404 | FPLCA - DNR Landowner Contingency Assmt | $3.00 | $3.00 | $0.00 | $0.00 | $6.00 | $0.00 |
| 2025 | 4404 | JCCD - JC Conservation District | $2.65 | $2.65 | $0.00 | $0.00 | $5.30 | $0.00 |
| 2025 | 4404 | NWA - Noxious Weed Assessment | $2.45 | $2.45 | $0.00 | $0.00 | $4.90 | $0.00 |
| 2025 | 4404 | OSS - On Site Septic | $21.50 | $21.50 | $0.00 | $0.00 | $43.00 | $0.00 |
| 2025 | 4404 | WAT - Clean Water District | $13.00 | $13.00 | $0.00 | $0.00 | $26.00 | $0.00 |
| 2025 | 4404 | TOTAL: | $218.48 | $218.40 | $0.00 | $0.00 | $436.88 | $0.00 |
|
| 2025 | 4404 | $218.48 | $218.40 | $0.00 | $0.00 | $436.88 | $0.00 |
Statement Details |
| 2024 | 4419 | STATE - STATE LEVY (SCHOOL) | $48.30 | $48.29 | $0.00 | $0.00 | $96.59 | $0.00 |
| 2024 | 4419 | COUNTY - COUNTY LEVIES (CE, DD, VET, MH) | $20.68 | $20.65 | $0.00 | $0.00 | $41.33 | $0.00 |
| 2024 | 4419 | CONSERVE - CONSERVATION FUTURES | $0.62 | $0.62 | $0.00 | $0.00 | $1.24 | $0.00 |
| 2024 | 4419 | COROADS - COUNTY ROADS (ROADS, DIV TO CE) | $16.63 | $16.63 | $0.00 | $0.00 | $33.26 | $0.00 |
| 2024 | 4419 | PORTPT - PORT DISTRICT | $8.54 | $8.53 | $0.00 | $0.00 | $17.07 | $0.00 |
| 2024 | 4419 | PUD1 - PUD #1 | $1.36 | $1.35 | $0.00 | $0.00 | $2.71 | $0.00 |
| 2024 | 4419 | LIB1 - LIBRARY DIST #1 | $6.44 | $6.43 | $0.00 | $0.00 | $12.87 | $0.00 |
| 2024 | 4419 | HD2 - HOSP DIST #2 | $1.21 | $1.20 | $0.00 | $0.00 | $2.41 | $0.00 |
| 2024 | 4419 | SD46 - SCHOOL DIST #46 | $14.50 | $14.50 | $0.00 | $0.00 | $29.00 | $0.00 |
| 2024 | 4419 | FD4 - FIRE DISTRICT #4 | $37.45 | $37.45 | $0.00 | $0.00 | $74.90 | $0.00 |
| 2024 | 4419 | EMS4 - FIRE DIST #4 EMS | $10.44 | $10.43 | $0.00 | $0.00 | $20.87 | $0.00 |
| 2024 | 4419 | CEM1 - CEMETERY DIST #1 | $0.25 | $0.24 | $0.00 | $0.00 | $0.49 | $0.00 |
| 2024 | 4419 | FPLCA - DNR Landowner Contingency Assmt | $3.00 | $3.00 | $0.00 | $0.00 | $6.00 | $0.00 |
| 2024 | 4419 | JCCD - JC Conservation District | $2.65 | $2.65 | $0.00 | $0.00 | $5.30 | $0.00 |
| 2024 | 4419 | NWA - Noxious Weed Assessment | $2.45 | $2.45 | $0.00 | $0.00 | $4.90 | $0.00 |
| 2024 | 4419 | OSS - On Site Septic | $21.00 | $21.00 | $0.00 | $0.00 | $42.00 | $0.00 |
| 2024 | 4419 | WAT - Clean Water District | $12.50 | $12.50 | $0.00 | $0.00 | $25.00 | $0.00 |
| 2024 | 4419 | TOTAL: | $208.02 | $207.92 | $0.00 | $0.00 | $415.94 | $0.00 |
|
| 2024 | 4419 | $208.02 | $207.92 | $0.00 | $0.00 | $415.94 | $0.00 |
Statement Details |
| 2023 | 4433 | STATE - STATE LEVY (SCHOOL) | $46.80 | $46.80 | $0.00 | $0.00 | $93.60 | $0.00 |
| 2023 | 4433 | COUNTY - COUNTY LEVIES (CE, DD, VET, MH) | $20.44 | $20.40 | $0.00 | $0.00 | $40.84 | $0.00 |
| 2023 | 4433 | CONSERVE - CONSERVATION FUTURES | $0.61 | $0.61 | $0.00 | $0.00 | $1.22 | $0.00 |
| 2023 | 4433 | COROADS - COUNTY ROADS (ROADS, DIV TO CE) | $16.53 | $16.52 | $0.00 | $0.00 | $33.05 | $0.00 |
| 2023 | 4433 | PORTPT - PORT DISTRICT | $8.60 | $8.60 | $0.00 | $0.00 | $17.20 | $0.00 |
| 2023 | 4433 | PUD1 - PUD #1 | $1.36 | $1.35 | $0.00 | $0.00 | $2.71 | $0.00 |
| 2023 | 4433 | LIB1 - LIBRARY DIST #1 | $6.40 | $6.39 | $0.00 | $0.00 | $12.79 | $0.00 |
| 2023 | 4433 | HD2 - HOSP DIST #2 | $1.20 | $1.18 | $0.00 | $0.00 | $2.38 | $0.00 |
| 2023 | 4433 | SD46 - SCHOOL DIST #46 | $15.28 | $15.27 | $0.00 | $0.00 | $30.55 | $0.00 |
| 2023 | 4433 | FD4 - FIRE DISTRICT #4 | $25.40 | $25.40 | $0.00 | $0.00 | $50.80 | $0.00 |
| 2023 | 4433 | EMS4 - FIRE DIST #4 EMS | $7.23 | $7.22 | $0.00 | $0.00 | $14.45 | $0.00 |
| 2023 | 4433 | CEM1 - CEMETERY DIST #1 | $0.26 | $0.25 | $0.00 | $0.00 | $0.51 | $0.00 |
| 2023 | 4433 | FPLCA - DNR Landowner Contingency Assmt | $3.00 | $3.00 | $0.00 | $0.00 | $6.00 | $0.00 |
| 2023 | 4433 | JCCD - JC Conservation District | $2.61 | $2.61 | $0.00 | $0.00 | $5.22 | $0.00 |
| 2023 | 4433 | NWA - Noxious Weed Assessment | $2.45 | $2.45 | $0.00 | $0.00 | $4.90 | $0.00 |
| 2023 | 4433 | OSS - On Site Septic | $20.50 | $20.50 | $0.00 | $0.00 | $41.00 | $0.00 |
| 2023 | 4433 | WAT - Clean Water District | $12.00 | $12.00 | $0.00 | $0.00 | $24.00 | $0.00 |
| 2023 | 4433 | TOTAL: | $190.67 | $190.55 | $0.00 | $0.00 | $381.22 | $0.00 |
|
| 2023 | 4433 | $190.67 | $190.55 | $0.00 | $0.00 | $381.22 | $0.00 |
Values
| (+) Improvement Homesite Value: | + | $0 | |
| (+) Improvement Non-Homesite Value: | + | $0 | |
| (+) Land Homesite Value: | + | $0 | |
| (+) Land Non-Homesite Value: | + | $64,343 | |
| (+) Curr Use (HS): | + | $0 | $0 |
| (+) Curr Use (NHS): | + | $0 | $0 |
| | | -------------------------- | |
| (=) Market Value: | = | $64,343 | |
| (–) Productivity Loss: | – | $0 | |
| | | -------------------------- | |
| (=) Subtotal: | = | $64,343 | |
| (+) Senior Appraised Value: | + | $0 | |
| (+) Non-Senior Appraised Value: | + | $64,343 | |
| | | -------------------------- | |
| (=) Total Appraised Value: | = | $64,343 | |
| (–) Senior Exemption Loss: | – | $0 | |
| (–) Exemption Loss: | – | $0 | |
| | | -------------------------- | |
| (=) Taxable Value: | = | $64,343 | |
Taxing Jurisdiction
| Owner: | ADAM F & VICTORIA I MORGAN | | |
| % Ownership: | 100.0000000000% | | |
| Total Value: | $64,343 | | |
| Tax Area: | 0441 - 1-46F4E4H2C1L1P2 |
| CE | COUNTY CURRENT EXPENSE | 0.9034619479 | $64,343 | $64,343 | $58.13 | | |
| CNTYDD | DEVELOPMENTAL DISABILITIES | 0.0052121823 | $64,343 | $64,343 | $0.34 | | |
| CNTYVET | VETERANS RELIEF | 0.0052777810 | $64,343 | $64,343 | $0.34 | | |
| MENTAL | MENTAL HEALTH | 0.0052121823 | $64,343 | $64,343 | $0.34 | | |
| ROADS | COUNTY ROADS | 0.7415066410 | $64,343 | $64,343 | $47.71 | | |
| ROADSCU | COUNTY ROADS TO CUR EXP | 0.0000000000 | $64,343 | $64,343 | $0.00 | | |
| HOSP2CASH | HOSP DIST #2 GENERAL | 0.0536075306 | $64,343 | $64,343 | $3.45 | | |
| SCH46MO | SCHOOL DIST #46 EP & O | 0.6890207067 | $64,343 | $64,343 | $44.33 | | |
| CEM1 | CEMETERY DIST #1 GENERAL | 0.0107168292 | $64,343 | $64,343 | $0.69 | | |
| CONSERVE | CONSERVATION FUTURES | 0.0275621078 | $64,343 | $64,343 | $1.77 | | |
| EMS4 | FIRE DIST #4 EMS | 0.4644216158 | $64,343 | $64,343 | $29.88 | | |
| FD4 | FIRE DIST #4 GENERAL | 1.3939598390 | $64,343 | $64,343 | $89.69 | | |
| FD4BOND | FIRE DIST #4 BOND 2019 | 0.2748466981 | $64,343 | $64,343 | $17.68 | | |
| LIB1 | LIBRARY DIST #1 GENERAL | 0.2868827388 | $64,343 | $64,343 | $18.46 | | |
| PORTPT | PORT OF PT GENERAL | 0.1134941229 | $64,343 | $64,343 | $7.30 | | |
| PORTPTIDD | PORT OF PT IDD 2019 | 0.2577346692 | $64,343 | $64,343 | $16.58 | | |
| PUD1 | PUD #1 GENERAL | 0.0597888892 | $64,343 | $64,343 | $3.85 | | |
| STATE | STATE SCHOOL PART 1 | 1.4940692947 | $64,343 | $64,343 | $96.13 | | |
| STATE2 | STATE SCHOOL PART 2 | 0.8050170049 | $64,343 | $64,343 | $51.80 | | |
| | Total Tax Rate: | 7.5917927814 | | | | | |
| | | | | Taxes w/Current Exemptions: | $488.47 | | |
| | | | | Taxes w/o Exemptions: | $488.47 | | |
Improvement / Building
Sketch
| No sketches available for this property. |
Property Image
Land
| 1 | 1579A | | 1.1900 | 51836.40 | 0.00 | 0.00 | 0.00 | $6,843 | $0 |
| 2 | 1280-1365S | | 1.0000 | 43560.00 | 0.00 | 0.00 | 1.00 | $57,500 | $0 |
Roll Value History
| 2026 | N/A | N/A | N/A | N/A | N/A |
| 2025 | $0 | $64,343 | $0 | $64,343 | $64,343 |
| 2024 | $0 | $45,045 | $0 | $45,045 | $45,045 |
| 2023 | $0 | $41,748 | $0 | $41,748 | $41,748 |
| 2022 | $0 | $39,760 | $0 | $39,760 | $39,760 |
Deed and Sales History
| 1 | 11/06/2025 | QCD | Quit Claim Deed | KARMA FAIRY LIVING TRUST | ADAM F & VICTORIA I MORGAN | | | | 145189 | |
| 2 | 02/27/2019 | QCD | Quit Claim Deed | | | | | | 132186 | |
| 3 | 02/27/2019 | QCD | Quit Claim Deed | MARK C NORDLAND | KARMA FAIRY LIVING TRUST | | | | 131869 | |
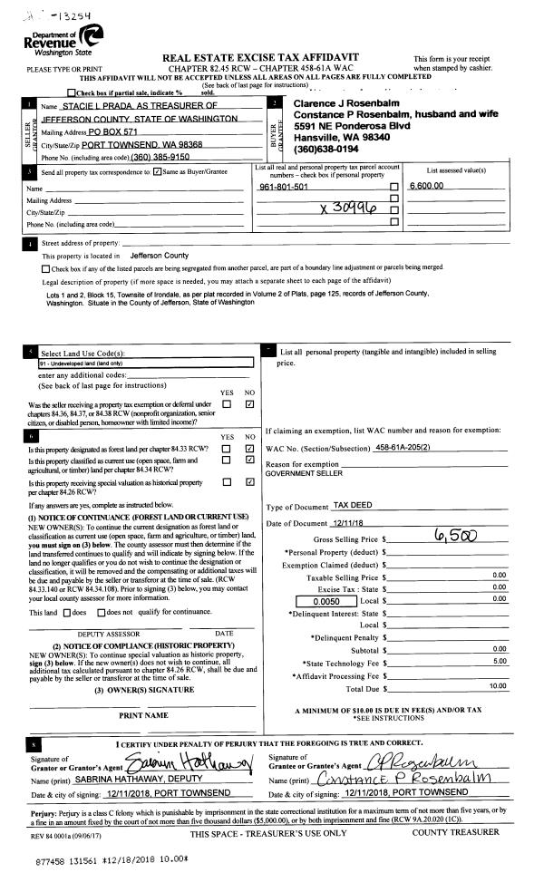
| 4 | 12/11/2008 | TXD | Tax Deed | JEFFERSON COUNTY | NORDLAND, MARK/HOPE | 0 | 0 | $3,000.00 | 112273 | 0 |
| 5 | 12/12/1997 | QCD | Quit Claim Deed | ANGLIN, ROSE A | ANGLIN, WILLIAM A/ROSE A | 0 | 0 | $36,750.00 | 83437 | 0 |
| 6 | 11/04/1993 | MH | Mobile Home | REEVE, ALICE D | ANGLIN/POTICHER | 0 | 0 | $0.00 | 72529 | 0 |
| 7 | 07/05/1993 | QCD | Quit Claim Deed | POTICHER-ANGLIN, ROSE A | POTICHER, ROBERT A/ROSE-ANGLIN | 0 | 0 | $0.00 | 71644 | 0 |
Payout Agreement
| No payout information available.. |