Property
Account |
| Property ID: | 14780 | Abbreviated Legal Description: | S31 T25 R2W 22.27CHS TL TAX B(LESS TAX B-1 THRU B-4) GOV LOTS 1 & 2(S OF HWY)(IF ANY) LESS TAX 3 & 70 |
| Parcel # / Geo ID: | 502311009 | Agent Code: | |
| Type: | Real | | |
| Tax Area: | 0441 - 1-46F4E4H2C1L1P2 | Land Use Code | 93 |
| Open Space: | N | DFL | N |
| Historic Property: | N | Remodel Property: | N |
| Multi-Family Redevelopment: | N | | |
| Township: | 25N | Section: | 31 |
| Range: | 2W |
Location |
| Address: | | Mapsco: | 047/002 |
| Neighborhood: | S31 & S32 T25N R2W AKER, DUPUIS,MTC, & RUSS SHORT PLATS | Map ID: | |
| Neighborhood CD: | 1290 |
Owner |
| Name: | AR UNITED LLC | Owner ID: | 97345 |
| Mailing Address: | PO BOX 4118 SEQUIM, WA 98382-2241 | % Ownership: | 100.0000000000% |
| | | Exemptions: | |
Pay Tax Due
Select the appropriate checkbox next to the year to be paid. Multiple years may be selected.
*Convenience Fee not included
Taxes and Assessment Details
Property Tax Information as of
03/11/2026
Click on "Statement Details" to expand or collapse a tax statement.
* Please enter a valid date ** Please enter a valid date *
Statement Details |
| 2026 | 4398 | STATE - STATE LEVY (SCHOOL) | $29.16 | $29.14 | $0.00 | $0.00 | $0.00 | $58.30 |
| 2026 | 4398 | COUNTY - COUNTY LEVIES (CE, DD, VET, MH) | $11.67 | $11.63 | $0.00 | $0.00 | $0.00 | $23.30 |
| 2026 | 4398 | CONSERVE - CONSERVATION FUTURES | $0.35 | $0.35 | $0.00 | $0.00 | $0.00 | $0.70 |
| 2026 | 4398 | COROADS - COUNTY ROADS (ROADS, DIV TO CE) | $9.40 | $9.40 | $0.00 | $0.00 | $0.00 | $18.80 |
| 2026 | 4398 | PORTPT - PORT DISTRICT | $4.71 | $4.71 | $0.00 | $0.00 | $0.00 | $9.42 |
| 2026 | 4398 | PUD1 - PUD #1 | $0.76 | $0.76 | $0.00 | $0.00 | $0.00 | $1.52 |
| 2026 | 4398 | LIB1 - LIBRARY DIST #1 | $3.64 | $3.63 | $0.00 | $0.00 | $0.00 | $7.27 |
| 2026 | 4398 | HD2 - HOSP DIST #2 | $0.68 | $0.68 | $0.00 | $0.00 | $0.00 | $1.36 |
| 2026 | 4398 | SD46 - SCHOOL DIST #46 | $8.74 | $8.73 | $0.00 | $0.00 | $0.00 | $17.47 |
| 2026 | 4398 | FD4 - FIRE DISTRICT #4 | $21.17 | $21.15 | $0.00 | $0.00 | $0.00 | $42.32 |
| 2026 | 4398 | EMS4 - FIRE DIST #4 EMS | $5.89 | $5.89 | $0.00 | $0.00 | $0.00 | $11.78 |
| 2026 | 4398 | CEM1 - CEMETERY DIST #1 | $0.14 | $0.13 | $0.00 | $0.00 | $0.00 | $0.27 |
| 2026 | 4398 | WAT - Clean Water District | $13.00 | $13.00 | $0.00 | $0.00 | $0.00 | $26.00 |
| 2026 | 4398 | TOTAL: | $109.31 | $109.20 | $0.00 | $0.00 | $0.00 | $218.51 |
|
| 2026 | 4398 | $109.31 | $109.20 | $0.00 | $0.00 | $0.00 | $218.51 |
Statement Details |
| 2025 | 4417 | STATE - STATE LEVY (SCHOOL) | $27.77 | $27.75 | $0.00 | $0.00 | $55.52 | $0.00 |
| 2025 | 4417 | COUNTY - COUNTY LEVIES (CE, DD, VET, MH) | $10.92 | $10.91 | $0.00 | $0.00 | $21.83 | $0.00 |
| 2025 | 4417 | CONSERVE - CONSERVATION FUTURES | $0.33 | $0.32 | $0.00 | $0.00 | $0.65 | $0.00 |
| 2025 | 4417 | COROADS - COUNTY ROADS (ROADS, DIV TO CE) | $8.75 | $8.74 | $0.00 | $0.00 | $17.49 | $0.00 |
| 2025 | 4417 | PORTPT - PORT DISTRICT | $4.46 | $4.45 | $0.00 | $0.00 | $8.91 | $0.00 |
| 2025 | 4417 | PUD1 - PUD #1 | $0.72 | $0.71 | $0.00 | $0.00 | $1.43 | $0.00 |
| 2025 | 4417 | LIB1 - LIBRARY DIST #1 | $3.39 | $3.38 | $0.00 | $0.00 | $6.77 | $0.00 |
| 2025 | 4417 | HD2 - HOSP DIST #2 | $0.64 | $0.63 | $0.00 | $0.00 | $1.27 | $0.00 |
| 2025 | 4417 | SD46 - SCHOOL DIST #46 | $7.34 | $7.33 | $0.00 | $0.00 | $14.67 | $0.00 |
| 2025 | 4417 | FD4 - FIRE DISTRICT #4 | $20.34 | $20.33 | $0.00 | $0.00 | $40.67 | $0.00 |
| 2025 | 4417 | EMS4 - FIRE DIST #4 EMS | $5.64 | $5.64 | $0.00 | $0.00 | $11.28 | $0.00 |
| 2025 | 4417 | CEM1 - CEMETERY DIST #1 | $0.13 | $0.13 | $0.00 | $0.00 | $0.26 | $0.00 |
| 2025 | 4417 | WAT - Clean Water District | $13.00 | $13.00 | $0.00 | $0.00 | $26.00 | $0.00 |
| 2025 | 4417 | TOTAL: | $103.43 | $103.32 | $0.00 | $0.00 | $206.75 | $0.00 |
|
| 2025 | 4417 | $103.43 | $103.32 | $0.00 | $0.00 | $206.75 | $0.00 |
Statement Details |
| 2024 | 4432 | STATE - STATE LEVY (SCHOOL) | $25.51 | $25.50 | $0.00 | $0.00 | $51.01 | $0.00 |
| 2024 | 4432 | COUNTY - COUNTY LEVIES (CE, DD, VET, MH) | $10.91 | $10.91 | $0.00 | $0.00 | $21.82 | $0.00 |
| 2024 | 4432 | CONSERVE - CONSERVATION FUTURES | $0.33 | $0.32 | $0.00 | $0.00 | $0.65 | $0.00 |
| 2024 | 4432 | COROADS - COUNTY ROADS (ROADS, DIV TO CE) | $8.78 | $8.78 | $0.00 | $0.00 | $17.56 | $0.00 |
| 2024 | 4432 | PORTPT - PORT DISTRICT | $4.51 | $4.51 | $0.00 | $0.00 | $9.02 | $0.00 |
| 2024 | 4432 | PUD1 - PUD #1 | $0.72 | $0.71 | $0.00 | $0.00 | $1.43 | $0.00 |
| 2024 | 4432 | LIB1 - LIBRARY DIST #1 | $3.40 | $3.40 | $0.00 | $0.00 | $6.80 | $0.00 |
| 2024 | 4432 | HD2 - HOSP DIST #2 | $0.64 | $0.63 | $0.00 | $0.00 | $1.27 | $0.00 |
| 2024 | 4432 | SD46 - SCHOOL DIST #46 | $7.66 | $7.65 | $0.00 | $0.00 | $15.31 | $0.00 |
| 2024 | 4432 | FD4 - FIRE DISTRICT #4 | $19.79 | $19.78 | $0.00 | $0.00 | $39.57 | $0.00 |
| 2024 | 4432 | EMS4 - FIRE DIST #4 EMS | $5.52 | $5.51 | $0.00 | $0.00 | $11.03 | $0.00 |
| 2024 | 4432 | CEM1 - CEMETERY DIST #1 | $0.13 | $0.13 | $0.00 | $0.00 | $0.26 | $0.00 |
| 2024 | 4432 | WAT - Clean Water District | $12.50 | $12.50 | $0.00 | $0.00 | $25.00 | $0.00 |
| 2024 | 4432 | TOTAL: | $100.40 | $100.33 | $0.00 | $0.00 | $200.73 | $0.00 |
|
| 2024 | 4432 | $100.40 | $100.33 | $0.00 | $0.00 | $200.73 | $0.00 |
Statement Details |
| 2023 | 4446 | STATE - STATE LEVY (SCHOOL) | $25.96 | $25.95 | $0.00 | $0.00 | $51.91 | $0.00 |
| 2023 | 4446 | COUNTY - COUNTY LEVIES (CE, DD, VET, MH) | $11.34 | $11.31 | $0.00 | $0.00 | $22.65 | $0.00 |
| 2023 | 4446 | CONSERVE - CONSERVATION FUTURES | $0.34 | $0.34 | $0.00 | $0.00 | $0.68 | $0.00 |
| 2023 | 4446 | COROADS - COUNTY ROADS (ROADS, DIV TO CE) | $9.17 | $9.16 | $0.00 | $0.00 | $18.33 | $0.00 |
| 2023 | 4446 | PORTPT - PORT DISTRICT | $4.78 | $4.77 | $0.00 | $0.00 | $9.55 | $0.00 |
| 2023 | 4446 | PUD1 - PUD #1 | $0.75 | $0.75 | $0.00 | $0.00 | $1.50 | $0.00 |
| 2023 | 4446 | LIB1 - LIBRARY DIST #1 | $3.55 | $3.54 | $0.00 | $0.00 | $7.09 | $0.00 |
| 2023 | 4446 | HD2 - HOSP DIST #2 | $0.67 | $0.65 | $0.00 | $0.00 | $1.32 | $0.00 |
| 2023 | 4446 | SD46 - SCHOOL DIST #46 | $8.47 | $8.47 | $0.00 | $0.00 | $16.94 | $0.00 |
| 2023 | 4446 | FD4 - FIRE DISTRICT #4 | $14.09 | $14.08 | $0.00 | $0.00 | $28.17 | $0.00 |
| 2023 | 4446 | EMS4 - FIRE DIST #4 EMS | $4.01 | $4.00 | $0.00 | $0.00 | $8.01 | $0.00 |
| 2023 | 4446 | CEM1 - CEMETERY DIST #1 | $0.14 | $0.14 | $0.00 | $0.00 | $0.28 | $0.00 |
| 2023 | 4446 | WAT - Clean Water District | $12.00 | $12.00 | $0.00 | $0.00 | $24.00 | $0.00 |
| 2023 | 4446 | TOTAL: | $95.27 | $95.16 | $0.00 | $0.00 | $190.43 | $0.00 |
|
| 2023 | 4446 | $95.27 | $95.16 | $0.00 | $0.00 | $190.43 | $0.00 |
Values
| (+) Improvement Homesite Value: | + | $0 | |
| (+) Improvement Non-Homesite Value: | + | $0 | |
| (+) Land Homesite Value: | + | $0 | |
| (+) Land Non-Homesite Value: | + | $25,358 | |
| (+) Curr Use (HS): | + | $0 | $0 |
| (+) Curr Use (NHS): | + | $0 | $0 |
| | | -------------------------- | |
| (=) Market Value: | = | $25,358 | |
| (–) Productivity Loss: | – | $0 | |
| | | -------------------------- | |
| (=) Subtotal: | = | $25,358 | |
| (+) Senior Appraised Value: | + | $0 | |
| (+) Non-Senior Appraised Value: | + | $25,358 | |
| | | -------------------------- | |
| (=) Total Appraised Value: | = | $25,358 | |
| (–) Senior Exemption Loss: | – | $0 | |
| (–) Exemption Loss: | – | $0 | |
| | | -------------------------- | |
| (=) Taxable Value: | = | $25,358 | |
Taxing Jurisdiction
| Owner: | AR UNITED LLC | | |
| % Ownership: | 100.0000000000% | | |
| Total Value: | N/A | | |
| Tax Area: | 0441 - 1-46F4E4H2C1L1P2 |
| CE | COUNTY CURRENT EXPENSE | N/A | N/A | N/A | N/A | | |
| CNTYDD | DEVELOPMENTAL DISABILITIES | N/A | N/A | N/A | N/A | | |
| CNTYVET | VETERANS RELIEF | N/A | N/A | N/A | N/A | | |
| MENTAL | MENTAL HEALTH | N/A | N/A | N/A | N/A | | |
| ROADS | COUNTY ROADS | N/A | N/A | N/A | N/A | | |
| HOSP2CASH | HOSP DIST #2 GENERAL | N/A | N/A | N/A | N/A | | |
| SCH46MO | SCHOOL DIST #46 EP & O | N/A | N/A | N/A | N/A | | |
| CEM1 | CEMETERY DIST #1 GENERAL | N/A | N/A | N/A | N/A | | |
| CONSERVE | CONSERVATION FUTURES | N/A | N/A | N/A | N/A | | |
| EMS4 | FIRE DIST #4 EMS | N/A | N/A | N/A | N/A | | |
| FD4 | FIRE DIST #4 GENERAL | N/A | N/A | N/A | N/A | | |
| FD4BOND | FIRE DIST #4 BOND 2019 | N/A | N/A | N/A | N/A | | |
| LIB1 | LIBRARY DIST #1 GENERAL | N/A | N/A | N/A | N/A | | |
| PORTPT | PORT OF PT GENERAL | N/A | N/A | N/A | N/A | | |
| PORTPTIDD | PORT OF PT IDD 2019 | N/A | N/A | N/A | N/A | | |
| PUD1 | PUD #1 GENERAL | N/A | N/A | N/A | N/A | | |
| STATE | STATE SCHOOL PART 1 | N/A | N/A | N/A | N/A | | |
| STATE2 | STATE SCHOOL PART 2 | N/A | N/A | N/A | N/A | | |
| | Total Tax Rate: | N/A | | | | | |
| | | | | Taxes w/Current Exemptions: | N/A | | |
| | | | | Taxes w/o Exemptions: | N/A | | |
Improvement / Building
Sketch
| No sketches available for this property. |
Property Image
Land
| 1 | 9301F | | 0.0000 | 0.00 | 0.00 | 0.00 | 0.00 | $25,358 | $0 |
Roll Value History
| 2026 | N/A | N/A | N/A | N/A | N/A |
| 2025 | $0 | $25,358 | $0 | $25,358 | $25,358 |
| 2024 | $0 | $23,153 | $0 | $23,153 | $23,153 |
| 2023 | $0 | $22,050 | $0 | $22,050 | $22,050 |
| 2022 | $0 | $22,050 | $0 | $22,050 | $22,050 |
Deed and Sales History
| 1 | 06/09/2017 | QCD | Quit Claim Deed | REED JR & ANDREW GUNSTONE | AR UNITED LLC | | | | 127844 | |
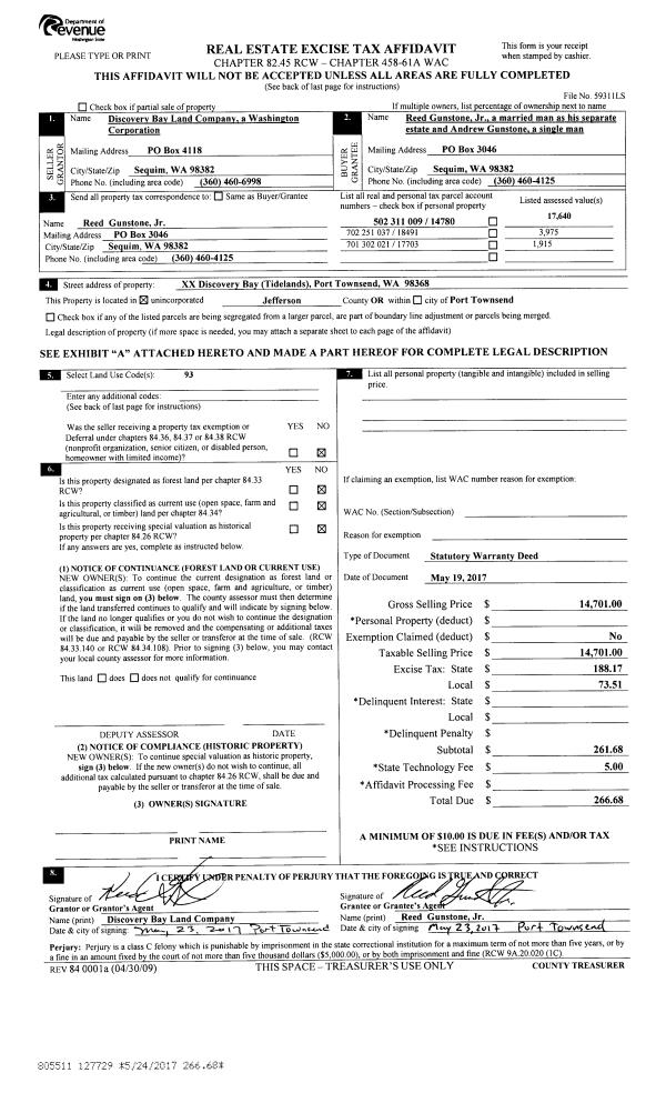
| 2 | 05/19/2017 | SWD | Statutory Warranty Deed | DISCOVERY BAY LAND CO | REED JR & ANDREW GUNSTONE | | | $14,701.00 | 127729 | |
|   | |
| 3 | 06/23/2006 | EASE | Assignment of Easement | JOHNSTON, STAN/CANDY | DUNN, DOUGLAS A/SHERRI L | | | $2,500.00 | 107186 | 0 |
| 4 | 12/24/1992 | QCD | Quit Claim Deed | DEMPSEY, WILLIAM | COOLEY, EDWIN/MABEL | 0 | 0 | $0.00 | 70280 | 0 |
Payout Agreement
| No payout information available.. |