Property
Account |
| Property ID: | 14804 | Abbreviated Legal Description: | S31 T25 R2W TAX 55 SUBJ TO EASE |
| Parcel # / Geo ID: | 502312014 | Agent Code: | |
| Type: | Real | | |
| Tax Area: | 0441 - 1-46F4E4H2C1L1P2 | Land Use Code | 11 |
| Open Space: | N | DFL | N |
| Historic Property: | N | Remodel Property: | N |
| Multi-Family Redevelopment: | N | | |
| Township: | 25N | Section: | 31 |
| Range: | 2W |
Location |
| Address: | 370 POLLOCK DR BRINNON, WA 98320 | Mapsco: | 048/007 |
| Neighborhood: | S31 & S32 T25N R2W AKER, DUPUIS,MTC, & RUSS SHORT PLATS | Map ID: | |
| Neighborhood CD: | 1290 |
Owner |
| Name: | HEATHER DORSETT | Owner ID: | 107530 |
| Mailing Address: | 370 POLLOCK DR #48 BRINNON, WA 98320 | % Ownership: | 100.0000000000% |
| | | Exemptions: | |
Pay Tax Due
Select the appropriate checkbox next to the year to be paid. Multiple years may be selected.
*Convenience Fee not included
Taxes and Assessment Details
Property Tax Information as of
03/12/2026
Click on "Statement Details" to expand or collapse a tax statement.
* Please enter a valid date ** Please enter a valid date *
Statement Details |
| 2026 | 4422 | STATE - STATE LEVY (SCHOOL) | $376.28 | $376.27 | $0.00 | $0.00 | $0.00 | $752.55 |
| 2026 | 4422 | COUNTY - COUNTY LEVIES (CE, DD, VET, MH) | $150.46 | $150.42 | $0.00 | $0.00 | $0.00 | $300.88 |
| 2026 | 4422 | CONSERVE - CONSERVATION FUTURES | $4.51 | $4.51 | $0.00 | $0.00 | $0.00 | $9.02 |
| 2026 | 4422 | COROADS - COUNTY ROADS (ROADS, DIV TO CE) | $121.36 | $121.35 | $0.00 | $0.00 | $0.00 | $242.71 |
| 2026 | 4422 | PORTPT - PORT DISTRICT | $60.76 | $60.75 | $0.00 | $0.00 | $0.00 | $121.51 |
| 2026 | 4422 | PUD1 - PUD #1 | $9.79 | $9.78 | $0.00 | $0.00 | $0.00 | $19.57 |
| 2026 | 4422 | LIB1 - LIBRARY DIST #1 | $46.95 | $46.95 | $0.00 | $0.00 | $0.00 | $93.90 |
| 2026 | 4422 | HD2 - HOSP DIST #2 | $8.78 | $8.77 | $0.00 | $0.00 | $0.00 | $17.55 |
| 2026 | 4422 | SD46 - SCHOOL DIST #46 | $112.77 | $112.76 | $0.00 | $0.00 | $0.00 | $225.53 |
| 2026 | 4422 | FD4 - FIRE DISTRICT #4 | $273.12 | $273.12 | $0.00 | $0.00 | $0.00 | $546.24 |
| 2026 | 4422 | EMS4 - FIRE DIST #4 EMS | $76.01 | $76.01 | $0.00 | $0.00 | $0.00 | $152.02 |
| 2026 | 4422 | CEM1 - CEMETERY DIST #1 | $1.76 | $1.75 | $0.00 | $0.00 | $0.00 | $3.51 |
| 2026 | 4422 | FP - DNR Forest Fire Protection Assmt | $8.50 | $8.50 | $0.00 | $0.00 | $0.00 | $17.00 |
| 2026 | 4422 | FPLCA - DNR Landowner Contingency Assmt | $3.00 | $3.00 | $0.00 | $0.00 | $0.00 | $6.00 |
| 2026 | 4422 | JCCD - JC Conservation District | $2.75 | $2.75 | $0.00 | $0.00 | $0.00 | $5.50 |
| 2026 | 4422 | NWA - Noxious Weed Assessment | $3.88 | $3.87 | $0.00 | $0.00 | $0.00 | $7.75 |
| 2026 | 4422 | OSS - On Site Septic | $23.10 | $23.10 | $0.00 | $0.00 | $0.00 | $46.20 |
| 2026 | 4422 | WAT - Clean Water District | $13.00 | $13.00 | $0.00 | $0.00 | $0.00 | $26.00 |
| 2026 | 4422 | FP ADMIN - FP ADMIN | $0.50 | $0.00 | $0.00 | $0.00 | $0.00 | $0.50 |
| 2026 | 4422 | TOTAL: | $1297.28 | $1296.66 | $0.00 | $0.00 | $0.00 | $2593.94 |
|
| 2026 | 4422 | $1297.28 | $1296.66 | $0.00 | $0.00 | $0.00 | $2593.94 |
Statement Details |
| 2025 | 4441 | STATE - STATE LEVY (SCHOOL) | $363.62 | $363.61 | $0.00 | $0.00 | $727.23 | $0.00 |
| 2025 | 4441 | COUNTY - COUNTY LEVIES (CE, DD, VET, MH) | $143.00 | $142.99 | $0.00 | $0.00 | $285.99 | $0.00 |
| 2025 | 4441 | CONSERVE - CONSERVATION FUTURES | $4.29 | $4.29 | $0.00 | $0.00 | $8.58 | $0.00 |
| 2025 | 4441 | COROADS - COUNTY ROADS (ROADS, DIV TO CE) | $114.56 | $114.55 | $0.00 | $0.00 | $229.11 | $0.00 |
| 2025 | 4441 | PORTPT - PORT DISTRICT | $58.36 | $58.34 | $0.00 | $0.00 | $116.70 | $0.00 |
| 2025 | 4441 | PUD1 - PUD #1 | $9.36 | $9.35 | $0.00 | $0.00 | $18.71 | $0.00 |
| 2025 | 4441 | LIB1 - LIBRARY DIST #1 | $44.32 | $44.32 | $0.00 | $0.00 | $88.64 | $0.00 |
| 2025 | 4441 | HD2 - HOSP DIST #2 | $8.34 | $8.34 | $0.00 | $0.00 | $16.68 | $0.00 |
| 2025 | 4441 | SD46 - SCHOOL DIST #46 | $96.11 | $96.10 | $0.00 | $0.00 | $192.21 | $0.00 |
| 2025 | 4441 | FD4 - FIRE DISTRICT #4 | $266.35 | $266.35 | $0.00 | $0.00 | $532.70 | $0.00 |
| 2025 | 4441 | EMS4 - FIRE DIST #4 EMS | $73.90 | $73.90 | $0.00 | $0.00 | $147.80 | $0.00 |
| 2025 | 4441 | CEM1 - CEMETERY DIST #1 | $1.71 | $1.71 | $0.00 | $0.00 | $3.42 | $0.00 |
| 2025 | 4441 | FP - DNR Forest Fire Protection Assmt | $8.50 | $8.50 | $0.00 | $0.00 | $17.00 | $0.00 |
| 2025 | 4441 | FPLCA - DNR Landowner Contingency Assmt | $3.00 | $3.00 | $0.00 | $0.00 | $6.00 | $0.00 |
| 2025 | 4441 | JCCD - JC Conservation District | $2.75 | $2.75 | $0.00 | $0.00 | $5.50 | $0.00 |
| 2025 | 4441 | NWA - Noxious Weed Assessment | $2.75 | $2.75 | $0.00 | $0.00 | $5.50 | $0.00 |
| 2025 | 4441 | OSS - On Site Septic | $21.50 | $21.50 | $0.00 | $0.00 | $43.00 | $0.00 |
| 2025 | 4441 | WAT - Clean Water District | $13.00 | $13.00 | $0.00 | $0.00 | $26.00 | $0.00 |
| 2025 | 4441 | FP ADMIN - FP ADMIN | $0.50 | $0.00 | $0.00 | $0.00 | $0.50 | $0.00 |
| 2025 | 4441 | TOTAL: | $1235.92 | $1235.35 | $0.00 | $0.00 | $2471.27 | $0.00 |
|
| 2025 | 4441 | $1235.92 | $1235.35 | $0.00 | $0.00 | $2471.27 | $0.00 |
Statement Details |
| 2024 | 4456 | STATE - STATE LEVY (SCHOOL) | $339.11 | $339.10 | $0.00 | $0.00 | $678.21 | $0.00 |
| 2024 | 4456 | COUNTY - COUNTY LEVIES (CE, DD, VET, MH) | $145.11 | $145.11 | $0.00 | $0.00 | $290.22 | $0.00 |
| 2024 | 4456 | CONSERVE - CONSERVATION FUTURES | $4.35 | $4.35 | $0.00 | $0.00 | $8.70 | $0.00 |
| 2024 | 4456 | COROADS - COUNTY ROADS (ROADS, DIV TO CE) | $116.77 | $116.76 | $0.00 | $0.00 | $233.53 | $0.00 |
| 2024 | 4456 | PORTPT - PORT DISTRICT | $59.94 | $59.93 | $0.00 | $0.00 | $119.87 | $0.00 |
| 2024 | 4456 | PUD1 - PUD #1 | $9.53 | $9.53 | $0.00 | $0.00 | $19.06 | $0.00 |
| 2024 | 4456 | LIB1 - LIBRARY DIST #1 | $45.18 | $45.17 | $0.00 | $0.00 | $90.35 | $0.00 |
| 2024 | 4456 | HD2 - HOSP DIST #2 | $8.47 | $8.46 | $0.00 | $0.00 | $16.93 | $0.00 |
| 2024 | 4456 | SD46 - SCHOOL DIST #46 | $101.80 | $101.80 | $0.00 | $0.00 | $203.60 | $0.00 |
| 2024 | 4456 | FD4 - FIRE DISTRICT #4 | $262.98 | $262.98 | $0.00 | $0.00 | $525.96 | $0.00 |
| 2024 | 4456 | EMS4 - FIRE DIST #4 EMS | $73.29 | $73.28 | $0.00 | $0.00 | $146.57 | $0.00 |
| 2024 | 4456 | CEM1 - CEMETERY DIST #1 | $1.72 | $1.71 | $0.00 | $0.00 | $3.43 | $0.00 |
| 2024 | 4456 | FP - DNR Forest Fire Protection Assmt | $8.50 | $8.50 | $0.00 | $0.00 | $17.00 | $0.00 |
| 2024 | 4456 | FPLCA - DNR Landowner Contingency Assmt | $3.00 | $3.00 | $0.00 | $0.00 | $6.00 | $0.00 |
| 2024 | 4456 | JCCD - JC Conservation District | $2.75 | $2.75 | $0.00 | $0.00 | $5.50 | $0.00 |
| 2024 | 4456 | NWA - Noxious Weed Assessment | $2.75 | $2.75 | $0.00 | $0.00 | $5.50 | $0.00 |
| 2024 | 4456 | OSS - On Site Septic | $21.00 | $21.00 | $0.00 | $0.00 | $42.00 | $0.00 |
| 2024 | 4456 | WAT - Clean Water District | $12.50 | $12.50 | $0.00 | $0.00 | $25.00 | $0.00 |
| 2024 | 4456 | FP ADMIN - FP ADMIN | $0.50 | $0.00 | $0.00 | $0.00 | $0.50 | $0.00 |
| 2024 | 4456 | TOTAL: | $1219.25 | $1218.68 | $0.00 | $0.00 | $2437.93 | $0.00 |
|
| 2024 | 4456 | $1219.25 | $1218.68 | $0.00 | $0.00 | $2437.93 | $0.00 |
Statement Details |
| 2023 | 4470 | STATE - STATE LEVY (SCHOOL) | $306.84 | $306.84 | $0.00 | $0.00 | $613.68 | $0.00 |
| 2023 | 4470 | COUNTY - COUNTY LEVIES (CE, DD, VET, MH) | $133.90 | $133.89 | $0.00 | $0.00 | $267.79 | $0.00 |
| 2023 | 4470 | CONSERVE - CONSERVATION FUTURES | $4.02 | $4.01 | $0.00 | $0.00 | $8.03 | $0.00 |
| 2023 | 4470 | COROADS - COUNTY ROADS (ROADS, DIV TO CE) | $108.33 | $108.33 | $0.00 | $0.00 | $216.66 | $0.00 |
| 2023 | 4470 | PORTPT - PORT DISTRICT | $56.41 | $56.40 | $0.00 | $0.00 | $112.81 | $0.00 |
| 2023 | 4470 | PUD1 - PUD #1 | $8.88 | $8.87 | $0.00 | $0.00 | $17.75 | $0.00 |
| 2023 | 4470 | LIB1 - LIBRARY DIST #1 | $41.92 | $41.91 | $0.00 | $0.00 | $83.83 | $0.00 |
| 2023 | 4470 | HD2 - HOSP DIST #2 | $7.82 | $7.81 | $0.00 | $0.00 | $15.63 | $0.00 |
| 2023 | 4470 | SD46 - SCHOOL DIST #46 | $100.15 | $100.15 | $0.00 | $0.00 | $200.30 | $0.00 |
| 2023 | 4470 | FD4 - FIRE DISTRICT #4 | $166.53 | $166.52 | $0.00 | $0.00 | $333.05 | $0.00 |
| 2023 | 4470 | EMS4 - FIRE DIST #4 EMS | $47.36 | $47.36 | $0.00 | $0.00 | $94.72 | $0.00 |
| 2023 | 4470 | CEM1 - CEMETERY DIST #1 | $1.68 | $1.67 | $0.00 | $0.00 | $3.35 | $0.00 |
| 2023 | 4470 | FP - DNR Forest Fire Protection Assmt | $8.50 | $8.50 | $0.00 | $0.00 | $17.00 | $0.00 |
| 2023 | 4470 | FPLCA - DNR Landowner Contingency Assmt | $3.00 | $3.00 | $0.00 | $0.00 | $6.00 | $0.00 |
| 2023 | 4470 | JCCD - JC Conservation District | $2.75 | $2.75 | $0.00 | $0.00 | $5.50 | $0.00 |
| 2023 | 4470 | NWA - Noxious Weed Assessment | $2.75 | $2.75 | $0.00 | $0.00 | $5.50 | $0.00 |
| 2023 | 4470 | OSS - On Site Septic | $20.50 | $20.50 | $0.00 | $0.00 | $41.00 | $0.00 |
| 2023 | 4470 | WAT - Clean Water District | $12.00 | $12.00 | $0.00 | $0.00 | $24.00 | $0.00 |
| 2023 | 4470 | FP ADMIN - FP ADMIN | $0.50 | $0.00 | $0.00 | $0.00 | $0.50 | $0.00 |
| 2023 | 4470 | TOTAL: | $1033.84 | $1033.26 | $0.00 | $0.00 | $2067.10 | $0.00 |
|
| 2023 | 4470 | $1033.84 | $1033.26 | $0.00 | $0.00 | $2067.10 | $0.00 |
Values
| (+) Improvement Homesite Value: | + | $0 | |
| (+) Improvement Non-Homesite Value: | + | $221,996 | |
| (+) Land Homesite Value: | + | $0 | |
| (+) Land Non-Homesite Value: | + | $105,329 | |
| (+) Curr Use (HS): | + | $0 | $0 |
| (+) Curr Use (NHS): | + | $0 | $0 |
| | | -------------------------- | |
| (=) Market Value: | = | $327,325 | |
| (–) Productivity Loss: | – | $0 | |
| | | -------------------------- | |
| (=) Subtotal: | = | $327,325 | |
| (+) Senior Appraised Value: | + | $0 | |
| (+) Non-Senior Appraised Value: | + | $327,325 | |
| | | -------------------------- | |
| (=) Total Appraised Value: | = | $327,325 | |
| (–) Senior Exemption Loss: | – | $0 | |
| (–) Exemption Loss: | – | $0 | |
| | | -------------------------- | |
| (=) Taxable Value: | = | $327,325 | |
Taxing Jurisdiction
| Owner: | HEATHER DORSETT | | |
| % Ownership: | 100.0000000000% | | |
| Total Value: | $327,325 | | |
| Tax Area: | 0441 - 1-46F4E4H2C1L1P2 |
| CE | COUNTY CURRENT EXPENSE | 0.9034619479 | $327,325 | $327,325 | $295.73 | | |
| CNTYDD | DEVELOPMENTAL DISABILITIES | 0.0052121823 | $327,325 | $327,325 | $1.71 | | |
| CNTYVET | VETERANS RELIEF | 0.0052777810 | $327,325 | $327,325 | $1.73 | | |
| MENTAL | MENTAL HEALTH | 0.0052121823 | $327,325 | $327,325 | $1.71 | | |
| ROADS | COUNTY ROADS | 0.7415066410 | $327,325 | $327,325 | $242.71 | | |
| ROADSCU | COUNTY ROADS TO CUR EXP | 0.0000000000 | $327,325 | $327,325 | $0.00 | | |
| HOSP2CASH | HOSP DIST #2 GENERAL | 0.0536075306 | $327,325 | $327,325 | $17.55 | | |
| SCH46MO | SCHOOL DIST #46 EP & O | 0.6890207067 | $327,325 | $327,325 | $225.53 | | |
| CEM1 | CEMETERY DIST #1 GENERAL | 0.0107168292 | $327,325 | $327,325 | $3.51 | | |
| CONSERVE | CONSERVATION FUTURES | 0.0275621078 | $327,325 | $327,325 | $9.02 | | |
| EMS4 | FIRE DIST #4 EMS | 0.4644216158 | $327,325 | $327,325 | $152.02 | | |
| FD4 | FIRE DIST #4 GENERAL | 1.3939598390 | $327,325 | $327,325 | $456.28 | | |
| FD4BOND | FIRE DIST #4 BOND 2019 | 0.2748466981 | $327,325 | $327,325 | $89.96 | | |
| LIB1 | LIBRARY DIST #1 GENERAL | 0.2868827388 | $327,325 | $327,325 | $93.90 | | |
| PORTPT | PORT OF PT GENERAL | 0.1134941229 | $327,325 | $327,325 | $37.15 | | |
| PORTPTIDD | PORT OF PT IDD 2019 | 0.2577346692 | $327,325 | $327,325 | $84.36 | | |
| PUD1 | PUD #1 GENERAL | 0.0597888892 | $327,325 | $327,325 | $19.57 | | |
| STATE | STATE SCHOOL PART 1 | 1.4940692947 | $327,325 | $327,325 | $489.05 | | |
| STATE2 | STATE SCHOOL PART 2 | 0.8050170049 | $327,325 | $327,325 | $263.50 | | |
| | Total Tax Rate: | 7.5917927814 | | | | | |
| | | | | Taxes w/Current Exemptions: | $2,484.99 | | |
| | | | | Taxes w/o Exemptions: | $2,484.99 | | |
Improvement / Building
| Improvement #1: | Residential Bldg | State Code: | 11 | 1120.0 sqft | Value: | $221,996 |
| Bathrooms (#): | 1 (FULL) | Bathrooms (#): | 1 (HALF) | | Bedrooms (#): | 3 | Exterior Wall: | SI/ST | | Fireplace: | SIN 1-GOOD | Fireplace: | WD ST-GOOD | | Floor Construction: | FRAME | Foundation: | CONPR | | Heating/Cooling: | ELBB | Roof Cover: | METAL |
|
| | Type | Description | Class CD | Sub Class CD | Year Built | Area |
| | MA | Main Area | 4 | 1S | 1978 | 1120.0 |
| | HDECK | House Deck | 4 | * | 1978 | 160.0 |
Sketch
Property Image
Land
| 1 | 1290-1365S | | 1.0000 | 43560.00 | 0.00 | 0.00 | 1.00 | $86,250 | $0 |
| 2 | 1572A | | 3.9500 | 172062.00 | 0.00 | 0.00 | 0.00 | $19,079 | $0 |
Roll Value History
| 2026 | N/A | N/A | N/A | N/A | N/A |
| 2025 | $221,996 | $105,329 | $0 | $327,325 | $327,325 |
| 2024 | $212,344 | $90,920 | $0 | $303,264 | $303,264 |
| 2023 | $212,344 | $80,800 | $0 | $293,144 | $293,144 |
| 2022 | $193,040 | $67,640 | $0 | $260,680 | $260,680 |
Deed and Sales History
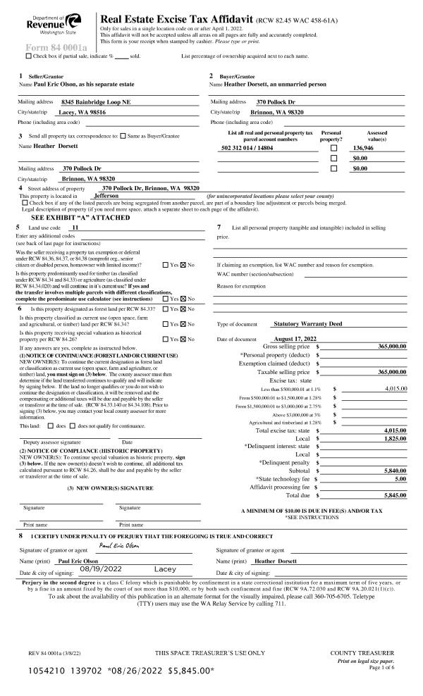
| 1 | 08/17/2022 | SWD | Statutory Warranty Deed | PAUL ERIC OLSON | HEATHER DORSETT | | | $365,000.00 | 139702 | |
Payout Agreement
| No payout information available.. |