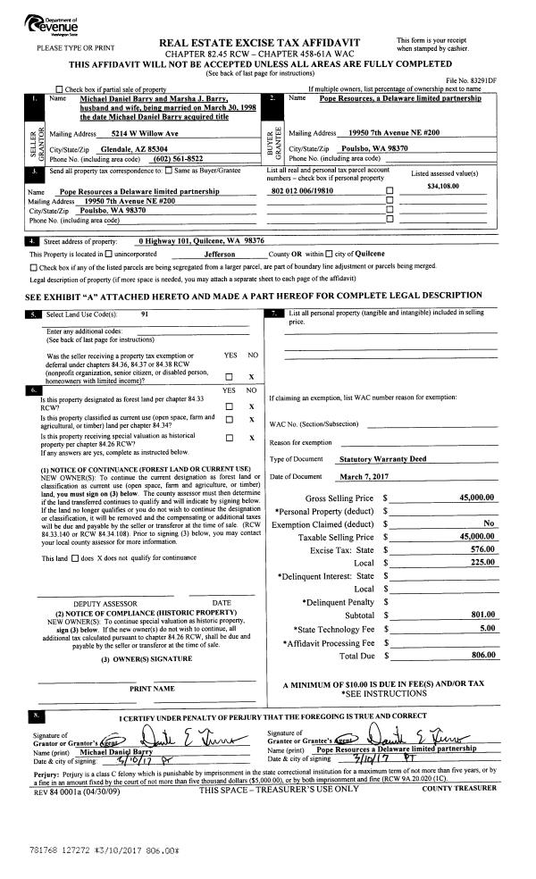
Property
Account |
| Property ID: | 14806 | Abbreviated Legal Description: | S31 T25 R2W TAX 58 |
| Parcel # / Geo ID: | 502312016 | Agent Code: | |
| Type: | Real | | |
| Tax Area: | 0441 - 1-46F4E4H2C1L1P2 | Land Use Code | 11 |
| Open Space: | N | DFL | N |
| Historic Property: | N | Remodel Property: | N |
| Multi-Family Redevelopment: | N | | |
| Township: | 25N | Section: | 31 |
| Range: | 2W |
Location |
| Address: | 463 POLLOCK DR BRINNON, WA 98320 | Mapsco: | 048/008 |
| Neighborhood: | S31 & S32 T25N R2W AKER, DUPUIS,MTC, & RUSS SHORT PLATS | Map ID: | |
| Neighborhood CD: | 1290 |
Owner |
| Name: | SHANE & TERESA ROAF | Owner ID: | 74725 |
| Mailing Address: | 70 POLLOCK DR BRINNON, WA 98320-9507 | % Ownership: | 100.0000000000% |
| | | Exemptions: | |
Pay Tax Due
Select the appropriate checkbox next to the year to be paid. Multiple years may be selected.
*Convenience Fee not included
Taxes and Assessment Details
Property Tax Information as of
03/10/2026
Click on "Statement Details" to expand or collapse a tax statement.
* Please enter a valid date ** Please enter a valid date *
Statement Details |
| 2026 | 4424 | STATE - STATE LEVY (SCHOOL) | $119.32 | $119.32 | $0.00 | $0.00 | $0.00 | $238.64 |
| 2026 | 4424 | COUNTY - COUNTY LEVIES (CE, DD, VET, MH) | $47.71 | $47.70 | $0.00 | $0.00 | $0.00 | $95.41 |
| 2026 | 4424 | CONSERVE - CONSERVATION FUTURES | $1.43 | $1.43 | $0.00 | $0.00 | $0.00 | $2.86 |
| 2026 | 4424 | COROADS - COUNTY ROADS (ROADS, DIV TO CE) | $38.49 | $38.48 | $0.00 | $0.00 | $0.00 | $76.97 |
| 2026 | 4424 | PORTPT - PORT DISTRICT | $19.27 | $19.26 | $0.00 | $0.00 | $0.00 | $38.53 |
| 2026 | 4424 | PUD1 - PUD #1 | $3.11 | $3.10 | $0.00 | $0.00 | $0.00 | $6.21 |
| 2026 | 4424 | LIB1 - LIBRARY DIST #1 | $14.89 | $14.89 | $0.00 | $0.00 | $0.00 | $29.78 |
| 2026 | 4424 | HD2 - HOSP DIST #2 | $2.78 | $2.78 | $0.00 | $0.00 | $0.00 | $5.56 |
| 2026 | 4424 | SD46 - SCHOOL DIST #46 | $35.76 | $35.76 | $0.00 | $0.00 | $0.00 | $71.52 |
| 2026 | 4424 | FD4 - FIRE DISTRICT #4 | $86.62 | $86.60 | $0.00 | $0.00 | $0.00 | $173.22 |
| 2026 | 4424 | EMS4 - FIRE DIST #4 EMS | $24.11 | $24.10 | $0.00 | $0.00 | $0.00 | $48.21 |
| 2026 | 4424 | CEM1 - CEMETERY DIST #1 | $0.56 | $0.55 | $0.00 | $0.00 | $0.00 | $1.11 |
| 2026 | 4424 | FP - DNR Forest Fire Protection Assmt | $8.50 | $8.50 | $0.00 | $0.00 | $0.00 | $17.00 |
| 2026 | 4424 | FPLCA - DNR Landowner Contingency Assmt | $3.00 | $3.00 | $0.00 | $0.00 | $0.00 | $6.00 |
| 2026 | 4424 | JCCD - JC Conservation District | $2.80 | $2.80 | $0.00 | $0.00 | $0.00 | $5.60 |
| 2026 | 4424 | NWA - Noxious Weed Assessment | $4.10 | $4.10 | $0.00 | $0.00 | $0.00 | $8.20 |
| 2026 | 4424 | OSS - On Site Septic | $23.10 | $23.10 | $0.00 | $0.00 | $0.00 | $46.20 |
| 2026 | 4424 | WAT - Clean Water District | $13.00 | $13.00 | $0.00 | $0.00 | $0.00 | $26.00 |
| 2026 | 4424 | FP ADMIN - FP ADMIN | $0.50 | $0.00 | $0.00 | $0.00 | $0.00 | $0.50 |
| 2026 | 4424 | TOTAL: | $449.05 | $448.47 | $0.00 | $0.00 | $0.00 | $897.52 |
|
| 2026 | 4424 | $449.05 | $448.47 | $0.00 | $0.00 | $0.00 | $897.52 |
Statement Details |
| 2025 | 4443 | STATE - STATE LEVY (SCHOOL) | $107.66 | $107.65 | $0.00 | $0.00 | $215.31 | $0.00 |
| 2025 | 4443 | COUNTY - COUNTY LEVIES (CE, DD, VET, MH) | $42.35 | $42.33 | $0.00 | $0.00 | $84.68 | $0.00 |
| 2025 | 4443 | CONSERVE - CONSERVATION FUTURES | $1.27 | $1.27 | $0.00 | $0.00 | $2.54 | $0.00 |
| 2025 | 4443 | COROADS - COUNTY ROADS (ROADS, DIV TO CE) | $33.92 | $33.91 | $0.00 | $0.00 | $67.83 | $0.00 |
| 2025 | 4443 | PORTPT - PORT DISTRICT | $17.28 | $17.27 | $0.00 | $0.00 | $34.55 | $0.00 |
| 2025 | 4443 | PUD1 - PUD #1 | $2.77 | $2.77 | $0.00 | $0.00 | $5.54 | $0.00 |
| 2025 | 4443 | LIB1 - LIBRARY DIST #1 | $13.12 | $13.12 | $0.00 | $0.00 | $26.24 | $0.00 |
| 2025 | 4443 | HD2 - HOSP DIST #2 | $2.47 | $2.47 | $0.00 | $0.00 | $4.94 | $0.00 |
| 2025 | 4443 | SD46 - SCHOOL DIST #46 | $28.46 | $28.45 | $0.00 | $0.00 | $56.91 | $0.00 |
| 2025 | 4443 | FD4 - FIRE DISTRICT #4 | $78.86 | $78.86 | $0.00 | $0.00 | $157.72 | $0.00 |
| 2025 | 4443 | EMS4 - FIRE DIST #4 EMS | $21.88 | $21.88 | $0.00 | $0.00 | $43.76 | $0.00 |
| 2025 | 4443 | CEM1 - CEMETERY DIST #1 | $0.51 | $0.50 | $0.00 | $0.00 | $1.01 | $0.00 |
| 2025 | 4443 | FP - DNR Forest Fire Protection Assmt | $8.50 | $8.50 | $0.00 | $0.00 | $17.00 | $0.00 |
| 2025 | 4443 | FPLCA - DNR Landowner Contingency Assmt | $3.00 | $3.00 | $0.00 | $0.00 | $6.00 | $0.00 |
| 2025 | 4443 | JCCD - JC Conservation District | $2.80 | $2.80 | $0.00 | $0.00 | $5.60 | $0.00 |
| 2025 | 4443 | NWA - Noxious Weed Assessment | $2.90 | $2.90 | $0.00 | $0.00 | $5.80 | $0.00 |
| 2025 | 4443 | OSS - On Site Septic | $21.50 | $21.50 | $0.00 | $0.00 | $43.00 | $0.00 |
| 2025 | 4443 | WAT - Clean Water District | $13.00 | $13.00 | $0.00 | $0.00 | $26.00 | $0.00 |
| 2025 | 4443 | FP ADMIN - FP ADMIN | $0.50 | $0.00 | $0.00 | $0.00 | $0.50 | $0.00 |
| 2025 | 4443 | TOTAL: | $402.75 | $402.18 | $0.00 | $0.00 | $804.93 | $0.00 |
|
| 2025 | 4443 | $402.75 | $402.18 | $0.00 | $0.00 | $804.93 | $0.00 |
Statement Details |
| 2024 | 4458 | STATE - STATE LEVY (SCHOOL) | $91.14 | $91.14 | $0.00 | $0.00 | $182.28 | $0.00 |
| 2024 | 4458 | COUNTY - COUNTY LEVIES (CE, DD, VET, MH) | $39.01 | $38.99 | $0.00 | $0.00 | $78.00 | $0.00 |
| 2024 | 4458 | CONSERVE - CONSERVATION FUTURES | $1.17 | $1.17 | $0.00 | $0.00 | $2.34 | $0.00 |
| 2024 | 4458 | COROADS - COUNTY ROADS (ROADS, DIV TO CE) | $31.39 | $31.37 | $0.00 | $0.00 | $62.76 | $0.00 |
| 2024 | 4458 | PORTPT - PORT DISTRICT | $16.12 | $16.10 | $0.00 | $0.00 | $32.22 | $0.00 |
| 2024 | 4458 | PUD1 - PUD #1 | $2.56 | $2.56 | $0.00 | $0.00 | $5.12 | $0.00 |
| 2024 | 4458 | LIB1 - LIBRARY DIST #1 | $12.14 | $12.14 | $0.00 | $0.00 | $24.28 | $0.00 |
| 2024 | 4458 | HD2 - HOSP DIST #2 | $2.28 | $2.27 | $0.00 | $0.00 | $4.55 | $0.00 |
| 2024 | 4458 | SD46 - SCHOOL DIST #46 | $27.36 | $27.36 | $0.00 | $0.00 | $54.72 | $0.00 |
| 2024 | 4458 | FD4 - FIRE DISTRICT #4 | $70.68 | $70.68 | $0.00 | $0.00 | $141.36 | $0.00 |
| 2024 | 4458 | EMS4 - FIRE DIST #4 EMS | $19.70 | $19.69 | $0.00 | $0.00 | $39.39 | $0.00 |
| 2024 | 4458 | CEM1 - CEMETERY DIST #1 | $0.46 | $0.46 | $0.00 | $0.00 | $0.92 | $0.00 |
| 2024 | 4458 | FPLCA - DNR Landowner Contingency Assmt | $3.00 | $3.00 | $0.00 | $0.00 | $6.00 | $0.00 |
| 2024 | 4458 | JCCD - JC Conservation District | $2.80 | $2.80 | $0.00 | $0.00 | $5.60 | $0.00 |
| 2024 | 4458 | NWA - Noxious Weed Assessment | $2.90 | $2.90 | $0.00 | $0.00 | $5.80 | $0.00 |
| 2024 | 4458 | OSS - On Site Septic | $21.00 | $21.00 | $0.00 | $0.00 | $42.00 | $0.00 |
| 2024 | 4458 | WAT - Clean Water District | $12.50 | $12.50 | $0.00 | $0.00 | $25.00 | $0.00 |
| 2024 | 4458 | TOTAL: | $356.21 | $356.13 | $0.00 | $0.00 | $712.34 | $0.00 |
|
| 2024 | 4458 | $356.21 | $356.13 | $0.00 | $0.00 | $712.34 | $0.00 |
Statement Details |
| 2023 | 4472 | STATE - STATE LEVY (SCHOOL) | $80.35 | $80.35 | $0.00 | $0.00 | $160.70 | $0.00 |
| 2023 | 4472 | COUNTY - COUNTY LEVIES (CE, DD, VET, MH) | $35.06 | $35.06 | $0.00 | $0.00 | $70.12 | $0.00 |
| 2023 | 4472 | CONSERVE - CONSERVATION FUTURES | $1.05 | $1.05 | $0.00 | $0.00 | $2.10 | $0.00 |
| 2023 | 4472 | COROADS - COUNTY ROADS (ROADS, DIV TO CE) | $28.38 | $28.36 | $0.00 | $0.00 | $56.74 | $0.00 |
| 2023 | 4472 | PORTPT - PORT DISTRICT | $14.77 | $14.77 | $0.00 | $0.00 | $29.54 | $0.00 |
| 2023 | 4472 | PUD1 - PUD #1 | $2.33 | $2.32 | $0.00 | $0.00 | $4.65 | $0.00 |
| 2023 | 4472 | LIB1 - LIBRARY DIST #1 | $10.98 | $10.97 | $0.00 | $0.00 | $21.95 | $0.00 |
| 2023 | 4472 | HD2 - HOSP DIST #2 | $2.05 | $2.04 | $0.00 | $0.00 | $4.09 | $0.00 |
| 2023 | 4472 | SD46 - SCHOOL DIST #46 | $26.23 | $26.22 | $0.00 | $0.00 | $52.45 | $0.00 |
| 2023 | 4472 | FD4 - FIRE DISTRICT #4 | $43.61 | $43.60 | $0.00 | $0.00 | $87.21 | $0.00 |
| 2023 | 4472 | EMS4 - FIRE DIST #4 EMS | $12.40 | $12.40 | $0.00 | $0.00 | $24.80 | $0.00 |
| 2023 | 4472 | CEM1 - CEMETERY DIST #1 | $0.44 | $0.44 | $0.00 | $0.00 | $0.88 | $0.00 |
| 2023 | 4472 | FPLCA - DNR Landowner Contingency Assmt | $3.00 | $3.00 | $0.00 | $0.00 | $6.00 | $0.00 |
| 2023 | 4472 | JCCD - JC Conservation District | $2.80 | $2.80 | $0.00 | $0.00 | $5.60 | $0.00 |
| 2023 | 4472 | NWA - Noxious Weed Assessment | $2.90 | $2.90 | $0.00 | $0.00 | $5.80 | $0.00 |
| 2023 | 4472 | OSS - On Site Septic | $20.50 | $20.50 | $0.00 | $0.00 | $41.00 | $0.00 |
| 2023 | 4472 | WAT - Clean Water District | $12.00 | $12.00 | $0.00 | $0.00 | $24.00 | $0.00 |
| 2023 | 4472 | TOTAL: | $298.85 | $298.78 | $0.00 | $0.00 | $597.63 | $0.00 |
|
| 2023 | 4472 | $298.85 | $298.78 | $0.00 | $0.00 | $597.63 | $0.00 |
Values
| (+) Improvement Homesite Value: | + | $0 | |
| (+) Improvement Non-Homesite Value: | + | $6,049 | |
| (+) Land Homesite Value: | + | $0 | |
| (+) Land Non-Homesite Value: | + | $97,750 | |
| (+) Curr Use (HS): | + | $0 | $0 |
| (+) Curr Use (NHS): | + | $0 | $0 |
| | | -------------------------- | |
| (=) Market Value: | = | $103,799 | |
| (–) Productivity Loss: | – | $0 | |
| | | -------------------------- | |
| (=) Subtotal: | = | $103,799 | |
| (+) Senior Appraised Value: | + | $0 | |
| (+) Non-Senior Appraised Value: | + | $103,799 | |
| | | -------------------------- | |
| (=) Total Appraised Value: | = | $103,799 | |
| (–) Senior Exemption Loss: | – | $0 | |
| (–) Exemption Loss: | – | $0 | |
| | | -------------------------- | |
| (=) Taxable Value: | = | $103,799 | |
Taxing Jurisdiction
| Owner: | SHANE & TERESA ROAF | | |
| % Ownership: | 100.0000000000% | | |
| Total Value: | $103,799 | | |
| Tax Area: | 0441 - 1-46F4E4H2C1L1P2 |
| CE | COUNTY CURRENT EXPENSE | 0.9034619479 | $103,799 | $103,799 | $93.78 | | |
| CNTYDD | DEVELOPMENTAL DISABILITIES | 0.0052121823 | $103,799 | $103,799 | $0.54 | | |
| CNTYVET | VETERANS RELIEF | 0.0052777810 | $103,799 | $103,799 | $0.55 | | |
| MENTAL | MENTAL HEALTH | 0.0052121823 | $103,799 | $103,799 | $0.54 | | |
| ROADS | COUNTY ROADS | 0.7415066410 | $103,799 | $103,799 | $76.97 | | |
| ROADSCU | COUNTY ROADS TO CUR EXP | 0.0000000000 | $103,799 | $103,799 | $0.00 | | |
| HOSP2CASH | HOSP DIST #2 GENERAL | 0.0536075306 | $103,799 | $103,799 | $5.56 | | |
| SCH46MO | SCHOOL DIST #46 EP & O | 0.6890207067 | $103,799 | $103,799 | $71.52 | | |
| CEM1 | CEMETERY DIST #1 GENERAL | 0.0107168292 | $103,799 | $103,799 | $1.11 | | |
| CONSERVE | CONSERVATION FUTURES | 0.0275621078 | $103,799 | $103,799 | $2.86 | | |
| EMS4 | FIRE DIST #4 EMS | 0.4644216158 | $103,799 | $103,799 | $48.21 | | |
| FD4 | FIRE DIST #4 GENERAL | 1.3939598390 | $103,799 | $103,799 | $144.69 | | |
| FD4BOND | FIRE DIST #4 BOND 2019 | 0.2748466981 | $103,799 | $103,799 | $28.53 | | |
| LIB1 | LIBRARY DIST #1 GENERAL | 0.2868827388 | $103,799 | $103,799 | $29.78 | | |
| PORTPT | PORT OF PT GENERAL | 0.1134941229 | $103,799 | $103,799 | $11.78 | | |
| PORTPTIDD | PORT OF PT IDD 2019 | 0.2577346692 | $103,799 | $103,799 | $26.75 | | |
| PUD1 | PUD #1 GENERAL | 0.0597888892 | $103,799 | $103,799 | $6.21 | | |
| STATE | STATE SCHOOL PART 1 | 1.4940692947 | $103,799 | $103,799 | $155.08 | | |
| STATE2 | STATE SCHOOL PART 2 | 0.8050170049 | $103,799 | $103,799 | $83.56 | | |
| | Total Tax Rate: | 7.5917927814 | | | | | |
| | | | | Taxes w/Current Exemptions: | $788.02 | | |
| | | | | Taxes w/o Exemptions: | $788.02 | | |
Improvement / Building
| Improvement #1: | Manufactured Home | State Code: | 18 | 0.0 sqft | Value: | $6,049 |
Sketch
Property Image
Land
| 1 | 1290-1365S | | 1.0000 | 43560.00 | 0.00 | 0.00 | 1.00 | $86,250 | $0 |
| 2 | 1579A | | 5.0000 | 217800.00 | 0.00 | 0.00 | 0.00 | $11,500 | $0 |
Roll Value History
| 2026 | N/A | N/A | N/A | N/A | N/A |
| 2025 | $6,049 | $97,750 | $0 | $103,799 | $103,799 |
| 2024 | $5,786 | $84,000 | $0 | $89,786 | $89,786 |
| 2023 | $5,786 | $73,000 | $0 | $78,786 | $78,786 |
| 2022 | $5,260 | $63,000 | $0 | $68,260 | $68,260 |
Deed and Sales History
| 1 | 03/17/2017 | SWD | Statutory Warranty Deed | CLIFFORD S NAYLOR | SHANE & TERESA ROAF | | | $58,000.00 | 127331 | |
|   | |
| 2 | 01/08/1996 | MISC | MISC | AULTMAN, KATHLEEN | NAYLOR, CLIFFORD/ALICE IONA | 0 | 0 | $0.00 | 79018 | 0 |
Payout Agreement
| No payout information available.. |