Property
Account |
| Property ID: | 14876 | Abbreviated Legal Description: | S1 T25 R3W TAX 8 |
| Parcel # / Geo ID: | 503013008 | Agent Code: | |
| Type: | Real | | |
| Tax Area: | 0444 - 1-46F4E4H2L1P2 | Land Use Code | 76 |
| Open Space: | N | DFL | N |
| Historic Property: | N | Remodel Property: | N |
| Multi-Family Redevelopment: | N | | |
| Township: | 25N | Section: | 1 |
| Range: | 3W |
Location |
| Address: | | Mapsco: | 059/013 |
| Neighborhood: | S1 - S36 T25N R3W (MOSTLY OLYMPIC NATIONAL FOREST) | Map ID: | |
| Neighborhood CD: | 1410 |
Owner |
| Name: | CHARLIE & KELLY SHUMAR | Owner ID: | 113651 |
| Mailing Address: | 404 BARR RD GRAYS RIVER, WA 98621-9712 | % Ownership: | 100.0000000000% |
| | | Exemptions: | |
Pay Tax Due
Select the appropriate checkbox next to the year to be paid. Multiple years may be selected.
*Convenience Fee not included
Taxes and Assessment Details
Property Tax Information as of
03/11/2026
Click on "Statement Details" to expand or collapse a tax statement.
* Please enter a valid date ** Please enter a valid date *
Statement Details |
| 2026 | 4493 | STATE - STATE LEVY (SCHOOL) | $40.24 | $40.23 | $0.00 | $0.00 | $0.00 | $80.47 |
| 2026 | 4493 | COUNTY - COUNTY LEVIES (CE, DD, VET, MH) | $16.08 | $16.08 | $0.00 | $0.00 | $0.00 | $32.16 |
| 2026 | 4493 | CONSERVE - CONSERVATION FUTURES | $0.48 | $0.48 | $0.00 | $0.00 | $0.00 | $0.96 |
| 2026 | 4493 | COROADS - COUNTY ROADS (ROADS, DIV TO CE) | $12.98 | $12.97 | $0.00 | $0.00 | $0.00 | $25.95 |
| 2026 | 4493 | PORTPT - PORT DISTRICT | $6.50 | $6.49 | $0.00 | $0.00 | $0.00 | $12.99 |
| 2026 | 4493 | PUD1 - PUD #1 | $1.05 | $1.04 | $0.00 | $0.00 | $0.00 | $2.09 |
| 2026 | 4493 | LIB1 - LIBRARY DIST #1 | $5.02 | $5.02 | $0.00 | $0.00 | $0.00 | $10.04 |
| 2026 | 4493 | HD2 - HOSP DIST #2 | $0.94 | $0.94 | $0.00 | $0.00 | $0.00 | $1.88 |
| 2026 | 4493 | SD46 - SCHOOL DIST #46 | $12.06 | $12.06 | $0.00 | $0.00 | $0.00 | $24.12 |
| 2026 | 4493 | FD4 - FIRE DISTRICT #4 | $29.21 | $29.20 | $0.00 | $0.00 | $0.00 | $58.41 |
| 2026 | 4493 | EMS4 - FIRE DIST #4 EMS | $8.13 | $8.12 | $0.00 | $0.00 | $0.00 | $16.25 |
| 2026 | 4493 | FP - DNR Forest Fire Protection Assmt | $8.50 | $8.50 | $0.00 | $0.00 | $0.00 | $17.00 |
| 2026 | 4493 | FPLCA - DNR Landowner Contingency Assmt | $3.00 | $3.00 | $0.00 | $0.00 | $0.00 | $6.00 |
| 2026 | 4493 | JCCD - JC Conservation District | $2.53 | $2.53 | $0.00 | $0.00 | $0.00 | $5.06 |
| 2026 | 4493 | NWA - Noxious Weed Assessment | $2.98 | $2.97 | $0.00 | $0.00 | $0.00 | $5.95 |
| 2026 | 4493 | WAT - Clean Water District | $13.00 | $13.00 | $0.00 | $0.00 | $0.00 | $26.00 |
| 2026 | 4493 | FP ADMIN - FP ADMIN | $0.50 | $0.00 | $0.00 | $0.00 | $0.00 | $0.50 |
| 2026 | 4493 | TOTAL: | $163.20 | $162.63 | $0.00 | $0.00 | $0.00 | $325.83 |
|
| 2026 | 4493 | $163.20 | $162.63 | $0.00 | $0.00 | $0.00 | $325.83 |
Statement Details |
| 2025 | 4511 | STATE - STATE LEVY (SCHOOL) | $41.97 | $41.96 | $0.00 | $0.00 | $83.93 | $0.00 |
| 2025 | 4511 | COUNTY - COUNTY LEVIES (CE, DD, VET, MH) | $16.52 | $16.49 | $0.00 | $0.00 | $33.01 | $0.00 |
| 2025 | 4511 | CONSERVE - CONSERVATION FUTURES | $0.50 | $0.49 | $0.00 | $0.00 | $0.99 | $0.00 |
| 2025 | 4511 | COROADS - COUNTY ROADS (ROADS, DIV TO CE) | $13.23 | $13.22 | $0.00 | $0.00 | $26.45 | $0.00 |
| 2025 | 4511 | PORTPT - PORT DISTRICT | $6.74 | $6.73 | $0.00 | $0.00 | $13.47 | $0.00 |
| 2025 | 4511 | PUD1 - PUD #1 | $1.08 | $1.08 | $0.00 | $0.00 | $2.16 | $0.00 |
| 2025 | 4511 | LIB1 - LIBRARY DIST #1 | $5.12 | $5.11 | $0.00 | $0.00 | $10.23 | $0.00 |
| 2025 | 4511 | HD2 - HOSP DIST #2 | $0.97 | $0.96 | $0.00 | $0.00 | $1.93 | $0.00 |
| 2025 | 4511 | SD46 - SCHOOL DIST #46 | $11.09 | $11.09 | $0.00 | $0.00 | $22.18 | $0.00 |
| 2025 | 4511 | FD4 - FIRE DISTRICT #4 | $30.74 | $30.74 | $0.00 | $0.00 | $61.48 | $0.00 |
| 2025 | 4511 | EMS4 - FIRE DIST #4 EMS | $8.53 | $8.53 | $0.00 | $0.00 | $17.06 | $0.00 |
| 2025 | 4511 | FP - DNR Forest Fire Protection Assmt | $8.50 | $8.50 | $0.00 | $0.00 | $17.00 | $0.00 |
| 2025 | 4511 | FPLCA - DNR Landowner Contingency Assmt | $3.00 | $3.00 | $0.00 | $0.00 | $6.00 | $0.00 |
| 2025 | 4511 | JCCD - JC Conservation District | $2.53 | $2.53 | $0.00 | $0.00 | $5.06 | $0.00 |
| 2025 | 4511 | NWA - Noxious Weed Assessment | $2.15 | $2.15 | $0.00 | $0.00 | $4.30 | $0.00 |
| 2025 | 4511 | WAT - Clean Water District | $13.00 | $13.00 | $0.00 | $0.00 | $26.00 | $0.00 |
| 2025 | 4511 | FP ADMIN - FP ADMIN | $0.50 | $0.00 | $0.00 | $0.00 | $0.50 | $0.00 |
| 2025 | 4511 | TOTAL: | $166.17 | $165.58 | $0.00 | $0.00 | $331.75 | $0.00 |
|
| 2025 | 4511 | $166.17 | $165.58 | $0.00 | $0.00 | $331.75 | $0.00 |
Statement Details |
| 2024 | 4527 | STATE - STATE LEVY (SCHOOL) | $40.49 | $40.48 | $0.00 | $0.00 | $80.97 | $0.00 |
| 2024 | 4527 | COUNTY - COUNTY LEVIES (CE, DD, VET, MH) | $17.33 | $17.33 | $0.00 | $0.00 | $34.66 | $0.00 |
| 2024 | 4527 | CONSERVE - CONSERVATION FUTURES | $0.52 | $0.52 | $0.00 | $0.00 | $1.04 | $0.00 |
| 2024 | 4527 | COROADS - COUNTY ROADS (ROADS, DIV TO CE) | $13.94 | $13.94 | $0.00 | $0.00 | $27.88 | $0.00 |
| 2024 | 4527 | PORTPT - PORT DISTRICT | $7.16 | $7.15 | $0.00 | $0.00 | $14.31 | $0.00 |
| 2024 | 4527 | PUD1 - PUD #1 | $1.14 | $1.14 | $0.00 | $0.00 | $2.28 | $0.00 |
| 2024 | 4527 | LIB1 - LIBRARY DIST #1 | $5.40 | $5.39 | $0.00 | $0.00 | $10.79 | $0.00 |
| 2024 | 4527 | HD2 - HOSP DIST #2 | $1.01 | $1.01 | $0.00 | $0.00 | $2.02 | $0.00 |
| 2024 | 4527 | SD46 - SCHOOL DIST #46 | $12.16 | $12.15 | $0.00 | $0.00 | $24.31 | $0.00 |
| 2024 | 4527 | FD4 - FIRE DISTRICT #4 | $31.40 | $31.40 | $0.00 | $0.00 | $62.80 | $0.00 |
| 2024 | 4527 | EMS4 - FIRE DIST #4 EMS | $8.75 | $8.75 | $0.00 | $0.00 | $17.50 | $0.00 |
| 2024 | 4527 | FP - DNR Forest Fire Protection Assmt | $8.50 | $8.50 | $0.00 | $0.00 | $17.00 | $0.00 |
| 2024 | 4527 | FPLCA - DNR Landowner Contingency Assmt | $3.00 | $3.00 | $0.00 | $0.00 | $6.00 | $0.00 |
| 2024 | 4527 | JCCD - JC Conservation District | $2.53 | $2.53 | $0.00 | $0.00 | $5.06 | $0.00 |
| 2024 | 4527 | NWA - Noxious Weed Assessment | $2.15 | $2.15 | $0.00 | $0.00 | $4.30 | $0.00 |
| 2024 | 4527 | WAT - Clean Water District | $12.50 | $12.50 | $0.00 | $0.00 | $25.00 | $0.00 |
| 2024 | 4527 | FP ADMIN - FP ADMIN | $0.50 | $0.00 | $0.00 | $0.00 | $0.50 | $0.00 |
| 2024 | 4527 | TOTAL: | $168.48 | $167.94 | $0.00 | $0.00 | $336.42 | $0.00 |
|
| 2024 | 4527 | $168.48 | $167.94 | $0.00 | $0.00 | $336.42 | $0.00 |
Statement Details |
| 2023 | 4541 | STATE - STATE LEVY (SCHOOL) | $41.20 | $41.19 | $0.00 | $0.00 | $82.39 | $0.00 |
| 2023 | 4541 | COUNTY - COUNTY LEVIES (CE, DD, VET, MH) | $17.98 | $17.97 | $0.00 | $0.00 | $35.95 | $0.00 |
| 2023 | 4541 | CONSERVE - CONSERVATION FUTURES | $0.54 | $0.54 | $0.00 | $0.00 | $1.08 | $0.00 |
| 2023 | 4541 | COROADS - COUNTY ROADS (ROADS, DIV TO CE) | $14.55 | $14.54 | $0.00 | $0.00 | $29.09 | $0.00 |
| 2023 | 4541 | PORTPT - PORT DISTRICT | $7.58 | $7.57 | $0.00 | $0.00 | $15.15 | $0.00 |
| 2023 | 4541 | PUD1 - PUD #1 | $1.19 | $1.19 | $0.00 | $0.00 | $2.38 | $0.00 |
| 2023 | 4541 | LIB1 - LIBRARY DIST #1 | $5.63 | $5.62 | $0.00 | $0.00 | $11.25 | $0.00 |
| 2023 | 4541 | HD2 - HOSP DIST #2 | $1.06 | $1.04 | $0.00 | $0.00 | $2.10 | $0.00 |
| 2023 | 4541 | SD46 - SCHOOL DIST #46 | $13.45 | $13.44 | $0.00 | $0.00 | $26.89 | $0.00 |
| 2023 | 4541 | FD4 - FIRE DISTRICT #4 | $22.37 | $22.35 | $0.00 | $0.00 | $44.72 | $0.00 |
| 2023 | 4541 | EMS4 - FIRE DIST #4 EMS | $6.36 | $6.36 | $0.00 | $0.00 | $12.72 | $0.00 |
| 2023 | 4541 | FP - DNR Forest Fire Protection Assmt | $8.50 | $8.50 | $0.00 | $0.00 | $17.00 | $0.00 |
| 2023 | 4541 | FPLCA - DNR Landowner Contingency Assmt | $3.00 | $3.00 | $0.00 | $0.00 | $6.00 | $0.00 |
| 2023 | 4541 | JCCD - JC Conservation District | $2.53 | $2.53 | $0.00 | $0.00 | $5.06 | $0.00 |
| 2023 | 4541 | NWA - Noxious Weed Assessment | $2.15 | $2.15 | $0.00 | $0.00 | $4.30 | $0.00 |
| 2023 | 4541 | WAT - Clean Water District | $12.00 | $12.00 | $0.00 | $0.00 | $24.00 | $0.00 |
| 2023 | 4541 | FP ADMIN - FP ADMIN | $0.50 | $0.00 | $0.00 | $0.00 | $0.50 | $0.00 |
| 2023 | 4541 | TOTAL: | $160.59 | $159.99 | $0.00 | $0.00 | $320.58 | $0.00 |
|
| 2023 | 4541 | $160.59 | $159.99 | $0.00 | $0.00 | $320.58 | $0.00 |
Values
| (+) Improvement Homesite Value: | + | $0 | |
| (+) Improvement Non-Homesite Value: | + | $0 | |
| (+) Land Homesite Value: | + | $0 | |
| (+) Land Non-Homesite Value: | + | $35,000 | |
| (+) Curr Use (HS): | + | $0 | $0 |
| (+) Curr Use (NHS): | + | $0 | $0 |
| | | -------------------------- | |
| (=) Market Value: | = | $35,000 | |
| (–) Productivity Loss: | – | $0 | |
| | | -------------------------- | |
| (=) Subtotal: | = | $35,000 | |
| (+) Senior Appraised Value: | + | $0 | |
| (+) Non-Senior Appraised Value: | + | $35,000 | |
| | | -------------------------- | |
| (=) Total Appraised Value: | = | $35,000 | |
| (–) Senior Exemption Loss: | – | $0 | |
| (–) Exemption Loss: | – | $0 | |
| | | -------------------------- | |
| (=) Taxable Value: | = | $35,000 | |
Taxing Jurisdiction
| Owner: | CHARLIE & KELLY SHUMAR | | |
| % Ownership: | 100.0000000000% | | |
| Total Value: | $35,000 | | |
| Tax Area: | 0444 - 1-46F4E4H2L1P2 |
| CE | COUNTY CURRENT EXPENSE | 0.9034619479 | $35,000 | $35,000 | $31.62 | | |
| CNTYDD | DEVELOPMENTAL DISABILITIES | 0.0052121823 | $35,000 | $35,000 | $0.18 | | |
| CNTYVET | VETERANS RELIEF | 0.0052777810 | $35,000 | $35,000 | $0.18 | | |
| MENTAL | MENTAL HEALTH | 0.0052121823 | $35,000 | $35,000 | $0.18 | | |
| ROADS | COUNTY ROADS | 0.7415066410 | $35,000 | $35,000 | $25.95 | | |
| ROADSCU | COUNTY ROADS TO CUR EXP | 0.0000000000 | $35,000 | $35,000 | $0.00 | | |
| HOSP2CASH | HOSP DIST #2 GENERAL | 0.0536075306 | $35,000 | $35,000 | $1.88 | | |
| SCH46MO | SCHOOL DIST #46 EP & O | 0.6890207067 | $35,000 | $35,000 | $24.12 | | |
| CONSERVE | CONSERVATION FUTURES | 0.0275621078 | $35,000 | $35,000 | $0.96 | | |
| EMS4 | FIRE DIST #4 EMS | 0.4644216158 | $35,000 | $35,000 | $16.25 | | |
| FD4 | FIRE DIST #4 GENERAL | 1.3939598390 | $35,000 | $35,000 | $48.79 | | |
| FD4BOND | FIRE DIST #4 BOND 2019 | 0.2748466981 | $35,000 | $35,000 | $9.62 | | |
| LIB1 | LIBRARY DIST #1 GENERAL | 0.2868827388 | $35,000 | $35,000 | $10.04 | | |
| PORTPT | PORT OF PT GENERAL | 0.1134941229 | $35,000 | $35,000 | $3.97 | | |
| PORTPTIDD | PORT OF PT IDD 2019 | 0.2577346692 | $35,000 | $35,000 | $9.02 | | |
| PUD1 | PUD #1 GENERAL | 0.0597888892 | $35,000 | $35,000 | $2.09 | | |
| STATE | STATE SCHOOL PART 1 | 1.4940692947 | $35,000 | $35,000 | $52.29 | | |
| STATE2 | STATE SCHOOL PART 2 | 0.8050170049 | $35,000 | $35,000 | $28.18 | | |
| | Total Tax Rate: | 7.5810759522 | | | | | |
| | | | | Taxes w/Current Exemptions: | $265.32 | | |
| | | | | Taxes w/o Exemptions: | $265.32 | | |
Improvement / Building
Sketch
| No sketches available for this property. |
Property Image
Land
| 1 | 1410-1335S | | 0.0000 | 0.00 | 0.00 | 0.00 | 1.00 | $35,000 | $0 |
Roll Value History
| 2026 | N/A | N/A | N/A | N/A | N/A |
| 2025 | $0 | $35,000 | $0 | $35,000 | $35,000 |
| 2024 | $0 | $35,000 | $0 | $35,000 | $35,000 |
| 2023 | $0 | $35,000 | $0 | $35,000 | $35,000 |
| 2022 | $0 | $35,000 | $0 | $35,000 | $35,000 |
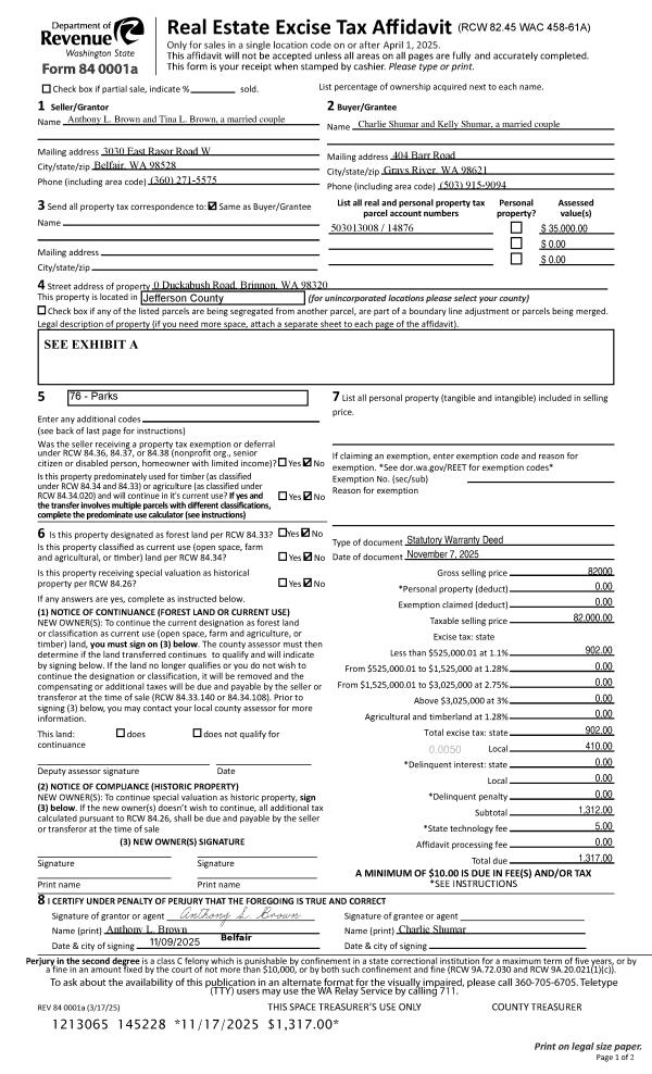
Deed and Sales History
| 1 | 11/07/2025 | SWD | Statutory Warranty Deed | ANTHONY L & TINA L BROWN | CHARLIE & KELLY SHUMAR | | | $82,000.00 | 145228 | |
| 2 | 03/10/2022 | SWD | Statutory Warranty Deed | GEORGE POERNER | ANTHONY L & TINA L BROWN | | | $52,000.00 | 138710 | |
| 3 | 05/02/2007 | QCD | Quit Claim Deed | POERNER, APRIL L | POERNER, GEORGE G | | | $0.00 | 109400 | 0 |
| 4 | 05/18/2005 | SWD | Statutory Warranty Deed | BORDEN, JOHN C & ALBERTA | POERNER, GEORGE & APRIL | | | $0.00 | 104186 | 0 |
| 5 | 05/18/2005 | SWD | Statutory Warranty Deed | BORDEN, JOHN C & ALBERTA | POERNER, GEORGE & APRIL | | | $9,250.00 | 103706 | 0 |
Payout Agreement
| No payout information available.. |