Property
Account |
| Property ID: | 15017 | Abbreviated Legal Description: | S17 T25 R12W NE(W1/2), NW(E1/2) NE SW, NW SE |
| Parcel # / Geo ID: | 512171001 | Agent Code: | |
| Type: | Real | | |
| Tax Area: | 0502 - 1-20H1L1 | Land Use Code | 91 |
| Open Space: | N | DFL | N |
| Historic Property: | N | Remodel Property: | N |
| Multi-Family Redevelopment: | N | | |
| Township: | 25N | Section: | 17 |
| Range: | 12W |
Location |
| Address: | | Mapsco: | 919/036 |
| Neighborhood: | ALL SECTIONS T25N R12W (UPPER CLEARWATER RIVER) | Map ID: | |
| Neighborhood CD: | 1720 |
Owner |
| Name: | STATE OF WASHINGTON-DNR | Owner ID: | 28049 |
| Mailing Address: | PO BOX 47014 OLYMPIA, WA 98504-7014 | % Ownership: | 100.0000000000% |
| | | Exemptions: | EX |
Pay Tax Due
There is currently No Amount Due on this property.
Taxes and Assessment Details
Property Tax Information as of
03/12/2026
Click on "Statement Details" to expand or collapse a tax statement.
* Please enter a valid date ** Please enter a valid date *
Statement Details |
| 2026 | 4613 | STATE - STATE LEVY (SCHOOL) | $0.00 | $0.00 | $0.00 | $0.00 | $0.00 | $0.00 |
| 2026 | 4613 | COUNTY - COUNTY LEVIES (CE, DD, VET, MH) | $0.00 | $0.00 | $0.00 | $0.00 | $0.00 | $0.00 |
| 2026 | 4613 | CONSERVE - CONSERVATION FUTURES | $0.00 | $0.00 | $0.00 | $0.00 | $0.00 | $0.00 |
| 2026 | 4613 | COROADS - COUNTY ROADS (ROADS, DIV TO CE) | $0.00 | $0.00 | $0.00 | $0.00 | $0.00 | $0.00 |
| 2026 | 4613 | PORTPT - PORT DISTRICT | $0.00 | $0.00 | $0.00 | $0.00 | $0.00 | $0.00 |
| 2026 | 4613 | PUD1 - PUD #1 | $0.00 | $0.00 | $0.00 | $0.00 | $0.00 | $0.00 |
| 2026 | 4613 | LIB1 - LIBRARY DIST #1 | $0.00 | $0.00 | $0.00 | $0.00 | $0.00 | $0.00 |
| 2026 | 4613 | HD1 - HOSP DIST #1 | $0.00 | $0.00 | $0.00 | $0.00 | $0.00 | $0.00 |
| 2026 | 4613 | SD20 - SCHOOL DIST #20 | $0.00 | $0.00 | $0.00 | $0.00 | $0.00 | $0.00 |
| 2026 | 4613 | TOTAL: | $0.00 | $0.00 | $0.00 | $0.00 | $0.00 | $0.00 |
|
| 2026 | 4613 | $0.00 | $0.00 | $0.00 | $0.00 | $0.00 | $0.00 |
Statement Details |
| 2025 | 4632 | STATE - STATE LEVY (SCHOOL) | $36.40 | $36.39 | $0.00 | $0.00 | $72.79 | $0.00 |
| 2025 | 4632 | COUNTY - COUNTY LEVIES (CE, DD, VET, MH) | $14.31 | $14.31 | $0.00 | $0.00 | $28.62 | $0.00 |
| 2025 | 4632 | CONSERVE - CONSERVATION FUTURES | $0.43 | $0.43 | $0.00 | $0.00 | $0.86 | $0.00 |
| 2025 | 4632 | COROADS - COUNTY ROADS (ROADS, DIV TO CE) | $11.47 | $11.46 | $0.00 | $0.00 | $22.93 | $0.00 |
| 2025 | 4632 | PORTPT - PORT DISTRICT | $5.85 | $5.83 | $0.00 | $0.00 | $11.68 | $0.00 |
| 2025 | 4632 | PUD1 - PUD #1 | $0.94 | $0.93 | $0.00 | $0.00 | $1.87 | $0.00 |
| 2025 | 4632 | LIB1 - LIBRARY DIST #1 | $4.44 | $4.43 | $0.00 | $0.00 | $8.87 | $0.00 |
| 2025 | 4632 | HD1 - HOSP DIST #1 | $8.57 | $8.56 | $0.00 | $0.00 | $17.13 | $0.00 |
| 2025 | 4632 | SD20 - SCHOOL DIST #20 | $18.20 | $18.20 | $0.00 | $0.00 | $36.40 | $0.00 |
| 2025 | 4632 | FP - DNR Forest Fire Protection Assmt | $34.15 | $34.15 | $0.00 | $0.00 | $68.30 | $0.00 |
| 2025 | 4632 | FPLCA - DNR Landowner Contingency Assmt | $17.25 | $17.25 | $0.00 | $0.00 | $34.50 | $0.00 |
| 2025 | 4632 | NWA - Noxious Weed Assessment | $3.80 | $3.80 | $0.00 | $0.00 | $7.60 | $0.00 |
| 2025 | 4632 | FP ADMIN - FP ADMIN | $0.50 | $0.00 | $0.00 | $0.00 | $0.50 | $0.00 |
| 2025 | 4632 | TOTAL: | $156.31 | $155.74 | $0.00 | $0.00 | $312.05 | $0.00 |
|
| 2025 | 4632 | $156.31 | $155.74 | $0.00 | $0.00 | $312.05 | $0.00 |
Statement Details |
| 2024 | 4648 | STATE - STATE LEVY (SCHOOL) | $34.57 | $34.55 | $0.00 | $0.00 | $69.12 | $0.00 |
| 2024 | 4648 | COUNTY - COUNTY LEVIES (CE, DD, VET, MH) | $14.81 | $14.77 | $0.00 | $0.00 | $29.58 | $0.00 |
| 2024 | 4648 | CONSERVE - CONSERVATION FUTURES | $0.45 | $0.44 | $0.00 | $0.00 | $0.89 | $0.00 |
| 2024 | 4648 | COROADS - COUNTY ROADS (ROADS, DIV TO CE) | $11.90 | $11.90 | $0.00 | $0.00 | $23.80 | $0.00 |
| 2024 | 4648 | PORTPT - PORT DISTRICT | $6.11 | $6.10 | $0.00 | $0.00 | $12.21 | $0.00 |
| 2024 | 4648 | PUD1 - PUD #1 | $0.97 | $0.97 | $0.00 | $0.00 | $1.94 | $0.00 |
| 2024 | 4648 | LIB1 - LIBRARY DIST #1 | $4.61 | $4.60 | $0.00 | $0.00 | $9.21 | $0.00 |
| 2024 | 4648 | HD1 - HOSP DIST #1 | $8.79 | $8.78 | $0.00 | $0.00 | $17.57 | $0.00 |
| 2024 | 4648 | SD20 - SCHOOL DIST #20 | $11.60 | $11.59 | $0.00 | $0.00 | $23.19 | $0.00 |
| 2024 | 4648 | FP - DNR Forest Fire Protection Assmt | $34.15 | $34.15 | $0.00 | $0.00 | $68.30 | $0.00 |
| 2024 | 4648 | FPLCA - DNR Landowner Contingency Assmt | $17.25 | $17.25 | $0.00 | $0.00 | $34.50 | $0.00 |
| 2024 | 4648 | NWA - Noxious Weed Assessment | $3.80 | $3.80 | $0.00 | $0.00 | $7.60 | $0.00 |
| 2024 | 4648 | FP ADMIN - FP ADMIN | $0.50 | $0.00 | $0.00 | $0.00 | $0.50 | $0.00 |
| 2024 | 4648 | TOTAL: | $149.51 | $148.90 | $0.00 | $0.00 | $298.41 | $0.00 |
|
| 2024 | 4648 | $149.51 | $148.90 | $0.00 | $0.00 | $298.41 | $0.00 |
Statement Details |
| 2023 | 4662 | STATE - STATE LEVY (SCHOOL) | $34.20 | $34.18 | $0.00 | $0.00 | $68.38 | $0.00 |
| 2023 | 4662 | COUNTY - COUNTY LEVIES (CE, DD, VET, MH) | $14.94 | $14.90 | $0.00 | $0.00 | $29.84 | $0.00 |
| 2023 | 4662 | CONSERVE - CONSERVATION FUTURES | $0.45 | $0.44 | $0.00 | $0.00 | $0.89 | $0.00 |
| 2023 | 4662 | COROADS - COUNTY ROADS (ROADS, DIV TO CE) | $12.07 | $12.07 | $0.00 | $0.00 | $24.14 | $0.00 |
| 2023 | 4662 | PORTPT - PORT DISTRICT | $6.28 | $6.28 | $0.00 | $0.00 | $12.56 | $0.00 |
| 2023 | 4662 | PUD1 - PUD #1 | $0.99 | $0.99 | $0.00 | $0.00 | $1.98 | $0.00 |
| 2023 | 4662 | LIB1 - LIBRARY DIST #1 | $4.67 | $4.67 | $0.00 | $0.00 | $9.34 | $0.00 |
| 2023 | 4662 | HD1 - HOSP DIST #1 | $8.61 | $8.61 | $0.00 | $0.00 | $17.22 | $0.00 |
| 2023 | 4662 | SD20 - SCHOOL DIST #20 | $17.91 | $17.91 | $0.00 | $0.00 | $35.82 | $0.00 |
| 2023 | 4662 | FP - DNR Forest Fire Protection Assmt | $34.15 | $34.15 | $0.00 | $0.00 | $68.30 | $0.00 |
| 2023 | 4662 | FPLCA - DNR Landowner Contingency Assmt | $17.25 | $17.25 | $0.00 | $0.00 | $34.50 | $0.00 |
| 2023 | 4662 | NWA - Noxious Weed Assessment | $3.80 | $3.80 | $0.00 | $0.00 | $7.60 | $0.00 |
| 2023 | 4662 | FP ADMIN - FP ADMIN | $0.50 | $0.00 | $0.00 | $0.00 | $0.50 | $0.00 |
| 2023 | 4662 | TOTAL: | $155.82 | $155.25 | $0.00 | $0.00 | $311.07 | $0.00 |
|
| 2023 | 4662 | $155.82 | $155.25 | $0.00 | $0.00 | $311.07 | $0.00 |
Values
| (+) Improvement Homesite Value: | + | $0 | |
| (+) Improvement Non-Homesite Value: | + | $0 | |
| (+) Land Homesite Value: | + | $0 | |
| (+) Land Non-Homesite Value: | + | $216,000 | |
| (+) Curr Use (HS): | + | $0 | $0 |
| (+) Curr Use (NHS): | + | $0 | $0 |
| | | -------------------------- | |
| (=) Market Value: | = | $216,000 | |
| (–) Productivity Loss: | – | $0 | |
| | | -------------------------- | |
| (=) Subtotal: | = | $216,000 | |
| (+) Senior Appraised Value: | + | $0 | |
| (+) Non-Senior Appraised Value: | + | $216,000 | |
| | | -------------------------- | |
| (=) Total Appraised Value: | = | $216,000 | |
| (–) Senior Exemption Loss: | – | $0 | |
| (–) Exemption Loss: | – | $216,000 | |
| | | -------------------------- | |
| (=) Taxable Value: | = | $0 | |
Taxing Jurisdiction
| Owner: | STATE OF WASHINGTON-DNR | | |
| % Ownership: | 100.0000000000% | | |
| Total Value: | $216,000 | | |
| Tax Area: | 0502 - 1-20H1L1 |
| CE | COUNTY CURRENT EXPENSE | 0.9034619479 | $216,000 | $0 | $0.00 | | |
| CNTYDD | DEVELOPMENTAL DISABILITIES | 0.0052121823 | $216,000 | $0 | $0.00 | | |
| CNTYVET | VETERANS RELIEF | 0.0052777810 | $216,000 | $0 | $0.00 | | |
| MENTAL | MENTAL HEALTH | 0.0052121823 | $216,000 | $0 | $0.00 | | |
| ROADS | COUNTY ROADS | 0.7415066410 | $216,000 | $0 | $0.00 | | |
| ROADSCU | COUNTY ROADS TO CUR EXP | 0.0000000000 | $216,000 | $0 | $0.00 | | |
| HOS1GEN | HOSP DIST #1 GENERAL | 0.5503668747 | $216,000 | $0 | $0.00 | | |
| SCH20MO | SCHOOL DIST #20 EP & O | 1.2357895829 | $216,000 | $0 | $0.00 | | |
| CONSERVE | CONSERVATION FUTURES | 0.0275621078 | $216,000 | $0 | $0.00 | | |
| LIB1 | LIBRARY DIST #1 GENERAL | 0.2868827388 | $216,000 | $0 | $0.00 | | |
| PORTPT | PORT OF PT GENERAL | 0.1134941229 | $216,000 | $0 | $0.00 | | |
| PORTPTIDD | PORT OF PT IDD 2019 | 0.2577346692 | $216,000 | $0 | $0.00 | | |
| PUD1 | PUD #1 GENERAL | 0.0597888892 | $216,000 | $0 | $0.00 | | |
| STATE | STATE SCHOOL PART 1 | 1.4940692947 | $216,000 | $0 | $0.00 | | |
| STATE2 | STATE SCHOOL PART 2 | 0.8050170049 | $216,000 | $0 | $0.00 | | |
| | Total Tax Rate: | 6.4913760196 | | | | | |
| | | | | Taxes w/Current Exemptions: | $0.00 | | |
| | | | | Taxes w/o Exemptions: | $1,402.14 | | |
Improvement / Building
Sketch
| No sketches available for this property. |
Property Image
Land
| 1 | WEST-1985A | | 112.6000 | 4904856.00 | 0.00 | 0.00 | 0.00 | $101,340 | $0 |
| 2 | WEST-1985A | | 127.4000 | 5549544.00 | 0.00 | 0.00 | 0.00 | $114,660 | $0 |
Roll Value History
| 2026 | N/A | N/A | N/A | N/A | N/A |
| 2025 | $0 | $216,000 | $0 | $216,000 | $0 |
| 2024 | $0 | $216,000 | $30,355 | $30,355 | $30,355 |
| 2023 | $0 | $192,000 | $29,876 | $29,876 | $29,876 |
| 2022 | $0 | $192,000 | $29,043 | $29,043 | $29,043 |
Deed and Sales History
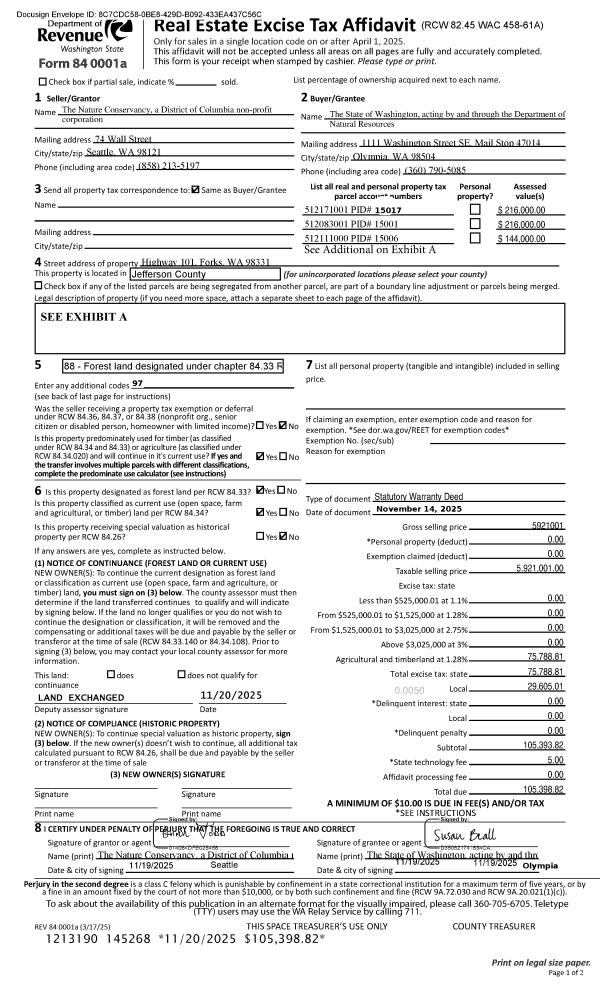
| 1 | 11/14/2025 | SWD | Statutory Warranty Deed | THE NATURE CONSERVANCY | STATE OF WASHINGTON-DNR | | | $5,921,001.00 | 145268 | |
|   | |
| 2 | 06/07/2016 | EASE | Assignment of Easement | | | | | | 125886 | |
| 3 | 11/25/2014 | SWD | Statutory Warranty Deed | FRUIT GROWERS SUPPLY COMPANY | THE NATURE CONSERVANCY | | | $6,050,000.00 | 122335 | |
|   | |
| 4 | 07/19/2006 | WD | Warranty Deed | FUND 6 DOMESTIC LLC | FRUIT GROWER SUPPLY CO | 0 | 0 | $0.00 | 107244 | 0 |
Payout Agreement
| No payout information available.. |