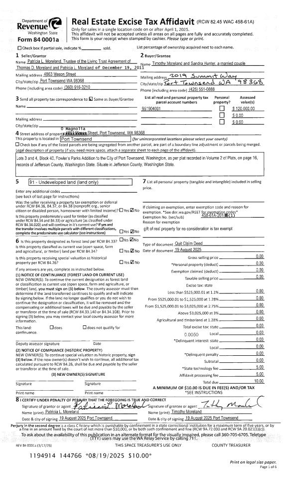
Property
Account |
| Property ID: | 15082 | Abbreviated Legal Description: | S31 T25N 12W S1/2 NE LOT CERTIFICATION AF#557585 |
| Parcel # / Geo ID: | 512311000 | Agent Code: | |
| Type: | Real | | |
| Tax Area: | 0502 - 1-20H1L1 | Land Use Code | 91 |
| Open Space: | N | DFL | N |
| Historic Property: | N | Remodel Property: | N |
| Multi-Family Redevelopment: | N | | |
| Township: | 25N | Section: | 31 |
| Range: | 12W |
Location |
| Address: | | Mapsco: | 920/086 |
| Neighborhood: | ALL SECTIONS T25N R12W (UPPER CLEARWATER RIVER) | Map ID: | |
| Neighborhood CD: | 1720 |
Owner |
| Name: | STATE OF WASHINGTON-DNR | Owner ID: | 28049 |
| Mailing Address: | PO BOX 47014 OLYMPIA, WA 98504-7014 | % Ownership: | 100.0000000000% |
| | | Exemptions: | EX |
Pay Tax Due
There is currently No Amount Due on this property.
Taxes and Assessment Details
Property Tax Information as of
03/10/2026
Click on "Statement Details" to expand or collapse a tax statement.
* Please enter a valid date ** Please enter a valid date *
Statement Details |
| 2026 | 4678 | STATE - STATE LEVY (SCHOOL) | $0.00 | $0.00 | $0.00 | $0.00 | $0.00 | $0.00 |
| 2026 | 4678 | COUNTY - COUNTY LEVIES (CE, DD, VET, MH) | $0.00 | $0.00 | $0.00 | $0.00 | $0.00 | $0.00 |
| 2026 | 4678 | CONSERVE - CONSERVATION FUTURES | $0.00 | $0.00 | $0.00 | $0.00 | $0.00 | $0.00 |
| 2026 | 4678 | COROADS - COUNTY ROADS (ROADS, DIV TO CE) | $0.00 | $0.00 | $0.00 | $0.00 | $0.00 | $0.00 |
| 2026 | 4678 | PORTPT - PORT DISTRICT | $0.00 | $0.00 | $0.00 | $0.00 | $0.00 | $0.00 |
| 2026 | 4678 | PUD1 - PUD #1 | $0.00 | $0.00 | $0.00 | $0.00 | $0.00 | $0.00 |
| 2026 | 4678 | LIB1 - LIBRARY DIST #1 | $0.00 | $0.00 | $0.00 | $0.00 | $0.00 | $0.00 |
| 2026 | 4678 | HD1 - HOSP DIST #1 | $0.00 | $0.00 | $0.00 | $0.00 | $0.00 | $0.00 |
| 2026 | 4678 | SD20 - SCHOOL DIST #20 | $0.00 | $0.00 | $0.00 | $0.00 | $0.00 | $0.00 |
| 2026 | 4678 | TOTAL: | $0.00 | $0.00 | $0.00 | $0.00 | $0.00 | $0.00 |
|
| 2026 | 4678 | $0.00 | $0.00 | $0.00 | $0.00 | $0.00 | $0.00 |
Statement Details |
| 2025 | 4697 | STATE - STATE LEVY (SCHOOL) | $0.00 | $0.00 | $0.00 | $0.00 | $0.00 | $0.00 |
| 2025 | 4697 | COUNTY - COUNTY LEVIES (CE, DD, VET, MH) | $0.00 | $0.00 | $0.00 | $0.00 | $0.00 | $0.00 |
| 2025 | 4697 | CONSERVE - CONSERVATION FUTURES | $0.00 | $0.00 | $0.00 | $0.00 | $0.00 | $0.00 |
| 2025 | 4697 | COROADS - COUNTY ROADS (ROADS, DIV TO CE) | $0.00 | $0.00 | $0.00 | $0.00 | $0.00 | $0.00 |
| 2025 | 4697 | PORTPT - PORT DISTRICT | $0.00 | $0.00 | $0.00 | $0.00 | $0.00 | $0.00 |
| 2025 | 4697 | PUD1 - PUD #1 | $0.00 | $0.00 | $0.00 | $0.00 | $0.00 | $0.00 |
| 2025 | 4697 | LIB1 - LIBRARY DIST #1 | $0.00 | $0.00 | $0.00 | $0.00 | $0.00 | $0.00 |
| 2025 | 4697 | HD1 - HOSP DIST #1 | $0.00 | $0.00 | $0.00 | $0.00 | $0.00 | $0.00 |
| 2025 | 4697 | SD20 - SCHOOL DIST #20 | $0.00 | $0.00 | $0.00 | $0.00 | $0.00 | $0.00 |
| 2025 | 4697 | FP - DNR Forest Fire Protection Assmt | $12.46 | $12.45 | $0.00 | $0.00 | $24.91 | $0.00 |
| 2025 | 4697 | FPLCA - DNR Landowner Contingency Assmt | $5.20 | $5.19 | $0.00 | $0.00 | $10.39 | $0.00 |
| 2025 | 4697 | JCCD - JC Conservation District | $5.70 | $5.69 | $0.00 | $0.00 | $11.39 | $0.00 |
| 2025 | 4697 | NWA - Noxious Weed Assessment | $14.00 | $14.00 | $0.00 | $0.00 | $28.00 | $0.00 |
| 2025 | 4697 | FP ADMIN - FP ADMIN | $0.50 | $0.00 | $0.00 | $0.00 | $0.50 | $0.00 |
| 2025 | 4697 | TOTAL: | $37.86 | $37.33 | $0.00 | $0.00 | $75.19 | $0.00 |
|
| 2025 | 4697 | $37.86 | $37.33 | $0.00 | $0.00 | $75.19 | $0.00 |
Statement Details |
| 2024 | 4713 | STATE - STATE LEVY (SCHOOL) | $0.00 | $0.00 | $0.00 | $0.00 | $0.00 | $0.00 |
| 2024 | 4713 | COUNTY - COUNTY LEVIES (CE, DD, VET, MH) | $0.00 | $0.00 | $0.00 | $0.00 | $0.00 | $0.00 |
| 2024 | 4713 | CONSERVE - CONSERVATION FUTURES | $0.00 | $0.00 | $0.00 | $0.00 | $0.00 | $0.00 |
| 2024 | 4713 | COROADS - COUNTY ROADS (ROADS, DIV TO CE) | $0.00 | $0.00 | $0.00 | $0.00 | $0.00 | $0.00 |
| 2024 | 4713 | PORTPT - PORT DISTRICT | $0.00 | $0.00 | $0.00 | $0.00 | $0.00 | $0.00 |
| 2024 | 4713 | PUD1 - PUD #1 | $0.00 | $0.00 | $0.00 | $0.00 | $0.00 | $0.00 |
| 2024 | 4713 | LIB1 - LIBRARY DIST #1 | $0.00 | $0.00 | $0.00 | $0.00 | $0.00 | $0.00 |
| 2024 | 4713 | HD1 - HOSP DIST #1 | $0.00 | $0.00 | $0.00 | $0.00 | $0.00 | $0.00 |
| 2024 | 4713 | SD20 - SCHOOL DIST #20 | $0.00 | $0.00 | $0.00 | $0.00 | $0.00 | $0.00 |
| 2024 | 4713 | FP - DNR Forest Fire Protection Assmt | $12.46 | $12.45 | $0.00 | $0.00 | $24.91 | $0.00 |
| 2024 | 4713 | FPLCA - DNR Landowner Contingency Assmt | $5.20 | $5.19 | $0.00 | $0.00 | $10.39 | $0.00 |
| 2024 | 4713 | JCCD - JC Conservation District | $5.70 | $5.69 | $0.00 | $0.00 | $11.39 | $0.00 |
| 2024 | 4713 | NWA - Noxious Weed Assessment | $14.00 | $14.00 | $0.00 | $0.00 | $28.00 | $0.00 |
| 2024 | 4713 | FP ADMIN - FP ADMIN | $0.50 | $0.00 | $0.00 | $0.00 | $0.50 | $0.00 |
| 2024 | 4713 | TOTAL: | $37.86 | $37.33 | $0.00 | $0.00 | $75.19 | $0.00 |
|
| 2024 | 4713 | $37.86 | $37.33 | $0.00 | $0.00 | $75.19 | $0.00 |
Statement Details |
| 2023 | 4727 | STATE - STATE LEVY (SCHOOL) | $0.00 | $0.00 | $0.00 | $0.00 | $0.00 | $0.00 |
| 2023 | 4727 | COUNTY - COUNTY LEVIES (CE, DD, VET, MH) | $0.00 | $0.00 | $0.00 | $0.00 | $0.00 | $0.00 |
| 2023 | 4727 | CONSERVE - CONSERVATION FUTURES | $0.00 | $0.00 | $0.00 | $0.00 | $0.00 | $0.00 |
| 2023 | 4727 | COROADS - COUNTY ROADS (ROADS, DIV TO CE) | $0.00 | $0.00 | $0.00 | $0.00 | $0.00 | $0.00 |
| 2023 | 4727 | PORTPT - PORT DISTRICT | $0.00 | $0.00 | $0.00 | $0.00 | $0.00 | $0.00 |
| 2023 | 4727 | PUD1 - PUD #1 | $0.00 | $0.00 | $0.00 | $0.00 | $0.00 | $0.00 |
| 2023 | 4727 | LIB1 - LIBRARY DIST #1 | $0.00 | $0.00 | $0.00 | $0.00 | $0.00 | $0.00 |
| 2023 | 4727 | HD1 - HOSP DIST #1 | $0.00 | $0.00 | $0.00 | $0.00 | $0.00 | $0.00 |
| 2023 | 4727 | SD20 - SCHOOL DIST #20 | $0.00 | $0.00 | $0.00 | $0.00 | $0.00 | $0.00 |
| 2023 | 4727 | FP - DNR Forest Fire Protection Assmt | $12.46 | $12.45 | $0.00 | $0.00 | $24.91 | $0.00 |
| 2023 | 4727 | FPLCA - DNR Landowner Contingency Assmt | $5.20 | $5.19 | $0.00 | $0.00 | $10.39 | $0.00 |
| 2023 | 4727 | JCCD - JC Conservation District | $5.70 | $5.69 | $0.00 | $0.00 | $11.39 | $0.00 |
| 2023 | 4727 | NWA - Noxious Weed Assessment | $14.00 | $14.00 | $0.00 | $0.00 | $28.00 | $0.00 |
| 2023 | 4727 | FP ADMIN - FP ADMIN | $0.50 | $0.00 | $0.00 | $0.00 | $0.50 | $0.00 |
| 2023 | 4727 | TOTAL: | $37.86 | $37.33 | $0.00 | $0.00 | $75.19 | $0.00 |
|
| 2023 | 4727 | $37.86 | $37.33 | $0.00 | $0.00 | $75.19 | $0.00 |
Values
| (+) Improvement Homesite Value: | + | $0 | |
| (+) Improvement Non-Homesite Value: | + | $0 | |
| (+) Land Homesite Value: | + | $0 | |
| (+) Land Non-Homesite Value: | + | $71,361 | |
| (+) Curr Use (HS): | + | $0 | $0 |
| (+) Curr Use (NHS): | + | $0 | $0 |
| | | -------------------------- | |
| (=) Market Value: | = | $71,361 | |
| (–) Productivity Loss: | – | $0 | |
| | | -------------------------- | |
| (=) Subtotal: | = | $71,361 | |
| (+) Senior Appraised Value: | + | $0 | |
| (+) Non-Senior Appraised Value: | + | $71,361 | |
| | | -------------------------- | |
| (=) Total Appraised Value: | = | $71,361 | |
| (–) Senior Exemption Loss: | – | $0 | |
| (–) Exemption Loss: | – | $71,361 | |
| | | -------------------------- | |
| (=) Taxable Value: | = | $0 | |
Taxing Jurisdiction
| Owner: | STATE OF WASHINGTON-DNR | | |
| % Ownership: | 100.0000000000% | | |
| Total Value: | $71,361 | | |
| Tax Area: | 0502 - 1-20H1L1 |
| CE | COUNTY CURRENT EXPENSE | 0.9034619479 | $71,361 | $0 | $0.00 | | |
| CNTYDD | DEVELOPMENTAL DISABILITIES | 0.0052121823 | $71,361 | $0 | $0.00 | | |
| CNTYVET | VETERANS RELIEF | 0.0052777810 | $71,361 | $0 | $0.00 | | |
| MENTAL | MENTAL HEALTH | 0.0052121823 | $71,361 | $0 | $0.00 | | |
| ROADS | COUNTY ROADS | 0.7415066410 | $71,361 | $0 | $0.00 | | |
| ROADSCU | COUNTY ROADS TO CUR EXP | 0.0000000000 | $71,361 | $0 | $0.00 | | |
| HOS1GEN | HOSP DIST #1 GENERAL | 0.5503668747 | $71,361 | $0 | $0.00 | | |
| SCH20MO | SCHOOL DIST #20 EP & O | 1.2357895829 | $71,361 | $0 | $0.00 | | |
| CONSERVE | CONSERVATION FUTURES | 0.0275621078 | $71,361 | $0 | $0.00 | | |
| LIB1 | LIBRARY DIST #1 GENERAL | 0.2868827388 | $71,361 | $0 | $0.00 | | |
| PORTPT | PORT OF PT GENERAL | 0.1134941229 | $71,361 | $0 | $0.00 | | |
| PORTPTIDD | PORT OF PT IDD 2019 | 0.2577346692 | $71,361 | $0 | $0.00 | | |
| PUD1 | PUD #1 GENERAL | 0.0597888892 | $71,361 | $0 | $0.00 | | |
| STATE | STATE SCHOOL PART 1 | 1.4940692947 | $71,361 | $0 | $0.00 | | |
| STATE2 | STATE SCHOOL PART 2 | 0.8050170049 | $71,361 | $0 | $0.00 | | |
| | Total Tax Rate: | 6.4913760196 | | | | | |
| | | | | Taxes w/Current Exemptions: | $0.00 | | |
| | | | | Taxes w/o Exemptions: | $463.23 | | |
Improvement / Building
Sketch
| No sketches available for this property. |
Property Image
Land
| 1 | WEST-1985A | | 79.2900 | 3453872.40 | 0.00 | 0.00 | 0.00 | $71,361 | $0 |
Roll Value History
| 2026 | N/A | N/A | N/A | N/A | N/A |
| 2025 | $0 | $71,361 | $0 | $71,361 | $0 |
| 2024 | $0 | $0 | $0 | $0 | $0 |
| 2023 | $0 | $0 | $0 | $0 | $0 |
| 2022 | $0 | $0 | $0 | $0 | $0 |
Deed and Sales History
| 1 | 11/14/2025 | SWD | Statutory Warranty Deed | THE NATURE CONSERVANCY | STATE OF WASHINGTON-DNR | | | $5,921,001.00 | 145268 | |
|   | |
Payout Agreement
| No payout information available.. |