Property
Account |
| Property ID: | 15233 | Abbreviated Legal Description: | S2 T26 R1W SW SW |
| Parcel # / Geo ID: | 601023015 | Agent Code: | |
| Type: | Real | | |
| Tax Area: | 0302 - 1-48E2P1H2C2L1 | Land Use Code | 88 |
| Open Space: | N | DFL | Y |
| Historic Property: | N | Remodel Property: | N |
| Multi-Family Redevelopment: | N | | |
| Township: | 26N | Section: | 2 |
| Range: | 1W |
Location |
| Address: | 8676 COYLE RD QUILCENE, WA 98376 | Mapsco: | 116/026 |
| Neighborhood: | S1, S2, & S11 T26N R1W | Map ID: | |
| Neighborhood CD: | 2220 |
Owner |
| Name: | RAND FARR | Owner ID: | 109344 |
| Mailing Address: | 1704 FIELD PL NE RENTON, WA 98059-4278 | % Ownership: | 100.0000000000% |
| | | Exemptions: | |
Pay Tax Due
Select the appropriate checkbox next to the year to be paid. Multiple years may be selected.
*Convenience Fee not included
Taxes and Assessment Details
Property Tax Information as of
03/11/2026
Click on "Statement Details" to expand or collapse a tax statement.
* Please enter a valid date ** Please enter a valid date *
Statement Details |
| 2026 | 4812 | STATE - STATE LEVY (SCHOOL) | $474.55 | $474.54 | $0.00 | $0.00 | $474.55 | $474.54 |
| 2026 | 4812 | COUNTY - COUNTY LEVIES (CE, DD, VET, MH) | $189.73 | $189.71 | $0.00 | $0.00 | $189.73 | $189.71 |
| 2026 | 4812 | CONSERVE - CONSERVATION FUTURES | $5.69 | $5.69 | $0.00 | $0.00 | $5.69 | $5.69 |
| 2026 | 4812 | COROADS - COUNTY ROADS (ROADS, DIV TO CE) | $153.05 | $153.05 | $0.00 | $0.00 | $153.05 | $153.05 |
| 2026 | 4812 | PORTPT - PORT DISTRICT | $76.63 | $76.62 | $0.00 | $0.00 | $76.63 | $76.62 |
| 2026 | 4812 | PUD1 - PUD #1 | $12.34 | $12.34 | $0.00 | $0.00 | $12.34 | $12.34 |
| 2026 | 4812 | LIB1 - LIBRARY DIST #1 | $59.22 | $59.21 | $0.00 | $0.00 | $59.22 | $59.21 |
| 2026 | 4812 | HD2 - HOSP DIST #2 | $11.07 | $11.06 | $0.00 | $0.00 | $11.07 | $11.06 |
| 2026 | 4812 | SD48 - SCHOOL DIST #48 | $291.46 | $291.45 | $0.00 | $0.00 | $291.46 | $291.45 |
| 2026 | 4812 | EMS2 - FIRE DIST #2 EMS | $87.76 | $87.76 | $0.00 | $0.00 | $87.76 | $87.76 |
| 2026 | 4812 | CEM2 - CEMETERY DIST #2 | $4.98 | $4.98 | $0.00 | $0.00 | $4.98 | $4.98 |
| 2026 | 4812 | PARK1 - PARK & REC DIST #1 | $30.44 | $30.43 | $0.00 | $0.00 | $30.44 | $30.43 |
| 2026 | 4812 | FP - DNR Forest Fire Protection Assmt | $8.50 | $8.50 | $0.00 | $0.00 | $8.50 | $8.50 |
| 2026 | 4812 | FPLCA - DNR Landowner Contingency Assmt | $3.00 | $3.00 | $0.00 | $0.00 | $3.00 | $3.00 |
| 2026 | 4812 | JCCD - JC Conservation District | $1.69 | $1.68 | $0.00 | $0.00 | $1.69 | $1.68 |
| 2026 | 4812 | NWA - Noxious Weed Assessment | $1.13 | $1.13 | $0.00 | $0.00 | $1.13 | $1.13 |
| 2026 | 4812 | OSS - On Site Septic | $23.10 | $23.10 | $0.00 | $0.00 | $23.10 | $23.10 |
| 2026 | 4812 | WAT - Clean Water District | $13.00 | $13.00 | $0.00 | $0.00 | $13.00 | $13.00 |
| 2026 | 4812 | FP ADMIN - FP ADMIN | $0.50 | $0.00 | $0.00 | $0.00 | $0.50 | $0.00 |
| 2026 | 4812 | TOTAL: | $1447.84 | $1447.25 | $0.00 | $0.00 | $1447.84 | $1447.25 |
|
| 2026 | 4812 | $1447.84 | $1447.25 | $0.00 | $0.00 | $1447.84 | $1447.25 |
Statement Details |
| 2025 | 4831 | STATE - STATE LEVY (SCHOOL) | $6.74 | $6.74 | $0.00 | $0.00 | $13.48 | $0.00 |
| 2025 | 4831 | COUNTY - COUNTY LEVIES (CE, DD, VET, MH) | $2.67 | $2.63 | $0.00 | $0.00 | $5.30 | $0.00 |
| 2025 | 4831 | CONSERVE - CONSERVATION FUTURES | $0.08 | $0.08 | $0.00 | $0.00 | $0.16 | $0.00 |
| 2025 | 4831 | COROADS - COUNTY ROADS (ROADS, DIV TO CE) | $2.13 | $2.12 | $0.00 | $0.00 | $4.25 | $0.00 |
| 2025 | 4831 | PORTPT - PORT DISTRICT | $1.09 | $1.07 | $0.00 | $0.00 | $2.16 | $0.00 |
| 2025 | 4831 | PUD1 - PUD #1 | $0.18 | $0.17 | $0.00 | $0.00 | $0.35 | $0.00 |
| 2025 | 4831 | LIB1 - LIBRARY DIST #1 | $0.82 | $0.82 | $0.00 | $0.00 | $1.64 | $0.00 |
| 2025 | 4831 | HD2 - HOSP DIST #2 | $0.16 | $0.15 | $0.00 | $0.00 | $0.31 | $0.00 |
| 2025 | 4831 | SD48 - SCHOOL DIST #48 | $3.97 | $3.97 | $0.00 | $0.00 | $7.94 | $0.00 |
| 2025 | 4831 | EMS2 - FIRE DIST #2 EMS | $1.24 | $1.23 | $0.00 | $0.00 | $2.47 | $0.00 |
| 2025 | 4831 | CEM2 - CEMETERY DIST #2 | $0.07 | $0.07 | $0.00 | $0.00 | $0.14 | $0.00 |
| 2025 | 4831 | PARK1 - PARK & REC DIST #1 | $0.32 | $0.32 | $0.00 | $0.00 | $0.64 | $0.00 |
| 2025 | 4831 | FP - DNR Forest Fire Protection Assmt | $8.50 | $8.50 | $0.00 | $0.00 | $17.00 | $0.00 |
| 2025 | 4831 | FPLCA - DNR Landowner Contingency Assmt | $3.00 | $3.00 | $0.00 | $0.00 | $6.00 | $0.00 |
| 2025 | 4831 | JCCD - JC Conservation District | $1.69 | $1.68 | $0.00 | $0.00 | $3.37 | $0.00 |
| 2025 | 4831 | NWA - Noxious Weed Assessment | $0.77 | $0.77 | $0.00 | $0.00 | $1.54 | $0.00 |
| 2025 | 4831 | FP ADMIN - FP ADMIN | $0.50 | $0.00 | $0.00 | $0.00 | $0.50 | $0.00 |
| 2025 | 4831 | TOTAL: | $33.93 | $33.32 | $0.00 | $0.00 | $67.25 | $0.00 |
|
| 2025 | 4831 | $33.93 | $33.32 | $0.00 | $0.00 | $67.25 | $0.00 |
Statement Details |
| 2024 | 4847 | STATE - STATE LEVY (SCHOOL) | $6.42 | $6.41 | $0.00 | $0.00 | $12.83 | $0.00 |
| 2024 | 4847 | COUNTY - COUNTY LEVIES (CE, DD, VET, MH) | $2.76 | $2.73 | $0.00 | $0.00 | $5.49 | $0.00 |
| 2024 | 4847 | CONSERVE - CONSERVATION FUTURES | $0.08 | $0.08 | $0.00 | $0.00 | $0.16 | $0.00 |
| 2024 | 4847 | COROADS - COUNTY ROADS (ROADS, DIV TO CE) | $2.21 | $2.21 | $0.00 | $0.00 | $4.42 | $0.00 |
| 2024 | 4847 | PORTPT - PORT DISTRICT | $1.14 | $1.13 | $0.00 | $0.00 | $2.27 | $0.00 |
| 2024 | 4847 | PUD1 - PUD #1 | $0.18 | $0.18 | $0.00 | $0.00 | $0.36 | $0.00 |
| 2024 | 4847 | LIB1 - LIBRARY DIST #1 | $0.86 | $0.85 | $0.00 | $0.00 | $1.71 | $0.00 |
| 2024 | 4847 | HD2 - HOSP DIST #2 | $0.16 | $0.16 | $0.00 | $0.00 | $0.32 | $0.00 |
| 2024 | 4847 | SD48 - SCHOOL DIST #48 | $2.88 | $2.87 | $0.00 | $0.00 | $5.75 | $0.00 |
| 2024 | 4847 | EMS2 - FIRE DIST #2 EMS | $1.29 | $1.28 | $0.00 | $0.00 | $2.57 | $0.00 |
| 2024 | 4847 | CEM2 - CEMETERY DIST #2 | $0.08 | $0.07 | $0.00 | $0.00 | $0.15 | $0.00 |
| 2024 | 4847 | PARK1 - PARK & REC DIST #1 | $0.32 | $0.32 | $0.00 | $0.00 | $0.64 | $0.00 |
| 2024 | 4847 | FP - DNR Forest Fire Protection Assmt | $8.50 | $8.50 | $0.00 | $0.00 | $17.00 | $0.00 |
| 2024 | 4847 | FPLCA - DNR Landowner Contingency Assmt | $3.00 | $3.00 | $0.00 | $0.00 | $6.00 | $0.00 |
| 2024 | 4847 | JCCD - JC Conservation District | $1.69 | $1.68 | $0.00 | $0.00 | $3.37 | $0.00 |
| 2024 | 4847 | NWA - Noxious Weed Assessment | $0.77 | $0.77 | $0.00 | $0.00 | $1.54 | $0.00 |
| 2024 | 4847 | FP ADMIN - FP ADMIN | $0.50 | $0.00 | $0.00 | $0.00 | $0.50 | $0.00 |
| 2024 | 4847 | TOTAL: | $32.84 | $32.24 | $0.00 | $0.00 | $65.08 | $0.00 |
|
| 2024 | 4847 | $32.84 | $32.24 | $0.00 | $0.00 | $65.08 | $0.00 |
Statement Details |
| 2023 | 4861 | STATE - STATE LEVY (SCHOOL) | $6.36 | $6.34 | $0.00 | $0.00 | $12.70 | $0.00 |
| 2023 | 4861 | COUNTY - COUNTY LEVIES (CE, DD, VET, MH) | $2.79 | $2.75 | $0.00 | $0.00 | $5.54 | $0.00 |
| 2023 | 4861 | CONSERVE - CONSERVATION FUTURES | $0.09 | $0.08 | $0.00 | $0.00 | $0.17 | $0.00 |
| 2023 | 4861 | COROADS - COUNTY ROADS (ROADS, DIV TO CE) | $2.24 | $2.24 | $0.00 | $0.00 | $4.48 | $0.00 |
| 2023 | 4861 | PORTPT - PORT DISTRICT | $1.17 | $1.16 | $0.00 | $0.00 | $2.33 | $0.00 |
| 2023 | 4861 | PUD1 - PUD #1 | $0.19 | $0.18 | $0.00 | $0.00 | $0.37 | $0.00 |
| 2023 | 4861 | LIB1 - LIBRARY DIST #1 | $0.87 | $0.86 | $0.00 | $0.00 | $1.73 | $0.00 |
| 2023 | 4861 | HD2 - HOSP DIST #2 | $0.16 | $0.16 | $0.00 | $0.00 | $0.32 | $0.00 |
| 2023 | 4861 | SD48 - SCHOOL DIST #48 | $3.07 | $3.06 | $0.00 | $0.00 | $6.13 | $0.00 |
| 2023 | 4861 | EMS2 - FIRE DIST #2 EMS | $1.35 | $1.35 | $0.00 | $0.00 | $2.70 | $0.00 |
| 2023 | 4861 | CEM2 - CEMETERY DIST #2 | $0.08 | $0.07 | $0.00 | $0.00 | $0.15 | $0.00 |
| 2023 | 4861 | PARK1 - PARK & REC DIST #1 | $0.30 | $0.30 | $0.00 | $0.00 | $0.60 | $0.00 |
| 2023 | 4861 | FP - DNR Forest Fire Protection Assmt | $8.50 | $8.50 | $0.00 | $0.00 | $17.00 | $0.00 |
| 2023 | 4861 | FPLCA - DNR Landowner Contingency Assmt | $3.00 | $3.00 | $0.00 | $0.00 | $6.00 | $0.00 |
| 2023 | 4861 | JCCD - JC Conservation District | $1.69 | $1.68 | $0.00 | $0.00 | $3.37 | $0.00 |
| 2023 | 4861 | NWA - Noxious Weed Assessment | $0.77 | $0.77 | $0.00 | $0.00 | $1.54 | $0.00 |
| 2023 | 4861 | FP ADMIN - FP ADMIN | $0.50 | $0.00 | $0.00 | $0.00 | $0.50 | $0.00 |
| 2023 | 4861 | TOTAL: | $33.13 | $32.50 | $0.00 | $0.00 | $65.63 | $0.00 |
|
| 2023 | 4861 | $33.13 | $32.50 | $0.00 | $0.00 | $65.63 | $0.00 |
Values
| (+) Improvement Homesite Value: | + | $0 | |
| (+) Improvement Non-Homesite Value: | + | $344,128 | |
| (+) Land Homesite Value: | + | $0 | |
| (+) Land Non-Homesite Value: | + | $63,250 | |
| (+) Curr Use (HS): | + | $0 | $0 |
| (+) Curr Use (NHS): | + | $263,710 | $5,435 |
| | | -------------------------- | |
| (=) Market Value: | = | $671,088 | |
| (–) Productivity Loss: | – | $258,275 | |
| | | -------------------------- | |
| (=) Subtotal: | = | $412,813 | |
| (+) Senior Appraised Value: | + | $0 | |
| (+) Non-Senior Appraised Value: | + | $412,813 | |
| | | -------------------------- | |
| (=) Total Appraised Value: | = | $412,813 | |
| (–) Senior Exemption Loss: | – | $0 | |
| (–) Exemption Loss: | – | $0 | |
| | | -------------------------- | |
| (=) Taxable Value: | = | $412,813 | |
Taxing Jurisdiction
| Owner: | RAND FARR | | |
| % Ownership: | 100.0000000000% | | |
| Total Value: | $671,088 | | |
| Tax Area: | 0302 - 1-48E2P1H2C2L1 |
| CE | COUNTY CURRENT EXPENSE | 0.9034619479 | $412,813 | $412,813 | $372.96 | | |
| CNTYDD | DEVELOPMENTAL DISABILITIES | 0.0052121823 | $412,813 | $412,813 | $2.15 | | |
| CNTYVET | VETERANS RELIEF | 0.0052777810 | $412,813 | $412,813 | $2.18 | | |
| MENTAL | MENTAL HEALTH | 0.0052121823 | $412,813 | $412,813 | $2.15 | | |
| ROADS | COUNTY ROADS | 0.7415066410 | $412,813 | $412,813 | $306.10 | | |
| ROADSCU | COUNTY ROADS TO CUR EXP | 0.0000000000 | $412,813 | $412,813 | $0.00 | | |
| HOSP2CASH | HOSP DIST #2 GENERAL | 0.0536075306 | $412,813 | $412,813 | $22.13 | | |
| SCH48MO | SCHOOL DIST #48 EP & O | 1.4120478917 | $412,813 | $412,813 | $582.91 | | |
| CEM2 | CEMETERY DIST #2 GENERAL | 0.0241266154 | $412,813 | $412,813 | $9.96 | | |
| CONSERVE | CONSERVATION FUTURES | 0.0275621078 | $412,813 | $412,813 | $11.38 | | |
| LIB1 | LIBRARY DIST #1 GENERAL | 0.2868827388 | $412,813 | $412,813 | $118.43 | | |
| PARK1 | PARK & REC DIST #1 GENERAL | 0.1474441110 | $412,813 | $412,813 | $60.87 | | |
| PORTPT | PORT OF PT GENERAL | 0.1134941229 | $412,813 | $412,813 | $46.85 | | |
| PORTPTIDD | PORT OF PT IDD 2019 | 0.2577346692 | $412,813 | $412,813 | $106.40 | | |
| PUD1 | PUD #1 GENERAL | 0.0597888892 | $412,813 | $412,813 | $24.68 | | |
| STATE | STATE SCHOOL PART 1 | 1.4940692947 | $412,813 | $412,813 | $616.77 | | |
| STATE2 | STATE SCHOOL PART 2 | 0.8050170049 | $412,813 | $412,813 | $332.32 | | |
| EMS2 | FIRE DIST #2 EMS | 0.4251727858 | $412,813 | $412,813 | $175.52 | | |
| | Total Tax Rate: | 6.7676184965 | | | | | |
| | | | | Taxes w/Current Exemptions: | $2,793.76 | | |
| | | | | Taxes w/o Exemptions: | $2,793.76 | | |
Improvement / Building
| Improvement #1: | Site Improvements | State Code: | 98 | 0.0 sqft | Value: | $344,128 |
| | Type | Description | Class CD | Sub Class CD | Year Built | Area |
| | GDET | Detached Garage | 3 | * | 2025 | 6000.0 |
| | CONCD | Concrete Drive | 3 | * | 2025 | 1500.0 |
Sketch
Property Image
Land
| 1 | 1971A | | 28.7600 | 1252785.60 | 0.00 | 0.00 | 0.00 | $206,713 | $4,285 |
| 2 | 1971A | | 7.9300 | 345430.80 | 0.00 | 0.00 | 0.00 | $56,997 | $1,150 |
| 3 | 2220-1355S | | 1.0000 | 43560.00 | 0.00 | 0.00 | 1.00 | $63,250 | $0 |
Roll Value History
| 2026 | N/A | N/A | N/A | N/A | N/A |
| 2025 | $344,128 | $326,960 | $5,435 | $412,813 | $412,813 |
| 2024 | $0 | $326,960 | $5,622 | $5,622 | $5,622 |
| 2023 | $0 | $302,654 | $5,546 | $5,546 | $5,546 |
| 2022 | $0 | $220,105 | $5,395 | $5,395 | $5,395 |
Deed and Sales History
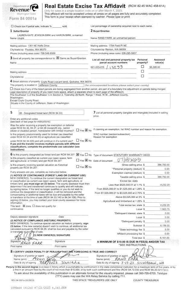
| 1 | 07/18/2023 | SWD | Statutory Warranty Deed | LAUREN JEWSON BIRK & AARON BIRK | RAND FARR | | | $384,750.00 | 141260 | |
| 2 | 02/16/2021 | SWD | Statutory Warranty Deed | GARY HINTZ | LAUREN JEWSON BIRK & AARON BIRK | | | $275,000.00 | 136127 | |
| 3 | 12/12/2012 | EASE | Assignment of Easement | GARY HINTZ | PUGET SOUND ENERGY INC | | | | 118478 | |
| 4 | 09/22/2005 | SWD | Statutory Warranty Deed | A N E FORESTS PUGET SOUN | HINTZ, GARY | 0 | 0 | $92,500.00 | 104999 | 0 |
Payout Agreement
| No payout information available.. |