Property
Account |
| Property ID: | 15283 | Abbreviated Legal Description: | GUSTAVSON(RED BLUFF)SHORT PLAT LOT 1 |
| Parcel # / Geo ID: | 601052002 | Agent Code: | |
| Type: | Real | | |
| Tax Area: | 0321 - 1-48F2E2H2C2L1 | Land Use Code | 11 |
| Open Space: | N | DFL | N |
| Historic Property: | N | Remodel Property: | N |
| Multi-Family Redevelopment: | N | | |
| Township: | 26N | Section: | 5 |
| Range: | 1W |
Location |
| Address: | 241 GUSTAVSEN RD QUILCENE, WA 98376 | Mapsco: | 177/020 |
| Neighborhood: | S30 & S31 T27N R1W + S5 & S6 T26N R1W + GAETZ & GUSTAVSON SP | Map ID: | |
| Neighborhood CD: | 2355 |
Owner |
| Name: | AMY B PELLISSIER | Owner ID: | 114057 |
| Mailing Address: | 5447 CHICO WAY NW BREMERTON, WA 98312-1245 | % Ownership: | 100.0000000000% |
| | | Exemptions: | |
Pay Tax Due
Select the appropriate checkbox next to the year to be paid. Multiple years may be selected.
*Convenience Fee not included
Taxes and Assessment Details
Property Tax Information as of
03/10/2026
Click on "Statement Details" to expand or collapse a tax statement.
* Please enter a valid date ** Please enter a valid date *
Statement Details |
| 2026 | 4862 | STATE - STATE LEVY (SCHOOL) | $1054.85 | $1054.84 | $0.00 | $0.00 | $0.00 | $2109.69 |
| 2026 | 4862 | COUNTY - COUNTY LEVIES (CE, DD, VET, MH) | $421.72 | $421.72 | $0.00 | $0.00 | $0.00 | $843.44 |
| 2026 | 4862 | CONSERVE - CONSERVATION FUTURES | $12.65 | $12.64 | $0.00 | $0.00 | $0.00 | $25.29 |
| 2026 | 4862 | COROADS - COUNTY ROADS (ROADS, DIV TO CE) | $340.21 | $340.21 | $0.00 | $0.00 | $0.00 | $680.42 |
| 2026 | 4862 | PORTPT - PORT DISTRICT | $170.32 | $170.32 | $0.00 | $0.00 | $0.00 | $340.64 |
| 2026 | 4862 | PUD1 - PUD #1 | $27.43 | $27.43 | $0.00 | $0.00 | $0.00 | $54.86 |
| 2026 | 4862 | LIB1 - LIBRARY DIST #1 | $131.63 | $131.62 | $0.00 | $0.00 | $0.00 | $263.25 |
| 2026 | 4862 | HD2 - HOSP DIST #2 | $24.60 | $24.59 | $0.00 | $0.00 | $0.00 | $49.19 |
| 2026 | 4862 | SD48 - SCHOOL DIST #48 | $647.86 | $647.86 | $0.00 | $0.00 | $0.00 | $1295.72 |
| 2026 | 4862 | FD2 - FIRE DISTRICT #2 | $346.40 | $346.40 | $0.00 | $0.00 | $0.00 | $692.80 |
| 2026 | 4862 | EMS2 - FIRE DIST #2 EMS | $195.08 | $195.07 | $0.00 | $0.00 | $0.00 | $390.15 |
| 2026 | 4862 | CEM2 - CEMETERY DIST #2 | $11.07 | $11.07 | $0.00 | $0.00 | $0.00 | $22.14 |
| 2026 | 4862 | FP - DNR Forest Fire Protection Assmt | $8.50 | $8.50 | $0.00 | $0.00 | $0.00 | $17.00 |
| 2026 | 4862 | FPLCA - DNR Landowner Contingency Assmt | $3.00 | $3.00 | $0.00 | $0.00 | $0.00 | $6.00 |
| 2026 | 4862 | JCCD - JC Conservation District | $2.60 | $2.60 | $0.00 | $0.00 | $0.00 | $5.20 |
| 2026 | 4862 | NWA - Noxious Weed Assessment | $3.20 | $3.20 | $0.00 | $0.00 | $0.00 | $6.40 |
| 2026 | 4862 | OSS - On Site Septic | $23.10 | $23.10 | $0.00 | $0.00 | $0.00 | $46.20 |
| 2026 | 4862 | WAT - Clean Water District | $13.00 | $13.00 | $0.00 | $0.00 | $0.00 | $26.00 |
| 2026 | 4862 | FP ADMIN - FP ADMIN | $0.50 | $0.00 | $0.00 | $0.00 | $0.00 | $0.50 |
| 2026 | 4862 | TOTAL: | $3437.72 | $3437.17 | $0.00 | $0.00 | $0.00 | $6874.89 |
|
| 2026 | 4862 | $3437.72 | $3437.17 | $0.00 | $0.00 | $0.00 | $6874.89 |
Statement Details |
| 2025 | 4881 | STATE - STATE LEVY (SCHOOL) | $1053.64 | $1053.63 | $0.00 | $0.00 | $2107.27 | $0.00 |
| 2025 | 4881 | COUNTY - COUNTY LEVIES (CE, DD, VET, MH) | $414.36 | $414.32 | $0.00 | $0.00 | $828.68 | $0.00 |
| 2025 | 4881 | CONSERVE - CONSERVATION FUTURES | $12.43 | $12.42 | $0.00 | $0.00 | $24.85 | $0.00 |
| 2025 | 4881 | COROADS - COUNTY ROADS (ROADS, DIV TO CE) | $331.96 | $331.94 | $0.00 | $0.00 | $663.90 | $0.00 |
| 2025 | 4881 | PORTPT - PORT DISTRICT | $169.08 | $169.07 | $0.00 | $0.00 | $338.15 | $0.00 |
| 2025 | 4881 | PUD1 - PUD #1 | $27.11 | $27.11 | $0.00 | $0.00 | $54.22 | $0.00 |
| 2025 | 4881 | LIB1 - LIBRARY DIST #1 | $128.43 | $128.43 | $0.00 | $0.00 | $256.86 | $0.00 |
| 2025 | 4881 | HD2 - HOSP DIST #2 | $24.18 | $24.17 | $0.00 | $0.00 | $48.35 | $0.00 |
| 2025 | 4881 | SD48 - SCHOOL DIST #48 | $620.46 | $620.45 | $0.00 | $0.00 | $1240.91 | $0.00 |
| 2025 | 4881 | FD2 - FIRE DISTRICT #2 | $342.57 | $342.57 | $0.00 | $0.00 | $685.14 | $0.00 |
| 2025 | 4881 | EMS2 - FIRE DIST #2 EMS | $192.89 | $192.89 | $0.00 | $0.00 | $385.78 | $0.00 |
| 2025 | 4881 | CEM2 - CEMETERY DIST #2 | $10.93 | $10.93 | $0.00 | $0.00 | $21.86 | $0.00 |
| 2025 | 4881 | FP - DNR Forest Fire Protection Assmt | $8.50 | $8.50 | $0.00 | $0.00 | $17.00 | $0.00 |
| 2025 | 4881 | FPLCA - DNR Landowner Contingency Assmt | $3.00 | $3.00 | $0.00 | $0.00 | $6.00 | $0.00 |
| 2025 | 4881 | JCCD - JC Conservation District | $2.60 | $2.60 | $0.00 | $0.00 | $5.20 | $0.00 |
| 2025 | 4881 | NWA - Noxious Weed Assessment | $2.30 | $2.30 | $0.00 | $0.00 | $4.60 | $0.00 |
| 2025 | 4881 | OSS - On Site Septic | $21.50 | $21.50 | $0.00 | $0.00 | $43.00 | $0.00 |
| 2025 | 4881 | WAT - Clean Water District | $13.00 | $13.00 | $0.00 | $0.00 | $26.00 | $0.00 |
| 2025 | 4881 | FP ADMIN - FP ADMIN | $0.50 | $0.00 | $0.00 | $0.00 | $0.50 | $0.00 |
| 2025 | 4881 | TOTAL: | $3379.44 | $3378.83 | $0.00 | $0.00 | $6758.27 | $0.00 |
|
| 2025 | 4881 | $3379.44 | $3378.83 | $0.00 | $0.00 | $6758.27 | $0.00 |
Statement Details |
| 2024 | 4897 | STATE - STATE LEVY (SCHOOL) | $948.18 | $948.17 | $0.00 | $0.00 | $1896.35 | $0.00 |
| 2024 | 4897 | COUNTY - COUNTY LEVIES (CE, DD, VET, MH) | $405.73 | $405.73 | $0.00 | $0.00 | $811.46 | $0.00 |
| 2024 | 4897 | CONSERVE - CONSERVATION FUTURES | $12.17 | $12.16 | $0.00 | $0.00 | $24.33 | $0.00 |
| 2024 | 4897 | COROADS - COUNTY ROADS (ROADS, DIV TO CE) | $326.48 | $326.48 | $0.00 | $0.00 | $652.96 | $0.00 |
| 2024 | 4897 | PORTPT - PORT DISTRICT | $167.59 | $167.58 | $0.00 | $0.00 | $335.17 | $0.00 |
| 2024 | 4897 | PUD1 - PUD #1 | $26.65 | $26.65 | $0.00 | $0.00 | $53.30 | $0.00 |
| 2024 | 4897 | LIB1 - LIBRARY DIST #1 | $126.32 | $126.31 | $0.00 | $0.00 | $252.63 | $0.00 |
| 2024 | 4897 | HD2 - HOSP DIST #2 | $23.68 | $23.67 | $0.00 | $0.00 | $47.35 | $0.00 |
| 2024 | 4897 | SD48 - SCHOOL DIST #48 | $424.67 | $424.67 | $0.00 | $0.00 | $849.34 | $0.00 |
| 2024 | 4897 | FD2 - FIRE DISTRICT #2 | $337.31 | $337.30 | $0.00 | $0.00 | $674.61 | $0.00 |
| 2024 | 4897 | EMS2 - FIRE DIST #2 EMS | $189.88 | $189.88 | $0.00 | $0.00 | $379.76 | $0.00 |
| 2024 | 4897 | CEM2 - CEMETERY DIST #2 | $10.80 | $10.79 | $0.00 | $0.00 | $21.59 | $0.00 |
| 2024 | 4897 | FP - DNR Forest Fire Protection Assmt | $8.50 | $8.50 | $0.00 | $0.00 | $17.00 | $0.00 |
| 2024 | 4897 | FPLCA - DNR Landowner Contingency Assmt | $3.00 | $3.00 | $0.00 | $0.00 | $6.00 | $0.00 |
| 2024 | 4897 | JCCD - JC Conservation District | $2.60 | $2.60 | $0.00 | $0.00 | $5.20 | $0.00 |
| 2024 | 4897 | NWA - Noxious Weed Assessment | $2.30 | $2.30 | $0.00 | $0.00 | $4.60 | $0.00 |
| 2024 | 4897 | OSS - On Site Septic | $21.00 | $21.00 | $0.00 | $0.00 | $42.00 | $0.00 |
| 2024 | 4897 | WAT - Clean Water District | $12.50 | $12.50 | $0.00 | $0.00 | $25.00 | $0.00 |
| 2024 | 4897 | FP ADMIN - FP ADMIN | $0.50 | $0.00 | $0.00 | $0.00 | $0.50 | $0.00 |
| 2024 | 4897 | TOTAL: | $3049.86 | $3049.29 | $0.00 | $0.00 | $6099.15 | $0.00 |
|
| 2024 | 4897 | $3049.86 | $3049.29 | $0.00 | $0.00 | $6099.15 | $0.00 |
Statement Details |
| 2023 | 4911 | STATE - STATE LEVY (SCHOOL) | $903.26 | $903.26 | $0.00 | $0.00 | $1806.52 | $0.00 |
| 2023 | 4911 | COUNTY - COUNTY LEVIES (CE, DD, VET, MH) | $394.17 | $394.15 | $0.00 | $0.00 | $788.32 | $0.00 |
| 2023 | 4911 | CONSERVE - CONSERVATION FUTURES | $11.82 | $11.82 | $0.00 | $0.00 | $23.64 | $0.00 |
| 2023 | 4911 | COROADS - COUNTY ROADS (ROADS, DIV TO CE) | $318.91 | $318.89 | $0.00 | $0.00 | $637.80 | $0.00 |
| 2023 | 4911 | PORTPT - PORT DISTRICT | $166.04 | $166.04 | $0.00 | $0.00 | $332.08 | $0.00 |
| 2023 | 4911 | PUD1 - PUD #1 | $26.13 | $26.12 | $0.00 | $0.00 | $52.25 | $0.00 |
| 2023 | 4911 | LIB1 - LIBRARY DIST #1 | $123.38 | $123.38 | $0.00 | $0.00 | $246.76 | $0.00 |
| 2023 | 4911 | HD2 - HOSP DIST #2 | $23.01 | $23.00 | $0.00 | $0.00 | $46.01 | $0.00 |
| 2023 | 4911 | SD48 - SCHOOL DIST #48 | $436.20 | $436.19 | $0.00 | $0.00 | $872.39 | $0.00 |
| 2023 | 4911 | FD2 - FIRE DISTRICT #2 | $342.14 | $342.13 | $0.00 | $0.00 | $684.27 | $0.00 |
| 2023 | 4911 | EMS2 - FIRE DIST #2 EMS | $191.85 | $191.84 | $0.00 | $0.00 | $383.69 | $0.00 |
| 2023 | 4911 | CEM2 - CEMETERY DIST #2 | $10.89 | $10.89 | $0.00 | $0.00 | $21.78 | $0.00 |
| 2023 | 4911 | FP - DNR Forest Fire Protection Assmt | $8.50 | $8.50 | $0.00 | $0.00 | $17.00 | $0.00 |
| 2023 | 4911 | FPLCA - DNR Landowner Contingency Assmt | $3.00 | $3.00 | $0.00 | $0.00 | $6.00 | $0.00 |
| 2023 | 4911 | JCCD - JC Conservation District | $2.60 | $2.60 | $0.00 | $0.00 | $5.20 | $0.00 |
| 2023 | 4911 | NWA - Noxious Weed Assessment | $2.30 | $2.30 | $0.00 | $0.00 | $4.60 | $0.00 |
| 2023 | 4911 | OSS - On Site Septic | $20.50 | $20.50 | $0.00 | $0.00 | $41.00 | $0.00 |
| 2023 | 4911 | WAT - Clean Water District | $12.00 | $12.00 | $0.00 | $0.00 | $24.00 | $0.00 |
| 2023 | 4911 | FP ADMIN - FP ADMIN | $0.50 | $0.00 | $0.00 | $0.00 | $0.50 | $0.00 |
| 2023 | 4911 | TOTAL: | $2997.20 | $2996.61 | $0.00 | $0.00 | $5993.81 | $0.00 |
|
| 2023 | 4911 | $2997.20 | $2996.61 | $0.00 | $0.00 | $5993.81 | $0.00 |
Values
| (+) Improvement Homesite Value: | + | $567,377 | |
| (+) Improvement Non-Homesite Value: | + | $0 | |
| (+) Land Homesite Value: | + | $350,244 | |
| (+) Land Non-Homesite Value: | + | $0 | |
| (+) Curr Use (HS): | + | $0 | $0 |
| (+) Curr Use (NHS): | + | $0 | $0 |
| | | -------------------------- | |
| (=) Market Value: | = | $917,621 | |
| (–) Productivity Loss: | – | $0 | |
| | | -------------------------- | |
| (=) Subtotal: | = | $917,621 | |
| (+) Senior Appraised Value: | + | $0 | |
| (+) Non-Senior Appraised Value: | + | $917,621 | |
| | | -------------------------- | |
| (=) Total Appraised Value: | = | $917,621 | |
| (–) Senior Exemption Loss: | – | $0 | |
| (–) Exemption Loss: | – | $0 | |
| | | -------------------------- | |
| (=) Taxable Value: | = | $917,621 | |
Taxing Jurisdiction
| Owner: | AMY B PELLISSIER | | |
| % Ownership: | 100.0000000000% | | |
| Total Value: | $917,621 | | |
| Tax Area: | 0321 - 1-48F2E2H2C2L1 |
| CE | COUNTY CURRENT EXPENSE | 0.9034619479 | $917,621 | $917,621 | $829.04 | | |
| CNTYDD | DEVELOPMENTAL DISABILITIES | 0.0052121823 | $917,621 | $917,621 | $4.78 | | |
| CNTYVET | VETERANS RELIEF | 0.0052777810 | $917,621 | $917,621 | $4.84 | | |
| MENTAL | MENTAL HEALTH | 0.0052121823 | $917,621 | $917,621 | $4.78 | | |
| ROADS | COUNTY ROADS | 0.7415066410 | $917,621 | $917,621 | $680.42 | | |
| ROADSCU | COUNTY ROADS TO CUR EXP | 0.0000000000 | $917,621 | $917,621 | $0.00 | | |
| HOSP2CASH | HOSP DIST #2 GENERAL | 0.0536075306 | $917,621 | $917,621 | $49.19 | | |
| SCH48MO | SCHOOL DIST #48 EP & O | 1.4120478917 | $917,621 | $917,621 | $1,295.72 | | |
| CEM2 | CEMETERY DIST #2 GENERAL | 0.0241266154 | $917,621 | $917,621 | $22.14 | | |
| CONSERVE | CONSERVATION FUTURES | 0.0275621078 | $917,621 | $917,621 | $25.29 | | |
| FD2 | FIRE DIST #2 GENERAL | 0.7549976873 | $917,621 | $917,621 | $692.80 | | |
| LIB1 | LIBRARY DIST #1 GENERAL | 0.2868827388 | $917,621 | $917,621 | $263.25 | | |
| PORTPT | PORT OF PT GENERAL | 0.1134941229 | $917,621 | $917,621 | $104.14 | | |
| PORTPTIDD | PORT OF PT IDD 2019 | 0.2577346692 | $917,621 | $917,621 | $236.50 | | |
| PUD1 | PUD #1 GENERAL | 0.0597888892 | $917,621 | $917,621 | $54.86 | | |
| STATE | STATE SCHOOL PART 1 | 1.4940692947 | $917,621 | $917,621 | $1,370.99 | | |
| STATE2 | STATE SCHOOL PART 2 | 0.8050170049 | $917,621 | $917,621 | $738.70 | | |
| EMS2 | FIRE DIST #2 EMS | 0.4251727858 | $917,621 | $917,621 | $390.15 | | |
| | Total Tax Rate: | 7.3751720728 | | | | | |
| | | | | Taxes w/Current Exemptions: | $6,767.59 | | |
| | | | | Taxes w/o Exemptions: | $6,767.59 | | |
Improvement / Building
| Improvement #1: | Residential Bldg | State Code: | 11 | 1600.0 sqft | Value: | $567,377 |
| Bathrooms (#): | 3 (FULL) | Bedrooms (#): | 2 | | Exterior Wall: | SI/ST | Fireplace: | SIN 2-AVG | | Fireplace: | WD ST-AVG | Floor Construction: | FRAME | | Foundation: | CONPR | Heating/Cooling: | F/A | | Inside Verify: | YES-FIX | Roof Cover: | METAL |
|
| | Type | Description | Class CD | Sub Class CD | Year Built | Area |
| | MA | Main Area | 5- | 15SF | 1982 | 1200.0 |
| | MA2 | Second Floor Main Area | 5- | 15SF | 1982 | 400.0 |
| | HDECK | House Deck | 4 | * | 1982 | 448.0 |
| | HENCL | House Enclosure | 4 | * | 1982 | 240.0 |
| | GATT | House Attached Garage | 4 | 15SF | 1982 | 520.0 |
| | DECK | Deck (Table Not Dep) | 4 | * | 1982 | 300.0 |
| | BSMTF | House basement finished | 4 | * | 1982 | 900.0 |
| | ASPHD | Asphalt Drive | 4 | * | 1982 | 3000.0 |
| | BSMTU | House basement unfinished | 4 | * | 1982 | 300.0 |
Sketch
| No sketches available for this property. |
Property Image
Land
| 1 | 2355-1525F | | 0.0000 | 0.00 | 0.00 | 0.00 | 0.00 | $310,500 | $0 |
| 2 | 2355-1525F | | 0.0000 | 0.00 | 0.00 | 0.00 | 0.00 | $39,744 | $0 |
Roll Value History
| 2026 | N/A | N/A | N/A | N/A | N/A |
| 2025 | $567,377 | $350,244 | $0 | $917,621 | $917,621 |
| 2024 | $543,736 | $335,016 | $0 | $878,752 | $878,752 |
| 2023 | $520,095 | $299,560 | $0 | $819,655 | $819,655 |
| 2022 | $472,814 | $294,560 | $0 | $767,374 | $767,374 |
Deed and Sales History
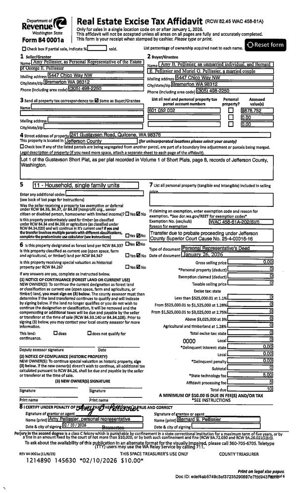
| 1 | 01/26/2026 | PRD | Personal Representatives Deed | GEORGE E PELLISSIER | AMY B PELLISSIER | | | | 145630 | |
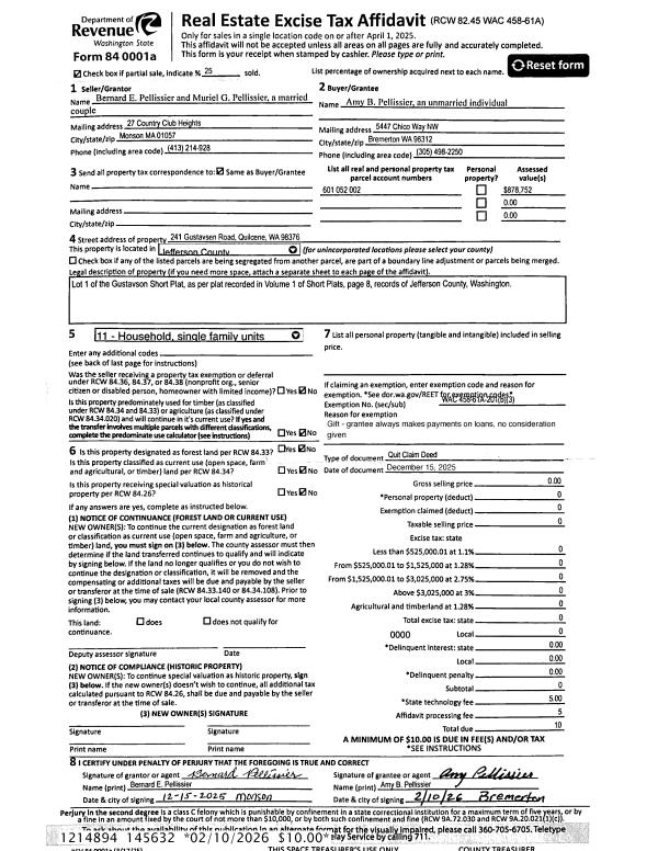
| 2 | 12/15/2025 | QCD | Quit Claim Deed | BERNARD E PELLISSIER | AMY B PELLISSIER | | | | 145632 | |
| 3 | 11/09/2018 | SWD | Statutory Warranty Deed | JOHN & DEBRA CONNOLLY | GEORGE E PELLISSIER | | | $645,000.00 | 131390 | |
| 4 | 12/12/2014 | SWD | Statutory Warranty Deed | MELVYN SARNOW | JOHN & DEBRA CONNOLLY | | | $411,000.00 | 122439 | |
| 5 | 11/12/2007 | SWD | Statutory Warranty Deed | GUSTAVSON, GLENN/BEVERLY | SARNOW, MELVYN/COLLEEN | 0 | 0 | $487,500.00 | 110475 | 0 |
| 6 | 04/23/2004 | QCD | Quit Claim Deed | GUSTAVSON, GLENN O/BEVERL | GUSTAVSON, GLENN O/BEVERLY J | 0 | 0 | $0.00 | 100056 | 0 |
| 7 | 04/23/2004 | QCD | Quit Claim Deed | GUSTAVSON, GLENN O/BEVERL | GUSTAVSON, GLENN O/BEVERLY J | 0 | 0 | $0.00 | 101077 | 0 |
Payout Agreement
| No payout information available.. |