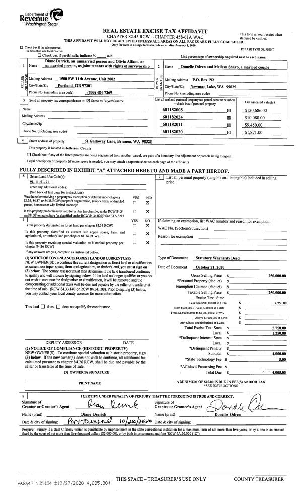
| 1 | 10/21/2020 | SWD | Statutory Warranty Deed | DIANE DERRICK | DONELLE ODREN & MELISSA SHARP | | | $250,000.00 | 135434 | |
|   | |
| 2 | 04/22/1998 | SWD | Statutory Warranty Deed | DONEY, JOHN H/III & DONNA | DERRICK, DIANE/ALFANO, OLIVIA | 0 | 0 | $65,000.00 | 84324 | 0 |
|   | |
| 3 | 06/14/1995 | SWD | Statutory Warranty Deed | KINNEY, GARY L/JEAN E | DONEY, JOHN H/III & DONNA M | 0 | 0 | $65,000.00 | 77141 | 0 |
|   | |
| 4 | 09/15/1993 | SWD | Statutory Warranty Deed | HUNKINS, SHIRLEY L/L VAUG | KINNEY, GARY L/JEAN E | 0 | 0 | $40,000.00 | 72195 | 0 |
|   | |