Property
Account |
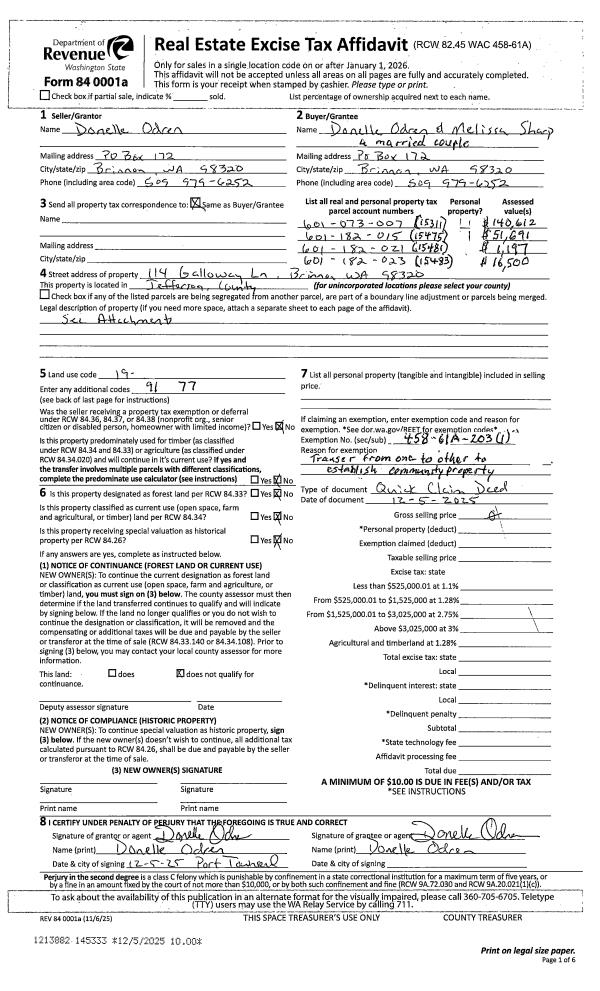
| Property ID: | 15475 | Abbreviated Legal Description: | S18 T26 R1W TAX 19 (LESS TX 24 & PTN TX 30) |
| Parcel # / Geo ID: | 601182015 | Agent Code: | |
| Type: | Real | | |
| Tax Area: | 0441 - 1-46F4E4H2C1L1P2 | Land Use Code | 76 |
| Open Space: | N | DFL | N |
| Historic Property: | N | Remodel Property: | N |
| Multi-Family Redevelopment: | N | | |
| Township: | 26N | Section: | 18 |
| Range: | 1W |
Location |
| Address: | 112 GALLOWAY LN BRINNON, WA 98320 | Mapsco: | 034/037 |
| Neighborhood: | S6,7,18,& 19 T26N R1W (PULALI PT) & CORN/CONNOLLY/STRAMPE SP | Map ID: | |
| Neighborhood CD: | 1330 |
Owner |
| Name: | DONELLE ODREN & MELISSA SHARP | Owner ID: | 103590 |
| Mailing Address: | PO BOX 172 BRINNON, WA 98320-0172 | % Ownership: | 100.0000000000% |
| | | Exemptions: | |
Pay Tax Due
Select the appropriate checkbox next to the year to be paid. Multiple years may be selected.
*Convenience Fee not included
Taxes and Assessment Details
Property Tax Information as of
03/11/2026
Click on "Statement Details" to expand or collapse a tax statement.
* Please enter a valid date ** Please enter a valid date *
Statement Details |
| 2026 | 5048 | STATE - STATE LEVY (SCHOOL) | $62.12 | $62.12 | $0.00 | $0.00 | $0.00 | $124.24 |
| 2026 | 5048 | COUNTY - COUNTY LEVIES (CE, DD, VET, MH) | $24.84 | $24.83 | $0.00 | $0.00 | $0.00 | $49.67 |
| 2026 | 5048 | CONSERVE - CONSERVATION FUTURES | $0.75 | $0.74 | $0.00 | $0.00 | $0.00 | $1.49 |
| 2026 | 5048 | COROADS - COUNTY ROADS (ROADS, DIV TO CE) | $20.04 | $20.03 | $0.00 | $0.00 | $0.00 | $40.07 |
| 2026 | 5048 | PORTPT - PORT DISTRICT | $10.04 | $10.02 | $0.00 | $0.00 | $0.00 | $20.06 |
| 2026 | 5048 | PUD1 - PUD #1 | $1.62 | $1.61 | $0.00 | $0.00 | $0.00 | $3.23 |
| 2026 | 5048 | LIB1 - LIBRARY DIST #1 | $7.75 | $7.75 | $0.00 | $0.00 | $0.00 | $15.50 |
| 2026 | 5048 | HD2 - HOSP DIST #2 | $1.45 | $1.45 | $0.00 | $0.00 | $0.00 | $2.90 |
| 2026 | 5048 | SD46 - SCHOOL DIST #46 | $18.62 | $18.62 | $0.00 | $0.00 | $0.00 | $37.24 |
| 2026 | 5048 | FD4 - FIRE DISTRICT #4 | $45.10 | $45.08 | $0.00 | $0.00 | $0.00 | $90.18 |
| 2026 | 5048 | EMS4 - FIRE DIST #4 EMS | $12.55 | $12.55 | $0.00 | $0.00 | $0.00 | $25.10 |
| 2026 | 5048 | CEM1 - CEMETERY DIST #1 | $0.29 | $0.29 | $0.00 | $0.00 | $0.00 | $0.58 |
| 2026 | 5048 | FPLCA - DNR Landowner Contingency Assmt | $3.00 | $3.00 | $0.00 | $0.00 | $0.00 | $6.00 |
| 2026 | 5048 | JCCD - JC Conservation District | $2.53 | $2.53 | $0.00 | $0.00 | $0.00 | $5.06 |
| 2026 | 5048 | NWA - Noxious Weed Assessment | $2.98 | $2.97 | $0.00 | $0.00 | $0.00 | $5.95 |
| 2026 | 5048 | OSS - On Site Septic | $23.10 | $23.10 | $0.00 | $0.00 | $0.00 | $46.20 |
| 2026 | 5048 | WAT - Clean Water District | $13.00 | $13.00 | $0.00 | $0.00 | $0.00 | $26.00 |
| 2026 | 5048 | TOTAL: | $249.78 | $249.69 | $0.00 | $0.00 | $0.00 | $499.47 |
|
| 2026 | 5048 | $249.78 | $249.69 | $0.00 | $0.00 | $0.00 | $499.47 |
Statement Details |
| 2025 | 5067 | STATE - STATE LEVY (SCHOOL) | $61.98 | $61.97 | $0.00 | $0.00 | $123.95 | $0.00 |
| 2025 | 5067 | COUNTY - COUNTY LEVIES (CE, DD, VET, MH) | $24.38 | $24.37 | $0.00 | $0.00 | $48.75 | $0.00 |
| 2025 | 5067 | CONSERVE - CONSERVATION FUTURES | $0.73 | $0.73 | $0.00 | $0.00 | $1.46 | $0.00 |
| 2025 | 5067 | COROADS - COUNTY ROADS (ROADS, DIV TO CE) | $19.53 | $19.52 | $0.00 | $0.00 | $39.05 | $0.00 |
| 2025 | 5067 | PORTPT - PORT DISTRICT | $9.95 | $9.94 | $0.00 | $0.00 | $19.89 | $0.00 |
| 2025 | 5067 | PUD1 - PUD #1 | $1.60 | $1.59 | $0.00 | $0.00 | $3.19 | $0.00 |
| 2025 | 5067 | LIB1 - LIBRARY DIST #1 | $7.56 | $7.55 | $0.00 | $0.00 | $15.11 | $0.00 |
| 2025 | 5067 | HD2 - HOSP DIST #2 | $1.42 | $1.42 | $0.00 | $0.00 | $2.84 | $0.00 |
| 2025 | 5067 | SD46 - SCHOOL DIST #46 | $16.38 | $16.38 | $0.00 | $0.00 | $32.76 | $0.00 |
| 2025 | 5067 | FD4 - FIRE DISTRICT #4 | $45.40 | $45.40 | $0.00 | $0.00 | $90.80 | $0.00 |
| 2025 | 5067 | EMS4 - FIRE DIST #4 EMS | $12.60 | $12.59 | $0.00 | $0.00 | $25.19 | $0.00 |
| 2025 | 5067 | CEM1 - CEMETERY DIST #1 | $0.29 | $0.29 | $0.00 | $0.00 | $0.58 | $0.00 |
| 2025 | 5067 | FPLCA - DNR Landowner Contingency Assmt | $3.00 | $3.00 | $0.00 | $0.00 | $6.00 | $0.00 |
| 2025 | 5067 | JCCD - JC Conservation District | $2.53 | $2.53 | $0.00 | $0.00 | $5.06 | $0.00 |
| 2025 | 5067 | NWA - Noxious Weed Assessment | $2.15 | $2.15 | $0.00 | $0.00 | $4.30 | $0.00 |
| 2025 | 5067 | OSS - On Site Septic | $21.50 | $21.50 | $0.00 | $0.00 | $43.00 | $0.00 |
| 2025 | 5067 | WAT - Clean Water District | $13.00 | $13.00 | $0.00 | $0.00 | $26.00 | $0.00 |
| 2025 | 5067 | TOTAL: | $244.00 | $243.93 | $0.00 | $0.00 | $487.93 | $0.00 |
|
| 2025 | 5067 | $244.00 | $243.93 | $0.00 | $0.00 | $487.93 | $0.00 |
Statement Details |
| 2024 | 5084 | STATE - STATE LEVY (SCHOOL) | $51.12 | $51.12 | $0.00 | $0.00 | $102.24 | $0.00 |
| 2024 | 5084 | COUNTY - COUNTY LEVIES (CE, DD, VET, MH) | $21.90 | $21.86 | $0.00 | $0.00 | $43.76 | $0.00 |
| 2024 | 5084 | CONSERVE - CONSERVATION FUTURES | $0.66 | $0.65 | $0.00 | $0.00 | $1.31 | $0.00 |
| 2024 | 5084 | COROADS - COUNTY ROADS (ROADS, DIV TO CE) | $17.61 | $17.59 | $0.00 | $0.00 | $35.20 | $0.00 |
| 2024 | 5084 | PORTPT - PORT DISTRICT | $9.04 | $9.03 | $0.00 | $0.00 | $18.07 | $0.00 |
| 2024 | 5084 | PUD1 - PUD #1 | $1.44 | $1.43 | $0.00 | $0.00 | $2.87 | $0.00 |
| 2024 | 5084 | LIB1 - LIBRARY DIST #1 | $6.81 | $6.81 | $0.00 | $0.00 | $13.62 | $0.00 |
| 2024 | 5084 | HD2 - HOSP DIST #2 | $1.28 | $1.27 | $0.00 | $0.00 | $2.55 | $0.00 |
| 2024 | 5084 | SD46 - SCHOOL DIST #46 | $15.35 | $15.34 | $0.00 | $0.00 | $30.69 | $0.00 |
| 2024 | 5084 | FD4 - FIRE DISTRICT #4 | $39.65 | $39.64 | $0.00 | $0.00 | $79.29 | $0.00 |
| 2024 | 5084 | EMS4 - FIRE DIST #4 EMS | $11.05 | $11.05 | $0.00 | $0.00 | $22.10 | $0.00 |
| 2024 | 5084 | CEM1 - CEMETERY DIST #1 | $0.26 | $0.26 | $0.00 | $0.00 | $0.52 | $0.00 |
| 2024 | 5084 | FPLCA - DNR Landowner Contingency Assmt | $3.00 | $3.00 | $0.00 | $0.00 | $6.00 | $0.00 |
| 2024 | 5084 | JCCD - JC Conservation District | $2.53 | $2.53 | $0.00 | $0.00 | $5.06 | $0.00 |
| 2024 | 5084 | NWA - Noxious Weed Assessment | $2.15 | $2.15 | $0.00 | $0.00 | $4.30 | $0.00 |
| 2024 | 5084 | OSS - On Site Septic | $21.00 | $21.00 | $0.00 | $0.00 | $42.00 | $0.00 |
| 2024 | 5084 | WAT - Clean Water District | $12.50 | $12.50 | $0.00 | $0.00 | $25.00 | $0.00 |
| 2024 | 5084 | TOTAL: | $217.35 | $217.23 | $0.00 | $0.00 | $434.58 | $0.00 |
|
| 2024 | 5084 | $217.35 | $217.23 | $0.00 | $0.00 | $434.58 | $0.00 |
Statement Details |
| 2023 | 5098 | STATE - STATE LEVY (SCHOOL) | $43.55 | $43.54 | $0.00 | $0.00 | $87.09 | $0.00 |
| 2023 | 5098 | COUNTY - COUNTY LEVIES (CE, DD, VET, MH) | $19.01 | $19.00 | $0.00 | $0.00 | $38.01 | $0.00 |
| 2023 | 5098 | CONSERVE - CONSERVATION FUTURES | $0.57 | $0.57 | $0.00 | $0.00 | $1.14 | $0.00 |
| 2023 | 5098 | COROADS - COUNTY ROADS (ROADS, DIV TO CE) | $15.38 | $15.36 | $0.00 | $0.00 | $30.74 | $0.00 |
| 2023 | 5098 | PORTPT - PORT DISTRICT | $8.01 | $8.00 | $0.00 | $0.00 | $16.01 | $0.00 |
| 2023 | 5098 | PUD1 - PUD #1 | $1.26 | $1.26 | $0.00 | $0.00 | $2.52 | $0.00 |
| 2023 | 5098 | LIB1 - LIBRARY DIST #1 | $5.95 | $5.95 | $0.00 | $0.00 | $11.90 | $0.00 |
| 2023 | 5098 | HD2 - HOSP DIST #2 | $1.11 | $1.11 | $0.00 | $0.00 | $2.22 | $0.00 |
| 2023 | 5098 | SD46 - SCHOOL DIST #46 | $14.21 | $14.21 | $0.00 | $0.00 | $28.42 | $0.00 |
| 2023 | 5098 | FD4 - FIRE DISTRICT #4 | $23.63 | $23.63 | $0.00 | $0.00 | $47.26 | $0.00 |
| 2023 | 5098 | EMS4 - FIRE DIST #4 EMS | $6.72 | $6.72 | $0.00 | $0.00 | $13.44 | $0.00 |
| 2023 | 5098 | CEM1 - CEMETERY DIST #1 | $0.24 | $0.24 | $0.00 | $0.00 | $0.48 | $0.00 |
| 2023 | 5098 | FPLCA - DNR Landowner Contingency Assmt | $3.00 | $3.00 | $0.00 | $0.00 | $6.00 | $0.00 |
| 2023 | 5098 | JCCD - JC Conservation District | $2.53 | $2.53 | $0.00 | $0.00 | $5.06 | $0.00 |
| 2023 | 5098 | NWA - Noxious Weed Assessment | $2.15 | $2.15 | $0.00 | $0.00 | $4.30 | $0.00 |
| 2023 | 5098 | OSS - On Site Septic | $20.50 | $20.50 | $0.00 | $0.00 | $41.00 | $0.00 |
| 2023 | 5098 | WAT - Clean Water District | $12.00 | $12.00 | $0.00 | $0.00 | $24.00 | $0.00 |
| 2023 | 5098 | TOTAL: | $179.82 | $179.77 | $0.00 | $0.00 | $359.59 | $0.00 |
|
| 2023 | 5098 | $179.82 | $179.77 | $0.00 | $0.00 | $359.59 | $0.00 |
Values
| (+) Improvement Homesite Value: | + | $0 | |
| (+) Improvement Non-Homesite Value: | + | $2,291 | |
| (+) Land Homesite Value: | + | $0 | |
| (+) Land Non-Homesite Value: | + | $51,750 | |
| (+) Curr Use (HS): | + | $0 | $0 |
| (+) Curr Use (NHS): | + | $0 | $0 |
| | | -------------------------- | |
| (=) Market Value: | = | $54,041 | |
| (–) Productivity Loss: | – | $0 | |
| | | -------------------------- | |
| (=) Subtotal: | = | $54,041 | |
| (+) Senior Appraised Value: | + | $0 | |
| (+) Non-Senior Appraised Value: | + | $54,041 | |
| | | -------------------------- | |
| (=) Total Appraised Value: | = | $54,041 | |
| (–) Senior Exemption Loss: | – | $0 | |
| (–) Exemption Loss: | – | $0 | |
| | | -------------------------- | |
| (=) Taxable Value: | = | $54,041 | |
Taxing Jurisdiction
| Owner: | DONELLE ODREN & MELISSA SHARP | | |
| % Ownership: | 100.0000000000% | | |
| Total Value: | $54,041 | | |
| Tax Area: | 0441 - 1-46F4E4H2C1L1P2 |
| CE | COUNTY CURRENT EXPENSE | 0.9034619479 | $54,041 | $54,041 | $48.82 | | |
| CNTYDD | DEVELOPMENTAL DISABILITIES | 0.0052121823 | $54,041 | $54,041 | $0.28 | | |
| CNTYVET | VETERANS RELIEF | 0.0052777810 | $54,041 | $54,041 | $0.29 | | |
| MENTAL | MENTAL HEALTH | 0.0052121823 | $54,041 | $54,041 | $0.28 | | |
| ROADS | COUNTY ROADS | 0.7415066410 | $54,041 | $54,041 | $40.07 | | |
| ROADSCU | COUNTY ROADS TO CUR EXP | 0.0000000000 | $54,041 | $54,041 | $0.00 | | |
| HOSP2CASH | HOSP DIST #2 GENERAL | 0.0536075306 | $54,041 | $54,041 | $2.90 | | |
| SCH46MO | SCHOOL DIST #46 EP & O | 0.6890207067 | $54,041 | $54,041 | $37.24 | | |
| CEM1 | CEMETERY DIST #1 GENERAL | 0.0107168292 | $54,041 | $54,041 | $0.58 | | |
| CONSERVE | CONSERVATION FUTURES | 0.0275621078 | $54,041 | $54,041 | $1.49 | | |
| EMS4 | FIRE DIST #4 EMS | 0.4644216158 | $54,041 | $54,041 | $25.10 | | |
| FD4 | FIRE DIST #4 GENERAL | 1.3939598390 | $54,041 | $54,041 | $75.33 | | |
| FD4BOND | FIRE DIST #4 BOND 2019 | 0.2748466981 | $54,041 | $54,041 | $14.85 | | |
| LIB1 | LIBRARY DIST #1 GENERAL | 0.2868827388 | $54,041 | $54,041 | $15.50 | | |
| PORTPT | PORT OF PT GENERAL | 0.1134941229 | $54,041 | $54,041 | $6.13 | | |
| PORTPTIDD | PORT OF PT IDD 2019 | 0.2577346692 | $54,041 | $54,041 | $13.93 | | |
| PUD1 | PUD #1 GENERAL | 0.0597888892 | $54,041 | $54,041 | $3.23 | | |
| STATE | STATE SCHOOL PART 1 | 1.4940692947 | $54,041 | $54,041 | $80.74 | | |
| STATE2 | STATE SCHOOL PART 2 | 0.8050170049 | $54,041 | $54,041 | $43.50 | | |
| | Total Tax Rate: | 7.5917927814 | | | | | |
| | | | | Taxes w/Current Exemptions: | $410.26 | | |
| | | | | Taxes w/o Exemptions: | $410.26 | | |
Improvement / Building
| Improvement #1: | Residential Bldg | State Code: | 77 | 0.0 sqft | Value: | $2,291 |
Sketch
| No sketches available for this property. |
Property Image
Land
| 1 | 1330-1375S | | 0.0000 | 0.00 | 0.00 | 0.00 | 1.00 | $51,750 | $0 |
Roll Value History
| 2026 | N/A | N/A | N/A | N/A | N/A |
| 2025 | $2,291 | $51,750 | $0 | $54,041 | $54,041 |
| 2024 | $2,191 | $49,500 | $0 | $51,691 | $51,691 |
| 2023 | $2,191 | $42,000 | $0 | $44,191 | $44,191 |
| 2022 | $1,992 | $35,000 | $0 | $36,992 | $36,992 |
Deed and Sales History
| 1 | 12/05/2025 | QCD | Quit Claim Deed | DONELLE ODREN | DONELLE ODREN & MELISSA SHARP | | | | 145333 | |
| 2 | 06/29/2012 | QCD | Quit Claim Deed | ODREN, CHARLOTTE/VERNON | ODREN, DONELLE | 0 | 0 | $0.00 | 117751 | 0 |
Payout Agreement
| No payout information available.. |