Property
Account |
| Property ID: | 15476 | Abbreviated Legal Description: | S18 T26 R1W TAX 20( ENLG BY PTN TAX 21) LESS TAX 27 |
| Parcel # / Geo ID: | 601182016 | Agent Code: | |
| Type: | Real | | |
| Tax Area: | 0441 - 1-46F4E4H2C1L1P2 | Land Use Code | 76 |
| Open Space: | N | DFL | N |
| Historic Property: | N | Remodel Property: | N |
| Multi-Family Redevelopment: | N | | |
| Township: | 26N | Section: | 18 |
| Range: | 1W |
Location |
| Address: | 0 GALLOWAY LN BRINNON, WA 98320 | Mapsco: | 034/038 |
| Neighborhood: | S6,7,18,& 19 T26N R1W (PULALI PT) & CORN/CONNOLLY/STRAMPE SP | Map ID: | |
| Neighborhood CD: | 1330 |
Owner |
| Name: | JEFFREY & COLLEEN BEHRENS TRUST | Owner ID: | 106368 |
| Mailing Address: | JEFFREY L BEHRENS TRUSTEE 21095 LANCELOT AVE BEND, OR 97702-9719 | % Ownership: | 100.0000000000% |
| | | Exemptions: | |
Pay Tax Due
Select the appropriate checkbox next to the year to be paid. Multiple years may be selected.
*Convenience Fee not included
Taxes and Assessment Details
Property Tax Information as of
03/13/2026
Click on "Statement Details" to expand or collapse a tax statement.
* Please enter a valid date ** Please enter a valid date *
Statement Details |
| 2026 | 5049 | STATE - STATE LEVY (SCHOOL) | $75.69 | $75.68 | $0.00 | $0.00 | $0.00 | $151.37 |
| 2026 | 5049 | COUNTY - COUNTY LEVIES (CE, DD, VET, MH) | $30.26 | $30.25 | $0.00 | $0.00 | $0.00 | $60.51 |
| 2026 | 5049 | CONSERVE - CONSERVATION FUTURES | $0.91 | $0.90 | $0.00 | $0.00 | $0.00 | $1.81 |
| 2026 | 5049 | COROADS - COUNTY ROADS (ROADS, DIV TO CE) | $24.41 | $24.41 | $0.00 | $0.00 | $0.00 | $48.82 |
| 2026 | 5049 | PORTPT - PORT DISTRICT | $12.23 | $12.21 | $0.00 | $0.00 | $0.00 | $24.44 |
| 2026 | 5049 | PUD1 - PUD #1 | $1.97 | $1.97 | $0.00 | $0.00 | $0.00 | $3.94 |
| 2026 | 5049 | LIB1 - LIBRARY DIST #1 | $9.45 | $9.44 | $0.00 | $0.00 | $0.00 | $18.89 |
| 2026 | 5049 | HD2 - HOSP DIST #2 | $1.77 | $1.76 | $0.00 | $0.00 | $0.00 | $3.53 |
| 2026 | 5049 | SD46 - SCHOOL DIST #46 | $22.69 | $22.68 | $0.00 | $0.00 | $0.00 | $45.37 |
| 2026 | 5049 | FD4 - FIRE DISTRICT #4 | $54.94 | $54.94 | $0.00 | $0.00 | $0.00 | $109.88 |
| 2026 | 5049 | EMS4 - FIRE DIST #4 EMS | $15.29 | $15.29 | $0.00 | $0.00 | $0.00 | $30.58 |
| 2026 | 5049 | CEM1 - CEMETERY DIST #1 | $0.36 | $0.35 | $0.00 | $0.00 | $0.00 | $0.71 |
| 2026 | 5049 | FP - DNR Forest Fire Protection Assmt | $8.50 | $8.50 | $0.00 | $0.00 | $0.00 | $17.00 |
| 2026 | 5049 | FPLCA - DNR Landowner Contingency Assmt | $3.00 | $3.00 | $0.00 | $0.00 | $0.00 | $6.00 |
| 2026 | 5049 | JCCD - JC Conservation District | $2.61 | $2.61 | $0.00 | $0.00 | $0.00 | $5.22 |
| 2026 | 5049 | NWA - Noxious Weed Assessment | $3.43 | $3.42 | $0.00 | $0.00 | $0.00 | $6.85 |
| 2026 | 5049 | OSS - On Site Septic | $23.10 | $23.10 | $0.00 | $0.00 | $0.00 | $46.20 |
| 2026 | 5049 | WAT - Clean Water District | $13.00 | $13.00 | $0.00 | $0.00 | $0.00 | $26.00 |
| 2026 | 5049 | FP ADMIN - FP ADMIN | $0.50 | $0.00 | $0.00 | $0.00 | $0.00 | $0.50 |
| 2026 | 5049 | TOTAL: | $304.11 | $303.51 | $0.00 | $0.00 | $0.00 | $607.62 |
|
| 2026 | 5049 | $304.11 | $303.51 | $0.00 | $0.00 | $0.00 | $607.62 |
Statement Details |
| 2025 | 5068 | STATE - STATE LEVY (SCHOOL) | $75.51 | $75.51 | $0.00 | $0.00 | $151.02 | $0.00 |
| 2025 | 5068 | COUNTY - COUNTY LEVIES (CE, DD, VET, MH) | $29.70 | $29.70 | $0.00 | $0.00 | $59.40 | $0.00 |
| 2025 | 5068 | CONSERVE - CONSERVATION FUTURES | $0.89 | $0.89 | $0.00 | $0.00 | $1.78 | $0.00 |
| 2025 | 5068 | COROADS - COUNTY ROADS (ROADS, DIV TO CE) | $23.79 | $23.79 | $0.00 | $0.00 | $47.58 | $0.00 |
| 2025 | 5068 | PORTPT - PORT DISTRICT | $12.12 | $12.11 | $0.00 | $0.00 | $24.23 | $0.00 |
| 2025 | 5068 | PUD1 - PUD #1 | $1.95 | $1.94 | $0.00 | $0.00 | $3.89 | $0.00 |
| 2025 | 5068 | LIB1 - LIBRARY DIST #1 | $9.21 | $9.20 | $0.00 | $0.00 | $18.41 | $0.00 |
| 2025 | 5068 | HD2 - HOSP DIST #2 | $1.73 | $1.73 | $0.00 | $0.00 | $3.46 | $0.00 |
| 2025 | 5068 | SD46 - SCHOOL DIST #46 | $19.96 | $19.96 | $0.00 | $0.00 | $39.92 | $0.00 |
| 2025 | 5068 | FD4 - FIRE DISTRICT #4 | $55.31 | $55.31 | $0.00 | $0.00 | $110.62 | $0.00 |
| 2025 | 5068 | EMS4 - FIRE DIST #4 EMS | $15.35 | $15.34 | $0.00 | $0.00 | $30.69 | $0.00 |
| 2025 | 5068 | CEM1 - CEMETERY DIST #1 | $0.36 | $0.35 | $0.00 | $0.00 | $0.71 | $0.00 |
| 2025 | 5068 | FP - DNR Forest Fire Protection Assmt | $8.50 | $8.50 | $0.00 | $0.00 | $17.00 | $0.00 |
| 2025 | 5068 | FPLCA - DNR Landowner Contingency Assmt | $3.00 | $3.00 | $0.00 | $0.00 | $6.00 | $0.00 |
| 2025 | 5068 | JCCD - JC Conservation District | $2.61 | $2.61 | $0.00 | $0.00 | $5.22 | $0.00 |
| 2025 | 5068 | NWA - Noxious Weed Assessment | $2.45 | $2.45 | $0.00 | $0.00 | $4.90 | $0.00 |
| 2025 | 5068 | OSS - On Site Septic | $21.50 | $21.50 | $0.00 | $0.00 | $43.00 | $0.00 |
| 2025 | 5068 | WAT - Clean Water District | $13.00 | $13.00 | $0.00 | $0.00 | $26.00 | $0.00 |
| 2025 | 5068 | FP ADMIN - FP ADMIN | $0.50 | $0.00 | $0.00 | $0.00 | $0.50 | $0.00 |
| 2025 | 5068 | TOTAL: | $297.44 | $296.89 | $0.00 | $0.00 | $594.33 | $0.00 |
|
| 2025 | 5068 | $297.44 | $296.89 | $0.00 | $0.00 | $594.33 | $0.00 |
Statement Details |
| 2024 | 5085 | STATE - STATE LEVY (SCHOOL) | $62.44 | $62.44 | $0.00 | $0.00 | $124.88 | $0.00 |
| 2024 | 5085 | COUNTY - COUNTY LEVIES (CE, DD, VET, MH) | $26.73 | $26.71 | $0.00 | $0.00 | $53.44 | $0.00 |
| 2024 | 5085 | CONSERVE - CONSERVATION FUTURES | $0.80 | $0.80 | $0.00 | $0.00 | $1.60 | $0.00 |
| 2024 | 5085 | COROADS - COUNTY ROADS (ROADS, DIV TO CE) | $21.50 | $21.50 | $0.00 | $0.00 | $43.00 | $0.00 |
| 2024 | 5085 | PORTPT - PORT DISTRICT | $11.04 | $11.03 | $0.00 | $0.00 | $22.07 | $0.00 |
| 2024 | 5085 | PUD1 - PUD #1 | $1.76 | $1.75 | $0.00 | $0.00 | $3.51 | $0.00 |
| 2024 | 5085 | LIB1 - LIBRARY DIST #1 | $8.32 | $8.32 | $0.00 | $0.00 | $16.64 | $0.00 |
| 2024 | 5085 | HD2 - HOSP DIST #2 | $1.56 | $1.56 | $0.00 | $0.00 | $3.12 | $0.00 |
| 2024 | 5085 | SD46 - SCHOOL DIST #46 | $18.75 | $18.74 | $0.00 | $0.00 | $37.49 | $0.00 |
| 2024 | 5085 | FD4 - FIRE DISTRICT #4 | $48.43 | $48.42 | $0.00 | $0.00 | $96.85 | $0.00 |
| 2024 | 5085 | EMS4 - FIRE DIST #4 EMS | $13.50 | $13.49 | $0.00 | $0.00 | $26.99 | $0.00 |
| 2024 | 5085 | CEM1 - CEMETERY DIST #1 | $0.32 | $0.31 | $0.00 | $0.00 | $0.63 | $0.00 |
| 2024 | 5085 | FP - DNR Forest Fire Protection Assmt | $8.50 | $8.50 | $0.00 | $0.00 | $17.00 | $0.00 |
| 2024 | 5085 | FPLCA - DNR Landowner Contingency Assmt | $3.00 | $3.00 | $0.00 | $0.00 | $6.00 | $0.00 |
| 2024 | 5085 | JCCD - JC Conservation District | $2.61 | $2.61 | $0.00 | $0.00 | $5.22 | $0.00 |
| 2024 | 5085 | NWA - Noxious Weed Assessment | $2.45 | $2.45 | $0.00 | $0.00 | $4.90 | $0.00 |
| 2024 | 5085 | OSS - On Site Septic | $21.00 | $21.00 | $0.00 | $0.00 | $42.00 | $0.00 |
| 2024 | 5085 | WAT - Clean Water District | $12.50 | $12.50 | $0.00 | $0.00 | $25.00 | $0.00 |
| 2024 | 5085 | FP ADMIN - FP ADMIN | $0.50 | $0.00 | $0.00 | $0.00 | $0.50 | $0.00 |
| 2024 | 5085 | TOTAL: | $265.71 | $265.13 | $0.00 | $0.00 | $530.84 | $0.00 |
|
| 2024 | 5085 | $265.71 | $265.13 | $0.00 | $0.00 | $530.84 | $0.00 |
Statement Details |
| 2023 | 5099 | STATE - STATE LEVY (SCHOOL) | $53.14 | $53.12 | $0.00 | $0.00 | $106.26 | $0.00 |
| 2023 | 5099 | COUNTY - COUNTY LEVIES (CE, DD, VET, MH) | $23.19 | $23.18 | $0.00 | $0.00 | $46.37 | $0.00 |
| 2023 | 5099 | CONSERVE - CONSERVATION FUTURES | $0.70 | $0.69 | $0.00 | $0.00 | $1.39 | $0.00 |
| 2023 | 5099 | COROADS - COUNTY ROADS (ROADS, DIV TO CE) | $18.76 | $18.76 | $0.00 | $0.00 | $37.52 | $0.00 |
| 2023 | 5099 | PORTPT - PORT DISTRICT | $9.78 | $9.76 | $0.00 | $0.00 | $19.54 | $0.00 |
| 2023 | 5099 | PUD1 - PUD #1 | $1.54 | $1.53 | $0.00 | $0.00 | $3.07 | $0.00 |
| 2023 | 5099 | LIB1 - LIBRARY DIST #1 | $7.26 | $7.26 | $0.00 | $0.00 | $14.52 | $0.00 |
| 2023 | 5099 | HD2 - HOSP DIST #2 | $1.36 | $1.35 | $0.00 | $0.00 | $2.71 | $0.00 |
| 2023 | 5099 | SD46 - SCHOOL DIST #46 | $17.34 | $17.34 | $0.00 | $0.00 | $34.68 | $0.00 |
| 2023 | 5099 | FD4 - FIRE DISTRICT #4 | $28.84 | $28.83 | $0.00 | $0.00 | $57.67 | $0.00 |
| 2023 | 5099 | EMS4 - FIRE DIST #4 EMS | $8.20 | $8.20 | $0.00 | $0.00 | $16.40 | $0.00 |
| 2023 | 5099 | CEM1 - CEMETERY DIST #1 | $0.29 | $0.29 | $0.00 | $0.00 | $0.58 | $0.00 |
| 2023 | 5099 | FP - DNR Forest Fire Protection Assmt | $8.50 | $8.50 | $0.00 | $0.00 | $17.00 | $0.00 |
| 2023 | 5099 | FPLCA - DNR Landowner Contingency Assmt | $3.00 | $3.00 | $0.00 | $0.00 | $6.00 | $0.00 |
| 2023 | 5099 | JCCD - JC Conservation District | $2.61 | $2.61 | $0.00 | $0.00 | $5.22 | $0.00 |
| 2023 | 5099 | NWA - Noxious Weed Assessment | $2.45 | $2.45 | $0.00 | $0.00 | $4.90 | $0.00 |
| 2023 | 5099 | OSS - On Site Septic | $20.50 | $20.50 | $0.00 | $0.00 | $41.00 | $0.00 |
| 2023 | 5099 | WAT - Clean Water District | $12.00 | $12.00 | $0.00 | $0.00 | $24.00 | $0.00 |
| 2023 | 5099 | FP ADMIN - FP ADMIN | $0.50 | $0.00 | $0.00 | $0.00 | $0.50 | $0.00 |
| 2023 | 5099 | TOTAL: | $219.96 | $219.37 | $0.00 | $0.00 | $439.33 | $0.00 |
|
| 2023 | 5099 | $219.96 | $219.37 | $0.00 | $0.00 | $439.33 | $0.00 |
Values
| (+) Improvement Homesite Value: | + | $0 | |
| (+) Improvement Non-Homesite Value: | + | $0 | |
| (+) Land Homesite Value: | + | $0 | |
| (+) Land Non-Homesite Value: | + | $65,841 | |
| (+) Curr Use (HS): | + | $0 | $0 |
| (+) Curr Use (NHS): | + | $0 | $0 |
| | | -------------------------- | |
| (=) Market Value: | = | $65,841 | |
| (–) Productivity Loss: | – | $0 | |
| | | -------------------------- | |
| (=) Subtotal: | = | $65,841 | |
| (+) Senior Appraised Value: | + | $0 | |
| (+) Non-Senior Appraised Value: | + | $65,841 | |
| | | -------------------------- | |
| (=) Total Appraised Value: | = | $65,841 | |
| (–) Senior Exemption Loss: | – | $0 | |
| (–) Exemption Loss: | – | $0 | |
| | | -------------------------- | |
| (=) Taxable Value: | = | $65,841 | |
Taxing Jurisdiction
| Owner: | JEFFREY & COLLEEN BEHRENS TRUST | | |
| % Ownership: | 100.0000000000% | | |
| Total Value: | $65,841 | | |
| Tax Area: | 0441 - 1-46F4E4H2C1L1P2 |
| CE | COUNTY CURRENT EXPENSE | 0.9034619479 | $65,841 | $65,841 | $59.48 | | |
| CNTYDD | DEVELOPMENTAL DISABILITIES | 0.0052121823 | $65,841 | $65,841 | $0.34 | | |
| CNTYVET | VETERANS RELIEF | 0.0052777810 | $65,841 | $65,841 | $0.35 | | |
| MENTAL | MENTAL HEALTH | 0.0052121823 | $65,841 | $65,841 | $0.34 | | |
| ROADS | COUNTY ROADS | 0.7415066410 | $65,841 | $65,841 | $48.82 | | |
| ROADSCU | COUNTY ROADS TO CUR EXP | 0.0000000000 | $65,841 | $65,841 | $0.00 | | |
| HOSP2CASH | HOSP DIST #2 GENERAL | 0.0536075306 | $65,841 | $65,841 | $3.53 | | |
| SCH46MO | SCHOOL DIST #46 EP & O | 0.6890207067 | $65,841 | $65,841 | $45.37 | | |
| CEM1 | CEMETERY DIST #1 GENERAL | 0.0107168292 | $65,841 | $65,841 | $0.71 | | |
| CONSERVE | CONSERVATION FUTURES | 0.0275621078 | $65,841 | $65,841 | $1.81 | | |
| EMS4 | FIRE DIST #4 EMS | 0.4644216158 | $65,841 | $65,841 | $30.58 | | |
| FD4 | FIRE DIST #4 GENERAL | 1.3939598390 | $65,841 | $65,841 | $91.78 | | |
| FD4BOND | FIRE DIST #4 BOND 2019 | 0.2748466981 | $65,841 | $65,841 | $18.10 | | |
| LIB1 | LIBRARY DIST #1 GENERAL | 0.2868827388 | $65,841 | $65,841 | $18.89 | | |
| PORTPT | PORT OF PT GENERAL | 0.1134941229 | $65,841 | $65,841 | $7.47 | | |
| PORTPTIDD | PORT OF PT IDD 2019 | 0.2577346692 | $65,841 | $65,841 | $16.97 | | |
| PUD1 | PUD #1 GENERAL | 0.0597888892 | $65,841 | $65,841 | $3.94 | | |
| STATE | STATE SCHOOL PART 1 | 1.4940692947 | $65,841 | $65,841 | $98.37 | | |
| STATE2 | STATE SCHOOL PART 2 | 0.8050170049 | $65,841 | $65,841 | $53.00 | | |
| | Total Tax Rate: | 7.5917927814 | | | | | |
| | | | | Taxes w/Current Exemptions: | $499.85 | | |
| | | | | Taxes w/o Exemptions: | $499.85 | | |
Improvement / Building
Sketch
| No sketches available for this property. |
Property Image
Land
| 1 | 1575A | | 1.6900 | 73616.40 | 0.00 | 0.00 | 0.00 | $14,091 | $0 |
| 2 | 1330-1375S | | 1.0000 | 43560.00 | 0.00 | 0.00 | 1.00 | $51,750 | $0 |
Roll Value History
| 2026 | N/A | N/A | N/A | N/A | N/A |
| 2025 | $0 | $65,841 | $0 | $65,841 | $65,841 |
| 2024 | $0 | $62,978 | $0 | $62,978 | $62,978 |
| 2023 | $0 | $53,978 | $0 | $53,978 | $53,978 |
| 2022 | $0 | $45,140 | $0 | $45,140 | $45,140 |
Deed and Sales History
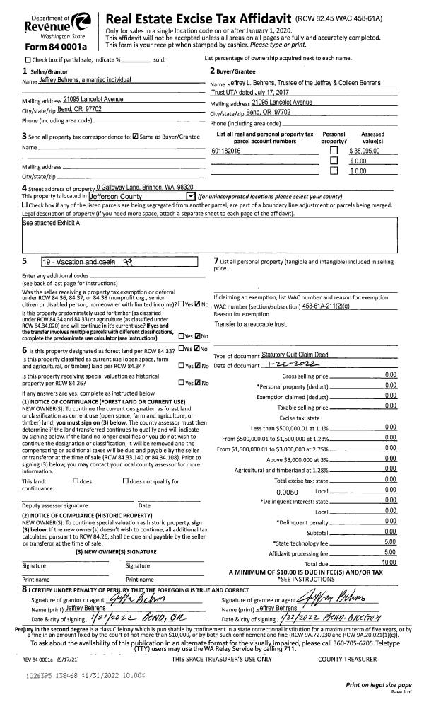
| 1 | 01/22/2022 | QCD | Quit Claim Deed | JEFFREY BEHRENS | JEFFREY & COLLEEN BEHRENS TRUST | | | | 138468 | |
| 2 | 01/22/2022 | QCD | Quit Claim Deed | JUANITA BEHRENS | JEFFREY BEHRENS | | | | 138467 | |
| 3 | 10/07/2019 | QCD | Quit Claim Deed | DONALD W MILLER | JUANITA L BEHRENS | | | | 133309 | |
| 4 | 10/07/2019 | QCD | Quit Claim Deed | | | | | | 133798 | |
Payout Agreement
| No payout information available.. |