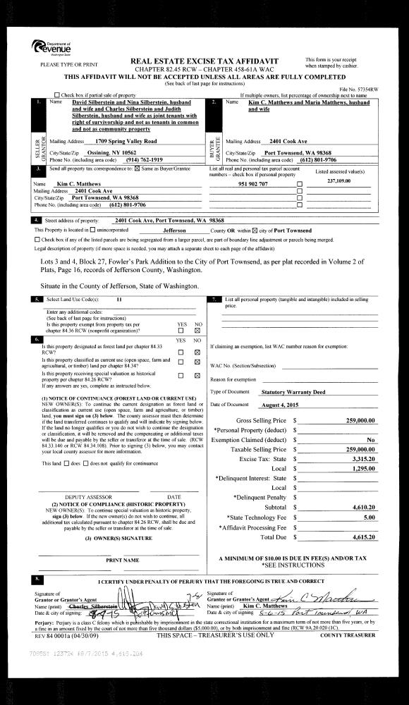
Property
Account |
| Property ID: | 15603 | Abbreviated Legal Description: | GLACIER RIDGE DIVISION ONE LOT 3 W-S/EASE |
| Parcel # / Geo ID: | 601225003 | Agent Code: | |
| Type: | Real | | |
| Tax Area: | 0323 - 1-48F2E2P1H2C2L1 | Land Use Code | 91 |
| Open Space: | N | DFL | N |
| Historic Property: | N | Remodel Property: | N |
| Multi-Family Redevelopment: | N | | |
| Township: | 26N | Section: | 22 |
| Range: | 1W |
Location |
| Address: | 107 GLACIER RIDGE RD QUILCENE, WA 98376 | Mapsco: | 181/077 |
| Neighborhood: | S22 & S23 & S27 T26N R1W + KIPP S.P. & BRYANT S.P. #2 | Map ID: | |
| Neighborhood CD: | 2250 |
Owner |
| Name: | JODI M THOMAS | Owner ID: | 100448 |
| Mailing Address: | 21175 PRESIDENT POINT RD NE KINGSTON, WA 98346-9174 | % Ownership: | 100.0000000000% |
| | | Exemptions: | |
Pay Tax Due
There is currently No Amount Due on this property.
Taxes and Assessment Details
Property Tax Information as of
03/10/2026
Click on "Statement Details" to expand or collapse a tax statement.
* Please enter a valid date ** Please enter a valid date *
Statement Details |
| 2026 | 5174 | STATE - STATE LEVY (SCHOOL) | $151.30 | $151.28 | $0.00 | $0.00 | $302.58 | $0.00 |
| 2026 | 5174 | COUNTY - COUNTY LEVIES (CE, DD, VET, MH) | $60.50 | $60.47 | $0.00 | $0.00 | $120.97 | $0.00 |
| 2026 | 5174 | CONSERVE - CONSERVATION FUTURES | $1.82 | $1.81 | $0.00 | $0.00 | $3.63 | $0.00 |
| 2026 | 5174 | COROADS - COUNTY ROADS (ROADS, DIV TO CE) | $48.80 | $48.79 | $0.00 | $0.00 | $97.59 | $0.00 |
| 2026 | 5174 | PORTPT - PORT DISTRICT | $24.43 | $24.43 | $0.00 | $0.00 | $48.86 | $0.00 |
| 2026 | 5174 | PUD1 - PUD #1 | $3.94 | $3.93 | $0.00 | $0.00 | $7.87 | $0.00 |
| 2026 | 5174 | LIB1 - LIBRARY DIST #1 | $18.88 | $18.88 | $0.00 | $0.00 | $37.76 | $0.00 |
| 2026 | 5174 | HD2 - HOSP DIST #2 | $3.53 | $3.53 | $0.00 | $0.00 | $7.06 | $0.00 |
| 2026 | 5174 | SD48 - SCHOOL DIST #48 | $92.92 | $92.92 | $0.00 | $0.00 | $185.84 | $0.00 |
| 2026 | 5174 | FD2 - FIRE DISTRICT #2 | $49.69 | $49.68 | $0.00 | $0.00 | $99.37 | $0.00 |
| 2026 | 5174 | EMS2 - FIRE DIST #2 EMS | $27.98 | $27.98 | $0.00 | $0.00 | $55.96 | $0.00 |
| 2026 | 5174 | CEM2 - CEMETERY DIST #2 | $1.59 | $1.59 | $0.00 | $0.00 | $3.18 | $0.00 |
| 2026 | 5174 | PARK1 - PARK & REC DIST #1 | $9.71 | $9.70 | $0.00 | $0.00 | $19.41 | $0.00 |
| 2026 | 5174 | FP - DNR Forest Fire Protection Assmt | $8.50 | $8.50 | $0.00 | $0.00 | $17.00 | $0.00 |
| 2026 | 5174 | FPLCA - DNR Landowner Contingency Assmt | $3.00 | $3.00 | $0.00 | $0.00 | $6.00 | $0.00 |
| 2026 | 5174 | JCCD - JC Conservation District | $2.69 | $2.69 | $0.00 | $0.00 | $5.38 | $0.00 |
| 2026 | 5174 | NWA - Noxious Weed Assessment | $3.88 | $3.87 | $0.00 | $0.00 | $7.75 | $0.00 |
| 2026 | 5174 | WAT - Clean Water District | $13.00 | $13.00 | $0.00 | $0.00 | $26.00 | $0.00 |
| 2026 | 5174 | FP ADMIN - FP ADMIN | $0.50 | $0.00 | $0.00 | $0.00 | $0.50 | $0.00 |
| 2026 | 5174 | TOTAL: | $526.66 | $526.05 | $0.00 | $0.00 | $1052.71 | $0.00 |
|
| 2026 | 5174 | $526.66 | $526.05 | $0.00 | $0.00 | $1052.71 | $0.00 |
Statement Details |
| 2025 | 5193 | STATE - STATE LEVY (SCHOOL) | $151.23 | $151.22 | $0.00 | $0.00 | $302.45 | $0.00 |
| 2025 | 5193 | COUNTY - COUNTY LEVIES (CE, DD, VET, MH) | $59.48 | $59.45 | $0.00 | $0.00 | $118.93 | $0.00 |
| 2025 | 5193 | CONSERVE - CONSERVATION FUTURES | $1.79 | $1.78 | $0.00 | $0.00 | $3.57 | $0.00 |
| 2025 | 5193 | COROADS - COUNTY ROADS (ROADS, DIV TO CE) | $47.65 | $47.64 | $0.00 | $0.00 | $95.29 | $0.00 |
| 2025 | 5193 | PORTPT - PORT DISTRICT | $24.28 | $24.26 | $0.00 | $0.00 | $48.54 | $0.00 |
| 2025 | 5193 | PUD1 - PUD #1 | $3.89 | $3.89 | $0.00 | $0.00 | $7.78 | $0.00 |
| 2025 | 5193 | LIB1 - LIBRARY DIST #1 | $18.44 | $18.43 | $0.00 | $0.00 | $36.87 | $0.00 |
| 2025 | 5193 | HD2 - HOSP DIST #2 | $3.47 | $3.47 | $0.00 | $0.00 | $6.94 | $0.00 |
| 2025 | 5193 | SD48 - SCHOOL DIST #48 | $89.06 | $89.05 | $0.00 | $0.00 | $178.11 | $0.00 |
| 2025 | 5193 | FD2 - FIRE DISTRICT #2 | $49.17 | $49.17 | $0.00 | $0.00 | $98.34 | $0.00 |
| 2025 | 5193 | EMS2 - FIRE DIST #2 EMS | $27.69 | $27.68 | $0.00 | $0.00 | $55.37 | $0.00 |
| 2025 | 5193 | CEM2 - CEMETERY DIST #2 | $1.57 | $1.57 | $0.00 | $0.00 | $3.14 | $0.00 |
| 2025 | 5193 | PARK1 - PARK & REC DIST #1 | $7.19 | $7.18 | $0.00 | $0.00 | $14.37 | $0.00 |
| 2025 | 5193 | FP - DNR Forest Fire Protection Assmt | $8.50 | $8.50 | $0.00 | $0.00 | $17.00 | $0.00 |
| 2025 | 5193 | FPLCA - DNR Landowner Contingency Assmt | $3.00 | $3.00 | $0.00 | $0.00 | $6.00 | $0.00 |
| 2025 | 5193 | JCCD - JC Conservation District | $2.69 | $2.69 | $0.00 | $0.00 | $5.38 | $0.00 |
| 2025 | 5193 | NWA - Noxious Weed Assessment | $2.75 | $2.75 | $0.00 | $0.00 | $5.50 | $0.00 |
| 2025 | 5193 | WAT - Clean Water District | $13.00 | $13.00 | $0.00 | $0.00 | $26.00 | $0.00 |
| 2025 | 5193 | FP ADMIN - FP ADMIN | $0.50 | $0.00 | $0.00 | $0.00 | $0.50 | $0.00 |
| 2025 | 5193 | TOTAL: | $515.35 | $514.73 | $0.00 | $0.00 | $1030.08 | $0.00 |
|
| 2025 | 5193 | $515.35 | $514.73 | $0.00 | $0.00 | $1030.08 | $0.00 |
Statement Details |
| 2024 | 5210 | STATE - STATE LEVY (SCHOOL) | $121.11 | $121.10 | $0.00 | $0.00 | $242.21 | $0.00 |
| 2024 | 5210 | COUNTY - COUNTY LEVIES (CE, DD, VET, MH) | $51.84 | $51.81 | $0.00 | $0.00 | $103.65 | $0.00 |
| 2024 | 5210 | CONSERVE - CONSERVATION FUTURES | $1.56 | $1.55 | $0.00 | $0.00 | $3.11 | $0.00 |
| 2024 | 5210 | COROADS - COUNTY ROADS (ROADS, DIV TO CE) | $41.71 | $41.69 | $0.00 | $0.00 | $83.40 | $0.00 |
| 2024 | 5210 | PORTPT - PORT DISTRICT | $21.41 | $21.40 | $0.00 | $0.00 | $42.81 | $0.00 |
| 2024 | 5210 | PUD1 - PUD #1 | $3.41 | $3.40 | $0.00 | $0.00 | $6.81 | $0.00 |
| 2024 | 5210 | LIB1 - LIBRARY DIST #1 | $16.14 | $16.13 | $0.00 | $0.00 | $32.27 | $0.00 |
| 2024 | 5210 | HD2 - HOSP DIST #2 | $3.03 | $3.02 | $0.00 | $0.00 | $6.05 | $0.00 |
| 2024 | 5210 | SD48 - SCHOOL DIST #48 | $54.24 | $54.24 | $0.00 | $0.00 | $108.48 | $0.00 |
| 2024 | 5210 | FD2 - FIRE DISTRICT #2 | $43.08 | $43.08 | $0.00 | $0.00 | $86.16 | $0.00 |
| 2024 | 5210 | EMS2 - FIRE DIST #2 EMS | $24.25 | $24.25 | $0.00 | $0.00 | $48.50 | $0.00 |
| 2024 | 5210 | CEM2 - CEMETERY DIST #2 | $1.38 | $1.38 | $0.00 | $0.00 | $2.76 | $0.00 |
| 2024 | 5210 | PARK1 - PARK & REC DIST #1 | $6.06 | $6.05 | $0.00 | $0.00 | $12.11 | $0.00 |
| 2024 | 5210 | FP - DNR Forest Fire Protection Assmt | $8.50 | $8.50 | $0.00 | $0.00 | $17.00 | $0.00 |
| 2024 | 5210 | FPLCA - DNR Landowner Contingency Assmt | $3.00 | $3.00 | $0.00 | $0.00 | $6.00 | $0.00 |
| 2024 | 5210 | JCCD - JC Conservation District | $2.69 | $2.69 | $0.00 | $0.00 | $5.38 | $0.00 |
| 2024 | 5210 | NWA - Noxious Weed Assessment | $2.75 | $2.75 | $0.00 | $0.00 | $5.50 | $0.00 |
| 2024 | 5210 | WAT - Clean Water District | $12.50 | $12.50 | $0.00 | $0.00 | $25.00 | $0.00 |
| 2024 | 5210 | FP ADMIN - FP ADMIN | $0.50 | $0.00 | $0.00 | $0.00 | $0.50 | $0.00 |
| 2024 | 5210 | TOTAL: | $419.16 | $418.54 | $0.00 | $0.00 | $837.70 | $0.00 |
|
| 2024 | 5210 | $419.16 | $418.54 | $0.00 | $0.00 | $837.70 | $0.00 |
Statement Details |
| 2023 | 5224 | STATE - STATE LEVY (SCHOOL) | $112.68 | $112.66 | $0.00 | $0.00 | $225.34 | $0.00 |
| 2023 | 5224 | COUNTY - COUNTY LEVIES (CE, DD, VET, MH) | $49.18 | $49.16 | $0.00 | $0.00 | $98.34 | $0.00 |
| 2023 | 5224 | CONSERVE - CONSERVATION FUTURES | $1.48 | $1.47 | $0.00 | $0.00 | $2.95 | $0.00 |
| 2023 | 5224 | COROADS - COUNTY ROADS (ROADS, DIV TO CE) | $39.79 | $39.77 | $0.00 | $0.00 | $79.56 | $0.00 |
| 2023 | 5224 | PORTPT - PORT DISTRICT | $20.71 | $20.71 | $0.00 | $0.00 | $41.42 | $0.00 |
| 2023 | 5224 | PUD1 - PUD #1 | $3.26 | $3.26 | $0.00 | $0.00 | $6.52 | $0.00 |
| 2023 | 5224 | LIB1 - LIBRARY DIST #1 | $15.39 | $15.39 | $0.00 | $0.00 | $30.78 | $0.00 |
| 2023 | 5224 | HD2 - HOSP DIST #2 | $2.87 | $2.87 | $0.00 | $0.00 | $5.74 | $0.00 |
| 2023 | 5224 | SD48 - SCHOOL DIST #48 | $54.41 | $54.41 | $0.00 | $0.00 | $108.82 | $0.00 |
| 2023 | 5224 | FD2 - FIRE DISTRICT #2 | $42.68 | $42.67 | $0.00 | $0.00 | $85.35 | $0.00 |
| 2023 | 5224 | EMS2 - FIRE DIST #2 EMS | $23.93 | $23.93 | $0.00 | $0.00 | $47.86 | $0.00 |
| 2023 | 5224 | CEM2 - CEMETERY DIST #2 | $1.36 | $1.36 | $0.00 | $0.00 | $2.72 | $0.00 |
| 2023 | 5224 | PARK1 - PARK & REC DIST #1 | $5.35 | $5.34 | $0.00 | $0.00 | $10.69 | $0.00 |
| 2023 | 5224 | FP - DNR Forest Fire Protection Assmt | $8.50 | $8.50 | $0.00 | $0.00 | $17.00 | $0.00 |
| 2023 | 5224 | FPLCA - DNR Landowner Contingency Assmt | $3.00 | $3.00 | $0.00 | $0.00 | $6.00 | $0.00 |
| 2023 | 5224 | JCCD - JC Conservation District | $2.69 | $2.69 | $0.00 | $0.00 | $5.38 | $0.00 |
| 2023 | 5224 | NWA - Noxious Weed Assessment | $2.75 | $2.75 | $0.00 | $0.00 | $5.50 | $0.00 |
| 2023 | 5224 | WAT - Clean Water District | $12.00 | $12.00 | $0.00 | $0.00 | $24.00 | $0.00 |
| 2023 | 5224 | FP ADMIN - FP ADMIN | $0.50 | $0.00 | $0.00 | $0.00 | $0.50 | $0.00 |
| 2023 | 5224 | TOTAL: | $402.53 | $401.94 | $0.00 | $0.00 | $804.47 | $0.00 |
|
| 2023 | 5224 | $402.53 | $401.94 | $0.00 | $0.00 | $804.47 | $0.00 |
Values
| (+) Improvement Homesite Value: | + | $0 | |
| (+) Improvement Non-Homesite Value: | + | $0 | |
| (+) Land Homesite Value: | + | $0 | |
| (+) Land Non-Homesite Value: | + | $131,610 | |
| (+) Curr Use (HS): | + | $0 | $0 |
| (+) Curr Use (NHS): | + | $0 | $0 |
| | | -------------------------- | |
| (=) Market Value: | = | $131,610 | |
| (–) Productivity Loss: | – | $0 | |
| | | -------------------------- | |
| (=) Subtotal: | = | $131,610 | |
| (+) Senior Appraised Value: | + | $0 | |
| (+) Non-Senior Appraised Value: | + | $131,610 | |
| | | -------------------------- | |
| (=) Total Appraised Value: | = | $131,610 | |
| (–) Senior Exemption Loss: | – | $0 | |
| (–) Exemption Loss: | – | $0 | |
| | | -------------------------- | |
| (=) Taxable Value: | = | $131,610 | |
Taxing Jurisdiction
| Owner: | JODI M THOMAS | | |
| % Ownership: | 100.0000000000% | | |
| Total Value: | $131,610 | | |
| Tax Area: | 0323 - 1-48F2E2P1H2C2L1 |
| CE | COUNTY CURRENT EXPENSE | 0.9034619479 | $131,610 | $131,610 | $118.90 | | |
| CNTYDD | DEVELOPMENTAL DISABILITIES | 0.0052121823 | $131,610 | $131,610 | $0.69 | | |
| CNTYVET | VETERANS RELIEF | 0.0052777810 | $131,610 | $131,610 | $0.69 | | |
| MENTAL | MENTAL HEALTH | 0.0052121823 | $131,610 | $131,610 | $0.69 | | |
| ROADS | COUNTY ROADS | 0.7415066410 | $131,610 | $131,610 | $97.59 | | |
| ROADSCU | COUNTY ROADS TO CUR EXP | 0.0000000000 | $131,610 | $131,610 | $0.00 | | |
| HOSP2CASH | HOSP DIST #2 GENERAL | 0.0536075306 | $131,610 | $131,610 | $7.06 | | |
| SCH48MO | SCHOOL DIST #48 EP & O | 1.4120478917 | $131,610 | $131,610 | $185.84 | | |
| CEM2 | CEMETERY DIST #2 GENERAL | 0.0241266154 | $131,610 | $131,610 | $3.18 | | |
| CONSERVE | CONSERVATION FUTURES | 0.0275621078 | $131,610 | $131,610 | $3.63 | | |
| FD2 | FIRE DIST #2 GENERAL | 0.7549976873 | $131,610 | $131,610 | $99.37 | | |
| LIB1 | LIBRARY DIST #1 GENERAL | 0.2868827388 | $131,610 | $131,610 | $37.76 | | |
| PARK1 | PARK & REC DIST #1 GENERAL | 0.1474441110 | $131,610 | $131,610 | $19.41 | | |
| PORTPT | PORT OF PT GENERAL | 0.1134941229 | $131,610 | $131,610 | $14.94 | | |
| PORTPTIDD | PORT OF PT IDD 2019 | 0.2577346692 | $131,610 | $131,610 | $33.92 | | |
| PUD1 | PUD #1 GENERAL | 0.0597888892 | $131,610 | $131,610 | $7.87 | | |
| STATE | STATE SCHOOL PART 1 | 1.4940692947 | $131,610 | $131,610 | $196.63 | | |
| STATE2 | STATE SCHOOL PART 2 | 0.8050170049 | $131,610 | $131,610 | $105.95 | | |
| EMS2 | FIRE DIST #2 EMS | 0.4251727858 | $131,610 | $131,610 | $55.96 | | |
| | Total Tax Rate: | 7.5226161838 | | | | | |
| | | | | Taxes w/Current Exemptions: | $990.08 | | |
| | | | | Taxes w/o Exemptions: | $990.08 | | |
Improvement / Building
Sketch
| No sketches available for this property. |
Property Image
Land
| 1 | 2250-1375S | | 1.0000 | 43560.00 | 0.00 | 0.00 | 1.00 | $54,000 | $0 |
| 2 | 1571A | | 3.9800 | 173368.80 | 0.00 | 0.00 | 0.00 | $77,610 | $0 |
Roll Value History
| 2026 | N/A | N/A | N/A | N/A | N/A |
| 2025 | $0 | $131,610 | $0 | $131,610 | $131,610 |
| 2024 | $0 | $126,126 | $0 | $126,126 | $126,126 |
| 2023 | $0 | $104,690 | $0 | $104,690 | $104,690 |
| 2022 | $0 | $95,720 | $0 | $95,720 | $95,720 |
Deed and Sales History
| 1 | 01/08/2019 | SWD | Statutory Warranty Deed | DEANNA M RILEY | JODI M THOMAS | | | $80,000.00 | 131699 | |
| 2 | 09/22/2015 | QCD | Quit Claim Deed | THOMAS G RILEY | DEANNA M RILEY | | | | 124036 | |
| 3 | 02/07/2006 | SWD | Statutory Warranty Deed | WATSON, J PATRICK & CARLE | RILEY, THOMAS G & ANNETTE | 0 | 0 | $50,000.00 | 106054 | 0 |
| 4 | 11/16/2004 | SWD | Statutory Warranty Deed | DAY, LAYNE M/NANCY J | WATSON, J PATRICK/RENEE M | 0 | 0 | $35,000.00 | 102052 | 0 |
| 5 | 09/10/1998 | SWD | Statutory Warranty Deed | WILCOX, ROBERT S/MARY E | DAY, LAYNE M/NANCY J | 0 | 0 | $28,000.00 | 85297 | 0 |
Payout Agreement
| No payout information available.. |