Property
Account |
| Property ID: | 15604 | Abbreviated Legal Description: | GLACIER RIDGE DIVISION ONE LOT 4 W-S/EASE |
| Parcel # / Geo ID: | 601225004 | Agent Code: | |
| Type: | Real | | |
| Tax Area: | 0323 - 1-48F2E2P1H2C2L1 | Land Use Code | 11 |
| Open Space: | N | DFL | N |
| Historic Property: | N | Remodel Property: | N |
| Multi-Family Redevelopment: | N | | |
| Township: | 26N | Section: | 22 |
| Range: | 1W |
Location |
| Address: | 117 GLACIER RIDGE RD QUILCENE, WA 98376 | Mapsco: | 181/078 |
| Neighborhood: | S22 & S23 & S27 T26N R1W + KIPP S.P. & BRYANT S.P. #2 | Map ID: | |
| Neighborhood CD: | 2250 |
Owner |
| Name: | ERICH WEISS | Owner ID: | 105266 |
| Mailing Address: | PO BOX 544 SILVERDALE, WA 98383-0544 | % Ownership: | 100.0000000000% |
| | | Exemptions: | |
Pay Tax Due
Select the appropriate checkbox next to the year to be paid. Multiple years may be selected.
*Convenience Fee not included
Taxes and Assessment Details
Property Tax Information as of
03/10/2026
Click on "Statement Details" to expand or collapse a tax statement.
* Please enter a valid date ** Please enter a valid date *
Statement Details |
| 2026 | 5175 | STATE - STATE LEVY (SCHOOL) | $803.55 | $803.53 | $0.00 | $0.00 | $0.00 | $1607.08 |
| 2026 | 5175 | COUNTY - COUNTY LEVIES (CE, DD, VET, MH) | $321.26 | $321.24 | $0.00 | $0.00 | $0.00 | $642.50 |
| 2026 | 5175 | CONSERVE - CONSERVATION FUTURES | $9.64 | $9.63 | $0.00 | $0.00 | $0.00 | $19.27 |
| 2026 | 5175 | COROADS - COUNTY ROADS (ROADS, DIV TO CE) | $259.16 | $259.16 | $0.00 | $0.00 | $0.00 | $518.32 |
| 2026 | 5175 | PORTPT - PORT DISTRICT | $129.75 | $129.74 | $0.00 | $0.00 | $0.00 | $259.49 |
| 2026 | 5175 | PUD1 - PUD #1 | $20.90 | $20.89 | $0.00 | $0.00 | $0.00 | $41.79 |
| 2026 | 5175 | LIB1 - LIBRARY DIST #1 | $100.27 | $100.26 | $0.00 | $0.00 | $0.00 | $200.53 |
| 2026 | 5175 | HD2 - HOSP DIST #2 | $18.74 | $18.73 | $0.00 | $0.00 | $0.00 | $37.47 |
| 2026 | 5175 | SD48 - SCHOOL DIST #48 | $493.52 | $493.51 | $0.00 | $0.00 | $0.00 | $987.03 |
| 2026 | 5175 | FD2 - FIRE DISTRICT #2 | $263.88 | $263.87 | $0.00 | $0.00 | $0.00 | $527.75 |
| 2026 | 5175 | EMS2 - FIRE DIST #2 EMS | $148.60 | $148.60 | $0.00 | $0.00 | $0.00 | $297.20 |
| 2026 | 5175 | CEM2 - CEMETERY DIST #2 | $8.43 | $8.43 | $0.00 | $0.00 | $0.00 | $16.86 |
| 2026 | 5175 | PARK1 - PARK & REC DIST #1 | $51.53 | $51.53 | $0.00 | $0.00 | $0.00 | $103.06 |
| 2026 | 5175 | FP - DNR Forest Fire Protection Assmt | $8.50 | $8.50 | $0.00 | $0.00 | $0.00 | $17.00 |
| 2026 | 5175 | FPLCA - DNR Landowner Contingency Assmt | $3.00 | $3.00 | $0.00 | $0.00 | $0.00 | $6.00 |
| 2026 | 5175 | JCCD - JC Conservation District | $2.75 | $2.75 | $0.00 | $0.00 | $0.00 | $5.50 |
| 2026 | 5175 | NWA - Noxious Weed Assessment | $3.88 | $3.87 | $0.00 | $0.00 | $0.00 | $7.75 |
| 2026 | 5175 | OSS - On Site Septic | $23.10 | $23.10 | $0.00 | $0.00 | $0.00 | $46.20 |
| 2026 | 5175 | WAT - Clean Water District | $13.00 | $13.00 | $0.00 | $0.00 | $0.00 | $26.00 |
| 2026 | 5175 | FP ADMIN - FP ADMIN | $0.50 | $0.00 | $0.00 | $0.00 | $0.00 | $0.50 |
| 2026 | 5175 | TOTAL: | $2683.96 | $2683.34 | $0.00 | $0.00 | $0.00 | $5367.30 |
|
| 2026 | 5175 | $2683.96 | $2683.34 | $0.00 | $0.00 | $0.00 | $5367.30 |
Statement Details |
| 2025 | 5194 | STATE - STATE LEVY (SCHOOL) | $803.21 | $803.19 | $0.00 | $0.00 | $1606.40 | $0.00 |
| 2025 | 5194 | COUNTY - COUNTY LEVIES (CE, DD, VET, MH) | $315.86 | $315.84 | $0.00 | $0.00 | $631.70 | $0.00 |
| 2025 | 5194 | CONSERVE - CONSERVATION FUTURES | $9.47 | $9.47 | $0.00 | $0.00 | $18.94 | $0.00 |
| 2025 | 5194 | COROADS - COUNTY ROADS (ROADS, DIV TO CE) | $253.05 | $253.05 | $0.00 | $0.00 | $506.10 | $0.00 |
| 2025 | 5194 | PORTPT - PORT DISTRICT | $128.89 | $128.88 | $0.00 | $0.00 | $257.77 | $0.00 |
| 2025 | 5194 | PUD1 - PUD #1 | $20.67 | $20.67 | $0.00 | $0.00 | $41.34 | $0.00 |
| 2025 | 5194 | LIB1 - LIBRARY DIST #1 | $97.90 | $97.90 | $0.00 | $0.00 | $195.80 | $0.00 |
| 2025 | 5194 | HD2 - HOSP DIST #2 | $18.43 | $18.43 | $0.00 | $0.00 | $36.86 | $0.00 |
| 2025 | 5194 | SD48 - SCHOOL DIST #48 | $472.98 | $472.98 | $0.00 | $0.00 | $945.96 | $0.00 |
| 2025 | 5194 | FD2 - FIRE DISTRICT #2 | $261.15 | $261.14 | $0.00 | $0.00 | $522.29 | $0.00 |
| 2025 | 5194 | EMS2 - FIRE DIST #2 EMS | $147.05 | $147.04 | $0.00 | $0.00 | $294.09 | $0.00 |
| 2025 | 5194 | CEM2 - CEMETERY DIST #2 | $8.33 | $8.33 | $0.00 | $0.00 | $16.66 | $0.00 |
| 2025 | 5194 | PARK1 - PARK & REC DIST #1 | $38.16 | $38.15 | $0.00 | $0.00 | $76.31 | $0.00 |
| 2025 | 5194 | FP - DNR Forest Fire Protection Assmt | $8.50 | $8.50 | $0.00 | $0.00 | $17.00 | $0.00 |
| 2025 | 5194 | FPLCA - DNR Landowner Contingency Assmt | $3.00 | $3.00 | $0.00 | $0.00 | $6.00 | $0.00 |
| 2025 | 5194 | JCCD - JC Conservation District | $2.75 | $2.75 | $0.00 | $0.00 | $5.50 | $0.00 |
| 2025 | 5194 | NWA - Noxious Weed Assessment | $2.75 | $2.75 | $0.00 | $0.00 | $5.50 | $0.00 |
| 2025 | 5194 | OSS - On Site Septic | $21.50 | $21.50 | $0.00 | $0.00 | $43.00 | $0.00 |
| 2025 | 5194 | WAT - Clean Water District | $13.00 | $13.00 | $0.00 | $0.00 | $26.00 | $0.00 |
| 2025 | 5194 | FP ADMIN - FP ADMIN | $0.50 | $0.00 | $0.00 | $0.00 | $0.50 | $0.00 |
| 2025 | 5194 | TOTAL: | $2627.15 | $2626.57 | $0.00 | $0.00 | $5253.72 | $0.00 |
|
| 2025 | 5194 | $2627.15 | $2626.57 | $0.00 | $0.00 | $5253.72 | $0.00 |
Statement Details |
| 2024 | 5211 | STATE - STATE LEVY (SCHOOL) | $722.17 | $722.17 | $0.00 | $0.00 | $1444.34 | $0.00 |
| 2024 | 5211 | COUNTY - COUNTY LEVIES (CE, DD, VET, MH) | $309.04 | $309.01 | $0.00 | $0.00 | $618.05 | $0.00 |
| 2024 | 5211 | CONSERVE - CONSERVATION FUTURES | $9.27 | $9.26 | $0.00 | $0.00 | $18.53 | $0.00 |
| 2024 | 5211 | COROADS - COUNTY ROADS (ROADS, DIV TO CE) | $248.66 | $248.66 | $0.00 | $0.00 | $497.32 | $0.00 |
| 2024 | 5211 | PORTPT - PORT DISTRICT | $127.65 | $127.63 | $0.00 | $0.00 | $255.28 | $0.00 |
| 2024 | 5211 | PUD1 - PUD #1 | $20.30 | $20.30 | $0.00 | $0.00 | $40.60 | $0.00 |
| 2024 | 5211 | LIB1 - LIBRARY DIST #1 | $96.21 | $96.20 | $0.00 | $0.00 | $192.41 | $0.00 |
| 2024 | 5211 | HD2 - HOSP DIST #2 | $18.03 | $18.03 | $0.00 | $0.00 | $36.06 | $0.00 |
| 2024 | 5211 | SD48 - SCHOOL DIST #48 | $323.45 | $323.44 | $0.00 | $0.00 | $646.89 | $0.00 |
| 2024 | 5211 | FD2 - FIRE DISTRICT #2 | $256.91 | $256.90 | $0.00 | $0.00 | $513.81 | $0.00 |
| 2024 | 5211 | EMS2 - FIRE DIST #2 EMS | $144.62 | $144.62 | $0.00 | $0.00 | $289.24 | $0.00 |
| 2024 | 5211 | CEM2 - CEMETERY DIST #2 | $8.22 | $8.22 | $0.00 | $0.00 | $16.44 | $0.00 |
| 2024 | 5211 | PARK1 - PARK & REC DIST #1 | $36.09 | $36.09 | $0.00 | $0.00 | $72.18 | $0.00 |
| 2024 | 5211 | FP - DNR Forest Fire Protection Assmt | $8.50 | $8.50 | $0.00 | $0.00 | $17.00 | $0.00 |
| 2024 | 5211 | FPLCA - DNR Landowner Contingency Assmt | $3.00 | $3.00 | $0.00 | $0.00 | $6.00 | $0.00 |
| 2024 | 5211 | JCCD - JC Conservation District | $2.75 | $2.75 | $0.00 | $0.00 | $5.50 | $0.00 |
| 2024 | 5211 | NWA - Noxious Weed Assessment | $2.75 | $2.75 | $0.00 | $0.00 | $5.50 | $0.00 |
| 2024 | 5211 | OSS - On Site Septic | $21.00 | $21.00 | $0.00 | $0.00 | $42.00 | $0.00 |
| 2024 | 5211 | WAT - Clean Water District | $12.50 | $12.50 | $0.00 | $0.00 | $25.00 | $0.00 |
| 2024 | 5211 | FP ADMIN - FP ADMIN | $0.50 | $0.00 | $0.00 | $0.00 | $0.50 | $0.00 |
| 2024 | 5211 | TOTAL: | $2371.62 | $2371.03 | $0.00 | $0.00 | $4742.65 | $0.00 |
|
| 2024 | 5211 | $2371.62 | $2371.03 | $0.00 | $0.00 | $4742.65 | $0.00 |
Statement Details |
| 2023 | 5225 | STATE - STATE LEVY (SCHOOL) | $668.04 | $668.03 | $0.00 | $0.00 | $1336.07 | $0.00 |
| 2023 | 5225 | COUNTY - COUNTY LEVIES (CE, DD, VET, MH) | $291.52 | $291.49 | $0.00 | $0.00 | $583.01 | $0.00 |
| 2023 | 5225 | CONSERVE - CONSERVATION FUTURES | $8.74 | $8.74 | $0.00 | $0.00 | $17.48 | $0.00 |
| 2023 | 5225 | COROADS - COUNTY ROADS (ROADS, DIV TO CE) | $235.86 | $235.84 | $0.00 | $0.00 | $471.70 | $0.00 |
| 2023 | 5225 | PORTPT - PORT DISTRICT | $122.81 | $122.79 | $0.00 | $0.00 | $245.60 | $0.00 |
| 2023 | 5225 | PUD1 - PUD #1 | $19.33 | $19.32 | $0.00 | $0.00 | $38.65 | $0.00 |
| 2023 | 5225 | LIB1 - LIBRARY DIST #1 | $91.25 | $91.25 | $0.00 | $0.00 | $182.50 | $0.00 |
| 2023 | 5225 | HD2 - HOSP DIST #2 | $17.01 | $17.01 | $0.00 | $0.00 | $34.02 | $0.00 |
| 2023 | 5225 | SD48 - SCHOOL DIST #48 | $322.60 | $322.60 | $0.00 | $0.00 | $645.20 | $0.00 |
| 2023 | 5225 | FD2 - FIRE DISTRICT #2 | $253.04 | $253.03 | $0.00 | $0.00 | $506.07 | $0.00 |
| 2023 | 5225 | EMS2 - FIRE DIST #2 EMS | $141.89 | $141.88 | $0.00 | $0.00 | $283.77 | $0.00 |
| 2023 | 5225 | CEM2 - CEMETERY DIST #2 | $8.06 | $8.05 | $0.00 | $0.00 | $16.11 | $0.00 |
| 2023 | 5225 | PARK1 - PARK & REC DIST #1 | $31.69 | $31.69 | $0.00 | $0.00 | $63.38 | $0.00 |
| 2023 | 5225 | FP - DNR Forest Fire Protection Assmt | $8.50 | $8.50 | $0.00 | $0.00 | $17.00 | $0.00 |
| 2023 | 5225 | FPLCA - DNR Landowner Contingency Assmt | $3.00 | $3.00 | $0.00 | $0.00 | $6.00 | $0.00 |
| 2023 | 5225 | JCCD - JC Conservation District | $2.75 | $2.75 | $0.00 | $0.00 | $5.50 | $0.00 |
| 2023 | 5225 | NWA - Noxious Weed Assessment | $2.75 | $2.75 | $0.00 | $0.00 | $5.50 | $0.00 |
| 2023 | 5225 | OSS - On Site Septic | $20.50 | $20.50 | $0.00 | $0.00 | $41.00 | $0.00 |
| 2023 | 5225 | WAT - Clean Water District | $12.00 | $12.00 | $0.00 | $0.00 | $24.00 | $0.00 |
| 2023 | 5225 | FP ADMIN - FP ADMIN | $0.50 | $0.00 | $0.00 | $0.00 | $0.50 | $0.00 |
| 2023 | 5225 | TOTAL: | $2261.84 | $2261.22 | $0.00 | $0.00 | $4523.06 | $0.00 |
|
| 2023 | 5225 | $2261.84 | $2261.22 | $0.00 | $0.00 | $4523.06 | $0.00 |
Values
| (+) Improvement Homesite Value: | + | $0 | |
| (+) Improvement Non-Homesite Value: | + | $585,200 | |
| (+) Land Homesite Value: | + | $0 | |
| (+) Land Non-Homesite Value: | + | $113,808 | |
| (+) Curr Use (HS): | + | $0 | $0 |
| (+) Curr Use (NHS): | + | $0 | $0 |
| | | -------------------------- | |
| (=) Market Value: | = | $699,008 | |
| (–) Productivity Loss: | – | $0 | |
| | | -------------------------- | |
| (=) Subtotal: | = | $699,008 | |
| (+) Senior Appraised Value: | + | $0 | |
| (+) Non-Senior Appraised Value: | + | $699,008 | |
| | | -------------------------- | |
| (=) Total Appraised Value: | = | $699,008 | |
| (–) Senior Exemption Loss: | – | $0 | |
| (–) Exemption Loss: | – | $0 | |
| | | -------------------------- | |
| (=) Taxable Value: | = | $699,008 | |
Taxing Jurisdiction
| Owner: | ERICH WEISS | | |
| % Ownership: | 100.0000000000% | | |
| Total Value: | $699,008 | | |
| Tax Area: | 0323 - 1-48F2E2P1H2C2L1 |
| CE | COUNTY CURRENT EXPENSE | 0.9034619479 | $699,008 | $699,008 | $631.53 | | |
| CNTYDD | DEVELOPMENTAL DISABILITIES | 0.0052121823 | $699,008 | $699,008 | $3.64 | | |
| CNTYVET | VETERANS RELIEF | 0.0052777810 | $699,008 | $699,008 | $3.69 | | |
| MENTAL | MENTAL HEALTH | 0.0052121823 | $699,008 | $699,008 | $3.64 | | |
| ROADS | COUNTY ROADS | 0.7415066410 | $699,008 | $699,008 | $518.32 | | |
| ROADSCU | COUNTY ROADS TO CUR EXP | 0.0000000000 | $699,008 | $699,008 | $0.00 | | |
| HOSP2CASH | HOSP DIST #2 GENERAL | 0.0536075306 | $699,008 | $699,008 | $37.47 | | |
| SCH48MO | SCHOOL DIST #48 EP & O | 1.4120478917 | $699,008 | $699,008 | $987.03 | | |
| CEM2 | CEMETERY DIST #2 GENERAL | 0.0241266154 | $699,008 | $699,008 | $16.86 | | |
| CONSERVE | CONSERVATION FUTURES | 0.0275621078 | $699,008 | $699,008 | $19.27 | | |
| FD2 | FIRE DIST #2 GENERAL | 0.7549976873 | $699,008 | $699,008 | $527.75 | | |
| LIB1 | LIBRARY DIST #1 GENERAL | 0.2868827388 | $699,008 | $699,008 | $200.53 | | |
| PARK1 | PARK & REC DIST #1 GENERAL | 0.1474441110 | $699,008 | $699,008 | $103.06 | | |
| PORTPT | PORT OF PT GENERAL | 0.1134941229 | $699,008 | $699,008 | $79.33 | | |
| PORTPTIDD | PORT OF PT IDD 2019 | 0.2577346692 | $699,008 | $699,008 | $180.16 | | |
| PUD1 | PUD #1 GENERAL | 0.0597888892 | $699,008 | $699,008 | $41.79 | | |
| STATE | STATE SCHOOL PART 1 | 1.4940692947 | $699,008 | $699,008 | $1,044.37 | | |
| STATE2 | STATE SCHOOL PART 2 | 0.8050170049 | $699,008 | $699,008 | $562.71 | | |
| EMS2 | FIRE DIST #2 EMS | 0.4251727858 | $699,008 | $699,008 | $297.20 | | |
| | Total Tax Rate: | 7.5226161838 | | | | | |
| | | | | Taxes w/Current Exemptions: | $5,258.35 | | |
| | | | | Taxes w/o Exemptions: | $5,258.35 | | |
Improvement / Building
| Improvement #1: | Residential Bldg | State Code: | 11 | 2137.0 sqft | Value: | $585,200 |
| Bathrooms (#): | 3 (FULL) | Bedrooms (#): | 2 | | Exterior Wall: | SI/ST | Floor Construction: | FRAME | | Foundation: | CONPR | Heating/Cooling: | HPUMP | | Roof Cover: | COMP |   |   |
|
| | Type | Description | Class CD | Sub Class CD | Year Built | Area |
| | MA | Main Area | 5- | 2S | 2007 | 781.0 |
| | MA2 | Second Floor Main Area | 5- | 2S | 2007 | 1356.0 |
| | HCPOR | House Concrete Porch | 4 | * | 2007 | 32.0 |
| | HDECK | House Deck | 4 | * | 2007 | 572.0 |
| | GBLTIN | Builtin Garage | 4 | 2S | 2007 | 621.0 |
| | CONCD | Concrete Drive | 4 | * | 2007 | 432.0 |
| | SHED | Shed (Table Not Dep) | 6 | * | 2007 | 192.0 |
| | OTHER | Other | 5 | * | 2007 | 0.0 |
Sketch
Property Image
Land
| 1 | 2250-1375S | | 1.0000 | 43560.00 | 0.00 | 0.00 | 1.00 | $75,600 | $0 |
| 2 | 1575A | | 3.9800 | 173368.80 | 0.00 | 0.00 | 0.00 | $38,208 | $0 |
Roll Value History
| 2026 | N/A | N/A | N/A | N/A | N/A |
| 2025 | $585,200 | $113,808 | $0 | $699,008 | $699,008 |
| 2024 | $560,817 | $109,066 | $0 | $669,883 | $669,883 |
| 2023 | $536,434 | $87,850 | $0 | $624,284 | $624,284 |
| 2022 | $487,667 | $79,865 | $0 | $567,532 | $567,532 |
Deed and Sales History
| 1 | 07/30/2021 | SWD | Statutory Warranty Deed | LARRY D DUNBAR | ERICH WEISS | | | $638,000.00 | 137334 | |
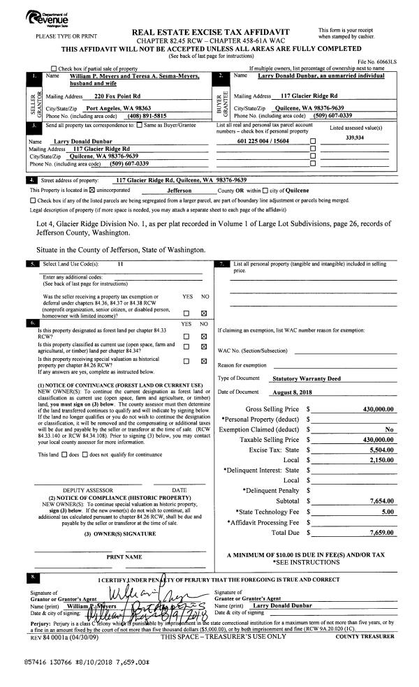
| 2 | 08/08/2018 | SWD | Statutory Warranty Deed | WILLIAM P & TERESA A SESMA MEYERS | LARRY D DUNBAR | | | $430,000.00 | 130766 | |
| 3 | 11/13/2015 | SWD | Statutory Warranty Deed | DEANNA M RILEY | WILLIAM P & TERESA A SESMA MEYERS | | | $340,000.00 | 124444 | |
| 4 | 11/21/2003 | SWD | Statutory Warranty Deed | STEUBER, WILLIAM E/EVELYN | RILEY, DEANNA M | 0 | 0 | $30,950.00 | 98921 | 0 |
| 5 | 01/17/1992 | SWD | Statutory Warranty Deed | BARNSDALE, WILLIAM J JR/E | STEUBER, WILLIAM E/EVELYN L | 0 | 0 | $33,000.00 | 67599 | 0 |
Payout Agreement
| No payout information available.. |