Property
Account |
| Property ID: | 15609 | Abbreviated Legal Description: | MOUNT WALKER VIEW TR LARGE LOT LOT 1 SUBJ/EASE |
| Parcel # / Geo ID: | 601225009 | Agent Code: | |
| Type: | Real | | |
| Tax Area: | 0323 - 1-48F2E2P1H2C2L1 | Land Use Code | 91 |
| Open Space: | N | DFL | N |
| Historic Property: | N | Remodel Property: | N |
| Multi-Family Redevelopment: | N | | |
| Township: | 26N | Section: | 22 |
| Range: | 1W |
Location |
| Address: | | Mapsco: | 182/015 |
| Neighborhood: | S22 & S23 & S27 T26N R1W + KIPP S.P. & BRYANT S.P. #2 | Map ID: | |
| Neighborhood CD: | 2250 |
Owner |
| Name: | PAUL & MICHELE SORENSEN FAMILY TRUST | Owner ID: | 107347 |
| Mailing Address: | PAUL C SORENSEN TRUSTEE F MICHELE SORENSEN TRUSTEE 74 MT WALKER VIEW DR QUILCENE, WA 98376-8610 | % Ownership: | 100.0000000000% |
| | | Exemptions: | |
Pay Tax Due
Select the appropriate checkbox next to the year to be paid. Multiple years may be selected.
*Convenience Fee not included
Taxes and Assessment Details
Property Tax Information as of
03/11/2026
Click on "Statement Details" to expand or collapse a tax statement.
* Please enter a valid date ** Please enter a valid date *
Statement Details |
| 2026 | 5180 | STATE - STATE LEVY (SCHOOL) | $135.11 | $135.09 | $0.00 | $0.00 | $0.00 | $270.20 |
| 2026 | 5180 | COUNTY - COUNTY LEVIES (CE, DD, VET, MH) | $54.02 | $54.00 | $0.00 | $0.00 | $0.00 | $108.02 |
| 2026 | 5180 | CONSERVE - CONSERVATION FUTURES | $1.62 | $1.62 | $0.00 | $0.00 | $0.00 | $3.24 |
| 2026 | 5180 | COROADS - COUNTY ROADS (ROADS, DIV TO CE) | $43.58 | $43.57 | $0.00 | $0.00 | $0.00 | $87.15 |
| 2026 | 5180 | PORTPT - PORT DISTRICT | $21.82 | $21.81 | $0.00 | $0.00 | $0.00 | $43.63 |
| 2026 | 5180 | PUD1 - PUD #1 | $3.52 | $3.51 | $0.00 | $0.00 | $0.00 | $7.03 |
| 2026 | 5180 | LIB1 - LIBRARY DIST #1 | $16.86 | $16.86 | $0.00 | $0.00 | $0.00 | $33.72 |
| 2026 | 5180 | HD2 - HOSP DIST #2 | $3.15 | $3.15 | $0.00 | $0.00 | $0.00 | $6.30 |
| 2026 | 5180 | SD48 - SCHOOL DIST #48 | $82.98 | $82.97 | $0.00 | $0.00 | $0.00 | $165.95 |
| 2026 | 5180 | FD2 - FIRE DISTRICT #2 | $44.37 | $44.36 | $0.00 | $0.00 | $0.00 | $88.73 |
| 2026 | 5180 | EMS2 - FIRE DIST #2 EMS | $24.99 | $24.98 | $0.00 | $0.00 | $0.00 | $49.97 |
| 2026 | 5180 | CEM2 - CEMETERY DIST #2 | $1.42 | $1.42 | $0.00 | $0.00 | $0.00 | $2.84 |
| 2026 | 5180 | PARK1 - PARK & REC DIST #1 | $8.67 | $8.66 | $0.00 | $0.00 | $0.00 | $17.33 |
| 2026 | 5180 | FP - DNR Forest Fire Protection Assmt | $8.50 | $8.50 | $0.00 | $0.00 | $0.00 | $17.00 |
| 2026 | 5180 | FPLCA - DNR Landowner Contingency Assmt | $3.00 | $3.00 | $0.00 | $0.00 | $0.00 | $6.00 |
| 2026 | 5180 | JCCD - JC Conservation District | $2.69 | $2.69 | $0.00 | $0.00 | $0.00 | $5.38 |
| 2026 | 5180 | NWA - Noxious Weed Assessment | $3.88 | $3.87 | $0.00 | $0.00 | $0.00 | $7.75 |
| 2026 | 5180 | WAT - Clean Water District | $13.00 | $13.00 | $0.00 | $0.00 | $0.00 | $26.00 |
| 2026 | 5180 | FP ADMIN - FP ADMIN | $0.50 | $0.00 | $0.00 | $0.00 | $0.00 | $0.50 |
| 2026 | 5180 | TOTAL: | $473.68 | $473.06 | $0.00 | $0.00 | $0.00 | $946.74 |
|
| 2026 | 5180 | $473.68 | $473.06 | $0.00 | $0.00 | $0.00 | $946.74 |
Statement Details |
| 2025 | 5199 | STATE - STATE LEVY (SCHOOL) | $135.05 | $135.04 | $0.00 | $0.00 | $270.09 | $0.00 |
| 2025 | 5199 | COUNTY - COUNTY LEVIES (CE, DD, VET, MH) | $53.11 | $53.10 | $0.00 | $0.00 | $106.21 | $0.00 |
| 2025 | 5199 | CONSERVE - CONSERVATION FUTURES | $1.59 | $1.59 | $0.00 | $0.00 | $3.18 | $0.00 |
| 2025 | 5199 | COROADS - COUNTY ROADS (ROADS, DIV TO CE) | $42.55 | $42.54 | $0.00 | $0.00 | $85.09 | $0.00 |
| 2025 | 5199 | PORTPT - PORT DISTRICT | $21.68 | $21.66 | $0.00 | $0.00 | $43.34 | $0.00 |
| 2025 | 5199 | PUD1 - PUD #1 | $3.48 | $3.47 | $0.00 | $0.00 | $6.95 | $0.00 |
| 2025 | 5199 | LIB1 - LIBRARY DIST #1 | $16.46 | $16.46 | $0.00 | $0.00 | $32.92 | $0.00 |
| 2025 | 5199 | HD2 - HOSP DIST #2 | $3.10 | $3.10 | $0.00 | $0.00 | $6.20 | $0.00 |
| 2025 | 5199 | SD48 - SCHOOL DIST #48 | $79.53 | $79.52 | $0.00 | $0.00 | $159.05 | $0.00 |
| 2025 | 5199 | FD2 - FIRE DISTRICT #2 | $43.91 | $43.90 | $0.00 | $0.00 | $87.81 | $0.00 |
| 2025 | 5199 | EMS2 - FIRE DIST #2 EMS | $24.73 | $24.72 | $0.00 | $0.00 | $49.45 | $0.00 |
| 2025 | 5199 | CEM2 - CEMETERY DIST #2 | $1.40 | $1.40 | $0.00 | $0.00 | $2.80 | $0.00 |
| 2025 | 5199 | PARK1 - PARK & REC DIST #1 | $6.42 | $6.41 | $0.00 | $0.00 | $12.83 | $0.00 |
| 2025 | 5199 | FP - DNR Forest Fire Protection Assmt | $8.50 | $8.50 | $0.00 | $0.00 | $17.00 | $0.00 |
| 2025 | 5199 | FPLCA - DNR Landowner Contingency Assmt | $3.00 | $3.00 | $0.00 | $0.00 | $6.00 | $0.00 |
| 2025 | 5199 | JCCD - JC Conservation District | $2.69 | $2.69 | $0.00 | $0.00 | $5.38 | $0.00 |
| 2025 | 5199 | NWA - Noxious Weed Assessment | $2.75 | $2.75 | $0.00 | $0.00 | $5.50 | $0.00 |
| 2025 | 5199 | WAT - Clean Water District | $13.00 | $13.00 | $0.00 | $0.00 | $26.00 | $0.00 |
| 2025 | 5199 | FP ADMIN - FP ADMIN | $0.50 | $0.00 | $0.00 | $0.00 | $0.50 | $0.00 |
| 2025 | 5199 | TOTAL: | $463.45 | $462.85 | $0.00 | $0.00 | $926.30 | $0.00 |
|
| 2025 | 5199 | $463.45 | $462.85 | $0.00 | $0.00 | $926.30 | $0.00 |
Statement Details |
| 2024 | 5216 | STATE - STATE LEVY (SCHOOL) | $109.96 | $109.95 | $0.00 | $0.00 | $219.91 | $0.00 |
| 2024 | 5216 | COUNTY - COUNTY LEVIES (CE, DD, VET, MH) | $47.06 | $47.04 | $0.00 | $0.00 | $94.10 | $0.00 |
| 2024 | 5216 | CONSERVE - CONSERVATION FUTURES | $1.41 | $1.41 | $0.00 | $0.00 | $2.82 | $0.00 |
| 2024 | 5216 | COROADS - COUNTY ROADS (ROADS, DIV TO CE) | $37.87 | $37.85 | $0.00 | $0.00 | $75.72 | $0.00 |
| 2024 | 5216 | PORTPT - PORT DISTRICT | $19.44 | $19.43 | $0.00 | $0.00 | $38.87 | $0.00 |
| 2024 | 5216 | PUD1 - PUD #1 | $3.09 | $3.09 | $0.00 | $0.00 | $6.18 | $0.00 |
| 2024 | 5216 | LIB1 - LIBRARY DIST #1 | $14.65 | $14.65 | $0.00 | $0.00 | $29.30 | $0.00 |
| 2024 | 5216 | HD2 - HOSP DIST #2 | $2.75 | $2.74 | $0.00 | $0.00 | $5.49 | $0.00 |
| 2024 | 5216 | SD48 - SCHOOL DIST #48 | $49.25 | $49.24 | $0.00 | $0.00 | $98.49 | $0.00 |
| 2024 | 5216 | FD2 - FIRE DISTRICT #2 | $39.12 | $39.11 | $0.00 | $0.00 | $78.23 | $0.00 |
| 2024 | 5216 | EMS2 - FIRE DIST #2 EMS | $22.02 | $22.02 | $0.00 | $0.00 | $44.04 | $0.00 |
| 2024 | 5216 | CEM2 - CEMETERY DIST #2 | $1.25 | $1.25 | $0.00 | $0.00 | $2.50 | $0.00 |
| 2024 | 5216 | PARK1 - PARK & REC DIST #1 | $5.50 | $5.49 | $0.00 | $0.00 | $10.99 | $0.00 |
| 2024 | 5216 | FP - DNR Forest Fire Protection Assmt | $8.50 | $8.50 | $0.00 | $0.00 | $17.00 | $0.00 |
| 2024 | 5216 | FPLCA - DNR Landowner Contingency Assmt | $3.00 | $3.00 | $0.00 | $0.00 | $6.00 | $0.00 |
| 2024 | 5216 | JCCD - JC Conservation District | $2.69 | $2.69 | $0.00 | $0.00 | $5.38 | $0.00 |
| 2024 | 5216 | NWA - Noxious Weed Assessment | $2.75 | $2.75 | $0.00 | $0.00 | $5.50 | $0.00 |
| 2024 | 5216 | WAT - Clean Water District | $12.50 | $12.50 | $0.00 | $0.00 | $25.00 | $0.00 |
| 2024 | 5216 | FP ADMIN - FP ADMIN | $0.50 | $0.00 | $0.00 | $0.00 | $0.50 | $0.00 |
| 2024 | 5216 | TOTAL: | $383.31 | $382.71 | $0.00 | $0.00 | $766.02 | $0.00 |
|
| 2024 | 5216 | $383.31 | $382.71 | $0.00 | $0.00 | $766.02 | $0.00 |
Statement Details |
| 2023 | 5230 | STATE - STATE LEVY (SCHOOL) | $98.29 | $98.28 | $0.00 | $0.00 | $196.57 | $0.00 |
| 2023 | 5230 | COUNTY - COUNTY LEVIES (CE, DD, VET, MH) | $42.91 | $42.87 | $0.00 | $0.00 | $85.78 | $0.00 |
| 2023 | 5230 | CONSERVE - CONSERVATION FUTURES | $1.29 | $1.28 | $0.00 | $0.00 | $2.57 | $0.00 |
| 2023 | 5230 | COROADS - COUNTY ROADS (ROADS, DIV TO CE) | $34.71 | $34.69 | $0.00 | $0.00 | $69.40 | $0.00 |
| 2023 | 5230 | PORTPT - PORT DISTRICT | $18.07 | $18.06 | $0.00 | $0.00 | $36.13 | $0.00 |
| 2023 | 5230 | PUD1 - PUD #1 | $2.85 | $2.84 | $0.00 | $0.00 | $5.69 | $0.00 |
| 2023 | 5230 | LIB1 - LIBRARY DIST #1 | $13.43 | $13.42 | $0.00 | $0.00 | $26.85 | $0.00 |
| 2023 | 5230 | HD2 - HOSP DIST #2 | $2.50 | $2.50 | $0.00 | $0.00 | $5.00 | $0.00 |
| 2023 | 5230 | SD48 - SCHOOL DIST #48 | $47.47 | $47.46 | $0.00 | $0.00 | $94.93 | $0.00 |
| 2023 | 5230 | FD2 - FIRE DISTRICT #2 | $37.23 | $37.23 | $0.00 | $0.00 | $74.46 | $0.00 |
| 2023 | 5230 | EMS2 - FIRE DIST #2 EMS | $20.88 | $20.87 | $0.00 | $0.00 | $41.75 | $0.00 |
| 2023 | 5230 | CEM2 - CEMETERY DIST #2 | $1.19 | $1.18 | $0.00 | $0.00 | $2.37 | $0.00 |
| 2023 | 5230 | PARK1 - PARK & REC DIST #1 | $4.67 | $4.66 | $0.00 | $0.00 | $9.33 | $0.00 |
| 2023 | 5230 | FP - DNR Forest Fire Protection Assmt | $8.50 | $8.50 | $0.00 | $0.00 | $17.00 | $0.00 |
| 2023 | 5230 | FPLCA - DNR Landowner Contingency Assmt | $3.00 | $3.00 | $0.00 | $0.00 | $6.00 | $0.00 |
| 2023 | 5230 | JCCD - JC Conservation District | $2.69 | $2.69 | $0.00 | $0.00 | $5.38 | $0.00 |
| 2023 | 5230 | NWA - Noxious Weed Assessment | $2.75 | $2.75 | $0.00 | $0.00 | $5.50 | $0.00 |
| 2023 | 5230 | WAT - Clean Water District | $12.00 | $12.00 | $0.00 | $0.00 | $24.00 | $0.00 |
| 2023 | 5230 | FP ADMIN - FP ADMIN | $0.50 | $0.00 | $0.00 | $0.00 | $0.50 | $0.00 |
| 2023 | 5230 | TOTAL: | $354.93 | $354.28 | $0.00 | $0.00 | $709.21 | $0.00 |
|
| 2023 | 5230 | $354.93 | $354.28 | $0.00 | $0.00 | $709.21 | $0.00 |
Values
| (+) Improvement Homesite Value: | + | $0 | |
| (+) Improvement Non-Homesite Value: | + | $0 | |
| (+) Land Homesite Value: | + | $0 | |
| (+) Land Non-Homesite Value: | + | $117,526 | |
| (+) Curr Use (HS): | + | $0 | $0 |
| (+) Curr Use (NHS): | + | $0 | $0 |
| | | -------------------------- | |
| (=) Market Value: | = | $117,526 | |
| (–) Productivity Loss: | – | $0 | |
| | | -------------------------- | |
| (=) Subtotal: | = | $117,526 | |
| (+) Senior Appraised Value: | + | $0 | |
| (+) Non-Senior Appraised Value: | + | $117,526 | |
| | | -------------------------- | |
| (=) Total Appraised Value: | = | $117,526 | |
| (–) Senior Exemption Loss: | – | $0 | |
| (–) Exemption Loss: | – | $0 | |
| | | -------------------------- | |
| (=) Taxable Value: | = | $117,526 | |
Taxing Jurisdiction
| Owner: | PAUL & MICHELE SORENSEN FAMILY TRUST | | |
| % Ownership: | 100.0000000000% | | |
| Total Value: | $117,526 | | |
| Tax Area: | 0323 - 1-48F2E2P1H2C2L1 |
| CE | COUNTY CURRENT EXPENSE | 0.9034619479 | $117,526 | $117,526 | $106.18 | | |
| CNTYDD | DEVELOPMENTAL DISABILITIES | 0.0052121823 | $117,526 | $117,526 | $0.61 | | |
| CNTYVET | VETERANS RELIEF | 0.0052777810 | $117,526 | $117,526 | $0.62 | | |
| MENTAL | MENTAL HEALTH | 0.0052121823 | $117,526 | $117,526 | $0.61 | | |
| ROADS | COUNTY ROADS | 0.7415066410 | $117,526 | $117,526 | $87.15 | | |
| ROADSCU | COUNTY ROADS TO CUR EXP | 0.0000000000 | $117,526 | $117,526 | $0.00 | | |
| HOSP2CASH | HOSP DIST #2 GENERAL | 0.0536075306 | $117,526 | $117,526 | $6.30 | | |
| SCH48MO | SCHOOL DIST #48 EP & O | 1.4120478917 | $117,526 | $117,526 | $165.95 | | |
| CEM2 | CEMETERY DIST #2 GENERAL | 0.0241266154 | $117,526 | $117,526 | $2.84 | | |
| CONSERVE | CONSERVATION FUTURES | 0.0275621078 | $117,526 | $117,526 | $3.24 | | |
| FD2 | FIRE DIST #2 GENERAL | 0.7549976873 | $117,526 | $117,526 | $88.73 | | |
| LIB1 | LIBRARY DIST #1 GENERAL | 0.2868827388 | $117,526 | $117,526 | $33.72 | | |
| PARK1 | PARK & REC DIST #1 GENERAL | 0.1474441110 | $117,526 | $117,526 | $17.33 | | |
| PORTPT | PORT OF PT GENERAL | 0.1134941229 | $117,526 | $117,526 | $13.34 | | |
| PORTPTIDD | PORT OF PT IDD 2019 | 0.2577346692 | $117,526 | $117,526 | $30.29 | | |
| PUD1 | PUD #1 GENERAL | 0.0597888892 | $117,526 | $117,526 | $7.03 | | |
| STATE | STATE SCHOOL PART 1 | 1.4940692947 | $117,526 | $117,526 | $175.59 | | |
| STATE2 | STATE SCHOOL PART 2 | 0.8050170049 | $117,526 | $117,526 | $94.61 | | |
| EMS2 | FIRE DIST #2 EMS | 0.4251727858 | $117,526 | $117,526 | $49.97 | | |
| | Total Tax Rate: | 7.5226161838 | | | | | |
| | | | | Taxes w/Current Exemptions: | $884.11 | | |
| | | | | Taxes w/o Exemptions: | $884.11 | | |
Improvement / Building
Sketch
| No sketches available for this property. |
Property Image
Land
| 1 | 1572A | | 3.8500 | 167706.00 | 0.00 | 0.00 | 0.00 | $63,526 | $0 |
| 2 | 2250-1355S | | 1.0000 | 43560.00 | 0.00 | 0.00 | 1.00 | $54,000 | $0 |
Roll Value History
| 2026 | N/A | N/A | N/A | N/A | N/A |
| 2025 | $0 | $117,526 | $0 | $117,526 | $117,526 |
| 2024 | $0 | $112,629 | $0 | $112,629 | $112,629 |
| 2023 | $0 | $95,050 | $0 | $95,050 | $95,050 |
| 2022 | $0 | $83,500 | $0 | $83,500 | $83,500 |
Deed and Sales History
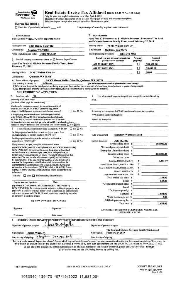
| 1 | 07/11/2022 | SWD | Statutory Warranty Deed | JAMES M WIGGS JR | PAUL & MICHELE SORENSEN FAMILY TRUST | | | $105,000.00 | 139473 | |
|   | |
| 2 | 04/23/2018 | SWD | Statutory Warranty Deed | | | | | | 130240 | |
| 3 | 04/23/2018 | SWD | Statutory Warranty Deed | JACK IACOLUCCI | JAMES M WIGGS JR | | | $59,000.00 | 130017 | |
|   | |
| 4 | 10/26/2005 | SWD | Statutory Warranty Deed | ROSE JR, LOREN DON | IACOLUCCI, JACK | 0 | 0 | $0.00 | 105716 | 0 |
| 5 | 10/26/2005 | SWD | Statutory Warranty Deed | ROSE, LOREN DON JR | IACOLUCCI, JACK | 0 | 0 | $0.00 | 105609 | 0 |
| 6 | 03/28/1994 | REC | Real Estate Contract | MOUNTJOY, GORDON/ET AL | ROSE, LOREN DON/JR & LORA LEE | 0 | 0 | $45,000.00 | 73834 | 0 |
Payout Agreement
| No payout information available.. |