Property
Account |
| Property ID: | 15723 | Abbreviated Legal Description: | S28 T26 R1W TAX 24 WITH & SUBJ TO EASE |
| Parcel # / Geo ID: | 601284021 | Agent Code: | |
| Type: | Real | | |
| Tax Area: | 0323 - 1-48F2E2P1H2C2L1 | Land Use Code | 91 |
| Open Space: | N | DFL | N |
| Historic Property: | N | Remodel Property: | N |
| Multi-Family Redevelopment: | N | | |
| Township: | 26N | Section: | 28 |
| Range: | 1W |
Location |
| Address: | | Mapsco: | 123/037 |
| Neighborhood: | S21 & S28 T26N R1W + BRYANT S.P. #1 | Map ID: | |
| Neighborhood CD: | 2240 |
Owner |
| Name: | DUSTINE & ANDREW KIMMEL | Owner ID: | 111459 |
| Mailing Address: | 1984 SW ZIMMERMAN LN PORT ORCHARD, WA 98367-4857 | % Ownership: | 100.0000000000% |
| | | Exemptions: | |
Pay Tax Due
Select the appropriate checkbox next to the year to be paid. Multiple years may be selected.
*Convenience Fee not included
Taxes and Assessment Details
Property Tax Information as of
03/13/2026
Click on "Statement Details" to expand or collapse a tax statement.
* Please enter a valid date ** Please enter a valid date *
Statement Details |
| 2026 | 5293 | STATE - STATE LEVY (SCHOOL) | $29.75 | $29.74 | $0.00 | $0.00 | $0.00 | $59.49 |
| 2026 | 5293 | COUNTY - COUNTY LEVIES (CE, DD, VET, MH) | $11.90 | $11.88 | $0.00 | $0.00 | $0.00 | $23.78 |
| 2026 | 5293 | CONSERVE - CONSERVATION FUTURES | $0.36 | $0.35 | $0.00 | $0.00 | $0.00 | $0.71 |
| 2026 | 5293 | COROADS - COUNTY ROADS (ROADS, DIV TO CE) | $9.60 | $9.59 | $0.00 | $0.00 | $0.00 | $19.19 |
| 2026 | 5293 | PORTPT - PORT DISTRICT | $4.81 | $4.80 | $0.00 | $0.00 | $0.00 | $9.61 |
| 2026 | 5293 | PUD1 - PUD #1 | $0.78 | $0.77 | $0.00 | $0.00 | $0.00 | $1.55 |
| 2026 | 5293 | LIB1 - LIBRARY DIST #1 | $3.71 | $3.71 | $0.00 | $0.00 | $0.00 | $7.42 |
| 2026 | 5293 | HD2 - HOSP DIST #2 | $0.70 | $0.69 | $0.00 | $0.00 | $0.00 | $1.39 |
| 2026 | 5293 | SD48 - SCHOOL DIST #48 | $18.27 | $18.27 | $0.00 | $0.00 | $0.00 | $36.54 |
| 2026 | 5293 | FD2 - FIRE DISTRICT #2 | $9.77 | $9.77 | $0.00 | $0.00 | $0.00 | $19.54 |
| 2026 | 5293 | EMS2 - FIRE DIST #2 EMS | $5.50 | $5.50 | $0.00 | $0.00 | $0.00 | $11.00 |
| 2026 | 5293 | CEM2 - CEMETERY DIST #2 | $0.31 | $0.31 | $0.00 | $0.00 | $0.00 | $0.62 |
| 2026 | 5293 | PARK1 - PARK & REC DIST #1 | $1.91 | $1.91 | $0.00 | $0.00 | $0.00 | $3.82 |
| 2026 | 5293 | FPLCA - DNR Landowner Contingency Assmt | $3.00 | $3.00 | $0.00 | $0.00 | $0.00 | $6.00 |
| 2026 | 5293 | JCCD - JC Conservation District | $2.53 | $2.53 | $0.00 | $0.00 | $0.00 | $5.06 |
| 2026 | 5293 | NWA - Noxious Weed Assessment | $2.98 | $2.97 | $0.00 | $0.00 | $0.00 | $5.95 |
| 2026 | 5293 | WAT - Clean Water District | $13.00 | $13.00 | $0.00 | $0.00 | $0.00 | $26.00 |
| 2026 | 5293 | TOTAL: | $118.88 | $118.79 | $0.00 | $0.00 | $0.00 | $237.67 |
|
| 2026 | 5293 | $118.88 | $118.79 | $0.00 | $0.00 | $0.00 | $237.67 |
Statement Details |
| 2025 | 5312 | STATE - STATE LEVY (SCHOOL) | $31.03 | $31.02 | $0.00 | $0.00 | $62.05 | $0.00 |
| 2025 | 5312 | COUNTY - COUNTY LEVIES (CE, DD, VET, MH) | $12.20 | $12.20 | $0.00 | $0.00 | $24.40 | $0.00 |
| 2025 | 5312 | CONSERVE - CONSERVATION FUTURES | $0.37 | $0.36 | $0.00 | $0.00 | $0.73 | $0.00 |
| 2025 | 5312 | COROADS - COUNTY ROADS (ROADS, DIV TO CE) | $9.78 | $9.77 | $0.00 | $0.00 | $19.55 | $0.00 |
| 2025 | 5312 | PORTPT - PORT DISTRICT | $4.98 | $4.97 | $0.00 | $0.00 | $9.95 | $0.00 |
| 2025 | 5312 | PUD1 - PUD #1 | $0.80 | $0.80 | $0.00 | $0.00 | $1.60 | $0.00 |
| 2025 | 5312 | LIB1 - LIBRARY DIST #1 | $3.78 | $3.78 | $0.00 | $0.00 | $7.56 | $0.00 |
| 2025 | 5312 | HD2 - HOSP DIST #2 | $0.71 | $0.71 | $0.00 | $0.00 | $1.42 | $0.00 |
| 2025 | 5312 | SD48 - SCHOOL DIST #48 | $18.27 | $18.27 | $0.00 | $0.00 | $36.54 | $0.00 |
| 2025 | 5312 | FD2 - FIRE DISTRICT #2 | $10.09 | $10.08 | $0.00 | $0.00 | $20.17 | $0.00 |
| 2025 | 5312 | EMS2 - FIRE DIST #2 EMS | $5.68 | $5.68 | $0.00 | $0.00 | $11.36 | $0.00 |
| 2025 | 5312 | CEM2 - CEMETERY DIST #2 | $0.32 | $0.32 | $0.00 | $0.00 | $0.64 | $0.00 |
| 2025 | 5312 | PARK1 - PARK & REC DIST #1 | $1.48 | $1.47 | $0.00 | $0.00 | $2.95 | $0.00 |
| 2025 | 5312 | FPLCA - DNR Landowner Contingency Assmt | $3.00 | $3.00 | $0.00 | $0.00 | $6.00 | $0.00 |
| 2025 | 5312 | JCCD - JC Conservation District | $2.53 | $2.53 | $0.00 | $0.00 | $5.06 | $0.00 |
| 2025 | 5312 | NWA - Noxious Weed Assessment | $2.15 | $2.15 | $0.00 | $0.00 | $4.30 | $0.00 |
| 2025 | 5312 | WAT - Clean Water District | $13.00 | $13.00 | $0.00 | $0.00 | $26.00 | $0.00 |
| 2025 | 5312 | TOTAL: | $120.17 | $120.11 | $0.00 | $0.00 | $240.28 | $0.00 |
|
| 2025 | 5312 | $120.17 | $120.11 | $0.00 | $0.00 | $240.28 | $0.00 |
Statement Details |
| 2024 | 5329 | STATE - STATE LEVY (SCHOOL) | $28.64 | $28.62 | $0.00 | $0.00 | $57.26 | $0.00 |
| 2024 | 5329 | COUNTY - COUNTY LEVIES (CE, DD, VET, MH) | $12.26 | $12.25 | $0.00 | $0.00 | $24.51 | $0.00 |
| 2024 | 5329 | CONSERVE - CONSERVATION FUTURES | $0.37 | $0.36 | $0.00 | $0.00 | $0.73 | $0.00 |
| 2024 | 5329 | COROADS - COUNTY ROADS (ROADS, DIV TO CE) | $9.86 | $9.85 | $0.00 | $0.00 | $19.71 | $0.00 |
| 2024 | 5329 | PORTPT - PORT DISTRICT | $5.07 | $5.06 | $0.00 | $0.00 | $10.13 | $0.00 |
| 2024 | 5329 | PUD1 - PUD #1 | $0.81 | $0.80 | $0.00 | $0.00 | $1.61 | $0.00 |
| 2024 | 5329 | LIB1 - LIBRARY DIST #1 | $3.82 | $3.81 | $0.00 | $0.00 | $7.63 | $0.00 |
| 2024 | 5329 | HD2 - HOSP DIST #2 | $0.72 | $0.71 | $0.00 | $0.00 | $1.43 | $0.00 |
| 2024 | 5329 | SD48 - SCHOOL DIST #48 | $12.83 | $12.82 | $0.00 | $0.00 | $25.65 | $0.00 |
| 2024 | 5329 | FD2 - FIRE DISTRICT #2 | $10.19 | $10.18 | $0.00 | $0.00 | $20.37 | $0.00 |
| 2024 | 5329 | EMS2 - FIRE DIST #2 EMS | $5.74 | $5.73 | $0.00 | $0.00 | $11.47 | $0.00 |
| 2024 | 5329 | CEM2 - CEMETERY DIST #2 | $0.33 | $0.32 | $0.00 | $0.00 | $0.65 | $0.00 |
| 2024 | 5329 | PARK1 - PARK & REC DIST #1 | $1.43 | $1.43 | $0.00 | $0.00 | $2.86 | $0.00 |
| 2024 | 5329 | FPLCA - DNR Landowner Contingency Assmt | $3.00 | $3.00 | $0.00 | $0.00 | $6.00 | $0.00 |
| 2024 | 5329 | JCCD - JC Conservation District | $2.53 | $2.53 | $0.00 | $0.00 | $5.06 | $0.00 |
| 2024 | 5329 | NWA - Noxious Weed Assessment | $2.15 | $2.15 | $0.00 | $0.00 | $4.30 | $0.00 |
| 2024 | 5329 | WAT - Clean Water District | $12.50 | $12.50 | $0.00 | $0.00 | $25.00 | $0.00 |
| 2024 | 5329 | TOTAL: | $112.25 | $112.12 | $0.00 | $0.00 | $224.37 | $0.00 |
|
| 2024 | 5329 | $112.25 | $112.12 | $0.00 | $0.00 | $224.37 | $0.00 |
Statement Details |
| 2023 | 5343 | STATE - STATE LEVY (SCHOOL) | $26.49 | $26.48 | $0.00 | $0.00 | $52.97 | $0.00 |
| 2023 | 5343 | COUNTY - COUNTY LEVIES (CE, DD, VET, MH) | $11.57 | $11.54 | $0.00 | $0.00 | $23.11 | $0.00 |
| 2023 | 5343 | CONSERVE - CONSERVATION FUTURES | $0.35 | $0.34 | $0.00 | $0.00 | $0.69 | $0.00 |
| 2023 | 5343 | COROADS - COUNTY ROADS (ROADS, DIV TO CE) | $9.35 | $9.35 | $0.00 | $0.00 | $18.70 | $0.00 |
| 2023 | 5343 | PORTPT - PORT DISTRICT | $4.87 | $4.86 | $0.00 | $0.00 | $9.73 | $0.00 |
| 2023 | 5343 | PUD1 - PUD #1 | $0.77 | $0.76 | $0.00 | $0.00 | $1.53 | $0.00 |
| 2023 | 5343 | LIB1 - LIBRARY DIST #1 | $3.62 | $3.62 | $0.00 | $0.00 | $7.24 | $0.00 |
| 2023 | 5343 | HD2 - HOSP DIST #2 | $0.68 | $0.67 | $0.00 | $0.00 | $1.35 | $0.00 |
| 2023 | 5343 | SD48 - SCHOOL DIST #48 | $12.79 | $12.79 | $0.00 | $0.00 | $25.58 | $0.00 |
| 2023 | 5343 | FD2 - FIRE DISTRICT #2 | $10.03 | $10.03 | $0.00 | $0.00 | $20.06 | $0.00 |
| 2023 | 5343 | EMS2 - FIRE DIST #2 EMS | $5.63 | $5.62 | $0.00 | $0.00 | $11.25 | $0.00 |
| 2023 | 5343 | CEM2 - CEMETERY DIST #2 | $0.32 | $0.32 | $0.00 | $0.00 | $0.64 | $0.00 |
| 2023 | 5343 | PARK1 - PARK & REC DIST #1 | $1.26 | $1.25 | $0.00 | $0.00 | $2.51 | $0.00 |
| 2023 | 5343 | FPLCA - DNR Landowner Contingency Assmt | $3.00 | $3.00 | $0.00 | $0.00 | $6.00 | $0.00 |
| 2023 | 5343 | JCCD - JC Conservation District | $2.53 | $2.53 | $0.00 | $0.00 | $5.06 | $0.00 |
| 2023 | 5343 | NWA - Noxious Weed Assessment | $2.15 | $2.15 | $0.00 | $0.00 | $4.30 | $0.00 |
| 2023 | 5343 | WAT - Clean Water District | $12.00 | $12.00 | $0.00 | $0.00 | $24.00 | $0.00 |
| 2023 | 5343 | TOTAL: | $107.41 | $107.31 | $0.00 | $0.00 | $214.72 | $0.00 |
|
| 2023 | 5343 | $107.41 | $107.31 | $0.00 | $0.00 | $214.72 | $0.00 |
Values
| (+) Improvement Homesite Value: | + | $0 | |
| (+) Improvement Non-Homesite Value: | + | $0 | |
| (+) Land Homesite Value: | + | $0 | |
| (+) Land Non-Homesite Value: | + | $25,875 | |
| (+) Curr Use (HS): | + | $0 | $0 |
| (+) Curr Use (NHS): | + | $0 | $0 |
| | | -------------------------- | |
| (=) Market Value: | = | $25,875 | |
| (–) Productivity Loss: | – | $0 | |
| | | -------------------------- | |
| (=) Subtotal: | = | $25,875 | |
| (+) Senior Appraised Value: | + | $0 | |
| (+) Non-Senior Appraised Value: | + | $25,875 | |
| | | -------------------------- | |
| (=) Total Appraised Value: | = | $25,875 | |
| (–) Senior Exemption Loss: | – | $0 | |
| (–) Exemption Loss: | – | $0 | |
| | | -------------------------- | |
| (=) Taxable Value: | = | $25,875 | |
Taxing Jurisdiction
| Owner: | DUSTINE & ANDREW KIMMEL | | |
| % Ownership: | 100.0000000000% | | |
| Total Value: | $25,875 | | |
| Tax Area: | 0323 - 1-48F2E2P1H2C2L1 |
| CE | COUNTY CURRENT EXPENSE | 0.9034619479 | $25,875 | $25,875 | $23.38 | | |
| CNTYDD | DEVELOPMENTAL DISABILITIES | 0.0052121823 | $25,875 | $25,875 | $0.13 | | |
| CNTYVET | VETERANS RELIEF | 0.0052777810 | $25,875 | $25,875 | $0.14 | | |
| MENTAL | MENTAL HEALTH | 0.0052121823 | $25,875 | $25,875 | $0.13 | | |
| ROADS | COUNTY ROADS | 0.7415066410 | $25,875 | $25,875 | $19.19 | | |
| ROADSCU | COUNTY ROADS TO CUR EXP | 0.0000000000 | $25,875 | $25,875 | $0.00 | | |
| HOSP2CASH | HOSP DIST #2 GENERAL | 0.0536075306 | $25,875 | $25,875 | $1.39 | | |
| SCH48MO | SCHOOL DIST #48 EP & O | 1.4120478917 | $25,875 | $25,875 | $36.54 | | |
| CEM2 | CEMETERY DIST #2 GENERAL | 0.0241266154 | $25,875 | $25,875 | $0.62 | | |
| CONSERVE | CONSERVATION FUTURES | 0.0275621078 | $25,875 | $25,875 | $0.71 | | |
| FD2 | FIRE DIST #2 GENERAL | 0.7549976873 | $25,875 | $25,875 | $19.54 | | |
| LIB1 | LIBRARY DIST #1 GENERAL | 0.2868827388 | $25,875 | $25,875 | $7.42 | | |
| PARK1 | PARK & REC DIST #1 GENERAL | 0.1474441110 | $25,875 | $25,875 | $3.82 | | |
| PORTPT | PORT OF PT GENERAL | 0.1134941229 | $25,875 | $25,875 | $2.94 | | |
| PORTPTIDD | PORT OF PT IDD 2019 | 0.2577346692 | $25,875 | $25,875 | $6.67 | | |
| PUD1 | PUD #1 GENERAL | 0.0597888892 | $25,875 | $25,875 | $1.55 | | |
| STATE | STATE SCHOOL PART 1 | 1.4940692947 | $25,875 | $25,875 | $38.66 | | |
| STATE2 | STATE SCHOOL PART 2 | 0.8050170049 | $25,875 | $25,875 | $20.83 | | |
| EMS2 | FIRE DIST #2 EMS | 0.4251727858 | $25,875 | $25,875 | $11.00 | | |
| | Total Tax Rate: | 7.5226161838 | | | | | |
| | | | | Taxes w/Current Exemptions: | $194.66 | | |
| | | | | Taxes w/o Exemptions: | $194.66 | | |
Improvement / Building
Sketch
| No sketches available for this property. |
Property Image
Land
| 1 | 2240-1385S | | 1.0000 | 43560.00 | 0.00 | 0.00 | 1.00 | $25,875 | $0 |
Roll Value History
| 2026 | N/A | N/A | N/A | N/A | N/A |
| 2025 | $0 | $25,875 | $0 | $25,875 | $25,875 |
| 2024 | $0 | $25,875 | $0 | $25,875 | $25,875 |
| 2023 | $0 | $24,750 | $0 | $24,750 | $24,750 |
| 2022 | $0 | $22,500 | $0 | $22,500 | $22,500 |
Deed and Sales History
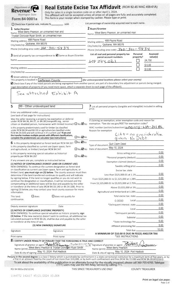
| 1 | 12/16/2024 | SWD | Statutory Warranty Deed | MIKEL B PEARSON | DUSTINE & ANDREW KIMMEL | | | $25,000.00 | 143680 | |
| 2 | 05/10/2024 | QCD | Quit Claim Deed | TRYSTAN D R SMITH | MIKEL B PEARSON | | | | 142618 | |
| 3 | 03/16/2020 | SWD | Statutory Warranty Deed | KEZIA S DISNEY | TRYSTAN D R SMITH | | | $39,000.00 | 134128 | |
|   | |
| 4 | 02/25/2002 | QCD | Quit Claim Deed | DISNEY, DAVID B | DISNEY, KEZIA SOLEA | 0 | 0 | $0.00 | 94192 | 0 |
| 5 | 08/31/1999 | QCD | Quit Claim Deed | POPE RESOURCES | DISNEY, DAVID B | 0 | 0 | $0.00 | 87829 | 0 |
| 6 | 08/24/1999 | SWD | Statutory Warranty Deed | FORSYTH, HAROLD W/EST | DISNEY, DAVID B | 0 | 0 | $18,000.00 | 87737 | 0 |
|   | |
Payout Agreement
| No payout information available.. |