Property
Account |
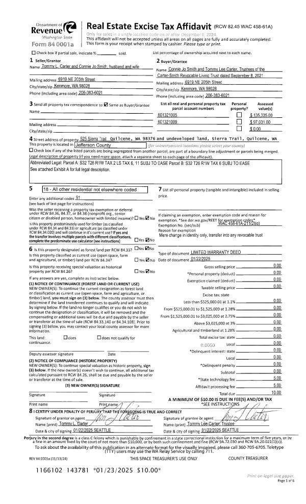
| Property ID: | 15732 | Abbreviated Legal Description: | S32 T26 R1W TAX 2 LS TAX 6,11 SUBJ TO EASE |
| Parcel # / Geo ID: | 601321005 | Agent Code: | |
| Type: | Real | | |
| Tax Area: | 0323 - 1-48F2E2P1H2C2L1 | Land Use Code | 18 |
| Open Space: | N | DFL | N |
| Historic Property: | N | Remodel Property: | N |
| Multi-Family Redevelopment: | N | | |
| Township: | 26N | Section: | 32 |
| Range: | 1W |
Location |
| Address: | 525 SIERRA TRAIL QUILCENE, WA 98376 | Mapsco: | 124/013 |
| Neighborhood: | PORTION OF S32 & 33 T26 R1W COYLE | Map ID: | |
| Neighborhood CD: | 2260 |
Owner |
| Name: | CARTER-SMITH REVOCABLE LIVING TRUST | Owner ID: | 112041 |
| Mailing Address: | CONNIE J SMITH TRUSTEE TOMMY L CARTER TRUSTEE 6919 NE 205TH ST KENMORE, WA 98028-2061 | % Ownership: | 100.0000000000% |
| | | Exemptions: | |
Pay Tax Due
Select the appropriate checkbox next to the year to be paid. Multiple years may be selected.
*Convenience Fee not included
Taxes and Assessment Details
Property Tax Information as of
03/10/2026
Click on "Statement Details" to expand or collapse a tax statement.
* Please enter a valid date ** Please enter a valid date *
Statement Details |
| 2026 | 5301 | STATE - STATE LEVY (SCHOOL) | $156.63 | $156.62 | $0.00 | $0.00 | $0.00 | $313.25 |
| 2026 | 5301 | COUNTY - COUNTY LEVIES (CE, DD, VET, MH) | $62.63 | $62.61 | $0.00 | $0.00 | $0.00 | $125.24 |
| 2026 | 5301 | CONSERVE - CONSERVATION FUTURES | $1.88 | $1.88 | $0.00 | $0.00 | $0.00 | $3.76 |
| 2026 | 5301 | COROADS - COUNTY ROADS (ROADS, DIV TO CE) | $50.52 | $50.51 | $0.00 | $0.00 | $0.00 | $101.03 |
| 2026 | 5301 | PORTPT - PORT DISTRICT | $25.29 | $25.29 | $0.00 | $0.00 | $0.00 | $50.58 |
| 2026 | 5301 | PUD1 - PUD #1 | $4.08 | $4.07 | $0.00 | $0.00 | $0.00 | $8.15 |
| 2026 | 5301 | LIB1 - LIBRARY DIST #1 | $19.55 | $19.54 | $0.00 | $0.00 | $0.00 | $39.09 |
| 2026 | 5301 | HD2 - HOSP DIST #2 | $3.65 | $3.65 | $0.00 | $0.00 | $0.00 | $7.30 |
| 2026 | 5301 | SD48 - SCHOOL DIST #48 | $96.20 | $96.19 | $0.00 | $0.00 | $0.00 | $192.39 |
| 2026 | 5301 | FD2 - FIRE DISTRICT #2 | $51.44 | $51.43 | $0.00 | $0.00 | $0.00 | $102.87 |
| 2026 | 5301 | EMS2 - FIRE DIST #2 EMS | $28.97 | $28.96 | $0.00 | $0.00 | $0.00 | $57.93 |
| 2026 | 5301 | CEM2 - CEMETERY DIST #2 | $1.65 | $1.64 | $0.00 | $0.00 | $0.00 | $3.29 |
| 2026 | 5301 | PARK1 - PARK & REC DIST #1 | $10.05 | $10.04 | $0.00 | $0.00 | $0.00 | $20.09 |
| 2026 | 5301 | FPLCA - DNR Landowner Contingency Assmt | $3.00 | $3.00 | $0.00 | $0.00 | $0.00 | $6.00 |
| 2026 | 5301 | JCCD - JC Conservation District | $2.57 | $2.57 | $0.00 | $0.00 | $0.00 | $5.14 |
| 2026 | 5301 | NWA - Noxious Weed Assessment | $3.20 | $3.20 | $0.00 | $0.00 | $0.00 | $6.40 |
| 2026 | 5301 | WAT - Clean Water District | $13.00 | $13.00 | $0.00 | $0.00 | $0.00 | $26.00 |
| 2026 | 5301 | TOTAL: | $534.31 | $534.20 | $0.00 | $0.00 | $0.00 | $1068.51 |
|
| 2026 | 5301 | $534.31 | $534.20 | $0.00 | $0.00 | $0.00 | $1068.51 |
Statement Details |
| 2025 | 5320 | STATE - STATE LEVY (SCHOOL) | $162.27 | $162.27 | $0.00 | $0.00 | $324.54 | $0.00 |
| 2025 | 5320 | COUNTY - COUNTY LEVIES (CE, DD, VET, MH) | $63.82 | $63.80 | $0.00 | $0.00 | $127.62 | $0.00 |
| 2025 | 5320 | CONSERVE - CONSERVATION FUTURES | $1.92 | $1.91 | $0.00 | $0.00 | $3.83 | $0.00 |
| 2025 | 5320 | COROADS - COUNTY ROADS (ROADS, DIV TO CE) | $51.13 | $51.11 | $0.00 | $0.00 | $102.24 | $0.00 |
| 2025 | 5320 | PORTPT - PORT DISTRICT | $26.04 | $26.04 | $0.00 | $0.00 | $52.08 | $0.00 |
| 2025 | 5320 | PUD1 - PUD #1 | $4.18 | $4.17 | $0.00 | $0.00 | $8.35 | $0.00 |
| 2025 | 5320 | LIB1 - LIBRARY DIST #1 | $19.78 | $19.78 | $0.00 | $0.00 | $39.56 | $0.00 |
| 2025 | 5320 | HD2 - HOSP DIST #2 | $3.73 | $3.72 | $0.00 | $0.00 | $7.45 | $0.00 |
| 2025 | 5320 | SD48 - SCHOOL DIST #48 | $95.56 | $95.55 | $0.00 | $0.00 | $191.11 | $0.00 |
| 2025 | 5320 | FD2 - FIRE DISTRICT #2 | $52.76 | $52.76 | $0.00 | $0.00 | $105.52 | $0.00 |
| 2025 | 5320 | EMS2 - FIRE DIST #2 EMS | $29.71 | $29.70 | $0.00 | $0.00 | $59.41 | $0.00 |
| 2025 | 5320 | CEM2 - CEMETERY DIST #2 | $1.69 | $1.68 | $0.00 | $0.00 | $3.37 | $0.00 |
| 2025 | 5320 | PARK1 - PARK & REC DIST #1 | $7.71 | $7.71 | $0.00 | $0.00 | $15.42 | $0.00 |
| 2025 | 5320 | FPLCA - DNR Landowner Contingency Assmt | $3.00 | $3.00 | $0.00 | $0.00 | $6.00 | $0.00 |
| 2025 | 5320 | JCCD - JC Conservation District | $2.60 | $2.60 | $0.00 | $0.00 | $5.20 | $0.00 |
| 2025 | 5320 | NWA - Noxious Weed Assessment | $2.30 | $2.30 | $0.00 | $0.00 | $4.60 | $0.00 |
| 2025 | 5320 | WAT - Clean Water District | $13.00 | $13.00 | $0.00 | $0.00 | $26.00 | $0.00 |
| 2025 | 5320 | TOTAL: | $541.20 | $541.10 | $0.00 | $0.00 | $1082.30 | $0.00 |
|
| 2025 | 5320 | $541.20 | $541.10 | $0.00 | $0.00 | $1082.30 | $0.00 |
Statement Details |
| 2024 | 5337 | STATE - STATE LEVY (SCHOOL) | $141.58 | $141.57 | $0.00 | $0.00 | $283.15 | $0.00 |
| 2024 | 5337 | COUNTY - COUNTY LEVIES (CE, DD, VET, MH) | $60.58 | $60.57 | $0.00 | $0.00 | $121.15 | $0.00 |
| 2024 | 5337 | CONSERVE - CONSERVATION FUTURES | $1.82 | $1.81 | $0.00 | $0.00 | $3.63 | $0.00 |
| 2024 | 5337 | COROADS - COUNTY ROADS (ROADS, DIV TO CE) | $48.76 | $48.74 | $0.00 | $0.00 | $97.50 | $0.00 |
| 2024 | 5337 | PORTPT - PORT DISTRICT | $25.02 | $25.02 | $0.00 | $0.00 | $50.04 | $0.00 |
| 2024 | 5337 | PUD1 - PUD #1 | $3.98 | $3.98 | $0.00 | $0.00 | $7.96 | $0.00 |
| 2024 | 5337 | LIB1 - LIBRARY DIST #1 | $18.86 | $18.86 | $0.00 | $0.00 | $37.72 | $0.00 |
| 2024 | 5337 | HD2 - HOSP DIST #2 | $3.54 | $3.53 | $0.00 | $0.00 | $7.07 | $0.00 |
| 2024 | 5337 | SD48 - SCHOOL DIST #48 | $63.41 | $63.41 | $0.00 | $0.00 | $126.82 | $0.00 |
| 2024 | 5337 | FD2 - FIRE DISTRICT #2 | $50.37 | $50.36 | $0.00 | $0.00 | $100.73 | $0.00 |
| 2024 | 5337 | EMS2 - FIRE DIST #2 EMS | $28.35 | $28.35 | $0.00 | $0.00 | $56.70 | $0.00 |
| 2024 | 5337 | CEM2 - CEMETERY DIST #2 | $1.61 | $1.61 | $0.00 | $0.00 | $3.22 | $0.00 |
| 2024 | 5337 | PARK1 - PARK & REC DIST #1 | $7.08 | $7.07 | $0.00 | $0.00 | $14.15 | $0.00 |
| 2024 | 5337 | FPLCA - DNR Landowner Contingency Assmt | $3.00 | $3.00 | $0.00 | $0.00 | $6.00 | $0.00 |
| 2024 | 5337 | JCCD - JC Conservation District | $2.60 | $2.60 | $0.00 | $0.00 | $5.20 | $0.00 |
| 2024 | 5337 | NWA - Noxious Weed Assessment | $2.30 | $2.30 | $0.00 | $0.00 | $4.60 | $0.00 |
| 2024 | 5337 | WAT - Clean Water District | $12.50 | $12.50 | $0.00 | $0.00 | $25.00 | $0.00 |
| 2024 | 5337 | TOTAL: | $475.36 | $475.28 | $0.00 | $0.00 | $950.64 | $0.00 |
|
| 2024 | 5337 | $475.36 | $475.28 | $0.00 | $0.00 | $950.64 | $0.00 |
Statement Details |
| 2023 | 5351 | STATE - STATE LEVY (SCHOOL) | $132.64 | $132.63 | $0.00 | $0.00 | $265.27 | $0.00 |
| 2023 | 5351 | COUNTY - COUNTY LEVIES (CE, DD, VET, MH) | $57.89 | $57.88 | $0.00 | $0.00 | $115.77 | $0.00 |
| 2023 | 5351 | CONSERVE - CONSERVATION FUTURES | $1.74 | $1.73 | $0.00 | $0.00 | $3.47 | $0.00 |
| 2023 | 5351 | COROADS - COUNTY ROADS (ROADS, DIV TO CE) | $46.83 | $46.82 | $0.00 | $0.00 | $93.65 | $0.00 |
| 2023 | 5351 | PORTPT - PORT DISTRICT | $24.39 | $24.37 | $0.00 | $0.00 | $48.76 | $0.00 |
| 2023 | 5351 | PUD1 - PUD #1 | $3.84 | $3.83 | $0.00 | $0.00 | $7.67 | $0.00 |
| 2023 | 5351 | LIB1 - LIBRARY DIST #1 | $18.12 | $18.11 | $0.00 | $0.00 | $36.23 | $0.00 |
| 2023 | 5351 | HD2 - HOSP DIST #2 | $3.38 | $3.38 | $0.00 | $0.00 | $6.76 | $0.00 |
| 2023 | 5351 | SD48 - SCHOOL DIST #48 | $64.05 | $64.05 | $0.00 | $0.00 | $128.10 | $0.00 |
| 2023 | 5351 | FD2 - FIRE DISTRICT #2 | $50.24 | $50.24 | $0.00 | $0.00 | $100.48 | $0.00 |
| 2023 | 5351 | EMS2 - FIRE DIST #2 EMS | $28.17 | $28.17 | $0.00 | $0.00 | $56.34 | $0.00 |
| 2023 | 5351 | CEM2 - CEMETERY DIST #2 | $1.60 | $1.60 | $0.00 | $0.00 | $3.20 | $0.00 |
| 2023 | 5351 | PARK1 - PARK & REC DIST #1 | $6.29 | $6.29 | $0.00 | $0.00 | $12.58 | $0.00 |
| 2023 | 5351 | FPLCA - DNR Landowner Contingency Assmt | $3.00 | $3.00 | $0.00 | $0.00 | $6.00 | $0.00 |
| 2023 | 5351 | JCCD - JC Conservation District | $2.60 | $2.60 | $0.00 | $0.00 | $5.20 | $0.00 |
| 2023 | 5351 | NWA - Noxious Weed Assessment | $2.30 | $2.30 | $0.00 | $0.00 | $4.60 | $0.00 |
| 2023 | 5351 | WAT - Clean Water District | $12.00 | $12.00 | $0.00 | $0.00 | $24.00 | $0.00 |
| 2023 | 5351 | TOTAL: | $459.08 | $459.00 | $0.00 | $0.00 | $918.08 | $0.00 |
|
| 2023 | 5351 | $459.08 | $459.00 | $0.00 | $0.00 | $918.08 | $0.00 |
Values
| (+) Improvement Homesite Value: | + | $0 | |
| (+) Improvement Non-Homesite Value: | + | $21,970 | |
| (+) Land Homesite Value: | + | $0 | |
| (+) Land Non-Homesite Value: | + | $114,281 | |
| (+) Curr Use (HS): | + | $0 | $0 |
| (+) Curr Use (NHS): | + | $0 | $0 |
| | | -------------------------- | |
| (=) Market Value: | = | $136,251 | |
| (–) Productivity Loss: | – | $0 | |
| | | -------------------------- | |
| (=) Subtotal: | = | $136,251 | |
| (+) Senior Appraised Value: | + | $0 | |
| (+) Non-Senior Appraised Value: | + | $136,251 | |
| | | -------------------------- | |
| (=) Total Appraised Value: | = | $136,251 | |
| (–) Senior Exemption Loss: | – | $0 | |
| (–) Exemption Loss: | – | $0 | |
| | | -------------------------- | |
| (=) Taxable Value: | = | $136,251 | |
Taxing Jurisdiction
| Owner: | CARTER-SMITH REVOCABLE LIVING TRUST | | |
| % Ownership: | 100.0000000000% | | |
| Total Value: | $136,251 | | |
| Tax Area: | 0323 - 1-48F2E2P1H2C2L1 |
| CE | COUNTY CURRENT EXPENSE | 0.9034619479 | $136,251 | $136,251 | $123.10 | | |
| CNTYDD | DEVELOPMENTAL DISABILITIES | 0.0052121823 | $136,251 | $136,251 | $0.71 | | |
| CNTYVET | VETERANS RELIEF | 0.0052777810 | $136,251 | $136,251 | $0.72 | | |
| MENTAL | MENTAL HEALTH | 0.0052121823 | $136,251 | $136,251 | $0.71 | | |
| ROADS | COUNTY ROADS | 0.7415066410 | $136,251 | $136,251 | $101.03 | | |
| ROADSCU | COUNTY ROADS TO CUR EXP | 0.0000000000 | $136,251 | $136,251 | $0.00 | | |
| HOSP2CASH | HOSP DIST #2 GENERAL | 0.0536075306 | $136,251 | $136,251 | $7.30 | | |
| SCH48MO | SCHOOL DIST #48 EP & O | 1.4120478917 | $136,251 | $136,251 | $192.39 | | |
| CEM2 | CEMETERY DIST #2 GENERAL | 0.0241266154 | $136,251 | $136,251 | $3.29 | | |
| CONSERVE | CONSERVATION FUTURES | 0.0275621078 | $136,251 | $136,251 | $3.76 | | |
| FD2 | FIRE DIST #2 GENERAL | 0.7549976873 | $136,251 | $136,251 | $102.87 | | |
| LIB1 | LIBRARY DIST #1 GENERAL | 0.2868827388 | $136,251 | $136,251 | $39.09 | | |
| PARK1 | PARK & REC DIST #1 GENERAL | 0.1474441110 | $136,251 | $136,251 | $20.09 | | |
| PORTPT | PORT OF PT GENERAL | 0.1134941229 | $136,251 | $136,251 | $15.46 | | |
| PORTPTIDD | PORT OF PT IDD 2019 | 0.2577346692 | $136,251 | $136,251 | $35.12 | | |
| PUD1 | PUD #1 GENERAL | 0.0597888892 | $136,251 | $136,251 | $8.15 | | |
| STATE | STATE SCHOOL PART 1 | 1.4940692947 | $136,251 | $136,251 | $203.57 | | |
| STATE2 | STATE SCHOOL PART 2 | 0.8050170049 | $136,251 | $136,251 | $109.68 | | |
| EMS2 | FIRE DIST #2 EMS | 0.4251727858 | $136,251 | $136,251 | $57.93 | | |
| | Total Tax Rate: | 7.5226161838 | | | | | |
| | | | | Taxes w/Current Exemptions: | $1,024.97 | | |
| | | | | Taxes w/o Exemptions: | $1,024.97 | | |
Improvement / Building
| Improvement #1: | Residential Bldg | State Code: | 19 | 0.0 sqft | Value: | $21,970 |
| | Type | Description | Class CD | Sub Class CD | Year Built | Area |
| | DECK | Deck (Table Not Dep) | 3 | * | 0 | 430.0 |
| | OTHER | Other | * | * | 0 | 0.0 |
| | SHED | Shed (Table Not Dep) | 2 | * | 0 | 0.0 |
Sketch
| No sketches available for this property. |
Property Image
Land
| 1 | 2260-1525F | | 0.0000 | 0.00 | 0.00 | 0.00 | 0.00 | $114,281 | $0 |
Roll Value History
| 2026 | N/A | N/A | N/A | N/A | N/A |
| 2025 | $21,970 | $114,281 | $0 | $136,251 | $136,251 |
| 2024 | $21,054 | $114,281 | $0 | $135,335 | $135,335 |
| 2023 | $20,139 | $102,244 | $0 | $122,383 | $122,383 |
| 2022 | $18,308 | $94,375 | $0 | $112,683 | $112,683 |
Deed and Sales History
| 1 | 01/22/2025 | SLWD | Special Limited Warranty Deed | TOMMY L CARTER | CARTER-SMITH REVOCABLE LIVING TRUST | | | | 143781 | |
Payout Agreement
| No payout information available.. |