Property
Account |
| Property ID: | 15816 | Abbreviated Legal Description: | S33 T26 R1W TAX 17 TRACT 6 |
| Parcel # / Geo ID: | 601334012 | Agent Code: | |
| Type: | Real | | |
| Tax Area: | 0323 - 1-48F2E2P1H2C2L1 | Land Use Code | 18 |
| Open Space: | N | DFL | N |
| Historic Property: | N | Remodel Property: | N |
| Multi-Family Redevelopment: | N | | |
| Township: | 26N | Section: | 33 |
| Range: | 1W |
Location |
| Address: | 91 WOLF RD QUILCENE, WA 98376 | Mapsco: | 126/006 |
| Neighborhood: | CHURCHILL TRACTS S33 T26 R1W & S4 T25 R1W | Map ID: | |
| Neighborhood CD: | 2265 |
Owner |
| Name: | LARRY E CLEMENTS | Owner ID: | 110448 |
| Mailing Address: | 15805 SE 264TH ST COVINGTON, WA 98042-8225 | % Ownership: | 100.0000000000% |
| | | Exemptions: | |
Pay Tax Due
There is currently No Amount Due on this property.
Taxes and Assessment Details
Property Tax Information as of
03/10/2026
Click on "Statement Details" to expand or collapse a tax statement.
* Please enter a valid date ** Please enter a valid date *
Statement Details |
| 2026 | 5385 | STATE - STATE LEVY (SCHOOL) | $143.14 | $143.12 | $0.00 | $0.00 | $286.26 | $0.00 |
| 2026 | 5385 | COUNTY - COUNTY LEVIES (CE, DD, VET, MH) | $57.24 | $57.21 | $0.00 | $0.00 | $114.45 | $0.00 |
| 2026 | 5385 | CONSERVE - CONSERVATION FUTURES | $1.72 | $1.71 | $0.00 | $0.00 | $3.43 | $0.00 |
| 2026 | 5385 | COROADS - COUNTY ROADS (ROADS, DIV TO CE) | $46.16 | $46.16 | $0.00 | $0.00 | $92.32 | $0.00 |
| 2026 | 5385 | PORTPT - PORT DISTRICT | $23.12 | $23.10 | $0.00 | $0.00 | $46.22 | $0.00 |
| 2026 | 5385 | PUD1 - PUD #1 | $3.72 | $3.72 | $0.00 | $0.00 | $7.44 | $0.00 |
| 2026 | 5385 | LIB1 - LIBRARY DIST #1 | $17.86 | $17.86 | $0.00 | $0.00 | $35.72 | $0.00 |
| 2026 | 5385 | HD2 - HOSP DIST #2 | $3.34 | $3.33 | $0.00 | $0.00 | $6.67 | $0.00 |
| 2026 | 5385 | SD48 - SCHOOL DIST #48 | $87.91 | $87.90 | $0.00 | $0.00 | $175.81 | $0.00 |
| 2026 | 5385 | FD2 - FIRE DISTRICT #2 | $47.00 | $47.00 | $0.00 | $0.00 | $94.00 | $0.00 |
| 2026 | 5385 | EMS2 - FIRE DIST #2 EMS | $26.47 | $26.47 | $0.00 | $0.00 | $52.94 | $0.00 |
| 2026 | 5385 | CEM2 - CEMETERY DIST #2 | $1.50 | $1.50 | $0.00 | $0.00 | $3.00 | $0.00 |
| 2026 | 5385 | PARK1 - PARK & REC DIST #1 | $9.18 | $9.18 | $0.00 | $0.00 | $18.36 | $0.00 |
| 2026 | 5385 | JCCD - JC Conservation District | $2.53 | $2.53 | $0.00 | $0.00 | $5.06 | $0.00 |
| 2026 | 5385 | NWA - Noxious Weed Assessment | $2.98 | $2.97 | $0.00 | $0.00 | $5.95 | $0.00 |
| 2026 | 5385 | WAT - Clean Water District | $13.00 | $13.00 | $0.00 | $0.00 | $26.00 | $0.00 |
| 2026 | 5385 | TOTAL: | $486.87 | $486.76 | $0.00 | $0.00 | $973.63 | $0.00 |
|
| 2026 | 5385 | $486.87 | $486.76 | $0.00 | $0.00 | $973.63 | $0.00 |
Statement Details |
| 2025 | 5404 | STATE - STATE LEVY (SCHOOL) | $149.22 | $149.21 | $0.00 | $0.00 | $298.43 | $0.00 |
| 2025 | 5404 | COUNTY - COUNTY LEVIES (CE, DD, VET, MH) | $58.68 | $58.67 | $0.00 | $0.00 | $117.35 | $0.00 |
| 2025 | 5404 | CONSERVE - CONSERVATION FUTURES | $1.76 | $1.76 | $0.00 | $0.00 | $3.52 | $0.00 |
| 2025 | 5404 | COROADS - COUNTY ROADS (ROADS, DIV TO CE) | $47.01 | $47.01 | $0.00 | $0.00 | $94.02 | $0.00 |
| 2025 | 5404 | PORTPT - PORT DISTRICT | $23.95 | $23.94 | $0.00 | $0.00 | $47.89 | $0.00 |
| 2025 | 5404 | PUD1 - PUD #1 | $3.84 | $3.84 | $0.00 | $0.00 | $7.68 | $0.00 |
| 2025 | 5404 | LIB1 - LIBRARY DIST #1 | $18.19 | $18.19 | $0.00 | $0.00 | $36.38 | $0.00 |
| 2025 | 5404 | HD2 - HOSP DIST #2 | $3.43 | $3.42 | $0.00 | $0.00 | $6.85 | $0.00 |
| 2025 | 5404 | SD48 - SCHOOL DIST #48 | $87.87 | $87.87 | $0.00 | $0.00 | $175.74 | $0.00 |
| 2025 | 5404 | FD2 - FIRE DISTRICT #2 | $48.52 | $48.51 | $0.00 | $0.00 | $97.03 | $0.00 |
| 2025 | 5404 | EMS2 - FIRE DIST #2 EMS | $27.32 | $27.31 | $0.00 | $0.00 | $54.63 | $0.00 |
| 2025 | 5404 | CEM2 - CEMETERY DIST #2 | $1.55 | $1.55 | $0.00 | $0.00 | $3.10 | $0.00 |
| 2025 | 5404 | PARK1 - PARK & REC DIST #1 | $7.09 | $7.09 | $0.00 | $0.00 | $14.18 | $0.00 |
| 2025 | 5404 | JCCD - JC Conservation District | $2.55 | $2.55 | $0.00 | $0.00 | $5.10 | $0.00 |
| 2025 | 5404 | NWA - Noxious Weed Assessment | $2.15 | $2.15 | $0.00 | $0.00 | $4.30 | $0.00 |
| 2025 | 5404 | WAT - Clean Water District | $13.00 | $13.00 | $0.00 | $0.00 | $26.00 | $0.00 |
| 2025 | 5404 | TOTAL: | $496.13 | $496.07 | $0.00 | $0.00 | $992.20 | $0.00 |
|
| 2025 | 5404 | $496.13 | $496.07 | $0.00 | $0.00 | $992.20 | $0.00 |
Statement Details |
| 2024 | 5421 | STATE - STATE LEVY (SCHOOL) | $125.45 | $125.43 | $0.00 | $0.00 | $250.88 | $0.00 |
| 2024 | 5421 | COUNTY - COUNTY LEVIES (CE, DD, VET, MH) | $53.70 | $53.66 | $0.00 | $0.00 | $107.36 | $0.00 |
| 2024 | 5421 | CONSERVE - CONSERVATION FUTURES | $1.61 | $1.61 | $0.00 | $0.00 | $3.22 | $0.00 |
| 2024 | 5421 | COROADS - COUNTY ROADS (ROADS, DIV TO CE) | $43.20 | $43.18 | $0.00 | $0.00 | $86.38 | $0.00 |
| 2024 | 5421 | PORTPT - PORT DISTRICT | $22.18 | $22.17 | $0.00 | $0.00 | $44.35 | $0.00 |
| 2024 | 5421 | PUD1 - PUD #1 | $3.53 | $3.52 | $0.00 | $0.00 | $7.05 | $0.00 |
| 2024 | 5421 | LIB1 - LIBRARY DIST #1 | $16.71 | $16.71 | $0.00 | $0.00 | $33.42 | $0.00 |
| 2024 | 5421 | HD2 - HOSP DIST #2 | $3.13 | $3.13 | $0.00 | $0.00 | $6.26 | $0.00 |
| 2024 | 5421 | SD48 - SCHOOL DIST #48 | $56.19 | $56.18 | $0.00 | $0.00 | $112.37 | $0.00 |
| 2024 | 5421 | FD2 - FIRE DISTRICT #2 | $44.63 | $44.62 | $0.00 | $0.00 | $89.25 | $0.00 |
| 2024 | 5421 | EMS2 - FIRE DIST #2 EMS | $25.12 | $25.12 | $0.00 | $0.00 | $50.24 | $0.00 |
| 2024 | 5421 | CEM2 - CEMETERY DIST #2 | $1.43 | $1.43 | $0.00 | $0.00 | $2.86 | $0.00 |
| 2024 | 5421 | PARK1 - PARK & REC DIST #1 | $6.27 | $6.27 | $0.00 | $0.00 | $12.54 | $0.00 |
| 2024 | 5421 | JCCD - JC Conservation District | $2.55 | $2.55 | $0.00 | $0.00 | $5.10 | $0.00 |
| 2024 | 5421 | NWA - Noxious Weed Assessment | $2.15 | $2.15 | $0.00 | $0.00 | $4.30 | $0.00 |
| 2024 | 5421 | WAT - Clean Water District | $12.50 | $12.50 | $0.00 | $0.00 | $25.00 | $0.00 |
| 2024 | 5421 | TOTAL: | $420.35 | $420.23 | $0.00 | $0.00 | $840.58 | $0.00 |
|
| 2024 | 5421 | $420.35 | $420.23 | $0.00 | $0.00 | $840.58 | $0.00 |
Statement Details |
| 2023 | 5435 | STATE - STATE LEVY (SCHOOL) | $115.61 | $115.61 | $0.00 | $0.00 | $231.22 | $0.00 |
| 2023 | 5435 | COUNTY - COUNTY LEVIES (CE, DD, VET, MH) | $50.46 | $50.43 | $0.00 | $0.00 | $100.89 | $0.00 |
| 2023 | 5435 | CONSERVE - CONSERVATION FUTURES | $1.52 | $1.51 | $0.00 | $0.00 | $3.03 | $0.00 |
| 2023 | 5435 | COROADS - COUNTY ROADS (ROADS, DIV TO CE) | $40.83 | $40.81 | $0.00 | $0.00 | $81.64 | $0.00 |
| 2023 | 5435 | PORTPT - PORT DISTRICT | $21.25 | $21.25 | $0.00 | $0.00 | $42.50 | $0.00 |
| 2023 | 5435 | PUD1 - PUD #1 | $3.35 | $3.34 | $0.00 | $0.00 | $6.69 | $0.00 |
| 2023 | 5435 | LIB1 - LIBRARY DIST #1 | $15.79 | $15.79 | $0.00 | $0.00 | $31.58 | $0.00 |
| 2023 | 5435 | HD2 - HOSP DIST #2 | $2.94 | $2.94 | $0.00 | $0.00 | $5.88 | $0.00 |
| 2023 | 5435 | SD48 - SCHOOL DIST #48 | $55.83 | $55.83 | $0.00 | $0.00 | $111.66 | $0.00 |
| 2023 | 5435 | FD2 - FIRE DISTRICT #2 | $43.79 | $43.79 | $0.00 | $0.00 | $87.58 | $0.00 |
| 2023 | 5435 | EMS2 - FIRE DIST #2 EMS | $24.56 | $24.55 | $0.00 | $0.00 | $49.11 | $0.00 |
| 2023 | 5435 | CEM2 - CEMETERY DIST #2 | $1.40 | $1.39 | $0.00 | $0.00 | $2.79 | $0.00 |
| 2023 | 5435 | PARK1 - PARK & REC DIST #1 | $5.49 | $5.48 | $0.00 | $0.00 | $10.97 | $0.00 |
| 2023 | 5435 | JCCD - JC Conservation District | $2.55 | $2.55 | $0.00 | $0.00 | $5.10 | $0.00 |
| 2023 | 5435 | NWA - Noxious Weed Assessment | $2.15 | $2.15 | $0.00 | $0.00 | $4.30 | $0.00 |
| 2023 | 5435 | WAT - Clean Water District | $12.00 | $12.00 | $0.00 | $0.00 | $24.00 | $0.00 |
| 2023 | 5435 | TOTAL: | $399.52 | $399.42 | $0.00 | $0.00 | $798.94 | $0.00 |
|
| 2023 | 5435 | $399.52 | $399.42 | $0.00 | $0.00 | $798.94 | $0.00 |
Values
| (+) Improvement Homesite Value: | + | $0 | |
| (+) Improvement Non-Homesite Value: | + | $1,459 | |
| (+) Land Homesite Value: | + | $0 | |
| (+) Land Non-Homesite Value: | + | $123,050 | |
| (+) Curr Use (HS): | + | $0 | $0 |
| (+) Curr Use (NHS): | + | $0 | $0 |
| | | -------------------------- | |
| (=) Market Value: | = | $124,509 | |
| (–) Productivity Loss: | – | $0 | |
| | | -------------------------- | |
| (=) Subtotal: | = | $124,509 | |
| (+) Senior Appraised Value: | + | $0 | |
| (+) Non-Senior Appraised Value: | + | $124,509 | |
| | | -------------------------- | |
| (=) Total Appraised Value: | = | $124,509 | |
| (–) Senior Exemption Loss: | – | $0 | |
| (–) Exemption Loss: | – | $0 | |
| | | -------------------------- | |
| (=) Taxable Value: | = | $124,509 | |
Taxing Jurisdiction
| Owner: | LARRY E CLEMENTS | | |
| % Ownership: | 100.0000000000% | | |
| Total Value: | $124,509 | | |
| Tax Area: | 0323 - 1-48F2E2P1H2C2L1 |
| CE | COUNTY CURRENT EXPENSE | 0.9034619479 | $124,509 | $124,509 | $112.49 | | |
| CNTYDD | DEVELOPMENTAL DISABILITIES | 0.0052121823 | $124,509 | $124,509 | $0.65 | | |
| CNTYVET | VETERANS RELIEF | 0.0052777810 | $124,509 | $124,509 | $0.66 | | |
| MENTAL | MENTAL HEALTH | 0.0052121823 | $124,509 | $124,509 | $0.65 | | |
| ROADS | COUNTY ROADS | 0.7415066410 | $124,509 | $124,509 | $92.32 | | |
| ROADSCU | COUNTY ROADS TO CUR EXP | 0.0000000000 | $124,509 | $124,509 | $0.00 | | |
| HOSP2CASH | HOSP DIST #2 GENERAL | 0.0536075306 | $124,509 | $124,509 | $6.67 | | |
| SCH48MO | SCHOOL DIST #48 EP & O | 1.4120478917 | $124,509 | $124,509 | $175.81 | | |
| CEM2 | CEMETERY DIST #2 GENERAL | 0.0241266154 | $124,509 | $124,509 | $3.00 | | |
| CONSERVE | CONSERVATION FUTURES | 0.0275621078 | $124,509 | $124,509 | $3.43 | | |
| FD2 | FIRE DIST #2 GENERAL | 0.7549976873 | $124,509 | $124,509 | $94.00 | | |
| LIB1 | LIBRARY DIST #1 GENERAL | 0.2868827388 | $124,509 | $124,509 | $35.72 | | |
| PARK1 | PARK & REC DIST #1 GENERAL | 0.1474441110 | $124,509 | $124,509 | $18.36 | | |
| PORTPT | PORT OF PT GENERAL | 0.1134941229 | $124,509 | $124,509 | $14.13 | | |
| PORTPTIDD | PORT OF PT IDD 2019 | 0.2577346692 | $124,509 | $124,509 | $32.09 | | |
| PUD1 | PUD #1 GENERAL | 0.0597888892 | $124,509 | $124,509 | $7.44 | | |
| STATE | STATE SCHOOL PART 1 | 1.4940692947 | $124,509 | $124,509 | $186.03 | | |
| STATE2 | STATE SCHOOL PART 2 | 0.8050170049 | $124,509 | $124,509 | $100.23 | | |
| EMS2 | FIRE DIST #2 EMS | 0.4251727858 | $124,509 | $124,509 | $52.94 | | |
| | Total Tax Rate: | 7.5226161838 | | | | | |
| | | | | Taxes w/Current Exemptions: | $936.62 | | |
| | | | | Taxes w/o Exemptions: | $936.62 | | |
Improvement / Building
| Improvement #1: | Residential Bldg | State Code: | 19 | 0.0 sqft | Value: | $1,459 |
| | Type | Description | Class CD | Sub Class CD | Year Built | Area |
| | DECK | Deck (Table Not Dep) | 1 | * | 0 | 120.0 |
| | CARPTN | Carport W/O Floor | 1 | * | 0 | 440.0 |
Sketch
Property Image
Land
| 1 | 2265-1135S | | 0.0000 | 0.00 | 0.00 | 0.00 | 1.00 | $123,050 | $0 |
Roll Value History
| 2026 | N/A | N/A | N/A | N/A | N/A |
| 2025 | $1,459 | $123,050 | $0 | $124,509 | $124,509 |
| 2024 | $1,398 | $123,050 | $0 | $124,448 | $124,448 |
| 2023 | $1,338 | $107,100 | $0 | $108,438 | $108,438 |
| 2022 | $1,216 | $97,000 | $0 | $98,216 | $98,216 |
Deed and Sales History
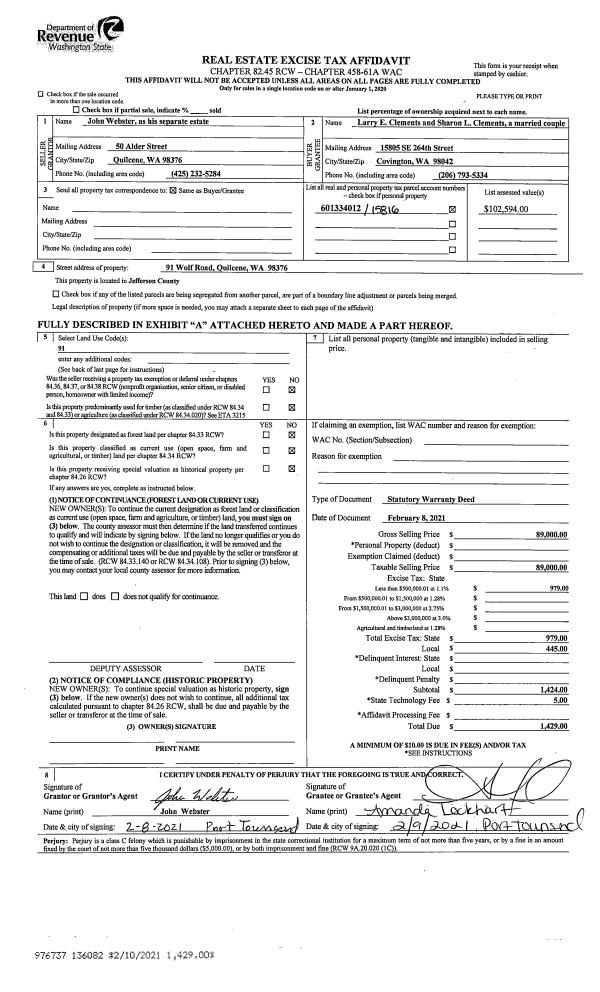
| 1 | 02/16/2024 | PRD | Personal Representatives Deed | LARRY E & SHARON L CLEMENTS | LARRY E CLEMENTS | | | | 142262 | |
| 2 | 02/08/2021 | SWD | Statutory Warranty Deed | JOHN WEBSTER | LARRY E & SHARON L CLEMENTS | | | $89,000.00 | 136082 | |
| 3 | 05/26/2020 | PRD | Personal Representatives Deed | GEORGE K WEBSTER | JOHN WEBSTER | | | | 134638 | |
| 4 | 11/26/2007 | QCD | Quit Claim Deed | GRISSOM, KATHERINE C | WEBSTER, GEORGE K/ANN C | | | $0.00 | 111075 | 0 |
| 5 | 11/26/2007 | QCD | Quit Claim Deed | WEBSTER, GEORGE K/ANN C | GRISSOM, KATHERINE C | 0 | 0 | $0.00 | 110450 | 0 |
| 6 | 09/29/2003 | QCD | Quit Claim Deed | WEBSTER, JOHN C | WEBSTER, GEORGE K/ANN C | 0 | 0 | $0.00 | 98547 | 0 |
| 7 | 03/24/2000 | QCD | Quit Claim Deed | SAMPSON, DARYL W | WEBSTER, JOHN C | 0 | 0 | $0.00 | 89485 | 0 |
| 8 | 07/01/1999 | QCD | Quit Claim Deed | WEBSTER, GEORGE K/ANN C | SAMPSON, DARYL W | 0 | 0 | $0.00 | 87292 | 0 |
Payout Agreement
| No payout information available.. |