Property
Account |
| Property ID: | 15825 | Abbreviated Legal Description: | S33 T26 R1W TAX 26 TRACT 15 |
| Parcel # / Geo ID: | 601334021 | Agent Code: | |
| Type: | Real | | |
| Tax Area: | 0323 - 1-48F2E2P1H2C2L1 | Land Use Code | 11 |
| Open Space: | N | DFL | N |
| Historic Property: | N | Remodel Property: | N |
| Multi-Family Redevelopment: | N | | |
| Township: | 26N | Section: | 33 |
| Range: | 1W |
Location |
| Address: | 120 ALDER ST QUILCENE, WA 98376 | Mapsco: | 126/015 |
| Neighborhood: | CHURCHILL TRACTS S33 T26 R1W & S4 T25 R1W | Map ID: | |
| Neighborhood CD: | 2265 |
Owner |
| Name: | MICHAEL NUTT | Owner ID: | 104860 |
| Mailing Address: | 120 ALDER ST QUILCENE, WA 98376-9601 | % Ownership: | 100.0000000000% |
| | | Exemptions: | |
Pay Tax Due
Select the appropriate checkbox next to the year to be paid. Multiple years may be selected.
*Convenience Fee not included
Taxes and Assessment Details
Property Tax Information as of
03/10/2026
Click on "Statement Details" to expand or collapse a tax statement.
* Please enter a valid date ** Please enter a valid date *
Statement Details |
| 2026 | 5393 | STATE - STATE LEVY (SCHOOL) | $85.23 | $85.22 | $0.00 | $0.00 | $0.00 | $170.45 |
| 2026 | 5393 | COUNTY - COUNTY LEVIES (CE, DD, VET, MH) | $34.09 | $34.06 | $0.00 | $0.00 | $0.00 | $68.15 |
| 2026 | 5393 | CONSERVE - CONSERVATION FUTURES | $1.02 | $1.02 | $0.00 | $0.00 | $0.00 | $2.04 |
| 2026 | 5393 | COROADS - COUNTY ROADS (ROADS, DIV TO CE) | $27.49 | $27.49 | $0.00 | $0.00 | $0.00 | $54.98 |
| 2026 | 5393 | PORTPT - PORT DISTRICT | $13.77 | $13.75 | $0.00 | $0.00 | $0.00 | $27.52 |
| 2026 | 5393 | PUD1 - PUD #1 | $2.22 | $2.21 | $0.00 | $0.00 | $0.00 | $4.43 |
| 2026 | 5393 | LIB1 - LIBRARY DIST #1 | $10.64 | $10.63 | $0.00 | $0.00 | $0.00 | $21.27 |
| 2026 | 5393 | HD2 - HOSP DIST #2 | $1.99 | $1.98 | $0.00 | $0.00 | $0.00 | $3.97 |
| 2026 | 5393 | SD48 - SCHOOL DIST #48 | $52.35 | $52.34 | $0.00 | $0.00 | $0.00 | $104.69 |
| 2026 | 5393 | FD2 - FIRE DISTRICT #2 | $27.99 | $27.99 | $0.00 | $0.00 | $0.00 | $55.98 |
| 2026 | 5393 | EMS2 - FIRE DIST #2 EMS | $15.76 | $15.76 | $0.00 | $0.00 | $0.00 | $31.52 |
| 2026 | 5393 | CEM2 - CEMETERY DIST #2 | $0.90 | $0.89 | $0.00 | $0.00 | $0.00 | $1.79 |
| 2026 | 5393 | PARK1 - PARK & REC DIST #1 | $5.47 | $5.46 | $0.00 | $0.00 | $0.00 | $10.93 |
| 2026 | 5393 | FP - DNR Forest Fire Protection Assmt | $8.50 | $8.50 | $0.00 | $0.00 | $0.00 | $17.00 |
| 2026 | 5393 | FPLCA - DNR Landowner Contingency Assmt | $3.00 | $3.00 | $0.00 | $0.00 | $0.00 | $6.00 |
| 2026 | 5393 | JCCD - JC Conservation District | $2.55 | $2.55 | $0.00 | $0.00 | $0.00 | $5.10 |
| 2026 | 5393 | NWA - Noxious Weed Assessment | $2.98 | $2.97 | $0.00 | $0.00 | $0.00 | $5.95 |
| 2026 | 5393 | OSS - On Site Septic | $23.10 | $23.10 | $0.00 | $0.00 | $0.00 | $46.20 |
| 2026 | 5393 | WAT - Clean Water District | $13.00 | $13.00 | $0.00 | $0.00 | $0.00 | $26.00 |
| 2026 | 5393 | FP ADMIN - FP ADMIN | $0.50 | $0.00 | $0.00 | $0.00 | $0.00 | $0.50 |
| 2026 | 5393 | TOTAL: | $332.55 | $331.92 | $0.00 | $0.00 | $0.00 | $664.47 |
|
| 2026 | 5393 | $332.55 | $331.92 | $0.00 | $0.00 | $0.00 | $664.47 |
Statement Details |
| 2025 | 5412 | STATE - STATE LEVY (SCHOOL) | $88.86 | $88.85 | $0.00 | $0.00 | $177.71 | $0.00 |
| 2025 | 5412 | COUNTY - COUNTY LEVIES (CE, DD, VET, MH) | $34.95 | $34.94 | $0.00 | $0.00 | $69.89 | $0.00 |
| 2025 | 5412 | CONSERVE - CONSERVATION FUTURES | $1.05 | $1.05 | $0.00 | $0.00 | $2.10 | $0.00 |
| 2025 | 5412 | COROADS - COUNTY ROADS (ROADS, DIV TO CE) | $28.00 | $27.99 | $0.00 | $0.00 | $55.99 | $0.00 |
| 2025 | 5412 | PORTPT - PORT DISTRICT | $14.27 | $14.25 | $0.00 | $0.00 | $28.52 | $0.00 |
| 2025 | 5412 | PUD1 - PUD #1 | $2.29 | $2.28 | $0.00 | $0.00 | $4.57 | $0.00 |
| 2025 | 5412 | LIB1 - LIBRARY DIST #1 | $10.83 | $10.83 | $0.00 | $0.00 | $21.66 | $0.00 |
| 2025 | 5412 | HD2 - HOSP DIST #2 | $2.04 | $2.04 | $0.00 | $0.00 | $4.08 | $0.00 |
| 2025 | 5412 | SD48 - SCHOOL DIST #48 | $52.33 | $52.32 | $0.00 | $0.00 | $104.65 | $0.00 |
| 2025 | 5412 | FD2 - FIRE DISTRICT #2 | $28.89 | $28.89 | $0.00 | $0.00 | $57.78 | $0.00 |
| 2025 | 5412 | EMS2 - FIRE DIST #2 EMS | $16.27 | $16.26 | $0.00 | $0.00 | $32.53 | $0.00 |
| 2025 | 5412 | CEM2 - CEMETERY DIST #2 | $0.92 | $0.92 | $0.00 | $0.00 | $1.84 | $0.00 |
| 2025 | 5412 | PARK1 - PARK & REC DIST #1 | $4.22 | $4.22 | $0.00 | $0.00 | $8.44 | $0.00 |
| 2025 | 5412 | FPLCA - DNR Landowner Contingency Assmt | $3.00 | $3.00 | $0.00 | $0.00 | $6.00 | $0.00 |
| 2025 | 5412 | JCCD - JC Conservation District | $2.55 | $2.55 | $0.00 | $0.00 | $5.10 | $0.00 |
| 2025 | 5412 | NWA - Noxious Weed Assessment | $2.15 | $2.15 | $0.00 | $0.00 | $4.30 | $0.00 |
| 2025 | 5412 | WAT - Clean Water District | $13.00 | $13.00 | $0.00 | $0.00 | $26.00 | $0.00 |
| 2025 | 5412 | TOTAL: | $305.62 | $305.54 | $0.00 | $0.00 | $611.16 | $0.00 |
|
| 2025 | 5412 | $305.62 | $305.54 | $0.00 | $0.00 | $611.16 | $0.00 |
Statement Details |
| 2024 | 5429 | STATE - STATE LEVY (SCHOOL) | $72.24 | $72.23 | $0.00 | $0.00 | $144.47 | $0.00 |
| 2024 | 5429 | COUNTY - COUNTY LEVIES (CE, DD, VET, MH) | $30.93 | $30.89 | $0.00 | $0.00 | $61.82 | $0.00 |
| 2024 | 5429 | CONSERVE - CONSERVATION FUTURES | $0.93 | $0.92 | $0.00 | $0.00 | $1.85 | $0.00 |
| 2024 | 5429 | COROADS - COUNTY ROADS (ROADS, DIV TO CE) | $24.88 | $24.87 | $0.00 | $0.00 | $49.75 | $0.00 |
| 2024 | 5429 | PORTPT - PORT DISTRICT | $12.77 | $12.76 | $0.00 | $0.00 | $25.53 | $0.00 |
| 2024 | 5429 | PUD1 - PUD #1 | $2.03 | $2.03 | $0.00 | $0.00 | $4.06 | $0.00 |
| 2024 | 5429 | LIB1 - LIBRARY DIST #1 | $9.63 | $9.62 | $0.00 | $0.00 | $19.25 | $0.00 |
| 2024 | 5429 | HD2 - HOSP DIST #2 | $1.81 | $1.80 | $0.00 | $0.00 | $3.61 | $0.00 |
| 2024 | 5429 | SD48 - SCHOOL DIST #48 | $32.36 | $32.35 | $0.00 | $0.00 | $64.71 | $0.00 |
| 2024 | 5429 | FD2 - FIRE DISTRICT #2 | $25.70 | $25.70 | $0.00 | $0.00 | $51.40 | $0.00 |
| 2024 | 5429 | EMS2 - FIRE DIST #2 EMS | $14.47 | $14.46 | $0.00 | $0.00 | $28.93 | $0.00 |
| 2024 | 5429 | CEM2 - CEMETERY DIST #2 | $0.82 | $0.82 | $0.00 | $0.00 | $1.64 | $0.00 |
| 2024 | 5429 | PARK1 - PARK & REC DIST #1 | $3.61 | $3.61 | $0.00 | $0.00 | $7.22 | $0.00 |
| 2024 | 5429 | FPLCA - DNR Landowner Contingency Assmt | $3.00 | $3.00 | $0.00 | $0.00 | $6.00 | $0.00 |
| 2024 | 5429 | JCCD - JC Conservation District | $2.55 | $2.55 | $0.00 | $0.00 | $5.10 | $0.00 |
| 2024 | 5429 | NWA - Noxious Weed Assessment | $2.15 | $2.15 | $0.00 | $0.00 | $4.30 | $0.00 |
| 2024 | 5429 | WAT - Clean Water District | $12.50 | $12.50 | $0.00 | $0.00 | $25.00 | $0.00 |
| 2024 | 5429 | TOTAL: | $252.38 | $252.26 | $0.00 | $0.00 | $504.64 | $0.00 |
|
| 2024 | 5429 | $252.38 | $252.26 | $0.00 | $0.00 | $504.64 | $0.00 |
Statement Details |
| 2023 | 5443 | STATE - STATE LEVY (SCHOOL) | $64.08 | $64.08 | $0.00 | $0.00 | $128.16 | $0.00 |
| 2023 | 5443 | COUNTY - COUNTY LEVIES (CE, DD, VET, MH) | $27.97 | $27.96 | $0.00 | $0.00 | $55.93 | $0.00 |
| 2023 | 5443 | CONSERVE - CONSERVATION FUTURES | $0.84 | $0.84 | $0.00 | $0.00 | $1.68 | $0.00 |
| 2023 | 5443 | COROADS - COUNTY ROADS (ROADS, DIV TO CE) | $22.63 | $22.62 | $0.00 | $0.00 | $45.25 | $0.00 |
| 2023 | 5443 | PORTPT - PORT DISTRICT | $11.79 | $11.77 | $0.00 | $0.00 | $23.56 | $0.00 |
| 2023 | 5443 | PUD1 - PUD #1 | $1.86 | $1.85 | $0.00 | $0.00 | $3.71 | $0.00 |
| 2023 | 5443 | LIB1 - LIBRARY DIST #1 | $8.76 | $8.75 | $0.00 | $0.00 | $17.51 | $0.00 |
| 2023 | 5443 | HD2 - HOSP DIST #2 | $1.64 | $1.62 | $0.00 | $0.00 | $3.26 | $0.00 |
| 2023 | 5443 | SD48 - SCHOOL DIST #48 | $30.95 | $30.94 | $0.00 | $0.00 | $61.89 | $0.00 |
| 2023 | 5443 | FD2 - FIRE DISTRICT #2 | $24.27 | $24.27 | $0.00 | $0.00 | $48.54 | $0.00 |
| 2023 | 5443 | EMS2 - FIRE DIST #2 EMS | $13.61 | $13.61 | $0.00 | $0.00 | $27.22 | $0.00 |
| 2023 | 5443 | CEM2 - CEMETERY DIST #2 | $0.78 | $0.77 | $0.00 | $0.00 | $1.55 | $0.00 |
| 2023 | 5443 | PARK1 - PARK & REC DIST #1 | $3.04 | $3.04 | $0.00 | $0.00 | $6.08 | $0.00 |
| 2023 | 5443 | FPLCA - DNR Landowner Contingency Assmt | $3.00 | $3.00 | $0.00 | $0.00 | $6.00 | $0.00 |
| 2023 | 5443 | JCCD - JC Conservation District | $2.55 | $2.55 | $0.00 | $0.00 | $5.10 | $0.00 |
| 2023 | 5443 | NWA - Noxious Weed Assessment | $2.15 | $2.15 | $0.00 | $0.00 | $4.30 | $0.00 |
| 2023 | 5443 | WAT - Clean Water District | $12.00 | $12.00 | $0.00 | $0.00 | $24.00 | $0.00 |
| 2023 | 5443 | TOTAL: | $231.92 | $231.82 | $0.00 | $0.00 | $463.74 | $0.00 |
|
| 2023 | 5443 | $231.92 | $231.82 | $0.00 | $0.00 | $463.74 | $0.00 |
Values
| (+) Improvement Homesite Value: | + | $0 | |
| (+) Improvement Non-Homesite Value: | + | $827 | |
| (+) Land Homesite Value: | + | $0 | |
| (+) Land Non-Homesite Value: | + | $73,313 | |
| (+) Curr Use (HS): | + | $0 | $0 |
| (+) Curr Use (NHS): | + | $0 | $0 |
| | | -------------------------- | |
| (=) Market Value: | = | $74,140 | |
| (–) Productivity Loss: | – | $0 | |
| | | -------------------------- | |
| (=) Subtotal: | = | $74,140 | |
| (+) Senior Appraised Value: | + | $0 | |
| (+) Non-Senior Appraised Value: | + | $74,140 | |
| | | -------------------------- | |
| (=) Total Appraised Value: | = | $74,140 | |
| (–) Senior Exemption Loss: | – | $0 | |
| (–) Exemption Loss: | – | $0 | |
| | | -------------------------- | |
| (=) Taxable Value: | = | $74,140 | |
Taxing Jurisdiction
| Owner: | MICHAEL NUTT | | |
| % Ownership: | 100.0000000000% | | |
| Total Value: | $74,140 | | |
| Tax Area: | 0323 - 1-48F2E2P1H2C2L1 |
| CE | COUNTY CURRENT EXPENSE | 0.9034619479 | $74,140 | $74,140 | $66.98 | | |
| CNTYDD | DEVELOPMENTAL DISABILITIES | 0.0052121823 | $74,140 | $74,140 | $0.39 | | |
| CNTYVET | VETERANS RELIEF | 0.0052777810 | $74,140 | $74,140 | $0.39 | | |
| MENTAL | MENTAL HEALTH | 0.0052121823 | $74,140 | $74,140 | $0.39 | | |
| ROADS | COUNTY ROADS | 0.7415066410 | $74,140 | $74,140 | $54.98 | | |
| ROADSCU | COUNTY ROADS TO CUR EXP | 0.0000000000 | $74,140 | $74,140 | $0.00 | | |
| HOSP2CASH | HOSP DIST #2 GENERAL | 0.0536075306 | $74,140 | $74,140 | $3.97 | | |
| SCH48MO | SCHOOL DIST #48 EP & O | 1.4120478917 | $74,140 | $74,140 | $104.69 | | |
| CEM2 | CEMETERY DIST #2 GENERAL | 0.0241266154 | $74,140 | $74,140 | $1.79 | | |
| CONSERVE | CONSERVATION FUTURES | 0.0275621078 | $74,140 | $74,140 | $2.04 | | |
| FD2 | FIRE DIST #2 GENERAL | 0.7549976873 | $74,140 | $74,140 | $55.98 | | |
| LIB1 | LIBRARY DIST #1 GENERAL | 0.2868827388 | $74,140 | $74,140 | $21.27 | | |
| PARK1 | PARK & REC DIST #1 GENERAL | 0.1474441110 | $74,140 | $74,140 | $10.93 | | |
| PORTPT | PORT OF PT GENERAL | 0.1134941229 | $74,140 | $74,140 | $8.41 | | |
| PORTPTIDD | PORT OF PT IDD 2019 | 0.2577346692 | $74,140 | $74,140 | $19.11 | | |
| PUD1 | PUD #1 GENERAL | 0.0597888892 | $74,140 | $74,140 | $4.43 | | |
| STATE | STATE SCHOOL PART 1 | 1.4940692947 | $74,140 | $74,140 | $110.77 | | |
| STATE2 | STATE SCHOOL PART 2 | 0.8050170049 | $74,140 | $74,140 | $59.68 | | |
| EMS2 | FIRE DIST #2 EMS | 0.4251727858 | $74,140 | $74,140 | $31.52 | | |
| | Total Tax Rate: | 7.5226161838 | | | | | |
| | | | | Taxes w/Current Exemptions: | $557.72 | | |
| | | | | Taxes w/o Exemptions: | $557.72 | | |
Improvement / Building
| Improvement #1: | Site Improvements | State Code: | 18 | 0.0 sqft | Value: | $827 |
Sketch
| No sketches available for this property. |
Property Image
Land
| 1 | 2265-1184S | | 0.0000 | 0.00 | 0.00 | 0.00 | 1.00 | $73,313 | $0 |
Roll Value History
| 2026 | N/A | N/A | N/A | N/A | N/A |
| 2025 | $827 | $73,313 | $0 | $74,140 | $74,140 |
| 2024 | $792 | $73,313 | $0 | $74,105 | $74,105 |
| 2023 | $758 | $61,688 | $0 | $62,446 | $62,446 |
| 2022 | $689 | $53,750 | $0 | $54,439 | $54,439 |
Deed and Sales History
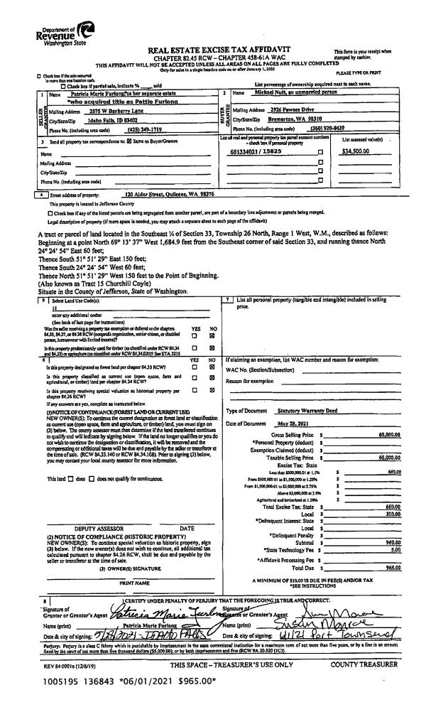
| 1 | 05/28/2021 | SWD | Statutory Warranty Deed | PATRICIA M FURLONG | MICHAEL NUTT | | | $60,000.00 | 136843 | |
| 2 | 04/26/2019 | QCD | Quit Claim Deed | LARRY FURLONG | PATRICIA M FURLONG | | | | 132204 | |
| 3 | 06/26/2002 | QCD | Quit Claim Deed | LOUISE B WIGNER | LARRY/PATTIE FURLONG | 0 | 0 | $0.00 | 95024 | 0 |
Payout Agreement
| No payout information available.. |