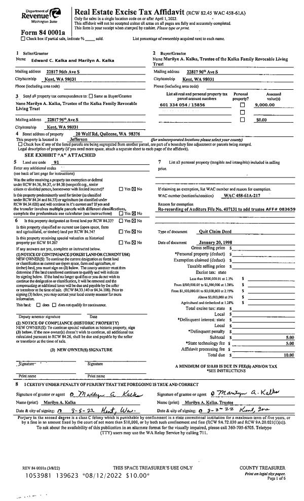
Property
Account |
| Property ID: | 15856 | Abbreviated Legal Description: | S33 T26 R1W TAX 59 TRACT 48 |
| Parcel # / Geo ID: | 601334054 | Agent Code: | |
| Type: | Real | | |
| Tax Area: | 0323 - 1-48F2E2P1H2C2L1 | Land Use Code | 91 |
| Open Space: | N | DFL | N |
| Historic Property: | N | Remodel Property: | N |
| Multi-Family Redevelopment: | N | | |
| Township: | 26N | Section: | 33 |
| Range: | 1W |
Location |
| Address: | | Mapsco: | 127/009 |
| Neighborhood: | CHURCHILL TRACTS S33 T26 R1W & S4 T25 R1W | Map ID: | |
| Neighborhood CD: | 2265 |
Owner |
| Name: | GENEVIEVE STOLL & SETH KRUEGER | Owner ID: | 107475 |
| Mailing Address: | 20 WOLF RD QUILCENE, WA 98376 | % Ownership: | 100.0000000000% |
| | | Exemptions: | |
Pay Tax Due
Select the appropriate checkbox next to the year to be paid. Multiple years may be selected.
*Convenience Fee not included
Taxes and Assessment Details
Property Tax Information as of
03/12/2026
Click on "Statement Details" to expand or collapse a tax statement.
* Please enter a valid date ** Please enter a valid date *
Statement Details |
| 2026 | 5424 | STATE - STATE LEVY (SCHOOL) | $16.53 | $16.52 | $0.00 | $0.00 | $0.00 | $33.05 |
| 2026 | 5424 | COUNTY - COUNTY LEVIES (CE, DD, VET, MH) | $6.62 | $6.59 | $0.00 | $0.00 | $0.00 | $13.21 |
| 2026 | 5424 | CONSERVE - CONSERVATION FUTURES | $0.20 | $0.20 | $0.00 | $0.00 | $0.00 | $0.40 |
| 2026 | 5424 | COROADS - COUNTY ROADS (ROADS, DIV TO CE) | $5.33 | $5.33 | $0.00 | $0.00 | $0.00 | $10.66 |
| 2026 | 5424 | PORTPT - PORT DISTRICT | $2.67 | $2.66 | $0.00 | $0.00 | $0.00 | $5.33 |
| 2026 | 5424 | PUD1 - PUD #1 | $0.43 | $0.43 | $0.00 | $0.00 | $0.00 | $0.86 |
| 2026 | 5424 | LIB1 - LIBRARY DIST #1 | $2.06 | $2.06 | $0.00 | $0.00 | $0.00 | $4.12 |
| 2026 | 5424 | HD2 - HOSP DIST #2 | $0.39 | $0.38 | $0.00 | $0.00 | $0.00 | $0.77 |
| 2026 | 5424 | SD48 - SCHOOL DIST #48 | $10.15 | $10.15 | $0.00 | $0.00 | $0.00 | $20.30 |
| 2026 | 5424 | FD2 - FIRE DISTRICT #2 | $5.43 | $5.42 | $0.00 | $0.00 | $0.00 | $10.85 |
| 2026 | 5424 | EMS2 - FIRE DIST #2 EMS | $3.06 | $3.05 | $0.00 | $0.00 | $0.00 | $6.11 |
| 2026 | 5424 | CEM2 - CEMETERY DIST #2 | $0.18 | $0.17 | $0.00 | $0.00 | $0.00 | $0.35 |
| 2026 | 5424 | PARK1 - PARK & REC DIST #1 | $1.06 | $1.06 | $0.00 | $0.00 | $0.00 | $2.12 |
| 2026 | 5424 | FP - DNR Forest Fire Protection Assmt | $8.50 | $8.50 | $0.00 | $0.00 | $0.00 | $17.00 |
| 2026 | 5424 | FPLCA - DNR Landowner Contingency Assmt | $3.00 | $3.00 | $0.00 | $0.00 | $0.00 | $6.00 |
| 2026 | 5424 | JCCD - JC Conservation District | $2.53 | $2.53 | $0.00 | $0.00 | $0.00 | $5.06 |
| 2026 | 5424 | NWA - Noxious Weed Assessment | $2.98 | $2.97 | $0.00 | $0.00 | $0.00 | $5.95 |
| 2026 | 5424 | WAT - Clean Water District | $13.00 | $13.00 | $0.00 | $0.00 | $0.00 | $26.00 |
| 2026 | 5424 | FP ADMIN - FP ADMIN | $0.50 | $0.00 | $0.00 | $0.00 | $0.00 | $0.50 |
| 2026 | 5424 | TOTAL: | $84.62 | $84.02 | $0.00 | $0.00 | $0.00 | $168.64 |
|
| 2026 | 5424 | $84.62 | $84.02 | $0.00 | $0.00 | $0.00 | $168.64 |
Statement Details |
| 2025 | 5443 | STATE - STATE LEVY (SCHOOL) | $17.24 | $17.23 | $0.00 | $0.00 | $34.47 | $0.00 |
| 2025 | 5443 | COUNTY - COUNTY LEVIES (CE, DD, VET, MH) | $6.78 | $6.78 | $0.00 | $0.00 | $13.56 | $0.00 |
| 2025 | 5443 | CONSERVE - CONSERVATION FUTURES | $0.21 | $0.20 | $0.00 | $0.00 | $0.41 | $0.00 |
| 2025 | 5443 | COROADS - COUNTY ROADS (ROADS, DIV TO CE) | $5.44 | $5.43 | $0.00 | $0.00 | $10.87 | $0.00 |
| 2025 | 5443 | PORTPT - PORT DISTRICT | $2.77 | $2.76 | $0.00 | $0.00 | $5.53 | $0.00 |
| 2025 | 5443 | PUD1 - PUD #1 | $0.45 | $0.44 | $0.00 | $0.00 | $0.89 | $0.00 |
| 2025 | 5443 | LIB1 - LIBRARY DIST #1 | $2.10 | $2.10 | $0.00 | $0.00 | $4.20 | $0.00 |
| 2025 | 5443 | HD2 - HOSP DIST #2 | $0.40 | $0.39 | $0.00 | $0.00 | $0.79 | $0.00 |
| 2025 | 5443 | SD48 - SCHOOL DIST #48 | $10.15 | $10.15 | $0.00 | $0.00 | $20.30 | $0.00 |
| 2025 | 5443 | FD2 - FIRE DISTRICT #2 | $5.61 | $5.60 | $0.00 | $0.00 | $11.21 | $0.00 |
| 2025 | 5443 | EMS2 - FIRE DIST #2 EMS | $3.16 | $3.15 | $0.00 | $0.00 | $6.31 | $0.00 |
| 2025 | 5443 | CEM2 - CEMETERY DIST #2 | $0.18 | $0.18 | $0.00 | $0.00 | $0.36 | $0.00 |
| 2025 | 5443 | PARK1 - PARK & REC DIST #1 | $0.82 | $0.82 | $0.00 | $0.00 | $1.64 | $0.00 |
| 2025 | 5443 | FP - DNR Forest Fire Protection Assmt | $8.50 | $8.50 | $0.00 | $0.00 | $17.00 | $0.00 |
| 2025 | 5443 | FPLCA - DNR Landowner Contingency Assmt | $3.00 | $3.00 | $0.00 | $0.00 | $6.00 | $0.00 |
| 2025 | 5443 | JCCD - JC Conservation District | $2.53 | $2.53 | $0.00 | $0.00 | $5.06 | $0.00 |
| 2025 | 5443 | NWA - Noxious Weed Assessment | $2.15 | $2.15 | $0.00 | $0.00 | $4.30 | $0.00 |
| 2025 | 5443 | WAT - Clean Water District | $13.00 | $13.00 | $0.00 | $0.00 | $26.00 | $0.00 |
| 2025 | 5443 | FP ADMIN - FP ADMIN | $0.50 | $0.00 | $0.00 | $0.00 | $0.50 | $0.00 |
| 2025 | 5443 | TOTAL: | $84.99 | $84.41 | $0.00 | $0.00 | $169.40 | $0.00 |
|
| 2025 | 5443 | $84.99 | $84.41 | $0.00 | $0.00 | $169.40 | $0.00 |
Statement Details |
| 2024 | 5460 | STATE - STATE LEVY (SCHOOL) | $15.18 | $15.18 | $0.00 | $0.00 | $30.36 | $0.00 |
| 2024 | 5460 | COUNTY - COUNTY LEVIES (CE, DD, VET, MH) | $6.51 | $6.47 | $0.00 | $0.00 | $12.98 | $0.00 |
| 2024 | 5460 | CONSERVE - CONSERVATION FUTURES | $0.20 | $0.19 | $0.00 | $0.00 | $0.39 | $0.00 |
| 2024 | 5460 | COROADS - COUNTY ROADS (ROADS, DIV TO CE) | $5.23 | $5.22 | $0.00 | $0.00 | $10.45 | $0.00 |
| 2024 | 5460 | PORTPT - PORT DISTRICT | $2.68 | $2.68 | $0.00 | $0.00 | $5.36 | $0.00 |
| 2024 | 5460 | PUD1 - PUD #1 | $0.43 | $0.42 | $0.00 | $0.00 | $0.85 | $0.00 |
| 2024 | 5460 | LIB1 - LIBRARY DIST #1 | $2.03 | $2.02 | $0.00 | $0.00 | $4.05 | $0.00 |
| 2024 | 5460 | HD2 - HOSP DIST #2 | $0.38 | $0.38 | $0.00 | $0.00 | $0.76 | $0.00 |
| 2024 | 5460 | SD48 - SCHOOL DIST #48 | $6.80 | $6.80 | $0.00 | $0.00 | $13.60 | $0.00 |
| 2024 | 5460 | FD2 - FIRE DISTRICT #2 | $5.40 | $5.40 | $0.00 | $0.00 | $10.80 | $0.00 |
| 2024 | 5460 | EMS2 - FIRE DIST #2 EMS | $3.04 | $3.04 | $0.00 | $0.00 | $6.08 | $0.00 |
| 2024 | 5460 | CEM2 - CEMETERY DIST #2 | $0.18 | $0.17 | $0.00 | $0.00 | $0.35 | $0.00 |
| 2024 | 5460 | PARK1 - PARK & REC DIST #1 | $0.76 | $0.76 | $0.00 | $0.00 | $1.52 | $0.00 |
| 2024 | 5460 | FP - DNR Forest Fire Protection Assmt | $8.50 | $8.50 | $0.00 | $0.00 | $17.00 | $0.00 |
| 2024 | 5460 | FPLCA - DNR Landowner Contingency Assmt | $3.00 | $3.00 | $0.00 | $0.00 | $6.00 | $0.00 |
| 2024 | 5460 | JCCD - JC Conservation District | $2.53 | $2.53 | $0.00 | $0.00 | $5.06 | $0.00 |
| 2024 | 5460 | NWA - Noxious Weed Assessment | $2.15 | $2.15 | $0.00 | $0.00 | $4.30 | $0.00 |
| 2024 | 5460 | WAT - Clean Water District | $12.50 | $12.50 | $0.00 | $0.00 | $25.00 | $0.00 |
| 2024 | 5460 | FP ADMIN - FP ADMIN | $0.50 | $0.00 | $0.00 | $0.00 | $0.50 | $0.00 |
| 2024 | 5460 | TOTAL: | $78.00 | $77.41 | $0.00 | $0.00 | $155.41 | $0.00 |
|
| 2024 | 5460 | $78.00 | $77.41 | $0.00 | $0.00 | $155.41 | $0.00 |
Statement Details |
| 2023 | 5474 | STATE - STATE LEVY (SCHOOL) | $14.72 | $14.70 | $0.00 | $0.00 | $29.42 | $0.00 |
| 2023 | 5474 | COUNTY - COUNTY LEVIES (CE, DD, VET, MH) | $6.43 | $6.40 | $0.00 | $0.00 | $12.83 | $0.00 |
| 2023 | 5474 | CONSERVE - CONSERVATION FUTURES | $0.20 | $0.19 | $0.00 | $0.00 | $0.39 | $0.00 |
| 2023 | 5474 | COROADS - COUNTY ROADS (ROADS, DIV TO CE) | $5.20 | $5.19 | $0.00 | $0.00 | $10.39 | $0.00 |
| 2023 | 5474 | PORTPT - PORT DISTRICT | $2.71 | $2.70 | $0.00 | $0.00 | $5.41 | $0.00 |
| 2023 | 5474 | PUD1 - PUD #1 | $0.43 | $0.42 | $0.00 | $0.00 | $0.85 | $0.00 |
| 2023 | 5474 | LIB1 - LIBRARY DIST #1 | $2.01 | $2.01 | $0.00 | $0.00 | $4.02 | $0.00 |
| 2023 | 5474 | HD2 - HOSP DIST #2 | $0.38 | $0.37 | $0.00 | $0.00 | $0.75 | $0.00 |
| 2023 | 5474 | SD48 - SCHOOL DIST #48 | $7.11 | $7.10 | $0.00 | $0.00 | $14.21 | $0.00 |
| 2023 | 5474 | FD2 - FIRE DISTRICT #2 | $5.58 | $5.57 | $0.00 | $0.00 | $11.15 | $0.00 |
| 2023 | 5474 | EMS2 - FIRE DIST #2 EMS | $3.13 | $3.12 | $0.00 | $0.00 | $6.25 | $0.00 |
| 2023 | 5474 | CEM2 - CEMETERY DIST #2 | $0.18 | $0.17 | $0.00 | $0.00 | $0.35 | $0.00 |
| 2023 | 5474 | PARK1 - PARK & REC DIST #1 | $0.70 | $0.70 | $0.00 | $0.00 | $1.40 | $0.00 |
| 2023 | 5474 | FP - DNR Forest Fire Protection Assmt | $8.50 | $8.50 | $0.00 | $0.00 | $17.00 | $0.00 |
| 2023 | 5474 | FPLCA - DNR Landowner Contingency Assmt | $3.00 | $3.00 | $0.00 | $0.00 | $6.00 | $0.00 |
| 2023 | 5474 | JCCD - JC Conservation District | $2.53 | $2.53 | $0.00 | $0.00 | $5.06 | $0.00 |
| 2023 | 5474 | NWA - Noxious Weed Assessment | $2.15 | $2.15 | $0.00 | $0.00 | $4.30 | $0.00 |
| 2023 | 5474 | WAT - Clean Water District | $12.00 | $12.00 | $0.00 | $0.00 | $24.00 | $0.00 |
| 2023 | 5474 | FP ADMIN - FP ADMIN | $0.50 | $0.00 | $0.00 | $0.00 | $0.50 | $0.00 |
| 2023 | 5474 | TOTAL: | $77.46 | $76.82 | $0.00 | $0.00 | $154.28 | $0.00 |
|
| 2023 | 5474 | $77.46 | $76.82 | $0.00 | $0.00 | $154.28 | $0.00 |
Values
| (+) Improvement Homesite Value: | + | $0 | |
| (+) Improvement Non-Homesite Value: | + | $0 | |
| (+) Land Homesite Value: | + | $0 | |
| (+) Land Non-Homesite Value: | + | $14,375 | |
| (+) Curr Use (HS): | + | $0 | $0 |
| (+) Curr Use (NHS): | + | $0 | $0 |
| | | -------------------------- | |
| (=) Market Value: | = | $14,375 | |
| (–) Productivity Loss: | – | $0 | |
| | | -------------------------- | |
| (=) Subtotal: | = | $14,375 | |
| (+) Senior Appraised Value: | + | $0 | |
| (+) Non-Senior Appraised Value: | + | $14,375 | |
| | | -------------------------- | |
| (=) Total Appraised Value: | = | $14,375 | |
| (–) Senior Exemption Loss: | – | $0 | |
| (–) Exemption Loss: | – | $0 | |
| | | -------------------------- | |
| (=) Taxable Value: | = | $14,375 | |
Taxing Jurisdiction
| Owner: | GENEVIEVE STOLL & SETH KRUEGER | | |
| % Ownership: | 100.0000000000% | | |
| Total Value: | $14,375 | | |
| Tax Area: | 0323 - 1-48F2E2P1H2C2L1 |
| CE | COUNTY CURRENT EXPENSE | 0.9034619479 | $14,375 | $14,375 | $12.99 | | |
| CNTYDD | DEVELOPMENTAL DISABILITIES | 0.0052121823 | $14,375 | $14,375 | $0.07 | | |
| CNTYVET | VETERANS RELIEF | 0.0052777810 | $14,375 | $14,375 | $0.08 | | |
| MENTAL | MENTAL HEALTH | 0.0052121823 | $14,375 | $14,375 | $0.07 | | |
| ROADS | COUNTY ROADS | 0.7415066410 | $14,375 | $14,375 | $10.66 | | |
| ROADSCU | COUNTY ROADS TO CUR EXP | 0.0000000000 | $14,375 | $14,375 | $0.00 | | |
| HOSP2CASH | HOSP DIST #2 GENERAL | 0.0536075306 | $14,375 | $14,375 | $0.77 | | |
| SCH48MO | SCHOOL DIST #48 EP & O | 1.4120478917 | $14,375 | $14,375 | $20.30 | | |
| CEM2 | CEMETERY DIST #2 GENERAL | 0.0241266154 | $14,375 | $14,375 | $0.35 | | |
| CONSERVE | CONSERVATION FUTURES | 0.0275621078 | $14,375 | $14,375 | $0.40 | | |
| FD2 | FIRE DIST #2 GENERAL | 0.7549976873 | $14,375 | $14,375 | $10.85 | | |
| LIB1 | LIBRARY DIST #1 GENERAL | 0.2868827388 | $14,375 | $14,375 | $4.12 | | |
| PARK1 | PARK & REC DIST #1 GENERAL | 0.1474441110 | $14,375 | $14,375 | $2.12 | | |
| PORTPT | PORT OF PT GENERAL | 0.1134941229 | $14,375 | $14,375 | $1.63 | | |
| PORTPTIDD | PORT OF PT IDD 2019 | 0.2577346692 | $14,375 | $14,375 | $3.70 | | |
| PUD1 | PUD #1 GENERAL | 0.0597888892 | $14,375 | $14,375 | $0.86 | | |
| STATE | STATE SCHOOL PART 1 | 1.4940692947 | $14,375 | $14,375 | $21.48 | | |
| STATE2 | STATE SCHOOL PART 2 | 0.8050170049 | $14,375 | $14,375 | $11.57 | | |
| EMS2 | FIRE DIST #2 EMS | 0.4251727858 | $14,375 | $14,375 | $6.11 | | |
| | Total Tax Rate: | 7.5226161838 | | | | | |
| | | | | Taxes w/Current Exemptions: | $108.13 | | |
| | | | | Taxes w/o Exemptions: | $108.13 | | |
Improvement / Building
Sketch
| No sketches available for this property. |
Property Image
Land
| 1 | 2265-1184S | | 0.0000 | 0.00 | 0.00 | 0.00 | 1.00 | $14,375 | $0 |
Roll Value History
| 2026 | N/A | N/A | N/A | N/A | N/A |
| 2025 | $0 | $14,375 | $0 | $14,375 | $14,375 |
| 2024 | $0 | $14,375 | $0 | $14,375 | $14,375 |
| 2023 | $0 | $13,125 | $0 | $13,125 | $13,125 |
| 2022 | $0 | $12,500 | $0 | $12,500 | $12,500 |
Deed and Sales History
| 1 | 08/05/2022 | SWD | Statutory Warranty Deed | EDWARD C KALKA TRSTEE | GENEVIEVE STOLL & SETH KRUEGER | | | $181,000.00 | 139624 | |
|   | |
| 2 | 07/20/1998 | QCD | Quit Claim Deed | | KALKA FAMILY REVOCABLE LIVING TRUST | | | | 57309 | |
| 3 | 01/20/1998 | QCD | Quit Claim Deed | KALKA, EDWARD C/MARILYN A | KALKA, EDWARD C & MARILYN A/TR | 0 | 0 | $0.00 | 83659 | 0 |
| 4 | 08/05/1997 | SWD | Statutory Warranty Deed | WING, FREDRICK A/BRENDA L | KALKA, ED/MARILYN | 0 | 0 | $7,000.00 | 82463 | 0 |
Payout Agreement
| No payout information available.. |