Property
Account |
| Property ID: | 15859 | Abbreviated Legal Description: | S33 T26 R1W TAX 62 TRACT 51 |
| Parcel # / Geo ID: | 601334057 | Agent Code: | |
| Type: | Real | | |
| Tax Area: | 0323 - 1-48F2E2P1H2C2L1 | Land Use Code | 11 |
| Open Space: | N | DFL | N |
| Historic Property: | N | Remodel Property: | N |
| Multi-Family Redevelopment: | N | | |
| Township: | 26N | Section: | 33 |
| Range: | 1W |
Location |
| Address: | | Mapsco: | 127/012 |
| Neighborhood: | CHURCHILL TRACTS S33 T26 R1W & S4 T25 R1W | Map ID: | |
| Neighborhood CD: | 2265 |
Owner |
| Name: | PENNYMAC LOAN SERVICES LLC | Owner ID: | 112710 |
| Mailing Address: | 6101 CONDOR DR STE 200 MOORPARK, CA 93021-2602 | % Ownership: | 100.0000000000% |
| | | Exemptions: | |
Pay Tax Due
Select the appropriate checkbox next to the year to be paid. Multiple years may be selected.
*Convenience Fee not included
Taxes and Assessment Details
Property Tax Information as of
02/13/2026
Click on "Statement Details" to expand or collapse a tax statement.
* Please enter a valid date ** Please enter a valid date *
Statement Details |
| 2026 | 5427 | STATE - STATE LEVY (SCHOOL) | $16.53 | $16.52 | $0.00 | $0.00 | $0.00 | $33.05 |
| 2026 | 5427 | COUNTY - COUNTY LEVIES (CE, DD, VET, MH) | $6.62 | $6.59 | $0.00 | $0.00 | $0.00 | $13.21 |
| 2026 | 5427 | CONSERVE - CONSERVATION FUTURES | $0.20 | $0.20 | $0.00 | $0.00 | $0.00 | $0.40 |
| 2026 | 5427 | COROADS - COUNTY ROADS (ROADS, DIV TO CE) | $5.33 | $5.33 | $0.00 | $0.00 | $0.00 | $10.66 |
| 2026 | 5427 | PORTPT - PORT DISTRICT | $2.67 | $2.66 | $0.00 | $0.00 | $0.00 | $5.33 |
| 2026 | 5427 | PUD1 - PUD #1 | $0.43 | $0.43 | $0.00 | $0.00 | $0.00 | $0.86 |
| 2026 | 5427 | LIB1 - LIBRARY DIST #1 | $2.06 | $2.06 | $0.00 | $0.00 | $0.00 | $4.12 |
| 2026 | 5427 | HD2 - HOSP DIST #2 | $0.39 | $0.38 | $0.00 | $0.00 | $0.00 | $0.77 |
| 2026 | 5427 | SD48 - SCHOOL DIST #48 | $10.15 | $10.15 | $0.00 | $0.00 | $0.00 | $20.30 |
| 2026 | 5427 | FD2 - FIRE DISTRICT #2 | $5.43 | $5.42 | $0.00 | $0.00 | $0.00 | $10.85 |
| 2026 | 5427 | EMS2 - FIRE DIST #2 EMS | $3.06 | $3.05 | $0.00 | $0.00 | $0.00 | $6.11 |
| 2026 | 5427 | CEM2 - CEMETERY DIST #2 | $0.18 | $0.17 | $0.00 | $0.00 | $0.00 | $0.35 |
| 2026 | 5427 | PARK1 - PARK & REC DIST #1 | $1.06 | $1.06 | $0.00 | $0.00 | $0.00 | $2.12 |
| 2026 | 5427 | JCCD - JC Conservation District | $2.55 | $2.55 | $0.00 | $0.00 | $0.00 | $5.10 |
| 2026 | 5427 | NWA - Noxious Weed Assessment | $2.98 | $2.97 | $0.00 | $0.00 | $0.00 | $5.95 |
| 2026 | 5427 | WAT - Clean Water District | $13.00 | $13.00 | $0.00 | $0.00 | $0.00 | $26.00 |
| 2026 | 5427 | TOTAL: | $72.64 | $72.54 | $0.00 | $0.00 | $0.00 | $145.18 |
|
| 2026 | 5427 | $72.64 | $72.54 | $0.00 | $0.00 | $0.00 | $145.18 |
Statement Details |
| 2025 | 5446 | STATE - STATE LEVY (SCHOOL) | $17.24 | $17.23 | $0.00 | $0.00 | $34.47 | $0.00 |
| 2025 | 5446 | COUNTY - COUNTY LEVIES (CE, DD, VET, MH) | $6.78 | $6.78 | $0.00 | $0.00 | $13.56 | $0.00 |
| 2025 | 5446 | CONSERVE - CONSERVATION FUTURES | $0.21 | $0.20 | $0.00 | $0.00 | $0.41 | $0.00 |
| 2025 | 5446 | COROADS - COUNTY ROADS (ROADS, DIV TO CE) | $5.44 | $5.43 | $0.00 | $0.00 | $10.87 | $0.00 |
| 2025 | 5446 | PORTPT - PORT DISTRICT | $2.77 | $2.76 | $0.00 | $0.00 | $5.53 | $0.00 |
| 2025 | 5446 | PUD1 - PUD #1 | $0.45 | $0.44 | $0.00 | $0.00 | $0.89 | $0.00 |
| 2025 | 5446 | LIB1 - LIBRARY DIST #1 | $2.10 | $2.10 | $0.00 | $0.00 | $4.20 | $0.00 |
| 2025 | 5446 | HD2 - HOSP DIST #2 | $0.40 | $0.39 | $0.00 | $0.00 | $0.79 | $0.00 |
| 2025 | 5446 | SD48 - SCHOOL DIST #48 | $10.15 | $10.15 | $0.00 | $0.00 | $20.30 | $0.00 |
| 2025 | 5446 | FD2 - FIRE DISTRICT #2 | $5.61 | $5.60 | $0.00 | $0.00 | $11.21 | $0.00 |
| 2025 | 5446 | EMS2 - FIRE DIST #2 EMS | $3.16 | $3.15 | $0.00 | $0.00 | $6.31 | $0.00 |
| 2025 | 5446 | CEM2 - CEMETERY DIST #2 | $0.18 | $0.18 | $0.00 | $0.00 | $0.36 | $0.00 |
| 2025 | 5446 | PARK1 - PARK & REC DIST #1 | $0.82 | $0.82 | $0.00 | $0.00 | $1.64 | $0.00 |
| 2025 | 5446 | JCCD - JC Conservation District | $2.55 | $2.55 | $0.00 | $0.00 | $5.10 | $0.00 |
| 2025 | 5446 | NWA - Noxious Weed Assessment | $2.15 | $2.15 | $0.00 | $0.00 | $4.30 | $0.00 |
| 2025 | 5446 | WAT - Clean Water District | $13.00 | $13.00 | $0.00 | $0.00 | $26.00 | $0.00 |
| 2025 | 5446 | TOTAL: | $73.01 | $72.93 | $0.00 | $0.00 | $145.94 | $0.00 |
|
| 2025 | 5446 | $73.01 | $72.93 | $0.00 | $0.00 | $145.94 | $0.00 |
Statement Details |
| 2024 | 5463 | STATE - STATE LEVY (SCHOOL) | $15.18 | $15.18 | $0.00 | $0.00 | $30.36 | $0.00 |
| 2024 | 5463 | COUNTY - COUNTY LEVIES (CE, DD, VET, MH) | $6.51 | $6.47 | $0.00 | $0.00 | $12.98 | $0.00 |
| 2024 | 5463 | CONSERVE - CONSERVATION FUTURES | $0.20 | $0.19 | $0.00 | $0.00 | $0.39 | $0.00 |
| 2024 | 5463 | COROADS - COUNTY ROADS (ROADS, DIV TO CE) | $5.23 | $5.22 | $0.00 | $0.00 | $10.45 | $0.00 |
| 2024 | 5463 | PORTPT - PORT DISTRICT | $2.68 | $2.68 | $0.00 | $0.00 | $5.36 | $0.00 |
| 2024 | 5463 | PUD1 - PUD #1 | $0.43 | $0.42 | $0.00 | $0.00 | $0.85 | $0.00 |
| 2024 | 5463 | LIB1 - LIBRARY DIST #1 | $2.03 | $2.02 | $0.00 | $0.00 | $4.05 | $0.00 |
| 2024 | 5463 | HD2 - HOSP DIST #2 | $0.38 | $0.38 | $0.00 | $0.00 | $0.76 | $0.00 |
| 2024 | 5463 | SD48 - SCHOOL DIST #48 | $6.80 | $6.80 | $0.00 | $0.00 | $13.60 | $0.00 |
| 2024 | 5463 | FD2 - FIRE DISTRICT #2 | $5.40 | $5.40 | $0.00 | $0.00 | $10.80 | $0.00 |
| 2024 | 5463 | EMS2 - FIRE DIST #2 EMS | $3.04 | $3.04 | $0.00 | $0.00 | $6.08 | $0.00 |
| 2024 | 5463 | CEM2 - CEMETERY DIST #2 | $0.18 | $0.17 | $0.00 | $0.00 | $0.35 | $0.00 |
| 2024 | 5463 | PARK1 - PARK & REC DIST #1 | $0.76 | $0.76 | $0.00 | $0.00 | $1.52 | $0.00 |
| 2024 | 5463 | JCCD - JC Conservation District | $2.55 | $2.55 | $0.00 | $0.00 | $5.10 | $0.00 |
| 2024 | 5463 | NWA - Noxious Weed Assessment | $2.15 | $2.15 | $0.00 | $0.00 | $4.30 | $0.00 |
| 2024 | 5463 | WAT - Clean Water District | $12.50 | $12.50 | $0.00 | $0.00 | $25.00 | $0.00 |
| 2024 | 5463 | TOTAL: | $66.02 | $65.93 | $0.00 | $0.00 | $131.95 | $0.00 |
|
| 2024 | 5463 | $66.02 | $65.93 | $0.00 | $0.00 | $131.95 | $0.00 |
Statement Details |
| 2023 | 5477 | STATE - STATE LEVY (SCHOOL) | $14.72 | $14.70 | $0.00 | $0.00 | $29.42 | $0.00 |
| 2023 | 5477 | COUNTY - COUNTY LEVIES (CE, DD, VET, MH) | $6.43 | $6.40 | $0.00 | $0.00 | $12.83 | $0.00 |
| 2023 | 5477 | CONSERVE - CONSERVATION FUTURES | $0.20 | $0.19 | $0.00 | $0.00 | $0.39 | $0.00 |
| 2023 | 5477 | COROADS - COUNTY ROADS (ROADS, DIV TO CE) | $5.20 | $5.19 | $0.00 | $0.00 | $10.39 | $0.00 |
| 2023 | 5477 | PORTPT - PORT DISTRICT | $2.71 | $2.70 | $0.00 | $0.00 | $5.41 | $0.00 |
| 2023 | 5477 | PUD1 - PUD #1 | $0.43 | $0.42 | $0.00 | $0.00 | $0.85 | $0.00 |
| 2023 | 5477 | LIB1 - LIBRARY DIST #1 | $2.01 | $2.01 | $0.00 | $0.00 | $4.02 | $0.00 |
| 2023 | 5477 | HD2 - HOSP DIST #2 | $0.38 | $0.37 | $0.00 | $0.00 | $0.75 | $0.00 |
| 2023 | 5477 | SD48 - SCHOOL DIST #48 | $7.11 | $7.10 | $0.00 | $0.00 | $14.21 | $0.00 |
| 2023 | 5477 | FD2 - FIRE DISTRICT #2 | $5.58 | $5.57 | $0.00 | $0.00 | $11.15 | $0.00 |
| 2023 | 5477 | EMS2 - FIRE DIST #2 EMS | $3.13 | $3.12 | $0.00 | $0.00 | $6.25 | $0.00 |
| 2023 | 5477 | CEM2 - CEMETERY DIST #2 | $0.18 | $0.17 | $0.00 | $0.00 | $0.35 | $0.00 |
| 2023 | 5477 | PARK1 - PARK & REC DIST #1 | $0.70 | $0.70 | $0.00 | $0.00 | $1.40 | $0.00 |
| 2023 | 5477 | JCCD - JC Conservation District | $2.53 | $2.53 | $0.00 | $0.00 | $5.06 | $0.00 |
| 2023 | 5477 | NWA - Noxious Weed Assessment | $2.15 | $2.15 | $0.00 | $0.00 | $4.30 | $0.00 |
| 2023 | 5477 | WAT - Clean Water District | $12.00 | $12.00 | $0.00 | $0.00 | $24.00 | $0.00 |
| 2023 | 5477 | TOTAL: | $65.46 | $65.32 | $0.00 | $0.00 | $130.78 | $0.00 |
|
| 2023 | 5477 | $65.46 | $65.32 | $0.00 | $0.00 | $130.78 | $0.00 |
Values
| (+) Improvement Homesite Value: | + | $0 | |
| (+) Improvement Non-Homesite Value: | + | $0 | |
| (+) Land Homesite Value: | + | $0 | |
| (+) Land Non-Homesite Value: | + | $14,375 | |
| (+) Curr Use (HS): | + | $0 | $0 |
| (+) Curr Use (NHS): | + | $0 | $0 |
| | | -------------------------- | |
| (=) Market Value: | = | $14,375 | |
| (–) Productivity Loss: | – | $0 | |
| | | -------------------------- | |
| (=) Subtotal: | = | $14,375 | |
| (+) Senior Appraised Value: | + | $0 | |
| (+) Non-Senior Appraised Value: | + | $14,375 | |
| | | -------------------------- | |
| (=) Total Appraised Value: | = | $14,375 | |
| (–) Senior Exemption Loss: | – | $0 | |
| (–) Exemption Loss: | – | $0 | |
| | | -------------------------- | |
| (=) Taxable Value: | = | $14,375 | |
Taxing Jurisdiction
| Owner: | PENNYMAC LOAN SERVICES LLC | | |
| % Ownership: | 100.0000000000% | | |
| Total Value: | N/A | | |
| Tax Area: | 0323 - 1-48F2E2P1H2C2L1 |
| CE | COUNTY CURRENT EXPENSE | N/A | N/A | N/A | N/A | | |
| CNTYDD | DEVELOPMENTAL DISABILITIES | N/A | N/A | N/A | N/A | | |
| CNTYVET | VETERANS RELIEF | N/A | N/A | N/A | N/A | | |
| MENTAL | MENTAL HEALTH | N/A | N/A | N/A | N/A | | |
| ROADS | COUNTY ROADS | N/A | N/A | N/A | N/A | | |
| HOSP2CASH | HOSP DIST #2 GENERAL | N/A | N/A | N/A | N/A | | |
| SCH48MO | SCHOOL DIST #48 EP & O | N/A | N/A | N/A | N/A | | |
| CEM2 | CEMETERY DIST #2 GENERAL | N/A | N/A | N/A | N/A | | |
| CONSERVE | CONSERVATION FUTURES | N/A | N/A | N/A | N/A | | |
| FD2 | FIRE DIST #2 GENERAL | N/A | N/A | N/A | N/A | | |
| LIB1 | LIBRARY DIST #1 GENERAL | N/A | N/A | N/A | N/A | | |
| PARK1 | PARK & REC DIST #1 GENERAL | N/A | N/A | N/A | N/A | | |
| PORTPT | PORT OF PT GENERAL | N/A | N/A | N/A | N/A | | |
| PORTPTIDD | PORT OF PT IDD 2019 | N/A | N/A | N/A | N/A | | |
| PUD1 | PUD #1 GENERAL | N/A | N/A | N/A | N/A | | |
| STATE | STATE SCHOOL PART 1 | N/A | N/A | N/A | N/A | | |
| STATE2 | STATE SCHOOL PART 2 | N/A | N/A | N/A | N/A | | |
| EMS2 | FIRE DIST #2 EMS | N/A | N/A | N/A | N/A | | |
| | Total Tax Rate: | N/A | | | | | |
| | | | | Taxes w/Current Exemptions: | N/A | | |
| | | | | Taxes w/o Exemptions: | N/A | | |
Improvement / Building
Sketch
| No sketches available for this property. |
Property Image
Land
| 1 | 2265-1184S | | 0.0000 | 0.00 | 0.00 | 0.00 | 1.00 | $14,375 | $0 |
Roll Value History
| 2026 | N/A | N/A | N/A | N/A | N/A |
| 2025 | $0 | $14,375 | $0 | $14,375 | $14,375 |
| 2024 | $0 | $14,375 | $0 | $14,375 | $14,375 |
| 2023 | $0 | $13,125 | $0 | $13,125 | $13,125 |
| 2022 | $0 | $12,500 | $0 | $12,500 | $12,500 |
Deed and Sales History
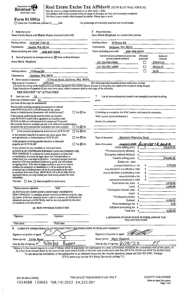
| 1 | 05/28/2025 | TRED | Trustee Deed | MARK SKOGLUND | PENNYMAC LOAN SERVICES LLC | | | | 144383 | |
| 2 | 08/15/2022 | SWD | Statutory Warranty Deed | CURTIS & SHASTA HAYES | MARK SKOGLUND | | | $270,000.00 | 139665 | |
|   | |
| 3 | 11/24/2014 | SWD | Statutory Warranty Deed | | | | | | 122357 | |
| 4 | 11/24/2014 | SWD | Statutory Warranty Deed | LEONARD A SKOOG | CURTIS & SHASTA HAYES | | | $58,000.00 | 122299 | |
|   | |
| 5 | 01/10/2000 | SWD | Statutory Warranty Deed | SAMPSON, JOSEPH B/JR EST | SKOOG, LEONARD | 0 | 0 | $60,000.00 | 88860 | 0 |
|   | |
Payout Agreement
| No payout information available.. |