Property
Account |
| Property ID: | 15882 | Abbreviated Legal Description: | S33 T26 R1W TAX 88 TRACT 77 |
| Parcel # / Geo ID: | 601334083 | Agent Code: | |
| Type: | Real | | |
| Tax Area: | 0323 - 1-48F2E2P1H2C2L1 | Land Use Code | 11 |
| Open Space: | N | DFL | N |
| Historic Property: | N | Remodel Property: | N |
| Multi-Family Redevelopment: | N | | |
| Township: | 26N | Section: | 33 |
| Range: | 1W |
Location |
| Address: | 51 HICKORY ST QUILCENE, WA 98376 | Mapsco: | 127/038 |
| Neighborhood: | CHURCHILL TRACTS S33 T26 R1W & S4 T25 R1W | Map ID: | |
| Neighborhood CD: | 2265 |
Owner |
| Name: | CHRISTY A PROCTOR | Owner ID: | 110381 |
| Mailing Address: | 51 HICKORY ST QUILCENE, WA 98376-7800 | % Ownership: | 100.0000000000% |
| | | Exemptions: | SNR/DSBL |
Pay Tax Due
There is currently No Amount Due on this property.
Taxes and Assessment Details
Property Tax Information as of
03/10/2026
Click on "Statement Details" to expand or collapse a tax statement.
* Please enter a valid date ** Please enter a valid date *
Statement Details |
| | TOTAL: | $0.00 | $0.00 | $0.00 | $0.00 | $0.00 | $0.00 |
|
| | $0.00 | $0.00 | $0.00 | $0.00 | $0.00 | $0.00 |
Values
| (+) Improvement Homesite Value: | + | $22,309 | |
| (+) Improvement Non-Homesite Value: | + | $0 | |
| (+) Land Homesite Value: | + | $63,250 | |
| (+) Land Non-Homesite Value: | + | $0 | |
| (+) Curr Use (HS): | + | $0 | $0 |
| (+) Curr Use (NHS): | + | $0 | $0 |
| | | -------------------------- | |
| (=) Market Value: | = | $85,559 | |
| (–) Productivity Loss: | – | $0 | |
| | | -------------------------- | |
| (=) Subtotal: | = | $85,559 | |
| (+) Senior Appraised Value: | + | $72,950 | |
| (+) Non-Senior Appraised Value: | + | $0 | |
| | | -------------------------- | |
| (=) Total Appraised Value: | = | $72,950 | |
| (–) Senior Exemption Loss: | – | $60,000 | |
| (–) Exemption Loss: | – | $0 | |
| | | -------------------------- | |
| (=) Taxable Value: | = | $12,950 | |
Taxing Jurisdiction
| Owner: | CHRISTY A PROCTOR | | |
| % Ownership: | 100.0000000000% | | |
| Total Value: | $85,559 | | |
| Tax Area: | 0323 - 1-48F2E2P1H2C2L1 |
| CE | COUNTY CURRENT EXPENSE | 0.9034619479 | $85,559 | $12,950 | $11.70 | | |
| CNTYDD | DEVELOPMENTAL DISABILITIES | 0.0052121823 | $85,559 | $12,950 | $0.07 | | |
| CNTYVET | VETERANS RELIEF | 0.0052777810 | $85,559 | $12,950 | $0.07 | | |
| MENTAL | MENTAL HEALTH | 0.0052121823 | $85,559 | $12,950 | $0.07 | | |
| ROADS | COUNTY ROADS | 0.7415066410 | $85,559 | $12,950 | $9.60 | | |
| ROADSCU | COUNTY ROADS TO CUR EXP | 0.0000000000 | $85,559 | $12,950 | $0.00 | | |
| HOSP2CASH | HOSP DIST #2 GENERAL | 0.0536075306 | $85,559 | $12,950 | $0.69 | | |
| SCH48MO | SCHOOL DIST #48 EP & O | 0.0000000000 | $85,559 | $0 | $0.00 | | |
| CEM2 | CEMETERY DIST #2 GENERAL | 0.0241266154 | $85,559 | $12,950 | $0.31 | | |
| CONSERVE | CONSERVATION FUTURES | 0.0275621078 | $85,559 | $12,950 | $0.36 | | |
| FD2 | FIRE DIST #2 GENERAL | 0.7549976873 | $85,559 | $12,950 | $9.78 | | |
| LIB1 | LIBRARY DIST #1 GENERAL | 0.2868827388 | $85,559 | $12,950 | $3.72 | | |
| PARK1 | PARK & REC DIST #1 GENERAL | 0.1474441110 | $85,559 | $12,950 | $1.91 | | |
| PORTPT | PORT OF PT GENERAL | 0.1134941229 | $85,559 | $12,950 | $1.47 | | |
| PORTPTIDD | PORT OF PT IDD 2019 | 0.2577346692 | $85,559 | $12,950 | $3.34 | | |
| PUD1 | PUD #1 GENERAL | 0.0597888892 | $85,559 | $12,950 | $0.77 | | |
| STATE | STATE SCHOOL PART 1 | 1.4940692947 | $85,559 | $12,950 | $19.35 | | |
| STATE2 | STATE SCHOOL PART 2 | 0.0000000000 | $85,559 | $0 | $0.00 | | |
| EMS2 | FIRE DIST #2 EMS | 0.4251727858 | $85,559 | $12,950 | $5.51 | | |
| | Total Tax Rate: | 5.3055512872 | | | | | |
| | | | | Taxes w/Current Exemptions: | $68.72 | | |
| | | | | Taxes w/o Exemptions: | $643.65 | | |
Improvement / Building
| Improvement #1: | Manufactured Home | State Code: | 11 | 360.0 sqft | Value: | $22,309 |
| Exterior Wall: | PL/T1 | Floor Construction: | FRAME | | Foundation: | PO&BL | Heating/Cooling: | F/A | | Roof Cover: | METAL |   |   |
|
| | Type | Description | Class CD | Sub Class CD | Year Built | Area |
| | MA | Main Area | 3 | MSG | 1953 | 360.0 |
| | MENCL | MH Enclosure | 3 | * | 1953 | 250.0 |
| | MRPO | MH Roof Porch | 3 | * | 1953 | 360.0 |
| | MCPOR | MH Concrete Porch | 3 | * | 1953 | 160.0 |
| | CARPTN | Carport W/O Floor | 3 | * | 1953 | 400.0 |
Sketch
Property Image
Land
| 1 | 2265-1184S | Lots in Churchill Tracts, Typically above Road | 0.0000 | 0.00 | 0.00 | 0.00 | 1.00 | $63,250 | $0 |
Roll Value History
| 2026 | N/A | N/A | N/A | N/A | N/A |
| 2025 | $22,309 | $63,250 | $0 | $85,559 | $12,950 |
| 2024 | $21,380 | $63,250 | $0 | $84,630 | $12,950 |
| 2023 | $20,450 | $52,500 | $0 | $72,950 | $22,950 |
| 2022 | $7,648 | $45,000 | $0 | $52,648 | $52,648 |
Deed and Sales History
| 1 | 11/05/2023 | DTH CERT | Death Certificate | MARVIN F PROCTOR | CHRISTY A PROCTOR | | | | 0 | 664734 |
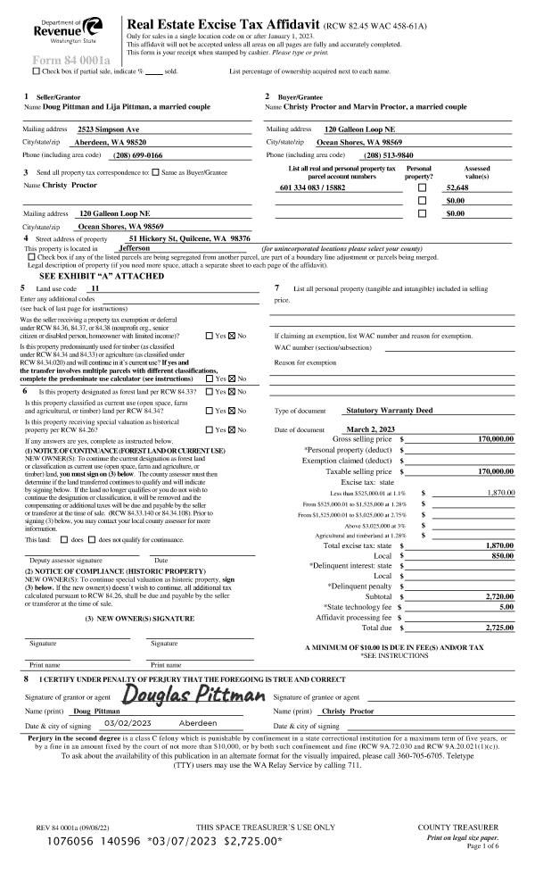
| 2 | 03/02/2023 | SWD | Statutory Warranty Deed | DOUG & LIJA PITTMAN | CHRISTY & MARVIN PROCTOR | | | $170,000.00 | 140596 | |
| 3 | 11/05/2020 | SWD | Statutory Warranty Deed | GARY NACCARATO | DOUG & LIJA PITTMAN | | | $28,000.00 | 135544 | |
| 4 | 03/06/2000 | SWD | Statutory Warranty Deed | GREY, EDWARD D | NACCARATO, GARY/JANE | 0 | 0 | $25,000.00 | 89183 | 0 |
Payout Agreement
| No payout information available.. |