Property
Account |
| Property ID: | 15964 | Abbreviated Legal Description: | S33 T26 R1W TAX 177 TRACT 166 |
| Parcel # / Geo ID: | 601334172 | Agent Code: | |
| Type: | Real | | |
| Tax Area: | 0323 - 1-48F2E2P1H2C2L1 | Land Use Code | 18 |
| Open Space: | N | DFL | N |
| Historic Property: | N | Remodel Property: | N |
| Multi-Family Redevelopment: | N | | |
| Township: | 26N | Section: | 33 |
| Range: | 1W |
Location |
| Address: | | Mapsco: | 129/028 |
| Neighborhood: | CHURCHILL TRACTS S33 T26 R1W & S4 T25 R1W | Map ID: | |
| Neighborhood CD: | 2265 |
Owner |
| Name: | LARON WILLIAMS | Owner ID: | 30523 |
| Mailing Address: | 290733 US HWY 101 QUILCENE, WA 98376-9575 | % Ownership: | 100.0000000000% |
| | | Exemptions: | |
Pay Tax Due
Select the appropriate checkbox next to the year to be paid. Multiple years may be selected.
*Convenience Fee not included
Taxes and Assessment Details
Property Tax Information as of
03/10/2026
Click on "Statement Details" to expand or collapse a tax statement.
* Please enter a valid date ** Please enter a valid date *
Statement Details |
| 2026 | 5531 | STATE - STATE LEVY (SCHOOL) | $18.71 | $18.71 | $0.00 | $0.00 | $0.00 | $37.42 |
| 2026 | 5531 | COUNTY - COUNTY LEVIES (CE, DD, VET, MH) | $7.48 | $7.47 | $0.00 | $0.00 | $0.00 | $14.95 |
| 2026 | 5531 | CONSERVE - CONSERVATION FUTURES | $0.23 | $0.22 | $0.00 | $0.00 | $0.00 | $0.45 |
| 2026 | 5531 | COROADS - COUNTY ROADS (ROADS, DIV TO CE) | $6.04 | $6.03 | $0.00 | $0.00 | $0.00 | $12.07 |
| 2026 | 5531 | PORTPT - PORT DISTRICT | $3.03 | $3.01 | $0.00 | $0.00 | $0.00 | $6.04 |
| 2026 | 5531 | PUD1 - PUD #1 | $0.49 | $0.48 | $0.00 | $0.00 | $0.00 | $0.97 |
| 2026 | 5531 | LIB1 - LIBRARY DIST #1 | $2.34 | $2.33 | $0.00 | $0.00 | $0.00 | $4.67 |
| 2026 | 5531 | HD2 - HOSP DIST #2 | $0.44 | $0.43 | $0.00 | $0.00 | $0.00 | $0.87 |
| 2026 | 5531 | SD48 - SCHOOL DIST #48 | $11.49 | $11.49 | $0.00 | $0.00 | $0.00 | $22.98 |
| 2026 | 5531 | FD2 - FIRE DISTRICT #2 | $6.15 | $6.14 | $0.00 | $0.00 | $0.00 | $12.29 |
| 2026 | 5531 | EMS2 - FIRE DIST #2 EMS | $3.46 | $3.46 | $0.00 | $0.00 | $0.00 | $6.92 |
| 2026 | 5531 | CEM2 - CEMETERY DIST #2 | $0.20 | $0.19 | $0.00 | $0.00 | $0.00 | $0.39 |
| 2026 | 5531 | PARK1 - PARK & REC DIST #1 | $1.20 | $1.20 | $0.00 | $0.00 | $0.00 | $2.40 |
| 2026 | 5531 | FPLCA - DNR Landowner Contingency Assmt | $3.00 | $3.00 | $0.00 | $0.00 | $0.00 | $6.00 |
| 2026 | 5531 | JCCD - JC Conservation District | $2.53 | $2.53 | $0.00 | $0.00 | $0.00 | $5.06 |
| 2026 | 5531 | NWA - Noxious Weed Assessment | $2.98 | $2.97 | $0.00 | $0.00 | $0.00 | $5.95 |
| 2026 | 5531 | WAT - Clean Water District | $13.00 | $13.00 | $0.00 | $0.00 | $0.00 | $26.00 |
| 2026 | 5531 | TOTAL: | $82.77 | $82.66 | $0.00 | $0.00 | $0.00 | $165.43 |
|
| 2026 | 5531 | $82.77 | $82.66 | $0.00 | $0.00 | $0.00 | $165.43 |
Statement Details |
| 2025 | 5550 | STATE - STATE LEVY (SCHOOL) | $19.43 | $19.41 | $0.00 | $0.00 | $38.84 | $0.00 |
| 2025 | 5550 | COUNTY - COUNTY LEVIES (CE, DD, VET, MH) | $7.66 | $7.62 | $0.00 | $0.00 | $15.28 | $0.00 |
| 2025 | 5550 | CONSERVE - CONSERVATION FUTURES | $0.23 | $0.23 | $0.00 | $0.00 | $0.46 | $0.00 |
| 2025 | 5550 | COROADS - COUNTY ROADS (ROADS, DIV TO CE) | $6.12 | $6.11 | $0.00 | $0.00 | $12.23 | $0.00 |
| 2025 | 5550 | PORTPT - PORT DISTRICT | $3.13 | $3.11 | $0.00 | $0.00 | $6.24 | $0.00 |
| 2025 | 5550 | PUD1 - PUD #1 | $0.50 | $0.50 | $0.00 | $0.00 | $1.00 | $0.00 |
| 2025 | 5550 | LIB1 - LIBRARY DIST #1 | $2.37 | $2.36 | $0.00 | $0.00 | $4.73 | $0.00 |
| 2025 | 5550 | HD2 - HOSP DIST #2 | $0.45 | $0.44 | $0.00 | $0.00 | $0.89 | $0.00 |
| 2025 | 5550 | SD48 - SCHOOL DIST #48 | $11.44 | $11.43 | $0.00 | $0.00 | $22.87 | $0.00 |
| 2025 | 5550 | FD2 - FIRE DISTRICT #2 | $6.32 | $6.31 | $0.00 | $0.00 | $12.63 | $0.00 |
| 2025 | 5550 | EMS2 - FIRE DIST #2 EMS | $3.56 | $3.55 | $0.00 | $0.00 | $7.11 | $0.00 |
| 2025 | 5550 | CEM2 - CEMETERY DIST #2 | $0.20 | $0.20 | $0.00 | $0.00 | $0.40 | $0.00 |
| 2025 | 5550 | PARK1 - PARK & REC DIST #1 | $0.92 | $0.92 | $0.00 | $0.00 | $1.84 | $0.00 |
| 2025 | 5550 | FP - DNR Forest Fire Protection Assmt | $8.50 | $8.50 | $0.00 | $0.00 | $17.00 | $0.00 |
| 2025 | 5550 | FPLCA - DNR Landowner Contingency Assmt | $3.00 | $3.00 | $0.00 | $0.00 | $6.00 | $0.00 |
| 2025 | 5550 | JCCD - JC Conservation District | $2.55 | $2.55 | $0.00 | $0.00 | $5.10 | $0.00 |
| 2025 | 5550 | NWA - Noxious Weed Assessment | $2.15 | $2.15 | $0.00 | $0.00 | $4.30 | $0.00 |
| 2025 | 5550 | WAT - Clean Water District | $13.00 | $13.00 | $0.00 | $0.00 | $26.00 | $0.00 |
| 2025 | 5550 | FP ADMIN - FP ADMIN | $0.50 | $0.00 | $0.00 | $0.00 | $0.50 | $0.00 |
| 2025 | 5550 | TOTAL: | $92.03 | $91.39 | $0.00 | $0.00 | $183.42 | $0.00 |
|
| 2025 | 5550 | $92.03 | $91.39 | $0.00 | $0.00 | $183.42 | $0.00 |
Statement Details |
| 2024 | 5568 | STATE - STATE LEVY (SCHOOL) | $17.21 | $17.19 | $0.00 | $0.00 | $34.40 | $0.00 |
| 2024 | 5568 | COUNTY - COUNTY LEVIES (CE, DD, VET, MH) | $7.36 | $7.35 | $0.00 | $0.00 | $14.71 | $0.00 |
| 2024 | 5568 | CONSERVE - CONSERVATION FUTURES | $0.22 | $0.22 | $0.00 | $0.00 | $0.44 | $0.00 |
| 2024 | 5568 | COROADS - COUNTY ROADS (ROADS, DIV TO CE) | $5.92 | $5.92 | $0.00 | $0.00 | $11.84 | $0.00 |
| 2024 | 5568 | PORTPT - PORT DISTRICT | $3.04 | $3.04 | $0.00 | $0.00 | $6.08 | $0.00 |
| 2024 | 5568 | PUD1 - PUD #1 | $0.49 | $0.48 | $0.00 | $0.00 | $0.97 | $0.00 |
| 2024 | 5568 | LIB1 - LIBRARY DIST #1 | $2.29 | $2.29 | $0.00 | $0.00 | $4.58 | $0.00 |
| 2024 | 5568 | HD2 - HOSP DIST #2 | $0.43 | $0.43 | $0.00 | $0.00 | $0.86 | $0.00 |
| 2024 | 5568 | SD48 - SCHOOL DIST #48 | $7.71 | $7.70 | $0.00 | $0.00 | $15.41 | $0.00 |
| 2024 | 5568 | FD2 - FIRE DISTRICT #2 | $6.12 | $6.12 | $0.00 | $0.00 | $12.24 | $0.00 |
| 2024 | 5568 | EMS2 - FIRE DIST #2 EMS | $3.45 | $3.44 | $0.00 | $0.00 | $6.89 | $0.00 |
| 2024 | 5568 | CEM2 - CEMETERY DIST #2 | $0.20 | $0.19 | $0.00 | $0.00 | $0.39 | $0.00 |
| 2024 | 5568 | PARK1 - PARK & REC DIST #1 | $0.86 | $0.86 | $0.00 | $0.00 | $1.72 | $0.00 |
| 2024 | 5568 | FP - DNR Forest Fire Protection Assmt | $8.50 | $8.50 | $0.00 | $0.00 | $17.00 | $0.00 |
| 2024 | 5568 | FPLCA - DNR Landowner Contingency Assmt | $3.00 | $3.00 | $0.00 | $0.00 | $6.00 | $0.00 |
| 2024 | 5568 | JCCD - JC Conservation District | $2.55 | $2.55 | $0.00 | $0.00 | $5.10 | $0.00 |
| 2024 | 5568 | NWA - Noxious Weed Assessment | $2.15 | $2.15 | $0.00 | $0.00 | $4.30 | $0.00 |
| 2024 | 5568 | WAT - Clean Water District | $12.50 | $12.50 | $0.00 | $0.00 | $25.00 | $0.00 |
| 2024 | 5568 | FP ADMIN - FP ADMIN | $0.50 | $0.00 | $0.00 | $0.00 | $0.50 | $0.00 |
| 2024 | 5568 | TOTAL: | $84.50 | $83.93 | $0.00 | $0.00 | $168.43 | $0.00 |
|
| 2024 | 5568 | $84.50 | $83.93 | $0.00 | $0.00 | $168.43 | $0.00 |
Statement Details |
| 2023 | 5582 | STATE - STATE LEVY (SCHOOL) | $16.58 | $16.57 | $0.00 | $0.00 | $33.15 | $0.00 |
| 2023 | 5582 | COUNTY - COUNTY LEVIES (CE, DD, VET, MH) | $7.23 | $7.23 | $0.00 | $0.00 | $14.46 | $0.00 |
| 2023 | 5582 | CONSERVE - CONSERVATION FUTURES | $0.22 | $0.21 | $0.00 | $0.00 | $0.43 | $0.00 |
| 2023 | 5582 | COROADS - COUNTY ROADS (ROADS, DIV TO CE) | $5.86 | $5.85 | $0.00 | $0.00 | $11.71 | $0.00 |
| 2023 | 5582 | PORTPT - PORT DISTRICT | $3.06 | $3.04 | $0.00 | $0.00 | $6.10 | $0.00 |
| 2023 | 5582 | PUD1 - PUD #1 | $0.48 | $0.48 | $0.00 | $0.00 | $0.96 | $0.00 |
| 2023 | 5582 | LIB1 - LIBRARY DIST #1 | $2.27 | $2.26 | $0.00 | $0.00 | $4.53 | $0.00 |
| 2023 | 5582 | HD2 - HOSP DIST #2 | $0.42 | $0.42 | $0.00 | $0.00 | $0.84 | $0.00 |
| 2023 | 5582 | SD48 - SCHOOL DIST #48 | $8.01 | $8.00 | $0.00 | $0.00 | $16.01 | $0.00 |
| 2023 | 5582 | FD2 - FIRE DISTRICT #2 | $6.28 | $6.28 | $0.00 | $0.00 | $12.56 | $0.00 |
| 2023 | 5582 | EMS2 - FIRE DIST #2 EMS | $3.52 | $3.52 | $0.00 | $0.00 | $7.04 | $0.00 |
| 2023 | 5582 | CEM2 - CEMETERY DIST #2 | $0.20 | $0.20 | $0.00 | $0.00 | $0.40 | $0.00 |
| 2023 | 5582 | PARK1 - PARK & REC DIST #1 | $0.79 | $0.78 | $0.00 | $0.00 | $1.57 | $0.00 |
| 2023 | 5582 | FP - DNR Forest Fire Protection Assmt | $8.50 | $8.50 | $0.00 | $0.00 | $17.00 | $0.00 |
| 2023 | 5582 | FPLCA - DNR Landowner Contingency Assmt | $3.00 | $3.00 | $0.00 | $0.00 | $6.00 | $0.00 |
| 2023 | 5582 | JCCD - JC Conservation District | $2.55 | $2.55 | $0.00 | $0.00 | $5.10 | $0.00 |
| 2023 | 5582 | NWA - Noxious Weed Assessment | $2.15 | $2.15 | $0.00 | $0.00 | $4.30 | $0.00 |
| 2023 | 5582 | WAT - Clean Water District | $12.00 | $12.00 | $0.00 | $0.00 | $24.00 | $0.00 |
| 2023 | 5582 | FP ADMIN - FP ADMIN | $0.50 | $0.00 | $0.00 | $0.00 | $0.50 | $0.00 |
| 2023 | 5582 | TOTAL: | $83.62 | $83.04 | $0.00 | $0.00 | $166.66 | $0.00 |
|
| 2023 | 5582 | $83.62 | $83.04 | $0.00 | $0.00 | $166.66 | $0.00 |
Values
| (+) Improvement Homesite Value: | + | $0 | |
| (+) Improvement Non-Homesite Value: | + | $1,901 | |
| (+) Land Homesite Value: | + | $0 | |
| (+) Land Non-Homesite Value: | + | $14,375 | |
| (+) Curr Use (HS): | + | $0 | $0 |
| (+) Curr Use (NHS): | + | $0 | $0 |
| | | -------------------------- | |
| (=) Market Value: | = | $16,276 | |
| (–) Productivity Loss: | – | $0 | |
| | | -------------------------- | |
| (=) Subtotal: | = | $16,276 | |
| (+) Senior Appraised Value: | + | $0 | |
| (+) Non-Senior Appraised Value: | + | $16,276 | |
| | | -------------------------- | |
| (=) Total Appraised Value: | = | $16,276 | |
| (–) Senior Exemption Loss: | – | $0 | |
| (–) Exemption Loss: | – | $0 | |
| | | -------------------------- | |
| (=) Taxable Value: | = | $16,276 | |
Taxing Jurisdiction
| Owner: | LARON WILLIAMS | | |
| % Ownership: | 100.0000000000% | | |
| Total Value: | $16,276 | | |
| Tax Area: | 0323 - 1-48F2E2P1H2C2L1 |
| CE | COUNTY CURRENT EXPENSE | 0.9034619479 | $16,276 | $16,276 | $14.70 | | |
| CNTYDD | DEVELOPMENTAL DISABILITIES | 0.0052121823 | $16,276 | $16,276 | $0.08 | | |
| CNTYVET | VETERANS RELIEF | 0.0052777810 | $16,276 | $16,276 | $0.09 | | |
| MENTAL | MENTAL HEALTH | 0.0052121823 | $16,276 | $16,276 | $0.08 | | |
| ROADS | COUNTY ROADS | 0.7415066410 | $16,276 | $16,276 | $12.07 | | |
| ROADSCU | COUNTY ROADS TO CUR EXP | 0.0000000000 | $16,276 | $16,276 | $0.00 | | |
| HOSP2CASH | HOSP DIST #2 GENERAL | 0.0536075306 | $16,276 | $16,276 | $0.87 | | |
| SCH48MO | SCHOOL DIST #48 EP & O | 1.4120478917 | $16,276 | $16,276 | $22.98 | | |
| CEM2 | CEMETERY DIST #2 GENERAL | 0.0241266154 | $16,276 | $16,276 | $0.39 | | |
| CONSERVE | CONSERVATION FUTURES | 0.0275621078 | $16,276 | $16,276 | $0.45 | | |
| FD2 | FIRE DIST #2 GENERAL | 0.7549976873 | $16,276 | $16,276 | $12.29 | | |
| LIB1 | LIBRARY DIST #1 GENERAL | 0.2868827388 | $16,276 | $16,276 | $4.67 | | |
| PARK1 | PARK & REC DIST #1 GENERAL | 0.1474441110 | $16,276 | $16,276 | $2.40 | | |
| PORTPT | PORT OF PT GENERAL | 0.1134941229 | $16,276 | $16,276 | $1.85 | | |
| PORTPTIDD | PORT OF PT IDD 2019 | 0.2577346692 | $16,276 | $16,276 | $4.19 | | |
| PUD1 | PUD #1 GENERAL | 0.0597888892 | $16,276 | $16,276 | $0.97 | | |
| STATE | STATE SCHOOL PART 1 | 1.4940692947 | $16,276 | $16,276 | $24.32 | | |
| STATE2 | STATE SCHOOL PART 2 | 0.8050170049 | $16,276 | $16,276 | $13.10 | | |
| EMS2 | FIRE DIST #2 EMS | 0.4251727858 | $16,276 | $16,276 | $6.92 | | |
| | Total Tax Rate: | 7.5226161838 | | | | | |
| | | | | Taxes w/Current Exemptions: | $122.42 | | |
| | | | | Taxes w/o Exemptions: | $122.42 | | |
Improvement / Building
| Improvement #1: | Residential Bldg | State Code: | 18 | 0.0 sqft | Value: | $1,901 |
Sketch
| No sketches available for this property. |
Property Image
Land
| 1 | 2265-1184S | | 0.0000 | 0.00 | 0.00 | 0.00 | 1.00 | $14,375 | $0 |
Roll Value History
| 2026 | N/A | N/A | N/A | N/A | N/A |
| 2025 | $1,901 | $14,375 | $0 | $16,276 | $16,276 |
| 2024 | $1,822 | $14,375 | $0 | $16,197 | $16,197 |
| 2023 | $1,742 | $13,125 | $0 | $14,867 | $14,867 |
| 2022 | $1,584 | $12,500 | $0 | $14,084 | $14,084 |
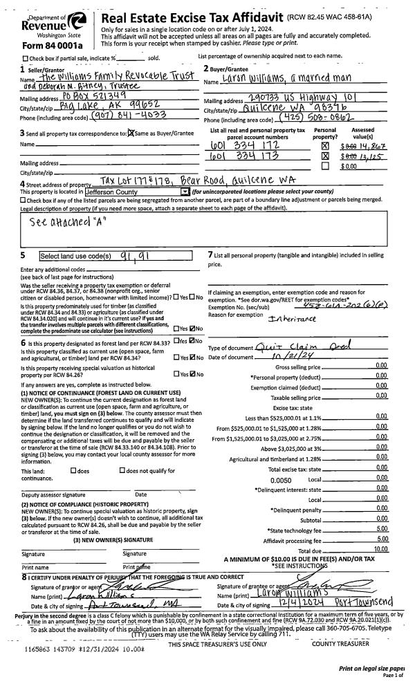
Deed and Sales History
| 1 | 10/21/2024 | QCD | Quit Claim Deed | WAYNE A WILLIAMS TRSTEE | LARON WILLIAMS | | | | 143709 | |
| 2 | 09/20/2007 | SWD | Statutory Warranty Deed | beahm, john l | williams family trust | 0 | 0 | $27,600.00 | 110073 | 0 |
|   | |
Payout Agreement
| No payout information available.. |