Property
Account |
| Property ID: | 15979 | Abbreviated Legal Description: | S33 T26 R1W TAX 192 TRACT 181 |
| Parcel # / Geo ID: | 601334187 | Agent Code: | |
| Type: | Real | | |
| Tax Area: | 0323 - 1-48F2E2P1H2C2L1 | Land Use Code | 91 |
| Open Space: | N | DFL | N |
| Historic Property: | N | Remodel Property: | N |
| Multi-Family Redevelopment: | N | | |
| Township: | 26N | Section: | 33 |
| Range: | 1W |
Location |
| Address: | | Mapsco: | 129/043 |
| Neighborhood: | CHURCHILL TRACTS S33 T26 R1W & S4 T25 R1W | Map ID: | |
| Neighborhood CD: | 2265 |
Owner |
| Name: | CHRIS M & GLENN STOBBE | Owner ID: | 100030 |
| Mailing Address: | 11 BEAR RD QUILCENE, WA 98376-9602 | % Ownership: | 100.0000000000% |
| | | Exemptions: | |
Pay Tax Due
There is currently No Amount Due on this property.
Taxes and Assessment Details
Property Tax Information as of
03/10/2026
Click on "Statement Details" to expand or collapse a tax statement.
* Please enter a valid date ** Please enter a valid date *
Statement Details |
| 2026 | 5545 | STATE - STATE LEVY (SCHOOL) | $16.53 | $16.52 | $0.00 | $0.00 | $33.05 | $0.00 |
| 2026 | 5545 | COUNTY - COUNTY LEVIES (CE, DD, VET, MH) | $6.62 | $6.59 | $0.00 | $0.00 | $13.21 | $0.00 |
| 2026 | 5545 | CONSERVE - CONSERVATION FUTURES | $0.20 | $0.20 | $0.00 | $0.00 | $0.40 | $0.00 |
| 2026 | 5545 | COROADS - COUNTY ROADS (ROADS, DIV TO CE) | $5.33 | $5.33 | $0.00 | $0.00 | $10.66 | $0.00 |
| 2026 | 5545 | PORTPT - PORT DISTRICT | $2.67 | $2.66 | $0.00 | $0.00 | $5.33 | $0.00 |
| 2026 | 5545 | PUD1 - PUD #1 | $0.43 | $0.43 | $0.00 | $0.00 | $0.86 | $0.00 |
| 2026 | 5545 | LIB1 - LIBRARY DIST #1 | $2.06 | $2.06 | $0.00 | $0.00 | $4.12 | $0.00 |
| 2026 | 5545 | HD2 - HOSP DIST #2 | $0.39 | $0.38 | $0.00 | $0.00 | $0.77 | $0.00 |
| 2026 | 5545 | SD48 - SCHOOL DIST #48 | $10.15 | $10.15 | $0.00 | $0.00 | $20.30 | $0.00 |
| 2026 | 5545 | FD2 - FIRE DISTRICT #2 | $5.43 | $5.42 | $0.00 | $0.00 | $10.85 | $0.00 |
| 2026 | 5545 | EMS2 - FIRE DIST #2 EMS | $3.06 | $3.05 | $0.00 | $0.00 | $6.11 | $0.00 |
| 2026 | 5545 | CEM2 - CEMETERY DIST #2 | $0.18 | $0.17 | $0.00 | $0.00 | $0.35 | $0.00 |
| 2026 | 5545 | PARK1 - PARK & REC DIST #1 | $1.06 | $1.06 | $0.00 | $0.00 | $2.12 | $0.00 |
| 2026 | 5545 | JCCD - JC Conservation District | $2.53 | $2.53 | $0.00 | $0.00 | $5.06 | $0.00 |
| 2026 | 5545 | NWA - Noxious Weed Assessment | $2.98 | $2.97 | $0.00 | $0.00 | $5.95 | $0.00 |
| 2026 | 5545 | WAT - Clean Water District | $13.00 | $13.00 | $0.00 | $0.00 | $26.00 | $0.00 |
| 2026 | 5545 | TOTAL: | $72.62 | $72.52 | $0.00 | $0.00 | $145.14 | $0.00 |
|
| 2026 | 5545 | $72.62 | $72.52 | $0.00 | $0.00 | $145.14 | $0.00 |
Statement Details |
| 2025 | 5565 | STATE - STATE LEVY (SCHOOL) | $17.24 | $17.23 | $0.00 | $0.00 | $34.47 | $0.00 |
| 2025 | 5565 | COUNTY - COUNTY LEVIES (CE, DD, VET, MH) | $6.78 | $6.78 | $0.00 | $0.00 | $13.56 | $0.00 |
| 2025 | 5565 | CONSERVE - CONSERVATION FUTURES | $0.21 | $0.20 | $0.00 | $0.00 | $0.41 | $0.00 |
| 2025 | 5565 | COROADS - COUNTY ROADS (ROADS, DIV TO CE) | $5.44 | $5.43 | $0.00 | $0.00 | $10.87 | $0.00 |
| 2025 | 5565 | PORTPT - PORT DISTRICT | $2.77 | $2.76 | $0.00 | $0.00 | $5.53 | $0.00 |
| 2025 | 5565 | PUD1 - PUD #1 | $0.45 | $0.44 | $0.00 | $0.00 | $0.89 | $0.00 |
| 2025 | 5565 | LIB1 - LIBRARY DIST #1 | $2.10 | $2.10 | $0.00 | $0.00 | $4.20 | $0.00 |
| 2025 | 5565 | HD2 - HOSP DIST #2 | $0.40 | $0.39 | $0.00 | $0.00 | $0.79 | $0.00 |
| 2025 | 5565 | SD48 - SCHOOL DIST #48 | $10.15 | $10.15 | $0.00 | $0.00 | $20.30 | $0.00 |
| 2025 | 5565 | FD2 - FIRE DISTRICT #2 | $5.61 | $5.60 | $0.00 | $0.00 | $11.21 | $0.00 |
| 2025 | 5565 | EMS2 - FIRE DIST #2 EMS | $3.16 | $3.15 | $0.00 | $0.00 | $6.31 | $0.00 |
| 2025 | 5565 | CEM2 - CEMETERY DIST #2 | $0.18 | $0.18 | $0.00 | $0.00 | $0.36 | $0.00 |
| 2025 | 5565 | PARK1 - PARK & REC DIST #1 | $0.82 | $0.82 | $0.00 | $0.00 | $1.64 | $0.00 |
| 2025 | 5565 | JCCD - JC Conservation District | $2.53 | $2.53 | $0.00 | $0.00 | $5.06 | $0.00 |
| 2025 | 5565 | NWA - Noxious Weed Assessment | $2.15 | $2.15 | $0.00 | $0.00 | $4.30 | $0.00 |
| 2025 | 5565 | WAT - Clean Water District | $13.00 | $13.00 | $0.00 | $0.00 | $26.00 | $0.00 |
| 2025 | 5565 | TOTAL: | $72.99 | $72.91 | $0.00 | $0.00 | $145.90 | $0.00 |
|
| 2025 | 5565 | $72.99 | $72.91 | $0.00 | $0.00 | $145.90 | $0.00 |
Statement Details |
| 2024 | 5583 | STATE - STATE LEVY (SCHOOL) | $15.18 | $15.18 | $0.00 | $0.00 | $30.36 | $0.00 |
| 2024 | 5583 | COUNTY - COUNTY LEVIES (CE, DD, VET, MH) | $6.51 | $6.47 | $0.00 | $0.00 | $12.98 | $0.00 |
| 2024 | 5583 | CONSERVE - CONSERVATION FUTURES | $0.20 | $0.19 | $0.00 | $0.00 | $0.39 | $0.00 |
| 2024 | 5583 | COROADS - COUNTY ROADS (ROADS, DIV TO CE) | $5.23 | $5.22 | $0.00 | $0.00 | $10.45 | $0.00 |
| 2024 | 5583 | PORTPT - PORT DISTRICT | $2.68 | $2.68 | $0.00 | $0.00 | $5.36 | $0.00 |
| 2024 | 5583 | PUD1 - PUD #1 | $0.43 | $0.42 | $0.00 | $0.00 | $0.85 | $0.00 |
| 2024 | 5583 | LIB1 - LIBRARY DIST #1 | $2.03 | $2.02 | $0.00 | $0.00 | $4.05 | $0.00 |
| 2024 | 5583 | HD2 - HOSP DIST #2 | $0.38 | $0.38 | $0.00 | $0.00 | $0.76 | $0.00 |
| 2024 | 5583 | SD48 - SCHOOL DIST #48 | $6.80 | $6.80 | $0.00 | $0.00 | $13.60 | $0.00 |
| 2024 | 5583 | FD2 - FIRE DISTRICT #2 | $5.40 | $5.40 | $0.00 | $0.00 | $10.80 | $0.00 |
| 2024 | 5583 | EMS2 - FIRE DIST #2 EMS | $3.04 | $3.04 | $0.00 | $0.00 | $6.08 | $0.00 |
| 2024 | 5583 | CEM2 - CEMETERY DIST #2 | $0.18 | $0.17 | $0.00 | $0.00 | $0.35 | $0.00 |
| 2024 | 5583 | PARK1 - PARK & REC DIST #1 | $0.76 | $0.76 | $0.00 | $0.00 | $1.52 | $0.00 |
| 2024 | 5583 | JCCD - JC Conservation District | $2.53 | $2.53 | $0.00 | $0.00 | $5.06 | $0.00 |
| 2024 | 5583 | NWA - Noxious Weed Assessment | $2.15 | $2.15 | $0.00 | $0.00 | $4.30 | $0.00 |
| 2024 | 5583 | WAT - Clean Water District | $12.50 | $12.50 | $0.00 | $0.00 | $25.00 | $0.00 |
| 2024 | 5583 | TOTAL: | $66.00 | $65.91 | $0.00 | $0.00 | $131.91 | $0.00 |
|
| 2024 | 5583 | $66.00 | $65.91 | $0.00 | $0.00 | $131.91 | $0.00 |
Statement Details |
| 2023 | 5597 | STATE - STATE LEVY (SCHOOL) | $14.72 | $14.70 | $0.00 | $0.00 | $29.42 | $0.00 |
| 2023 | 5597 | COUNTY - COUNTY LEVIES (CE, DD, VET, MH) | $6.43 | $6.40 | $0.00 | $0.00 | $12.83 | $0.00 |
| 2023 | 5597 | CONSERVE - CONSERVATION FUTURES | $0.20 | $0.19 | $0.00 | $0.00 | $0.39 | $0.00 |
| 2023 | 5597 | COROADS - COUNTY ROADS (ROADS, DIV TO CE) | $5.20 | $5.19 | $0.00 | $0.00 | $10.39 | $0.00 |
| 2023 | 5597 | PORTPT - PORT DISTRICT | $2.71 | $2.70 | $0.00 | $0.00 | $5.41 | $0.00 |
| 2023 | 5597 | PUD1 - PUD #1 | $0.43 | $0.42 | $0.00 | $0.00 | $0.85 | $0.00 |
| 2023 | 5597 | LIB1 - LIBRARY DIST #1 | $2.01 | $2.01 | $0.00 | $0.00 | $4.02 | $0.00 |
| 2023 | 5597 | HD2 - HOSP DIST #2 | $0.38 | $0.37 | $0.00 | $0.00 | $0.75 | $0.00 |
| 2023 | 5597 | SD48 - SCHOOL DIST #48 | $7.11 | $7.10 | $0.00 | $0.00 | $14.21 | $0.00 |
| 2023 | 5597 | FD2 - FIRE DISTRICT #2 | $5.58 | $5.57 | $0.00 | $0.00 | $11.15 | $0.00 |
| 2023 | 5597 | EMS2 - FIRE DIST #2 EMS | $3.13 | $3.12 | $0.00 | $0.00 | $6.25 | $0.00 |
| 2023 | 5597 | CEM2 - CEMETERY DIST #2 | $0.18 | $0.17 | $0.00 | $0.00 | $0.35 | $0.00 |
| 2023 | 5597 | PARK1 - PARK & REC DIST #1 | $0.70 | $0.70 | $0.00 | $0.00 | $1.40 | $0.00 |
| 2023 | 5597 | JCCD - JC Conservation District | $2.53 | $2.53 | $0.00 | $0.00 | $5.06 | $0.00 |
| 2023 | 5597 | NWA - Noxious Weed Assessment | $2.15 | $2.15 | $0.00 | $0.00 | $4.30 | $0.00 |
| 2023 | 5597 | WAT - Clean Water District | $12.00 | $12.00 | $0.00 | $0.00 | $24.00 | $0.00 |
| 2023 | 5597 | TOTAL: | $65.46 | $65.32 | $0.00 | $0.00 | $130.78 | $0.00 |
|
| 2023 | 5597 | $65.46 | $65.32 | $0.00 | $0.00 | $130.78 | $0.00 |
Values
| (+) Improvement Homesite Value: | + | $0 | |
| (+) Improvement Non-Homesite Value: | + | $0 | |
| (+) Land Homesite Value: | + | $0 | |
| (+) Land Non-Homesite Value: | + | $14,375 | |
| (+) Curr Use (HS): | + | $0 | $0 |
| (+) Curr Use (NHS): | + | $0 | $0 |
| | | -------------------------- | |
| (=) Market Value: | = | $14,375 | |
| (–) Productivity Loss: | – | $0 | |
| | | -------------------------- | |
| (=) Subtotal: | = | $14,375 | |
| (+) Senior Appraised Value: | + | $0 | |
| (+) Non-Senior Appraised Value: | + | $14,375 | |
| | | -------------------------- | |
| (=) Total Appraised Value: | = | $14,375 | |
| (–) Senior Exemption Loss: | – | $0 | |
| (–) Exemption Loss: | – | $0 | |
| | | -------------------------- | |
| (=) Taxable Value: | = | $14,375 | |
Taxing Jurisdiction
| Owner: | CHRIS M & GLENN STOBBE | | |
| % Ownership: | 100.0000000000% | | |
| Total Value: | $14,375 | | |
| Tax Area: | 0323 - 1-48F2E2P1H2C2L1 |
| CE | COUNTY CURRENT EXPENSE | 0.9034619479 | $14,375 | $14,375 | $12.99 | | |
| CNTYDD | DEVELOPMENTAL DISABILITIES | 0.0052121823 | $14,375 | $14,375 | $0.07 | | |
| CNTYVET | VETERANS RELIEF | 0.0052777810 | $14,375 | $14,375 | $0.08 | | |
| MENTAL | MENTAL HEALTH | 0.0052121823 | $14,375 | $14,375 | $0.07 | | |
| ROADS | COUNTY ROADS | 0.7415066410 | $14,375 | $14,375 | $10.66 | | |
| ROADSCU | COUNTY ROADS TO CUR EXP | 0.0000000000 | $14,375 | $14,375 | $0.00 | | |
| HOSP2CASH | HOSP DIST #2 GENERAL | 0.0536075306 | $14,375 | $14,375 | $0.77 | | |
| SCH48MO | SCHOOL DIST #48 EP & O | 1.4120478917 | $14,375 | $14,375 | $20.30 | | |
| CEM2 | CEMETERY DIST #2 GENERAL | 0.0241266154 | $14,375 | $14,375 | $0.35 | | |
| CONSERVE | CONSERVATION FUTURES | 0.0275621078 | $14,375 | $14,375 | $0.40 | | |
| FD2 | FIRE DIST #2 GENERAL | 0.7549976873 | $14,375 | $14,375 | $10.85 | | |
| LIB1 | LIBRARY DIST #1 GENERAL | 0.2868827388 | $14,375 | $14,375 | $4.12 | | |
| PARK1 | PARK & REC DIST #1 GENERAL | 0.1474441110 | $14,375 | $14,375 | $2.12 | | |
| PORTPT | PORT OF PT GENERAL | 0.1134941229 | $14,375 | $14,375 | $1.63 | | |
| PORTPTIDD | PORT OF PT IDD 2019 | 0.2577346692 | $14,375 | $14,375 | $3.70 | | |
| PUD1 | PUD #1 GENERAL | 0.0597888892 | $14,375 | $14,375 | $0.86 | | |
| STATE | STATE SCHOOL PART 1 | 1.4940692947 | $14,375 | $14,375 | $21.48 | | |
| STATE2 | STATE SCHOOL PART 2 | 0.8050170049 | $14,375 | $14,375 | $11.57 | | |
| EMS2 | FIRE DIST #2 EMS | 0.4251727858 | $14,375 | $14,375 | $6.11 | | |
| | Total Tax Rate: | 7.5226161838 | | | | | |
| | | | | Taxes w/Current Exemptions: | $108.13 | | |
| | | | | Taxes w/o Exemptions: | $108.13 | | |
Improvement / Building
Sketch
| No sketches available for this property. |
Property Image
Land
| 1 | 2265-1184S | | 0.0000 | 0.00 | 0.00 | 0.00 | 1.00 | $14,375 | $0 |
Roll Value History
| 2026 | N/A | N/A | N/A | N/A | N/A |
| 2025 | $0 | $14,375 | $0 | $14,375 | $14,375 |
| 2024 | $0 | $14,375 | $0 | $14,375 | $14,375 |
| 2023 | $0 | $13,125 | $0 | $13,125 | $13,125 |
| 2022 | $0 | $12,500 | $0 | $12,500 | $12,500 |
Deed and Sales History
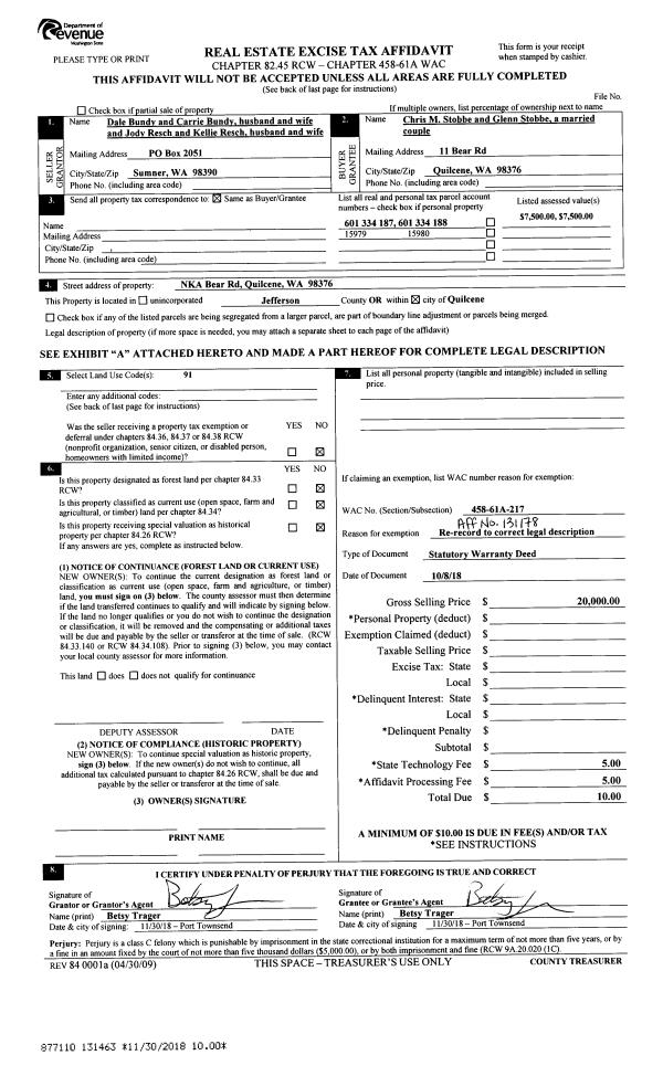
| 1 | 10/08/2018 | SWD | Statutory Warranty Deed | | | | | | 131463 | |
| 2 | 10/08/2018 | SWD | Statutory Warranty Deed | JODY RESCH | CHRIS M & GLENN STOBBE | | | $20,000.00 | 131178 | |
|   | |
| 3 | 04/25/1999 | SWD | Statutory Warranty Deed | GRATZER, STEVE & MIMI/ET | RESCH, JODY/ET AL | 0 | 0 | $4,000.00 | 86941 | 0 |
|   | |
Payout Agreement
| No payout information available.. |