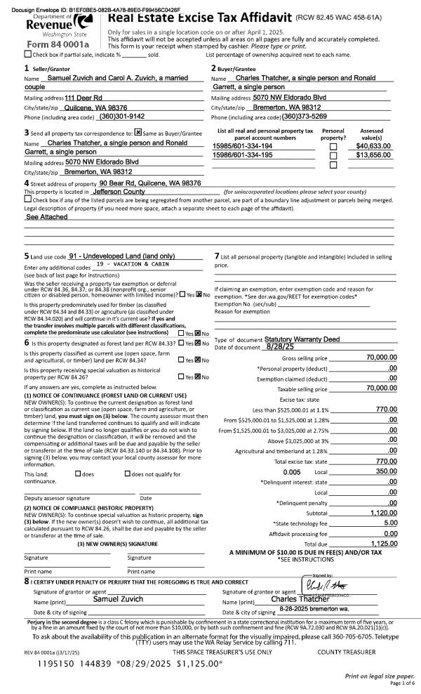
Property
Account |
| Property ID: | 15985 | Abbreviated Legal Description: | S33 T26 R1W TAX 199 TRACT 188 |
| Parcel # / Geo ID: | 601334194 | Agent Code: | |
| Type: | Real | | |
| Tax Area: | 0323 - 1-48F2E2P1H2C2L1 | Land Use Code | 19 |
| Open Space: | N | DFL | N |
| Historic Property: | N | Remodel Property: | N |
| Multi-Family Redevelopment: | N | | |
| Township: | 26N | Section: | 33 |
| Range: | 1W |
Location |
| Address: | 90 BEAR RD QUILCENE, WA 98376 | Mapsco: | 129/049 |
| Neighborhood: | CHURCHILL TRACTS S33 T26 R1W & S4 T25 R1W | Map ID: | |
| Neighborhood CD: | 2265 |
Owner |
| Name: | CHARLES THATCHER | Owner ID: | 113239 |
| Mailing Address: | RONALD GARRETT 5070 NW ELDORADO BLVD BREMERTON, WA 98312-1120 | % Ownership: | 100.0000000000% |
| | | Exemptions: | |
Pay Tax Due
There is currently No Amount Due on this property.
Taxes and Assessment Details
Property Tax Information as of
03/12/2026
Click on "Statement Details" to expand or collapse a tax statement.
* Please enter a valid date ** Please enter a valid date *
Statement Details |
| 2026 | 5551 | STATE - STATE LEVY (SCHOOL) | $65.12 | $65.12 | $0.00 | $0.00 | $130.24 | $0.00 |
| 2026 | 5551 | COUNTY - COUNTY LEVIES (CE, DD, VET, MH) | $26.04 | $26.04 | $0.00 | $0.00 | $52.08 | $0.00 |
| 2026 | 5551 | CONSERVE - CONSERVATION FUTURES | $0.78 | $0.78 | $0.00 | $0.00 | $1.56 | $0.00 |
| 2026 | 5551 | COROADS - COUNTY ROADS (ROADS, DIV TO CE) | $21.01 | $21.00 | $0.00 | $0.00 | $42.01 | $0.00 |
| 2026 | 5551 | PORTPT - PORT DISTRICT | $10.52 | $10.51 | $0.00 | $0.00 | $21.03 | $0.00 |
| 2026 | 5551 | PUD1 - PUD #1 | $1.70 | $1.69 | $0.00 | $0.00 | $3.39 | $0.00 |
| 2026 | 5551 | LIB1 - LIBRARY DIST #1 | $8.13 | $8.12 | $0.00 | $0.00 | $16.25 | $0.00 |
| 2026 | 5551 | HD2 - HOSP DIST #2 | $1.52 | $1.52 | $0.00 | $0.00 | $3.04 | $0.00 |
| 2026 | 5551 | SD48 - SCHOOL DIST #48 | $40.00 | $39.99 | $0.00 | $0.00 | $79.99 | $0.00 |
| 2026 | 5551 | FD2 - FIRE DISTRICT #2 | $21.39 | $21.38 | $0.00 | $0.00 | $42.77 | $0.00 |
| 2026 | 5551 | EMS2 - FIRE DIST #2 EMS | $12.05 | $12.04 | $0.00 | $0.00 | $24.09 | $0.00 |
| 2026 | 5551 | CEM2 - CEMETERY DIST #2 | $0.69 | $0.68 | $0.00 | $0.00 | $1.37 | $0.00 |
| 2026 | 5551 | PARK1 - PARK & REC DIST #1 | $4.18 | $4.17 | $0.00 | $0.00 | $8.35 | $0.00 |
| 2026 | 5551 | FP - DNR Forest Fire Protection Assmt | $8.50 | $8.50 | $0.00 | $0.00 | $17.00 | $0.00 |
| 2026 | 5551 | FPLCA - DNR Landowner Contingency Assmt | $3.00 | $3.00 | $0.00 | $0.00 | $6.00 | $0.00 |
| 2026 | 5551 | JCCD - JC Conservation District | $2.55 | $2.55 | $0.00 | $0.00 | $5.10 | $0.00 |
| 2026 | 5551 | NWA - Noxious Weed Assessment | $2.98 | $2.97 | $0.00 | $0.00 | $5.95 | $0.00 |
| 2026 | 5551 | WAT - Clean Water District | $13.00 | $13.00 | $0.00 | $0.00 | $26.00 | $0.00 |
| 2026 | 5551 | FP ADMIN - FP ADMIN | $0.50 | $0.00 | $0.00 | $0.00 | $0.50 | $0.00 |
| 2026 | 5551 | TOTAL: | $243.66 | $243.06 | $0.00 | $0.00 | $486.72 | $0.00 |
|
| 2026 | 5551 | $243.66 | $243.06 | $0.00 | $0.00 | $486.72 | $0.00 |
Statement Details |
| 2025 | 5571 | STATE - STATE LEVY (SCHOOL) | $48.72 | $48.71 | $0.00 | $0.00 | $97.43 | $0.00 |
| 2025 | 5571 | COUNTY - COUNTY LEVIES (CE, DD, VET, MH) | $19.16 | $19.16 | $0.00 | $0.00 | $38.32 | $0.00 |
| 2025 | 5571 | CONSERVE - CONSERVATION FUTURES | $0.58 | $0.57 | $0.00 | $0.00 | $1.15 | $0.00 |
| 2025 | 5571 | COROADS - COUNTY ROADS (ROADS, DIV TO CE) | $15.35 | $15.35 | $0.00 | $0.00 | $30.70 | $0.00 |
| 2025 | 5571 | PORTPT - PORT DISTRICT | $7.82 | $7.81 | $0.00 | $0.00 | $15.63 | $0.00 |
| 2025 | 5571 | PUD1 - PUD #1 | $1.26 | $1.25 | $0.00 | $0.00 | $2.51 | $0.00 |
| 2025 | 5571 | LIB1 - LIBRARY DIST #1 | $5.94 | $5.94 | $0.00 | $0.00 | $11.88 | $0.00 |
| 2025 | 5571 | HD2 - HOSP DIST #2 | $1.12 | $1.12 | $0.00 | $0.00 | $2.24 | $0.00 |
| 2025 | 5571 | SD48 - SCHOOL DIST #48 | $28.69 | $28.69 | $0.00 | $0.00 | $57.38 | $0.00 |
| 2025 | 5571 | FD2 - FIRE DISTRICT #2 | $15.84 | $15.84 | $0.00 | $0.00 | $31.68 | $0.00 |
| 2025 | 5571 | EMS2 - FIRE DIST #2 EMS | $8.92 | $8.92 | $0.00 | $0.00 | $17.84 | $0.00 |
| 2025 | 5571 | CEM2 - CEMETERY DIST #2 | $0.51 | $0.50 | $0.00 | $0.00 | $1.01 | $0.00 |
| 2025 | 5571 | PARK1 - PARK & REC DIST #1 | $2.32 | $2.31 | $0.00 | $0.00 | $4.63 | $0.00 |
| 2025 | 5571 | FP - DNR Forest Fire Protection Assmt | $8.50 | $8.50 | $0.00 | $0.00 | $17.00 | $0.00 |
| 2025 | 5571 | FPLCA - DNR Landowner Contingency Assmt | $3.00 | $3.00 | $0.00 | $0.00 | $6.00 | $0.00 |
| 2025 | 5571 | JCCD - JC Conservation District | $2.55 | $2.55 | $0.00 | $0.00 | $5.10 | $0.00 |
| 2025 | 5571 | NWA - Noxious Weed Assessment | $2.15 | $2.15 | $0.00 | $0.00 | $4.30 | $0.00 |
| 2025 | 5571 | OSS - On Site Septic | $21.50 | $21.50 | $0.00 | $0.00 | $43.00 | $0.00 |
| 2025 | 5571 | WAT - Clean Water District | $13.00 | $13.00 | $0.00 | $0.00 | $26.00 | $0.00 |
| 2025 | 5571 | FP ADMIN - FP ADMIN | $0.50 | $0.00 | $0.00 | $0.00 | $0.50 | $0.00 |
| 2025 | 5571 | TOTAL: | $207.43 | $206.87 | $0.00 | $0.00 | $414.30 | $0.00 |
|
| 2025 | 5571 | $207.43 | $206.87 | $0.00 | $0.00 | $414.30 | $0.00 |
Statement Details |
| 2024 | 5589 | STATE - STATE LEVY (SCHOOL) | $43.99 | $43.98 | $0.00 | $0.00 | $87.97 | $0.00 |
| 2024 | 5589 | COUNTY - COUNTY LEVIES (CE, DD, VET, MH) | $18.83 | $18.81 | $0.00 | $0.00 | $37.64 | $0.00 |
| 2024 | 5589 | CONSERVE - CONSERVATION FUTURES | $0.57 | $0.56 | $0.00 | $0.00 | $1.13 | $0.00 |
| 2024 | 5589 | COROADS - COUNTY ROADS (ROADS, DIV TO CE) | $15.15 | $15.14 | $0.00 | $0.00 | $30.29 | $0.00 |
| 2024 | 5589 | PORTPT - PORT DISTRICT | $7.78 | $7.77 | $0.00 | $0.00 | $15.55 | $0.00 |
| 2024 | 5589 | PUD1 - PUD #1 | $1.24 | $1.23 | $0.00 | $0.00 | $2.47 | $0.00 |
| 2024 | 5589 | LIB1 - LIBRARY DIST #1 | $5.86 | $5.86 | $0.00 | $0.00 | $11.72 | $0.00 |
| 2024 | 5589 | HD2 - HOSP DIST #2 | $1.10 | $1.10 | $0.00 | $0.00 | $2.20 | $0.00 |
| 2024 | 5589 | SD48 - SCHOOL DIST #48 | $19.70 | $19.70 | $0.00 | $0.00 | $39.40 | $0.00 |
| 2024 | 5589 | FD2 - FIRE DISTRICT #2 | $15.65 | $15.64 | $0.00 | $0.00 | $31.29 | $0.00 |
| 2024 | 5589 | EMS2 - FIRE DIST #2 EMS | $8.81 | $8.81 | $0.00 | $0.00 | $17.62 | $0.00 |
| 2024 | 5589 | CEM2 - CEMETERY DIST #2 | $0.50 | $0.50 | $0.00 | $0.00 | $1.00 | $0.00 |
| 2024 | 5589 | PARK1 - PARK & REC DIST #1 | $2.20 | $2.20 | $0.00 | $0.00 | $4.40 | $0.00 |
| 2024 | 5589 | FP - DNR Forest Fire Protection Assmt | $8.50 | $8.50 | $0.00 | $0.00 | $17.00 | $0.00 |
| 2024 | 5589 | FPLCA - DNR Landowner Contingency Assmt | $3.00 | $3.00 | $0.00 | $0.00 | $6.00 | $0.00 |
| 2024 | 5589 | JCCD - JC Conservation District | $2.55 | $2.55 | $0.00 | $0.00 | $5.10 | $0.00 |
| 2024 | 5589 | NWA - Noxious Weed Assessment | $2.15 | $2.15 | $0.00 | $0.00 | $4.30 | $0.00 |
| 2024 | 5589 | OSS - On Site Septic | $21.00 | $21.00 | $0.00 | $0.00 | $42.00 | $0.00 |
| 2024 | 5589 | WAT - Clean Water District | $12.50 | $12.50 | $0.00 | $0.00 | $25.00 | $0.00 |
| 2024 | 5589 | FP ADMIN - FP ADMIN | $0.50 | $0.00 | $0.00 | $0.00 | $0.50 | $0.00 |
| 2024 | 5589 | TOTAL: | $191.58 | $191.00 | $0.00 | $0.00 | $382.58 | $0.00 |
|
| 2024 | 5589 | $191.58 | $191.00 | $0.00 | $0.00 | $382.58 | $0.00 |
Statement Details |
| 2023 | 5603 | STATE - STATE LEVY (SCHOOL) | $40.42 | $40.41 | $0.00 | $0.00 | $80.83 | $0.00 |
| 2023 | 5603 | COUNTY - COUNTY LEVIES (CE, DD, VET, MH) | $17.64 | $17.63 | $0.00 | $0.00 | $35.27 | $0.00 |
| 2023 | 5603 | CONSERVE - CONSERVATION FUTURES | $0.53 | $0.53 | $0.00 | $0.00 | $1.06 | $0.00 |
| 2023 | 5603 | COROADS - COUNTY ROADS (ROADS, DIV TO CE) | $14.27 | $14.26 | $0.00 | $0.00 | $28.53 | $0.00 |
| 2023 | 5603 | PORTPT - PORT DISTRICT | $7.43 | $7.42 | $0.00 | $0.00 | $14.85 | $0.00 |
| 2023 | 5603 | PUD1 - PUD #1 | $1.17 | $1.17 | $0.00 | $0.00 | $2.34 | $0.00 |
| 2023 | 5603 | LIB1 - LIBRARY DIST #1 | $5.52 | $5.52 | $0.00 | $0.00 | $11.04 | $0.00 |
| 2023 | 5603 | HD2 - HOSP DIST #2 | $1.04 | $1.02 | $0.00 | $0.00 | $2.06 | $0.00 |
| 2023 | 5603 | SD48 - SCHOOL DIST #48 | $19.52 | $19.51 | $0.00 | $0.00 | $39.03 | $0.00 |
| 2023 | 5603 | FD2 - FIRE DISTRICT #2 | $15.31 | $15.30 | $0.00 | $0.00 | $30.61 | $0.00 |
| 2023 | 5603 | EMS2 - FIRE DIST #2 EMS | $8.59 | $8.58 | $0.00 | $0.00 | $17.17 | $0.00 |
| 2023 | 5603 | CEM2 - CEMETERY DIST #2 | $0.49 | $0.48 | $0.00 | $0.00 | $0.97 | $0.00 |
| 2023 | 5603 | PARK1 - PARK & REC DIST #1 | $1.92 | $1.91 | $0.00 | $0.00 | $3.83 | $0.00 |
| 2023 | 5603 | FP - DNR Forest Fire Protection Assmt | $8.50 | $8.50 | $0.00 | $0.00 | $17.00 | $0.00 |
| 2023 | 5603 | FPLCA - DNR Landowner Contingency Assmt | $3.00 | $3.00 | $0.00 | $0.00 | $6.00 | $0.00 |
| 2023 | 5603 | JCCD - JC Conservation District | $2.55 | $2.55 | $0.00 | $0.00 | $5.10 | $0.00 |
| 2023 | 5603 | NWA - Noxious Weed Assessment | $2.15 | $2.15 | $0.00 | $0.00 | $4.30 | $0.00 |
| 2023 | 5603 | OSS - On Site Septic | $20.50 | $20.50 | $0.00 | $0.00 | $41.00 | $0.00 |
| 2023 | 5603 | WAT - Clean Water District | $12.00 | $12.00 | $0.00 | $0.00 | $24.00 | $0.00 |
| 2023 | 5603 | FP ADMIN - FP ADMIN | $0.50 | $0.00 | $0.00 | $0.00 | $0.50 | $0.00 |
| 2023 | 5603 | TOTAL: | $183.05 | $182.44 | $0.00 | $0.00 | $365.49 | $0.00 |
|
| 2023 | 5603 | $183.05 | $182.44 | $0.00 | $0.00 | $365.49 | $0.00 |
Values
| (+) Improvement Homesite Value: | + | $0 | |
| (+) Improvement Non-Homesite Value: | + | $22,150 | |
| (+) Land Homesite Value: | + | $0 | |
| (+) Land Non-Homesite Value: | + | $34,500 | |
| (+) Curr Use (HS): | + | $0 | $0 |
| (+) Curr Use (NHS): | + | $0 | $0 |
| | | -------------------------- | |
| (=) Market Value: | = | $56,650 | |
| (–) Productivity Loss: | – | $0 | |
| | | -------------------------- | |
| (=) Subtotal: | = | $56,650 | |
| (+) Senior Appraised Value: | + | $0 | |
| (+) Non-Senior Appraised Value: | + | $56,650 | |
| | | -------------------------- | |
| (=) Total Appraised Value: | = | $56,650 | |
| (–) Senior Exemption Loss: | – | $0 | |
| (–) Exemption Loss: | – | $0 | |
| | | -------------------------- | |
| (=) Taxable Value: | = | $56,650 | |
Taxing Jurisdiction
| Owner: | CHARLES THATCHER | | |
| % Ownership: | 100.0000000000% | | |
| Total Value: | N/A | | |
| Tax Area: | 0323 - 1-48F2E2P1H2C2L1 |
| CE | COUNTY CURRENT EXPENSE | N/A | N/A | N/A | N/A | | |
| CNTYDD | DEVELOPMENTAL DISABILITIES | N/A | N/A | N/A | N/A | | |
| CNTYVET | VETERANS RELIEF | N/A | N/A | N/A | N/A | | |
| MENTAL | MENTAL HEALTH | N/A | N/A | N/A | N/A | | |
| ROADS | COUNTY ROADS | N/A | N/A | N/A | N/A | | |
| HOSP2CASH | HOSP DIST #2 GENERAL | N/A | N/A | N/A | N/A | | |
| SCH48MO | SCHOOL DIST #48 EP & O | N/A | N/A | N/A | N/A | | |
| CEM2 | CEMETERY DIST #2 GENERAL | N/A | N/A | N/A | N/A | | |
| CONSERVE | CONSERVATION FUTURES | N/A | N/A | N/A | N/A | | |
| FD2 | FIRE DIST #2 GENERAL | N/A | N/A | N/A | N/A | | |
| LIB1 | LIBRARY DIST #1 GENERAL | N/A | N/A | N/A | N/A | | |
| PARK1 | PARK & REC DIST #1 GENERAL | N/A | N/A | N/A | N/A | | |
| PORTPT | PORT OF PT GENERAL | N/A | N/A | N/A | N/A | | |
| PORTPTIDD | PORT OF PT IDD 2019 | N/A | N/A | N/A | N/A | | |
| PUD1 | PUD #1 GENERAL | N/A | N/A | N/A | N/A | | |
| STATE | STATE SCHOOL PART 1 | N/A | N/A | N/A | N/A | | |
| STATE2 | STATE SCHOOL PART 2 | N/A | N/A | N/A | N/A | | |
| EMS2 | FIRE DIST #2 EMS | N/A | N/A | N/A | N/A | | |
| | Total Tax Rate: | N/A | | | | | |
| | | | | Taxes w/Current Exemptions: | N/A | | |
| | | | | Taxes w/o Exemptions: | N/A | | |
Improvement / Building
| Improvement #1: | Residential Bldg | State Code: | 19 | 240.0 sqft | Value: | $22,150 |
| Exterior Wall: | PL/T1 | Floor Construction: | CONCR | | Foundation: | PO&BL | Heating/Cooling: | WD/NO | | Inside Verify: | YES-FIX | Roof Cover: | COMP |
|
| | Type | Description | Class CD | Sub Class CD | Year Built | Area |
| | MA | Main Area | 3 | C1S | 1997 | 240.0 |
| | MENCL | MH Enclosure | 3 | * | 1997 | 60.0 |
| | CCARPTN | Cabin Carport W/O Floor | 2 | * | 1997 | 300.0 |
Sketch
Property Image
Land
| 1 | 2265-1184S | | 0.0000 | 0.00 | 0.00 | 0.00 | 1.00 | $34,500 | $0 |
Roll Value History
| 2026 | N/A | N/A | N/A | N/A | N/A |
| 2025 | $22,150 | $34,500 | $0 | $56,650 | $56,650 |
| 2024 | $21,227 | $19,406 | $0 | $40,633 | $40,633 |
| 2023 | $20,304 | $17,719 | $0 | $38,023 | $38,023 |
| 2022 | $18,458 | $15,875 | $0 | $34,333 | $34,333 |
Deed and Sales History
| 1 | 08/28/2025 | SWD | Statutory Warranty Deed | SAMUEL ZUVICH | CHARLES THATCHER | | | $70,000.00 | 144839 | |
|   | |
Payout Agreement
| No payout information available.. |