Property
Account |
| Property ID: | 15986 | Abbreviated Legal Description: | S33 T26 R1W TAX 200 TRACT 189 |
| Parcel # / Geo ID: | 601334195 | Agent Code: | |
| Type: | Real | | |
| Tax Area: | 0323 - 1-48F2E2P1H2C2L1 | Land Use Code | 91 |
| Open Space: | N | DFL | N |
| Historic Property: | N | Remodel Property: | N |
| Multi-Family Redevelopment: | N | | |
| Township: | 26N | Section: | 33 |
| Range: | 1W |
Location |
| Address: | | Mapsco: | 129/050 |
| Neighborhood: | CHURCHILL TRACTS S33 T26 R1W & S4 T25 R1W | Map ID: | |
| Neighborhood CD: | 2265 |
Owner |
| Name: | CHARLES THATCHER | Owner ID: | 113239 |
| Mailing Address: | RONALD GARRETT 5070 NW ELDORADO BLVD BREMERTON, WA 98312-1120 | % Ownership: | 100.0000000000% |
| | | Exemptions: | |
Pay Tax Due
There is currently No Amount Due on this property.
Taxes and Assessment Details
Property Tax Information as of
03/12/2026
Click on "Statement Details" to expand or collapse a tax statement.
* Please enter a valid date ** Please enter a valid date *
Statement Details |
| 2026 | 5552 | STATE - STATE LEVY (SCHOOL) | $15.70 | $15.69 | $0.00 | $0.00 | $31.39 | $0.00 |
| 2026 | 5552 | COUNTY - COUNTY LEVIES (CE, DD, VET, MH) | $6.29 | $6.26 | $0.00 | $0.00 | $12.55 | $0.00 |
| 2026 | 5552 | CONSERVE - CONSERVATION FUTURES | $0.19 | $0.19 | $0.00 | $0.00 | $0.38 | $0.00 |
| 2026 | 5552 | COROADS - COUNTY ROADS (ROADS, DIV TO CE) | $5.07 | $5.06 | $0.00 | $0.00 | $10.13 | $0.00 |
| 2026 | 5552 | PORTPT - PORT DISTRICT | $2.54 | $2.53 | $0.00 | $0.00 | $5.07 | $0.00 |
| 2026 | 5552 | PUD1 - PUD #1 | $0.41 | $0.41 | $0.00 | $0.00 | $0.82 | $0.00 |
| 2026 | 5552 | LIB1 - LIBRARY DIST #1 | $1.96 | $1.96 | $0.00 | $0.00 | $3.92 | $0.00 |
| 2026 | 5552 | HD2 - HOSP DIST #2 | $0.37 | $0.36 | $0.00 | $0.00 | $0.73 | $0.00 |
| 2026 | 5552 | SD48 - SCHOOL DIST #48 | $9.64 | $9.64 | $0.00 | $0.00 | $19.28 | $0.00 |
| 2026 | 5552 | FD2 - FIRE DISTRICT #2 | $5.16 | $5.15 | $0.00 | $0.00 | $10.31 | $0.00 |
| 2026 | 5552 | EMS2 - FIRE DIST #2 EMS | $2.91 | $2.90 | $0.00 | $0.00 | $5.81 | $0.00 |
| 2026 | 5552 | CEM2 - CEMETERY DIST #2 | $0.17 | $0.16 | $0.00 | $0.00 | $0.33 | $0.00 |
| 2026 | 5552 | PARK1 - PARK & REC DIST #1 | $1.01 | $1.00 | $0.00 | $0.00 | $2.01 | $0.00 |
| 2026 | 5552 | FPLCA - DNR Landowner Contingency Assmt | $3.00 | $3.00 | $0.00 | $0.00 | $6.00 | $0.00 |
| 2026 | 5552 | JCCD - JC Conservation District | $2.53 | $2.53 | $0.00 | $0.00 | $5.06 | $0.00 |
| 2026 | 5552 | NWA - Noxious Weed Assessment | $2.98 | $2.97 | $0.00 | $0.00 | $5.95 | $0.00 |
| 2026 | 5552 | WAT - Clean Water District | $13.00 | $13.00 | $0.00 | $0.00 | $26.00 | $0.00 |
| 2026 | 5552 | TOTAL: | $72.93 | $72.81 | $0.00 | $0.00 | $145.74 | $0.00 |
|
| 2026 | 5552 | $72.93 | $72.81 | $0.00 | $0.00 | $145.74 | $0.00 |
Statement Details |
| 2025 | 5572 | STATE - STATE LEVY (SCHOOL) | $16.38 | $16.37 | $0.00 | $0.00 | $32.75 | $0.00 |
| 2025 | 5572 | COUNTY - COUNTY LEVIES (CE, DD, VET, MH) | $6.45 | $6.42 | $0.00 | $0.00 | $12.87 | $0.00 |
| 2025 | 5572 | CONSERVE - CONSERVATION FUTURES | $0.20 | $0.19 | $0.00 | $0.00 | $0.39 | $0.00 |
| 2025 | 5572 | COROADS - COUNTY ROADS (ROADS, DIV TO CE) | $5.16 | $5.16 | $0.00 | $0.00 | $10.32 | $0.00 |
| 2025 | 5572 | PORTPT - PORT DISTRICT | $2.63 | $2.62 | $0.00 | $0.00 | $5.25 | $0.00 |
| 2025 | 5572 | PUD1 - PUD #1 | $0.42 | $0.42 | $0.00 | $0.00 | $0.84 | $0.00 |
| 2025 | 5572 | LIB1 - LIBRARY DIST #1 | $2.00 | $1.99 | $0.00 | $0.00 | $3.99 | $0.00 |
| 2025 | 5572 | HD2 - HOSP DIST #2 | $0.38 | $0.37 | $0.00 | $0.00 | $0.75 | $0.00 |
| 2025 | 5572 | SD48 - SCHOOL DIST #48 | $9.64 | $9.64 | $0.00 | $0.00 | $19.28 | $0.00 |
| 2025 | 5572 | FD2 - FIRE DISTRICT #2 | $5.33 | $5.32 | $0.00 | $0.00 | $10.65 | $0.00 |
| 2025 | 5572 | EMS2 - FIRE DIST #2 EMS | $3.00 | $3.00 | $0.00 | $0.00 | $6.00 | $0.00 |
| 2025 | 5572 | CEM2 - CEMETERY DIST #2 | $0.17 | $0.17 | $0.00 | $0.00 | $0.34 | $0.00 |
| 2025 | 5572 | PARK1 - PARK & REC DIST #1 | $0.78 | $0.78 | $0.00 | $0.00 | $1.56 | $0.00 |
| 2025 | 5572 | FPLCA - DNR Landowner Contingency Assmt | $3.00 | $3.00 | $0.00 | $0.00 | $6.00 | $0.00 |
| 2025 | 5572 | JCCD - JC Conservation District | $2.53 | $2.53 | $0.00 | $0.00 | $5.06 | $0.00 |
| 2025 | 5572 | NWA - Noxious Weed Assessment | $2.15 | $2.15 | $0.00 | $0.00 | $4.30 | $0.00 |
| 2025 | 5572 | WAT - Clean Water District | $13.00 | $13.00 | $0.00 | $0.00 | $26.00 | $0.00 |
| 2025 | 5572 | TOTAL: | $73.22 | $73.13 | $0.00 | $0.00 | $146.35 | $0.00 |
|
| 2025 | 5572 | $73.22 | $73.13 | $0.00 | $0.00 | $146.35 | $0.00 |
Statement Details |
| 2024 | 5590 | STATE - STATE LEVY (SCHOOL) | $14.43 | $14.42 | $0.00 | $0.00 | $28.85 | $0.00 |
| 2024 | 5590 | COUNTY - COUNTY LEVIES (CE, DD, VET, MH) | $6.19 | $6.15 | $0.00 | $0.00 | $12.34 | $0.00 |
| 2024 | 5590 | CONSERVE - CONSERVATION FUTURES | $0.19 | $0.18 | $0.00 | $0.00 | $0.37 | $0.00 |
| 2024 | 5590 | COROADS - COUNTY ROADS (ROADS, DIV TO CE) | $4.97 | $4.96 | $0.00 | $0.00 | $9.93 | $0.00 |
| 2024 | 5590 | PORTPT - PORT DISTRICT | $2.55 | $2.54 | $0.00 | $0.00 | $5.09 | $0.00 |
| 2024 | 5590 | PUD1 - PUD #1 | $0.41 | $0.40 | $0.00 | $0.00 | $0.81 | $0.00 |
| 2024 | 5590 | LIB1 - LIBRARY DIST #1 | $1.92 | $1.92 | $0.00 | $0.00 | $3.84 | $0.00 |
| 2024 | 5590 | HD2 - HOSP DIST #2 | $0.36 | $0.36 | $0.00 | $0.00 | $0.72 | $0.00 |
| 2024 | 5590 | SD48 - SCHOOL DIST #48 | $6.46 | $6.46 | $0.00 | $0.00 | $12.92 | $0.00 |
| 2024 | 5590 | FD2 - FIRE DISTRICT #2 | $5.13 | $5.13 | $0.00 | $0.00 | $10.26 | $0.00 |
| 2024 | 5590 | EMS2 - FIRE DIST #2 EMS | $2.89 | $2.89 | $0.00 | $0.00 | $5.78 | $0.00 |
| 2024 | 5590 | CEM2 - CEMETERY DIST #2 | $0.17 | $0.16 | $0.00 | $0.00 | $0.33 | $0.00 |
| 2024 | 5590 | PARK1 - PARK & REC DIST #1 | $0.72 | $0.72 | $0.00 | $0.00 | $1.44 | $0.00 |
| 2024 | 5590 | FPLCA - DNR Landowner Contingency Assmt | $3.00 | $3.00 | $0.00 | $0.00 | $6.00 | $0.00 |
| 2024 | 5590 | JCCD - JC Conservation District | $2.53 | $2.53 | $0.00 | $0.00 | $5.06 | $0.00 |
| 2024 | 5590 | NWA - Noxious Weed Assessment | $2.15 | $2.15 | $0.00 | $0.00 | $4.30 | $0.00 |
| 2024 | 5590 | WAT - Clean Water District | $12.50 | $12.50 | $0.00 | $0.00 | $25.00 | $0.00 |
| 2024 | 5590 | TOTAL: | $66.57 | $66.47 | $0.00 | $0.00 | $133.04 | $0.00 |
|
| 2024 | 5590 | $66.57 | $66.47 | $0.00 | $0.00 | $133.04 | $0.00 |
Statement Details |
| 2023 | 5604 | STATE - STATE LEVY (SCHOOL) | $13.98 | $13.97 | $0.00 | $0.00 | $27.95 | $0.00 |
| 2023 | 5604 | COUNTY - COUNTY LEVIES (CE, DD, VET, MH) | $6.12 | $6.08 | $0.00 | $0.00 | $12.20 | $0.00 |
| 2023 | 5604 | CONSERVE - CONSERVATION FUTURES | $0.19 | $0.18 | $0.00 | $0.00 | $0.37 | $0.00 |
| 2023 | 5604 | COROADS - COUNTY ROADS (ROADS, DIV TO CE) | $4.94 | $4.93 | $0.00 | $0.00 | $9.87 | $0.00 |
| 2023 | 5604 | PORTPT - PORT DISTRICT | $2.58 | $2.56 | $0.00 | $0.00 | $5.14 | $0.00 |
| 2023 | 5604 | PUD1 - PUD #1 | $0.41 | $0.40 | $0.00 | $0.00 | $0.81 | $0.00 |
| 2023 | 5604 | LIB1 - LIBRARY DIST #1 | $1.91 | $1.91 | $0.00 | $0.00 | $3.82 | $0.00 |
| 2023 | 5604 | HD2 - HOSP DIST #2 | $0.36 | $0.35 | $0.00 | $0.00 | $0.71 | $0.00 |
| 2023 | 5604 | SD48 - SCHOOL DIST #48 | $6.75 | $6.75 | $0.00 | $0.00 | $13.50 | $0.00 |
| 2023 | 5604 | FD2 - FIRE DISTRICT #2 | $5.30 | $5.29 | $0.00 | $0.00 | $10.59 | $0.00 |
| 2023 | 5604 | EMS2 - FIRE DIST #2 EMS | $2.97 | $2.97 | $0.00 | $0.00 | $5.94 | $0.00 |
| 2023 | 5604 | CEM2 - CEMETERY DIST #2 | $0.17 | $0.17 | $0.00 | $0.00 | $0.34 | $0.00 |
| 2023 | 5604 | PARK1 - PARK & REC DIST #1 | $0.67 | $0.66 | $0.00 | $0.00 | $1.33 | $0.00 |
| 2023 | 5604 | FPLCA - DNR Landowner Contingency Assmt | $3.00 | $3.00 | $0.00 | $0.00 | $6.00 | $0.00 |
| 2023 | 5604 | JCCD - JC Conservation District | $2.53 | $2.53 | $0.00 | $0.00 | $5.06 | $0.00 |
| 2023 | 5604 | NWA - Noxious Weed Assessment | $2.15 | $2.15 | $0.00 | $0.00 | $4.30 | $0.00 |
| 2023 | 5604 | WAT - Clean Water District | $12.00 | $12.00 | $0.00 | $0.00 | $24.00 | $0.00 |
| 2023 | 5604 | TOTAL: | $66.03 | $65.90 | $0.00 | $0.00 | $131.93 | $0.00 |
|
| 2023 | 5604 | $66.03 | $65.90 | $0.00 | $0.00 | $131.93 | $0.00 |
Values
| (+) Improvement Homesite Value: | + | $0 | |
| (+) Improvement Non-Homesite Value: | + | $0 | |
| (+) Land Homesite Value: | + | $0 | |
| (+) Land Non-Homesite Value: | + | $13,656 | |
| (+) Curr Use (HS): | + | $0 | $0 |
| (+) Curr Use (NHS): | + | $0 | $0 |
| | | -------------------------- | |
| (=) Market Value: | = | $13,656 | |
| (–) Productivity Loss: | – | $0 | |
| | | -------------------------- | |
| (=) Subtotal: | = | $13,656 | |
| (+) Senior Appraised Value: | + | $0 | |
| (+) Non-Senior Appraised Value: | + | $13,656 | |
| | | -------------------------- | |
| (=) Total Appraised Value: | = | $13,656 | |
| (–) Senior Exemption Loss: | – | $0 | |
| (–) Exemption Loss: | – | $0 | |
| | | -------------------------- | |
| (=) Taxable Value: | = | $13,656 | |
Taxing Jurisdiction
| Owner: | CHARLES THATCHER | | |
| % Ownership: | 100.0000000000% | | |
| Total Value: | N/A | | |
| Tax Area: | 0323 - 1-48F2E2P1H2C2L1 |
| CE | COUNTY CURRENT EXPENSE | N/A | N/A | N/A | N/A | | |
| CNTYDD | DEVELOPMENTAL DISABILITIES | N/A | N/A | N/A | N/A | | |
| CNTYVET | VETERANS RELIEF | N/A | N/A | N/A | N/A | | |
| MENTAL | MENTAL HEALTH | N/A | N/A | N/A | N/A | | |
| ROADS | COUNTY ROADS | N/A | N/A | N/A | N/A | | |
| HOSP2CASH | HOSP DIST #2 GENERAL | N/A | N/A | N/A | N/A | | |
| SCH48MO | SCHOOL DIST #48 EP & O | N/A | N/A | N/A | N/A | | |
| CEM2 | CEMETERY DIST #2 GENERAL | N/A | N/A | N/A | N/A | | |
| CONSERVE | CONSERVATION FUTURES | N/A | N/A | N/A | N/A | | |
| FD2 | FIRE DIST #2 GENERAL | N/A | N/A | N/A | N/A | | |
| LIB1 | LIBRARY DIST #1 GENERAL | N/A | N/A | N/A | N/A | | |
| PARK1 | PARK & REC DIST #1 GENERAL | N/A | N/A | N/A | N/A | | |
| PORTPT | PORT OF PT GENERAL | N/A | N/A | N/A | N/A | | |
| PORTPTIDD | PORT OF PT IDD 2019 | N/A | N/A | N/A | N/A | | |
| PUD1 | PUD #1 GENERAL | N/A | N/A | N/A | N/A | | |
| STATE | STATE SCHOOL PART 1 | N/A | N/A | N/A | N/A | | |
| STATE2 | STATE SCHOOL PART 2 | N/A | N/A | N/A | N/A | | |
| EMS2 | FIRE DIST #2 EMS | N/A | N/A | N/A | N/A | | |
| | Total Tax Rate: | N/A | | | | | |
| | | | | Taxes w/Current Exemptions: | N/A | | |
| | | | | Taxes w/o Exemptions: | N/A | | |
Improvement / Building
Sketch
| No sketches available for this property. |
Property Image
Land
| 1 | 2265-1184S | | 0.0000 | 0.00 | 0.00 | 0.00 | 1.00 | $13,656 | $0 |
Roll Value History
| 2026 | N/A | N/A | N/A | N/A | N/A |
| 2025 | $0 | $13,656 | $0 | $13,656 | $13,656 |
| 2024 | $0 | $13,656 | $0 | $13,656 | $13,656 |
| 2023 | $0 | $12,469 | $0 | $12,469 | $12,469 |
| 2022 | $0 | $11,875 | $0 | $11,875 | $11,875 |
Deed and Sales History
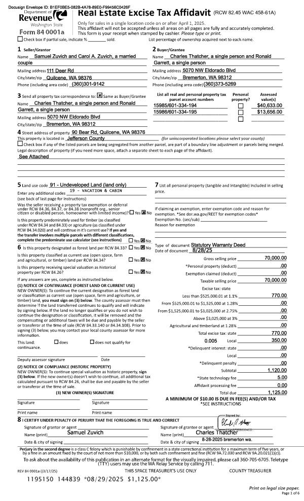
| 1 | 08/28/2025 | SWD | Statutory Warranty Deed | SAMUEL ZUVICH | CHARLES THATCHER | | | $70,000.00 | 144839 | |
|   | |
| 2 | 09/28/1993 | SWD | Statutory Warranty Deed | VALENTINE, GEORGE B/GERMA | ZUVICH, SAMUEL M | 0 | 0 | $6,500.00 | 72259 | 0 |
| 3 | 07/27/1992 | SWD | Statutory Warranty Deed | HANLEY, DANIEL P, JR/SUSA | VALENTINE, GEORGE B/GERMAINE J | 0 | 0 | $5,000.00 | 69026 | 0 |
Payout Agreement
| No payout information available.. |