Property
Account |
| Property ID: | 16036 | Abbreviated Legal Description: | S33 T26 R1W TAX 250 TRACT 239 |
| Parcel # / Geo ID: | 601334255 | Agent Code: | |
| Type: | Real | | |
| Tax Area: | 0323 - 1-48F2E2P1H2C2L1 | Land Use Code | 91 |
| Open Space: | N | DFL | N |
| Historic Property: | N | Remodel Property: | N |
| Multi-Family Redevelopment: | N | | |
| Township: | 26N | Section: | 33 |
| Range: | 1W |
Location |
| Address: | | Mapsco: | 130/051 |
| Neighborhood: | CHURCHILL TRACTS S33 T26 R1W & S4 T25 R1W | Map ID: | |
| Neighborhood CD: | 2265 |
Owner |
| Name: | REYNOLDS FAMILY TRUST | Owner ID: | 111348 |
| Mailing Address: | JAMES T & MONICA M REYNOLDS TRUSTEES 19255 40TH PL NE LAKE FOREST PARK, WA 98155-2815 | % Ownership: | 100.0000000000% |
| | | Exemptions: | |
Pay Tax Due
Select the appropriate checkbox next to the year to be paid. Multiple years may be selected.
*Convenience Fee not included
Taxes and Assessment Details
Property Tax Information as of
03/11/2026
Click on "Statement Details" to expand or collapse a tax statement.
* Please enter a valid date ** Please enter a valid date *
Statement Details |
| 2026 | 5602 | STATE - STATE LEVY (SCHOOL) | $19.84 | $19.82 | $0.00 | $0.00 | $0.00 | $39.66 |
| 2026 | 5602 | COUNTY - COUNTY LEVIES (CE, DD, VET, MH) | $7.94 | $7.91 | $0.00 | $0.00 | $0.00 | $15.85 |
| 2026 | 5602 | CONSERVE - CONSERVATION FUTURES | $0.24 | $0.24 | $0.00 | $0.00 | $0.00 | $0.48 |
| 2026 | 5602 | COROADS - COUNTY ROADS (ROADS, DIV TO CE) | $6.40 | $6.39 | $0.00 | $0.00 | $0.00 | $12.79 |
| 2026 | 5602 | PORTPT - PORT DISTRICT | $3.21 | $3.20 | $0.00 | $0.00 | $0.00 | $6.41 |
| 2026 | 5602 | PUD1 - PUD #1 | $0.52 | $0.51 | $0.00 | $0.00 | $0.00 | $1.03 |
| 2026 | 5602 | LIB1 - LIBRARY DIST #1 | $2.48 | $2.47 | $0.00 | $0.00 | $0.00 | $4.95 |
| 2026 | 5602 | HD2 - HOSP DIST #2 | $0.46 | $0.46 | $0.00 | $0.00 | $0.00 | $0.92 |
| 2026 | 5602 | SD48 - SCHOOL DIST #48 | $12.18 | $12.18 | $0.00 | $0.00 | $0.00 | $24.36 |
| 2026 | 5602 | FD2 - FIRE DISTRICT #2 | $6.51 | $6.51 | $0.00 | $0.00 | $0.00 | $13.02 |
| 2026 | 5602 | EMS2 - FIRE DIST #2 EMS | $3.67 | $3.66 | $0.00 | $0.00 | $0.00 | $7.33 |
| 2026 | 5602 | CEM2 - CEMETERY DIST #2 | $0.21 | $0.21 | $0.00 | $0.00 | $0.00 | $0.42 |
| 2026 | 5602 | PARK1 - PARK & REC DIST #1 | $1.27 | $1.27 | $0.00 | $0.00 | $0.00 | $2.54 |
| 2026 | 5602 | FPLCA - DNR Landowner Contingency Assmt | $3.00 | $3.00 | $0.00 | $0.00 | $0.00 | $6.00 |
| 2026 | 5602 | JCCD - JC Conservation District | $2.53 | $2.53 | $0.00 | $0.00 | $0.00 | $5.06 |
| 2026 | 5602 | NWA - Noxious Weed Assessment | $2.98 | $2.97 | $0.00 | $0.00 | $0.00 | $5.95 |
| 2026 | 5602 | WAT - Clean Water District | $13.00 | $13.00 | $0.00 | $0.00 | $0.00 | $26.00 |
| 2026 | 5602 | TOTAL: | $86.44 | $86.33 | $0.00 | $0.00 | $0.00 | $172.77 |
|
| 2026 | 5602 | $86.44 | $86.33 | $0.00 | $0.00 | $0.00 | $172.77 |
Statement Details |
| 2025 | 5622 | STATE - STATE LEVY (SCHOOL) | $20.69 | $20.67 | $0.00 | $0.00 | $41.36 | $0.00 |
| 2025 | 5622 | COUNTY - COUNTY LEVIES (CE, DD, VET, MH) | $8.15 | $8.11 | $0.00 | $0.00 | $16.26 | $0.00 |
| 2025 | 5622 | CONSERVE - CONSERVATION FUTURES | $0.25 | $0.24 | $0.00 | $0.00 | $0.49 | $0.00 |
| 2025 | 5622 | COROADS - COUNTY ROADS (ROADS, DIV TO CE) | $6.52 | $6.51 | $0.00 | $0.00 | $13.03 | $0.00 |
| 2025 | 5622 | PORTPT - PORT DISTRICT | $3.33 | $3.31 | $0.00 | $0.00 | $6.64 | $0.00 |
| 2025 | 5622 | PUD1 - PUD #1 | $0.53 | $0.53 | $0.00 | $0.00 | $1.06 | $0.00 |
| 2025 | 5622 | LIB1 - LIBRARY DIST #1 | $2.52 | $2.52 | $0.00 | $0.00 | $5.04 | $0.00 |
| 2025 | 5622 | HD2 - HOSP DIST #2 | $0.48 | $0.47 | $0.00 | $0.00 | $0.95 | $0.00 |
| 2025 | 5622 | SD48 - SCHOOL DIST #48 | $12.18 | $12.18 | $0.00 | $0.00 | $24.36 | $0.00 |
| 2025 | 5622 | FD2 - FIRE DISTRICT #2 | $6.73 | $6.72 | $0.00 | $0.00 | $13.45 | $0.00 |
| 2025 | 5622 | EMS2 - FIRE DIST #2 EMS | $3.79 | $3.78 | $0.00 | $0.00 | $7.57 | $0.00 |
| 2025 | 5622 | CEM2 - CEMETERY DIST #2 | $0.22 | $0.21 | $0.00 | $0.00 | $0.43 | $0.00 |
| 2025 | 5622 | PARK1 - PARK & REC DIST #1 | $0.98 | $0.98 | $0.00 | $0.00 | $1.96 | $0.00 |
| 2025 | 5622 | FPLCA - DNR Landowner Contingency Assmt | $3.00 | $3.00 | $0.00 | $0.00 | $6.00 | $0.00 |
| 2025 | 5622 | JCCD - JC Conservation District | $2.53 | $2.53 | $0.00 | $0.00 | $5.06 | $0.00 |
| 2025 | 5622 | NWA - Noxious Weed Assessment | $2.15 | $2.15 | $0.00 | $0.00 | $4.30 | $0.00 |
| 2025 | 5622 | WAT - Clean Water District | $13.00 | $13.00 | $0.00 | $0.00 | $26.00 | $0.00 |
| 2025 | 5622 | TOTAL: | $87.05 | $86.91 | $0.00 | $0.00 | $173.96 | $0.00 |
|
| 2025 | 5622 | $87.05 | $86.91 | $0.00 | $0.00 | $173.96 | $0.00 |
Statement Details |
| 2024 | 5640 | STATE - STATE LEVY (SCHOOL) | $18.22 | $18.22 | $0.00 | $0.00 | $36.44 | $0.00 |
| 2024 | 5640 | COUNTY - COUNTY LEVIES (CE, DD, VET, MH) | $7.82 | $7.78 | $0.00 | $0.00 | $15.60 | $0.00 |
| 2024 | 5640 | CONSERVE - CONSERVATION FUTURES | $0.24 | $0.23 | $0.00 | $0.00 | $0.47 | $0.00 |
| 2024 | 5640 | COROADS - COUNTY ROADS (ROADS, DIV TO CE) | $6.28 | $6.27 | $0.00 | $0.00 | $12.55 | $0.00 |
| 2024 | 5640 | PORTPT - PORT DISTRICT | $3.23 | $3.22 | $0.00 | $0.00 | $6.45 | $0.00 |
| 2024 | 5640 | PUD1 - PUD #1 | $0.51 | $0.51 | $0.00 | $0.00 | $1.02 | $0.00 |
| 2024 | 5640 | LIB1 - LIBRARY DIST #1 | $2.43 | $2.42 | $0.00 | $0.00 | $4.85 | $0.00 |
| 2024 | 5640 | HD2 - HOSP DIST #2 | $0.46 | $0.45 | $0.00 | $0.00 | $0.91 | $0.00 |
| 2024 | 5640 | SD48 - SCHOOL DIST #48 | $8.16 | $8.16 | $0.00 | $0.00 | $16.32 | $0.00 |
| 2024 | 5640 | FD2 - FIRE DISTRICT #2 | $6.48 | $6.48 | $0.00 | $0.00 | $12.96 | $0.00 |
| 2024 | 5640 | EMS2 - FIRE DIST #2 EMS | $3.65 | $3.65 | $0.00 | $0.00 | $7.30 | $0.00 |
| 2024 | 5640 | CEM2 - CEMETERY DIST #2 | $0.21 | $0.20 | $0.00 | $0.00 | $0.41 | $0.00 |
| 2024 | 5640 | PARK1 - PARK & REC DIST #1 | $0.91 | $0.91 | $0.00 | $0.00 | $1.82 | $0.00 |
| 2024 | 5640 | FPLCA - DNR Landowner Contingency Assmt | $3.00 | $3.00 | $0.00 | $0.00 | $6.00 | $0.00 |
| 2024 | 5640 | JCCD - JC Conservation District | $2.53 | $2.53 | $0.00 | $0.00 | $5.06 | $0.00 |
| 2024 | 5640 | NWA - Noxious Weed Assessment | $2.15 | $2.15 | $0.00 | $0.00 | $4.30 | $0.00 |
| 2024 | 5640 | WAT - Clean Water District | $12.50 | $12.50 | $0.00 | $0.00 | $25.00 | $0.00 |
| 2024 | 5640 | TOTAL: | $78.78 | $78.68 | $0.00 | $0.00 | $157.46 | $0.00 |
|
| 2024 | 5640 | $78.78 | $78.68 | $0.00 | $0.00 | $157.46 | $0.00 |
Statement Details |
| 2023 | 5654 | STATE - STATE LEVY (SCHOOL) | $17.67 | $17.65 | $0.00 | $0.00 | $35.32 | $0.00 |
| 2023 | 5654 | COUNTY - COUNTY LEVIES (CE, DD, VET, MH) | $7.73 | $7.69 | $0.00 | $0.00 | $15.42 | $0.00 |
| 2023 | 5654 | CONSERVE - CONSERVATION FUTURES | $0.23 | $0.23 | $0.00 | $0.00 | $0.46 | $0.00 |
| 2023 | 5654 | COROADS - COUNTY ROADS (ROADS, DIV TO CE) | $6.24 | $6.23 | $0.00 | $0.00 | $12.47 | $0.00 |
| 2023 | 5654 | PORTPT - PORT DISTRICT | $3.25 | $3.24 | $0.00 | $0.00 | $6.49 | $0.00 |
| 2023 | 5654 | PUD1 - PUD #1 | $0.51 | $0.51 | $0.00 | $0.00 | $1.02 | $0.00 |
| 2023 | 5654 | LIB1 - LIBRARY DIST #1 | $2.41 | $2.41 | $0.00 | $0.00 | $4.82 | $0.00 |
| 2023 | 5654 | HD2 - HOSP DIST #2 | $0.46 | $0.44 | $0.00 | $0.00 | $0.90 | $0.00 |
| 2023 | 5654 | SD48 - SCHOOL DIST #48 | $8.53 | $8.52 | $0.00 | $0.00 | $17.05 | $0.00 |
| 2023 | 5654 | FD2 - FIRE DISTRICT #2 | $6.69 | $6.69 | $0.00 | $0.00 | $13.38 | $0.00 |
| 2023 | 5654 | EMS2 - FIRE DIST #2 EMS | $3.75 | $3.75 | $0.00 | $0.00 | $7.50 | $0.00 |
| 2023 | 5654 | CEM2 - CEMETERY DIST #2 | $0.22 | $0.21 | $0.00 | $0.00 | $0.43 | $0.00 |
| 2023 | 5654 | PARK1 - PARK & REC DIST #1 | $0.84 | $0.84 | $0.00 | $0.00 | $1.68 | $0.00 |
| 2023 | 5654 | FPLCA - DNR Landowner Contingency Assmt | $3.00 | $3.00 | $0.00 | $0.00 | $6.00 | $0.00 |
| 2023 | 5654 | JCCD - JC Conservation District | $2.53 | $2.53 | $0.00 | $0.00 | $5.06 | $0.00 |
| 2023 | 5654 | NWA - Noxious Weed Assessment | $2.15 | $2.15 | $0.00 | $0.00 | $4.30 | $0.00 |
| 2023 | 5654 | WAT - Clean Water District | $12.00 | $12.00 | $0.00 | $0.00 | $24.00 | $0.00 |
| 2023 | 5654 | TOTAL: | $78.21 | $78.09 | $0.00 | $0.00 | $156.30 | $0.00 |
|
| 2023 | 5654 | $78.21 | $78.09 | $0.00 | $0.00 | $156.30 | $0.00 |
Values
| (+) Improvement Homesite Value: | + | $0 | |
| (+) Improvement Non-Homesite Value: | + | $0 | |
| (+) Land Homesite Value: | + | $0 | |
| (+) Land Non-Homesite Value: | + | $17,250 | |
| (+) Curr Use (HS): | + | $0 | $0 |
| (+) Curr Use (NHS): | + | $0 | $0 |
| | | -------------------------- | |
| (=) Market Value: | = | $17,250 | |
| (–) Productivity Loss: | – | $0 | |
| | | -------------------------- | |
| (=) Subtotal: | = | $17,250 | |
| (+) Senior Appraised Value: | + | $0 | |
| (+) Non-Senior Appraised Value: | + | $17,250 | |
| | | -------------------------- | |
| (=) Total Appraised Value: | = | $17,250 | |
| (–) Senior Exemption Loss: | – | $0 | |
| (–) Exemption Loss: | – | $0 | |
| | | -------------------------- | |
| (=) Taxable Value: | = | $17,250 | |
Taxing Jurisdiction
| Owner: | REYNOLDS FAMILY TRUST | | |
| % Ownership: | 100.0000000000% | | |
| Total Value: | $17,250 | | |
| Tax Area: | 0323 - 1-48F2E2P1H2C2L1 |
| CE | COUNTY CURRENT EXPENSE | 0.9034619479 | $17,250 | $17,250 | $15.58 | | |
| CNTYDD | DEVELOPMENTAL DISABILITIES | 0.0052121823 | $17,250 | $17,250 | $0.09 | | |
| CNTYVET | VETERANS RELIEF | 0.0052777810 | $17,250 | $17,250 | $0.09 | | |
| MENTAL | MENTAL HEALTH | 0.0052121823 | $17,250 | $17,250 | $0.09 | | |
| ROADS | COUNTY ROADS | 0.7415066410 | $17,250 | $17,250 | $12.79 | | |
| ROADSCU | COUNTY ROADS TO CUR EXP | 0.0000000000 | $17,250 | $17,250 | $0.00 | | |
| HOSP2CASH | HOSP DIST #2 GENERAL | 0.0536075306 | $17,250 | $17,250 | $0.92 | | |
| SCH48MO | SCHOOL DIST #48 EP & O | 1.4120478917 | $17,250 | $17,250 | $24.36 | | |
| CEM2 | CEMETERY DIST #2 GENERAL | 0.0241266154 | $17,250 | $17,250 | $0.42 | | |
| CONSERVE | CONSERVATION FUTURES | 0.0275621078 | $17,250 | $17,250 | $0.48 | | |
| FD2 | FIRE DIST #2 GENERAL | 0.7549976873 | $17,250 | $17,250 | $13.02 | | |
| LIB1 | LIBRARY DIST #1 GENERAL | 0.2868827388 | $17,250 | $17,250 | $4.95 | | |
| PARK1 | PARK & REC DIST #1 GENERAL | 0.1474441110 | $17,250 | $17,250 | $2.54 | | |
| PORTPT | PORT OF PT GENERAL | 0.1134941229 | $17,250 | $17,250 | $1.96 | | |
| PORTPTIDD | PORT OF PT IDD 2019 | 0.2577346692 | $17,250 | $17,250 | $4.45 | | |
| PUD1 | PUD #1 GENERAL | 0.0597888892 | $17,250 | $17,250 | $1.03 | | |
| STATE | STATE SCHOOL PART 1 | 1.4940692947 | $17,250 | $17,250 | $25.77 | | |
| STATE2 | STATE SCHOOL PART 2 | 0.8050170049 | $17,250 | $17,250 | $13.89 | | |
| EMS2 | FIRE DIST #2 EMS | 0.4251727858 | $17,250 | $17,250 | $7.33 | | |
| | Total Tax Rate: | 7.5226161838 | | | | | |
| | | | | Taxes w/Current Exemptions: | $129.76 | | |
| | | | | Taxes w/o Exemptions: | $129.76 | | |
Improvement / Building
Sketch
| No sketches available for this property. |
Property Image
Land
| 1 | 2265-1184S | | 0.0000 | 0.00 | 0.00 | 0.00 | 1.00 | $17,250 | $0 |
Roll Value History
| 2026 | N/A | N/A | N/A | N/A | N/A |
| 2025 | $0 | $17,250 | $0 | $17,250 | $17,250 |
| 2024 | $0 | $17,250 | $0 | $17,250 | $17,250 |
| 2023 | $0 | $15,750 | $0 | $15,750 | $15,750 |
| 2022 | $0 | $15,000 | $0 | $15,000 | $15,000 |
Deed and Sales History
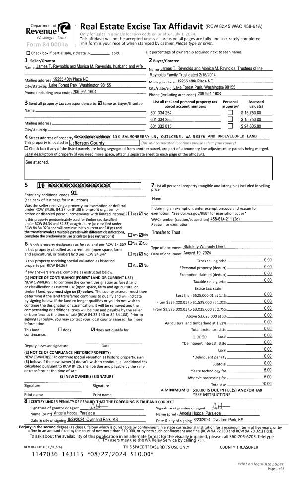
| 1 | 08/19/2024 | SWD | Statutory Warranty Deed | JAMES T REYNOLDS | REYNOLDS FAMILY TRUST | | | | 143115 | |
| 2 | 09/06/2006 | SWD | Statutory Warranty Deed | HANSEN, DONALD L/AUDREY M | REYNOLDS, JAMES T | 0 | 0 | $27,500.00 | 107805 | 0 |
|   | |
| 3 | 06/16/2006 | QCD | Quit Claim Deed | RUBENSTEIN, WILLIAM H | HOUGTON, JOY K | | | $0.00 | 107108 | 0 |
Payout Agreement
| No payout information available.. |