Property
Account |
| Property ID: | 16097 | Abbreviated Legal Description: | S34 & 35 T26 R1W TAX 18 |
| Parcel # / Geo ID: | 601343014 | Agent Code: | |
| Type: | Real | | |
| Tax Area: | 0323 - 1-48F2E2P1H2C2L1 | Land Use Code | 91 |
| Open Space: | N | DFL | N |
| Historic Property: | N | Remodel Property: | N |
| Multi-Family Redevelopment: | N | | |
| Township: | 26N | Section: | 34 |
| Range: | 1W |
Location |
| Address: | 260 HARRINGTON DR QUILCENE, WA 98376 | Mapsco: | 132/036 |
| Neighborhood: | S34 & S35 T26N R1W & SEXAUER SHORT PLAT | Map ID: | |
| Neighborhood CD: | 2267 |
Owner |
| Name: | THULIN TRUST AGREEMENT | Owner ID: | 28973 |
| Mailing Address: | ROBERT E THULIN TRUSTEE BERNADINE R THULIN TRUSTEE 715 ZELATCHED POINT RD QUILCENE, WA 98376-9661 | % Ownership: | 100.0000000000% |
| | | Exemptions: | |
Pay Tax Due
Select the appropriate checkbox next to the year to be paid. Multiple years may be selected.
*Convenience Fee not included
Taxes and Assessment Details
Property Tax Information as of
03/09/2026
Click on "Statement Details" to expand or collapse a tax statement.
* Please enter a valid date ** Please enter a valid date *
Statement Details |
| 2026 | 5663 | STATE - STATE LEVY (SCHOOL) | $131.24 | $131.23 | $0.00 | $0.00 | $0.00 | $262.47 |
| 2026 | 5663 | COUNTY - COUNTY LEVIES (CE, DD, VET, MH) | $52.47 | $52.47 | $0.00 | $0.00 | $0.00 | $104.94 |
| 2026 | 5663 | CONSERVE - CONSERVATION FUTURES | $1.58 | $1.57 | $0.00 | $0.00 | $0.00 | $3.15 |
| 2026 | 5663 | COROADS - COUNTY ROADS (ROADS, DIV TO CE) | $42.33 | $42.32 | $0.00 | $0.00 | $0.00 | $84.65 |
| 2026 | 5663 | PORTPT - PORT DISTRICT | $21.19 | $21.19 | $0.00 | $0.00 | $0.00 | $42.38 |
| 2026 | 5663 | PUD1 - PUD #1 | $3.42 | $3.41 | $0.00 | $0.00 | $0.00 | $6.83 |
| 2026 | 5663 | LIB1 - LIBRARY DIST #1 | $16.38 | $16.37 | $0.00 | $0.00 | $0.00 | $32.75 |
| 2026 | 5663 | HD2 - HOSP DIST #2 | $3.06 | $3.06 | $0.00 | $0.00 | $0.00 | $6.12 |
| 2026 | 5663 | SD48 - SCHOOL DIST #48 | $80.60 | $80.60 | $0.00 | $0.00 | $0.00 | $161.20 |
| 2026 | 5663 | FD2 - FIRE DISTRICT #2 | $43.10 | $43.09 | $0.00 | $0.00 | $0.00 | $86.19 |
| 2026 | 5663 | EMS2 - FIRE DIST #2 EMS | $24.27 | $24.27 | $0.00 | $0.00 | $0.00 | $48.54 |
| 2026 | 5663 | CEM2 - CEMETERY DIST #2 | $1.38 | $1.37 | $0.00 | $0.00 | $0.00 | $2.75 |
| 2026 | 5663 | PARK1 - PARK & REC DIST #1 | $8.42 | $8.41 | $0.00 | $0.00 | $0.00 | $16.83 |
| 2026 | 5663 | FPLCA - DNR Landowner Contingency Assmt | $3.00 | $3.00 | $0.00 | $0.00 | $0.00 | $6.00 |
| 2026 | 5663 | JCCD - JC Conservation District | $2.61 | $2.61 | $0.00 | $0.00 | $0.00 | $5.22 |
| 2026 | 5663 | NWA - Noxious Weed Assessment | $3.43 | $3.42 | $0.00 | $0.00 | $0.00 | $6.85 |
| 2026 | 5663 | OSS - On Site Septic | $23.10 | $23.10 | $0.00 | $0.00 | $0.00 | $46.20 |
| 2026 | 5663 | WAT - Clean Water District | $13.00 | $13.00 | $0.00 | $0.00 | $0.00 | $26.00 |
| 2026 | 5663 | TOTAL: | $474.58 | $474.49 | $0.00 | $0.00 | $0.00 | $949.07 |
|
| 2026 | 5663 | $474.58 | $474.49 | $0.00 | $0.00 | $0.00 | $949.07 |
Statement Details |
| 2025 | 5683 | STATE - STATE LEVY (SCHOOL) | $136.86 | $136.84 | $0.00 | $0.00 | $273.70 | $0.00 |
| 2025 | 5683 | COUNTY - COUNTY LEVIES (CE, DD, VET, MH) | $53.83 | $53.81 | $0.00 | $0.00 | $107.64 | $0.00 |
| 2025 | 5683 | CONSERVE - CONSERVATION FUTURES | $1.62 | $1.61 | $0.00 | $0.00 | $3.23 | $0.00 |
| 2025 | 5683 | COROADS - COUNTY ROADS (ROADS, DIV TO CE) | $43.12 | $43.12 | $0.00 | $0.00 | $86.24 | $0.00 |
| 2025 | 5683 | PORTPT - PORT DISTRICT | $21.97 | $21.95 | $0.00 | $0.00 | $43.92 | $0.00 |
| 2025 | 5683 | PUD1 - PUD #1 | $3.52 | $3.52 | $0.00 | $0.00 | $7.04 | $0.00 |
| 2025 | 5683 | LIB1 - LIBRARY DIST #1 | $16.68 | $16.68 | $0.00 | $0.00 | $33.36 | $0.00 |
| 2025 | 5683 | HD2 - HOSP DIST #2 | $3.14 | $3.14 | $0.00 | $0.00 | $6.28 | $0.00 |
| 2025 | 5683 | SD48 - SCHOOL DIST #48 | $80.59 | $80.59 | $0.00 | $0.00 | $161.18 | $0.00 |
| 2025 | 5683 | FD2 - FIRE DISTRICT #2 | $44.50 | $44.49 | $0.00 | $0.00 | $88.99 | $0.00 |
| 2025 | 5683 | EMS2 - FIRE DIST #2 EMS | $25.06 | $25.05 | $0.00 | $0.00 | $50.11 | $0.00 |
| 2025 | 5683 | CEM2 - CEMETERY DIST #2 | $1.42 | $1.42 | $0.00 | $0.00 | $2.84 | $0.00 |
| 2025 | 5683 | PARK1 - PARK & REC DIST #1 | $6.50 | $6.50 | $0.00 | $0.00 | $13.00 | $0.00 |
| 2025 | 5683 | FPLCA - DNR Landowner Contingency Assmt | $3.00 | $3.00 | $0.00 | $0.00 | $6.00 | $0.00 |
| 2025 | 5683 | JCCD - JC Conservation District | $2.65 | $2.65 | $0.00 | $0.00 | $5.30 | $0.00 |
| 2025 | 5683 | NWA - Noxious Weed Assessment | $2.45 | $2.45 | $0.00 | $0.00 | $4.90 | $0.00 |
| 2025 | 5683 | OSS - On Site Septic | $21.50 | $21.50 | $0.00 | $0.00 | $43.00 | $0.00 |
| 2025 | 5683 | WAT - Clean Water District | $13.00 | $13.00 | $0.00 | $0.00 | $26.00 | $0.00 |
| 2025 | 5683 | TOTAL: | $481.41 | $481.32 | $0.00 | $0.00 | $962.73 | $0.00 |
|
| 2025 | 5683 | $481.41 | $481.32 | $0.00 | $0.00 | $962.73 | $0.00 |
Statement Details |
| 2024 | 5701 | STATE - STATE LEVY (SCHOOL) | $131.16 | $131.15 | $0.00 | $0.00 | $262.31 | $0.00 |
| 2024 | 5701 | COUNTY - COUNTY LEVIES (CE, DD, VET, MH) | $56.13 | $56.11 | $0.00 | $0.00 | $112.24 | $0.00 |
| 2024 | 5701 | CONSERVE - CONSERVATION FUTURES | $1.69 | $1.68 | $0.00 | $0.00 | $3.37 | $0.00 |
| 2024 | 5701 | COROADS - COUNTY ROADS (ROADS, DIV TO CE) | $45.17 | $45.15 | $0.00 | $0.00 | $90.32 | $0.00 |
| 2024 | 5701 | PORTPT - PORT DISTRICT | $23.18 | $23.18 | $0.00 | $0.00 | $46.36 | $0.00 |
| 2024 | 5701 | PUD1 - PUD #1 | $3.69 | $3.68 | $0.00 | $0.00 | $7.37 | $0.00 |
| 2024 | 5701 | LIB1 - LIBRARY DIST #1 | $17.47 | $17.47 | $0.00 | $0.00 | $34.94 | $0.00 |
| 2024 | 5701 | HD2 - HOSP DIST #2 | $3.28 | $3.27 | $0.00 | $0.00 | $6.55 | $0.00 |
| 2024 | 5701 | SD48 - SCHOOL DIST #48 | $58.74 | $58.74 | $0.00 | $0.00 | $117.48 | $0.00 |
| 2024 | 5701 | FD2 - FIRE DISTRICT #2 | $46.66 | $46.65 | $0.00 | $0.00 | $93.31 | $0.00 |
| 2024 | 5701 | EMS2 - FIRE DIST #2 EMS | $26.27 | $26.26 | $0.00 | $0.00 | $52.53 | $0.00 |
| 2024 | 5701 | CEM2 - CEMETERY DIST #2 | $1.50 | $1.49 | $0.00 | $0.00 | $2.99 | $0.00 |
| 2024 | 5701 | PARK1 - PARK & REC DIST #1 | $6.56 | $6.55 | $0.00 | $0.00 | $13.11 | $0.00 |
| 2024 | 5701 | FPLCA - DNR Landowner Contingency Assmt | $3.00 | $3.00 | $0.00 | $0.00 | $6.00 | $0.00 |
| 2024 | 5701 | JCCD - JC Conservation District | $2.65 | $2.65 | $0.00 | $0.00 | $5.30 | $0.00 |
| 2024 | 5701 | NWA - Noxious Weed Assessment | $2.45 | $2.45 | $0.00 | $0.00 | $4.90 | $0.00 |
| 2024 | 5701 | OSS - On Site Septic | $21.00 | $21.00 | $0.00 | $0.00 | $42.00 | $0.00 |
| 2024 | 5701 | WAT - Clean Water District | $12.50 | $12.50 | $0.00 | $0.00 | $25.00 | $0.00 |
| 2024 | 5701 | TOTAL: | $463.10 | $462.98 | $0.00 | $0.00 | $926.08 | $0.00 |
|
| 2024 | 5701 | $463.10 | $462.98 | $0.00 | $0.00 | $926.08 | $0.00 |
Statement Details |
| 2023 | 5715 | STATE - STATE LEVY (SCHOOL) | $125.43 | $125.43 | $0.00 | $0.00 | $250.86 | $0.00 |
| 2023 | 5715 | COUNTY - COUNTY LEVIES (CE, DD, VET, MH) | $54.74 | $54.72 | $0.00 | $0.00 | $109.46 | $0.00 |
| 2023 | 5715 | CONSERVE - CONSERVATION FUTURES | $1.64 | $1.64 | $0.00 | $0.00 | $3.28 | $0.00 |
| 2023 | 5715 | COROADS - COUNTY ROADS (ROADS, DIV TO CE) | $44.29 | $44.27 | $0.00 | $0.00 | $88.56 | $0.00 |
| 2023 | 5715 | PORTPT - PORT DISTRICT | $23.06 | $23.06 | $0.00 | $0.00 | $46.12 | $0.00 |
| 2023 | 5715 | PUD1 - PUD #1 | $3.63 | $3.63 | $0.00 | $0.00 | $7.26 | $0.00 |
| 2023 | 5715 | LIB1 - LIBRARY DIST #1 | $17.14 | $17.13 | $0.00 | $0.00 | $34.27 | $0.00 |
| 2023 | 5715 | HD2 - HOSP DIST #2 | $3.20 | $3.19 | $0.00 | $0.00 | $6.39 | $0.00 |
| 2023 | 5715 | SD48 - SCHOOL DIST #48 | $60.57 | $60.57 | $0.00 | $0.00 | $121.14 | $0.00 |
| 2023 | 5715 | FD2 - FIRE DISTRICT #2 | $47.51 | $47.51 | $0.00 | $0.00 | $95.02 | $0.00 |
| 2023 | 5715 | EMS2 - FIRE DIST #2 EMS | $26.64 | $26.64 | $0.00 | $0.00 | $53.28 | $0.00 |
| 2023 | 5715 | CEM2 - CEMETERY DIST #2 | $1.51 | $1.51 | $0.00 | $0.00 | $3.02 | $0.00 |
| 2023 | 5715 | PARK1 - PARK & REC DIST #1 | $5.95 | $5.95 | $0.00 | $0.00 | $11.90 | $0.00 |
| 2023 | 5715 | FPLCA - DNR Landowner Contingency Assmt | $3.00 | $3.00 | $0.00 | $0.00 | $6.00 | $0.00 |
| 2023 | 5715 | JCCD - JC Conservation District | $2.65 | $2.65 | $0.00 | $0.00 | $5.30 | $0.00 |
| 2023 | 5715 | NWA - Noxious Weed Assessment | $2.45 | $2.45 | $0.00 | $0.00 | $4.90 | $0.00 |
| 2023 | 5715 | OSS - On Site Septic | $20.50 | $20.50 | $0.00 | $0.00 | $41.00 | $0.00 |
| 2023 | 5715 | WAT - Clean Water District | $12.00 | $12.00 | $0.00 | $0.00 | $24.00 | $0.00 |
| 2023 | 5715 | TOTAL: | $455.91 | $455.85 | $0.00 | $0.00 | $911.76 | $0.00 |
|
| 2023 | 5715 | $455.91 | $455.85 | $0.00 | $0.00 | $911.76 | $0.00 |
Values
| (+) Improvement Homesite Value: | + | $0 | |
| (+) Improvement Non-Homesite Value: | + | $600 | |
| (+) Land Homesite Value: | + | $0 | |
| (+) Land Non-Homesite Value: | + | $113,563 | |
| (+) Curr Use (HS): | + | $0 | $0 |
| (+) Curr Use (NHS): | + | $0 | $0 |
| | | -------------------------- | |
| (=) Market Value: | = | $114,163 | |
| (–) Productivity Loss: | – | $0 | |
| | | -------------------------- | |
| (=) Subtotal: | = | $114,163 | |
| (+) Senior Appraised Value: | + | $0 | |
| (+) Non-Senior Appraised Value: | + | $114,163 | |
| | | -------------------------- | |
| (=) Total Appraised Value: | = | $114,163 | |
| (–) Senior Exemption Loss: | – | $0 | |
| (–) Exemption Loss: | – | $0 | |
| | | -------------------------- | |
| (=) Taxable Value: | = | $114,163 | |
Taxing Jurisdiction
| Owner: | THULIN TRUST AGREEMENT | | |
| % Ownership: | 100.0000000000% | | |
| Total Value: | $114,163 | | |
| Tax Area: | 0323 - 1-48F2E2P1H2C2L1 |
| CE | COUNTY CURRENT EXPENSE | 0.9034619479 | $114,163 | $114,163 | $103.14 | | |
| CNTYDD | DEVELOPMENTAL DISABILITIES | 0.0052121823 | $114,163 | $114,163 | $0.60 | | |
| CNTYVET | VETERANS RELIEF | 0.0052777810 | $114,163 | $114,163 | $0.60 | | |
| MENTAL | MENTAL HEALTH | 0.0052121823 | $114,163 | $114,163 | $0.60 | | |
| ROADS | COUNTY ROADS | 0.7415066410 | $114,163 | $114,163 | $84.65 | | |
| ROADSCU | COUNTY ROADS TO CUR EXP | 0.0000000000 | $114,163 | $114,163 | $0.00 | | |
| HOSP2CASH | HOSP DIST #2 GENERAL | 0.0536075306 | $114,163 | $114,163 | $6.12 | | |
| SCH48MO | SCHOOL DIST #48 EP & O | 1.4120478917 | $114,163 | $114,163 | $161.20 | | |
| CEM2 | CEMETERY DIST #2 GENERAL | 0.0241266154 | $114,163 | $114,163 | $2.75 | | |
| CONSERVE | CONSERVATION FUTURES | 0.0275621078 | $114,163 | $114,163 | $3.15 | | |
| FD2 | FIRE DIST #2 GENERAL | 0.7549976873 | $114,163 | $114,163 | $86.19 | | |
| LIB1 | LIBRARY DIST #1 GENERAL | 0.2868827388 | $114,163 | $114,163 | $32.75 | | |
| PARK1 | PARK & REC DIST #1 GENERAL | 0.1474441110 | $114,163 | $114,163 | $16.83 | | |
| PORTPT | PORT OF PT GENERAL | 0.1134941229 | $114,163 | $114,163 | $12.96 | | |
| PORTPTIDD | PORT OF PT IDD 2019 | 0.2577346692 | $114,163 | $114,163 | $29.42 | | |
| PUD1 | PUD #1 GENERAL | 0.0597888892 | $114,163 | $114,163 | $6.83 | | |
| STATE | STATE SCHOOL PART 1 | 1.4940692947 | $114,163 | $114,163 | $170.57 | | |
| STATE2 | STATE SCHOOL PART 2 | 0.8050170049 | $114,163 | $114,163 | $91.90 | | |
| EMS2 | FIRE DIST #2 EMS | 0.4251727858 | $114,163 | $114,163 | $48.54 | | |
| | Total Tax Rate: | 7.5226161838 | | | | | |
| | | | | Taxes w/Current Exemptions: | $858.80 | | |
| | | | | Taxes w/o Exemptions: | $858.80 | | |
Improvement / Building
| Improvement #1: | Site Improvements | State Code: | 18 | 0.0 sqft | Value: | $600 |
Sketch
| No sketches available for this property. |
Property Image
Land
| 1 | 2267-1525F | | 0.0000 | 0.00 | 0.00 | 0.00 | 0.00 | $113,563 | $0 |
Roll Value History
| 2026 | N/A | N/A | N/A | N/A | N/A |
| 2025 | $600 | $113,563 | $0 | $114,163 | $114,163 |
| 2024 | $575 | $113,563 | $0 | $114,138 | $114,138 |
| 2023 | $9,689 | $103,688 | $0 | $113,377 | $113,377 |
| 2022 | $8,808 | $97,750 | $0 | $106,558 | $106,558 |
Deed and Sales History
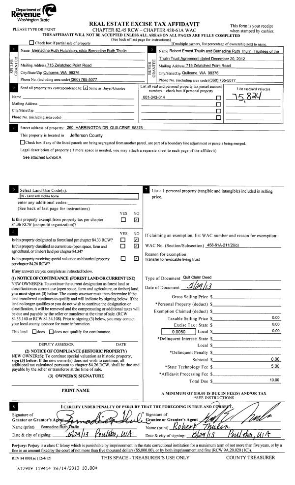
| 1 | 06/14/2013 | QCD | Quit Claim Deed | BERNADINE R THULIN | THULIN TRUST AGREEMENT | | | | 119414 | |
Payout Agreement
| No payout information available.. |