Property
Account |
| Property ID: | 16102 | Abbreviated Legal Description: | S34 T26 R1W TAX 37 SUBJECT TO EASEMENT |
| Parcel # / Geo ID: | 601343019 | Agent Code: | |
| Type: | Real | | |
| Tax Area: | 0323 - 1-48F2E2P1H2C2L1 | Land Use Code | 91 |
| Open Space: | N | DFL | N |
| Historic Property: | N | Remodel Property: | N |
| Multi-Family Redevelopment: | N | | |
| Township: | 26N | Section: | 34 |
| Range: | 1W |
Location |
| Address: | | Mapsco: | 133/002 |
| Neighborhood: | S34 & S35 T26N R1W & SEXAUER SHORT PLAT | Map ID: | |
| Neighborhood CD: | 2267 |
Owner |
| Name: | SAMUEL A & DIVINA B MOORE | Owner ID: | 99293 |
| Mailing Address: | 1218 PIERCE ST STEILACOOM, WA 98388-3860 | % Ownership: | 100.0000000000% |
| | | Exemptions: | |
Pay Tax Due
Select the appropriate checkbox next to the year to be paid. Multiple years may be selected.
*Convenience Fee not included
Taxes and Assessment Details
Property Tax Information as of
03/12/2026
Click on "Statement Details" to expand or collapse a tax statement.
* Please enter a valid date ** Please enter a valid date *
Statement Details |
| 2026 | 5668 | STATE - STATE LEVY (SCHOOL) | $123.94 | $123.93 | $0.00 | $0.00 | $0.00 | $247.87 |
| 2026 | 5668 | COUNTY - COUNTY LEVIES (CE, DD, VET, MH) | $49.55 | $49.54 | $0.00 | $0.00 | $0.00 | $99.09 |
| 2026 | 5668 | CONSERVE - CONSERVATION FUTURES | $1.49 | $1.48 | $0.00 | $0.00 | $0.00 | $2.97 |
| 2026 | 5668 | COROADS - COUNTY ROADS (ROADS, DIV TO CE) | $39.97 | $39.97 | $0.00 | $0.00 | $0.00 | $79.94 |
| 2026 | 5668 | PORTPT - PORT DISTRICT | $20.02 | $20.01 | $0.00 | $0.00 | $0.00 | $40.03 |
| 2026 | 5668 | PUD1 - PUD #1 | $3.23 | $3.22 | $0.00 | $0.00 | $0.00 | $6.45 |
| 2026 | 5668 | LIB1 - LIBRARY DIST #1 | $15.47 | $15.46 | $0.00 | $0.00 | $0.00 | $30.93 |
| 2026 | 5668 | HD2 - HOSP DIST #2 | $2.89 | $2.89 | $0.00 | $0.00 | $0.00 | $5.78 |
| 2026 | 5668 | SD48 - SCHOOL DIST #48 | $76.12 | $76.12 | $0.00 | $0.00 | $0.00 | $152.24 |
| 2026 | 5668 | FD2 - FIRE DISTRICT #2 | $40.70 | $40.70 | $0.00 | $0.00 | $0.00 | $81.40 |
| 2026 | 5668 | EMS2 - FIRE DIST #2 EMS | $22.92 | $22.92 | $0.00 | $0.00 | $0.00 | $45.84 |
| 2026 | 5668 | CEM2 - CEMETERY DIST #2 | $1.30 | $1.30 | $0.00 | $0.00 | $0.00 | $2.60 |
| 2026 | 5668 | PARK1 - PARK & REC DIST #1 | $7.95 | $7.95 | $0.00 | $0.00 | $0.00 | $15.90 |
| 2026 | 5668 | FP - DNR Forest Fire Protection Assmt | $8.50 | $8.50 | $0.00 | $0.00 | $0.00 | $17.00 |
| 2026 | 5668 | FPLCA - DNR Landowner Contingency Assmt | $3.00 | $3.00 | $0.00 | $0.00 | $0.00 | $6.00 |
| 2026 | 5668 | JCCD - JC Conservation District | $2.57 | $2.57 | $0.00 | $0.00 | $0.00 | $5.14 |
| 2026 | 5668 | NWA - Noxious Weed Assessment | $3.20 | $3.20 | $0.00 | $0.00 | $0.00 | $6.40 |
| 2026 | 5668 | WAT - Clean Water District | $13.00 | $13.00 | $0.00 | $0.00 | $0.00 | $26.00 |
| 2026 | 5668 | FP ADMIN - FP ADMIN | $0.50 | $0.00 | $0.00 | $0.00 | $0.00 | $0.50 |
| 2026 | 5668 | TOTAL: | $436.32 | $435.76 | $0.00 | $0.00 | $0.00 | $872.08 |
|
| 2026 | 5668 | $436.32 | $435.76 | $0.00 | $0.00 | $0.00 | $872.08 |
Statement Details |
| 2025 | 5688 | STATE - STATE LEVY (SCHOOL) | $129.27 | $129.26 | $0.00 | $0.00 | $258.53 | $0.00 |
| 2025 | 5688 | COUNTY - COUNTY LEVIES (CE, DD, VET, MH) | $50.84 | $50.84 | $0.00 | $0.00 | $101.68 | $0.00 |
| 2025 | 5688 | CONSERVE - CONSERVATION FUTURES | $1.53 | $1.52 | $0.00 | $0.00 | $3.05 | $0.00 |
| 2025 | 5688 | COROADS - COUNTY ROADS (ROADS, DIV TO CE) | $40.73 | $40.72 | $0.00 | $0.00 | $81.45 | $0.00 |
| 2025 | 5688 | PORTPT - PORT DISTRICT | $20.75 | $20.73 | $0.00 | $0.00 | $41.48 | $0.00 |
| 2025 | 5688 | PUD1 - PUD #1 | $3.33 | $3.32 | $0.00 | $0.00 | $6.65 | $0.00 |
| 2025 | 5688 | LIB1 - LIBRARY DIST #1 | $15.76 | $15.75 | $0.00 | $0.00 | $31.51 | $0.00 |
| 2025 | 5688 | HD2 - HOSP DIST #2 | $2.97 | $2.96 | $0.00 | $0.00 | $5.93 | $0.00 |
| 2025 | 5688 | SD48 - SCHOOL DIST #48 | $76.13 | $76.12 | $0.00 | $0.00 | $152.25 | $0.00 |
| 2025 | 5688 | FD2 - FIRE DISTRICT #2 | $42.03 | $42.03 | $0.00 | $0.00 | $84.06 | $0.00 |
| 2025 | 5688 | EMS2 - FIRE DIST #2 EMS | $23.67 | $23.66 | $0.00 | $0.00 | $47.33 | $0.00 |
| 2025 | 5688 | CEM2 - CEMETERY DIST #2 | $1.34 | $1.34 | $0.00 | $0.00 | $2.68 | $0.00 |
| 2025 | 5688 | PARK1 - PARK & REC DIST #1 | $6.14 | $6.14 | $0.00 | $0.00 | $12.28 | $0.00 |
| 2025 | 5688 | FP - DNR Forest Fire Protection Assmt | $8.50 | $8.50 | $0.00 | $0.00 | $17.00 | $0.00 |
| 2025 | 5688 | FPLCA - DNR Landowner Contingency Assmt | $3.00 | $3.00 | $0.00 | $0.00 | $6.00 | $0.00 |
| 2025 | 5688 | JCCD - JC Conservation District | $2.57 | $2.57 | $0.00 | $0.00 | $5.14 | $0.00 |
| 2025 | 5688 | NWA - Noxious Weed Assessment | $2.30 | $2.30 | $0.00 | $0.00 | $4.60 | $0.00 |
| 2025 | 5688 | WAT - Clean Water District | $13.00 | $13.00 | $0.00 | $0.00 | $26.00 | $0.00 |
| 2025 | 5688 | FP ADMIN - FP ADMIN | $0.50 | $0.00 | $0.00 | $0.00 | $0.50 | $0.00 |
| 2025 | 5688 | TOTAL: | $444.36 | $443.76 | $0.00 | $0.00 | $888.12 | $0.00 |
|
| 2025 | 5688 | $444.36 | $443.76 | $0.00 | $0.00 | $888.12 | $0.00 |
Statement Details |
| 2024 | 5706 | STATE - STATE LEVY (SCHOOL) | $113.88 | $113.87 | $0.00 | $0.00 | $227.75 | $0.00 |
| 2024 | 5706 | COUNTY - COUNTY LEVIES (CE, DD, VET, MH) | $48.74 | $48.72 | $0.00 | $0.00 | $97.46 | $0.00 |
| 2024 | 5706 | CONSERVE - CONSERVATION FUTURES | $1.46 | $1.46 | $0.00 | $0.00 | $2.92 | $0.00 |
| 2024 | 5706 | COROADS - COUNTY ROADS (ROADS, DIV TO CE) | $39.21 | $39.21 | $0.00 | $0.00 | $78.42 | $0.00 |
| 2024 | 5706 | PORTPT - PORT DISTRICT | $20.13 | $20.12 | $0.00 | $0.00 | $40.25 | $0.00 |
| 2024 | 5706 | PUD1 - PUD #1 | $3.20 | $3.20 | $0.00 | $0.00 | $6.40 | $0.00 |
| 2024 | 5706 | LIB1 - LIBRARY DIST #1 | $15.17 | $15.17 | $0.00 | $0.00 | $30.34 | $0.00 |
| 2024 | 5706 | HD2 - HOSP DIST #2 | $2.85 | $2.84 | $0.00 | $0.00 | $5.69 | $0.00 |
| 2024 | 5706 | SD48 - SCHOOL DIST #48 | $51.00 | $51.00 | $0.00 | $0.00 | $102.00 | $0.00 |
| 2024 | 5706 | FD2 - FIRE DISTRICT #2 | $40.51 | $40.51 | $0.00 | $0.00 | $81.02 | $0.00 |
| 2024 | 5706 | EMS2 - FIRE DIST #2 EMS | $22.81 | $22.80 | $0.00 | $0.00 | $45.61 | $0.00 |
| 2024 | 5706 | CEM2 - CEMETERY DIST #2 | $1.30 | $1.29 | $0.00 | $0.00 | $2.59 | $0.00 |
| 2024 | 5706 | PARK1 - PARK & REC DIST #1 | $5.69 | $5.69 | $0.00 | $0.00 | $11.38 | $0.00 |
| 2024 | 5706 | FP - DNR Forest Fire Protection Assmt | $8.50 | $8.50 | $0.00 | $0.00 | $17.00 | $0.00 |
| 2024 | 5706 | FPLCA - DNR Landowner Contingency Assmt | $3.00 | $3.00 | $0.00 | $0.00 | $6.00 | $0.00 |
| 2024 | 5706 | JCCD - JC Conservation District | $2.57 | $2.57 | $0.00 | $0.00 | $5.14 | $0.00 |
| 2024 | 5706 | NWA - Noxious Weed Assessment | $2.30 | $2.30 | $0.00 | $0.00 | $4.60 | $0.00 |
| 2024 | 5706 | WAT - Clean Water District | $12.50 | $12.50 | $0.00 | $0.00 | $25.00 | $0.00 |
| 2024 | 5706 | FP ADMIN - FP ADMIN | $0.50 | $0.00 | $0.00 | $0.00 | $0.50 | $0.00 |
| 2024 | 5706 | TOTAL: | $395.32 | $394.75 | $0.00 | $0.00 | $790.07 | $0.00 |
|
| 2024 | 5706 | $395.32 | $394.75 | $0.00 | $0.00 | $790.07 | $0.00 |
Statement Details |
| 2023 | 5720 | STATE - STATE LEVY (SCHOOL) | $110.36 | $110.34 | $0.00 | $0.00 | $220.70 | $0.00 |
| 2023 | 5720 | COUNTY - COUNTY LEVIES (CE, DD, VET, MH) | $48.17 | $48.14 | $0.00 | $0.00 | $96.31 | $0.00 |
| 2023 | 5720 | CONSERVE - CONSERVATION FUTURES | $1.45 | $1.44 | $0.00 | $0.00 | $2.89 | $0.00 |
| 2023 | 5720 | COROADS - COUNTY ROADS (ROADS, DIV TO CE) | $38.96 | $38.96 | $0.00 | $0.00 | $77.92 | $0.00 |
| 2023 | 5720 | PORTPT - PORT DISTRICT | $20.29 | $20.28 | $0.00 | $0.00 | $40.57 | $0.00 |
| 2023 | 5720 | PUD1 - PUD #1 | $3.19 | $3.19 | $0.00 | $0.00 | $6.38 | $0.00 |
| 2023 | 5720 | LIB1 - LIBRARY DIST #1 | $15.08 | $15.07 | $0.00 | $0.00 | $30.15 | $0.00 |
| 2023 | 5720 | HD2 - HOSP DIST #2 | $2.82 | $2.80 | $0.00 | $0.00 | $5.62 | $0.00 |
| 2023 | 5720 | SD48 - SCHOOL DIST #48 | $53.29 | $53.29 | $0.00 | $0.00 | $106.58 | $0.00 |
| 2023 | 5720 | FD2 - FIRE DISTRICT #2 | $41.80 | $41.80 | $0.00 | $0.00 | $83.60 | $0.00 |
| 2023 | 5720 | EMS2 - FIRE DIST #2 EMS | $23.44 | $23.44 | $0.00 | $0.00 | $46.88 | $0.00 |
| 2023 | 5720 | CEM2 - CEMETERY DIST #2 | $1.33 | $1.33 | $0.00 | $0.00 | $2.66 | $0.00 |
| 2023 | 5720 | PARK1 - PARK & REC DIST #1 | $5.24 | $5.23 | $0.00 | $0.00 | $10.47 | $0.00 |
| 2023 | 5720 | FP - DNR Forest Fire Protection Assmt | $8.50 | $8.50 | $0.00 | $0.00 | $17.00 | $0.00 |
| 2023 | 5720 | FPLCA - DNR Landowner Contingency Assmt | $3.00 | $3.00 | $0.00 | $0.00 | $6.00 | $0.00 |
| 2023 | 5720 | JCCD - JC Conservation District | $2.57 | $2.57 | $0.00 | $0.00 | $5.14 | $0.00 |
| 2023 | 5720 | NWA - Noxious Weed Assessment | $2.30 | $2.30 | $0.00 | $0.00 | $4.60 | $0.00 |
| 2023 | 5720 | WAT - Clean Water District | $12.00 | $12.00 | $0.00 | $0.00 | $24.00 | $0.00 |
| 2023 | 5720 | FP ADMIN - FP ADMIN | $0.50 | $0.00 | $0.00 | $0.00 | $0.50 | $0.00 |
| 2023 | 5720 | TOTAL: | $394.29 | $393.68 | $0.00 | $0.00 | $787.97 | $0.00 |
|
| 2023 | 5720 | $394.29 | $393.68 | $0.00 | $0.00 | $787.97 | $0.00 |
Values
| (+) Improvement Homesite Value: | + | $0 | |
| (+) Improvement Non-Homesite Value: | + | $0 | |
| (+) Land Homesite Value: | + | $0 | |
| (+) Land Non-Homesite Value: | + | $107,813 | |
| (+) Curr Use (HS): | + | $0 | $0 |
| (+) Curr Use (NHS): | + | $0 | $0 |
| | | -------------------------- | |
| (=) Market Value: | = | $107,813 | |
| (–) Productivity Loss: | – | $0 | |
| | | -------------------------- | |
| (=) Subtotal: | = | $107,813 | |
| (+) Senior Appraised Value: | + | $0 | |
| (+) Non-Senior Appraised Value: | + | $107,813 | |
| | | -------------------------- | |
| (=) Total Appraised Value: | = | $107,813 | |
| (–) Senior Exemption Loss: | – | $0 | |
| (–) Exemption Loss: | – | $0 | |
| | | -------------------------- | |
| (=) Taxable Value: | = | $107,813 | |
Taxing Jurisdiction
| Owner: | SAMUEL A & DIVINA B MOORE | | |
| % Ownership: | 100.0000000000% | | |
| Total Value: | $107,813 | | |
| Tax Area: | 0323 - 1-48F2E2P1H2C2L1 |
| CE | COUNTY CURRENT EXPENSE | 0.9034619479 | $107,813 | $107,813 | $97.40 | | |
| CNTYDD | DEVELOPMENTAL DISABILITIES | 0.0052121823 | $107,813 | $107,813 | $0.56 | | |
| CNTYVET | VETERANS RELIEF | 0.0052777810 | $107,813 | $107,813 | $0.57 | | |
| MENTAL | MENTAL HEALTH | 0.0052121823 | $107,813 | $107,813 | $0.56 | | |
| ROADS | COUNTY ROADS | 0.7415066410 | $107,813 | $107,813 | $79.94 | | |
| ROADSCU | COUNTY ROADS TO CUR EXP | 0.0000000000 | $107,813 | $107,813 | $0.00 | | |
| HOSP2CASH | HOSP DIST #2 GENERAL | 0.0536075306 | $107,813 | $107,813 | $5.78 | | |
| SCH48MO | SCHOOL DIST #48 EP & O | 1.4120478917 | $107,813 | $107,813 | $152.24 | | |
| CEM2 | CEMETERY DIST #2 GENERAL | 0.0241266154 | $107,813 | $107,813 | $2.60 | | |
| CONSERVE | CONSERVATION FUTURES | 0.0275621078 | $107,813 | $107,813 | $2.97 | | |
| FD2 | FIRE DIST #2 GENERAL | 0.7549976873 | $107,813 | $107,813 | $81.40 | | |
| LIB1 | LIBRARY DIST #1 GENERAL | 0.2868827388 | $107,813 | $107,813 | $30.93 | | |
| PARK1 | PARK & REC DIST #1 GENERAL | 0.1474441110 | $107,813 | $107,813 | $15.90 | | |
| PORTPT | PORT OF PT GENERAL | 0.1134941229 | $107,813 | $107,813 | $12.24 | | |
| PORTPTIDD | PORT OF PT IDD 2019 | 0.2577346692 | $107,813 | $107,813 | $27.79 | | |
| PUD1 | PUD #1 GENERAL | 0.0597888892 | $107,813 | $107,813 | $6.45 | | |
| STATE | STATE SCHOOL PART 1 | 1.4940692947 | $107,813 | $107,813 | $161.08 | | |
| STATE2 | STATE SCHOOL PART 2 | 0.8050170049 | $107,813 | $107,813 | $86.79 | | |
| EMS2 | FIRE DIST #2 EMS | 0.4251727858 | $107,813 | $107,813 | $45.84 | | |
| | Total Tax Rate: | 7.5226161838 | | | | | |
| | | | | Taxes w/Current Exemptions: | $811.04 | | |
| | | | | Taxes w/o Exemptions: | $811.04 | | |
Improvement / Building
Sketch
| No sketches available for this property. |
Property Image
Land
| 1 | 2267-1525F | | 0.0000 | 0.00 | 0.00 | 0.00 | 0.00 | $107,813 | $0 |
Roll Value History
| 2026 | N/A | N/A | N/A | N/A | N/A |
| 2025 | $0 | $107,813 | $0 | $107,813 | $107,813 |
| 2024 | $0 | $107,813 | $0 | $107,813 | $107,813 |
| 2023 | $0 | $98,438 | $0 | $98,438 | $98,438 |
| 2022 | $0 | $93,750 | $0 | $93,750 | $93,750 |
Deed and Sales History
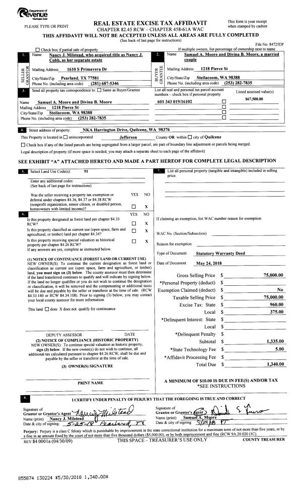
| 1 | 05/24/2018 | SWD | Statutory Warranty Deed | NANCY J MILSTEAD | SAMUEL A & DIVINA B MOORE | | | $75,000.00 | 130224 | |
Payout Agreement
| No payout information available.. |