Property
Account |
| Property ID: | 16133 | Abbreviated Legal Description: | S35 T26 R1W TL TAX #O (1.51CH) SUBJECT TO EASEMENT |
| Parcel # / Geo ID: | 601354013 | Agent Code: | |
| Type: | Real | | |
| Tax Area: | 0323 - 1-48F2E2P1H2C2L1 | Land Use Code | 93 |
| Open Space: | N | DFL | N |
| Historic Property: | N | Remodel Property: | N |
| Multi-Family Redevelopment: | N | | |
| Township: | 26N | Section: | 35 |
| Range: | 1W |
Location |
| Address: | | Mapsco: | 133/093 |
| Neighborhood: | S34 & S35 T26N R1W & SEXAUER SHORT PLAT | Map ID: | |
| Neighborhood CD: | 2267 |
Owner |
| Name: | CURTIS LOHRMAN | Owner ID: | 112823 |
| Mailing Address: | 114 HARRINGTON DR QUILCENE, WA 98376 | % Ownership: | 100.0000000000% |
| | | Exemptions: | |
Pay Tax Due
There is currently No Amount Due on this property.
Taxes and Assessment Details
Property Tax Information as of
03/11/2026
Click on "Statement Details" to expand or collapse a tax statement.
* Please enter a valid date ** Please enter a valid date *
Statement Details |
| 2026 | 5699 | STATE - STATE LEVY (SCHOOL) | $6.61 | $0.00 | $0.00 | $0.00 | $6.61 | $0.00 |
| 2026 | 5699 | COUNTY - COUNTY LEVIES (CE, DD, VET, MH) | $2.64 | $0.00 | $0.00 | $0.00 | $2.64 | $0.00 |
| 2026 | 5699 | CONSERVE - CONSERVATION FUTURES | $0.08 | $0.00 | $0.00 | $0.00 | $0.08 | $0.00 |
| 2026 | 5699 | COROADS - COUNTY ROADS (ROADS, DIV TO CE) | $2.13 | $0.00 | $0.00 | $0.00 | $2.13 | $0.00 |
| 2026 | 5699 | PORTPT - PORT DISTRICT | $1.07 | $0.00 | $0.00 | $0.00 | $1.07 | $0.00 |
| 2026 | 5699 | PUD1 - PUD #1 | $0.17 | $0.00 | $0.00 | $0.00 | $0.17 | $0.00 |
| 2026 | 5699 | LIB1 - LIBRARY DIST #1 | $0.82 | $0.00 | $0.00 | $0.00 | $0.82 | $0.00 |
| 2026 | 5699 | HD2 - HOSP DIST #2 | $0.15 | $0.00 | $0.00 | $0.00 | $0.15 | $0.00 |
| 2026 | 5699 | SD48 - SCHOOL DIST #48 | $4.06 | $0.00 | $0.00 | $0.00 | $4.06 | $0.00 |
| 2026 | 5699 | FD2 - FIRE DISTRICT #2 | $2.17 | $0.00 | $0.00 | $0.00 | $2.17 | $0.00 |
| 2026 | 5699 | EMS2 - FIRE DIST #2 EMS | $1.22 | $0.00 | $0.00 | $0.00 | $1.22 | $0.00 |
| 2026 | 5699 | CEM2 - CEMETERY DIST #2 | $0.07 | $0.00 | $0.00 | $0.00 | $0.07 | $0.00 |
| 2026 | 5699 | PARK1 - PARK & REC DIST #1 | $0.42 | $0.00 | $0.00 | $0.00 | $0.42 | $0.00 |
| 2026 | 5699 | WAT - Clean Water District | $26.00 | $0.00 | $0.00 | $0.00 | $26.00 | $0.00 |
| 2026 | 5699 | TOTAL: | $47.61 | $0.00 | $0.00 | $0.00 | $47.61 | $0.00 |
|
| 2026 | 5699 | $47.61 | $0.00 | $0.00 | $0.00 | $47.61 | $0.00 |
Statement Details |
| 2025 | 5719 | STATE - STATE LEVY (SCHOOL) | $6.89 | $0.00 | $0.00 | $0.00 | $6.89 | $0.00 |
| 2025 | 5719 | COUNTY - COUNTY LEVIES (CE, DD, VET, MH) | $2.72 | $0.00 | $0.00 | $0.00 | $2.72 | $0.00 |
| 2025 | 5719 | CONSERVE - CONSERVATION FUTURES | $0.08 | $0.00 | $0.00 | $0.00 | $0.08 | $0.00 |
| 2025 | 5719 | COROADS - COUNTY ROADS (ROADS, DIV TO CE) | $2.17 | $0.00 | $0.00 | $0.00 | $2.17 | $0.00 |
| 2025 | 5719 | PORTPT - PORT DISTRICT | $1.10 | $0.00 | $0.00 | $0.00 | $1.10 | $0.00 |
| 2025 | 5719 | PUD1 - PUD #1 | $0.18 | $0.00 | $0.00 | $0.00 | $0.18 | $0.00 |
| 2025 | 5719 | LIB1 - LIBRARY DIST #1 | $0.84 | $0.00 | $0.00 | $0.00 | $0.84 | $0.00 |
| 2025 | 5719 | HD2 - HOSP DIST #2 | $0.16 | $0.00 | $0.00 | $0.00 | $0.16 | $0.00 |
| 2025 | 5719 | SD48 - SCHOOL DIST #48 | $4.06 | $0.00 | $0.00 | $0.00 | $4.06 | $0.00 |
| 2025 | 5719 | FD2 - FIRE DISTRICT #2 | $2.24 | $0.00 | $0.00 | $0.00 | $2.24 | $0.00 |
| 2025 | 5719 | EMS2 - FIRE DIST #2 EMS | $1.26 | $0.00 | $0.00 | $0.00 | $1.26 | $0.00 |
| 2025 | 5719 | CEM2 - CEMETERY DIST #2 | $0.07 | $0.00 | $0.00 | $0.00 | $0.07 | $0.00 |
| 2025 | 5719 | PARK1 - PARK & REC DIST #1 | $0.33 | $0.00 | $0.00 | $0.00 | $0.33 | $0.00 |
| 2025 | 5719 | WAT - Clean Water District | $26.00 | $0.00 | $0.00 | $0.00 | $26.00 | $0.00 |
| 2025 | 5719 | TOTAL: | $48.10 | $0.00 | $0.00 | $0.00 | $48.10 | $0.00 |
|
| 2025 | 5719 | $48.10 | $0.00 | $0.00 | $0.00 | $48.10 | $0.00 |
Statement Details |
| 2024 | 5737 | STATE - STATE LEVY (SCHOOL) | $6.07 | $0.00 | $0.00 | $0.00 | $6.07 | $0.00 |
| 2024 | 5737 | COUNTY - COUNTY LEVIES (CE, DD, VET, MH) | $2.58 | $0.00 | $0.00 | $0.00 | $2.58 | $0.00 |
| 2024 | 5737 | CONSERVE - CONSERVATION FUTURES | $0.08 | $0.00 | $0.00 | $0.00 | $0.08 | $0.00 |
| 2024 | 5737 | COROADS - COUNTY ROADS (ROADS, DIV TO CE) | $2.09 | $0.00 | $0.00 | $0.00 | $2.09 | $0.00 |
| 2024 | 5737 | PORTPT - PORT DISTRICT | $1.07 | $0.00 | $0.00 | $0.00 | $1.07 | $0.00 |
| 2024 | 5737 | PUD1 - PUD #1 | $0.17 | $0.00 | $0.00 | $0.00 | $0.17 | $0.00 |
| 2024 | 5737 | LIB1 - LIBRARY DIST #1 | $0.81 | $0.00 | $0.00 | $0.00 | $0.81 | $0.00 |
| 2024 | 5737 | HD2 - HOSP DIST #2 | $0.15 | $0.00 | $0.00 | $0.00 | $0.15 | $0.00 |
| 2024 | 5737 | SD48 - SCHOOL DIST #48 | $2.72 | $0.00 | $0.00 | $0.00 | $2.72 | $0.00 |
| 2024 | 5737 | FD2 - FIRE DISTRICT #2 | $2.16 | $0.00 | $0.00 | $0.00 | $2.16 | $0.00 |
| 2024 | 5737 | EMS2 - FIRE DIST #2 EMS | $1.22 | $0.00 | $0.00 | $0.00 | $1.22 | $0.00 |
| 2024 | 5737 | CEM2 - CEMETERY DIST #2 | $0.07 | $0.00 | $0.00 | $0.00 | $0.07 | $0.00 |
| 2024 | 5737 | PARK1 - PARK & REC DIST #1 | $0.30 | $0.00 | $0.00 | $0.00 | $0.30 | $0.00 |
| 2024 | 5737 | WAT - Clean Water District | $25.00 | $0.00 | $0.00 | $0.00 | $25.00 | $0.00 |
| 2024 | 5737 | TOTAL: | $44.49 | $0.00 | $0.00 | $0.00 | $44.49 | $0.00 |
|
| 2024 | 5737 | $44.49 | $0.00 | $0.00 | $0.00 | $44.49 | $0.00 |
Statement Details |
| 2023 | 5751 | STATE - STATE LEVY (SCHOOL) | $5.88 | $0.00 | $0.00 | $0.00 | $5.88 | $0.00 |
| 2023 | 5751 | COUNTY - COUNTY LEVIES (CE, DD, VET, MH) | $2.55 | $0.00 | $0.00 | $0.00 | $2.55 | $0.00 |
| 2023 | 5751 | CONSERVE - CONSERVATION FUTURES | $0.08 | $0.00 | $0.00 | $0.00 | $0.08 | $0.00 |
| 2023 | 5751 | COROADS - COUNTY ROADS (ROADS, DIV TO CE) | $2.08 | $0.00 | $0.00 | $0.00 | $2.08 | $0.00 |
| 2023 | 5751 | PORTPT - PORT DISTRICT | $1.08 | $0.00 | $0.00 | $0.00 | $1.08 | $0.00 |
| 2023 | 5751 | PUD1 - PUD #1 | $0.17 | $0.00 | $0.00 | $0.00 | $0.17 | $0.00 |
| 2023 | 5751 | LIB1 - LIBRARY DIST #1 | $0.80 | $0.00 | $0.00 | $0.00 | $0.80 | $0.00 |
| 2023 | 5751 | HD2 - HOSP DIST #2 | $0.15 | $0.00 | $0.00 | $0.00 | $0.15 | $0.00 |
| 2023 | 5751 | SD48 - SCHOOL DIST #48 | $2.84 | $0.00 | $0.00 | $0.00 | $2.84 | $0.00 |
| 2023 | 5751 | FD2 - FIRE DISTRICT #2 | $2.23 | $0.00 | $0.00 | $0.00 | $2.23 | $0.00 |
| 2023 | 5751 | EMS2 - FIRE DIST #2 EMS | $1.25 | $0.00 | $0.00 | $0.00 | $1.25 | $0.00 |
| 2023 | 5751 | CEM2 - CEMETERY DIST #2 | $0.07 | $0.00 | $0.00 | $0.00 | $0.07 | $0.00 |
| 2023 | 5751 | PARK1 - PARK & REC DIST #1 | $0.28 | $0.00 | $0.00 | $0.00 | $0.28 | $0.00 |
| 2023 | 5751 | WAT - Clean Water District | $24.00 | $0.00 | $0.00 | $0.00 | $24.00 | $0.00 |
| 2023 | 5751 | TOTAL: | $43.46 | $0.00 | $0.00 | $0.00 | $43.46 | $0.00 |
|
| 2023 | 5751 | $43.46 | $0.00 | $0.00 | $0.00 | $43.46 | $0.00 |
Values
| (+) Improvement Homesite Value: | + | $0 | |
| (+) Improvement Non-Homesite Value: | + | $0 | |
| (+) Land Homesite Value: | + | $0 | |
| (+) Land Non-Homesite Value: | + | $2,875 | |
| (+) Curr Use (HS): | + | $0 | $0 |
| (+) Curr Use (NHS): | + | $0 | $0 |
| | | -------------------------- | |
| (=) Market Value: | = | $2,875 | |
| (–) Productivity Loss: | – | $0 | |
| | | -------------------------- | |
| (=) Subtotal: | = | $2,875 | |
| (+) Senior Appraised Value: | + | $0 | |
| (+) Non-Senior Appraised Value: | + | $2,875 | |
| | | -------------------------- | |
| (=) Total Appraised Value: | = | $2,875 | |
| (–) Senior Exemption Loss: | – | $0 | |
| (–) Exemption Loss: | – | $0 | |
| | | -------------------------- | |
| (=) Taxable Value: | = | $2,875 | |
Taxing Jurisdiction
| Owner: | CURTIS LOHRMAN | | |
| % Ownership: | 100.0000000000% | | |
| Total Value: | $2,875 | | |
| Tax Area: | 0323 - 1-48F2E2P1H2C2L1 |
| CE | COUNTY CURRENT EXPENSE | 0.9034619479 | $2,875 | $2,875 | $2.60 | | |
| CNTYDD | DEVELOPMENTAL DISABILITIES | 0.0052121823 | $2,875 | $2,875 | $0.01 | | |
| CNTYVET | VETERANS RELIEF | 0.0052777810 | $2,875 | $2,875 | $0.02 | | |
| MENTAL | MENTAL HEALTH | 0.0052121823 | $2,875 | $2,875 | $0.01 | | |
| ROADS | COUNTY ROADS | 0.7415066410 | $2,875 | $2,875 | $2.13 | | |
| ROADSCU | COUNTY ROADS TO CUR EXP | 0.0000000000 | $2,875 | $2,875 | $0.00 | | |
| HOSP2CASH | HOSP DIST #2 GENERAL | 0.0536075306 | $2,875 | $2,875 | $0.15 | | |
| SCH48MO | SCHOOL DIST #48 EP & O | 1.4120478917 | $2,875 | $2,875 | $4.06 | | |
| CEM2 | CEMETERY DIST #2 GENERAL | 0.0241266154 | $2,875 | $2,875 | $0.07 | | |
| CONSERVE | CONSERVATION FUTURES | 0.0275621078 | $2,875 | $2,875 | $0.08 | | |
| FD2 | FIRE DIST #2 GENERAL | 0.7549976873 | $2,875 | $2,875 | $2.17 | | |
| LIB1 | LIBRARY DIST #1 GENERAL | 0.2868827388 | $2,875 | $2,875 | $0.82 | | |
| PARK1 | PARK & REC DIST #1 GENERAL | 0.1474441110 | $2,875 | $2,875 | $0.42 | | |
| PORTPT | PORT OF PT GENERAL | 0.1134941229 | $2,875 | $2,875 | $0.33 | | |
| PORTPTIDD | PORT OF PT IDD 2019 | 0.2577346692 | $2,875 | $2,875 | $0.74 | | |
| PUD1 | PUD #1 GENERAL | 0.0597888892 | $2,875 | $2,875 | $0.17 | | |
| STATE | STATE SCHOOL PART 1 | 1.4940692947 | $2,875 | $2,875 | $4.30 | | |
| STATE2 | STATE SCHOOL PART 2 | 0.8050170049 | $2,875 | $2,875 | $2.31 | | |
| EMS2 | FIRE DIST #2 EMS | 0.4251727858 | $2,875 | $2,875 | $1.22 | | |
| | Total Tax Rate: | 7.5226161838 | | | | | |
| | | | | Taxes w/Current Exemptions: | $21.61 | | |
| | | | | Taxes w/o Exemptions: | $21.61 | | |
Improvement / Building
Sketch
| No sketches available for this property. |
Property Image
Land
| 1 | 9301F | | 0.0000 | 0.00 | 0.00 | 0.00 | 0.00 | $2,875 | $0 |
Roll Value History
| 2026 | N/A | N/A | N/A | N/A | N/A |
| 2025 | $0 | $2,875 | $0 | $2,875 | $2,875 |
| 2024 | $0 | $2,875 | $0 | $2,875 | $2,875 |
| 2023 | $0 | $2,625 | $0 | $2,625 | $2,625 |
| 2022 | $0 | $2,500 | $0 | $2,500 | $2,500 |
Deed and Sales History
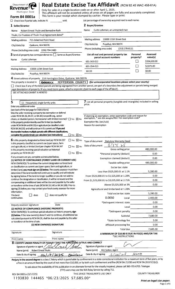
| 1 | 06/17/2025 | SWD | Statutory Warranty Deed | THULIN TRUST | CURTIS LOHRMAN | | | $480,000.00 | 144465 | |
|   | |
| 2 | 09/29/2017 | SWD | Statutory Warranty Deed | CHARLES H WALKER TRUSTEE | THULIN TRUST | | | $245,000.00 | 128728 | |
|   | |
| 3 | 07/09/2009 | QCD | Quit Claim Deed | WALKER, CHARLES H | WALKER FAMILY LIVING TRUST | 0 | 0 | $0.00 | 113244 | 0 |
Payout Agreement
| No payout information available.. |