Property
Account |
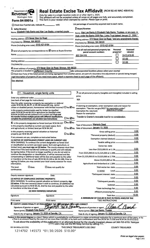
| Property ID: | 16263 | Abbreviated Legal Description: | S23 T26 R2W TAX 8 ENLG BY TAX 23 |
| Parcel # / Geo ID: | 602234019 | Agent Code: | |
| Type: | Real | | |
| Tax Area: | 0441 - 1-46F4E4H2C1L1P2 | Land Use Code | 11 |
| Open Space: | N | DFL | N |
| Historic Property: | N | Remodel Property: | N |
| Multi-Family Redevelopment: | N | | |
| Township: | 26N | Section: | 23 |
| Range: | 2W |
Location |
| Address: | 474 NEVERGIVEUP RD BRINNON, WA 98320 | Mapsco: | 051/009 |
| Neighborhood: | S14 THROUGH S23 T26N R2W & BRINNON R.V. PARK & DISHERS S.P. | Map ID: | |
| Neighborhood CD: | 1320 |
Owner |
| Name: | BANKS 2009 REV LIV TRUST | Owner ID: | 114006 |
| Mailing Address: | ALAN L & ELIZABETH F BANKS 474 NEVER GIVE UP RD BRINNON, WA 98320-9783 | % Ownership: | 100.0000000000% |
| | | Exemptions: | |
Pay Tax Due
Select the appropriate checkbox next to the year to be paid. Multiple years may be selected.
*Convenience Fee not included
Taxes and Assessment Details
Property Tax Information as of
03/10/2026
Click on "Statement Details" to expand or collapse a tax statement.
* Please enter a valid date ** Please enter a valid date *
Statement Details |
| 2026 | 5826 | STATE - STATE LEVY (SCHOOL) | $553.06 | $553.05 | $0.00 | $0.00 | $0.00 | $1106.11 |
| 2026 | 5826 | COUNTY - COUNTY LEVIES (CE, DD, VET, MH) | $221.13 | $221.10 | $0.00 | $0.00 | $0.00 | $442.23 |
| 2026 | 5826 | CONSERVE - CONSERVATION FUTURES | $6.63 | $6.63 | $0.00 | $0.00 | $0.00 | $13.26 |
| 2026 | 5826 | COROADS - COUNTY ROADS (ROADS, DIV TO CE) | $178.38 | $178.37 | $0.00 | $0.00 | $0.00 | $356.75 |
| 2026 | 5826 | PORTPT - PORT DISTRICT | $89.30 | $89.30 | $0.00 | $0.00 | $0.00 | $178.60 |
| 2026 | 5826 | PUD1 - PUD #1 | $14.39 | $14.38 | $0.00 | $0.00 | $0.00 | $28.77 |
| 2026 | 5826 | LIB1 - LIBRARY DIST #1 | $69.01 | $69.01 | $0.00 | $0.00 | $0.00 | $138.02 |
| 2026 | 5826 | HD2 - HOSP DIST #2 | $12.90 | $12.89 | $0.00 | $0.00 | $0.00 | $25.79 |
| 2026 | 5826 | SD46 - SCHOOL DIST #46 | $165.75 | $165.75 | $0.00 | $0.00 | $0.00 | $331.50 |
| 2026 | 5826 | FD4 - FIRE DISTRICT #4 | $401.45 | $401.43 | $0.00 | $0.00 | $0.00 | $802.88 |
| 2026 | 5826 | EMS4 - FIRE DIST #4 EMS | $111.72 | $111.72 | $0.00 | $0.00 | $0.00 | $223.44 |
| 2026 | 5826 | CEM1 - CEMETERY DIST #1 | $2.58 | $2.58 | $0.00 | $0.00 | $0.00 | $5.16 |
| 2026 | 5826 | FP - DNR Forest Fire Protection Assmt | $8.50 | $8.50 | $0.00 | $0.00 | $0.00 | $17.00 |
| 2026 | 5826 | FPLCA - DNR Landowner Contingency Assmt | $3.00 | $3.00 | $0.00 | $0.00 | $0.00 | $6.00 |
| 2026 | 5826 | JCCD - JC Conservation District | $2.55 | $2.55 | $0.00 | $0.00 | $0.00 | $5.10 |
| 2026 | 5826 | NWA - Noxious Weed Assessment | $2.98 | $2.97 | $0.00 | $0.00 | $0.00 | $5.95 |
| 2026 | 5826 | OSS - On Site Septic | $23.10 | $23.10 | $0.00 | $0.00 | $0.00 | $46.20 |
| 2026 | 5826 | WAT - Clean Water District | $13.00 | $13.00 | $0.00 | $0.00 | $0.00 | $26.00 |
| 2026 | 5826 | FP ADMIN - FP ADMIN | $0.50 | $0.00 | $0.00 | $0.00 | $0.00 | $0.50 |
| 2026 | 5826 | TOTAL: | $1879.93 | $1879.33 | $0.00 | $0.00 | $0.00 | $3759.26 |
|
| 2026 | 5826 | $1879.93 | $1879.33 | $0.00 | $0.00 | $0.00 | $3759.26 |
Statement Details |
| 2025 | 5846 | STATE - STATE LEVY (SCHOOL) | $495.70 | $495.68 | $0.00 | $0.00 | $991.38 | $0.00 |
| 2025 | 5846 | COUNTY - COUNTY LEVIES (CE, DD, VET, MH) | $194.95 | $194.91 | $0.00 | $0.00 | $389.86 | $0.00 |
| 2025 | 5846 | CONSERVE - CONSERVATION FUTURES | $5.85 | $5.84 | $0.00 | $0.00 | $11.69 | $0.00 |
| 2025 | 5846 | COROADS - COUNTY ROADS (ROADS, DIV TO CE) | $156.17 | $156.17 | $0.00 | $0.00 | $312.34 | $0.00 |
| 2025 | 5846 | PORTPT - PORT DISTRICT | $79.55 | $79.54 | $0.00 | $0.00 | $159.09 | $0.00 |
| 2025 | 5846 | PUD1 - PUD #1 | $12.76 | $12.75 | $0.00 | $0.00 | $25.51 | $0.00 |
| 2025 | 5846 | LIB1 - LIBRARY DIST #1 | $60.42 | $60.42 | $0.00 | $0.00 | $120.84 | $0.00 |
| 2025 | 5846 | HD2 - HOSP DIST #2 | $11.38 | $11.37 | $0.00 | $0.00 | $22.75 | $0.00 |
| 2025 | 5846 | SD46 - SCHOOL DIST #46 | $131.02 | $131.01 | $0.00 | $0.00 | $262.03 | $0.00 |
| 2025 | 5846 | FD4 - FIRE DISTRICT #4 | $363.09 | $363.09 | $0.00 | $0.00 | $726.18 | $0.00 |
| 2025 | 5846 | EMS4 - FIRE DIST #4 EMS | $100.74 | $100.74 | $0.00 | $0.00 | $201.48 | $0.00 |
| 2025 | 5846 | CEM1 - CEMETERY DIST #1 | $2.34 | $2.33 | $0.00 | $0.00 | $4.67 | $0.00 |
| 2025 | 5846 | FP - DNR Forest Fire Protection Assmt | $8.50 | $8.50 | $0.00 | $0.00 | $17.00 | $0.00 |
| 2025 | 5846 | FPLCA - DNR Landowner Contingency Assmt | $3.00 | $3.00 | $0.00 | $0.00 | $6.00 | $0.00 |
| 2025 | 5846 | JCCD - JC Conservation District | $2.55 | $2.55 | $0.00 | $0.00 | $5.10 | $0.00 |
| 2025 | 5846 | NWA - Noxious Weed Assessment | $2.15 | $2.15 | $0.00 | $0.00 | $4.30 | $0.00 |
| 2025 | 5846 | OSS - On Site Septic | $21.50 | $21.50 | $0.00 | $0.00 | $43.00 | $0.00 |
| 2025 | 5846 | WAT - Clean Water District | $13.00 | $13.00 | $0.00 | $0.00 | $26.00 | $0.00 |
| 2025 | 5846 | FP ADMIN - FP ADMIN | $0.50 | $0.00 | $0.00 | $0.00 | $0.50 | $0.00 |
| 2025 | 5846 | TOTAL: | $1665.17 | $1664.55 | $0.00 | $0.00 | $3329.72 | $0.00 |
|
| 2025 | 5846 | $1665.17 | $1664.55 | $0.00 | $0.00 | $3329.72 | $0.00 |
Statement Details |
| 2024 | 5864 | STATE - STATE LEVY (SCHOOL) | $406.82 | $406.81 | $0.00 | $0.00 | $813.63 | $0.00 |
| 2024 | 5864 | COUNTY - COUNTY LEVIES (CE, DD, VET, MH) | $174.10 | $174.07 | $0.00 | $0.00 | $348.17 | $0.00 |
| 2024 | 5864 | CONSERVE - CONSERVATION FUTURES | $5.22 | $5.22 | $0.00 | $0.00 | $10.44 | $0.00 |
| 2024 | 5864 | COROADS - COUNTY ROADS (ROADS, DIV TO CE) | $140.08 | $140.07 | $0.00 | $0.00 | $280.15 | $0.00 |
| 2024 | 5864 | PORTPT - PORT DISTRICT | $71.91 | $71.90 | $0.00 | $0.00 | $143.81 | $0.00 |
| 2024 | 5864 | PUD1 - PUD #1 | $11.44 | $11.43 | $0.00 | $0.00 | $22.87 | $0.00 |
| 2024 | 5864 | LIB1 - LIBRARY DIST #1 | $54.20 | $54.19 | $0.00 | $0.00 | $108.39 | $0.00 |
| 2024 | 5864 | HD2 - HOSP DIST #2 | $10.16 | $10.15 | $0.00 | $0.00 | $20.31 | $0.00 |
| 2024 | 5864 | SD46 - SCHOOL DIST #46 | $122.13 | $122.13 | $0.00 | $0.00 | $244.26 | $0.00 |
| 2024 | 5864 | FD4 - FIRE DISTRICT #4 | $315.49 | $315.48 | $0.00 | $0.00 | $630.97 | $0.00 |
| 2024 | 5864 | EMS4 - FIRE DIST #4 EMS | $87.92 | $87.92 | $0.00 | $0.00 | $175.84 | $0.00 |
| 2024 | 5864 | CEM1 - CEMETERY DIST #1 | $2.06 | $2.05 | $0.00 | $0.00 | $4.11 | $0.00 |
| 2024 | 5864 | FP - DNR Forest Fire Protection Assmt | $8.50 | $8.50 | $0.00 | $0.00 | $17.00 | $0.00 |
| 2024 | 5864 | FPLCA - DNR Landowner Contingency Assmt | $3.00 | $3.00 | $0.00 | $0.00 | $6.00 | $0.00 |
| 2024 | 5864 | JCCD - JC Conservation District | $2.55 | $2.55 | $0.00 | $0.00 | $5.10 | $0.00 |
| 2024 | 5864 | NWA - Noxious Weed Assessment | $2.15 | $2.15 | $0.00 | $0.00 | $4.30 | $0.00 |
| 2024 | 5864 | OSS - On Site Septic | $21.00 | $21.00 | $0.00 | $0.00 | $42.00 | $0.00 |
| 2024 | 5864 | WAT - Clean Water District | $12.50 | $12.50 | $0.00 | $0.00 | $25.00 | $0.00 |
| 2024 | 5864 | FP ADMIN - FP ADMIN | $0.50 | $0.00 | $0.00 | $0.00 | $0.50 | $0.00 |
| 2024 | 5864 | TOTAL: | $1451.73 | $1451.12 | $0.00 | $0.00 | $2902.85 | $0.00 |
|
| 2024 | 5864 | $1451.73 | $1451.12 | $0.00 | $0.00 | $2902.85 | $0.00 |
Statement Details |
| 2023 | 5878 | STATE - STATE LEVY (SCHOOL) | $369.10 | $369.09 | $0.00 | $0.00 | $738.19 | $0.00 |
| 2023 | 5878 | COUNTY - COUNTY LEVIES (CE, DD, VET, MH) | $161.08 | $161.04 | $0.00 | $0.00 | $322.12 | $0.00 |
| 2023 | 5878 | CONSERVE - CONSERVATION FUTURES | $4.83 | $4.83 | $0.00 | $0.00 | $9.66 | $0.00 |
| 2023 | 5878 | COROADS - COUNTY ROADS (ROADS, DIV TO CE) | $130.32 | $130.30 | $0.00 | $0.00 | $260.62 | $0.00 |
| 2023 | 5878 | PORTPT - PORT DISTRICT | $67.85 | $67.84 | $0.00 | $0.00 | $135.69 | $0.00 |
| 2023 | 5878 | PUD1 - PUD #1 | $10.68 | $10.67 | $0.00 | $0.00 | $21.35 | $0.00 |
| 2023 | 5878 | LIB1 - LIBRARY DIST #1 | $50.42 | $50.41 | $0.00 | $0.00 | $100.83 | $0.00 |
| 2023 | 5878 | HD2 - HOSP DIST #2 | $9.40 | $9.40 | $0.00 | $0.00 | $18.80 | $0.00 |
| 2023 | 5878 | SD46 - SCHOOL DIST #46 | $120.47 | $120.46 | $0.00 | $0.00 | $240.93 | $0.00 |
| 2023 | 5878 | FD4 - FIRE DISTRICT #4 | $200.31 | $200.31 | $0.00 | $0.00 | $400.62 | $0.00 |
| 2023 | 5878 | EMS4 - FIRE DIST #4 EMS | $56.97 | $56.96 | $0.00 | $0.00 | $113.93 | $0.00 |
| 2023 | 5878 | CEM1 - CEMETERY DIST #1 | $2.02 | $2.01 | $0.00 | $0.00 | $4.03 | $0.00 |
| 2023 | 5878 | FP - DNR Forest Fire Protection Assmt | $8.50 | $8.50 | $0.00 | $0.00 | $17.00 | $0.00 |
| 2023 | 5878 | FPLCA - DNR Landowner Contingency Assmt | $3.00 | $3.00 | $0.00 | $0.00 | $6.00 | $0.00 |
| 2023 | 5878 | JCCD - JC Conservation District | $2.55 | $2.55 | $0.00 | $0.00 | $5.10 | $0.00 |
| 2023 | 5878 | NWA - Noxious Weed Assessment | $2.15 | $2.15 | $0.00 | $0.00 | $4.30 | $0.00 |
| 2023 | 5878 | OSS - On Site Septic | $20.50 | $20.50 | $0.00 | $0.00 | $41.00 | $0.00 |
| 2023 | 5878 | WAT - Clean Water District | $12.00 | $12.00 | $0.00 | $0.00 | $24.00 | $0.00 |
| 2023 | 5878 | FP ADMIN - FP ADMIN | $0.50 | $0.00 | $0.00 | $0.00 | $0.50 | $0.00 |
| 2023 | 5878 | TOTAL: | $1232.65 | $1232.02 | $0.00 | $0.00 | $2464.67 | $0.00 |
|
| 2023 | 5878 | $1232.65 | $1232.02 | $0.00 | $0.00 | $2464.67 | $0.00 |
Values
| (+) Improvement Homesite Value: | + | $0 | |
| (+) Improvement Non-Homesite Value: | + | $377,611 | |
| (+) Land Homesite Value: | + | $0 | |
| (+) Land Non-Homesite Value: | + | $103,500 | |
| (+) Curr Use (HS): | + | $0 | $0 |
| (+) Curr Use (NHS): | + | $0 | $0 |
| | | -------------------------- | |
| (=) Market Value: | = | $481,111 | |
| (–) Productivity Loss: | – | $0 | |
| | | -------------------------- | |
| (=) Subtotal: | = | $481,111 | |
| (+) Senior Appraised Value: | + | $0 | |
| (+) Non-Senior Appraised Value: | + | $481,111 | |
| | | -------------------------- | |
| (=) Total Appraised Value: | = | $481,111 | |
| (–) Senior Exemption Loss: | – | $0 | |
| (–) Exemption Loss: | – | $0 | |
| | | -------------------------- | |
| (=) Taxable Value: | = | $481,111 | |
Taxing Jurisdiction
| Owner: | BANKS 2009 REV LIV TRUST | | |
| % Ownership: | 100.0000000000% | | |
| Total Value: | $481,111 | | |
| Tax Area: | 0441 - 1-46F4E4H2C1L1P2 |
| CE | COUNTY CURRENT EXPENSE | 0.9034619479 | $481,111 | $481,111 | $434.67 | | |
| CNTYDD | DEVELOPMENTAL DISABILITIES | 0.0052121823 | $481,111 | $481,111 | $2.51 | | |
| CNTYVET | VETERANS RELIEF | 0.0052777810 | $481,111 | $481,111 | $2.54 | | |
| MENTAL | MENTAL HEALTH | 0.0052121823 | $481,111 | $481,111 | $2.51 | | |
| ROADS | COUNTY ROADS | 0.7415066410 | $481,111 | $481,111 | $356.75 | | |
| ROADSCU | COUNTY ROADS TO CUR EXP | 0.0000000000 | $481,111 | $481,111 | $0.00 | | |
| HOSP2CASH | HOSP DIST #2 GENERAL | 0.0536075306 | $481,111 | $481,111 | $25.79 | | |
| SCH46MO | SCHOOL DIST #46 EP & O | 0.6890207067 | $481,111 | $481,111 | $331.50 | | |
| CEM1 | CEMETERY DIST #1 GENERAL | 0.0107168292 | $481,111 | $481,111 | $5.16 | | |
| CONSERVE | CONSERVATION FUTURES | 0.0275621078 | $481,111 | $481,111 | $13.26 | | |
| EMS4 | FIRE DIST #4 EMS | 0.4644216158 | $481,111 | $481,111 | $223.44 | | |
| FD4 | FIRE DIST #4 GENERAL | 1.3939598390 | $481,111 | $481,111 | $670.65 | | |
| FD4BOND | FIRE DIST #4 BOND 2019 | 0.2748466981 | $481,111 | $481,111 | $132.23 | | |
| LIB1 | LIBRARY DIST #1 GENERAL | 0.2868827388 | $481,111 | $481,111 | $138.02 | | |
| PORTPT | PORT OF PT GENERAL | 0.1134941229 | $481,111 | $481,111 | $54.60 | | |
| PORTPTIDD | PORT OF PT IDD 2019 | 0.2577346692 | $481,111 | $481,111 | $124.00 | | |
| PUD1 | PUD #1 GENERAL | 0.0597888892 | $481,111 | $481,111 | $28.77 | | |
| STATE | STATE SCHOOL PART 1 | 1.4940692947 | $481,111 | $481,111 | $718.81 | | |
| STATE2 | STATE SCHOOL PART 2 | 0.8050170049 | $481,111 | $481,111 | $387.30 | | |
| | Total Tax Rate: | 7.5917927814 | | | | | |
| | | | | Taxes w/Current Exemptions: | $3,652.51 | | |
| | | | | Taxes w/o Exemptions: | $3,652.51 | | |
Improvement / Building
| Improvement #1: | Residential Bldg | State Code: | 11 | 1344.0 sqft | Value: | $377,611 |
| Bathrooms (#): | 2 (FULL) | Bedrooms (#): | 3 | | Exterior Wall: | PL/T1 | Fireplace: | WD ST-AVG | | Floor Construction: | FRAME | Foundation: | CONPR | | Heating/Cooling: | ELBB | Roof Cover: | METAL |
|
| | Type | Description | Class CD | Sub Class CD | Year Built | Area |
| | MA | Main Area | 4 | 1S | 1971 | 1344.0 |
| | HDECK | House Deck | 4 | * | 1971 | 985.0 |
| | BSMTU | House basement unfinished | 2 | 1S | 1971 | 672.0 |
| | HBAL | House Balcony | 4 | * | 1971 | 576.0 |
Sketch
Property Image
Land
| 1 | 1320-1345S | | 0.0000 | 0.00 | 0.00 | 0.00 | 1.00 | $103,500 | $0 |
Roll Value History
| 2026 | N/A | N/A | N/A | N/A | N/A |
| 2025 | $377,611 | $103,500 | $0 | $481,111 | $481,111 |
| 2024 | $318,915 | $94,500 | $0 | $413,415 | $413,415 |
| 2023 | $262,426 | $89,250 | $0 | $351,676 | $351,676 |
| 2022 | $238,569 | $75,000 | $0 | $313,569 | $313,569 |
Deed and Sales History
| 1 | 01/13/2026 | WD | Warranty Deed | ELIZABETH F & ALAN L BANKS | BANKS 2009 REV LIV TRUST | | | | 145573 | |
| 2 | 01/18/2022 | SWD | Statutory Warranty Deed | DANA STEWART | ELIZABETH F & ALAN L BANKS | | | $400,000.00 | 138502 | |
| 3 | 08/07/2017 | SWD | Statutory Warranty Deed | DAVID ARCHEY | DANA STEWART | | | $179,500.00 | 128344 | |
| 4 | 03/20/2009 | QCD | Quit Claim Deed | HIGGINS TRUST | HIGGINS TRUST/MESA CAPITAL LLC | 0 | 0 | $0.00 | 112673 | 0 |
| 5 | 03/20/2009 | SWD | Statutory Warranty Deed | MESA CAPITAL LLC AND HIGG | ARCHEY, DAVID/MELNYK, JANEY | 0 | 0 | $120,000.00 | 112674 | 0 |
| 6 | 11/06/2007 | QCD | Quit Claim Deed | HIGGINS TRUST, ROBERT/T W | MESA CAPITAL LLC | 0 | 0 | $0.00 | 110516 | 0 |
| 7 | 11/06/2007 | QCD | Quit Claim Deed | HIGGINS LIVING TRUST | MESA CAPITAL LLC | 0 | 0 | $10,000.00 | 110445 | 0 |
| 8 | 06/10/1997 | SWD | Statutory Warranty Deed | HIGGINS, ISABEL F S | HIGGINS LIVING TRUST | 0 | 0 | $0.00 | 82137 | 0 |
Payout Agreement
| No payout information available.. |