Property
Account |
| Property ID: | 16268 | Abbreviated Legal Description: | S23 T26 R2W TAX 17 & TL TAX J |
| Parcel # / Geo ID: | 602234026 | Agent Code: | |
| Type: | Real | | |
| Tax Area: | 0441 - 1-46F4E4H2C1L1P2 | Land Use Code | 91 |
| Open Space: | N | DFL | N |
| Historic Property: | N | Remodel Property: | N |
| Multi-Family Redevelopment: | N | | |
| Township: | 26N | Section: | 23 |
| Range: | 2W |
Location |
| Address: | | Mapsco: | 051/014 |
| Neighborhood: | S14 THROUGH S23 T26N R2W & BRINNON R.V. PARK & DISHERS S.P. | Map ID: | |
| Neighborhood CD: | 1320 |
Owner |
| Name: | MILLICENT J MARTIN & H MARTIN BEY EL | Owner ID: | 106713 |
| Mailing Address: | 105 112TH ST S # 15 PARKLAND, WA 98444-5711 | % Ownership: | 100.0000000000% |
| | | Exemptions: | |
Pay Tax Due
Select the appropriate checkbox next to the year to be paid. Multiple years may be selected.
*Convenience Fee not included
Taxes and Assessment Details
Property Tax Information as of
03/13/2026
Click on "Statement Details" to expand or collapse a tax statement.
* Please enter a valid date ** Please enter a valid date *
Statement Details |
| 2026 | 5831 | STATE - STATE LEVY (SCHOOL) | $11.34 | $11.34 | $0.00 | $0.00 | $0.00 | $22.68 |
| 2026 | 5831 | COUNTY - COUNTY LEVIES (CE, DD, VET, MH) | $4.55 | $4.51 | $0.00 | $0.00 | $0.00 | $9.06 |
| 2026 | 5831 | CONSERVE - CONSERVATION FUTURES | $0.14 | $0.13 | $0.00 | $0.00 | $0.00 | $0.27 |
| 2026 | 5831 | COROADS - COUNTY ROADS (ROADS, DIV TO CE) | $3.66 | $3.66 | $0.00 | $0.00 | $0.00 | $7.32 |
| 2026 | 5831 | PORTPT - PORT DISTRICT | $1.83 | $1.83 | $0.00 | $0.00 | $0.00 | $3.66 |
| 2026 | 5831 | PUD1 - PUD #1 | $0.30 | $0.29 | $0.00 | $0.00 | $0.00 | $0.59 |
| 2026 | 5831 | LIB1 - LIBRARY DIST #1 | $1.42 | $1.41 | $0.00 | $0.00 | $0.00 | $2.83 |
| 2026 | 5831 | HD2 - HOSP DIST #2 | $0.27 | $0.26 | $0.00 | $0.00 | $0.00 | $0.53 |
| 2026 | 5831 | SD46 - SCHOOL DIST #46 | $3.40 | $3.40 | $0.00 | $0.00 | $0.00 | $6.80 |
| 2026 | 5831 | FD4 - FIRE DISTRICT #4 | $8.24 | $8.22 | $0.00 | $0.00 | $0.00 | $16.46 |
| 2026 | 5831 | EMS4 - FIRE DIST #4 EMS | $2.29 | $2.29 | $0.00 | $0.00 | $0.00 | $4.58 |
| 2026 | 5831 | CEM1 - CEMETERY DIST #1 | $0.06 | $0.05 | $0.00 | $0.00 | $0.00 | $0.11 |
| 2026 | 5831 | FP - DNR Forest Fire Protection Assmt | $8.50 | $8.50 | $0.00 | $0.00 | $0.00 | $17.00 |
| 2026 | 5831 | FPLCA - DNR Landowner Contingency Assmt | $3.00 | $3.00 | $0.00 | $0.00 | $0.00 | $6.00 |
| 2026 | 5831 | JCCD - JC Conservation District | $2.53 | $2.53 | $0.00 | $0.00 | $0.00 | $5.06 |
| 2026 | 5831 | NWA - Noxious Weed Assessment | $2.98 | $2.97 | $0.00 | $0.00 | $0.00 | $5.95 |
| 2026 | 5831 | WAT - Clean Water District | $13.00 | $13.00 | $0.00 | $0.00 | $0.00 | $26.00 |
| 2026 | 5831 | FP ADMIN - FP ADMIN | $0.50 | $0.00 | $0.00 | $0.00 | $0.00 | $0.50 |
| 2026 | 5831 | TOTAL: | $68.01 | $67.39 | $0.00 | $0.00 | $0.00 | $135.40 |
|
| 2026 | 5831 | $68.01 | $67.39 | $0.00 | $0.00 | $0.00 | $135.40 |
Statement Details |
| 2025 | 5851 | STATE - STATE LEVY (SCHOOL) | $10.80 | $10.80 | $0.00 | $0.00 | $21.60 | $0.00 |
| 2025 | 5851 | COUNTY - COUNTY LEVIES (CE, DD, VET, MH) | $4.27 | $4.23 | $0.00 | $0.00 | $8.50 | $0.00 |
| 2025 | 5851 | CONSERVE - CONSERVATION FUTURES | $0.13 | $0.12 | $0.00 | $0.00 | $0.25 | $0.00 |
| 2025 | 5851 | COROADS - COUNTY ROADS (ROADS, DIV TO CE) | $3.41 | $3.40 | $0.00 | $0.00 | $6.81 | $0.00 |
| 2025 | 5851 | PORTPT - PORT DISTRICT | $1.74 | $1.73 | $0.00 | $0.00 | $3.47 | $0.00 |
| 2025 | 5851 | PUD1 - PUD #1 | $0.28 | $0.28 | $0.00 | $0.00 | $0.56 | $0.00 |
| 2025 | 5851 | LIB1 - LIBRARY DIST #1 | $1.32 | $1.31 | $0.00 | $0.00 | $2.63 | $0.00 |
| 2025 | 5851 | HD2 - HOSP DIST #2 | $0.25 | $0.25 | $0.00 | $0.00 | $0.50 | $0.00 |
| 2025 | 5851 | SD46 - SCHOOL DIST #46 | $2.86 | $2.85 | $0.00 | $0.00 | $5.71 | $0.00 |
| 2025 | 5851 | FD4 - FIRE DISTRICT #4 | $7.91 | $7.91 | $0.00 | $0.00 | $15.82 | $0.00 |
| 2025 | 5851 | EMS4 - FIRE DIST #4 EMS | $2.20 | $2.19 | $0.00 | $0.00 | $4.39 | $0.00 |
| 2025 | 5851 | CEM1 - CEMETERY DIST #1 | $0.05 | $0.05 | $0.00 | $0.00 | $0.10 | $0.00 |
| 2025 | 5851 | FP - DNR Forest Fire Protection Assmt | $8.50 | $8.50 | $0.00 | $0.00 | $17.00 | $0.00 |
| 2025 | 5851 | FPLCA - DNR Landowner Contingency Assmt | $3.00 | $3.00 | $0.00 | $0.00 | $6.00 | $0.00 |
| 2025 | 5851 | JCCD - JC Conservation District | $2.53 | $2.53 | $0.00 | $0.00 | $5.06 | $0.00 |
| 2025 | 5851 | NWA - Noxious Weed Assessment | $2.15 | $2.15 | $0.00 | $0.00 | $4.30 | $0.00 |
| 2025 | 5851 | WAT - Clean Water District | $13.00 | $13.00 | $0.00 | $0.00 | $26.00 | $0.00 |
| 2025 | 5851 | FP ADMIN - FP ADMIN | $0.50 | $0.00 | $0.00 | $0.00 | $0.50 | $0.00 |
| 2025 | 5851 | TOTAL: | $64.90 | $64.30 | $0.00 | $0.00 | $129.20 | $0.00 |
|
| 2025 | 5851 | $64.90 | $64.30 | $0.00 | $0.00 | $129.20 | $0.00 |
Statement Details |
| 2024 | 5869 | STATE - STATE LEVY (SCHOOL) | $10.43 | $10.42 | $0.00 | $0.00 | $20.85 | $0.00 |
| 2024 | 5869 | COUNTY - COUNTY LEVIES (CE, DD, VET, MH) | $4.48 | $4.44 | $0.00 | $0.00 | $8.92 | $0.00 |
| 2024 | 5869 | CONSERVE - CONSERVATION FUTURES | $0.14 | $0.13 | $0.00 | $0.00 | $0.27 | $0.00 |
| 2024 | 5869 | COROADS - COUNTY ROADS (ROADS, DIV TO CE) | $3.59 | $3.59 | $0.00 | $0.00 | $7.18 | $0.00 |
| 2024 | 5869 | PORTPT - PORT DISTRICT | $1.84 | $1.84 | $0.00 | $0.00 | $3.68 | $0.00 |
| 2024 | 5869 | PUD1 - PUD #1 | $0.30 | $0.29 | $0.00 | $0.00 | $0.59 | $0.00 |
| 2024 | 5869 | LIB1 - LIBRARY DIST #1 | $1.39 | $1.39 | $0.00 | $0.00 | $2.78 | $0.00 |
| 2024 | 5869 | HD2 - HOSP DIST #2 | $0.26 | $0.26 | $0.00 | $0.00 | $0.52 | $0.00 |
| 2024 | 5869 | SD46 - SCHOOL DIST #46 | $3.13 | $3.13 | $0.00 | $0.00 | $6.26 | $0.00 |
| 2024 | 5869 | FD4 - FIRE DISTRICT #4 | $8.09 | $8.07 | $0.00 | $0.00 | $16.16 | $0.00 |
| 2024 | 5869 | EMS4 - FIRE DIST #4 EMS | $2.25 | $2.25 | $0.00 | $0.00 | $4.50 | $0.00 |
| 2024 | 5869 | CEM1 - CEMETERY DIST #1 | $0.06 | $0.05 | $0.00 | $0.00 | $0.11 | $0.00 |
| 2024 | 5869 | FP - DNR Forest Fire Protection Assmt | $8.50 | $8.50 | $0.00 | $0.00 | $17.00 | $0.00 |
| 2024 | 5869 | FPLCA - DNR Landowner Contingency Assmt | $3.00 | $3.00 | $0.00 | $0.00 | $6.00 | $0.00 |
| 2024 | 5869 | JCCD - JC Conservation District | $2.53 | $2.53 | $0.00 | $0.00 | $5.06 | $0.00 |
| 2024 | 5869 | NWA - Noxious Weed Assessment | $2.15 | $2.15 | $0.00 | $0.00 | $4.30 | $0.00 |
| 2024 | 5869 | WAT - Clean Water District | $12.50 | $12.50 | $0.00 | $0.00 | $25.00 | $0.00 |
| 2024 | 5869 | FP ADMIN - FP ADMIN | $0.50 | $0.00 | $0.00 | $0.00 | $0.50 | $0.00 |
| 2024 | 5869 | TOTAL: | $65.14 | $64.54 | $0.00 | $0.00 | $129.68 | $0.00 |
|
| 2024 | 5869 | $65.14 | $64.54 | $0.00 | $0.00 | $129.68 | $0.00 |
Statement Details |
| 2023 | 5883 | STATE - STATE LEVY (SCHOOL) | $10.10 | $10.10 | $0.00 | $0.00 | $20.20 | $0.00 |
| 2023 | 5883 | COUNTY - COUNTY LEVIES (CE, DD, VET, MH) | $4.42 | $4.39 | $0.00 | $0.00 | $8.81 | $0.00 |
| 2023 | 5883 | CONSERVE - CONSERVATION FUTURES | $0.13 | $0.13 | $0.00 | $0.00 | $0.26 | $0.00 |
| 2023 | 5883 | COROADS - COUNTY ROADS (ROADS, DIV TO CE) | $3.57 | $3.56 | $0.00 | $0.00 | $7.13 | $0.00 |
| 2023 | 5883 | PORTPT - PORT DISTRICT | $1.86 | $1.85 | $0.00 | $0.00 | $3.71 | $0.00 |
| 2023 | 5883 | PUD1 - PUD #1 | $0.29 | $0.29 | $0.00 | $0.00 | $0.58 | $0.00 |
| 2023 | 5883 | LIB1 - LIBRARY DIST #1 | $1.38 | $1.38 | $0.00 | $0.00 | $2.76 | $0.00 |
| 2023 | 5883 | HD2 - HOSP DIST #2 | $0.26 | $0.25 | $0.00 | $0.00 | $0.51 | $0.00 |
| 2023 | 5883 | SD46 - SCHOOL DIST #46 | $3.30 | $3.29 | $0.00 | $0.00 | $6.59 | $0.00 |
| 2023 | 5883 | FD4 - FIRE DISTRICT #4 | $5.48 | $5.48 | $0.00 | $0.00 | $10.96 | $0.00 |
| 2023 | 5883 | EMS4 - FIRE DIST #4 EMS | $1.56 | $1.56 | $0.00 | $0.00 | $3.12 | $0.00 |
| 2023 | 5883 | CEM1 - CEMETERY DIST #1 | $0.06 | $0.05 | $0.00 | $0.00 | $0.11 | $0.00 |
| 2023 | 5883 | FP - DNR Forest Fire Protection Assmt | $8.50 | $8.50 | $0.00 | $0.00 | $17.00 | $0.00 |
| 2023 | 5883 | FPLCA - DNR Landowner Contingency Assmt | $3.00 | $3.00 | $0.00 | $0.00 | $6.00 | $0.00 |
| 2023 | 5883 | JCCD - JC Conservation District | $2.53 | $2.53 | $0.00 | $0.00 | $5.06 | $0.00 |
| 2023 | 5883 | NWA - Noxious Weed Assessment | $2.15 | $2.15 | $0.00 | $0.00 | $4.30 | $0.00 |
| 2023 | 5883 | WAT - Clean Water District | $12.00 | $12.00 | $0.00 | $0.00 | $24.00 | $0.00 |
| 2023 | 5883 | FP ADMIN - FP ADMIN | $0.50 | $0.00 | $0.00 | $0.00 | $0.50 | $0.00 |
| 2023 | 5883 | TOTAL: | $61.09 | $60.51 | $0.00 | $0.00 | $121.60 | $0.00 |
|
| 2023 | 5883 | $61.09 | $60.51 | $0.00 | $0.00 | $121.60 | $0.00 |
Values
| (+) Improvement Homesite Value: | + | $0 | |
| (+) Improvement Non-Homesite Value: | + | $0 | |
| (+) Land Homesite Value: | + | $0 | |
| (+) Land Non-Homesite Value: | + | $9,867 | |
| (+) Curr Use (HS): | + | $0 | $0 |
| (+) Curr Use (NHS): | + | $0 | $0 |
| | | -------------------------- | |
| (=) Market Value: | = | $9,867 | |
| (–) Productivity Loss: | – | $0 | |
| | | -------------------------- | |
| (=) Subtotal: | = | $9,867 | |
| (+) Senior Appraised Value: | + | $0 | |
| (+) Non-Senior Appraised Value: | + | $9,867 | |
| | | -------------------------- | |
| (=) Total Appraised Value: | = | $9,867 | |
| (–) Senior Exemption Loss: | – | $0 | |
| (–) Exemption Loss: | – | $0 | |
| | | -------------------------- | |
| (=) Taxable Value: | = | $9,867 | |
Taxing Jurisdiction
| Owner: | MILLICENT J MARTIN & H MARTIN BEY EL | | |
| % Ownership: | 100.0000000000% | | |
| Total Value: | N/A | | |
| Tax Area: | 0441 - 1-46F4E4H2C1L1P2 |
| CE | COUNTY CURRENT EXPENSE | N/A | N/A | N/A | N/A | | |
| CNTYDD | DEVELOPMENTAL DISABILITIES | N/A | N/A | N/A | N/A | | |
| CNTYVET | VETERANS RELIEF | N/A | N/A | N/A | N/A | | |
| MENTAL | MENTAL HEALTH | N/A | N/A | N/A | N/A | | |
| ROADS | COUNTY ROADS | N/A | N/A | N/A | N/A | | |
| HOSP2CASH | HOSP DIST #2 GENERAL | N/A | N/A | N/A | N/A | | |
| SCH46MO | SCHOOL DIST #46 EP & O | N/A | N/A | N/A | N/A | | |
| CEM1 | CEMETERY DIST #1 GENERAL | N/A | N/A | N/A | N/A | | |
| CONSERVE | CONSERVATION FUTURES | N/A | N/A | N/A | N/A | | |
| EMS4 | FIRE DIST #4 EMS | N/A | N/A | N/A | N/A | | |
| FD4 | FIRE DIST #4 GENERAL | N/A | N/A | N/A | N/A | | |
| FD4BOND | FIRE DIST #4 BOND 2019 | N/A | N/A | N/A | N/A | | |
| LIB1 | LIBRARY DIST #1 GENERAL | N/A | N/A | N/A | N/A | | |
| PORTPT | PORT OF PT GENERAL | N/A | N/A | N/A | N/A | | |
| PORTPTIDD | PORT OF PT IDD 2019 | N/A | N/A | N/A | N/A | | |
| PUD1 | PUD #1 GENERAL | N/A | N/A | N/A | N/A | | |
| STATE | STATE SCHOOL PART 1 | N/A | N/A | N/A | N/A | | |
| STATE2 | STATE SCHOOL PART 2 | N/A | N/A | N/A | N/A | | |
| | Total Tax Rate: | N/A | | | | | |
| | | | | Taxes w/Current Exemptions: | N/A | | |
| | | | | Taxes w/o Exemptions: | N/A | | |
Improvement / Building
Sketch
| No sketches available for this property. |
Property Image
Land
| 1 | 9301F | | 0.0000 | 0.00 | 0.00 | 0.00 | 0.00 | $3,795 | $0 |
| 2 | 1320-1527F | | 0.0000 | 0.00 | 0.00 | 0.00 | 0.00 | $6,072 | $0 |
Roll Value History
| 2026 | N/A | N/A | N/A | N/A | N/A |
| 2025 | $0 | $9,867 | $0 | $9,867 | $9,867 |
| 2024 | $0 | $9,009 | $0 | $9,009 | $9,009 |
| 2023 | $0 | $9,009 | $0 | $9,009 | $9,009 |
| 2022 | $0 | $8,580 | $0 | $8,580 | $8,580 |
Deed and Sales History
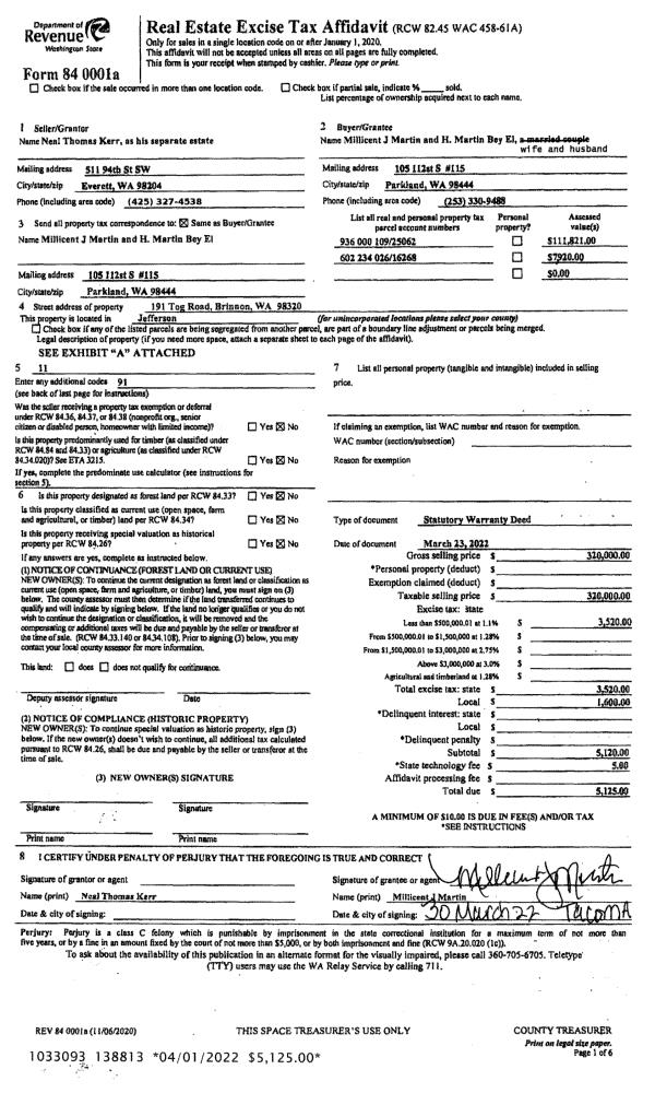
| 1 | 03/23/2022 | SWD | Statutory Warranty Deed | NEAL THOMAS KERR | MILLICENT J MARTIN & H MARTIN BEY EL | | | $320,000.00 | 138813 | |
|   | |
| 2 | 12/20/2012 | QCD | Quit Claim Deed | NEAL T KERR | NEAL THOMAS KERR | | | | 118543 | |
| 3 | 10/03/2010 | SWD | Statutory Warranty Deed | OAKES, GORDON W | KERR, NEAL THOMAS/MARLE D | 0 | 0 | $0.00 | 115056 | 0 |
| 4 | 07/26/2010 | QCD | Quit Claim Deed | OAKES, MICHAEL | OAKES, GORDON W | 0 | 0 | $0.00 | 114750 | 0 |
Payout Agreement
| No payout information available.. |