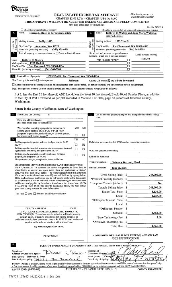
Property
Account |
| Property ID: | 16364 | Abbreviated Legal Description: | S28 T26N R2W TAX 33-PARCEL G BLA#142403 SURVEY V40/P31-2 |
| Parcel # / Geo ID: | 602281001 | Agent Code: | |
| Type: | Real | | |
| Tax Area: | 0402 - 1-46E4H2C1L1Z1P2 | Land Use Code | 88 |
| Open Space: | N | DFL | Y |
| Historic Property: | N | Remodel Property: | N |
| Multi-Family Redevelopment: | N | | |
| Township: | 26N | Section: | 28 |
| Range: | 2W |
Location |
| Address: | | Mapsco: | 054/029E |
| Neighborhood: | S28 THRU S33 T26N R2W | Map ID: | |
| Neighborhood CD: | 1380 |
Owner |
| Name: | AMERICAN TIMBER RESOURCE LLC | Owner ID: | 10311 |
| Mailing Address: | PO BOX 810 BRINNON, WA 98320-0810 | % Ownership: | 100.0000000000% |
| | | Exemptions: | |
Pay Tax Due
Select the appropriate checkbox next to the year to be paid. Multiple years may be selected.
*Convenience Fee not included
Taxes and Assessment Details
Property Tax Information as of
03/09/2026
Click on "Statement Details" to expand or collapse a tax statement.
* Please enter a valid date ** Please enter a valid date *
Statement Details |
| 2026 | 5927 | STATE - STATE LEVY (SCHOOL) | $36.59 | $36.58 | $0.00 | $0.00 | $0.00 | $73.17 |
| 2026 | 5927 | COUNTY - COUNTY LEVIES (CE, DD, VET, MH) | $14.65 | $14.62 | $0.00 | $0.00 | $0.00 | $29.27 |
| 2026 | 5927 | CONSERVE - CONSERVATION FUTURES | $0.44 | $0.44 | $0.00 | $0.00 | $0.00 | $0.88 |
| 2026 | 5927 | COROADS - COUNTY ROADS (ROADS, DIV TO CE) | $11.80 | $11.80 | $0.00 | $0.00 | $0.00 | $23.60 |
| 2026 | 5927 | PORTPT - PORT DISTRICT | $5.91 | $5.90 | $0.00 | $0.00 | $0.00 | $11.81 |
| 2026 | 5927 | PUD1 - PUD #1 | $0.95 | $0.95 | $0.00 | $0.00 | $0.00 | $1.90 |
| 2026 | 5927 | LIB1 - LIBRARY DIST #1 | $4.57 | $4.56 | $0.00 | $0.00 | $0.00 | $9.13 |
| 2026 | 5927 | HD2 - HOSP DIST #2 | $0.86 | $0.85 | $0.00 | $0.00 | $0.00 | $1.71 |
| 2026 | 5927 | SD46 - SCHOOL DIST #46 | $10.97 | $10.96 | $0.00 | $0.00 | $0.00 | $21.93 |
| 2026 | 5927 | FD4 - FIRE DISTRICT #4 | $4.38 | $4.37 | $0.00 | $0.00 | $0.00 | $8.75 |
| 2026 | 5927 | EMS4 - FIRE DIST #4 EMS | $7.39 | $7.39 | $0.00 | $0.00 | $0.00 | $14.78 |
| 2026 | 5927 | CEM1 - CEMETERY DIST #1 | $0.17 | $0.17 | $0.00 | $0.00 | $0.00 | $0.34 |
| 2026 | 5927 | FP - DNR Forest Fire Protection Assmt | $23.99 | $23.98 | $0.00 | $0.00 | $0.00 | $47.97 |
| 2026 | 5927 | FPLCA - DNR Landowner Contingency Assmt | $11.61 | $11.60 | $0.00 | $0.00 | $0.00 | $23.21 |
| 2026 | 5927 | JCCD - JC Conservation District | $2.21 | $2.21 | $0.00 | $0.00 | $0.00 | $4.42 |
| 2026 | 5927 | NWA - Noxious Weed Assessment | $1.20 | $1.20 | $0.00 | $0.00 | $0.00 | $2.40 |
| 2026 | 5927 | WAT - Clean Water District | $13.00 | $13.00 | $0.00 | $0.00 | $0.00 | $26.00 |
| 2026 | 5927 | FP ADMIN - FP ADMIN | $0.50 | $0.00 | $0.00 | $0.00 | $0.00 | $0.50 |
| 2026 | 5927 | TOTAL: | $151.19 | $150.58 | $0.00 | $0.00 | $0.00 | $301.77 |
|
| 2026 | 5927 | $151.19 | $150.58 | $0.00 | $0.00 | $0.00 | $301.77 |
Statement Details |
| 2025 | 5947 | STATE - STATE LEVY (SCHOOL) | $36.72 | $36.70 | $8.08 | $8.08 | $0.00 | $89.58 |
| 2025 | 5947 | COUNTY - COUNTY LEVIES (CE, DD, VET, MH) | $14.44 | $14.43 | $3.16 | $3.18 | $0.00 | $35.21 |
| 2025 | 5947 | CONSERVE - CONSERVATION FUTURES | $0.44 | $0.43 | $0.10 | $0.10 | $0.00 | $1.07 |
| 2025 | 5947 | COROADS - COUNTY ROADS (ROADS, DIV TO CE) | $11.57 | $11.56 | $2.54 | $2.55 | $0.00 | $28.22 |
| 2025 | 5947 | PORTPT - PORT DISTRICT | $5.89 | $5.89 | $1.30 | $1.29 | $0.00 | $14.37 |
| 2025 | 5947 | PUD1 - PUD #1 | $0.95 | $0.94 | $0.21 | $0.21 | $0.00 | $2.31 |
| 2025 | 5947 | LIB1 - LIBRARY DIST #1 | $4.48 | $4.47 | $0.99 | $0.98 | $0.00 | $10.92 |
| 2025 | 5947 | HD2 - HOSP DIST #2 | $0.84 | $0.84 | $0.18 | $0.18 | $0.00 | $2.04 |
| 2025 | 5947 | SD46 - SCHOOL DIST #46 | $9.71 | $9.70 | $2.13 | $2.14 | $0.00 | $23.68 |
| 2025 | 5947 | FD4 - FIRE DISTRICT #4 | $4.46 | $4.45 | $0.98 | $0.98 | $0.00 | $10.87 |
| 2025 | 5947 | EMS4 - FIRE DIST #4 EMS | $7.46 | $7.46 | $1.64 | $1.64 | $0.00 | $18.20 |
| 2025 | 5947 | CEM1 - CEMETERY DIST #1 | $0.18 | $0.17 | $0.04 | $0.04 | $0.00 | $0.43 |
| 2025 | 5947 | FP - DNR Forest Fire Protection Assmt | $23.99 | $23.98 | $5.28 | $5.28 | $0.00 | $58.53 |
| 2025 | 5947 | FPLCA - DNR Landowner Contingency Assmt | $11.61 | $11.60 | $2.56 | $2.55 | $0.00 | $28.32 |
| 2025 | 5947 | JCCD - JC Conservation District | $2.21 | $2.21 | $0.48 | $0.49 | $0.00 | $5.39 |
| 2025 | 5947 | NWA - Noxious Weed Assessment | $0.82 | $0.81 | $0.18 | $0.18 | $0.00 | $1.99 |
| 2025 | 5947 | WAT - Clean Water District | $13.00 | $13.00 | $2.86 | $2.86 | $0.00 | $31.72 |
| 2025 | 5947 | FP ADMIN - FP ADMIN | $0.50 | $0.00 | $0.00 | $0.00 | $0.00 | $0.50 |
| 2025 | 5947 | TOTAL: | $149.27 | $148.64 | $32.71 | $32.73 | $0.00 | $363.35 |
|
| 2025 | 5947 | $149.27 | $148.64 | $32.71 | $32.73 | $0.00 | $363.35 |
Statement Details |
| 2024 | 5965 | STATE - STATE LEVY (SCHOOL) | $5.28 | $5.27 | $0.00 | $0.00 | $10.55 | $0.00 |
| 2024 | 5965 | COUNTY - COUNTY LEVIES (CE, DD, VET, MH) | $2.28 | $2.25 | $0.00 | $0.00 | $4.53 | $0.00 |
| 2024 | 5965 | CONSERVE - CONSERVATION FUTURES | $0.07 | $0.07 | $0.00 | $0.00 | $0.14 | $0.00 |
| 2024 | 5965 | COROADS - COUNTY ROADS (ROADS, DIV TO CE) | $1.82 | $1.81 | $0.00 | $0.00 | $3.63 | $0.00 |
| 2024 | 5965 | PORTPT - PORT DISTRICT | $0.94 | $0.93 | $0.00 | $0.00 | $1.87 | $0.00 |
| 2024 | 5965 | PUD1 - PUD #1 | $0.15 | $0.15 | $0.00 | $0.00 | $0.30 | $0.00 |
| 2024 | 5965 | LIB1 - LIBRARY DIST #1 | $0.71 | $0.70 | $0.00 | $0.00 | $1.41 | $0.00 |
| 2024 | 5965 | HD2 - HOSP DIST #2 | $0.13 | $0.13 | $0.00 | $0.00 | $0.26 | $0.00 |
| 2024 | 5965 | SD46 - SCHOOL DIST #46 | $1.59 | $1.58 | $0.00 | $0.00 | $3.17 | $0.00 |
| 2024 | 5965 | FD4 - FIRE DISTRICT #4 | $0.67 | $0.67 | $0.00 | $0.00 | $1.34 | $0.00 |
| 2024 | 5965 | EMS4 - FIRE DIST #4 EMS | $1.14 | $1.14 | $0.00 | $0.00 | $2.28 | $0.00 |
| 2024 | 5965 | CEM1 - CEMETERY DIST #1 | $0.03 | $0.02 | $0.00 | $0.00 | $0.05 | $0.00 |
| 2024 | 5965 | FP - DNR Forest Fire Protection Assmt | $20.72 | $20.72 | $0.00 | $0.00 | $41.44 | $0.00 |
| 2024 | 5965 | FPLCA - DNR Landowner Contingency Assmt | $9.79 | $9.79 | $0.00 | $0.00 | $19.58 | $0.00 |
| 2024 | 5965 | JCCD - JC Conservation District | $4.22 | $4.21 | $0.00 | $0.00 | $8.43 | $0.00 |
| 2024 | 5965 | NWA - Noxious Weed Assessment | $2.32 | $2.31 | $0.00 | $0.00 | $4.63 | $0.00 |
| 2024 | 5965 | FP ADMIN - FP ADMIN | $0.50 | $0.00 | $0.00 | $0.00 | $0.50 | $0.00 |
| 2024 | 5965 | TOTAL: | $52.36 | $51.75 | $0.00 | $0.00 | $104.11 | $0.00 |
|
| 2024 | 5965 | $52.36 | $51.75 | $0.00 | $0.00 | $104.11 | $0.00 |
Statement Details |
| 2023 | 5979 | STATE - STATE LEVY (SCHOOL) | $16.24 | $16.24 | $0.00 | $0.00 | $32.48 | $0.00 |
| 2023 | 5979 | COUNTY - COUNTY LEVIES (CE, DD, VET, MH) | $7.09 | $7.08 | $0.00 | $0.00 | $14.17 | $0.00 |
| 2023 | 5979 | CONSERVE - CONSERVATION FUTURES | $0.21 | $0.21 | $0.00 | $0.00 | $0.42 | $0.00 |
| 2023 | 5979 | COROADS - COUNTY ROADS (ROADS, DIV TO CE) | $5.74 | $5.73 | $0.00 | $0.00 | $11.47 | $0.00 |
| 2023 | 5979 | PORTPT - PORT DISTRICT | $2.99 | $2.98 | $0.00 | $0.00 | $5.97 | $0.00 |
| 2023 | 5979 | PUD1 - PUD #1 | $0.47 | $0.47 | $0.00 | $0.00 | $0.94 | $0.00 |
| 2023 | 5979 | LIB1 - LIBRARY DIST #1 | $2.22 | $2.22 | $0.00 | $0.00 | $4.44 | $0.00 |
| 2023 | 5979 | HD2 - HOSP DIST #2 | $0.42 | $0.41 | $0.00 | $0.00 | $0.83 | $0.00 |
| 2023 | 5979 | SD46 - SCHOOL DIST #46 | $5.30 | $5.30 | $0.00 | $0.00 | $10.60 | $0.00 |
| 2023 | 5979 | FD4 - FIRE DISTRICT #4 | $2.34 | $2.33 | $0.00 | $0.00 | $4.67 | $0.00 |
| 2023 | 5979 | EMS4 - FIRE DIST #4 EMS | $2.51 | $2.50 | $0.00 | $0.00 | $5.01 | $0.00 |
| 2023 | 5979 | CEM1 - CEMETERY DIST #1 | $0.09 | $0.09 | $0.00 | $0.00 | $0.18 | $0.00 |
| 2023 | 5979 | FP - DNR Forest Fire Protection Assmt | $20.72 | $20.72 | $0.00 | $0.00 | $41.44 | $0.00 |
| 2023 | 5979 | FPLCA - DNR Landowner Contingency Assmt | $9.79 | $9.79 | $0.00 | $0.00 | $19.58 | $0.00 |
| 2023 | 5979 | JCCD - JC Conservation District | $2.81 | $2.80 | $0.00 | $0.00 | $5.61 | $0.00 |
| 2023 | 5979 | NWA - Noxious Weed Assessment | $2.32 | $2.31 | $0.00 | $0.00 | $4.63 | $0.00 |
| 2023 | 5979 | FP ADMIN - FP ADMIN | $0.50 | $0.00 | $0.00 | $0.00 | $0.50 | $0.00 |
| 2023 | 5979 | TOTAL: | $81.76 | $81.18 | $0.00 | $0.00 | $162.94 | $0.00 |
|
| 2023 | 5979 | $81.76 | $81.18 | $0.00 | $0.00 | $162.94 | $0.00 |
Values
| (+) Improvement Homesite Value: | + | $0 | |
| (+) Improvement Non-Homesite Value: | + | $13,346 | |
| (+) Land Homesite Value: | + | $0 | |
| (+) Land Non-Homesite Value: | + | $0 | |
| (+) Curr Use (HS): | + | $0 | $0 |
| (+) Curr Use (NHS): | + | $477,675 | $18,483 |
| | | -------------------------- | |
| (=) Market Value: | = | $491,021 | |
| (–) Productivity Loss: | – | $459,192 | |
| | | -------------------------- | |
| (=) Subtotal: | = | $31,829 | |
| (+) Senior Appraised Value: | + | $0 | |
| (+) Non-Senior Appraised Value: | + | $31,829 | |
| | | -------------------------- | |
| (=) Total Appraised Value: | = | $31,829 | |
| (–) Senior Exemption Loss: | – | $0 | |
| (–) Exemption Loss: | – | $0 | |
| | | -------------------------- | |
| (=) Taxable Value: | = | $31,829 | |
Taxing Jurisdiction
| Owner: | AMERICAN TIMBER RESOURCE LLC | | |
| % Ownership: | 100.0000000000% | | |
| Total Value: | $491,021 | | |
| Tax Area: | 0402 - 1-46E4H2C1L1Z1P2 |
| CE | COUNTY CURRENT EXPENSE | 0.9034619479 | $31,829 | $31,829 | $28.76 | | |
| CNTYDD | DEVELOPMENTAL DISABILITIES | 0.0052121823 | $31,829 | $31,829 | $0.17 | | |
| CNTYVET | VETERANS RELIEF | 0.0052777810 | $31,829 | $31,829 | $0.17 | | |
| MENTAL | MENTAL HEALTH | 0.0052121823 | $31,829 | $31,829 | $0.17 | | |
| ROADS | COUNTY ROADS | 0.7415066410 | $31,829 | $31,829 | $23.60 | | |
| ROADSCU | COUNTY ROADS TO CUR EXP | 0.0000000000 | $31,829 | $31,829 | $0.00 | | |
| HOSP2CASH | HOSP DIST #2 GENERAL | 0.0536075306 | $31,829 | $31,829 | $1.71 | | |
| SCH46MO | SCHOOL DIST #46 EP & O | 0.6890207067 | $31,829 | $31,829 | $21.93 | | |
| CEM1 | CEMETERY DIST #1 GENERAL | 0.0107168292 | $31,829 | $31,829 | $0.34 | | |
| CONSERVE | CONSERVATION FUTURES | 0.0275621078 | $31,829 | $31,829 | $0.88 | | |
| EMS4 | FIRE DIST #4 EMS | 0.4644216158 | $31,829 | $31,829 | $14.78 | | |
| FD4BOND | FIRE DIST #4 BOND 2019 | 0.2748466981 | $31,829 | $31,829 | $8.75 | | |
| LIB1 | LIBRARY DIST #1 GENERAL | 0.2868827388 | $31,829 | $31,829 | $9.13 | | |
| PORTPT | PORT OF PT GENERAL | 0.1134941229 | $31,829 | $31,829 | $3.61 | | |
| PORTPTIDD | PORT OF PT IDD 2019 | 0.2577346692 | $31,829 | $31,829 | $8.20 | | |
| PUD1 | PUD #1 GENERAL | 0.0597888892 | $31,829 | $31,829 | $1.90 | | |
| STATE | STATE SCHOOL PART 1 | 1.4940692947 | $31,829 | $31,829 | $47.55 | | |
| STATE2 | STATE SCHOOL PART 2 | 0.8050170049 | $31,829 | $31,829 | $25.62 | | |
| | Total Tax Rate: | 6.1978329424 | | | | | |
| | | | | Taxes w/Current Exemptions: | $197.27 | | |
| | | | | Taxes w/o Exemptions: | $197.27 | | |
Improvement / Building
| Improvement #1: | Residential Bldg | State Code: | 88 | 0.0 sqft | Value: | $13,346 |
| | Type | Description | Class CD | Sub Class CD | Year Built | Area |
| | CARPTF | Carport W/Floor | 1 | * | 2000 | 288.0 |
| | CWPOR | Cabin Wood Porch | 1 | * | 2000 | 2400.0 |
| | CDECK | Cabin Deck | 1 | * | 2000 | 600.0 |
Sketch
Property Image
Land
| 1 | 1977A | | 163.7000 | 7130772.00 | 0.00 | 0.00 | 0.00 | $450,175 | $18,334 |
| 2 | 1380-1375S | | 1.0000 | 43560.00 | 0.00 | 0.00 | 1.00 | $27,500 | $149 |
Roll Value History
| 2026 | N/A | N/A | N/A | N/A | N/A |
| 2025 | $13,346 | $477,675 | $18,483 | $31,829 | $31,829 |
| 2024 | $12,133 | $434,250 | $18,484 | $30,617 | $30,617 |
| 2023 | $0 | $125,250 | $4,559 | $4,559 | $4,559 |
| 2022 | $0 | $308,020 | $13,795 | $13,795 | $13,795 |
Deed and Sales History
| 1 | 03/27/2024 | BLA | Boundary Line Adjustment | AMERICAN TIMBER RESOURCE LLC | AMERICAN TIMBER RESOURCE LLC | | | | 142403 | |
| 2 | 05/27/2020 | BLA | Boundary Line Adjustment | AMERICAN TIMBER RESOURCE LLC | DENNIS P THOMPSON | | | | 134641 | |
| 3 | 09/22/2017 | BLA | Boundary Line Adjustment | | LARS WATSON | | | | 130078 | |
| 4 | 05/25/2016 | SWD | Statutory Warranty Deed | STAN N JOHNSTON | AMERICAN TIMBER RESOURCE LLC | | | $1,005,000.00 | 125499 | |
|   | |
| 5 | 04/20/1992 | SWD | Statutory Warranty Deed | BARNETT, LYNN/MARLENE | JOHNSON, STAN/CANDY | 0 | 0 | $0.00 | 68172 | 0 |
Payout Agreement
| No payout information available.. |