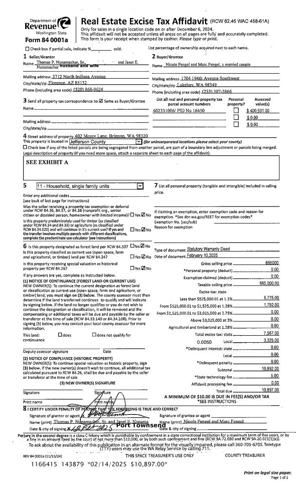
Property
Account |
| Property ID: | 16450 | Abbreviated Legal Description: | S33 T26 R2W TAX 3 |
| Parcel # / Geo ID: | 602331006 | Agent Code: | |
| Type: | Real | | |
| Tax Area: | 0440 - 1-46F4E4H2C1L1Z1P2 | Land Use Code | 11 |
| Open Space: | N | DFL | N |
| Historic Property: | N | Remodel Property: | N |
| Multi-Family Redevelopment: | N | | |
| Township: | 26N | Section: | 33 |
| Range: | 2W |
Location |
| Address: | 402 MOSSY LN BRINNON, WA 98320 | Mapsco: | 055/049 |
| Neighborhood: | S28 THRU S33 T26N R2W | Map ID: | |
| Neighborhood CD: | 1380 |
Owner |
| Name: | NICOLE & MARC FENGEL | Owner ID: | 112130 |
| Mailing Address: | 1704 194TH AVE SW LAKEBAY, WA 98349-9724 | % Ownership: | 100.0000000000% |
| | | Exemptions: | |
Pay Tax Due
Select the appropriate checkbox next to the year to be paid. Multiple years may be selected.
*Convenience Fee not included
Taxes and Assessment Details
Property Tax Information as of
03/09/2026
Click on "Statement Details" to expand or collapse a tax statement.
* Please enter a valid date ** Please enter a valid date *
Statement Details |
| 2026 | 6010 | STATE - STATE LEVY (SCHOOL) | $705.79 | $705.77 | $0.00 | $0.00 | $0.00 | $1411.56 |
| 2026 | 6010 | COUNTY - COUNTY LEVIES (CE, DD, VET, MH) | $282.17 | $282.16 | $0.00 | $0.00 | $0.00 | $564.33 |
| 2026 | 6010 | CONSERVE - CONSERVATION FUTURES | $8.46 | $8.46 | $0.00 | $0.00 | $0.00 | $16.92 |
| 2026 | 6010 | COROADS - COUNTY ROADS (ROADS, DIV TO CE) | $227.63 | $227.63 | $0.00 | $0.00 | $0.00 | $455.26 |
| 2026 | 6010 | PORTPT - PORT DISTRICT | $113.96 | $113.96 | $0.00 | $0.00 | $0.00 | $227.92 |
| 2026 | 6010 | PUD1 - PUD #1 | $18.36 | $18.35 | $0.00 | $0.00 | $0.00 | $36.71 |
| 2026 | 6010 | LIB1 - LIBRARY DIST #1 | $88.07 | $88.07 | $0.00 | $0.00 | $0.00 | $176.14 |
| 2026 | 6010 | HD2 - HOSP DIST #2 | $16.46 | $16.45 | $0.00 | $0.00 | $0.00 | $32.91 |
| 2026 | 6010 | SD46 - SCHOOL DIST #46 | $211.52 | $211.52 | $0.00 | $0.00 | $0.00 | $423.04 |
| 2026 | 6010 | FD4 - FIRE DISTRICT #4 | $512.30 | $512.29 | $0.00 | $0.00 | $0.00 | $1024.59 |
| 2026 | 6010 | EMS4 - FIRE DIST #4 EMS | $142.57 | $142.57 | $0.00 | $0.00 | $0.00 | $285.14 |
| 2026 | 6010 | CEM1 - CEMETERY DIST #1 | $3.29 | $3.29 | $0.00 | $0.00 | $0.00 | $6.58 |
| 2026 | 6010 | FP - DNR Forest Fire Protection Assmt | $8.50 | $8.50 | $0.00 | $0.00 | $0.00 | $17.00 |
| 2026 | 6010 | FPLCA - DNR Landowner Contingency Assmt | $3.00 | $3.00 | $0.00 | $0.00 | $0.00 | $6.00 |
| 2026 | 6010 | JCCD - JC Conservation District | $2.75 | $2.75 | $0.00 | $0.00 | $0.00 | $5.50 |
| 2026 | 6010 | NWA - Noxious Weed Assessment | $3.88 | $3.87 | $0.00 | $0.00 | $0.00 | $7.75 |
| 2026 | 6010 | OSS - On Site Septic | $46.20 | $46.20 | $0.00 | $0.00 | $0.00 | $92.40 |
| 2026 | 6010 | WAT - Clean Water District | $13.00 | $13.00 | $0.00 | $0.00 | $0.00 | $26.00 |
| 2026 | 6010 | FP ADMIN - FP ADMIN | $0.50 | $0.00 | $0.00 | $0.00 | $0.00 | $0.50 |
| 2026 | 6010 | TOTAL: | $2408.41 | $2407.84 | $0.00 | $0.00 | $0.00 | $4816.25 |
|
| 2026 | 6010 | $2408.41 | $2407.84 | $0.00 | $0.00 | $0.00 | $4816.25 |
Statement Details |
| 2025 | 6030 | STATE - STATE LEVY (SCHOOL) | $480.21 | $480.21 | $0.00 | $0.00 | $960.42 | $0.00 |
| 2025 | 6030 | COUNTY - COUNTY LEVIES (CE, DD, VET, MH) | $188.84 | $188.84 | $0.00 | $0.00 | $377.68 | $0.00 |
| 2025 | 6030 | CONSERVE - CONSERVATION FUTURES | $5.66 | $5.66 | $0.00 | $0.00 | $11.32 | $0.00 |
| 2025 | 6030 | COROADS - COUNTY ROADS (ROADS, DIV TO CE) | $151.30 | $151.28 | $0.00 | $0.00 | $302.58 | $0.00 |
| 2025 | 6030 | PORTPT - PORT DISTRICT | $77.06 | $77.05 | $0.00 | $0.00 | $154.11 | $0.00 |
| 2025 | 6030 | PUD1 - PUD #1 | $12.36 | $12.35 | $0.00 | $0.00 | $24.71 | $0.00 |
| 2025 | 6030 | LIB1 - LIBRARY DIST #1 | $58.53 | $58.53 | $0.00 | $0.00 | $117.06 | $0.00 |
| 2025 | 6030 | HD2 - HOSP DIST #2 | $11.02 | $11.01 | $0.00 | $0.00 | $22.03 | $0.00 |
| 2025 | 6030 | SD46 - SCHOOL DIST #46 | $126.92 | $126.92 | $0.00 | $0.00 | $253.84 | $0.00 |
| 2025 | 6030 | FD4 - FIRE DISTRICT #4 | $351.75 | $351.75 | $0.00 | $0.00 | $703.50 | $0.00 |
| 2025 | 6030 | EMS4 - FIRE DIST #4 EMS | $97.60 | $97.59 | $0.00 | $0.00 | $195.19 | $0.00 |
| 2025 | 6030 | CEM1 - CEMETERY DIST #1 | $2.26 | $2.26 | $0.00 | $0.00 | $4.52 | $0.00 |
| 2025 | 6030 | FP - DNR Forest Fire Protection Assmt | $8.50 | $8.50 | $0.00 | $0.00 | $17.00 | $0.00 |
| 2025 | 6030 | FPLCA - DNR Landowner Contingency Assmt | $3.00 | $3.00 | $0.00 | $0.00 | $6.00 | $0.00 |
| 2025 | 6030 | JCCD - JC Conservation District | $2.75 | $2.75 | $0.00 | $0.00 | $5.50 | $0.00 |
| 2025 | 6030 | NWA - Noxious Weed Assessment | $2.75 | $2.75 | $0.00 | $0.00 | $5.50 | $0.00 |
| 2025 | 6030 | OSS - On Site Septic | $43.00 | $43.00 | $0.00 | $0.00 | $86.00 | $0.00 |
| 2025 | 6030 | WAT - Clean Water District | $13.00 | $13.00 | $0.00 | $0.00 | $26.00 | $0.00 |
| 2025 | 6030 | FP ADMIN - FP ADMIN | $0.50 | $0.00 | $0.00 | $0.00 | $0.50 | $0.00 |
| 2025 | 6030 | TOTAL: | $1637.01 | $1636.45 | $0.00 | $0.00 | $3273.46 | $0.00 |
|
| 2025 | 6030 | $1637.01 | $1636.45 | $0.00 | $0.00 | $3273.46 | $0.00 |
Statement Details |
| 2024 | 6049 | STATE - STATE LEVY (SCHOOL) | $457.52 | $457.51 | $0.00 | $0.00 | $915.03 | $0.00 |
| 2024 | 6049 | COUNTY - COUNTY LEVIES (CE, DD, VET, MH) | $195.79 | $195.76 | $0.00 | $0.00 | $391.55 | $0.00 |
| 2024 | 6049 | CONSERVE - CONSERVATION FUTURES | $5.87 | $5.87 | $0.00 | $0.00 | $11.74 | $0.00 |
| 2024 | 6049 | COROADS - COUNTY ROADS (ROADS, DIV TO CE) | $157.54 | $157.53 | $0.00 | $0.00 | $315.07 | $0.00 |
| 2024 | 6049 | PORTPT - PORT DISTRICT | $80.87 | $80.86 | $0.00 | $0.00 | $161.73 | $0.00 |
| 2024 | 6049 | PUD1 - PUD #1 | $12.86 | $12.86 | $0.00 | $0.00 | $25.72 | $0.00 |
| 2024 | 6049 | LIB1 - LIBRARY DIST #1 | $60.95 | $60.95 | $0.00 | $0.00 | $121.90 | $0.00 |
| 2024 | 6049 | HD2 - HOSP DIST #2 | $11.43 | $11.42 | $0.00 | $0.00 | $22.85 | $0.00 |
| 2024 | 6049 | SD46 - SCHOOL DIST #46 | $137.35 | $137.35 | $0.00 | $0.00 | $274.70 | $0.00 |
| 2024 | 6049 | FD4 - FIRE DISTRICT #4 | $354.81 | $354.79 | $0.00 | $0.00 | $709.60 | $0.00 |
| 2024 | 6049 | EMS4 - FIRE DIST #4 EMS | $98.88 | $98.87 | $0.00 | $0.00 | $197.75 | $0.00 |
| 2024 | 6049 | CEM1 - CEMETERY DIST #1 | $2.32 | $2.31 | $0.00 | $0.00 | $4.63 | $0.00 |
| 2024 | 6049 | FP - DNR Forest Fire Protection Assmt | $8.50 | $8.50 | $0.00 | $0.00 | $17.00 | $0.00 |
| 2024 | 6049 | FPLCA - DNR Landowner Contingency Assmt | $3.00 | $3.00 | $0.00 | $0.00 | $6.00 | $0.00 |
| 2024 | 6049 | JCCD - JC Conservation District | $2.75 | $2.75 | $0.00 | $0.00 | $5.50 | $0.00 |
| 2024 | 6049 | NWA - Noxious Weed Assessment | $2.75 | $2.75 | $0.00 | $0.00 | $5.50 | $0.00 |
| 2024 | 6049 | OSS - On Site Septic | $42.00 | $42.00 | $0.00 | $0.00 | $84.00 | $0.00 |
| 2024 | 6049 | WAT - Clean Water District | $12.50 | $12.50 | $0.00 | $0.00 | $25.00 | $0.00 |
| 2024 | 6049 | FP ADMIN - FP ADMIN | $0.50 | $0.00 | $0.00 | $0.00 | $0.50 | $0.00 |
| 2024 | 6049 | TOTAL: | $1648.19 | $1647.58 | $0.00 | $0.00 | $3295.77 | $0.00 |
|
| 2024 | 6049 | $1648.19 | $1647.58 | $0.00 | $0.00 | $3295.77 | $0.00 |
Statement Details |
| 2023 | 6063 | STATE - STATE LEVY (SCHOOL) | $452.84 | $452.83 | $0.00 | $0.00 | $905.67 | $0.00 |
| 2023 | 6063 | COUNTY - COUNTY LEVIES (CE, DD, VET, MH) | $197.61 | $197.59 | $0.00 | $0.00 | $395.20 | $0.00 |
| 2023 | 6063 | CONSERVE - CONSERVATION FUTURES | $5.93 | $5.92 | $0.00 | $0.00 | $11.85 | $0.00 |
| 2023 | 6063 | COROADS - COUNTY ROADS (ROADS, DIV TO CE) | $159.88 | $159.87 | $0.00 | $0.00 | $319.75 | $0.00 |
| 2023 | 6063 | PORTPT - PORT DISTRICT | $83.24 | $83.24 | $0.00 | $0.00 | $166.48 | $0.00 |
| 2023 | 6063 | PUD1 - PUD #1 | $13.10 | $13.10 | $0.00 | $0.00 | $26.20 | $0.00 |
| 2023 | 6063 | LIB1 - LIBRARY DIST #1 | $61.86 | $61.85 | $0.00 | $0.00 | $123.71 | $0.00 |
| 2023 | 6063 | HD2 - HOSP DIST #2 | $11.53 | $11.53 | $0.00 | $0.00 | $23.06 | $0.00 |
| 2023 | 6063 | SD46 - SCHOOL DIST #46 | $147.80 | $147.80 | $0.00 | $0.00 | $295.60 | $0.00 |
| 2023 | 6063 | FD4 - FIRE DISTRICT #4 | $245.76 | $245.75 | $0.00 | $0.00 | $491.51 | $0.00 |
| 2023 | 6063 | EMS4 - FIRE DIST #4 EMS | $69.89 | $69.89 | $0.00 | $0.00 | $139.78 | $0.00 |
| 2023 | 6063 | CEM1 - CEMETERY DIST #1 | $2.48 | $2.47 | $0.00 | $0.00 | $4.95 | $0.00 |
| 2023 | 6063 | FP - DNR Forest Fire Protection Assmt | $8.50 | $8.50 | $0.00 | $0.00 | $17.00 | $0.00 |
| 2023 | 6063 | FPLCA - DNR Landowner Contingency Assmt | $3.00 | $3.00 | $0.00 | $0.00 | $6.00 | $0.00 |
| 2023 | 6063 | JCCD - JC Conservation District | $2.75 | $2.75 | $0.00 | $0.00 | $5.50 | $0.00 |
| 2023 | 6063 | NWA - Noxious Weed Assessment | $2.75 | $2.75 | $0.00 | $0.00 | $5.50 | $0.00 |
| 2023 | 6063 | OSS - On Site Septic | $41.00 | $41.00 | $0.00 | $0.00 | $82.00 | $0.00 |
| 2023 | 6063 | WAT - Clean Water District | $12.00 | $12.00 | $0.00 | $0.00 | $24.00 | $0.00 |
| 2023 | 6063 | FP ADMIN - FP ADMIN | $0.50 | $0.00 | $0.00 | $0.00 | $0.50 | $0.00 |
| 2023 | 6063 | TOTAL: | $1522.42 | $1521.84 | $0.00 | $0.00 | $3044.26 | $0.00 |
|
| 2023 | 6063 | $1522.42 | $1521.84 | $0.00 | $0.00 | $3044.26 | $0.00 |
Values
| (+) Improvement Homesite Value: | + | $0 | |
| (+) Improvement Non-Homesite Value: | + | $444,087 | |
| (+) Land Homesite Value: | + | $0 | |
| (+) Land Non-Homesite Value: | + | $169,879 | |
| (+) Curr Use (HS): | + | $0 | $0 |
| (+) Curr Use (NHS): | + | $0 | $0 |
| | | -------------------------- | |
| (=) Market Value: | = | $613,966 | |
| (–) Productivity Loss: | – | $0 | |
| | | -------------------------- | |
| (=) Subtotal: | = | $613,966 | |
| (+) Senior Appraised Value: | + | $0 | |
| (+) Non-Senior Appraised Value: | + | $613,966 | |
| | | -------------------------- | |
| (=) Total Appraised Value: | = | $613,966 | |
| (–) Senior Exemption Loss: | – | $0 | |
| (–) Exemption Loss: | – | $0 | |
| | | -------------------------- | |
| (=) Taxable Value: | = | $613,966 | |
Taxing Jurisdiction
| Owner: | NICOLE & MARC FENGEL | | |
| % Ownership: | 100.0000000000% | | |
| Total Value: | $613,966 | | |
| Tax Area: | 0440 - 1-46F4E4H2C1L1Z1P2 |
| CE | COUNTY CURRENT EXPENSE | 0.9034619479 | $613,966 | $613,966 | $554.69 | | |
| CNTYDD | DEVELOPMENTAL DISABILITIES | 0.0052121823 | $613,966 | $613,966 | $3.20 | | |
| CNTYVET | VETERANS RELIEF | 0.0052777810 | $613,966 | $613,966 | $3.24 | | |
| MENTAL | MENTAL HEALTH | 0.0052121823 | $613,966 | $613,966 | $3.20 | | |
| ROADS | COUNTY ROADS | 0.7415066410 | $613,966 | $613,966 | $455.26 | | |
| ROADSCU | COUNTY ROADS TO CUR EXP | 0.0000000000 | $613,966 | $613,966 | $0.00 | | |
| HOSP2CASH | HOSP DIST #2 GENERAL | 0.0536075306 | $613,966 | $613,966 | $32.91 | | |
| SCH46MO | SCHOOL DIST #46 EP & O | 0.6890207067 | $613,966 | $613,966 | $423.04 | | |
| CEM1 | CEMETERY DIST #1 GENERAL | 0.0107168292 | $613,966 | $613,966 | $6.58 | | |
| CONSERVE | CONSERVATION FUTURES | 0.0275621078 | $613,966 | $613,966 | $16.92 | | |
| EMS4 | FIRE DIST #4 EMS | 0.4644216158 | $613,966 | $613,966 | $285.14 | | |
| FD4 | FIRE DIST #4 GENERAL | 1.3939598390 | $613,966 | $613,966 | $855.84 | | |
| FD4BOND | FIRE DIST #4 BOND 2019 | 0.2748466981 | $613,966 | $613,966 | $168.75 | | |
| LIB1 | LIBRARY DIST #1 GENERAL | 0.2868827388 | $613,966 | $613,966 | $176.14 | | |
| PORTPT | PORT OF PT GENERAL | 0.1134941229 | $613,966 | $613,966 | $69.68 | | |
| PORTPTIDD | PORT OF PT IDD 2019 | 0.2577346692 | $613,966 | $613,966 | $158.24 | | |
| PUD1 | PUD #1 GENERAL | 0.0597888892 | $613,966 | $613,966 | $36.71 | | |
| STATE | STATE SCHOOL PART 1 | 1.4940692947 | $613,966 | $613,966 | $917.31 | | |
| STATE2 | STATE SCHOOL PART 2 | 0.8050170049 | $613,966 | $613,966 | $494.25 | | |
| | Total Tax Rate: | 7.5917927814 | | | | | |
| | | | | Taxes w/Current Exemptions: | $4,661.10 | | |
| | | | | Taxes w/o Exemptions: | $4,661.10 | | |
Improvement / Building
| Improvement #1: | Residential Bldg | State Code: | 11 | 1998.0 sqft | Value: | $444,087 |
| Bathrooms (#): | 1 (FULL) | Bathrooms (#): | 1 (HALF) | | Bedrooms (#): | 2 | Exterior Wall: | PL/T1 | | Fireplace: | WD ST-GOOD | Floor Construction: | FRAME | | Foundation: | CONPR | Heating/Cooling: | ELBB | | Roof Cover: | METAL |   |   |
|
| | Type | Description | Class CD | Sub Class CD | Year Built | Area |
| | MA | Main Area | 4 | 15SF | 1981 | 1134.0 |
| | MA2 | Second Floor Main Area | 4 | 15SF | 1981 | 864.0 |
| | HBAL | House Balcony | 4 | * | 1981 | 72.0 |
| | HDECK | House Deck | 4 | * | 1981 | 468.0 |
| | HENCL | House Enclosure | 4 | * | 1981 | 325.0 |
| | GATT | House Attached Garage | 4 | 15SF | 1981 | 576.0 |
| | CARPTF | Carport W/Floor | 4 | * | 1981 | 432.0 |
| | CARPTN | Carport W/O Floor | 2 | * | 1981 | 432.0 |
| | GARAG | Garage (Table Not Dep) | 4 | * | 1981 | 288.0 |
| | CONCD | Concrete Drive | 4 | * | 1981 | 432.0 |
Sketch
Property Image
Land
| 1 | 1380-1355S | | 1.0000 | 43560.00 | 0.00 | 0.00 | 1.00 | $107,250 | $0 |
| 2 | 1571A | | 3.8600 | 168141.60 | 0.00 | 0.00 | 0.00 | $62,629 | $0 |
Roll Value History
| 2026 | N/A | N/A | N/A | N/A | N/A |
| 2025 | $444,087 | $169,879 | $0 | $613,966 | $613,966 |
| 2024 | $272,121 | $128,380 | $0 | $400,501 | $400,501 |
| 2023 | $272,121 | $123,380 | $0 | $395,501 | $395,501 |
| 2022 | $272,121 | $112,590 | $0 | $384,711 | $384,711 |
Deed and Sales History
| 1 | 02/10/2025 | SWD | Statutory Warranty Deed | THOMAS P NUNAMACHER | NICOLE & MARC FENGEL | | | $665,000.00 | 143879 | |
Payout Agreement
| No payout information available.. |