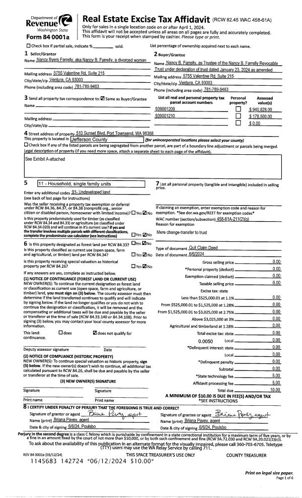
Property
Account |
| Property ID: | 16485 | Abbreviated Legal Description: | S34 T26 R2W TAX 31 |
| Parcel # / Geo ID: | 602341027 | Agent Code: | |
| Type: | Real | | |
| Tax Area: | 0440 - 1-46F4E4H2C1L1Z1P2 | Land Use Code | 11 |
| Open Space: | N | DFL | N |
| Historic Property: | N | Remodel Property: | N |
| Multi-Family Redevelopment: | N | | |
| Township: | 26N | Section: | 34 |
| Range: | 2W |
Location |
| Address: | 111 JAYBIRD LN BRINNON, WA 98320 | Mapsco: | 057/011 |
| Neighborhood: | S34 T26N R2W (EXCEPT LAZY C) | Map ID: | |
| Neighborhood CD: | 1370 |
Owner |
| Name: | JIMMIE L BOGGS | Owner ID: | 110962 |
| Mailing Address: | 10184 US HIGHWAY 101 RAYMOND, WA 98577-9250 | % Ownership: | 100.0000000000% |
| | | Exemptions: | |
Pay Tax Due
Select the appropriate checkbox next to the year to be paid. Multiple years may be selected.
*Convenience Fee not included
Taxes and Assessment Details
Property Tax Information as of
03/11/2026
Click on "Statement Details" to expand or collapse a tax statement.
* Please enter a valid date ** Please enter a valid date *
Statement Details |
| 2026 | 6043 | STATE - STATE LEVY (SCHOOL) | $152.17 | $152.16 | $0.00 | $0.00 | $0.00 | $304.33 |
| 2026 | 6043 | COUNTY - COUNTY LEVIES (CE, DD, VET, MH) | $60.85 | $60.82 | $0.00 | $0.00 | $0.00 | $121.67 |
| 2026 | 6043 | CONSERVE - CONSERVATION FUTURES | $1.83 | $1.82 | $0.00 | $0.00 | $0.00 | $3.65 |
| 2026 | 6043 | COROADS - COUNTY ROADS (ROADS, DIV TO CE) | $49.08 | $49.07 | $0.00 | $0.00 | $0.00 | $98.15 |
| 2026 | 6043 | PORTPT - PORT DISTRICT | $24.57 | $24.57 | $0.00 | $0.00 | $0.00 | $49.14 |
| 2026 | 6043 | PUD1 - PUD #1 | $3.96 | $3.95 | $0.00 | $0.00 | $0.00 | $7.91 |
| 2026 | 6043 | LIB1 - LIBRARY DIST #1 | $18.99 | $18.98 | $0.00 | $0.00 | $0.00 | $37.97 |
| 2026 | 6043 | HD2 - HOSP DIST #2 | $3.55 | $3.55 | $0.00 | $0.00 | $0.00 | $7.10 |
| 2026 | 6043 | SD46 - SCHOOL DIST #46 | $45.60 | $45.60 | $0.00 | $0.00 | $0.00 | $91.20 |
| 2026 | 6043 | FD4 - FIRE DISTRICT #4 | $110.45 | $110.45 | $0.00 | $0.00 | $0.00 | $220.90 |
| 2026 | 6043 | EMS4 - FIRE DIST #4 EMS | $30.74 | $30.73 | $0.00 | $0.00 | $0.00 | $61.47 |
| 2026 | 6043 | CEM1 - CEMETERY DIST #1 | $0.71 | $0.71 | $0.00 | $0.00 | $0.00 | $1.42 |
| 2026 | 6043 | FP - DNR Forest Fire Protection Assmt | $8.50 | $8.50 | $0.00 | $0.00 | $0.00 | $17.00 |
| 2026 | 6043 | FPLCA - DNR Landowner Contingency Assmt | $3.00 | $3.00 | $0.00 | $0.00 | $0.00 | $6.00 |
| 2026 | 6043 | JCCD - JC Conservation District | $2.60 | $2.60 | $0.00 | $0.00 | $0.00 | $5.20 |
| 2026 | 6043 | NWA - Noxious Weed Assessment | $3.20 | $3.20 | $0.00 | $0.00 | $0.00 | $6.40 |
| 2026 | 6043 | OSS - On Site Septic | $23.10 | $23.10 | $0.00 | $0.00 | $0.00 | $46.20 |
| 2026 | 6043 | WAT - Clean Water District | $13.00 | $13.00 | $0.00 | $0.00 | $0.00 | $26.00 |
| 2026 | 6043 | FP ADMIN - FP ADMIN | $0.50 | $0.00 | $0.00 | $0.00 | $0.00 | $0.50 |
| 2026 | 6043 | TOTAL: | $556.40 | $555.81 | $0.00 | $0.00 | $0.00 | $1112.21 |
|
| 2026 | 6043 | $556.40 | $555.81 | $0.00 | $0.00 | $0.00 | $1112.21 |
Statement Details |
| 2025 | 6063 | STATE - STATE LEVY (SCHOOL) | $151.67 | $151.66 | $0.00 | $0.00 | $303.33 | $0.00 |
| 2025 | 6063 | COUNTY - COUNTY LEVIES (CE, DD, VET, MH) | $59.65 | $59.62 | $0.00 | $0.00 | $119.27 | $0.00 |
| 2025 | 6063 | CONSERVE - CONSERVATION FUTURES | $1.79 | $1.79 | $0.00 | $0.00 | $3.58 | $0.00 |
| 2025 | 6063 | COROADS - COUNTY ROADS (ROADS, DIV TO CE) | $47.79 | $47.78 | $0.00 | $0.00 | $95.57 | $0.00 |
| 2025 | 6063 | PORTPT - PORT DISTRICT | $24.35 | $24.33 | $0.00 | $0.00 | $48.68 | $0.00 |
| 2025 | 6063 | PUD1 - PUD #1 | $3.91 | $3.90 | $0.00 | $0.00 | $7.81 | $0.00 |
| 2025 | 6063 | LIB1 - LIBRARY DIST #1 | $18.49 | $18.48 | $0.00 | $0.00 | $36.97 | $0.00 |
| 2025 | 6063 | HD2 - HOSP DIST #2 | $3.48 | $3.48 | $0.00 | $0.00 | $6.96 | $0.00 |
| 2025 | 6063 | SD46 - SCHOOL DIST #46 | $40.09 | $40.08 | $0.00 | $0.00 | $80.17 | $0.00 |
| 2025 | 6063 | FD4 - FIRE DISTRICT #4 | $111.10 | $111.09 | $0.00 | $0.00 | $222.19 | $0.00 |
| 2025 | 6063 | EMS4 - FIRE DIST #4 EMS | $30.83 | $30.82 | $0.00 | $0.00 | $61.65 | $0.00 |
| 2025 | 6063 | CEM1 - CEMETERY DIST #1 | $0.72 | $0.71 | $0.00 | $0.00 | $1.43 | $0.00 |
| 2025 | 6063 | FP - DNR Forest Fire Protection Assmt | $8.50 | $8.50 | $0.00 | $0.00 | $17.00 | $0.00 |
| 2025 | 6063 | FPLCA - DNR Landowner Contingency Assmt | $3.00 | $3.00 | $0.00 | $0.00 | $6.00 | $0.00 |
| 2025 | 6063 | JCCD - JC Conservation District | $2.60 | $2.60 | $0.00 | $0.00 | $5.20 | $0.00 |
| 2025 | 6063 | NWA - Noxious Weed Assessment | $2.30 | $2.30 | $0.00 | $0.00 | $4.60 | $0.00 |
| 2025 | 6063 | OSS - On Site Septic | $21.50 | $21.50 | $0.00 | $0.00 | $43.00 | $0.00 |
| 2025 | 6063 | WAT - Clean Water District | $13.00 | $13.00 | $0.00 | $0.00 | $26.00 | $0.00 |
| 2025 | 6063 | FP ADMIN - FP ADMIN | $0.50 | $0.00 | $0.00 | $0.00 | $0.50 | $0.00 |
| 2025 | 6063 | TOTAL: | $545.27 | $544.64 | $0.00 | $0.00 | $1089.91 | $0.00 |
|
| 2025 | 6063 | $545.27 | $544.64 | $0.00 | $0.00 | $1089.91 | $0.00 |
Statement Details |
| 2024 | 6083 | STATE - STATE LEVY (SCHOOL) | $104.17 | $104.15 | $0.00 | $0.00 | $208.32 | $0.00 |
| 2024 | 6083 | COUNTY - COUNTY LEVIES (CE, DD, VET, MH) | $44.58 | $44.56 | $0.00 | $0.00 | $89.14 | $0.00 |
| 2024 | 6083 | CONSERVE - CONSERVATION FUTURES | $1.34 | $1.33 | $0.00 | $0.00 | $2.67 | $0.00 |
| 2024 | 6083 | COROADS - COUNTY ROADS (ROADS, DIV TO CE) | $35.87 | $35.86 | $0.00 | $0.00 | $71.73 | $0.00 |
| 2024 | 6083 | PORTPT - PORT DISTRICT | $18.42 | $18.40 | $0.00 | $0.00 | $36.82 | $0.00 |
| 2024 | 6083 | PUD1 - PUD #1 | $2.93 | $2.93 | $0.00 | $0.00 | $5.86 | $0.00 |
| 2024 | 6083 | LIB1 - LIBRARY DIST #1 | $13.88 | $13.87 | $0.00 | $0.00 | $27.75 | $0.00 |
| 2024 | 6083 | HD2 - HOSP DIST #2 | $2.60 | $2.60 | $0.00 | $0.00 | $5.20 | $0.00 |
| 2024 | 6083 | SD46 - SCHOOL DIST #46 | $31.27 | $31.27 | $0.00 | $0.00 | $62.54 | $0.00 |
| 2024 | 6083 | FD4 - FIRE DISTRICT #4 | $80.79 | $80.77 | $0.00 | $0.00 | $161.56 | $0.00 |
| 2024 | 6083 | EMS4 - FIRE DIST #4 EMS | $22.51 | $22.51 | $0.00 | $0.00 | $45.02 | $0.00 |
| 2024 | 6083 | CEM1 - CEMETERY DIST #1 | $0.53 | $0.52 | $0.00 | $0.00 | $1.05 | $0.00 |
| 2024 | 6083 | FP - DNR Forest Fire Protection Assmt | $8.50 | $8.50 | $0.00 | $0.00 | $17.00 | $0.00 |
| 2024 | 6083 | FPLCA - DNR Landowner Contingency Assmt | $3.00 | $3.00 | $0.00 | $0.00 | $6.00 | $0.00 |
| 2024 | 6083 | JCCD - JC Conservation District | $2.60 | $2.60 | $0.00 | $0.00 | $5.20 | $0.00 |
| 2024 | 6083 | NWA - Noxious Weed Assessment | $2.30 | $2.30 | $0.00 | $0.00 | $4.60 | $0.00 |
| 2024 | 6083 | OSS - On Site Septic | $21.00 | $21.00 | $0.00 | $0.00 | $42.00 | $0.00 |
| 2024 | 6083 | WAT - Clean Water District | $12.50 | $12.50 | $0.00 | $0.00 | $25.00 | $0.00 |
| 2024 | 6083 | FP ADMIN - FP ADMIN | $0.50 | $0.00 | $0.00 | $0.00 | $0.50 | $0.00 |
| 2024 | 6083 | TOTAL: | $409.29 | $408.67 | $0.00 | $0.00 | $817.96 | $0.00 |
|
| 2024 | 6083 | $409.29 | $408.67 | $0.00 | $0.00 | $817.96 | $0.00 |
Statement Details |
| 2023 | 6097 | STATE - STATE LEVY (SCHOOL) | $191.00 | $0.00 | $0.00 | $0.00 | $191.00 | $0.00 |
| 2023 | 6097 | COUNTY - COUNTY LEVIES (CE, DD, VET, MH) | $83.34 | $0.00 | $0.00 | $0.00 | $83.34 | $0.00 |
| 2023 | 6097 | CONSERVE - CONSERVATION FUTURES | $2.50 | $0.00 | $0.00 | $0.00 | $2.50 | $0.00 |
| 2023 | 6097 | COROADS - COUNTY ROADS (ROADS, DIV TO CE) | $67.44 | $0.00 | $0.00 | $0.00 | $67.44 | $0.00 |
| 2023 | 6097 | PORTPT - PORT DISTRICT | $35.11 | $0.00 | $0.00 | $0.00 | $35.11 | $0.00 |
| 2023 | 6097 | PUD1 - PUD #1 | $5.52 | $0.00 | $0.00 | $0.00 | $5.52 | $0.00 |
| 2023 | 6097 | LIB1 - LIBRARY DIST #1 | $26.09 | $0.00 | $0.00 | $0.00 | $26.09 | $0.00 |
| 2023 | 6097 | HD2 - HOSP DIST #2 | $4.86 | $0.00 | $0.00 | $0.00 | $4.86 | $0.00 |
| 2023 | 6097 | SD46 - SCHOOL DIST #46 | $62.34 | $0.00 | $0.00 | $0.00 | $62.34 | $0.00 |
| 2023 | 6097 | FD4 - FIRE DISTRICT #4 | $103.66 | $0.00 | $0.00 | $0.00 | $103.66 | $0.00 |
| 2023 | 6097 | EMS4 - FIRE DIST #4 EMS | $29.48 | $0.00 | $0.00 | $0.00 | $29.48 | $0.00 |
| 2023 | 6097 | CEM1 - CEMETERY DIST #1 | $1.04 | $0.00 | $0.00 | $0.00 | $1.04 | $0.00 |
| 2023 | 6097 | FP - DNR Forest Fire Protection Assmt | $17.00 | $0.00 | $0.00 | $0.00 | $17.00 | $0.00 |
| 2023 | 6097 | FPLCA - DNR Landowner Contingency Assmt | $6.00 | $0.00 | $0.00 | $0.00 | $6.00 | $0.00 |
| 2023 | 6097 | JCCD - JC Conservation District | $5.20 | $0.00 | $0.00 | $0.00 | $5.20 | $0.00 |
| 2023 | 6097 | NWA - Noxious Weed Assessment | $4.60 | $0.00 | $0.00 | $0.00 | $4.60 | $0.00 |
| 2023 | 6097 | OSS - On Site Septic | $41.00 | $0.00 | $0.00 | $0.00 | $41.00 | $0.00 |
| 2023 | 6097 | WAT - Clean Water District | $24.00 | $0.00 | $0.00 | $0.00 | $24.00 | $0.00 |
| 2023 | 6097 | FP ADMIN - FP ADMIN | $0.50 | $0.00 | $0.00 | $0.00 | $0.50 | $0.00 |
| 2023 | 6097 | TOTAL: | $710.68 | $0.00 | $0.00 | $0.00 | $710.68 | $0.00 |
|
| 2023 | 6097 | $710.68 | $0.00 | $0.00 | $0.00 | $710.68 | $0.00 |
Values
| (+) Improvement Homesite Value: | + | $0 | |
| (+) Improvement Non-Homesite Value: | + | $71,153 | |
| (+) Land Homesite Value: | + | $0 | |
| (+) Land Non-Homesite Value: | + | $61,215 | |
| (+) Curr Use (HS): | + | $0 | $0 |
| (+) Curr Use (NHS): | + | $0 | $0 |
| | | -------------------------- | |
| (=) Market Value: | = | $132,368 | |
| (–) Productivity Loss: | – | $0 | |
| | | -------------------------- | |
| (=) Subtotal: | = | $132,368 | |
| (+) Senior Appraised Value: | + | $0 | |
| (+) Non-Senior Appraised Value: | + | $132,368 | |
| | | -------------------------- | |
| (=) Total Appraised Value: | = | $132,368 | |
| (–) Senior Exemption Loss: | – | $0 | |
| (–) Exemption Loss: | – | $0 | |
| | | -------------------------- | |
| (=) Taxable Value: | = | $132,368 | |
Taxing Jurisdiction
| Owner: | JIMMIE L BOGGS | | |
| % Ownership: | 100.0000000000% | | |
| Total Value: | $132,368 | | |
| Tax Area: | 0440 - 1-46F4E4H2C1L1Z1P2 |
| CE | COUNTY CURRENT EXPENSE | 0.9034619479 | $132,368 | $132,368 | $119.59 | | |
| CNTYDD | DEVELOPMENTAL DISABILITIES | 0.0052121823 | $132,368 | $132,368 | $0.69 | | |
| CNTYVET | VETERANS RELIEF | 0.0052777810 | $132,368 | $132,368 | $0.70 | | |
| MENTAL | MENTAL HEALTH | 0.0052121823 | $132,368 | $132,368 | $0.69 | | |
| ROADS | COUNTY ROADS | 0.7415066410 | $132,368 | $132,368 | $98.15 | | |
| ROADSCU | COUNTY ROADS TO CUR EXP | 0.0000000000 | $132,368 | $132,368 | $0.00 | | |
| HOSP2CASH | HOSP DIST #2 GENERAL | 0.0536075306 | $132,368 | $132,368 | $7.10 | | |
| SCH46MO | SCHOOL DIST #46 EP & O | 0.6890207067 | $132,368 | $132,368 | $91.20 | | |
| CEM1 | CEMETERY DIST #1 GENERAL | 0.0107168292 | $132,368 | $132,368 | $1.42 | | |
| CONSERVE | CONSERVATION FUTURES | 0.0275621078 | $132,368 | $132,368 | $3.65 | | |
| EMS4 | FIRE DIST #4 EMS | 0.4644216158 | $132,368 | $132,368 | $61.47 | | |
| FD4 | FIRE DIST #4 GENERAL | 1.3939598390 | $132,368 | $132,368 | $184.52 | | |
| FD4BOND | FIRE DIST #4 BOND 2019 | 0.2748466981 | $132,368 | $132,368 | $36.38 | | |
| LIB1 | LIBRARY DIST #1 GENERAL | 0.2868827388 | $132,368 | $132,368 | $37.97 | | |
| PORTPT | PORT OF PT GENERAL | 0.1134941229 | $132,368 | $132,368 | $15.02 | | |
| PORTPTIDD | PORT OF PT IDD 2019 | 0.2577346692 | $132,368 | $132,368 | $34.12 | | |
| PUD1 | PUD #1 GENERAL | 0.0597888892 | $132,368 | $132,368 | $7.91 | | |
| STATE | STATE SCHOOL PART 1 | 1.4940692947 | $132,368 | $132,368 | $197.77 | | |
| STATE2 | STATE SCHOOL PART 2 | 0.8050170049 | $132,368 | $132,368 | $106.56 | | |
| | Total Tax Rate: | 7.5917927814 | | | | | |
| | | | | Taxes w/Current Exemptions: | $1,004.91 | | |
| | | | | Taxes w/o Exemptions: | $1,004.91 | | |
Improvement / Building
| Improvement #1: | Manufactured Home | State Code: | 11M | 960.0 sqft | Value: | $71,153 |
| Bathrooms (#): | 1 (FULL) | Bedrooms (#): | 2 | | Exterior Wall: | METAL | Floor Construction: | FRAME | | Foundation: | PO&BL | Heating/Cooling: | F/A | | Roof Cover: | METAL |   |   |
|
| | Type | Description | Class CD | Sub Class CD | Year Built | Area |
| | MA | Main Area | 3 | MDBL | 1972 | 960.0 |
| | MWPOR | MH Wood Porch | 3 | * | 1972 | 742.0 |
| | SHED | Shed (Table Not Dep) | 3 | * | 1981 | 154.0 |
| | MWPOR | MH Wood Porch | 3 | * | 1972 | 408.0 |
| | MSKIRT_MTL | MH Skirting - Metal/Vinyl | 2 | * | 1972 | 128.0 |
| | SHED | Shed (Table Not Dep) | 2 | * | 1981 | 480.0 |
Sketch
Property Image
Land
| 1 | 1370-1375S | | 1.0000 | 43560.00 | 0.00 | 0.00 | 1.00 | $57,750 | $0 |
| 2 | 1572A | | 0.6000 | 26136.00 | 0.00 | 0.00 | 0.00 | $3,465 | $0 |
Roll Value History
| 2026 | N/A | N/A | N/A | N/A | N/A |
| 2025 | $71,153 | $61,215 | $0 | $132,368 | $132,368 |
| 2024 | $68,059 | $58,433 | $0 | $126,492 | $126,492 |
| 2023 | $40,519 | $49,525 | $0 | $90,044 | $90,044 |
| 2022 | $36,835 | $44,300 | $0 | $81,135 | $81,135 |
Deed and Sales History
| 1 | 06/11/2024 | SWD | Statutory Warranty Deed | JESSICA M PRITCHETT | JIMMIE L BOGGS | | | $155,000.00 | 142738 | |
| 2 | 05/02/2024 | QCD | Quit Claim Deed | WILLIAM & JESSICA PRITCHETT | JESSICA M PRITCHETT | | | | 142915 | |
| 3 | 08/18/2021 | QCD | Quit Claim Deed | WILLIAM & JESSICA PRITCHETT | JESSICA M PRITCHETT | | | | 137882 | |
| 4 | 01/20/2015 | QCD | Quit Claim Deed | MILLER L FICKETT | WILLIAM & JESSICA PRITCHETT | | | | 122578 | |
Payout Agreement
| No payout information available.. |