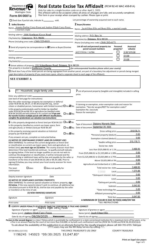
Property
Account |
| Property ID: | 16586 | Abbreviated Legal Description: | S35 T26 R2W TAX 18 & 20 |
| Parcel # / Geo ID: | 602353016 | Agent Code: | |
| Type: | Real | | |
| Tax Area: | 0440 - 1-46F4E4H2C1L1Z1P2 | Land Use Code | 11 |
| Open Space: | N | DFL | N |
| Historic Property: | N | Remodel Property: | N |
| Multi-Family Redevelopment: | N | | |
| Township: | 26N | Section: | 35 |
| Range: | 2W |
Location |
| Address: | 191 SCHOOLHOUSE RD BRINNON, WA 98320 | Mapsco: | 058/005 |
| Neighborhood: | S35 T26N R2W & SUNROCK MHP; ERVIN KELLY S.P. & W. KELLY S.P. | Map ID: | |
| Neighborhood CD: | 1360 |
Owner |
| Name: | JACOB E & BEATA ELLIS | Owner ID: | 113424 |
| Mailing Address: | PO BOX 36 BRINNON, WA 98320-0036 | % Ownership: | 100.0000000000% |
| | | Exemptions: | |
Pay Tax Due
There is currently No Amount Due on this property.
Taxes and Assessment Details
Property Tax Information as of
03/11/2026
Click on "Statement Details" to expand or collapse a tax statement.
* Please enter a valid date ** Please enter a valid date *
Statement Details |
| | TOTAL: | $0.00 | $0.00 | $0.00 | $0.00 | $0.00 | $0.00 |
|
| | $0.00 | $0.00 | $0.00 | $0.00 | $0.00 | $0.00 |
Values
| (+) Improvement Homesite Value: | + | $0 | |
| (+) Improvement Non-Homesite Value: | + | $192,464 | |
| (+) Land Homesite Value: | + | $0 | |
| (+) Land Non-Homesite Value: | + | $87,868 | |
| (+) Curr Use (HS): | + | $0 | $0 |
| (+) Curr Use (NHS): | + | $0 | $0 |
| | | -------------------------- | |
| (=) Market Value: | = | $280,332 | |
| (–) Productivity Loss: | – | $0 | |
| | | -------------------------- | |
| (=) Subtotal: | = | $280,332 | |
| (+) Senior Appraised Value: | + | $0 | |
| (+) Non-Senior Appraised Value: | + | $280,332 | |
| | | -------------------------- | |
| (=) Total Appraised Value: | = | $280,332 | |
| (–) Senior Exemption Loss: | – | $0 | |
| (–) Exemption Loss: | – | $0 | |
| | | -------------------------- | |
| (=) Taxable Value: | = | $280,332 | |
Taxing Jurisdiction
| Owner: | JACOB E & BEATA ELLIS | | |
| % Ownership: | 100.0000000000% | | |
| Total Value: | $280,332 | | |
| Tax Area: | 0440 - 1-46F4E4H2C1L1Z1P2 |
| CE | COUNTY CURRENT EXPENSE | 0.9034619479 | $280,332 | $280,332 | $253.27 | | |
| CNTYDD | DEVELOPMENTAL DISABILITIES | 0.0052121823 | $280,332 | $280,332 | $1.46 | | |
| CNTYVET | VETERANS RELIEF | 0.0052777810 | $280,332 | $280,332 | $1.48 | | |
| MENTAL | MENTAL HEALTH | 0.0052121823 | $280,332 | $280,332 | $1.46 | | |
| ROADS | COUNTY ROADS | 0.7415066410 | $280,332 | $280,332 | $207.87 | | |
| ROADSCU | COUNTY ROADS TO CUR EXP | 0.0000000000 | $280,332 | $280,332 | $0.00 | | |
| HOSP2CASH | HOSP DIST #2 GENERAL | 0.0536075306 | $280,332 | $280,332 | $15.03 | | |
| SCH46MO | SCHOOL DIST #46 EP & O | 0.6890207067 | $280,332 | $280,332 | $193.15 | | |
| CEM1 | CEMETERY DIST #1 GENERAL | 0.0107168292 | $280,332 | $280,332 | $3.00 | | |
| CONSERVE | CONSERVATION FUTURES | 0.0275621078 | $280,332 | $280,332 | $7.73 | | |
| EMS4 | FIRE DIST #4 EMS | 0.4644216158 | $280,332 | $280,332 | $130.19 | | |
| FD4 | FIRE DIST #4 GENERAL | 1.3939598390 | $280,332 | $280,332 | $390.77 | | |
| FD4BOND | FIRE DIST #4 BOND 2019 | 0.2748466981 | $280,332 | $280,332 | $77.05 | | |
| LIB1 | LIBRARY DIST #1 GENERAL | 0.2868827388 | $280,332 | $280,332 | $80.42 | | |
| PORTPT | PORT OF PT GENERAL | 0.1134941229 | $280,332 | $280,332 | $31.82 | | |
| PORTPTIDD | PORT OF PT IDD 2019 | 0.2577346692 | $280,332 | $280,332 | $72.25 | | |
| PUD1 | PUD #1 GENERAL | 0.0597888892 | $280,332 | $280,332 | $16.76 | | |
| STATE | STATE SCHOOL PART 1 | 1.4940692947 | $280,332 | $280,332 | $418.84 | | |
| STATE2 | STATE SCHOOL PART 2 | 0.8050170049 | $280,332 | $280,332 | $225.67 | | |
| | Total Tax Rate: | 7.5917927814 | | | | | |
| | | | | Taxes w/Current Exemptions: | $2,128.22 | | |
| | | | | Taxes w/o Exemptions: | $2,128.22 | | |
Improvement / Building
| Improvement #1: | Residential Bldg | State Code: | 11 | 1218.0 sqft | Value: | $192,464 |
| Bathrooms (#): | 1 (FULL) | Bedrooms (#): | 3 | | Exterior Wall: | SI/ST | Fireplace: | WD ST-GOOD | | Floor Construction: | FRAME | Foundation: | CONPR | | Heating/Cooling: | WD/NO | Roof Cover: | COMP |
|
| | Type | Description | Class CD | Sub Class CD | Year Built | Area |
| | MA | Main Area | 3 | 15SF | 1948 | 870.0 |
| | MA2 | Second Floor Main Area | 3 | 15SF | 1948 | 348.0 |
| | HCPOR | House Concrete Porch | 3 | * | 1948 | 16.0 |
| | HDECK | House Deck | 3 | * | 1948 | 120.0 |
| | BSMTU | House basement unfinished | 2 | * | 1948 | 870.0 |
| | GARAG | Garage (Table Not Dep) | 2 | * | 1948 | 1280.0 |
Sketch
Property Image
Land
| 1 | 1360-1355S | Avg View Sites of Hood Canal 1+/- Acre | 1.0000 | 43560.00 | 0.00 | 0.00 | 1.00 | $77,000 | $0 |
| 2 | 1573A | Terr/Mtn/No View <6 Acres | 1.0400 | 45302.40 | 0.00 | 0.00 | 0.00 | $10,868 | $0 |
Roll Value History
| 2026 | N/A | N/A | N/A | N/A | N/A |
| 2025 | $192,464 | $87,868 | $0 | $280,332 | $280,332 |
| 2024 | $184,096 | $83,874 | $0 | $267,970 | $267,970 |
| 2023 | $184,096 | $74,360 | $0 | $258,456 | $258,456 |
| 2022 | $167,360 | $67,280 | $0 | $234,640 | $234,640 |
Deed and Sales History
| 1 | 09/29/2025 | SWD | Statutory Warranty Deed | ANNETTA & ANDREW CAREY FUSON | JACOB E & BEATA ELLIS | | | $315,177.00 | 145023 | |
| 2 | 07/21/2022 | SWD | Statutory Warranty Deed | MANG SUN & ZHENZI MA | ANNETTA & ANDREW CAREY FUSON | | | $335,000.00 | 139573 | |
| 3 | 02/27/2018 | SWD | Statutory Warranty Deed | THOMPSON RENTALS LLC | MANG SUN & ZHENZI MA | | | $200,000.00 | 129668 | |
| 4 | 10/15/2014 | QCD | Quit Claim Deed | EARL G THOMPSON | THOMPSON RENTALS LLC | | | | 122068 | |
| 5 | 04/14/2014 | SWD | Statutory Warranty Deed | BOFI FEDERAL BANK | EARL G THOMPSON | | | $102,500.00 | 121023 | |
| 6 | 09/20/2013 | TRED | Trustee Deed | SBS TRUSTEE NETWORK INC | BOFI FEDERAL BANK | | | | 120068 | |
| 7 | 12/07/1999 | SWD | Statutory Warranty Deed | LAND, REUBEN E & DOROTHY | CARLSON, THOMAS A | 0 | 0 | $50,000.00 | 88582 | 0 |
Payout Agreement
| No payout information available.. |