Property
Account |
| Property ID: | 16633 | Abbreviated Legal Description: | S15 T26 R3W SE SE (PT BTW DOSE RIVER RD EX W120') LS TX 1 & 2 |
| Parcel # / Geo ID: | 603154003 | Agent Code: | |
| Type: | Real | | |
| Tax Area: | 0445 - 1-46F4E4H2L1Z1P2 | Land Use Code | 18 |
| Open Space: | N | DFL | N |
| Historic Property: | N | Remodel Property: | N |
| Multi-Family Redevelopment: | N | | |
| Township: | 26N | Section: | 15 |
| Range: | 3W |
Location |
| Address: | | Mapsco: | 059/037 |
| Neighborhood: | S1 - S36 T26N R3W (MOSTLY OLYMPIC NATIONAL FOREST) | Map ID: | |
| Neighborhood CD: | 1510 |
Owner |
| Name: | SHAWN R HALVORSON | Owner ID: | 110843 |
| Mailing Address: | JULEE A HALVORSON 11005 134TH ST NW GIG HARBOR, WA 98329-7244 | % Ownership: | 100.0000000000% |
| | | Exemptions: | |
Pay Tax Due
There is currently No Amount Due on this property.
Taxes and Assessment Details
Property Tax Information as of
03/11/2026
Click on "Statement Details" to expand or collapse a tax statement.
* Please enter a valid date ** Please enter a valid date *
Statement Details |
| | TOTAL: | $0.00 | $0.00 | $0.00 | $0.00 | $0.00 | $0.00 |
|
| | $0.00 | $0.00 | $0.00 | $0.00 | $0.00 | $0.00 |
Values
| (+) Improvement Homesite Value: | + | $0 | |
| (+) Improvement Non-Homesite Value: | + | $5,000 | |
| (+) Land Homesite Value: | + | $0 | |
| (+) Land Non-Homesite Value: | + | $75,520 | |
| (+) Curr Use (HS): | + | $0 | $0 |
| (+) Curr Use (NHS): | + | $0 | $0 |
| | | -------------------------- | |
| (=) Market Value: | = | $80,520 | |
| (–) Productivity Loss: | – | $0 | |
| | | -------------------------- | |
| (=) Subtotal: | = | $80,520 | |
| (+) Senior Appraised Value: | + | $0 | |
| (+) Non-Senior Appraised Value: | + | $80,520 | |
| | | -------------------------- | |
| (=) Total Appraised Value: | = | $80,520 | |
| (–) Senior Exemption Loss: | – | $0 | |
| (–) Exemption Loss: | – | $0 | |
| | | -------------------------- | |
| (=) Taxable Value: | = | $80,520 | |
Taxing Jurisdiction
| Owner: | SHAWN R HALVORSON | | |
| % Ownership: | 100.0000000000% | | |
| Total Value: | $80,520 | | |
| Tax Area: | 0445 - 1-46F4E4H2L1Z1P2 |
| CE | COUNTY CURRENT EXPENSE | 0.9034619479 | $80,520 | $80,520 | $72.75 | | |
| CNTYDD | DEVELOPMENTAL DISABILITIES | 0.0052121823 | $80,520 | $80,520 | $0.42 | | |
| CNTYVET | VETERANS RELIEF | 0.0052777810 | $80,520 | $80,520 | $0.42 | | |
| MENTAL | MENTAL HEALTH | 0.0052121823 | $80,520 | $80,520 | $0.42 | | |
| ROADS | COUNTY ROADS | 0.7415066410 | $80,520 | $80,520 | $59.71 | | |
| ROADSCU | COUNTY ROADS TO CUR EXP | 0.0000000000 | $80,520 | $80,520 | $0.00 | | |
| HOSP2CASH | HOSP DIST #2 GENERAL | 0.0536075306 | $80,520 | $80,520 | $4.32 | | |
| SCH46MO | SCHOOL DIST #46 EP & O | 0.6890207067 | $80,520 | $80,520 | $55.48 | | |
| CONSERVE | CONSERVATION FUTURES | 0.0275621078 | $80,520 | $80,520 | $2.22 | | |
| EMS4 | FIRE DIST #4 EMS | 0.4644216158 | $80,520 | $80,520 | $37.40 | | |
| FD4 | FIRE DIST #4 GENERAL | 1.3939598390 | $80,520 | $80,520 | $112.24 | | |
| FD4BOND | FIRE DIST #4 BOND 2019 | 0.2748466981 | $80,520 | $80,520 | $22.13 | | |
| LIB1 | LIBRARY DIST #1 GENERAL | 0.2868827388 | $80,520 | $80,520 | $23.10 | | |
| PORTPT | PORT OF PT GENERAL | 0.1134941229 | $80,520 | $80,520 | $9.14 | | |
| PORTPTIDD | PORT OF PT IDD 2019 | 0.2577346692 | $80,520 | $80,520 | $20.75 | | |
| PUD1 | PUD #1 GENERAL | 0.0597888892 | $80,520 | $80,520 | $4.81 | | |
| STATE | STATE SCHOOL PART 1 | 1.4940692947 | $80,520 | $80,520 | $120.30 | | |
| STATE2 | STATE SCHOOL PART 2 | 0.8050170049 | $80,520 | $80,520 | $64.82 | | |
| | Total Tax Rate: | 7.5810759522 | | | | | |
| | | | | Taxes w/Current Exemptions: | $610.43 | | |
| | | | | Taxes w/o Exemptions: | $610.43 | | |
Improvement / Building
| Improvement #1: | Residential Bldg | State Code: | 19 | 0.0 sqft | Value: | $5,000 |
| | Type | Description | Class CD | Sub Class CD | Year Built | Area |
| | OTHER | Other | 3 | * | 2001 | 240.0 |
| | SHED | Shed (Table Not Dep) | 2 | * | 2001 | 48.0 |
Sketch
Property Image
Land
| 1 | 1510-1535A | Dosewallips Rvr Frtg <6 Acres | 4.4400 | 193406.40 | 0.00 | 0.00 | 0.00 | $35,520 | $0 |
| 2 | 1510-1335S | Dosewallips Rvr Sites 1+/- Acre | 1.0000 | 43560.00 | 0.00 | 0.00 | 1.00 | $40,000 | $0 |
Roll Value History
| 2026 | N/A | N/A | N/A | N/A | N/A |
| 2025 | $5,000 | $75,520 | $0 | $80,520 | $80,520 |
| 2024 | $5,000 | $75,520 | $0 | $80,520 | $80,520 |
| 2023 | $4,563 | $75,520 | $0 | $80,083 | $80,083 |
| 2022 | $4,563 | $66,640 | $0 | $71,203 | $71,203 |
Deed and Sales History
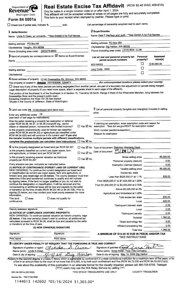
| 1 | 05/17/2024 | REC | Real Estate Contract | HARRISON LIVING TRUST | SHAWN R HALVORSON | | | $96,800.00 | 142608 | |
| 2 | 05/02/2024 | SWD | Statutory Warranty Deed | STEVE & LINDA OWEN 2/5 | HARRISON LIVING TRUST | | | $85,000.00 | 142602 | |
| 3 | 10/26/2007 | QCD | Quit Claim Deed | OWEN,MICHAEL STUART | OWEN, STEPHEN LESLIE | 0 | 0 | $0.00 | 110397 | 0 |
Payout Agreement
| No payout information available.. |