Property
Account |
| Property ID: | 17014 | Abbreviated Legal Description: | S28 T26 R13W TX 1(N OF RD) |
| Parcel # / Geo ID: | 613281005 | Agent Code: | |
| Type: | Real | | |
| Tax Area: | 0601 - 1-402H1L1 | Land Use Code | 19 |
| Open Space: | N | DFL | N |
| Historic Property: | N | Remodel Property: | N |
| Multi-Family Redevelopment: | N | | |
| Township: | 26N | Section: | 28 |
| Range: | 13W |
Location |
| Address: | | Mapsco: | 931/029 |
| Neighborhood: | S13, S23 - S36 T26N R13W (US101 ALONGSIDE HOH RIVER) | Map ID: | |
| Neighborhood CD: | 1770 |
Owner |
| Name: | STEVE W BENJAMIN | Owner ID: | 11324 |
| Mailing Address: | PATRICIA D CLARKE PO BOX 65343 PORT LUDLOW, WA 98365-0343 | % Ownership: | 100.0000000000% |
| | | Exemptions: | |
Pay Tax Due
Select the appropriate checkbox next to the year to be paid. Multiple years may be selected.
*Convenience Fee not included
Taxes and Assessment Details
Property Tax Information as of
03/09/2026
Click on "Statement Details" to expand or collapse a tax statement.
* Please enter a valid date ** Please enter a valid date *
Statement Details |
| 2026 | 6566 | STATE - STATE LEVY (SCHOOL) | $70.56 | $70.55 | $0.00 | $0.00 | $0.00 | $141.11 |
| 2026 | 6566 | COUNTY - COUNTY LEVIES (CE, DD, VET, MH) | $28.21 | $28.20 | $0.00 | $0.00 | $0.00 | $56.41 |
| 2026 | 6566 | CONSERVE - CONSERVATION FUTURES | $0.85 | $0.84 | $0.00 | $0.00 | $0.00 | $1.69 |
| 2026 | 6566 | COROADS - COUNTY ROADS (ROADS, DIV TO CE) | $22.76 | $22.75 | $0.00 | $0.00 | $0.00 | $45.51 |
| 2026 | 6566 | PORTPT - PORT DISTRICT | $11.40 | $11.39 | $0.00 | $0.00 | $0.00 | $22.79 |
| 2026 | 6566 | PUD1 - PUD #1 | $1.84 | $1.83 | $0.00 | $0.00 | $0.00 | $3.67 |
| 2026 | 6566 | LIB1 - LIBRARY DIST #1 | $8.81 | $8.80 | $0.00 | $0.00 | $0.00 | $17.61 |
| 2026 | 6566 | HD1 - HOSP DIST #1 | $16.89 | $16.89 | $0.00 | $0.00 | $0.00 | $33.78 |
| 2026 | 6566 | SD402 - SCHOOL DIST #402 | $87.63 | $87.62 | $0.00 | $0.00 | $0.00 | $175.25 |
| 2026 | 6566 | FP - DNR Forest Fire Protection Assmt | $8.50 | $8.50 | $0.00 | $0.00 | $0.00 | $17.00 |
| 2026 | 6566 | FPLCA - DNR Landowner Contingency Assmt | $3.00 | $3.00 | $0.00 | $0.00 | $0.00 | $6.00 |
| 2026 | 6566 | JCCD - JC Conservation District | $2.70 | $2.70 | $0.00 | $0.00 | $0.00 | $5.40 |
| 2026 | 6566 | NWA - Noxious Weed Assessment | $3.65 | $3.65 | $0.00 | $0.00 | $0.00 | $7.30 |
| 2026 | 6566 | FP ADMIN - FP ADMIN | $0.50 | $0.00 | $0.00 | $0.00 | $0.00 | $0.50 |
| 2026 | 6566 | TOTAL: | $267.30 | $266.72 | $0.00 | $0.00 | $0.00 | $534.02 |
|
| 2026 | 6566 | $267.30 | $266.72 | $0.00 | $0.00 | $0.00 | $534.02 |
Statement Details |
| 2025 | 6587 | STATE - STATE LEVY (SCHOOL) | $73.59 | $73.59 | $0.00 | $0.00 | $147.18 | $0.00 |
| 2025 | 6587 | COUNTY - COUNTY LEVIES (CE, DD, VET, MH) | $28.96 | $28.92 | $0.00 | $0.00 | $57.88 | $0.00 |
| 2025 | 6587 | CONSERVE - CONSERVATION FUTURES | $0.87 | $0.87 | $0.00 | $0.00 | $1.74 | $0.00 |
| 2025 | 6587 | COROADS - COUNTY ROADS (ROADS, DIV TO CE) | $23.19 | $23.18 | $0.00 | $0.00 | $46.37 | $0.00 |
| 2025 | 6587 | PORTPT - PORT DISTRICT | $11.82 | $11.80 | $0.00 | $0.00 | $23.62 | $0.00 |
| 2025 | 6587 | PUD1 - PUD #1 | $1.90 | $1.89 | $0.00 | $0.00 | $3.79 | $0.00 |
| 2025 | 6587 | LIB1 - LIBRARY DIST #1 | $8.97 | $8.97 | $0.00 | $0.00 | $17.94 | $0.00 |
| 2025 | 6587 | HD1 - HOSP DIST #1 | $17.32 | $17.32 | $0.00 | $0.00 | $34.64 | $0.00 |
| 2025 | 6587 | SD402 - SCHOOL DIST #402 | $66.86 | $66.86 | $0.00 | $0.00 | $133.72 | $0.00 |
| 2025 | 6587 | FP - DNR Forest Fire Protection Assmt | $8.50 | $8.50 | $0.00 | $0.00 | $17.00 | $0.00 |
| 2025 | 6587 | FPLCA - DNR Landowner Contingency Assmt | $3.00 | $3.00 | $0.00 | $0.00 | $6.00 | $0.00 |
| 2025 | 6587 | JCCD - JC Conservation District | $2.70 | $2.70 | $0.00 | $0.00 | $5.40 | $0.00 |
| 2025 | 6587 | NWA - Noxious Weed Assessment | $2.60 | $2.60 | $0.00 | $0.00 | $5.20 | $0.00 |
| 2025 | 6587 | FP ADMIN - FP ADMIN | $0.50 | $0.00 | $0.00 | $0.00 | $0.50 | $0.00 |
| 2025 | 6587 | TOTAL: | $250.78 | $250.20 | $0.00 | $0.00 | $500.98 | $0.00 |
|
| 2025 | 6587 | $250.78 | $250.20 | $0.00 | $0.00 | $500.98 | $0.00 |
Statement Details |
| 2024 | 6607 | STATE - STATE LEVY (SCHOOL) | $61.24 | $61.24 | $0.00 | $0.00 | $122.48 | $0.00 |
| 2024 | 6607 | COUNTY - COUNTY LEVIES (CE, DD, VET, MH) | $26.21 | $26.21 | $0.00 | $0.00 | $52.42 | $0.00 |
| 2024 | 6607 | CONSERVE - CONSERVATION FUTURES | $0.79 | $0.78 | $0.00 | $0.00 | $1.57 | $0.00 |
| 2024 | 6607 | COROADS - COUNTY ROADS (ROADS, DIV TO CE) | $21.09 | $21.08 | $0.00 | $0.00 | $42.17 | $0.00 |
| 2024 | 6607 | PORTPT - PORT DISTRICT | $10.83 | $10.82 | $0.00 | $0.00 | $21.65 | $0.00 |
| 2024 | 6607 | PUD1 - PUD #1 | $1.72 | $1.72 | $0.00 | $0.00 | $3.44 | $0.00 |
| 2024 | 6607 | LIB1 - LIBRARY DIST #1 | $8.16 | $8.16 | $0.00 | $0.00 | $16.32 | $0.00 |
| 2024 | 6607 | HD1 - HOSP DIST #1 | $15.57 | $15.57 | $0.00 | $0.00 | $31.14 | $0.00 |
| 2024 | 6607 | SD402 - SCHOOL DIST #402 | $54.40 | $54.38 | $0.00 | $0.00 | $108.78 | $0.00 |
| 2024 | 6607 | FP - DNR Forest Fire Protection Assmt | $8.50 | $8.50 | $0.00 | $0.00 | $17.00 | $0.00 |
| 2024 | 6607 | FPLCA - DNR Landowner Contingency Assmt | $3.00 | $3.00 | $0.00 | $0.00 | $6.00 | $0.00 |
| 2024 | 6607 | JCCD - JC Conservation District | $2.70 | $2.70 | $0.00 | $0.00 | $5.40 | $0.00 |
| 2024 | 6607 | NWA - Noxious Weed Assessment | $2.60 | $2.60 | $0.00 | $0.00 | $5.20 | $0.00 |
| 2024 | 6607 | FP ADMIN - FP ADMIN | $0.50 | $0.00 | $0.00 | $0.00 | $0.50 | $0.00 |
| 2024 | 6607 | TOTAL: | $217.31 | $216.76 | $0.00 | $0.00 | $434.07 | $0.00 |
|
| 2024 | 6607 | $217.31 | $216.76 | $0.00 | $0.00 | $434.07 | $0.00 |
Statement Details |
| 2023 | 6621 | STATE - STATE LEVY (SCHOOL) | $62.32 | $62.31 | $0.00 | $0.00 | $124.63 | $0.00 |
| 2023 | 6621 | COUNTY - COUNTY LEVIES (CE, DD, VET, MH) | $27.21 | $27.17 | $0.00 | $0.00 | $54.38 | $0.00 |
| 2023 | 6621 | CONSERVE - CONSERVATION FUTURES | $0.82 | $0.81 | $0.00 | $0.00 | $1.63 | $0.00 |
| 2023 | 6621 | COROADS - COUNTY ROADS (ROADS, DIV TO CE) | $22.01 | $21.99 | $0.00 | $0.00 | $44.00 | $0.00 |
| 2023 | 6621 | PORTPT - PORT DISTRICT | $11.46 | $11.45 | $0.00 | $0.00 | $22.91 | $0.00 |
| 2023 | 6621 | PUD1 - PUD #1 | $1.80 | $1.80 | $0.00 | $0.00 | $3.60 | $0.00 |
| 2023 | 6621 | LIB1 - LIBRARY DIST #1 | $8.51 | $8.51 | $0.00 | $0.00 | $17.02 | $0.00 |
| 2023 | 6621 | HD1 - HOSP DIST #1 | $15.70 | $15.70 | $0.00 | $0.00 | $31.40 | $0.00 |
| 2023 | 6621 | SD402 - SCHOOL DIST #402 | $61.15 | $61.15 | $0.00 | $0.00 | $122.30 | $0.00 |
| 2023 | 6621 | FP - DNR Forest Fire Protection Assmt | $8.50 | $8.50 | $0.00 | $0.00 | $17.00 | $0.00 |
| 2023 | 6621 | FPLCA - DNR Landowner Contingency Assmt | $3.00 | $3.00 | $0.00 | $0.00 | $6.00 | $0.00 |
| 2023 | 6621 | JCCD - JC Conservation District | $2.70 | $2.70 | $0.00 | $0.00 | $5.40 | $0.00 |
| 2023 | 6621 | NWA - Noxious Weed Assessment | $2.60 | $2.60 | $0.00 | $0.00 | $5.20 | $0.00 |
| 2023 | 6621 | FP ADMIN - FP ADMIN | $0.50 | $0.00 | $0.00 | $0.00 | $0.50 | $0.00 |
| 2023 | 6621 | TOTAL: | $228.28 | $227.69 | $0.00 | $0.00 | $455.97 | $0.00 |
|
| 2023 | 6621 | $228.28 | $227.69 | $0.00 | $0.00 | $455.97 | $0.00 |
Values
| (+) Improvement Homesite Value: | + | $0 | |
| (+) Improvement Non-Homesite Value: | + | $20,460 | |
| (+) Land Homesite Value: | + | $0 | |
| (+) Land Non-Homesite Value: | + | $40,915 | |
| (+) Curr Use (HS): | + | $0 | $0 |
| (+) Curr Use (NHS): | + | $0 | $0 |
| | | -------------------------- | |
| (=) Market Value: | = | $61,375 | |
| (–) Productivity Loss: | – | $0 | |
| | | -------------------------- | |
| (=) Subtotal: | = | $61,375 | |
| (+) Senior Appraised Value: | + | $0 | |
| (+) Non-Senior Appraised Value: | + | $61,375 | |
| | | -------------------------- | |
| (=) Total Appraised Value: | = | $61,375 | |
| (–) Senior Exemption Loss: | – | $0 | |
| (–) Exemption Loss: | – | $0 | |
| | | -------------------------- | |
| (=) Taxable Value: | = | $61,375 | |
Taxing Jurisdiction
| Owner: | STEVE W BENJAMIN | | |
| % Ownership: | 100.0000000000% | | |
| Total Value: | $61,375 | | |
| Tax Area: | 0601 - 1-402H1L1 |
| CE | COUNTY CURRENT EXPENSE | 0.9034619479 | $61,375 | $61,375 | $55.45 | | |
| CNTYDD | DEVELOPMENTAL DISABILITIES | 0.0052121823 | $61,375 | $61,375 | $0.32 | | |
| CNTYVET | VETERANS RELIEF | 0.0052777810 | $61,375 | $61,375 | $0.32 | | |
| MENTAL | MENTAL HEALTH | 0.0052121823 | $61,375 | $61,375 | $0.32 | | |
| ROADS | COUNTY ROADS | 0.7415066410 | $61,375 | $61,375 | $45.51 | | |
| ROADSCU | COUNTY ROADS TO CUR EXP | 0.0000000000 | $61,375 | $61,375 | $0.00 | | |
| HOS1GEN | HOSP DIST #1 GENERAL | 0.5503668747 | $61,375 | $61,375 | $33.78 | | |
| SCH402BOND | SCHOOL DIST #402 BOND | 1.2974778650 | $61,375 | $61,375 | $79.63 | | |
| SCH402MO | SCHOOL DIST #402 EP & O | 1.5579855743 | $61,375 | $61,375 | $95.62 | | |
| CONSERVE | CONSERVATION FUTURES | 0.0275621078 | $61,375 | $61,375 | $1.69 | | |
| LIB1 | LIBRARY DIST #1 GENERAL | 0.2868827388 | $61,375 | $61,375 | $17.61 | | |
| PORTPT | PORT OF PT GENERAL | 0.1134941229 | $61,375 | $61,375 | $6.97 | | |
| PORTPTIDD | PORT OF PT IDD 2019 | 0.2577346692 | $61,375 | $61,375 | $15.82 | | |
| PUD1 | PUD #1 GENERAL | 0.0597888892 | $61,375 | $61,375 | $3.67 | | |
| STATE | STATE SCHOOL PART 1 | 1.4940692947 | $61,375 | $61,375 | $91.70 | | |
| STATE2 | STATE SCHOOL PART 2 | 0.8050170049 | $61,375 | $61,375 | $49.41 | | |
| | Total Tax Rate: | 8.1110498760 | | | | | |
| | | | | Taxes w/Current Exemptions: | $497.82 | | |
| | | | | Taxes w/o Exemptions: | $497.82 | | |
Improvement / Building
| Improvement #1: | Residential Bldg | State Code: | 19 | 0.0 sqft | Value: | $20,460 |
Sketch
Property Image
Land
| 1 | WEST-1375S | | 1.0000 | 43560.00 | 0.00 | 0.00 | 1.00 | $28,000 | $0 |
| 2 | WEST-1575A | | 2.8700 | 125017.20 | 0.00 | 0.00 | 0.00 | $12,915 | $0 |
Roll Value History
| 2026 | N/A | N/A | N/A | N/A | N/A |
| 2025 | $20,460 | $40,915 | $0 | $61,375 | $61,375 |
| 2024 | $20,460 | $40,915 | $0 | $61,375 | $61,375 |
| 2023 | $20,460 | $32,480 | $0 | $52,940 | $52,940 |
| 2022 | $20,460 | $32,480 | $0 | $52,940 | $52,940 |
Deed and Sales History
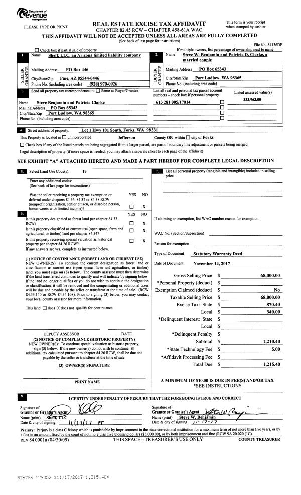
| 1 | 11/14/2017 | SWD | Statutory Warranty Deed | SHEFF LLC | STEVE W BENJAMIN | | | $68,000.00 | 129052 | |
| 2 | 01/27/2009 | SWD | Statutory Warranty Deed | CARTER, WALTERR/LYNDA | SHEFF, LLC | 0 | 0 | $70,000.00 | 112479 | 0 |
| 3 | 10/20/2006 | SWD | Statutory Warranty Deed | CAPELLE, ROBERT/SALIE A | CARTER, WALTER/LYNDA | 0 | 0 | $55,000.00 | 107915 | 0 |
Payout Agreement
| No payout information available.. |