Property
Account |
| Property ID: | 17019 | Abbreviated Legal Description: | S28 T26 R13W E1/2 SE SE |
| Parcel # / Geo ID: | 613284003 | Agent Code: | |
| Type: | Real | | |
| Tax Area: | 0601 - 1-402H1L1 | Land Use Code | 88 |
| Open Space: | N | DFL | Y |
| Historic Property: | N | Remodel Property: | N |
| Multi-Family Redevelopment: | N | | |
| Township: | 26N | Section: | 28 |
| Range: | 13W |
Location |
| Address: | | Mapsco: | 931/027 |
| Neighborhood: | S13, S23 - S36 T26N R13W (US101 ALONGSIDE HOH RIVER) | Map ID: | |
| Neighborhood CD: | 1770 |
Owner |
| Name: | HOH INDIAN TRIBE | Owner ID: | 18304 |
| Mailing Address: | PO BOX 2196 FORKS, WA 98331-2196 | % Ownership: | 100.0000000000% |
| | | Exemptions: | |
Pay Tax Due
Select the appropriate checkbox next to the year to be paid. Multiple years may be selected.
*Convenience Fee not included
Taxes and Assessment Details
Property Tax Information as of
03/10/2026
Click on "Statement Details" to expand or collapse a tax statement.
* Please enter a valid date ** Please enter a valid date *
Statement Details |
| 2026 | 6571 | STATE - STATE LEVY (SCHOOL) | $1.88 | $0.00 | $0.00 | $0.00 | $0.00 | $1.88 |
| 2026 | 6571 | COUNTY - COUNTY LEVIES (CE, DD, VET, MH) | $0.74 | $0.00 | $0.00 | $0.00 | $0.00 | $0.74 |
| 2026 | 6571 | CONSERVE - CONSERVATION FUTURES | $0.02 | $0.00 | $0.00 | $0.00 | $0.00 | $0.02 |
| 2026 | 6571 | COROADS - COUNTY ROADS (ROADS, DIV TO CE) | $0.60 | $0.00 | $0.00 | $0.00 | $0.00 | $0.60 |
| 2026 | 6571 | PORTPT - PORT DISTRICT | $0.30 | $0.00 | $0.00 | $0.00 | $0.00 | $0.30 |
| 2026 | 6571 | PUD1 - PUD #1 | $0.05 | $0.00 | $0.00 | $0.00 | $0.00 | $0.05 |
| 2026 | 6571 | LIB1 - LIBRARY DIST #1 | $0.23 | $0.00 | $0.00 | $0.00 | $0.00 | $0.23 |
| 2026 | 6571 | HD1 - HOSP DIST #1 | $0.45 | $0.00 | $0.00 | $0.00 | $0.00 | $0.45 |
| 2026 | 6571 | SD402 - SCHOOL DIST #402 | $2.33 | $0.00 | $0.00 | $0.00 | $0.00 | $2.33 |
| 2026 | 6571 | FPLCA - DNR Landowner Contingency Assmt | $6.00 | $0.00 | $0.00 | $0.00 | $0.00 | $6.00 |
| 2026 | 6571 | NWA - Noxious Weed Assessment | $1.45 | $0.00 | $0.00 | $0.00 | $0.00 | $1.45 |
| 2026 | 6571 | TOTAL: | $14.05 | $0.00 | $0.00 | $0.00 | $0.00 | $14.05 |
|
| 2026 | 6571 | $14.05 | $0.00 | $0.00 | $0.00 | $0.00 | $14.05 |
Statement Details |
| 2025 | 6592 | STATE - STATE LEVY (SCHOOL) | $1.95 | $0.00 | $0.00 | $0.00 | $1.95 | $0.00 |
| 2025 | 6592 | COUNTY - COUNTY LEVIES (CE, DD, VET, MH) | $0.76 | $0.00 | $0.00 | $0.00 | $0.76 | $0.00 |
| 2025 | 6592 | CONSERVE - CONSERVATION FUTURES | $0.02 | $0.00 | $0.00 | $0.00 | $0.02 | $0.00 |
| 2025 | 6592 | COROADS - COUNTY ROADS (ROADS, DIV TO CE) | $0.61 | $0.00 | $0.00 | $0.00 | $0.61 | $0.00 |
| 2025 | 6592 | PORTPT - PORT DISTRICT | $0.31 | $0.00 | $0.00 | $0.00 | $0.31 | $0.00 |
| 2025 | 6592 | PUD1 - PUD #1 | $0.05 | $0.00 | $0.00 | $0.00 | $0.05 | $0.00 |
| 2025 | 6592 | LIB1 - LIBRARY DIST #1 | $0.24 | $0.00 | $0.00 | $0.00 | $0.24 | $0.00 |
| 2025 | 6592 | HD1 - HOSP DIST #1 | $0.46 | $0.00 | $0.00 | $0.00 | $0.46 | $0.00 |
| 2025 | 6592 | SD402 - SCHOOL DIST #402 | $1.77 | $0.00 | $0.00 | $0.00 | $1.77 | $0.00 |
| 2025 | 6592 | FPLCA - DNR Landowner Contingency Assmt | $6.00 | $0.00 | $0.00 | $0.00 | $6.00 | $0.00 |
| 2025 | 6592 | NWA - Noxious Weed Assessment | $1.00 | $0.00 | $0.00 | $0.00 | $1.00 | $0.00 |
| 2025 | 6592 | TOTAL: | $13.17 | $0.00 | $0.00 | $0.00 | $13.17 | $0.00 |
|
| 2025 | 6592 | $13.17 | $0.00 | $0.00 | $0.00 | $13.17 | $0.00 |
Statement Details |
| 2024 | 6612 | STATE - STATE LEVY (SCHOOL) | $1.84 | $0.00 | $0.00 | $0.00 | $1.84 | $0.00 |
| 2024 | 6612 | COUNTY - COUNTY LEVIES (CE, DD, VET, MH) | $0.77 | $0.00 | $0.00 | $0.00 | $0.77 | $0.00 |
| 2024 | 6612 | CONSERVE - CONSERVATION FUTURES | $0.02 | $0.00 | $0.00 | $0.00 | $0.02 | $0.00 |
| 2024 | 6612 | COROADS - COUNTY ROADS (ROADS, DIV TO CE) | $0.64 | $0.00 | $0.00 | $0.00 | $0.64 | $0.00 |
| 2024 | 6612 | PORTPT - PORT DISTRICT | $0.33 | $0.00 | $0.00 | $0.00 | $0.33 | $0.00 |
| 2024 | 6612 | PUD1 - PUD #1 | $0.05 | $0.00 | $0.00 | $0.00 | $0.05 | $0.00 |
| 2024 | 6612 | LIB1 - LIBRARY DIST #1 | $0.25 | $0.00 | $0.00 | $0.00 | $0.25 | $0.00 |
| 2024 | 6612 | HD1 - HOSP DIST #1 | $0.47 | $0.00 | $0.00 | $0.00 | $0.47 | $0.00 |
| 2024 | 6612 | SD402 - SCHOOL DIST #402 | $1.63 | $0.00 | $0.00 | $0.00 | $1.63 | $0.00 |
| 2024 | 6612 | FPLCA - DNR Landowner Contingency Assmt | $6.00 | $0.00 | $0.00 | $0.00 | $6.00 | $0.00 |
| 2024 | 6612 | NWA - Noxious Weed Assessment | $1.00 | $0.00 | $0.00 | $0.00 | $1.00 | $0.00 |
| 2024 | 6612 | TOTAL: | $13.00 | $0.00 | $0.00 | $0.00 | $13.00 | $0.00 |
|
| 2024 | 6612 | $13.00 | $0.00 | $0.00 | $0.00 | $13.00 | $0.00 |
Statement Details |
| 2023 | 6626 | STATE - STATE LEVY (SCHOOL) | $1.83 | $0.00 | $0.00 | $0.00 | $1.83 | $0.00 |
| 2023 | 6626 | COUNTY - COUNTY LEVIES (CE, DD, VET, MH) | $0.78 | $0.00 | $0.00 | $0.00 | $0.78 | $0.00 |
| 2023 | 6626 | CONSERVE - CONSERVATION FUTURES | $0.02 | $0.00 | $0.00 | $0.00 | $0.02 | $0.00 |
| 2023 | 6626 | COROADS - COUNTY ROADS (ROADS, DIV TO CE) | $0.64 | $0.00 | $0.00 | $0.00 | $0.64 | $0.00 |
| 2023 | 6626 | PORTPT - PORT DISTRICT | $0.34 | $0.00 | $0.00 | $0.00 | $0.34 | $0.00 |
| 2023 | 6626 | PUD1 - PUD #1 | $0.05 | $0.00 | $0.00 | $0.00 | $0.05 | $0.00 |
| 2023 | 6626 | LIB1 - LIBRARY DIST #1 | $0.25 | $0.00 | $0.00 | $0.00 | $0.25 | $0.00 |
| 2023 | 6626 | HD1 - HOSP DIST #1 | $0.46 | $0.00 | $0.00 | $0.00 | $0.46 | $0.00 |
| 2023 | 6626 | SD402 - SCHOOL DIST #402 | $1.79 | $0.00 | $0.00 | $0.00 | $1.79 | $0.00 |
| 2023 | 6626 | FPLCA - DNR Landowner Contingency Assmt | $6.00 | $0.00 | $0.00 | $0.00 | $6.00 | $0.00 |
| 2023 | 6626 | NWA - Noxious Weed Assessment | $1.00 | $0.00 | $0.00 | $0.00 | $1.00 | $0.00 |
| 2023 | 6626 | TOTAL: | $13.16 | $0.00 | $0.00 | $0.00 | $13.16 | $0.00 |
|
| 2023 | 6626 | $13.16 | $0.00 | $0.00 | $0.00 | $13.16 | $0.00 |
Values
| (+) Improvement Homesite Value: | + | $0 | |
| (+) Improvement Non-Homesite Value: | + | $0 | |
| (+) Land Homesite Value: | + | $0 | |
| (+) Land Non-Homesite Value: | + | $0 | |
| (+) Curr Use (HS): | + | $0 | $0 |
| (+) Curr Use (NHS): | + | $46,458 | $815 |
| | | -------------------------- | |
| (=) Market Value: | = | $46,458 | |
| (–) Productivity Loss: | – | $45,643 | |
| | | -------------------------- | |
| (=) Subtotal: | = | $815 | |
| (+) Senior Appraised Value: | + | $0 | |
| (+) Non-Senior Appraised Value: | + | $815 | |
| | | -------------------------- | |
| (=) Total Appraised Value: | = | $815 | |
| (–) Senior Exemption Loss: | – | $0 | |
| (–) Exemption Loss: | – | $0 | |
| | | -------------------------- | |
| (=) Taxable Value: | = | $815 | |
Taxing Jurisdiction
| Owner: | HOH INDIAN TRIBE | | |
| % Ownership: | 100.0000000000% | | |
| Total Value: | $46,458 | | |
| Tax Area: | 0601 - 1-402H1L1 |
| CE | COUNTY CURRENT EXPENSE | 0.9034619479 | $815 | $815 | $0.74 | | |
| CNTYDD | DEVELOPMENTAL DISABILITIES | 0.0052121823 | $815 | $815 | $0.00 | | |
| CNTYVET | VETERANS RELIEF | 0.0052777810 | $815 | $815 | $0.00 | | |
| MENTAL | MENTAL HEALTH | 0.0052121823 | $815 | $815 | $0.00 | | |
| ROADS | COUNTY ROADS | 0.7415066410 | $815 | $815 | $0.60 | | |
| ROADSCU | COUNTY ROADS TO CUR EXP | 0.0000000000 | $815 | $815 | $0.00 | | |
| HOS1GEN | HOSP DIST #1 GENERAL | 0.5503668747 | $815 | $815 | $0.45 | | |
| SCH402BOND | SCHOOL DIST #402 BOND | 1.2974778650 | $815 | $815 | $1.06 | | |
| SCH402MO | SCHOOL DIST #402 EP & O | 1.5579855743 | $815 | $815 | $1.27 | | |
| CONSERVE | CONSERVATION FUTURES | 0.0275621078 | $815 | $815 | $0.02 | | |
| LIB1 | LIBRARY DIST #1 GENERAL | 0.2868827388 | $815 | $815 | $0.23 | | |
| PORTPT | PORT OF PT GENERAL | 0.1134941229 | $815 | $815 | $0.09 | | |
| PORTPTIDD | PORT OF PT IDD 2019 | 0.2577346692 | $815 | $815 | $0.21 | | |
| PUD1 | PUD #1 GENERAL | 0.0597888892 | $815 | $815 | $0.05 | | |
| STATE | STATE SCHOOL PART 1 | 1.4940692947 | $815 | $815 | $1.22 | | |
| STATE2 | STATE SCHOOL PART 2 | 0.8050170049 | $815 | $815 | $0.66 | | |
| | Total Tax Rate: | 8.1110498760 | | | | | |
| | | | | Taxes w/Current Exemptions: | $6.60 | | |
| | | | | Taxes w/o Exemptions: | $6.60 | | |
Improvement / Building
Sketch
| No sketches available for this property. |
Property Image
Land
| 1 | WEST-1388S | | 1.0000 | 43560.00 | 0.00 | 0.00 | 1.00 | $4,000 | $41 |
| 2 | WEST-1785A | | 18.8700 | 821977.20 | 0.00 | 0.00 | 0.00 | $42,458 | $774 |
Roll Value History
| 2026 | N/A | N/A | N/A | N/A | N/A |
| 2025 | $0 | $46,458 | $815 | $815 | $815 |
| 2024 | $0 | $46,458 | $815 | $815 | $815 |
| 2023 | $0 | $41,740 | $795 | $795 | $795 |
| 2022 | $0 | $41,740 | $775 | $775 | $775 |
Deed and Sales History
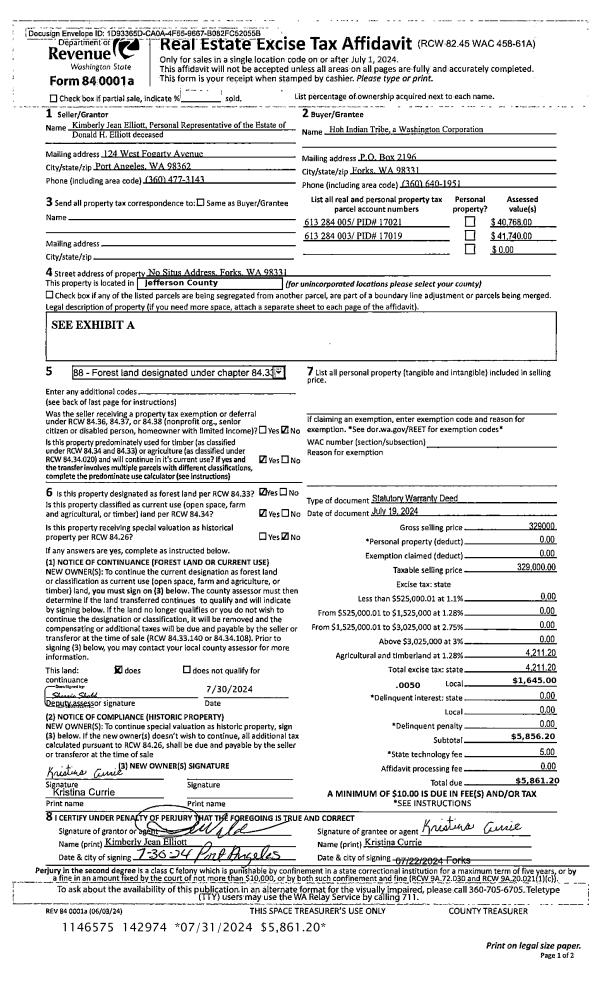
| 1 | 07/19/2024 | SWD | Statutory Warranty Deed | DONALD H ELLIOTT | HOH INDIAN TRIBE | | | $329,000.00 | 142974 | |
|   | |
| 2 | 05/30/1996 | WD | Warranty Deed | HOPPER, KEVIN L | ELLIOTT, DONALD H/LA VONNE J | 0 | 0 | $13,316.00 | 79592 | 0 |
Payout Agreement
| No payout information available.. |