Property
Account |
| Property ID: | 17148 | Abbreviated Legal Description: | S5 T27 R1W TAX 18 WITH EASE |
| Parcel # / Geo ID: | 701052009 | Agent Code: | |
| Type: | Real | | |
| Tax Area: | 0323 - 1-48F2E2P1H2C2L1 | Land Use Code | 91 |
| Open Space: | N | DFL | N |
| Historic Property: | N | Remodel Property: | N |
| Multi-Family Redevelopment: | N | | |
| Township: | 27N | Section: | 5 |
| Range: | 1W |
Location |
| Address: | | Mapsco: | 135/032 |
| Neighborhood: | S5 T27N R1W | Map ID: | |
| Neighborhood CD: | 2310 |
Owner |
| Name: | THERESA E WITHERS | Owner ID: | 30698 |
| Mailing Address: | 16517 CARLYLE HALL RD N SHORELINE, WA 98133-5224 | % Ownership: | 100.0000000000% |
| | | Exemptions: | |
Pay Tax Due
Select the appropriate checkbox next to the year to be paid. Multiple years may be selected.
*Convenience Fee not included
Taxes and Assessment Details
Property Tax Information as of
03/11/2026
Click on "Statement Details" to expand or collapse a tax statement.
* Please enter a valid date ** Please enter a valid date *
Statement Details |
| 2026 | 6695 | STATE - STATE LEVY (SCHOOL) | $108.09 | $108.08 | $0.00 | $0.00 | $0.00 | $216.17 |
| 2026 | 6695 | COUNTY - COUNTY LEVIES (CE, DD, VET, MH) | $43.23 | $43.20 | $0.00 | $0.00 | $0.00 | $86.43 |
| 2026 | 6695 | CONSERVE - CONSERVATION FUTURES | $1.30 | $1.29 | $0.00 | $0.00 | $0.00 | $2.59 |
| 2026 | 6695 | COROADS - COUNTY ROADS (ROADS, DIV TO CE) | $34.86 | $34.86 | $0.00 | $0.00 | $0.00 | $69.72 |
| 2026 | 6695 | PORTPT - PORT DISTRICT | $17.46 | $17.44 | $0.00 | $0.00 | $0.00 | $34.90 |
| 2026 | 6695 | PUD1 - PUD #1 | $2.81 | $2.81 | $0.00 | $0.00 | $0.00 | $5.62 |
| 2026 | 6695 | LIB1 - LIBRARY DIST #1 | $13.49 | $13.48 | $0.00 | $0.00 | $0.00 | $26.97 |
| 2026 | 6695 | HD2 - HOSP DIST #2 | $2.52 | $2.52 | $0.00 | $0.00 | $0.00 | $5.04 |
| 2026 | 6695 | SD48 - SCHOOL DIST #48 | $66.39 | $66.38 | $0.00 | $0.00 | $0.00 | $132.77 |
| 2026 | 6695 | FD2 - FIRE DISTRICT #2 | $35.50 | $35.49 | $0.00 | $0.00 | $0.00 | $70.99 |
| 2026 | 6695 | EMS2 - FIRE DIST #2 EMS | $19.99 | $19.99 | $0.00 | $0.00 | $0.00 | $39.98 |
| 2026 | 6695 | CEM2 - CEMETERY DIST #2 | $1.14 | $1.13 | $0.00 | $0.00 | $0.00 | $2.27 |
| 2026 | 6695 | PARK1 - PARK & REC DIST #1 | $6.93 | $6.93 | $0.00 | $0.00 | $0.00 | $13.86 |
| 2026 | 6695 | FP - DNR Forest Fire Protection Assmt | $8.50 | $8.50 | $0.00 | $0.00 | $0.00 | $17.00 |
| 2026 | 6695 | FPLCA - DNR Landowner Contingency Assmt | $3.00 | $3.00 | $0.00 | $0.00 | $0.00 | $6.00 |
| 2026 | 6695 | JCCD - JC Conservation District | $2.73 | $2.73 | $0.00 | $0.00 | $0.00 | $5.46 |
| 2026 | 6695 | NWA - Noxious Weed Assessment | $4.10 | $4.10 | $0.00 | $0.00 | $0.00 | $8.20 |
| 2026 | 6695 | WAT - Clean Water District | $13.00 | $13.00 | $0.00 | $0.00 | $0.00 | $26.00 |
| 2026 | 6695 | FP ADMIN - FP ADMIN | $0.50 | $0.00 | $0.00 | $0.00 | $0.00 | $0.50 |
| 2026 | 6695 | TOTAL: | $385.54 | $384.93 | $0.00 | $0.00 | $0.00 | $770.47 |
|
| 2026 | 6695 | $385.54 | $384.93 | $0.00 | $0.00 | $0.00 | $770.47 |
Statement Details |
| 2025 | 6716 | STATE - STATE LEVY (SCHOOL) | $107.83 | $107.83 | $0.00 | $0.00 | $215.66 | $0.00 |
| 2025 | 6716 | COUNTY - COUNTY LEVIES (CE, DD, VET, MH) | $42.41 | $42.40 | $0.00 | $0.00 | $84.81 | $0.00 |
| 2025 | 6716 | CONSERVE - CONSERVATION FUTURES | $1.27 | $1.27 | $0.00 | $0.00 | $2.54 | $0.00 |
| 2025 | 6716 | COROADS - COUNTY ROADS (ROADS, DIV TO CE) | $33.98 | $33.96 | $0.00 | $0.00 | $67.94 | $0.00 |
| 2025 | 6716 | PORTPT - PORT DISTRICT | $17.31 | $17.30 | $0.00 | $0.00 | $34.61 | $0.00 |
| 2025 | 6716 | PUD1 - PUD #1 | $2.78 | $2.77 | $0.00 | $0.00 | $5.55 | $0.00 |
| 2025 | 6716 | LIB1 - LIBRARY DIST #1 | $13.15 | $13.14 | $0.00 | $0.00 | $26.29 | $0.00 |
| 2025 | 6716 | HD2 - HOSP DIST #2 | $2.48 | $2.47 | $0.00 | $0.00 | $4.95 | $0.00 |
| 2025 | 6716 | SD48 - SCHOOL DIST #48 | $63.50 | $63.50 | $0.00 | $0.00 | $127.00 | $0.00 |
| 2025 | 6716 | FD2 - FIRE DISTRICT #2 | $35.06 | $35.06 | $0.00 | $0.00 | $70.12 | $0.00 |
| 2025 | 6716 | EMS2 - FIRE DIST #2 EMS | $19.74 | $19.74 | $0.00 | $0.00 | $39.48 | $0.00 |
| 2025 | 6716 | CEM2 - CEMETERY DIST #2 | $1.12 | $1.12 | $0.00 | $0.00 | $2.24 | $0.00 |
| 2025 | 6716 | PARK1 - PARK & REC DIST #1 | $5.12 | $5.12 | $0.00 | $0.00 | $10.24 | $0.00 |
| 2025 | 6716 | FP - DNR Forest Fire Protection Assmt | $8.50 | $8.50 | $0.00 | $0.00 | $17.00 | $0.00 |
| 2025 | 6716 | FPLCA - DNR Landowner Contingency Assmt | $3.00 | $3.00 | $0.00 | $0.00 | $6.00 | $0.00 |
| 2025 | 6716 | JCCD - JC Conservation District | $2.73 | $2.73 | $0.00 | $0.00 | $5.46 | $0.00 |
| 2025 | 6716 | NWA - Noxious Weed Assessment | $2.90 | $2.90 | $0.00 | $0.00 | $5.80 | $0.00 |
| 2025 | 6716 | WAT - Clean Water District | $13.00 | $13.00 | $0.00 | $0.00 | $26.00 | $0.00 |
| 2025 | 6716 | FP ADMIN - FP ADMIN | $0.50 | $0.00 | $0.00 | $0.00 | $0.50 | $0.00 |
| 2025 | 6716 | TOTAL: | $376.38 | $375.81 | $0.00 | $0.00 | $752.19 | $0.00 |
|
| 2025 | 6716 | $376.38 | $375.81 | $0.00 | $0.00 | $752.19 | $0.00 |
Statement Details |
| 2024 | 6738 | STATE - STATE LEVY (SCHOOL) | $96.75 | $96.75 | $0.00 | $0.00 | $193.50 | $0.00 |
| 2024 | 6738 | COUNTY - COUNTY LEVIES (CE, DD, VET, MH) | $41.42 | $41.38 | $0.00 | $0.00 | $82.80 | $0.00 |
| 2024 | 6738 | CONSERVE - CONSERVATION FUTURES | $1.24 | $1.24 | $0.00 | $0.00 | $2.48 | $0.00 |
| 2024 | 6738 | COROADS - COUNTY ROADS (ROADS, DIV TO CE) | $33.31 | $33.31 | $0.00 | $0.00 | $66.62 | $0.00 |
| 2024 | 6738 | PORTPT - PORT DISTRICT | $17.10 | $17.10 | $0.00 | $0.00 | $34.20 | $0.00 |
| 2024 | 6738 | PUD1 - PUD #1 | $2.72 | $2.72 | $0.00 | $0.00 | $5.44 | $0.00 |
| 2024 | 6738 | LIB1 - LIBRARY DIST #1 | $12.89 | $12.89 | $0.00 | $0.00 | $25.78 | $0.00 |
| 2024 | 6738 | HD2 - HOSP DIST #2 | $2.42 | $2.41 | $0.00 | $0.00 | $4.83 | $0.00 |
| 2024 | 6738 | SD48 - SCHOOL DIST #48 | $43.33 | $43.33 | $0.00 | $0.00 | $86.66 | $0.00 |
| 2024 | 6738 | FD2 - FIRE DISTRICT #2 | $34.42 | $34.41 | $0.00 | $0.00 | $68.83 | $0.00 |
| 2024 | 6738 | EMS2 - FIRE DIST #2 EMS | $19.38 | $19.37 | $0.00 | $0.00 | $38.75 | $0.00 |
| 2024 | 6738 | CEM2 - CEMETERY DIST #2 | $1.10 | $1.10 | $0.00 | $0.00 | $2.20 | $0.00 |
| 2024 | 6738 | PARK1 - PARK & REC DIST #1 | $4.84 | $4.83 | $0.00 | $0.00 | $9.67 | $0.00 |
| 2024 | 6738 | FP - DNR Forest Fire Protection Assmt | $8.50 | $8.50 | $0.00 | $0.00 | $17.00 | $0.00 |
| 2024 | 6738 | FPLCA - DNR Landowner Contingency Assmt | $3.00 | $3.00 | $0.00 | $0.00 | $6.00 | $0.00 |
| 2024 | 6738 | JCCD - JC Conservation District | $2.73 | $2.73 | $0.00 | $0.00 | $5.46 | $0.00 |
| 2024 | 6738 | NWA - Noxious Weed Assessment | $2.90 | $2.90 | $0.00 | $0.00 | $5.80 | $0.00 |
| 2024 | 6738 | WAT - Clean Water District | $12.50 | $12.50 | $0.00 | $0.00 | $25.00 | $0.00 |
| 2024 | 6738 | FP ADMIN - FP ADMIN | $0.50 | $0.00 | $0.00 | $0.00 | $0.50 | $0.00 |
| 2024 | 6738 | TOTAL: | $341.05 | $340.47 | $0.00 | $0.00 | $681.52 | $0.00 |
|
| 2024 | 6738 | $341.05 | $340.47 | $0.00 | $0.00 | $681.52 | $0.00 |
Statement Details |
| 2023 | 6752 | STATE - STATE LEVY (SCHOOL) | $90.04 | $90.02 | $0.00 | $0.00 | $180.06 | $0.00 |
| 2023 | 6752 | COUNTY - COUNTY LEVIES (CE, DD, VET, MH) | $39.31 | $39.27 | $0.00 | $0.00 | $78.58 | $0.00 |
| 2023 | 6752 | CONSERVE - CONSERVATION FUTURES | $1.18 | $1.18 | $0.00 | $0.00 | $2.36 | $0.00 |
| 2023 | 6752 | COROADS - COUNTY ROADS (ROADS, DIV TO CE) | $31.79 | $31.78 | $0.00 | $0.00 | $63.57 | $0.00 |
| 2023 | 6752 | PORTPT - PORT DISTRICT | $16.55 | $16.55 | $0.00 | $0.00 | $33.10 | $0.00 |
| 2023 | 6752 | PUD1 - PUD #1 | $2.61 | $2.60 | $0.00 | $0.00 | $5.21 | $0.00 |
| 2023 | 6752 | LIB1 - LIBRARY DIST #1 | $12.30 | $12.29 | $0.00 | $0.00 | $24.59 | $0.00 |
| 2023 | 6752 | HD2 - HOSP DIST #2 | $2.29 | $2.29 | $0.00 | $0.00 | $4.58 | $0.00 |
| 2023 | 6752 | SD48 - SCHOOL DIST #48 | $43.48 | $43.47 | $0.00 | $0.00 | $86.95 | $0.00 |
| 2023 | 6752 | FD2 - FIRE DISTRICT #2 | $34.10 | $34.10 | $0.00 | $0.00 | $68.20 | $0.00 |
| 2023 | 6752 | EMS2 - FIRE DIST #2 EMS | $19.12 | $19.12 | $0.00 | $0.00 | $38.24 | $0.00 |
| 2023 | 6752 | CEM2 - CEMETERY DIST #2 | $1.09 | $1.08 | $0.00 | $0.00 | $2.17 | $0.00 |
| 2023 | 6752 | PARK1 - PARK & REC DIST #1 | $4.27 | $4.27 | $0.00 | $0.00 | $8.54 | $0.00 |
| 2023 | 6752 | FP - DNR Forest Fire Protection Assmt | $8.50 | $8.50 | $0.00 | $0.00 | $17.00 | $0.00 |
| 2023 | 6752 | FPLCA - DNR Landowner Contingency Assmt | $3.00 | $3.00 | $0.00 | $0.00 | $6.00 | $0.00 |
| 2023 | 6752 | JCCD - JC Conservation District | $2.73 | $2.73 | $0.00 | $0.00 | $5.46 | $0.00 |
| 2023 | 6752 | NWA - Noxious Weed Assessment | $2.90 | $2.90 | $0.00 | $0.00 | $5.80 | $0.00 |
| 2023 | 6752 | WAT - Clean Water District | $12.00 | $12.00 | $0.00 | $0.00 | $24.00 | $0.00 |
| 2023 | 6752 | FP ADMIN - FP ADMIN | $0.50 | $0.00 | $0.00 | $0.00 | $0.50 | $0.00 |
| 2023 | 6752 | TOTAL: | $327.76 | $327.15 | $0.00 | $0.00 | $654.91 | $0.00 |
|
| 2023 | 6752 | $327.76 | $327.15 | $0.00 | $0.00 | $654.91 | $0.00 |
Values
| (+) Improvement Homesite Value: | + | $0 | |
| (+) Improvement Non-Homesite Value: | + | $0 | |
| (+) Land Homesite Value: | + | $0 | |
| (+) Land Non-Homesite Value: | + | $94,024 | |
| (+) Curr Use (HS): | + | $0 | $0 |
| (+) Curr Use (NHS): | + | $0 | $0 |
| | | -------------------------- | |
| (=) Market Value: | = | $94,024 | |
| (–) Productivity Loss: | – | $0 | |
| | | -------------------------- | |
| (=) Subtotal: | = | $94,024 | |
| (+) Senior Appraised Value: | + | $0 | |
| (+) Non-Senior Appraised Value: | + | $94,024 | |
| | | -------------------------- | |
| (=) Total Appraised Value: | = | $94,024 | |
| (–) Senior Exemption Loss: | – | $0 | |
| (–) Exemption Loss: | – | $0 | |
| | | -------------------------- | |
| (=) Taxable Value: | = | $94,024 | |
Taxing Jurisdiction
| Owner: | THERESA E WITHERS | | |
| % Ownership: | 100.0000000000% | | |
| Total Value: | $94,024 | | |
| Tax Area: | 0323 - 1-48F2E2P1H2C2L1 |
| CE | COUNTY CURRENT EXPENSE | 0.9034619479 | $94,024 | $94,024 | $84.95 | | |
| CNTYDD | DEVELOPMENTAL DISABILITIES | 0.0052121823 | $94,024 | $94,024 | $0.49 | | |
| CNTYVET | VETERANS RELIEF | 0.0052777810 | $94,024 | $94,024 | $0.50 | | |
| MENTAL | MENTAL HEALTH | 0.0052121823 | $94,024 | $94,024 | $0.49 | | |
| ROADS | COUNTY ROADS | 0.7415066410 | $94,024 | $94,024 | $69.72 | | |
| ROADSCU | COUNTY ROADS TO CUR EXP | 0.0000000000 | $94,024 | $94,024 | $0.00 | | |
| HOSP2CASH | HOSP DIST #2 GENERAL | 0.0536075306 | $94,024 | $94,024 | $5.04 | | |
| SCH48MO | SCHOOL DIST #48 EP & O | 1.4120478917 | $94,024 | $94,024 | $132.77 | | |
| CEM2 | CEMETERY DIST #2 GENERAL | 0.0241266154 | $94,024 | $94,024 | $2.27 | | |
| CONSERVE | CONSERVATION FUTURES | 0.0275621078 | $94,024 | $94,024 | $2.59 | | |
| FD2 | FIRE DIST #2 GENERAL | 0.7549976873 | $94,024 | $94,024 | $70.99 | | |
| LIB1 | LIBRARY DIST #1 GENERAL | 0.2868827388 | $94,024 | $94,024 | $26.97 | | |
| PARK1 | PARK & REC DIST #1 GENERAL | 0.1474441110 | $94,024 | $94,024 | $13.86 | | |
| PORTPT | PORT OF PT GENERAL | 0.1134941229 | $94,024 | $94,024 | $10.67 | | |
| PORTPTIDD | PORT OF PT IDD 2019 | 0.2577346692 | $94,024 | $94,024 | $24.23 | | |
| PUD1 | PUD #1 GENERAL | 0.0597888892 | $94,024 | $94,024 | $5.62 | | |
| STATE | STATE SCHOOL PART 1 | 1.4940692947 | $94,024 | $94,024 | $140.48 | | |
| STATE2 | STATE SCHOOL PART 2 | 0.8050170049 | $94,024 | $94,024 | $75.69 | | |
| EMS2 | FIRE DIST #2 EMS | 0.4251727858 | $94,024 | $94,024 | $39.98 | | |
| | Total Tax Rate: | 7.5226161838 | | | | | |
| | | | | Taxes w/Current Exemptions: | $707.31 | | |
| | | | | Taxes w/o Exemptions: | $707.31 | | |
Improvement / Building
Sketch
| No sketches available for this property. |
Property Image
Land
| 1 | 1575A | | 4.2200 | 183823.20 | 0.00 | 0.00 | 0.00 | $38,824 | $0 |
| 2 | 2310-1374S | | 1.0000 | 43560.00 | 0.00 | 0.00 | 1.00 | $55,200 | $0 |
Roll Value History
| 2026 | N/A | N/A | N/A | N/A | N/A |
| 2025 | $0 | $94,024 | $0 | $94,024 | $94,024 |
| 2024 | $0 | $89,936 | $0 | $89,936 | $89,936 |
| 2023 | $0 | $83,633 | $0 | $83,633 | $83,633 |
| 2022 | $0 | $76,485 | $0 | $76,485 | $76,485 |
Deed and Sales History
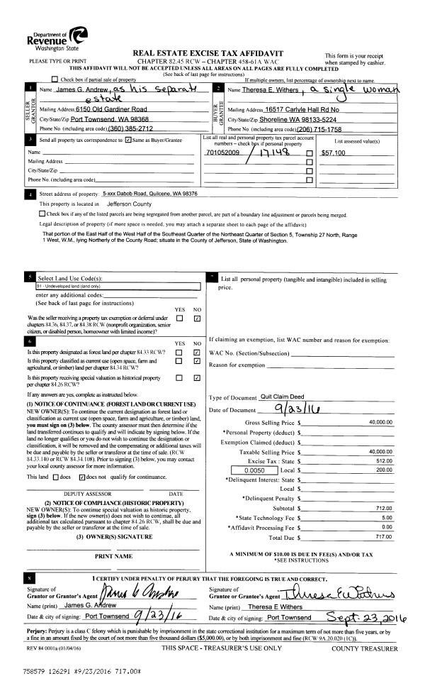
| 1 | 09/23/2016 | QCD | Quit Claim Deed | JAMES G ANDREW | THERESA E WITHERS | | | $40,000.00 | 126291 | |
Payout Agreement
| No payout information available.. |