Property
Account |
| Property ID: | 17157 | Abbreviated Legal Description: | S5 T27 R1W TAX 28 S/EASE |
| Parcel # / Geo ID: | 701054003 | Agent Code: | |
| Type: | Real | | |
| Tax Area: | 0323 - 1-48F2E2P1H2C2L1 | Land Use Code | 19 |
| Open Space: | N | DFL | N |
| Historic Property: | N | Remodel Property: | N |
| Multi-Family Redevelopment: | N | | |
| Township: | 27N | Section: | 5 |
| Range: | 1W |
Location |
| Address: | 585 LONE STAR RD QUILCENE, WA 98376 | Mapsco: | 135/042 |
| Neighborhood: | S5 T27N R1W | Map ID: | |
| Neighborhood CD: | 2310 |
Owner |
| Name: | PHILIP PAPAJCIK | Owner ID: | 105511 |
| Mailing Address: | PO BOX 282 QUILCENE, WA 98376-0282 | % Ownership: | 100.0000000000% |
| | | Exemptions: | |
Pay Tax Due
Select the appropriate checkbox next to the year to be paid. Multiple years may be selected.
*Convenience Fee not included
Taxes and Assessment Details
Property Tax Information as of
03/10/2026
Click on "Statement Details" to expand or collapse a tax statement.
* Please enter a valid date ** Please enter a valid date *
Statement Details |
| 2026 | 6704 | STATE - STATE LEVY (SCHOOL) | $217.13 | $217.12 | $0.00 | $0.00 | $0.00 | $434.25 |
| 2026 | 6704 | COUNTY - COUNTY LEVIES (CE, DD, VET, MH) | $86.81 | $86.80 | $0.00 | $0.00 | $0.00 | $173.61 |
| 2026 | 6704 | CONSERVE - CONSERVATION FUTURES | $2.61 | $2.60 | $0.00 | $0.00 | $0.00 | $5.21 |
| 2026 | 6704 | COROADS - COUNTY ROADS (ROADS, DIV TO CE) | $70.03 | $70.03 | $0.00 | $0.00 | $0.00 | $140.06 |
| 2026 | 6704 | PORTPT - PORT DISTRICT | $35.06 | $35.06 | $0.00 | $0.00 | $0.00 | $70.12 |
| 2026 | 6704 | PUD1 - PUD #1 | $5.65 | $5.64 | $0.00 | $0.00 | $0.00 | $11.29 |
| 2026 | 6704 | LIB1 - LIBRARY DIST #1 | $27.10 | $27.09 | $0.00 | $0.00 | $0.00 | $54.19 |
| 2026 | 6704 | HD2 - HOSP DIST #2 | $5.07 | $5.06 | $0.00 | $0.00 | $0.00 | $10.13 |
| 2026 | 6704 | SD48 - SCHOOL DIST #48 | $133.36 | $133.35 | $0.00 | $0.00 | $0.00 | $266.71 |
| 2026 | 6704 | FD2 - FIRE DISTRICT #2 | $71.31 | $71.30 | $0.00 | $0.00 | $0.00 | $142.61 |
| 2026 | 6704 | EMS2 - FIRE DIST #2 EMS | $40.16 | $40.15 | $0.00 | $0.00 | $0.00 | $80.31 |
| 2026 | 6704 | CEM2 - CEMETERY DIST #2 | $2.28 | $2.28 | $0.00 | $0.00 | $0.00 | $4.56 |
| 2026 | 6704 | PARK1 - PARK & REC DIST #1 | $13.93 | $13.92 | $0.00 | $0.00 | $0.00 | $27.85 |
| 2026 | 6704 | FP - DNR Forest Fire Protection Assmt | $8.50 | $8.50 | $0.00 | $0.00 | $0.00 | $17.00 |
| 2026 | 6704 | FPLCA - DNR Landowner Contingency Assmt | $3.00 | $3.00 | $0.00 | $0.00 | $0.00 | $6.00 |
| 2026 | 6704 | JCCD - JC Conservation District | $2.80 | $2.80 | $0.00 | $0.00 | $0.00 | $5.60 |
| 2026 | 6704 | NWA - Noxious Weed Assessment | $4.10 | $4.10 | $0.00 | $0.00 | $0.00 | $8.20 |
| 2026 | 6704 | WAT - Clean Water District | $13.00 | $13.00 | $0.00 | $0.00 | $0.00 | $26.00 |
| 2026 | 6704 | FP ADMIN - FP ADMIN | $0.50 | $0.00 | $0.00 | $0.00 | $0.00 | $0.50 |
| 2026 | 6704 | TOTAL: | $742.40 | $741.80 | $0.00 | $0.00 | $0.00 | $1484.20 |
|
| 2026 | 6704 | $742.40 | $741.80 | $0.00 | $0.00 | $0.00 | $1484.20 |
Statement Details |
| 2025 | 6725 | STATE - STATE LEVY (SCHOOL) | $216.77 | $216.75 | $0.00 | $0.00 | $433.52 | $0.00 |
| 2025 | 6725 | COUNTY - COUNTY LEVIES (CE, DD, VET, MH) | $85.24 | $85.23 | $0.00 | $0.00 | $170.47 | $0.00 |
| 2025 | 6725 | CONSERVE - CONSERVATION FUTURES | $2.56 | $2.55 | $0.00 | $0.00 | $5.11 | $0.00 |
| 2025 | 6725 | COROADS - COUNTY ROADS (ROADS, DIV TO CE) | $68.30 | $68.28 | $0.00 | $0.00 | $136.58 | $0.00 |
| 2025 | 6725 | PORTPT - PORT DISTRICT | $34.79 | $34.77 | $0.00 | $0.00 | $69.56 | $0.00 |
| 2025 | 6725 | PUD1 - PUD #1 | $5.58 | $5.58 | $0.00 | $0.00 | $11.16 | $0.00 |
| 2025 | 6725 | LIB1 - LIBRARY DIST #1 | $26.42 | $26.42 | $0.00 | $0.00 | $52.84 | $0.00 |
| 2025 | 6725 | HD2 - HOSP DIST #2 | $4.98 | $4.97 | $0.00 | $0.00 | $9.95 | $0.00 |
| 2025 | 6725 | SD48 - SCHOOL DIST #48 | $127.64 | $127.64 | $0.00 | $0.00 | $255.28 | $0.00 |
| 2025 | 6725 | FD2 - FIRE DISTRICT #2 | $70.48 | $70.47 | $0.00 | $0.00 | $140.95 | $0.00 |
| 2025 | 6725 | EMS2 - FIRE DIST #2 EMS | $39.68 | $39.68 | $0.00 | $0.00 | $79.36 | $0.00 |
| 2025 | 6725 | CEM2 - CEMETERY DIST #2 | $2.25 | $2.25 | $0.00 | $0.00 | $4.50 | $0.00 |
| 2025 | 6725 | PARK1 - PARK & REC DIST #1 | $10.30 | $10.29 | $0.00 | $0.00 | $20.59 | $0.00 |
| 2025 | 6725 | FP - DNR Forest Fire Protection Assmt | $8.50 | $8.50 | $0.00 | $0.00 | $17.00 | $0.00 |
| 2025 | 6725 | FPLCA - DNR Landowner Contingency Assmt | $3.00 | $3.00 | $0.00 | $0.00 | $6.00 | $0.00 |
| 2025 | 6725 | JCCD - JC Conservation District | $2.80 | $2.80 | $0.00 | $0.00 | $5.60 | $0.00 |
| 2025 | 6725 | NWA - Noxious Weed Assessment | $2.90 | $2.90 | $0.00 | $0.00 | $5.80 | $0.00 |
| 2025 | 6725 | WAT - Clean Water District | $13.00 | $13.00 | $0.00 | $0.00 | $26.00 | $0.00 |
| 2025 | 6725 | FP ADMIN - FP ADMIN | $0.50 | $0.00 | $0.00 | $0.00 | $0.50 | $0.00 |
| 2025 | 6725 | TOTAL: | $725.69 | $725.08 | $0.00 | $0.00 | $1450.77 | $0.00 |
|
| 2025 | 6725 | $725.69 | $725.08 | $0.00 | $0.00 | $1450.77 | $0.00 |
Statement Details |
| 2024 | 6747 | STATE - STATE LEVY (SCHOOL) | $196.08 | $196.08 | $0.00 | $0.00 | $392.16 | $0.00 |
| 2024 | 6747 | COUNTY - COUNTY LEVIES (CE, DD, VET, MH) | $83.92 | $83.90 | $0.00 | $0.00 | $167.82 | $0.00 |
| 2024 | 6747 | CONSERVE - CONSERVATION FUTURES | $2.52 | $2.51 | $0.00 | $0.00 | $5.03 | $0.00 |
| 2024 | 6747 | COROADS - COUNTY ROADS (ROADS, DIV TO CE) | $67.53 | $67.51 | $0.00 | $0.00 | $135.04 | $0.00 |
| 2024 | 6747 | PORTPT - PORT DISTRICT | $34.66 | $34.65 | $0.00 | $0.00 | $69.31 | $0.00 |
| 2024 | 6747 | PUD1 - PUD #1 | $5.51 | $5.51 | $0.00 | $0.00 | $11.02 | $0.00 |
| 2024 | 6747 | LIB1 - LIBRARY DIST #1 | $26.12 | $26.12 | $0.00 | $0.00 | $52.24 | $0.00 |
| 2024 | 6747 | HD2 - HOSP DIST #2 | $4.90 | $4.89 | $0.00 | $0.00 | $9.79 | $0.00 |
| 2024 | 6747 | SD48 - SCHOOL DIST #48 | $87.82 | $87.82 | $0.00 | $0.00 | $175.64 | $0.00 |
| 2024 | 6747 | FD2 - FIRE DISTRICT #2 | $69.76 | $69.75 | $0.00 | $0.00 | $139.51 | $0.00 |
| 2024 | 6747 | EMS2 - FIRE DIST #2 EMS | $39.27 | $39.26 | $0.00 | $0.00 | $78.53 | $0.00 |
| 2024 | 6747 | CEM2 - CEMETERY DIST #2 | $2.23 | $2.23 | $0.00 | $0.00 | $4.46 | $0.00 |
| 2024 | 6747 | PARK1 - PARK & REC DIST #1 | $9.80 | $9.80 | $0.00 | $0.00 | $19.60 | $0.00 |
| 2024 | 6747 | FP - DNR Forest Fire Protection Assmt | $8.50 | $8.50 | $0.00 | $0.00 | $17.00 | $0.00 |
| 2024 | 6747 | FPLCA - DNR Landowner Contingency Assmt | $3.00 | $3.00 | $0.00 | $0.00 | $6.00 | $0.00 |
| 2024 | 6747 | JCCD - JC Conservation District | $2.80 | $2.80 | $0.00 | $0.00 | $5.60 | $0.00 |
| 2024 | 6747 | NWA - Noxious Weed Assessment | $2.90 | $2.90 | $0.00 | $0.00 | $5.80 | $0.00 |
| 2024 | 6747 | OSS - On Site Septic | $0.00 | $0.00 | $0.00 | $0.00 | $0.00 | $0.00 |
| 2024 | 6747 | WAT - Clean Water District | $12.50 | $12.50 | $0.00 | $0.00 | $25.00 | $0.00 |
| 2024 | 6747 | FP ADMIN - FP ADMIN | $0.50 | $0.00 | $0.00 | $0.00 | $0.50 | $0.00 |
| 2024 | 6747 | TOTAL: | $660.32 | $659.73 | $0.00 | $0.00 | $1320.05 | $0.00 |
|
| 2024 | 6747 | $660.32 | $659.73 | $0.00 | $0.00 | $1320.05 | $0.00 |
Statement Details |
| 2023 | 6761 | STATE - STATE LEVY (SCHOOL) | $172.95 | $172.95 | $0.00 | $0.00 | $345.90 | $0.00 |
| 2023 | 6761 | COUNTY - COUNTY LEVIES (CE, DD, VET, MH) | $75.48 | $75.47 | $0.00 | $0.00 | $150.95 | $0.00 |
| 2023 | 6761 | CONSERVE - CONSERVATION FUTURES | $2.27 | $2.26 | $0.00 | $0.00 | $4.53 | $0.00 |
| 2023 | 6761 | COROADS - COUNTY ROADS (ROADS, DIV TO CE) | $61.06 | $61.06 | $0.00 | $0.00 | $122.12 | $0.00 |
| 2023 | 6761 | PORTPT - PORT DISTRICT | $31.80 | $31.79 | $0.00 | $0.00 | $63.59 | $0.00 |
| 2023 | 6761 | PUD1 - PUD #1 | $5.01 | $5.00 | $0.00 | $0.00 | $10.01 | $0.00 |
| 2023 | 6761 | LIB1 - LIBRARY DIST #1 | $23.63 | $23.62 | $0.00 | $0.00 | $47.25 | $0.00 |
| 2023 | 6761 | HD2 - HOSP DIST #2 | $4.41 | $4.40 | $0.00 | $0.00 | $8.81 | $0.00 |
| 2023 | 6761 | SD48 - SCHOOL DIST #48 | $83.52 | $83.52 | $0.00 | $0.00 | $167.04 | $0.00 |
| 2023 | 6761 | FD2 - FIRE DISTRICT #2 | $65.51 | $65.51 | $0.00 | $0.00 | $131.02 | $0.00 |
| 2023 | 6761 | EMS2 - FIRE DIST #2 EMS | $36.74 | $36.73 | $0.00 | $0.00 | $73.47 | $0.00 |
| 2023 | 6761 | CEM2 - CEMETERY DIST #2 | $2.09 | $2.08 | $0.00 | $0.00 | $4.17 | $0.00 |
| 2023 | 6761 | PARK1 - PARK & REC DIST #1 | $8.21 | $8.20 | $0.00 | $0.00 | $16.41 | $0.00 |
| 2023 | 6761 | FP - DNR Forest Fire Protection Assmt | $8.50 | $8.50 | $0.00 | $0.00 | $17.00 | $0.00 |
| 2023 | 6761 | FPLCA - DNR Landowner Contingency Assmt | $3.00 | $3.00 | $0.00 | $0.00 | $6.00 | $0.00 |
| 2023 | 6761 | JCCD - JC Conservation District | $2.80 | $2.80 | $0.00 | $0.00 | $5.60 | $0.00 |
| 2023 | 6761 | NWA - Noxious Weed Assessment | $2.90 | $2.90 | $0.00 | $0.00 | $5.80 | $0.00 |
| 2023 | 6761 | OSS - On Site Septic | $20.50 | $20.50 | $0.00 | $0.00 | $41.00 | $0.00 |
| 2023 | 6761 | WAT - Clean Water District | $12.00 | $12.00 | $0.00 | $0.00 | $24.00 | $0.00 |
| 2023 | 6761 | FP ADMIN - FP ADMIN | $0.50 | $0.00 | $0.00 | $0.00 | $0.50 | $0.00 |
| 2023 | 6761 | TOTAL: | $622.88 | $622.29 | $0.00 | $0.00 | $1245.17 | $0.00 |
|
| 2023 | 6761 | $622.88 | $622.29 | $0.00 | $0.00 | $1245.17 | $0.00 |
Values
| (+) Improvement Homesite Value: | + | $0 | |
| (+) Improvement Non-Homesite Value: | + | $60,757 | |
| (+) Land Homesite Value: | + | $0 | |
| (+) Land Non-Homesite Value: | + | $128,125 | |
| (+) Curr Use (HS): | + | $0 | $0 |
| (+) Curr Use (NHS): | + | $0 | $0 |
| | | -------------------------- | |
| (=) Market Value: | = | $188,882 | |
| (–) Productivity Loss: | – | $0 | |
| | | -------------------------- | |
| (=) Subtotal: | = | $188,882 | |
| (+) Senior Appraised Value: | + | $0 | |
| (+) Non-Senior Appraised Value: | + | $188,882 | |
| | | -------------------------- | |
| (=) Total Appraised Value: | = | $188,882 | |
| (–) Senior Exemption Loss: | – | $0 | |
| (–) Exemption Loss: | – | $0 | |
| | | -------------------------- | |
| (=) Taxable Value: | = | $188,882 | |
Taxing Jurisdiction
| Owner: | PHILIP PAPAJCIK | | |
| % Ownership: | 100.0000000000% | | |
| Total Value: | $188,882 | | |
| Tax Area: | 0323 - 1-48F2E2P1H2C2L1 |
| CE | COUNTY CURRENT EXPENSE | 0.9034619479 | $188,882 | $188,882 | $170.65 | | |
| CNTYDD | DEVELOPMENTAL DISABILITIES | 0.0052121823 | $188,882 | $188,882 | $0.98 | | |
| CNTYVET | VETERANS RELIEF | 0.0052777810 | $188,882 | $188,882 | $1.00 | | |
| MENTAL | MENTAL HEALTH | 0.0052121823 | $188,882 | $188,882 | $0.98 | | |
| ROADS | COUNTY ROADS | 0.7415066410 | $188,882 | $188,882 | $140.06 | | |
| ROADSCU | COUNTY ROADS TO CUR EXP | 0.0000000000 | $188,882 | $188,882 | $0.00 | | |
| HOSP2CASH | HOSP DIST #2 GENERAL | 0.0536075306 | $188,882 | $188,882 | $10.13 | | |
| SCH48MO | SCHOOL DIST #48 EP & O | 1.4120478917 | $188,882 | $188,882 | $266.71 | | |
| CEM2 | CEMETERY DIST #2 GENERAL | 0.0241266154 | $188,882 | $188,882 | $4.56 | | |
| CONSERVE | CONSERVATION FUTURES | 0.0275621078 | $188,882 | $188,882 | $5.21 | | |
| FD2 | FIRE DIST #2 GENERAL | 0.7549976873 | $188,882 | $188,882 | $142.61 | | |
| LIB1 | LIBRARY DIST #1 GENERAL | 0.2868827388 | $188,882 | $188,882 | $54.19 | | |
| PARK1 | PARK & REC DIST #1 GENERAL | 0.1474441110 | $188,882 | $188,882 | $27.85 | | |
| PORTPT | PORT OF PT GENERAL | 0.1134941229 | $188,882 | $188,882 | $21.44 | | |
| PORTPTIDD | PORT OF PT IDD 2019 | 0.2577346692 | $188,882 | $188,882 | $48.68 | | |
| PUD1 | PUD #1 GENERAL | 0.0597888892 | $188,882 | $188,882 | $11.29 | | |
| STATE | STATE SCHOOL PART 1 | 1.4940692947 | $188,882 | $188,882 | $282.20 | | |
| STATE2 | STATE SCHOOL PART 2 | 0.8050170049 | $188,882 | $188,882 | $152.05 | | |
| EMS2 | FIRE DIST #2 EMS | 0.4251727858 | $188,882 | $188,882 | $80.31 | | |
| | Total Tax Rate: | 7.5226161838 | | | | | |
| | | | | Taxes w/Current Exemptions: | $1,420.90 | | |
| | | | | Taxes w/o Exemptions: | $1,420.90 | | |
Improvement / Building
| Improvement #1: | Residential Bldg | State Code: | 19 | 628.0 sqft | Value: | $60,757 |
| Exterior Wall: | SI/ST | Floor Construction: | FRAME | | Foundation: | PO&BL | Heating/Cooling: | WD/NO | | Interior Finish: | FIN | Roof Cover: | METAL |
|
| | Type | Description | Class CD | Sub Class CD | Year Built | Area |
| | MA | Main Area | 4 | C15F | 0 | 372.0 |
| | MA2 | Second Floor Main Area | 4 | C15F | 0 | 256.0 |
| | CWPOR | Cabin Wood Porch | 4 | * | 0 | 32.0 |
Sketch
| No sketches available for this property. |
Property Image
Land
| 1 | 1572A | | 4.0300 | 175546.80 | 0.00 | 0.00 | 0.00 | $63,725 | $0 |
| 2 | 2310-1374S | | 1.0000 | 43560.00 | 0.00 | 0.00 | 1.00 | $64,400 | $0 |
Roll Value History
| 2026 | N/A | N/A | N/A | N/A | N/A |
| 2025 | $60,757 | $128,125 | $0 | $188,882 | $188,882 |
| 2024 | $58,226 | $122,554 | $0 | $180,780 | $180,780 |
| 2023 | $55,694 | $113,810 | $0 | $169,504 | $169,504 |
| 2022 | $50,631 | $96,300 | $0 | $146,931 | $146,931 |
Deed and Sales History
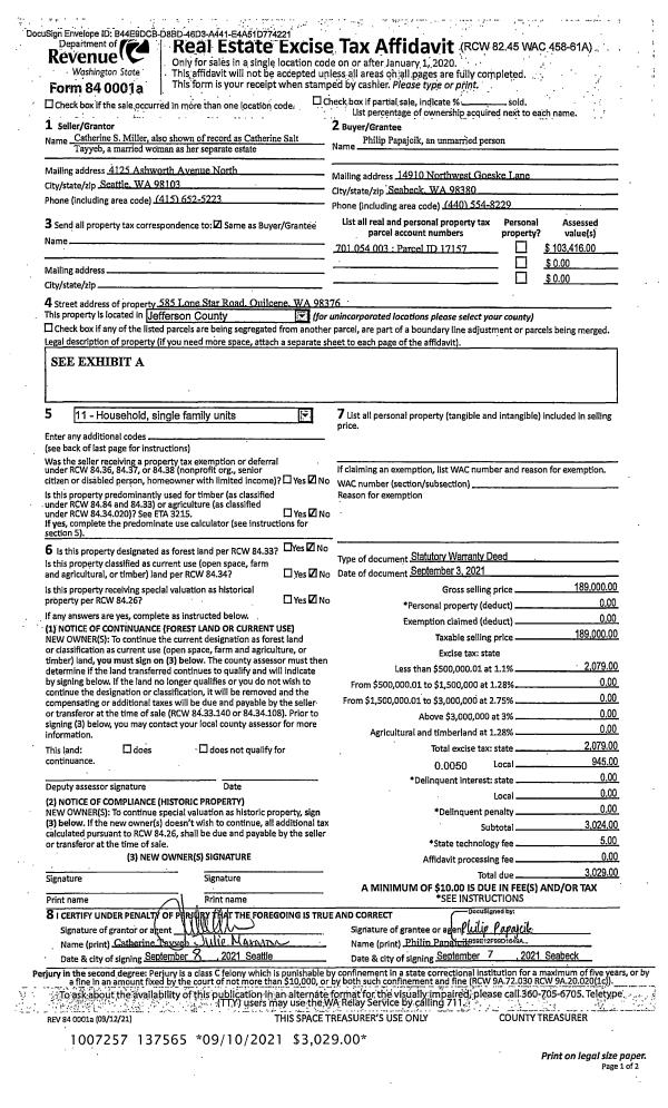
| 1 | 09/03/2021 | SWD | Statutory Warranty Deed | CATHERINE TAYYEB | PHILIP PAPAJCIK | | | $189,000.00 | 137565 | |
| 2 | 12/11/2003 | SWD | Statutory Warranty Deed | OSTER, BRENDA L | MILLER, CATHERINE | 0 | 0 | $65,000.00 | 99117 | 0 |
| 3 | 10/13/2003 | QCD | Quit Claim Deed | OSTER, FRANK | OSTER, BRENDA L | 0 | 0 | $0.00 | 98667 | 0 |
| 4 | 10/09/2000 | SWD | Statutory Warranty Deed | KLINGMAN, KURT K | OSTER, FRANK | 0 | 0 | $53,000.00 | 90850 | 0 |
Payout Agreement
| No payout information available.. |