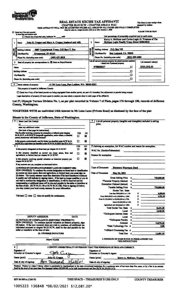
Property
Account |
| Property ID: | 17167 | Abbreviated Legal Description: | S6 T27 R1W LT2(LS E3/4 OF N1/2, LESS E 400' OF S1/2) |
| Parcel # / Geo ID: | 701061005 | Agent Code: | |
| Type: | Real | | |
| Tax Area: | 0321 - 1-48F2E2H2C2L1 | Land Use Code | 88 |
| Open Space: | N | DFL | Y |
| Historic Property: | N | Remodel Property: | N |
| Multi-Family Redevelopment: | N | | |
| Township: | 27N | Section: | 6 |
| Range: | 1W |
Location |
| Address: | 95 NICKELBUSH LN QUILCENE, WA 98376 | Mapsco: | 136/006 |
| Neighborhood: | S6 & S7 T27N R1W | Map ID: | |
| Neighborhood CD: | 2305 |
Owner |
| Name: | KURT D MUNDEE | Owner ID: | 23138 |
| Mailing Address: | KATHLEEN E MUNDEE PO BOX 38 QUILCENE, WA 98376 | % Ownership: | 100.0000000000% |
| | | Exemptions: | |
Pay Tax Due
Select the appropriate checkbox next to the year to be paid. Multiple years may be selected.
*Convenience Fee not included
Taxes and Assessment Details
Property Tax Information as of
03/10/2026
Click on "Statement Details" to expand or collapse a tax statement.
* Please enter a valid date ** Please enter a valid date *
Statement Details |
| 2026 | 6714 | STATE - STATE LEVY (SCHOOL) | $642.44 | $642.43 | $0.00 | $0.00 | $0.00 | $1284.87 |
| 2026 | 6714 | COUNTY - COUNTY LEVIES (CE, DD, VET, MH) | $256.86 | $256.82 | $0.00 | $0.00 | $0.00 | $513.68 |
| 2026 | 6714 | CONSERVE - CONSERVATION FUTURES | $7.70 | $7.70 | $0.00 | $0.00 | $0.00 | $15.40 |
| 2026 | 6714 | COROADS - COUNTY ROADS (ROADS, DIV TO CE) | $207.20 | $207.20 | $0.00 | $0.00 | $0.00 | $414.40 |
| 2026 | 6714 | PORTPT - PORT DISTRICT | $103.74 | $103.73 | $0.00 | $0.00 | $0.00 | $207.47 |
| 2026 | 6714 | PUD1 - PUD #1 | $16.71 | $16.70 | $0.00 | $0.00 | $0.00 | $33.41 |
| 2026 | 6714 | LIB1 - LIBRARY DIST #1 | $80.17 | $80.16 | $0.00 | $0.00 | $0.00 | $160.33 |
| 2026 | 6714 | HD2 - HOSP DIST #2 | $14.98 | $14.98 | $0.00 | $0.00 | $0.00 | $29.96 |
| 2026 | 6714 | SD48 - SCHOOL DIST #48 | $394.57 | $394.57 | $0.00 | $0.00 | $0.00 | $789.14 |
| 2026 | 6714 | FD2 - FIRE DISTRICT #2 | $210.97 | $210.97 | $0.00 | $0.00 | $0.00 | $421.94 |
| 2026 | 6714 | EMS2 - FIRE DIST #2 EMS | $118.81 | $118.80 | $0.00 | $0.00 | $0.00 | $237.61 |
| 2026 | 6714 | CEM2 - CEMETERY DIST #2 | $6.74 | $6.74 | $0.00 | $0.00 | $0.00 | $13.48 |
| 2026 | 6714 | FP - DNR Forest Fire Protection Assmt | $8.50 | $8.50 | $0.00 | $0.00 | $0.00 | $17.00 |
| 2026 | 6714 | FPLCA - DNR Landowner Contingency Assmt | $3.00 | $3.00 | $0.00 | $0.00 | $0.00 | $6.00 |
| 2026 | 6714 | JCCD - JC Conservation District | $1.59 | $1.59 | $0.00 | $0.00 | $0.00 | $3.18 |
| 2026 | 6714 | NWA - Noxious Weed Assessment | $0.71 | $0.70 | $0.00 | $0.00 | $0.00 | $1.41 |
| 2026 | 6714 | OSS - On Site Septic | $23.10 | $23.10 | $0.00 | $0.00 | $0.00 | $46.20 |
| 2026 | 6714 | WAT - Clean Water District | $13.00 | $13.00 | $0.00 | $0.00 | $0.00 | $26.00 |
| 2026 | 6714 | FP ADMIN - FP ADMIN | $0.50 | $0.00 | $0.00 | $0.00 | $0.00 | $0.50 |
| 2026 | 6714 | TOTAL: | $2111.29 | $2110.69 | $0.00 | $0.00 | $0.00 | $4221.98 |
|
| 2026 | 6714 | $2111.29 | $2110.69 | $0.00 | $0.00 | $0.00 | $4221.98 |
Statement Details |
| 2025 | 6735 | STATE - STATE LEVY (SCHOOL) | $647.36 | $647.35 | $0.00 | $0.00 | $1294.71 | $0.00 |
| 2025 | 6735 | COUNTY - COUNTY LEVIES (CE, DD, VET, MH) | $254.57 | $254.57 | $0.00 | $0.00 | $509.14 | $0.00 |
| 2025 | 6735 | CONSERVE - CONSERVATION FUTURES | $7.64 | $7.63 | $0.00 | $0.00 | $15.27 | $0.00 |
| 2025 | 6735 | COROADS - COUNTY ROADS (ROADS, DIV TO CE) | $203.95 | $203.94 | $0.00 | $0.00 | $407.89 | $0.00 |
| 2025 | 6735 | PORTPT - PORT DISTRICT | $103.89 | $103.87 | $0.00 | $0.00 | $207.76 | $0.00 |
| 2025 | 6735 | PUD1 - PUD #1 | $16.66 | $16.65 | $0.00 | $0.00 | $33.31 | $0.00 |
| 2025 | 6735 | LIB1 - LIBRARY DIST #1 | $78.91 | $78.90 | $0.00 | $0.00 | $157.81 | $0.00 |
| 2025 | 6735 | HD2 - HOSP DIST #2 | $14.85 | $14.85 | $0.00 | $0.00 | $29.70 | $0.00 |
| 2025 | 6735 | SD48 - SCHOOL DIST #48 | $381.21 | $381.20 | $0.00 | $0.00 | $762.41 | $0.00 |
| 2025 | 6735 | FD2 - FIRE DISTRICT #2 | $210.48 | $210.47 | $0.00 | $0.00 | $420.95 | $0.00 |
| 2025 | 6735 | EMS2 - FIRE DIST #2 EMS | $118.51 | $118.51 | $0.00 | $0.00 | $237.02 | $0.00 |
| 2025 | 6735 | CEM2 - CEMETERY DIST #2 | $6.72 | $6.71 | $0.00 | $0.00 | $13.43 | $0.00 |
| 2025 | 6735 | FP - DNR Forest Fire Protection Assmt | $8.50 | $8.50 | $0.00 | $0.00 | $17.00 | $0.00 |
| 2025 | 6735 | FPLCA - DNR Landowner Contingency Assmt | $3.00 | $3.00 | $0.00 | $0.00 | $6.00 | $0.00 |
| 2025 | 6735 | JCCD - JC Conservation District | $1.59 | $1.59 | $0.00 | $0.00 | $3.18 | $0.00 |
| 2025 | 6735 | NWA - Noxious Weed Assessment | $0.49 | $0.48 | $0.00 | $0.00 | $0.97 | $0.00 |
| 2025 | 6735 | OSS - On Site Septic | $21.50 | $21.50 | $0.00 | $0.00 | $43.00 | $0.00 |
| 2025 | 6735 | WAT - Clean Water District | $13.00 | $13.00 | $0.00 | $0.00 | $26.00 | $0.00 |
| 2025 | 6735 | FP ADMIN - FP ADMIN | $0.50 | $0.00 | $0.00 | $0.00 | $0.50 | $0.00 |
| 2025 | 6735 | TOTAL: | $2093.33 | $2092.72 | $0.00 | $0.00 | $4186.05 | $0.00 |
|
| 2025 | 6735 | $2093.33 | $2092.72 | $0.00 | $0.00 | $4186.05 | $0.00 |
Statement Details |
| 2024 | 6757 | STATE - STATE LEVY (SCHOOL) | $585.03 | $585.01 | $0.00 | $0.00 | $1170.04 | $0.00 |
| 2024 | 6757 | COUNTY - COUNTY LEVIES (CE, DD, VET, MH) | $250.35 | $250.32 | $0.00 | $0.00 | $500.67 | $0.00 |
| 2024 | 6757 | CONSERVE - CONSERVATION FUTURES | $7.51 | $7.50 | $0.00 | $0.00 | $15.01 | $0.00 |
| 2024 | 6757 | COROADS - COUNTY ROADS (ROADS, DIV TO CE) | $201.45 | $201.43 | $0.00 | $0.00 | $402.88 | $0.00 |
| 2024 | 6757 | PORTPT - PORT DISTRICT | $103.40 | $103.40 | $0.00 | $0.00 | $206.80 | $0.00 |
| 2024 | 6757 | PUD1 - PUD #1 | $16.45 | $16.44 | $0.00 | $0.00 | $32.89 | $0.00 |
| 2024 | 6757 | LIB1 - LIBRARY DIST #1 | $77.94 | $77.93 | $0.00 | $0.00 | $155.87 | $0.00 |
| 2024 | 6757 | HD2 - HOSP DIST #2 | $14.61 | $14.60 | $0.00 | $0.00 | $29.21 | $0.00 |
| 2024 | 6757 | SD48 - SCHOOL DIST #48 | $262.02 | $262.02 | $0.00 | $0.00 | $524.04 | $0.00 |
| 2024 | 6757 | FD2 - FIRE DISTRICT #2 | $208.12 | $208.11 | $0.00 | $0.00 | $416.23 | $0.00 |
| 2024 | 6757 | EMS2 - FIRE DIST #2 EMS | $117.16 | $117.15 | $0.00 | $0.00 | $234.31 | $0.00 |
| 2024 | 6757 | CEM2 - CEMETERY DIST #2 | $6.66 | $6.66 | $0.00 | $0.00 | $13.32 | $0.00 |
| 2024 | 6757 | FP - DNR Forest Fire Protection Assmt | $8.50 | $8.50 | $0.00 | $0.00 | $17.00 | $0.00 |
| 2024 | 6757 | FPLCA - DNR Landowner Contingency Assmt | $3.00 | $3.00 | $0.00 | $0.00 | $6.00 | $0.00 |
| 2024 | 6757 | JCCD - JC Conservation District | $1.59 | $1.59 | $0.00 | $0.00 | $3.18 | $0.00 |
| 2024 | 6757 | NWA - Noxious Weed Assessment | $0.49 | $0.48 | $0.00 | $0.00 | $0.97 | $0.00 |
| 2024 | 6757 | OSS - On Site Septic | $21.00 | $21.00 | $0.00 | $0.00 | $42.00 | $0.00 |
| 2024 | 6757 | WAT - Clean Water District | $12.50 | $12.50 | $0.00 | $0.00 | $25.00 | $0.00 |
| 2024 | 6757 | FP ADMIN - FP ADMIN | $0.50 | $0.00 | $0.00 | $0.00 | $0.50 | $0.00 |
| 2024 | 6757 | TOTAL: | $1898.28 | $1897.64 | $0.00 | $0.00 | $3795.92 | $0.00 |
|
| 2024 | 6757 | $1898.28 | $1897.64 | $0.00 | $0.00 | $3795.92 | $0.00 |
Statement Details |
| 2023 | 6771 | STATE - STATE LEVY (SCHOOL) | $537.47 | $537.47 | $0.00 | $0.00 | $1074.94 | $0.00 |
| 2023 | 6771 | COUNTY - COUNTY LEVIES (CE, DD, VET, MH) | $234.54 | $234.53 | $0.00 | $0.00 | $469.07 | $0.00 |
| 2023 | 6771 | CONSERVE - CONSERVATION FUTURES | $7.04 | $7.03 | $0.00 | $0.00 | $14.07 | $0.00 |
| 2023 | 6771 | COROADS - COUNTY ROADS (ROADS, DIV TO CE) | $189.76 | $189.75 | $0.00 | $0.00 | $379.51 | $0.00 |
| 2023 | 6771 | PORTPT - PORT DISTRICT | $98.80 | $98.80 | $0.00 | $0.00 | $197.60 | $0.00 |
| 2023 | 6771 | PUD1 - PUD #1 | $15.55 | $15.54 | $0.00 | $0.00 | $31.09 | $0.00 |
| 2023 | 6771 | LIB1 - LIBRARY DIST #1 | $73.42 | $73.41 | $0.00 | $0.00 | $146.83 | $0.00 |
| 2023 | 6771 | HD2 - HOSP DIST #2 | $13.70 | $13.68 | $0.00 | $0.00 | $27.38 | $0.00 |
| 2023 | 6771 | SD48 - SCHOOL DIST #48 | $259.55 | $259.55 | $0.00 | $0.00 | $519.10 | $0.00 |
| 2023 | 6771 | FD2 - FIRE DISTRICT #2 | $203.59 | $203.58 | $0.00 | $0.00 | $407.17 | $0.00 |
| 2023 | 6771 | EMS2 - FIRE DIST #2 EMS | $114.16 | $114.15 | $0.00 | $0.00 | $228.31 | $0.00 |
| 2023 | 6771 | CEM2 - CEMETERY DIST #2 | $6.48 | $6.48 | $0.00 | $0.00 | $12.96 | $0.00 |
| 2023 | 6771 | FP - DNR Forest Fire Protection Assmt | $8.50 | $8.50 | $0.00 | $0.00 | $17.00 | $0.00 |
| 2023 | 6771 | FPLCA - DNR Landowner Contingency Assmt | $3.00 | $3.00 | $0.00 | $0.00 | $6.00 | $0.00 |
| 2023 | 6771 | JCCD - JC Conservation District | $1.59 | $1.59 | $0.00 | $0.00 | $3.18 | $0.00 |
| 2023 | 6771 | NWA - Noxious Weed Assessment | $0.49 | $0.48 | $0.00 | $0.00 | $0.97 | $0.00 |
| 2023 | 6771 | OSS - On Site Septic | $20.50 | $20.50 | $0.00 | $0.00 | $41.00 | $0.00 |
| 2023 | 6771 | WAT - Clean Water District | $12.00 | $12.00 | $0.00 | $0.00 | $24.00 | $0.00 |
| 2023 | 6771 | FP ADMIN - FP ADMIN | $0.50 | $0.00 | $0.00 | $0.00 | $0.50 | $0.00 |
| 2023 | 6771 | TOTAL: | $1800.64 | $1800.04 | $0.00 | $0.00 | $3600.68 | $0.00 |
|
| 2023 | 6771 | $1800.64 | $1800.04 | $0.00 | $0.00 | $3600.68 | $0.00 |
Values
| (+) Improvement Homesite Value: | + | $0 | |
| (+) Improvement Non-Homesite Value: | + | $454,956 | |
| (+) Land Homesite Value: | + | $80,500 | |
| (+) Land Non-Homesite Value: | + | $21,850 | |
| (+) Curr Use (HS): | + | $0 | $0 |
| (+) Curr Use (NHS): | + | $75,820 | $1,555 |
| | | -------------------------- | |
| (=) Market Value: | = | $633,126 | |
| (–) Productivity Loss: | – | $74,265 | |
| | | -------------------------- | |
| (=) Subtotal: | = | $558,861 | |
| (+) Senior Appraised Value: | + | $0 | |
| (+) Non-Senior Appraised Value: | + | $558,861 | |
| | | -------------------------- | |
| (=) Total Appraised Value: | = | $558,861 | |
| (–) Senior Exemption Loss: | – | $0 | |
| (–) Exemption Loss: | – | $0 | |
| | | -------------------------- | |
| (=) Taxable Value: | = | $558,861 | |
Taxing Jurisdiction
| Owner: | KURT D MUNDEE | | |
| % Ownership: | 100.0000000000% | | |
| Total Value: | $633,126 | | |
| Tax Area: | 0321 - 1-48F2E2H2C2L1 |
| CE | COUNTY CURRENT EXPENSE | 0.9034619479 | $558,861 | $558,861 | $504.91 | | |
| CNTYDD | DEVELOPMENTAL DISABILITIES | 0.0052121823 | $558,861 | $558,861 | $2.91 | | |
| CNTYVET | VETERANS RELIEF | 0.0052777810 | $558,861 | $558,861 | $2.95 | | |
| MENTAL | MENTAL HEALTH | 0.0052121823 | $558,861 | $558,861 | $2.91 | | |
| ROADS | COUNTY ROADS | 0.7415066410 | $558,861 | $558,861 | $414.40 | | |
| ROADSCU | COUNTY ROADS TO CUR EXP | 0.0000000000 | $558,861 | $558,861 | $0.00 | | |
| HOSP2CASH | HOSP DIST #2 GENERAL | 0.0536075306 | $558,861 | $558,861 | $29.96 | | |
| SCH48MO | SCHOOL DIST #48 EP & O | 1.4120478917 | $558,861 | $558,861 | $789.14 | | |
| CEM2 | CEMETERY DIST #2 GENERAL | 0.0241266154 | $558,861 | $558,861 | $13.48 | | |
| CONSERVE | CONSERVATION FUTURES | 0.0275621078 | $558,861 | $558,861 | $15.40 | | |
| FD2 | FIRE DIST #2 GENERAL | 0.7549976873 | $558,861 | $558,861 | $421.94 | | |
| LIB1 | LIBRARY DIST #1 GENERAL | 0.2868827388 | $558,861 | $558,861 | $160.33 | | |
| PORTPT | PORT OF PT GENERAL | 0.1134941229 | $558,861 | $558,861 | $63.43 | | |
| PORTPTIDD | PORT OF PT IDD 2019 | 0.2577346692 | $558,861 | $558,861 | $144.04 | | |
| PUD1 | PUD #1 GENERAL | 0.0597888892 | $558,861 | $558,861 | $33.41 | | |
| STATE | STATE SCHOOL PART 1 | 1.4940692947 | $558,861 | $558,861 | $834.98 | | |
| STATE2 | STATE SCHOOL PART 2 | 0.8050170049 | $558,861 | $558,861 | $449.89 | | |
| EMS2 | FIRE DIST #2 EMS | 0.4251727858 | $558,861 | $558,861 | $237.61 | | |
| | Total Tax Rate: | 7.3751720728 | | | | | |
| | | | | Taxes w/Current Exemptions: | $4,121.69 | | |
| | | | | Taxes w/o Exemptions: | $4,121.69 | | |
Improvement / Building
| Improvement #1: | Residential Bldg | State Code: | 11 | 1980.0 sqft | Value: | $454,956 |
| Bathrooms (#): | 2 (FULL) | Bedrooms (#): | 3 | | Exterior Wall: | SI/ST | Floor Construction: | FRAME | | Foundation: | CONPR | Heating/Cooling: | HTWTR | | Roof Cover: | COMP |   |   |
|
| | Type | Description | Class CD | Sub Class CD | Year Built | Area |
| | MA | Main Area | 5+ | 15SF | 2003 | 1450.0 |
| | MA2 | Second Floor Main Area | 5+ | 15SF | 2003 | 530.0 |
| | PATIO | House Patio | 6 | * | 2003 | 560.0 |
| | HBAL | House Balcony | 6 | * | 2003 | 60.0 |
| | HCPOR | House Concrete Porch | 6 | * | 2003 | 35.0 |
| | GATT | House Attached Garage | 5 | 15SF | 2003 | 480.0 |
Sketch
Property Image
Land
| 1 | 1777A | | 4.0000 | 174240.00 | 0.00 | 0.00 | 0.00 | $21,850 | $0 |
| 2 | 1777A | | 13.8800 | 604612.80 | 0.00 | 0.00 | 0.00 | $75,820 | $1,555 |
| 3 | 2305-1374S | | 1.0000 | 43560.00 | 0.00 | 0.00 | 1.00 | $80,500 | $0 |
Roll Value History
| 2026 | N/A | N/A | N/A | N/A | N/A |
| 2025 | $454,956 | $178,170 | $1,555 | $558,861 | $558,861 |
| 2024 | $436,000 | $178,170 | $1,555 | $539,905 | $539,905 |
| 2023 | $417,043 | $152,733 | $1,527 | $505,720 | $505,720 |
| 2022 | $379,130 | $131,520 | $1,485 | $456,615 | $456,615 |
Deed and Sales History
| 1 | 07/27/2015 | SWD | Statutory Warranty Deed | DENNIS L KELLY | KURT D MUNDEE | | | $307,000.00 | 123643 | |
| 2 | 06/25/2003 | QCD | Quit Claim Deed | KELLY, DENNIS L | KELLY, DENNIS L/LINDA S | 0 | 0 | $0.00 | 97688 | 0 |
| 3 | 06/15/1998 | SWD | Statutory Warranty Deed | HATFIELD, DANIEL D | KELLY, DENNIS LEE/CAROL LYNN | 0 | 0 | $70,000.00 | 84700 | 0 |
| 4 | 06/12/1998 | QCD | Quit Claim Deed | CONTES, CATHERN J | HATFIELD, DANIEL D | 0 | 0 | $0.00 | 84699 | 0 |
| 5 | 04/14/1995 | SWD | Statutory Warranty Deed | MCDONALD, DAVID/NEASE, LI | HATFIELD, D D/CONTES, C J | 0 | 0 | $130,000.00 | 76789 | 0 |
|   | |
Payout Agreement
| No payout information available.. |