Property
Account |
| Property ID: | 17335 | Abbreviated Legal Description: | S18 T27 R1W TAX 62 SUBJ TO EASE |
| Parcel # / Geo ID: | 701182002 | Agent Code: | |
| Type: | Real | | |
| Tax Area: | 0321 - 1-48F2E2H2C2L1 | Land Use Code | 11 |
| Open Space: | N | DFL | N |
| Historic Property: | N | Remodel Property: | N |
| Multi-Family Redevelopment: | N | | |
| Township: | 27N | Section: | 18 |
| Range: | 1W |
Location |
| Address: | 11 MCINNIS RD QUILCENE, WA 98376 | Mapsco: | 141/015 |
| Neighborhood: | S18(EXCEPT QUILCREST) G.L.1&3 S19 T27N R1W/M.L.ANDERSON S.P. | Map ID: | |
| Neighborhood CD: | 2335 |
Owner |
| Name: | BROOKE TAYLOR | Owner ID: | 28648 |
| Mailing Address: | 11 MCINNES RD QUILCENE, WA 98376-9524 | % Ownership: | 100.0000000000% |
| | | Exemptions: | |
Pay Tax Due
Select the appropriate checkbox next to the year to be paid. Multiple years may be selected.
*Convenience Fee not included
Taxes and Assessment Details
Property Tax Information as of
03/10/2026
Click on "Statement Details" to expand or collapse a tax statement.
* Please enter a valid date ** Please enter a valid date *
Statement Details |
| 2026 | 6881 | STATE - STATE LEVY (SCHOOL) | $255.67 | $255.66 | $0.00 | $0.00 | $0.00 | $511.33 |
| 2026 | 6881 | COUNTY - COUNTY LEVIES (CE, DD, VET, MH) | $102.22 | $102.21 | $0.00 | $0.00 | $0.00 | $204.43 |
| 2026 | 6881 | CONSERVE - CONSERVATION FUTURES | $3.07 | $3.06 | $0.00 | $0.00 | $0.00 | $6.13 |
| 2026 | 6881 | COROADS - COUNTY ROADS (ROADS, DIV TO CE) | $82.46 | $82.46 | $0.00 | $0.00 | $0.00 | $164.92 |
| 2026 | 6881 | PORTPT - PORT DISTRICT | $41.28 | $41.28 | $0.00 | $0.00 | $0.00 | $82.56 |
| 2026 | 6881 | PUD1 - PUD #1 | $6.65 | $6.65 | $0.00 | $0.00 | $0.00 | $13.30 |
| 2026 | 6881 | LIB1 - LIBRARY DIST #1 | $31.91 | $31.90 | $0.00 | $0.00 | $0.00 | $63.81 |
| 2026 | 6881 | HD2 - HOSP DIST #2 | $5.96 | $5.96 | $0.00 | $0.00 | $0.00 | $11.92 |
| 2026 | 6881 | SD48 - SCHOOL DIST #48 | $157.03 | $157.02 | $0.00 | $0.00 | $0.00 | $314.05 |
| 2026 | 6881 | FD2 - FIRE DISTRICT #2 | $83.96 | $83.96 | $0.00 | $0.00 | $0.00 | $167.92 |
| 2026 | 6881 | EMS2 - FIRE DIST #2 EMS | $47.28 | $47.28 | $0.00 | $0.00 | $0.00 | $94.56 |
| 2026 | 6881 | CEM2 - CEMETERY DIST #2 | $2.69 | $2.68 | $0.00 | $0.00 | $0.00 | $5.37 |
| 2026 | 6881 | FP - DNR Forest Fire Protection Assmt | $8.50 | $8.50 | $0.00 | $0.00 | $0.00 | $17.00 |
| 2026 | 6881 | FPLCA - DNR Landowner Contingency Assmt | $3.00 | $3.00 | $0.00 | $0.00 | $0.00 | $6.00 |
| 2026 | 6881 | JCCD - JC Conservation District | $2.75 | $2.75 | $0.00 | $0.00 | $0.00 | $5.50 |
| 2026 | 6881 | NWA - Noxious Weed Assessment | $3.88 | $3.87 | $0.00 | $0.00 | $0.00 | $7.75 |
| 2026 | 6881 | OSS - On Site Septic | $23.10 | $23.10 | $0.00 | $0.00 | $0.00 | $46.20 |
| 2026 | 6881 | WAT - Clean Water District | $13.00 | $13.00 | $0.00 | $0.00 | $0.00 | $26.00 |
| 2026 | 6881 | FP ADMIN - FP ADMIN | $0.50 | $0.00 | $0.00 | $0.00 | $0.00 | $0.50 |
| 2026 | 6881 | TOTAL: | $874.91 | $874.34 | $0.00 | $0.00 | $0.00 | $1749.25 |
|
| 2026 | 6881 | $874.91 | $874.34 | $0.00 | $0.00 | $0.00 | $1749.25 |
Statement Details |
| 2025 | 6902 | STATE - STATE LEVY (SCHOOL) | $260.81 | $260.79 | $0.00 | $0.00 | $521.60 | $0.00 |
| 2025 | 6902 | COUNTY - COUNTY LEVIES (CE, DD, VET, MH) | $102.56 | $102.56 | $0.00 | $0.00 | $205.12 | $0.00 |
| 2025 | 6902 | CONSERVE - CONSERVATION FUTURES | $3.08 | $3.07 | $0.00 | $0.00 | $6.15 | $0.00 |
| 2025 | 6902 | COROADS - COUNTY ROADS (ROADS, DIV TO CE) | $82.17 | $82.16 | $0.00 | $0.00 | $164.33 | $0.00 |
| 2025 | 6902 | PORTPT - PORT DISTRICT | $41.86 | $41.84 | $0.00 | $0.00 | $83.70 | $0.00 |
| 2025 | 6902 | PUD1 - PUD #1 | $6.71 | $6.71 | $0.00 | $0.00 | $13.42 | $0.00 |
| 2025 | 6902 | LIB1 - LIBRARY DIST #1 | $31.79 | $31.79 | $0.00 | $0.00 | $63.58 | $0.00 |
| 2025 | 6902 | HD2 - HOSP DIST #2 | $5.99 | $5.98 | $0.00 | $0.00 | $11.97 | $0.00 |
| 2025 | 6902 | SD48 - SCHOOL DIST #48 | $153.58 | $153.57 | $0.00 | $0.00 | $307.15 | $0.00 |
| 2025 | 6902 | FD2 - FIRE DISTRICT #2 | $84.80 | $84.79 | $0.00 | $0.00 | $169.59 | $0.00 |
| 2025 | 6902 | EMS2 - FIRE DIST #2 EMS | $47.75 | $47.74 | $0.00 | $0.00 | $95.49 | $0.00 |
| 2025 | 6902 | CEM2 - CEMETERY DIST #2 | $2.71 | $2.70 | $0.00 | $0.00 | $5.41 | $0.00 |
| 2025 | 6902 | FP - DNR Forest Fire Protection Assmt | $8.50 | $8.50 | $0.00 | $0.00 | $17.00 | $0.00 |
| 2025 | 6902 | FPLCA - DNR Landowner Contingency Assmt | $3.00 | $3.00 | $0.00 | $0.00 | $6.00 | $0.00 |
| 2025 | 6902 | JCCD - JC Conservation District | $2.75 | $2.75 | $0.00 | $0.00 | $5.50 | $0.00 |
| 2025 | 6902 | NWA - Noxious Weed Assessment | $2.75 | $2.75 | $0.00 | $0.00 | $5.50 | $0.00 |
| 2025 | 6902 | OSS - On Site Septic | $21.50 | $21.50 | $0.00 | $0.00 | $43.00 | $0.00 |
| 2025 | 6902 | WAT - Clean Water District | $13.00 | $13.00 | $0.00 | $0.00 | $26.00 | $0.00 |
| 2025 | 6902 | FP ADMIN - FP ADMIN | $0.50 | $0.00 | $0.00 | $0.00 | $0.50 | $0.00 |
| 2025 | 6902 | TOTAL: | $875.81 | $875.20 | $0.00 | $0.00 | $1751.01 | $0.00 |
|
| 2025 | 6902 | $875.81 | $875.20 | $0.00 | $0.00 | $1751.01 | $0.00 |
Statement Details |
| 2024 | 6924 | STATE - STATE LEVY (SCHOOL) | $226.96 | $226.96 | $0.00 | $0.00 | $453.92 | $0.00 |
| 2024 | 6924 | COUNTY - COUNTY LEVIES (CE, DD, VET, MH) | $97.13 | $97.11 | $0.00 | $0.00 | $194.24 | $0.00 |
| 2024 | 6924 | CONSERVE - CONSERVATION FUTURES | $2.91 | $2.91 | $0.00 | $0.00 | $5.82 | $0.00 |
| 2024 | 6924 | COROADS - COUNTY ROADS (ROADS, DIV TO CE) | $78.15 | $78.15 | $0.00 | $0.00 | $156.30 | $0.00 |
| 2024 | 6924 | PORTPT - PORT DISTRICT | $40.11 | $40.11 | $0.00 | $0.00 | $80.22 | $0.00 |
| 2024 | 6924 | PUD1 - PUD #1 | $6.38 | $6.38 | $0.00 | $0.00 | $12.76 | $0.00 |
| 2024 | 6924 | LIB1 - LIBRARY DIST #1 | $30.24 | $30.23 | $0.00 | $0.00 | $60.47 | $0.00 |
| 2024 | 6924 | HD2 - HOSP DIST #2 | $5.67 | $5.66 | $0.00 | $0.00 | $11.33 | $0.00 |
| 2024 | 6924 | SD48 - SCHOOL DIST #48 | $101.65 | $101.65 | $0.00 | $0.00 | $203.30 | $0.00 |
| 2024 | 6924 | FD2 - FIRE DISTRICT #2 | $80.74 | $80.74 | $0.00 | $0.00 | $161.48 | $0.00 |
| 2024 | 6924 | EMS2 - FIRE DIST #2 EMS | $45.45 | $45.45 | $0.00 | $0.00 | $90.90 | $0.00 |
| 2024 | 6924 | CEM2 - CEMETERY DIST #2 | $2.59 | $2.58 | $0.00 | $0.00 | $5.17 | $0.00 |
| 2024 | 6924 | FP - DNR Forest Fire Protection Assmt | $8.50 | $8.50 | $0.00 | $0.00 | $17.00 | $0.00 |
| 2024 | 6924 | FPLCA - DNR Landowner Contingency Assmt | $3.00 | $3.00 | $0.00 | $0.00 | $6.00 | $0.00 |
| 2024 | 6924 | JCCD - JC Conservation District | $2.75 | $2.75 | $0.00 | $0.00 | $5.50 | $0.00 |
| 2024 | 6924 | NWA - Noxious Weed Assessment | $2.75 | $2.75 | $0.00 | $0.00 | $5.50 | $0.00 |
| 2024 | 6924 | OSS - On Site Septic | $21.00 | $21.00 | $0.00 | $0.00 | $42.00 | $0.00 |
| 2024 | 6924 | WAT - Clean Water District | $12.50 | $12.50 | $0.00 | $0.00 | $25.00 | $0.00 |
| 2024 | 6924 | FP ADMIN - FP ADMIN | $0.50 | $0.00 | $0.00 | $0.00 | $0.50 | $0.00 |
| 2024 | 6924 | TOTAL: | $768.98 | $768.43 | $0.00 | $0.00 | $1537.41 | $0.00 |
|
| 2024 | 6924 | $768.98 | $768.43 | $0.00 | $0.00 | $1537.41 | $0.00 |
Statement Details |
| 2023 | 6938 | STATE - STATE LEVY (SCHOOL) | $205.13 | $205.12 | $0.00 | $0.00 | $410.25 | $0.00 |
| 2023 | 6938 | COUNTY - COUNTY LEVIES (CE, DD, VET, MH) | $89.52 | $89.51 | $0.00 | $0.00 | $179.03 | $0.00 |
| 2023 | 6938 | CONSERVE - CONSERVATION FUTURES | $2.69 | $2.68 | $0.00 | $0.00 | $5.37 | $0.00 |
| 2023 | 6938 | COROADS - COUNTY ROADS (ROADS, DIV TO CE) | $72.42 | $72.42 | $0.00 | $0.00 | $144.84 | $0.00 |
| 2023 | 6938 | PORTPT - PORT DISTRICT | $37.71 | $37.70 | $0.00 | $0.00 | $75.41 | $0.00 |
| 2023 | 6938 | PUD1 - PUD #1 | $5.94 | $5.93 | $0.00 | $0.00 | $11.87 | $0.00 |
| 2023 | 6938 | LIB1 - LIBRARY DIST #1 | $28.02 | $28.02 | $0.00 | $0.00 | $56.04 | $0.00 |
| 2023 | 6938 | HD2 - HOSP DIST #2 | $5.23 | $5.21 | $0.00 | $0.00 | $10.44 | $0.00 |
| 2023 | 6938 | SD48 - SCHOOL DIST #48 | $99.06 | $99.05 | $0.00 | $0.00 | $198.11 | $0.00 |
| 2023 | 6938 | FD2 - FIRE DISTRICT #2 | $77.70 | $77.69 | $0.00 | $0.00 | $155.39 | $0.00 |
| 2023 | 6938 | EMS2 - FIRE DIST #2 EMS | $43.57 | $43.56 | $0.00 | $0.00 | $87.13 | $0.00 |
| 2023 | 6938 | CEM2 - CEMETERY DIST #2 | $2.48 | $2.47 | $0.00 | $0.00 | $4.95 | $0.00 |
| 2023 | 6938 | FP - DNR Forest Fire Protection Assmt | $8.50 | $8.50 | $0.00 | $0.00 | $17.00 | $0.00 |
| 2023 | 6938 | FPLCA - DNR Landowner Contingency Assmt | $3.00 | $3.00 | $0.00 | $0.00 | $6.00 | $0.00 |
| 2023 | 6938 | JCCD - JC Conservation District | $2.75 | $2.75 | $0.00 | $0.00 | $5.50 | $0.00 |
| 2023 | 6938 | NWA - Noxious Weed Assessment | $2.75 | $2.75 | $0.00 | $0.00 | $5.50 | $0.00 |
| 2023 | 6938 | OSS - On Site Septic | $20.50 | $20.50 | $0.00 | $0.00 | $41.00 | $0.00 |
| 2023 | 6938 | WAT - Clean Water District | $12.00 | $12.00 | $0.00 | $0.00 | $24.00 | $0.00 |
| 2023 | 6938 | FP ADMIN - FP ADMIN | $0.50 | $0.00 | $0.00 | $0.00 | $0.50 | $0.00 |
| 2023 | 6938 | TOTAL: | $719.47 | $718.86 | $0.00 | $0.00 | $1438.33 | $0.00 |
|
| 2023 | 6938 | $719.47 | $718.86 | $0.00 | $0.00 | $1438.33 | $0.00 |
Values
| (+) Improvement Homesite Value: | + | $0 | |
| (+) Improvement Non-Homesite Value: | + | $117,529 | |
| (+) Land Homesite Value: | + | $0 | |
| (+) Land Non-Homesite Value: | + | $104,880 | |
| (+) Curr Use (HS): | + | $0 | $0 |
| (+) Curr Use (NHS): | + | $0 | $0 |
| | | -------------------------- | |
| (=) Market Value: | = | $222,409 | |
| (–) Productivity Loss: | – | $0 | |
| | | -------------------------- | |
| (=) Subtotal: | = | $222,409 | |
| (+) Senior Appraised Value: | + | $0 | |
| (+) Non-Senior Appraised Value: | + | $222,409 | |
| | | -------------------------- | |
| (=) Total Appraised Value: | = | $222,409 | |
| (–) Senior Exemption Loss: | – | $0 | |
| (–) Exemption Loss: | – | $0 | |
| | | -------------------------- | |
| (=) Taxable Value: | = | $222,409 | |
Taxing Jurisdiction
| Owner: | BROOKE TAYLOR | | |
| % Ownership: | 100.0000000000% | | |
| Total Value: | $222,409 | | |
| Tax Area: | 0321 - 1-48F2E2H2C2L1 |
| CE | COUNTY CURRENT EXPENSE | 0.9034619479 | $222,409 | $222,409 | $200.94 | | |
| CNTYDD | DEVELOPMENTAL DISABILITIES | 0.0052121823 | $222,409 | $222,409 | $1.16 | | |
| CNTYVET | VETERANS RELIEF | 0.0052777810 | $222,409 | $222,409 | $1.17 | | |
| MENTAL | MENTAL HEALTH | 0.0052121823 | $222,409 | $222,409 | $1.16 | | |
| ROADS | COUNTY ROADS | 0.7415066410 | $222,409 | $222,409 | $164.92 | | |
| ROADSCU | COUNTY ROADS TO CUR EXP | 0.0000000000 | $222,409 | $222,409 | $0.00 | | |
| HOSP2CASH | HOSP DIST #2 GENERAL | 0.0536075306 | $222,409 | $222,409 | $11.92 | | |
| SCH48MO | SCHOOL DIST #48 EP & O | 1.4120478917 | $222,409 | $222,409 | $314.05 | | |
| CEM2 | CEMETERY DIST #2 GENERAL | 0.0241266154 | $222,409 | $222,409 | $5.37 | | |
| CONSERVE | CONSERVATION FUTURES | 0.0275621078 | $222,409 | $222,409 | $6.13 | | |
| FD2 | FIRE DIST #2 GENERAL | 0.7549976873 | $222,409 | $222,409 | $167.92 | | |
| LIB1 | LIBRARY DIST #1 GENERAL | 0.2868827388 | $222,409 | $222,409 | $63.81 | | |
| PORTPT | PORT OF PT GENERAL | 0.1134941229 | $222,409 | $222,409 | $25.24 | | |
| PORTPTIDD | PORT OF PT IDD 2019 | 0.2577346692 | $222,409 | $222,409 | $57.32 | | |
| PUD1 | PUD #1 GENERAL | 0.0597888892 | $222,409 | $222,409 | $13.30 | | |
| STATE | STATE SCHOOL PART 1 | 1.4940692947 | $222,409 | $222,409 | $332.29 | | |
| STATE2 | STATE SCHOOL PART 2 | 0.8050170049 | $222,409 | $222,409 | $179.04 | | |
| EMS2 | FIRE DIST #2 EMS | 0.4251727858 | $222,409 | $222,409 | $94.56 | | |
| | Total Tax Rate: | 7.3751720728 | | | | | |
| | | | | Taxes w/Current Exemptions: | $1,640.30 | | |
| | | | | Taxes w/o Exemptions: | $1,640.30 | | |
Improvement / Building
| Improvement #1: | Residential Bldg | State Code: | 11 | 1220.0 sqft | Value: | $117,529 |
| Bathrooms (#): | 1 (FULL) | Bedrooms (#): | 1 | | Exterior Wall: | PL/T1 | Fireplace: | WD ST-GOOD | | Floor Construction: | FRAME | Foundation: | CONPR | | Heating/Cooling: | ELBB | Inside Verify: | NO | | Roof Cover: | METAL |   |   |
|
| | Type | Description | Class CD | Sub Class CD | Year Built | Area |
| | MA | Main Area | 2+ | 1S | 1977 | 1220.0 |
| | HDECK | House Deck | 3 | * | 1977 | 64.0 |
| | ADDN | Addition (Table Not Dep) | 2 | 1S | 1977 | 576.0 |
Sketch
Property Image
Land
| 1 | 1575A | | 3.9000 | 169884.00 | 0.00 | 0.00 | 0.00 | $35,880 | $0 |
| 2 | 2335-1375S | | 1.0000 | 43560.00 | 0.00 | 0.00 | 1.00 | $69,000 | $0 |
Roll Value History
| 2026 | N/A | N/A | N/A | N/A | N/A |
| 2025 | $117,529 | $104,880 | $0 | $222,409 | $222,409 |
| 2024 | $112,632 | $104,880 | $0 | $217,512 | $217,512 |
| 2023 | $107,735 | $88,463 | $0 | $196,198 | $196,198 |
| 2022 | $97,941 | $76,325 | $0 | $174,266 | $174,266 |
Deed and Sales History
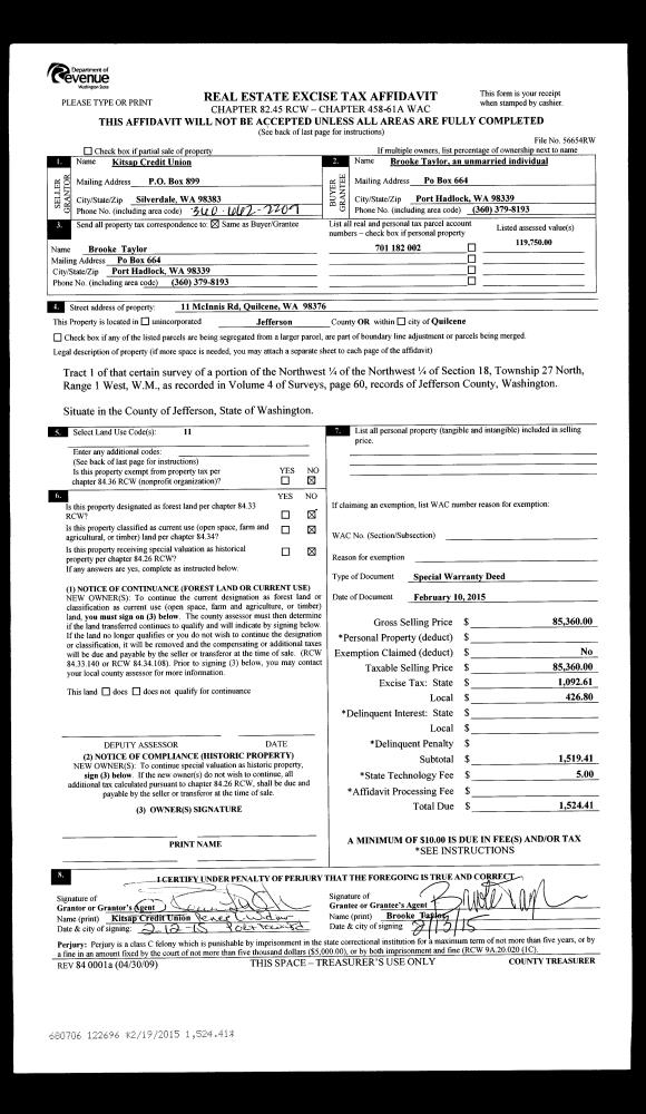
| 1 | 02/10/2015 | SPWD | Special Warranty Deed | KITSAP CREDIT UNION | BROOKE TAYLOR | | | $85,360.00 | 122696 | |
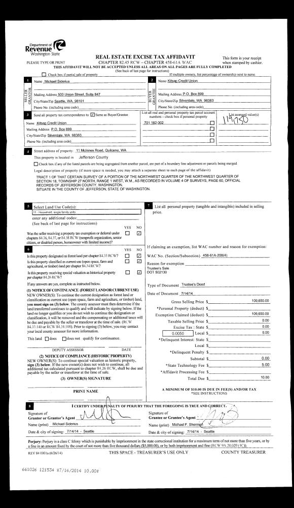
| 2 | 07/14/2014 | TRED | Trustee Deed | MARK A KNUTZEN | KITSAP CREDIT UNION | | | $0.00 | 121534 | |
| 3 | 08/16/2005 | SWD | Statutory Warranty Deed | BEST, JEANETTE | KNUTZEN, MARK | 0 | 0 | $91,700.00 | 104528 | 0 |
| 4 | 08/08/2005 | QCD | Quit Claim Deed | WILSON-KNUTZEN, KAREN | KNUTZEN, MARK | 0 | 0 | $0.00 | 104529 | 0 |
Payout Agreement
| No payout information available.. |