Property
Account |
| Property ID: | 17348 | Abbreviated Legal Description: | S18 T27 R1W GOV LOT 1(LY S OF LIT QUIL RIV) |
| Parcel # / Geo ID: | 701183001 | Agent Code: | |
| Type: | Real | | |
| Tax Area: | 0324 - 1-48F2E2H2C2L1Z3 | Land Use Code | 91 |
| Open Space: | N | DFL | N |
| Historic Property: | N | Remodel Property: | N |
| Multi-Family Redevelopment: | N | | |
| Township: | 27N | Section: | 18 |
| Range: | 1W |
Location |
| Address: | | Mapsco: | 140/001 |
| Neighborhood: | S18(EXCEPT QUILCREST) G.L.1&3 S19 T27N R1W/M.L.ANDERSON S.P. | Map ID: | |
| Neighborhood CD: | 2335 |
Owner |
| Name: | HOOD CANAL SALMON ENHANCEMENT GROUP | Owner ID: | 18422 |
| Mailing Address: | PO BOX 2169 BELFAIR, WA 98528-2169 | % Ownership: | 100.0000000000% |
| | | Exemptions: | |
Pay Tax Due
Select the appropriate checkbox next to the year to be paid. Multiple years may be selected.
*Convenience Fee not included
Taxes and Assessment Details
Property Tax Information as of
03/12/2026
Click on "Statement Details" to expand or collapse a tax statement.
* Please enter a valid date ** Please enter a valid date *
Statement Details |
| 2026 | 6894 | STATE - STATE LEVY (SCHOOL) | $262.42 | $262.41 | $0.00 | $0.00 | $0.00 | $524.83 |
| 2026 | 6894 | COUNTY - COUNTY LEVIES (CE, DD, VET, MH) | $104.92 | $104.90 | $0.00 | $0.00 | $0.00 | $209.82 |
| 2026 | 6894 | CONSERVE - CONSERVATION FUTURES | $3.15 | $3.14 | $0.00 | $0.00 | $0.00 | $6.29 |
| 2026 | 6894 | COROADS - COUNTY ROADS (ROADS, DIV TO CE) | $84.64 | $84.63 | $0.00 | $0.00 | $0.00 | $169.27 |
| 2026 | 6894 | PORTPT - PORT DISTRICT | $42.38 | $42.36 | $0.00 | $0.00 | $0.00 | $84.74 |
| 2026 | 6894 | PUD1 - PUD #1 | $6.83 | $6.82 | $0.00 | $0.00 | $0.00 | $13.65 |
| 2026 | 6894 | LIB1 - LIBRARY DIST #1 | $32.75 | $32.74 | $0.00 | $0.00 | $0.00 | $65.49 |
| 2026 | 6894 | HD2 - HOSP DIST #2 | $6.12 | $6.12 | $0.00 | $0.00 | $0.00 | $12.24 |
| 2026 | 6894 | SD48 - SCHOOL DIST #48 | $161.17 | $161.17 | $0.00 | $0.00 | $0.00 | $322.34 |
| 2026 | 6894 | FD2 - FIRE DISTRICT #2 | $86.18 | $86.17 | $0.00 | $0.00 | $0.00 | $172.35 |
| 2026 | 6894 | EMS2 - FIRE DIST #2 EMS | $48.53 | $48.53 | $0.00 | $0.00 | $0.00 | $97.06 |
| 2026 | 6894 | CEM2 - CEMETERY DIST #2 | $2.76 | $2.75 | $0.00 | $0.00 | $0.00 | $5.51 |
| 2026 | 6894 | JCCD - JC Conservation District | $3.17 | $3.17 | $0.00 | $0.00 | $0.00 | $6.34 |
| 2026 | 6894 | NWA - Noxious Weed Assessment | $6.58 | $6.57 | $0.00 | $0.00 | $0.00 | $13.15 |
| 2026 | 6894 | WAT - Clean Water District | $13.00 | $13.00 | $0.00 | $0.00 | $0.00 | $26.00 |
| 2026 | 6894 | TOTAL: | $864.60 | $864.48 | $0.00 | $0.00 | $0.00 | $1729.08 |
|
| 2026 | 6894 | $864.60 | $864.48 | $0.00 | $0.00 | $0.00 | $1729.08 |
Statement Details |
| 2025 | 6915 | STATE - STATE LEVY (SCHOOL) | $273.71 | $273.70 | $0.00 | $0.00 | $547.41 | $0.00 |
| 2025 | 6915 | COUNTY - COUNTY LEVIES (CE, DD, VET, MH) | $107.64 | $107.63 | $0.00 | $0.00 | $215.27 | $0.00 |
| 2025 | 6915 | CONSERVE - CONSERVATION FUTURES | $3.23 | $3.22 | $0.00 | $0.00 | $6.45 | $0.00 |
| 2025 | 6915 | COROADS - COUNTY ROADS (ROADS, DIV TO CE) | $86.24 | $86.22 | $0.00 | $0.00 | $172.46 | $0.00 |
| 2025 | 6915 | PORTPT - PORT DISTRICT | $43.92 | $43.92 | $0.00 | $0.00 | $87.84 | $0.00 |
| 2025 | 6915 | PUD1 - PUD #1 | $7.05 | $7.04 | $0.00 | $0.00 | $14.09 | $0.00 |
| 2025 | 6915 | LIB1 - LIBRARY DIST #1 | $33.36 | $33.36 | $0.00 | $0.00 | $66.72 | $0.00 |
| 2025 | 6915 | HD2 - HOSP DIST #2 | $6.28 | $6.28 | $0.00 | $0.00 | $12.56 | $0.00 |
| 2025 | 6915 | SD48 - SCHOOL DIST #48 | $161.18 | $161.17 | $0.00 | $0.00 | $322.35 | $0.00 |
| 2025 | 6915 | FD2 - FIRE DISTRICT #2 | $88.99 | $88.99 | $0.00 | $0.00 | $177.98 | $0.00 |
| 2025 | 6915 | EMS2 - FIRE DIST #2 EMS | $50.11 | $50.10 | $0.00 | $0.00 | $100.21 | $0.00 |
| 2025 | 6915 | CEM2 - CEMETERY DIST #2 | $2.84 | $2.84 | $0.00 | $0.00 | $5.68 | $0.00 |
| 2025 | 6915 | JCCD - JC Conservation District | $3.17 | $3.17 | $0.00 | $0.00 | $6.34 | $0.00 |
| 2025 | 6915 | NWA - Noxious Weed Assessment | $4.55 | $4.55 | $0.00 | $0.00 | $9.10 | $0.00 |
| 2025 | 6915 | WAT - Clean Water District | $13.00 | $13.00 | $0.00 | $0.00 | $26.00 | $0.00 |
| 2025 | 6915 | TOTAL: | $885.27 | $885.19 | $0.00 | $0.00 | $1770.46 | $0.00 |
|
| 2025 | 6915 | $885.27 | $885.19 | $0.00 | $0.00 | $1770.46 | $0.00 |
Statement Details |
| 2024 | 6937 | STATE - STATE LEVY (SCHOOL) | $241.11 | $241.10 | $0.00 | $0.00 | $482.21 | $0.00 |
| 2024 | 6937 | COUNTY - COUNTY LEVIES (CE, DD, VET, MH) | $103.19 | $103.16 | $0.00 | $0.00 | $206.35 | $0.00 |
| 2024 | 6937 | CONSERVE - CONSERVATION FUTURES | $3.10 | $3.09 | $0.00 | $0.00 | $6.19 | $0.00 |
| 2024 | 6937 | COROADS - COUNTY ROADS (ROADS, DIV TO CE) | $83.03 | $83.01 | $0.00 | $0.00 | $166.04 | $0.00 |
| 2024 | 6937 | PORTPT - PORT DISTRICT | $42.62 | $42.61 | $0.00 | $0.00 | $85.23 | $0.00 |
| 2024 | 6937 | PUD1 - PUD #1 | $6.78 | $6.77 | $0.00 | $0.00 | $13.55 | $0.00 |
| 2024 | 6937 | LIB1 - LIBRARY DIST #1 | $32.12 | $32.12 | $0.00 | $0.00 | $64.24 | $0.00 |
| 2024 | 6937 | HD2 - HOSP DIST #2 | $6.02 | $6.02 | $0.00 | $0.00 | $12.04 | $0.00 |
| 2024 | 6937 | SD48 - SCHOOL DIST #48 | $107.99 | $107.98 | $0.00 | $0.00 | $215.97 | $0.00 |
| 2024 | 6937 | FD2 - FIRE DISTRICT #2 | $85.77 | $85.77 | $0.00 | $0.00 | $171.54 | $0.00 |
| 2024 | 6937 | EMS2 - FIRE DIST #2 EMS | $48.29 | $48.28 | $0.00 | $0.00 | $96.57 | $0.00 |
| 2024 | 6937 | CEM2 - CEMETERY DIST #2 | $2.75 | $2.74 | $0.00 | $0.00 | $5.49 | $0.00 |
| 2024 | 6937 | JCCD - JC Conservation District | $3.17 | $3.17 | $0.00 | $0.00 | $6.34 | $0.00 |
| 2024 | 6937 | NWA - Noxious Weed Assessment | $4.55 | $4.55 | $0.00 | $0.00 | $9.10 | $0.00 |
| 2024 | 6937 | WAT - Clean Water District | $12.50 | $12.50 | $0.00 | $0.00 | $25.00 | $0.00 |
| 2024 | 6937 | TOTAL: | $782.99 | $782.87 | $0.00 | $0.00 | $1565.86 | $0.00 |
|
| 2024 | 6937 | $782.99 | $782.87 | $0.00 | $0.00 | $1565.86 | $0.00 |
Statement Details |
| 2023 | 6951 | STATE - STATE LEVY (SCHOOL) | $199.75 | $0.00 | $0.00 | $0.00 | $199.75 | $0.00 |
| 2023 | 6951 | COUNTY - COUNTY LEVIES (CE, DD, VET, MH) | $87.19 | $0.00 | $0.00 | $0.00 | $87.19 | $0.00 |
| 2023 | 6951 | CONSERVE - CONSERVATION FUTURES | $2.62 | $0.00 | $0.00 | $0.00 | $2.62 | $0.00 |
| 2023 | 6951 | COROADS - COUNTY ROADS (ROADS, DIV TO CE) | $70.53 | $0.00 | $0.00 | $0.00 | $70.53 | $0.00 |
| 2023 | 6951 | PORTPT - PORT DISTRICT | $36.73 | $0.00 | $0.00 | $0.00 | $36.73 | $0.00 |
| 2023 | 6951 | PUD1 - PUD #1 | $5.78 | $0.00 | $0.00 | $0.00 | $5.78 | $0.00 |
| 2023 | 6951 | LIB1 - LIBRARY DIST #1 | $27.29 | $0.00 | $0.00 | $0.00 | $27.29 | $0.00 |
| 2023 | 6951 | HD2 - HOSP DIST #2 | $5.09 | $0.00 | $0.00 | $0.00 | $5.09 | $0.00 |
| 2023 | 6951 | SD48 - SCHOOL DIST #48 | $96.48 | $0.00 | $0.00 | $0.00 | $96.48 | $0.00 |
| 2023 | 6951 | FD2 - FIRE DISTRICT #2 | $75.67 | $0.00 | $0.00 | $0.00 | $75.67 | $0.00 |
| 2023 | 6951 | EMS2 - FIRE DIST #2 EMS | $42.43 | $0.00 | $0.00 | $0.00 | $42.43 | $0.00 |
| 2023 | 6951 | CEM2 - CEMETERY DIST #2 | $2.41 | $0.00 | $0.00 | $0.00 | $2.41 | $0.00 |
| 2023 | 6951 | JCCD - JC Conservation District | $6.69 | $0.00 | $0.00 | $0.00 | $6.69 | $0.00 |
| 2023 | 6951 | NWA - Noxious Weed Assessment | $9.10 | $0.00 | $0.00 | $0.00 | $9.10 | $0.00 |
| 2023 | 6951 | WAT - Clean Water District | $24.00 | $0.00 | $0.00 | $0.00 | $24.00 | $0.00 |
| 2023 | 6951 | TOTAL: | $691.76 | $0.00 | $0.00 | $0.00 | $691.76 | $0.00 |
|
| 2023 | 6951 | $691.76 | $0.00 | $0.00 | $0.00 | $691.76 | $0.00 |
Statement Details |
| 2023 | 34621 | STATE - STATE LEVY (SCHOOL) | $230.32 | $0.00 | $0.00 | $0.00 | $230.32 | $0.00 |
| 2023 | 34621 | COUNTY - COUNTY LEVIES (CE, DD, VET, MH) | $100.50 | $0.00 | $0.00 | $0.00 | $100.50 | $0.00 |
| 2023 | 34621 | CONSERVE - CONSERVATION FUTURES | $3.01 | $0.00 | $0.00 | $0.00 | $3.01 | $0.00 |
| 2023 | 34621 | COROADS - COUNTY ROADS (ROADS, DIV TO CE) | $81.32 | $0.00 | $0.00 | $0.00 | $81.32 | $0.00 |
| 2023 | 34621 | PORTPT - PORT DISTRICT | $42.34 | $0.00 | $0.00 | $0.00 | $42.34 | $0.00 |
| 2023 | 34621 | PUD1 - PUD #1 | $6.66 | $0.00 | $0.00 | $0.00 | $6.66 | $0.00 |
| 2023 | 34621 | LIB1 - LIBRARY DIST #1 | $31.46 | $0.00 | $0.00 | $0.00 | $31.46 | $0.00 |
| 2023 | 34621 | HD2 - HOSP DIST #2 | $5.86 | $0.00 | $0.00 | $0.00 | $5.86 | $0.00 |
| 2023 | 34621 | SD48 - SCHOOL DIST #48 | $111.22 | $0.00 | $0.00 | $0.00 | $111.22 | $0.00 |
| 2023 | 34621 | FD2 - FIRE DISTRICT #2 | $87.24 | $0.00 | $0.00 | $0.00 | $87.24 | $0.00 |
| 2023 | 34621 | EMS2 - FIRE DIST #2 EMS | $48.92 | $0.00 | $0.00 | $0.00 | $48.92 | $0.00 |
| 2023 | 34621 | CEM2 - CEMETERY DIST #2 | $2.78 | $0.00 | $0.00 | $0.00 | $2.78 | $0.00 |
| 2023 | 34621 | RbkTaxInt - ROLLBACK TAX INTEREST | $22.55 | $0.00 | $0.00 | $0.00 | $22.55 | $0.00 |
| 2023 | 34621 | TOTAL: | $774.18 | $0.00 | $0.00 | $0.00 | $774.18 | $0.00 |
|
| 2023 | 34621 | $774.18 | $0.00 | $0.00 | $0.00 | $774.18 | $0.00 |
Values
| (+) Improvement Homesite Value: | + | $0 | |
| (+) Improvement Non-Homesite Value: | + | $0 | |
| (+) Land Homesite Value: | + | $0 | |
| (+) Land Non-Homesite Value: | + | $228,275 | |
| (+) Curr Use (HS): | + | $0 | $0 |
| (+) Curr Use (NHS): | + | $0 | $0 |
| | | -------------------------- | |
| (=) Market Value: | = | $228,275 | |
| (–) Productivity Loss: | – | $0 | |
| | | -------------------------- | |
| (=) Subtotal: | = | $228,275 | |
| (+) Senior Appraised Value: | + | $0 | |
| (+) Non-Senior Appraised Value: | + | $228,275 | |
| | | -------------------------- | |
| (=) Total Appraised Value: | = | $228,275 | |
| (–) Senior Exemption Loss: | – | $0 | |
| (–) Exemption Loss: | – | $0 | |
| | | -------------------------- | |
| (=) Taxable Value: | = | $228,275 | |
Taxing Jurisdiction
| Owner: | HOOD CANAL SALMON ENHANCEMENT GROUP | | |
| % Ownership: | 100.0000000000% | | |
| Total Value: | N/A | | |
| Tax Area: | 0324 - 1-48F2E2H2C2L1Z3 |
| CE | COUNTY CURRENT EXPENSE | N/A | N/A | N/A | N/A | | |
| CNTYDD | DEVELOPMENTAL DISABILITIES | N/A | N/A | N/A | N/A | | |
| CNTYVET | VETERANS RELIEF | N/A | N/A | N/A | N/A | | |
| MENTAL | MENTAL HEALTH | N/A | N/A | N/A | N/A | | |
| ROADS | COUNTY ROADS | N/A | N/A | N/A | N/A | | |
| HOSP2CASH | HOSP DIST #2 GENERAL | N/A | N/A | N/A | N/A | | |
| SCH48MO | SCHOOL DIST #48 EP & O | N/A | N/A | N/A | N/A | | |
| CEM2 | CEMETERY DIST #2 GENERAL | N/A | N/A | N/A | N/A | | |
| CONSERVE | CONSERVATION FUTURES | N/A | N/A | N/A | N/A | | |
| FD2 | FIRE DIST #2 GENERAL | N/A | N/A | N/A | N/A | | |
| LIB1 | LIBRARY DIST #1 GENERAL | N/A | N/A | N/A | N/A | | |
| PORTPT | PORT OF PT GENERAL | N/A | N/A | N/A | N/A | | |
| PORTPTIDD | PORT OF PT IDD 2019 | N/A | N/A | N/A | N/A | | |
| PUD1 | PUD #1 GENERAL | N/A | N/A | N/A | N/A | | |
| STATE | STATE SCHOOL PART 1 | N/A | N/A | N/A | N/A | | |
| STATE2 | STATE SCHOOL PART 2 | N/A | N/A | N/A | N/A | | |
| EMS2 | FIRE DIST #2 EMS | N/A | N/A | N/A | N/A | | |
| | Total Tax Rate: | N/A | | | | | |
| | | | | Taxes w/Current Exemptions: | N/A | | |
| | | | | Taxes w/o Exemptions: | N/A | | |
Improvement / Building
Sketch
| No sketches available for this property. |
Property Image
Land
| 1 | 2335-1655A | | 15.8000 | 688248.00 | 0.00 | 0.00 | 0.00 | $136,275 | $0 |
| 2 | 2335-1345S | | 1.0000 | 43560.00 | 0.00 | 0.00 | 1.00 | $92,000 | $0 |
Roll Value History
| 2026 | N/A | N/A | N/A | N/A | N/A |
| 2025 | $0 | $228,275 | $0 | $228,275 | $228,275 |
| 2024 | $0 | $228,275 | $0 | $228,275 | $228,275 |
| 2023 | $0 | $208,425 | $0 | $208,425 | $208,425 |
| 2022 | $0 | $182,700 | $5,040 | $5,040 | $5,040 |
Deed and Sales History
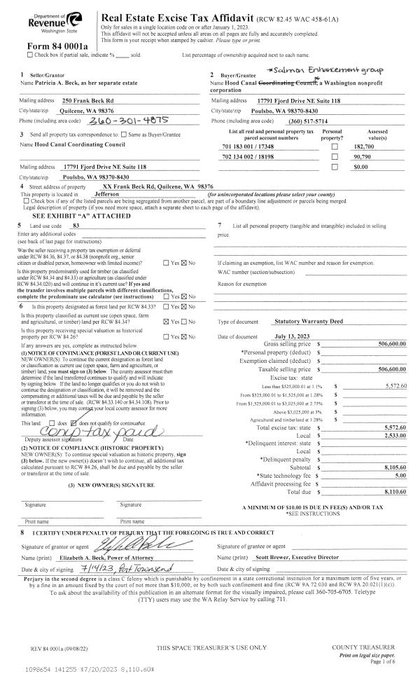
| 1 | 08/28/2023 | SWD | Statutory Warranty Deed | PATRICIA A BECK | HOOD CANAL SALMON ENHANCEMENT GROUP | | | | 141488 | |
| 2 | 07/13/2023 | SWD | Statutory Warranty Deed | PATRICIA A BECK | HOOD CANAL SALMON ENHANCEMENT GROUP | | | $506,600.00 | 141255 | |
|   | |
Payout Agreement
| No payout information available.. |