Property
Account |
| Property ID: | 17383 | Abbreviated Legal Description: | S18 T27 R1W TAX 39 |
| Parcel # / Geo ID: | 701184023 | Agent Code: | |
| Type: | Real | | |
| Tax Area: | 0321 - 1-48F2E2H2C2L1 | Land Use Code | 91 |
| Open Space: | N | DFL | N |
| Historic Property: | N | Remodel Property: | N |
| Multi-Family Redevelopment: | N | | |
| Township: | 27N | Section: | 18 |
| Range: | 1W |
Location |
| Address: | | Mapsco: | 141/002 |
| Neighborhood: | S18(EXCEPT QUILCREST) G.L.1&3 S19 T27N R1W/M.L.ANDERSON S.P. | Map ID: | |
| Neighborhood CD: | 2335 |
Owner |
| Name: | BOCKUS LIVING TRUST | Owner ID: | 103533 |
| Mailing Address: | DANIEL BOCKUS TRUSTEE ALISON BOCKUS TRUSTEE 11905 SW 204TH ST VASHON, WA 98070-6443 | % Ownership: | 100.0000000000% |
| | | Exemptions: | |
Pay Tax Due
Select the appropriate checkbox next to the year to be paid. Multiple years may be selected.
*Convenience Fee not included
Taxes and Assessment Details
Property Tax Information as of
03/12/2026
Click on "Statement Details" to expand or collapse a tax statement.
* Please enter a valid date ** Please enter a valid date *
Statement Details |
| 2026 | 6927 | STATE - STATE LEVY (SCHOOL) | $5.29 | $5.28 | $0.00 | $0.00 | $0.00 | $10.57 |
| 2026 | 6927 | COUNTY - COUNTY LEVIES (CE, DD, VET, MH) | $2.11 | $2.11 | $0.00 | $0.00 | $0.00 | $4.22 |
| 2026 | 6927 | CONSERVE - CONSERVATION FUTURES | $0.07 | $0.06 | $0.00 | $0.00 | $0.00 | $0.13 |
| 2026 | 6927 | COROADS - COUNTY ROADS (ROADS, DIV TO CE) | $1.71 | $1.70 | $0.00 | $0.00 | $0.00 | $3.41 |
| 2026 | 6927 | PORTPT - PORT DISTRICT | $0.86 | $0.85 | $0.00 | $0.00 | $0.00 | $1.71 |
| 2026 | 6927 | PUD1 - PUD #1 | $0.14 | $0.14 | $0.00 | $0.00 | $0.00 | $0.28 |
| 2026 | 6927 | LIB1 - LIBRARY DIST #1 | $0.66 | $0.66 | $0.00 | $0.00 | $0.00 | $1.32 |
| 2026 | 6927 | HD2 - HOSP DIST #2 | $0.13 | $0.12 | $0.00 | $0.00 | $0.00 | $0.25 |
| 2026 | 6927 | SD48 - SCHOOL DIST #48 | $3.25 | $3.25 | $0.00 | $0.00 | $0.00 | $6.50 |
| 2026 | 6927 | FD2 - FIRE DISTRICT #2 | $1.74 | $1.73 | $0.00 | $0.00 | $0.00 | $3.47 |
| 2026 | 6927 | EMS2 - FIRE DIST #2 EMS | $0.98 | $0.98 | $0.00 | $0.00 | $0.00 | $1.96 |
| 2026 | 6927 | CEM2 - CEMETERY DIST #2 | $0.06 | $0.05 | $0.00 | $0.00 | $0.00 | $0.11 |
| 2026 | 6927 | FP - DNR Forest Fire Protection Assmt | $8.50 | $8.50 | $0.00 | $0.00 | $0.00 | $17.00 |
| 2026 | 6927 | FPLCA - DNR Landowner Contingency Assmt | $3.00 | $3.00 | $0.00 | $0.00 | $0.00 | $6.00 |
| 2026 | 6927 | JCCD - JC Conservation District | $2.53 | $2.53 | $0.00 | $0.00 | $0.00 | $5.06 |
| 2026 | 6927 | NWA - Noxious Weed Assessment | $2.98 | $2.97 | $0.00 | $0.00 | $0.00 | $5.95 |
| 2026 | 6927 | WAT - Clean Water District | $13.00 | $13.00 | $0.00 | $0.00 | $0.00 | $26.00 |
| 2026 | 6927 | FP ADMIN - FP ADMIN | $0.50 | $0.00 | $0.00 | $0.00 | $0.00 | $0.50 |
| 2026 | 6927 | TOTAL: | $47.51 | $46.93 | $0.00 | $0.00 | $0.00 | $94.44 |
|
| 2026 | 6927 | $47.51 | $46.93 | $0.00 | $0.00 | $0.00 | $94.44 |
Statement Details |
| 2025 | 6948 | STATE - STATE LEVY (SCHOOL) | $5.52 | $5.51 | $0.00 | $0.00 | $11.03 | $0.00 |
| 2025 | 6948 | COUNTY - COUNTY LEVIES (CE, DD, VET, MH) | $2.16 | $2.16 | $0.00 | $0.00 | $4.32 | $0.00 |
| 2025 | 6948 | CONSERVE - CONSERVATION FUTURES | $0.07 | $0.06 | $0.00 | $0.00 | $0.13 | $0.00 |
| 2025 | 6948 | COROADS - COUNTY ROADS (ROADS, DIV TO CE) | $1.74 | $1.73 | $0.00 | $0.00 | $3.47 | $0.00 |
| 2025 | 6948 | PORTPT - PORT DISTRICT | $0.89 | $0.88 | $0.00 | $0.00 | $1.77 | $0.00 |
| 2025 | 6948 | PUD1 - PUD #1 | $0.14 | $0.14 | $0.00 | $0.00 | $0.28 | $0.00 |
| 2025 | 6948 | LIB1 - LIBRARY DIST #1 | $0.67 | $0.67 | $0.00 | $0.00 | $1.34 | $0.00 |
| 2025 | 6948 | HD2 - HOSP DIST #2 | $0.13 | $0.12 | $0.00 | $0.00 | $0.25 | $0.00 |
| 2025 | 6948 | SD48 - SCHOOL DIST #48 | $3.25 | $3.25 | $0.00 | $0.00 | $6.50 | $0.00 |
| 2025 | 6948 | FD2 - FIRE DISTRICT #2 | $1.80 | $1.79 | $0.00 | $0.00 | $3.59 | $0.00 |
| 2025 | 6948 | EMS2 - FIRE DIST #2 EMS | $1.01 | $1.01 | $0.00 | $0.00 | $2.02 | $0.00 |
| 2025 | 6948 | CEM2 - CEMETERY DIST #2 | $0.06 | $0.05 | $0.00 | $0.00 | $0.11 | $0.00 |
| 2025 | 6948 | FP - DNR Forest Fire Protection Assmt | $8.50 | $8.50 | $0.00 | $0.00 | $17.00 | $0.00 |
| 2025 | 6948 | FPLCA - DNR Landowner Contingency Assmt | $3.00 | $3.00 | $0.00 | $0.00 | $6.00 | $0.00 |
| 2025 | 6948 | JCCD - JC Conservation District | $2.53 | $2.53 | $0.00 | $0.00 | $5.06 | $0.00 |
| 2025 | 6948 | NWA - Noxious Weed Assessment | $2.15 | $2.15 | $0.00 | $0.00 | $4.30 | $0.00 |
| 2025 | 6948 | WAT - Clean Water District | $13.00 | $13.00 | $0.00 | $0.00 | $26.00 | $0.00 |
| 2025 | 6948 | FP ADMIN - FP ADMIN | $0.50 | $0.00 | $0.00 | $0.00 | $0.50 | $0.00 |
| 2025 | 6948 | TOTAL: | $47.12 | $46.55 | $0.00 | $0.00 | $93.67 | $0.00 |
|
| 2025 | 6948 | $47.12 | $46.55 | $0.00 | $0.00 | $93.67 | $0.00 |
Statement Details |
| 2024 | 6970 | STATE - STATE LEVY (SCHOOL) | $4.86 | $4.85 | $0.00 | $0.00 | $9.71 | $0.00 |
| 2024 | 6970 | COUNTY - COUNTY LEVIES (CE, DD, VET, MH) | $2.08 | $2.07 | $0.00 | $0.00 | $4.15 | $0.00 |
| 2024 | 6970 | CONSERVE - CONSERVATION FUTURES | $0.06 | $0.06 | $0.00 | $0.00 | $0.12 | $0.00 |
| 2024 | 6970 | COROADS - COUNTY ROADS (ROADS, DIV TO CE) | $1.68 | $1.67 | $0.00 | $0.00 | $3.35 | $0.00 |
| 2024 | 6970 | PORTPT - PORT DISTRICT | $0.86 | $0.85 | $0.00 | $0.00 | $1.71 | $0.00 |
| 2024 | 6970 | PUD1 - PUD #1 | $0.14 | $0.13 | $0.00 | $0.00 | $0.27 | $0.00 |
| 2024 | 6970 | LIB1 - LIBRARY DIST #1 | $0.65 | $0.64 | $0.00 | $0.00 | $1.29 | $0.00 |
| 2024 | 6970 | HD2 - HOSP DIST #2 | $0.12 | $0.12 | $0.00 | $0.00 | $0.24 | $0.00 |
| 2024 | 6970 | SD48 - SCHOOL DIST #48 | $2.18 | $2.17 | $0.00 | $0.00 | $4.35 | $0.00 |
| 2024 | 6970 | FD2 - FIRE DISTRICT #2 | $1.73 | $1.73 | $0.00 | $0.00 | $3.46 | $0.00 |
| 2024 | 6970 | EMS2 - FIRE DIST #2 EMS | $0.98 | $0.97 | $0.00 | $0.00 | $1.95 | $0.00 |
| 2024 | 6970 | CEM2 - CEMETERY DIST #2 | $0.06 | $0.05 | $0.00 | $0.00 | $0.11 | $0.00 |
| 2024 | 6970 | FP - DNR Forest Fire Protection Assmt | $8.50 | $8.50 | $0.00 | $0.00 | $17.00 | $0.00 |
| 2024 | 6970 | FPLCA - DNR Landowner Contingency Assmt | $3.00 | $3.00 | $0.00 | $0.00 | $6.00 | $0.00 |
| 2024 | 6970 | JCCD - JC Conservation District | $2.53 | $2.53 | $0.00 | $0.00 | $5.06 | $0.00 |
| 2024 | 6970 | NWA - Noxious Weed Assessment | $2.15 | $2.15 | $0.00 | $0.00 | $4.30 | $0.00 |
| 2024 | 6970 | WAT - Clean Water District | $12.50 | $12.50 | $0.00 | $0.00 | $25.00 | $0.00 |
| 2024 | 6970 | FP ADMIN - FP ADMIN | $0.50 | $0.00 | $0.00 | $0.00 | $0.50 | $0.00 |
| 2024 | 6970 | TOTAL: | $44.58 | $43.99 | $0.00 | $0.00 | $88.57 | $0.00 |
|
| 2024 | 6970 | $44.58 | $43.99 | $0.00 | $0.00 | $88.57 | $0.00 |
Statement Details |
| 2023 | 6984 | STATE - STATE LEVY (SCHOOL) | $4.71 | $4.71 | $0.00 | $0.00 | $9.42 | $0.00 |
| 2023 | 6984 | COUNTY - COUNTY LEVIES (CE, DD, VET, MH) | $2.05 | $2.05 | $0.00 | $0.00 | $4.10 | $0.00 |
| 2023 | 6984 | CONSERVE - CONSERVATION FUTURES | $0.06 | $0.06 | $0.00 | $0.00 | $0.12 | $0.00 |
| 2023 | 6984 | COROADS - COUNTY ROADS (ROADS, DIV TO CE) | $1.67 | $1.66 | $0.00 | $0.00 | $3.33 | $0.00 |
| 2023 | 6984 | PORTPT - PORT DISTRICT | $0.87 | $0.86 | $0.00 | $0.00 | $1.73 | $0.00 |
| 2023 | 6984 | PUD1 - PUD #1 | $0.14 | $0.13 | $0.00 | $0.00 | $0.27 | $0.00 |
| 2023 | 6984 | LIB1 - LIBRARY DIST #1 | $0.65 | $0.64 | $0.00 | $0.00 | $1.29 | $0.00 |
| 2023 | 6984 | HD2 - HOSP DIST #2 | $0.12 | $0.12 | $0.00 | $0.00 | $0.24 | $0.00 |
| 2023 | 6984 | SD48 - SCHOOL DIST #48 | $2.28 | $2.27 | $0.00 | $0.00 | $4.55 | $0.00 |
| 2023 | 6984 | FD2 - FIRE DISTRICT #2 | $1.79 | $1.78 | $0.00 | $0.00 | $3.57 | $0.00 |
| 2023 | 6984 | EMS2 - FIRE DIST #2 EMS | $1.00 | $1.00 | $0.00 | $0.00 | $2.00 | $0.00 |
| 2023 | 6984 | CEM2 - CEMETERY DIST #2 | $0.06 | $0.05 | $0.00 | $0.00 | $0.11 | $0.00 |
| 2023 | 6984 | FP - DNR Forest Fire Protection Assmt | $8.50 | $8.50 | $0.00 | $0.00 | $17.00 | $0.00 |
| 2023 | 6984 | FPLCA - DNR Landowner Contingency Assmt | $3.00 | $3.00 | $0.00 | $0.00 | $6.00 | $0.00 |
| 2023 | 6984 | JCCD - JC Conservation District | $2.53 | $2.53 | $0.00 | $0.00 | $5.06 | $0.00 |
| 2023 | 6984 | NWA - Noxious Weed Assessment | $2.15 | $2.15 | $0.00 | $0.00 | $4.30 | $0.00 |
| 2023 | 6984 | WAT - Clean Water District | $12.00 | $12.00 | $0.00 | $0.00 | $24.00 | $0.00 |
| 2023 | 6984 | FP ADMIN - FP ADMIN | $0.50 | $0.00 | $0.00 | $0.00 | $0.50 | $0.00 |
| 2023 | 6984 | TOTAL: | $44.08 | $43.51 | $0.00 | $0.00 | $87.59 | $0.00 |
|
| 2023 | 6984 | $44.08 | $43.51 | $0.00 | $0.00 | $87.59 | $0.00 |
Values
| (+) Improvement Homesite Value: | + | $0 | |
| (+) Improvement Non-Homesite Value: | + | $0 | |
| (+) Land Homesite Value: | + | $0 | |
| (+) Land Non-Homesite Value: | + | $4,600 | |
| (+) Curr Use (HS): | + | $0 | $0 |
| (+) Curr Use (NHS): | + | $0 | $0 |
| | | -------------------------- | |
| (=) Market Value: | = | $4,600 | |
| (–) Productivity Loss: | – | $0 | |
| | | -------------------------- | |
| (=) Subtotal: | = | $4,600 | |
| (+) Senior Appraised Value: | + | $0 | |
| (+) Non-Senior Appraised Value: | + | $4,600 | |
| | | -------------------------- | |
| (=) Total Appraised Value: | = | $4,600 | |
| (–) Senior Exemption Loss: | – | $0 | |
| (–) Exemption Loss: | – | $0 | |
| | | -------------------------- | |
| (=) Taxable Value: | = | $4,600 | |
Taxing Jurisdiction
| Owner: | BOCKUS LIVING TRUST | | |
| % Ownership: | 100.0000000000% | | |
| Total Value: | N/A | | |
| Tax Area: | 0321 - 1-48F2E2H2C2L1 |
| CE | COUNTY CURRENT EXPENSE | N/A | N/A | N/A | N/A | | |
| CNTYDD | DEVELOPMENTAL DISABILITIES | N/A | N/A | N/A | N/A | | |
| CNTYVET | VETERANS RELIEF | N/A | N/A | N/A | N/A | | |
| MENTAL | MENTAL HEALTH | N/A | N/A | N/A | N/A | | |
| ROADS | COUNTY ROADS | N/A | N/A | N/A | N/A | | |
| HOSP2CASH | HOSP DIST #2 GENERAL | N/A | N/A | N/A | N/A | | |
| SCH48MO | SCHOOL DIST #48 EP & O | N/A | N/A | N/A | N/A | | |
| CEM2 | CEMETERY DIST #2 GENERAL | N/A | N/A | N/A | N/A | | |
| CONSERVE | CONSERVATION FUTURES | N/A | N/A | N/A | N/A | | |
| FD2 | FIRE DIST #2 GENERAL | N/A | N/A | N/A | N/A | | |
| LIB1 | LIBRARY DIST #1 GENERAL | N/A | N/A | N/A | N/A | | |
| PORTPT | PORT OF PT GENERAL | N/A | N/A | N/A | N/A | | |
| PORTPTIDD | PORT OF PT IDD 2019 | N/A | N/A | N/A | N/A | | |
| PUD1 | PUD #1 GENERAL | N/A | N/A | N/A | N/A | | |
| STATE | STATE SCHOOL PART 1 | N/A | N/A | N/A | N/A | | |
| STATE2 | STATE SCHOOL PART 2 | N/A | N/A | N/A | N/A | | |
| EMS2 | FIRE DIST #2 EMS | N/A | N/A | N/A | N/A | | |
| | Total Tax Rate: | N/A | | | | | |
| | | | | Taxes w/Current Exemptions: | N/A | | |
| | | | | Taxes w/o Exemptions: | N/A | | |
Improvement / Building
Sketch
| No sketches available for this property. |
Property Image
Land
| 1 | 2335-1516F | | 0.0000 | 0.00 | 0.00 | 0.00 | 0.00 | $4,600 | $0 |
Roll Value History
| 2026 | N/A | N/A | N/A | N/A | N/A |
| 2025 | $0 | $4,600 | $0 | $4,600 | $4,600 |
| 2024 | $0 | $4,600 | $0 | $4,600 | $4,600 |
| 2023 | $0 | $4,200 | $0 | $4,200 | $4,200 |
| 2022 | $0 | $4,000 | $0 | $4,000 | $4,000 |
Deed and Sales History
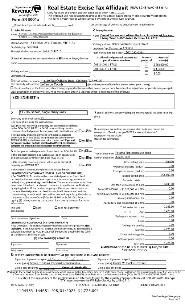
| 1 | 07/28/2025 | PRD | Personal Representatives Deed | SHARON L GRACE | BOCKUS LIVING TRUST | | | $295,000.00 | 144681 | |
|   | |
| 2 | 10/31/2018 | PRD | Personal Representatives Deed | HERBERT E JR/SHARON L GRACE | BOCKUS LIVING TRUST | | | | 131435 | |
| 3 | 04/22/1993 | SWD | Statutory Warranty Deed | GRACE, HERBERT E/JUANITA | GRACE, HERBERT E JR/SHARON L | 0 | 0 | $0.00 | 71018 | 0 |
Payout Agreement
| No payout information available.. |