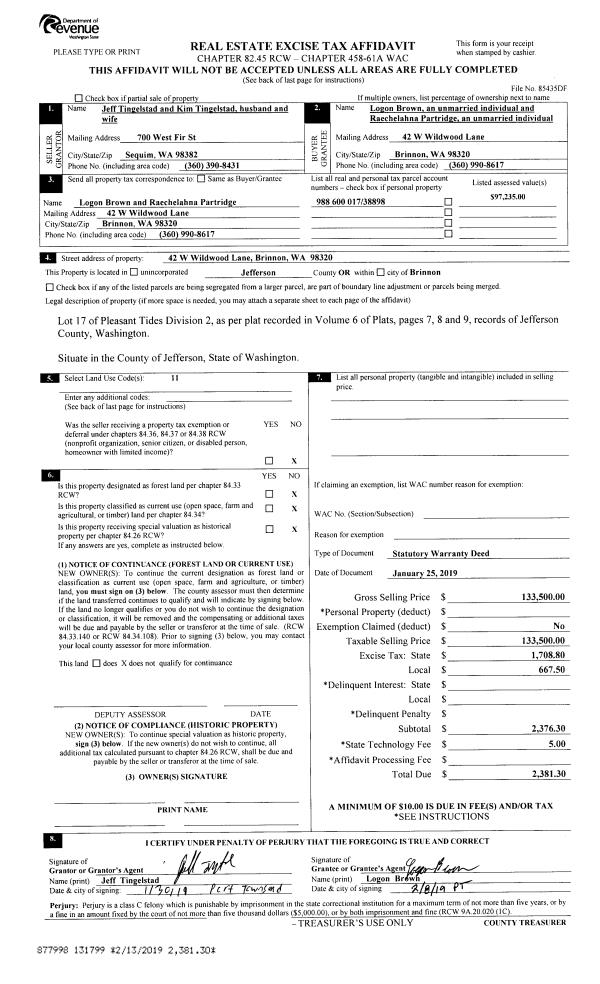
Property
Account |
| Property ID: | 17418 | Abbreviated Legal Description: | QUILCENE HEIGHTS LARGE LOT SUB LOT 4 SUBJ TO OPEN SP/CONSRV EASE W/JLT V505/P45-59 |
| Parcel # / Geo ID: | 701185024 | Agent Code: | |
| Type: | Real | | |
| Tax Area: | 0324 - 1-48F2E2H2C2L1Z3 | Land Use Code | 91 |
| Open Space: | N | DFL | N |
| Historic Property: | N | Remodel Property: | N |
| Multi-Family Redevelopment: | N | | |
| Township: | 27N | Section: | 18 |
| Range: | 1W |
Location |
| Address: | 482 MCINNIS RD QUILCENE, WA 98376 | Mapsco: | 182/088 |
| Neighborhood: | S18(EXCEPT QUILCREST) G.L.1&3 S19 T27N R1W/M.L.ANDERSON S.P. | Map ID: | |
| Neighborhood CD: | 2335 |
Owner |
| Name: | KEITH BRKICH | Owner ID: | 100254 |
| Mailing Address: | PO BOX 715 QUILCENE, WA 98376-0715 | % Ownership: | 100.0000000000% |
| | | Exemptions: | |
Pay Tax Due
Select the appropriate checkbox next to the year to be paid. Multiple years may be selected.
*Convenience Fee not included
Taxes and Assessment Details
Property Tax Information as of
03/10/2026
Click on "Statement Details" to expand or collapse a tax statement.
* Please enter a valid date ** Please enter a valid date *
Statement Details |
| 2026 | 6961 | STATE - STATE LEVY (SCHOOL) | $110.97 | $110.96 | $0.00 | $0.00 | $0.00 | $221.93 |
| 2026 | 6961 | COUNTY - COUNTY LEVIES (CE, DD, VET, MH) | $44.37 | $44.35 | $0.00 | $0.00 | $0.00 | $88.72 |
| 2026 | 6961 | CONSERVE - CONSERVATION FUTURES | $1.33 | $1.33 | $0.00 | $0.00 | $0.00 | $2.66 |
| 2026 | 6961 | COROADS - COUNTY ROADS (ROADS, DIV TO CE) | $35.79 | $35.78 | $0.00 | $0.00 | $0.00 | $71.57 |
| 2026 | 6961 | PORTPT - PORT DISTRICT | $17.92 | $17.92 | $0.00 | $0.00 | $0.00 | $35.84 |
| 2026 | 6961 | PUD1 - PUD #1 | $2.89 | $2.88 | $0.00 | $0.00 | $0.00 | $5.77 |
| 2026 | 6961 | LIB1 - LIBRARY DIST #1 | $13.85 | $13.84 | $0.00 | $0.00 | $0.00 | $27.69 |
| 2026 | 6961 | HD2 - HOSP DIST #2 | $2.59 | $2.58 | $0.00 | $0.00 | $0.00 | $5.17 |
| 2026 | 6961 | SD48 - SCHOOL DIST #48 | $68.15 | $68.15 | $0.00 | $0.00 | $0.00 | $136.30 |
| 2026 | 6961 | FD2 - FIRE DISTRICT #2 | $36.44 | $36.44 | $0.00 | $0.00 | $0.00 | $72.88 |
| 2026 | 6961 | EMS2 - FIRE DIST #2 EMS | $20.52 | $20.52 | $0.00 | $0.00 | $0.00 | $41.04 |
| 2026 | 6961 | CEM2 - CEMETERY DIST #2 | $1.17 | $1.16 | $0.00 | $0.00 | $0.00 | $2.33 |
| 2026 | 6961 | FP - DNR Forest Fire Protection Assmt | $8.50 | $8.50 | $0.00 | $0.00 | $0.00 | $17.00 |
| 2026 | 6961 | FPLCA - DNR Landowner Contingency Assmt | $3.00 | $3.00 | $0.00 | $0.00 | $0.00 | $6.00 |
| 2026 | 6961 | JCCD - JC Conservation District | $2.61 | $2.61 | $0.00 | $0.00 | $0.00 | $5.22 |
| 2026 | 6961 | NWA - Noxious Weed Assessment | $3.43 | $3.42 | $0.00 | $0.00 | $0.00 | $6.85 |
| 2026 | 6961 | WAT - Clean Water District | $13.00 | $13.00 | $0.00 | $0.00 | $0.00 | $26.00 |
| 2026 | 6961 | FP ADMIN - FP ADMIN | $0.50 | $0.00 | $0.00 | $0.00 | $0.00 | $0.50 |
| 2026 | 6961 | TOTAL: | $387.03 | $386.44 | $0.00 | $0.00 | $0.00 | $773.47 |
|
| 2026 | 6961 | $387.03 | $386.44 | $0.00 | $0.00 | $0.00 | $773.47 |
Statement Details |
| 2025 | 6982 | STATE - STATE LEVY (SCHOOL) | $115.74 | $115.73 | $0.00 | $0.00 | $231.47 | $0.00 |
| 2025 | 6982 | COUNTY - COUNTY LEVIES (CE, DD, VET, MH) | $45.52 | $45.49 | $0.00 | $0.00 | $91.01 | $0.00 |
| 2025 | 6982 | CONSERVE - CONSERVATION FUTURES | $1.37 | $1.36 | $0.00 | $0.00 | $2.73 | $0.00 |
| 2025 | 6982 | COROADS - COUNTY ROADS (ROADS, DIV TO CE) | $36.47 | $36.45 | $0.00 | $0.00 | $72.92 | $0.00 |
| 2025 | 6982 | PORTPT - PORT DISTRICT | $18.57 | $18.57 | $0.00 | $0.00 | $37.14 | $0.00 |
| 2025 | 6982 | PUD1 - PUD #1 | $2.98 | $2.98 | $0.00 | $0.00 | $5.96 | $0.00 |
| 2025 | 6982 | LIB1 - LIBRARY DIST #1 | $14.11 | $14.10 | $0.00 | $0.00 | $28.21 | $0.00 |
| 2025 | 6982 | HD2 - HOSP DIST #2 | $2.66 | $2.65 | $0.00 | $0.00 | $5.31 | $0.00 |
| 2025 | 6982 | SD48 - SCHOOL DIST #48 | $68.16 | $68.15 | $0.00 | $0.00 | $136.31 | $0.00 |
| 2025 | 6982 | FD2 - FIRE DISTRICT #2 | $37.63 | $37.63 | $0.00 | $0.00 | $75.26 | $0.00 |
| 2025 | 6982 | EMS2 - FIRE DIST #2 EMS | $21.19 | $21.19 | $0.00 | $0.00 | $42.38 | $0.00 |
| 2025 | 6982 | CEM2 - CEMETERY DIST #2 | $1.20 | $1.20 | $0.00 | $0.00 | $2.40 | $0.00 |
| 2025 | 6982 | FP - DNR Forest Fire Protection Assmt | $8.50 | $8.50 | $0.00 | $0.00 | $17.00 | $0.00 |
| 2025 | 6982 | FPLCA - DNR Landowner Contingency Assmt | $3.00 | $3.00 | $0.00 | $0.00 | $6.00 | $0.00 |
| 2025 | 6982 | JCCD - JC Conservation District | $2.61 | $2.61 | $0.00 | $0.00 | $5.22 | $0.00 |
| 2025 | 6982 | NWA - Noxious Weed Assessment | $2.45 | $2.45 | $0.00 | $0.00 | $4.90 | $0.00 |
| 2025 | 6982 | WAT - Clean Water District | $13.00 | $13.00 | $0.00 | $0.00 | $26.00 | $0.00 |
| 2025 | 6982 | FP ADMIN - FP ADMIN | $0.50 | $0.00 | $0.00 | $0.00 | $0.50 | $0.00 |
| 2025 | 6982 | TOTAL: | $395.66 | $395.06 | $0.00 | $0.00 | $790.72 | $0.00 |
|
| 2025 | 6982 | $395.66 | $395.06 | $0.00 | $0.00 | $790.72 | $0.00 |
Statement Details |
| 2024 | 7004 | STATE - STATE LEVY (SCHOOL) | $101.96 | $101.94 | $0.00 | $0.00 | $203.90 | $0.00 |
| 2024 | 7004 | COUNTY - COUNTY LEVIES (CE, DD, VET, MH) | $43.64 | $43.61 | $0.00 | $0.00 | $87.25 | $0.00 |
| 2024 | 7004 | CONSERVE - CONSERVATION FUTURES | $1.31 | $1.31 | $0.00 | $0.00 | $2.62 | $0.00 |
| 2024 | 7004 | COROADS - COUNTY ROADS (ROADS, DIV TO CE) | $35.11 | $35.10 | $0.00 | $0.00 | $70.21 | $0.00 |
| 2024 | 7004 | PORTPT - PORT DISTRICT | $18.03 | $18.01 | $0.00 | $0.00 | $36.04 | $0.00 |
| 2024 | 7004 | PUD1 - PUD #1 | $2.87 | $2.86 | $0.00 | $0.00 | $5.73 | $0.00 |
| 2024 | 7004 | LIB1 - LIBRARY DIST #1 | $13.58 | $13.58 | $0.00 | $0.00 | $27.16 | $0.00 |
| 2024 | 7004 | HD2 - HOSP DIST #2 | $2.55 | $2.54 | $0.00 | $0.00 | $5.09 | $0.00 |
| 2024 | 7004 | SD48 - SCHOOL DIST #48 | $45.67 | $45.66 | $0.00 | $0.00 | $91.33 | $0.00 |
| 2024 | 7004 | FD2 - FIRE DISTRICT #2 | $36.27 | $36.27 | $0.00 | $0.00 | $72.54 | $0.00 |
| 2024 | 7004 | EMS2 - FIRE DIST #2 EMS | $20.42 | $20.41 | $0.00 | $0.00 | $40.83 | $0.00 |
| 2024 | 7004 | CEM2 - CEMETERY DIST #2 | $1.16 | $1.16 | $0.00 | $0.00 | $2.32 | $0.00 |
| 2024 | 7004 | FP - DNR Forest Fire Protection Assmt | $8.50 | $8.50 | $0.00 | $0.00 | $17.00 | $0.00 |
| 2024 | 7004 | FPLCA - DNR Landowner Contingency Assmt | $3.00 | $3.00 | $0.00 | $0.00 | $6.00 | $0.00 |
| 2024 | 7004 | JCCD - JC Conservation District | $2.61 | $2.61 | $0.00 | $0.00 | $5.22 | $0.00 |
| 2024 | 7004 | NWA - Noxious Weed Assessment | $2.45 | $2.45 | $0.00 | $0.00 | $4.90 | $0.00 |
| 2024 | 7004 | WAT - Clean Water District | $12.50 | $12.50 | $0.00 | $0.00 | $25.00 | $0.00 |
| 2024 | 7004 | FP ADMIN - FP ADMIN | $0.50 | $0.00 | $0.00 | $0.00 | $0.50 | $0.00 |
| 2024 | 7004 | TOTAL: | $352.13 | $351.51 | $0.00 | $0.00 | $703.64 | $0.00 |
|
| 2024 | 7004 | $352.13 | $351.51 | $0.00 | $0.00 | $703.64 | $0.00 |
Statement Details |
| 2023 | 7018 | STATE - STATE LEVY (SCHOOL) | $98.52 | $98.51 | $0.00 | $0.00 | $197.03 | $0.00 |
| 2023 | 7018 | COUNTY - COUNTY LEVIES (CE, DD, VET, MH) | $43.01 | $42.97 | $0.00 | $0.00 | $85.98 | $0.00 |
| 2023 | 7018 | CONSERVE - CONSERVATION FUTURES | $1.29 | $1.29 | $0.00 | $0.00 | $2.58 | $0.00 |
| 2023 | 7018 | COROADS - COUNTY ROADS (ROADS, DIV TO CE) | $34.79 | $34.77 | $0.00 | $0.00 | $69.56 | $0.00 |
| 2023 | 7018 | PORTPT - PORT DISTRICT | $18.11 | $18.11 | $0.00 | $0.00 | $36.22 | $0.00 |
| 2023 | 7018 | PUD1 - PUD #1 | $2.85 | $2.85 | $0.00 | $0.00 | $5.70 | $0.00 |
| 2023 | 7018 | LIB1 - LIBRARY DIST #1 | $13.46 | $13.45 | $0.00 | $0.00 | $26.91 | $0.00 |
| 2023 | 7018 | HD2 - HOSP DIST #2 | $2.52 | $2.50 | $0.00 | $0.00 | $5.02 | $0.00 |
| 2023 | 7018 | SD48 - SCHOOL DIST #48 | $47.58 | $47.57 | $0.00 | $0.00 | $95.15 | $0.00 |
| 2023 | 7018 | FD2 - FIRE DISTRICT #2 | $37.32 | $37.31 | $0.00 | $0.00 | $74.63 | $0.00 |
| 2023 | 7018 | EMS2 - FIRE DIST #2 EMS | $20.93 | $20.92 | $0.00 | $0.00 | $41.85 | $0.00 |
| 2023 | 7018 | CEM2 - CEMETERY DIST #2 | $1.19 | $1.19 | $0.00 | $0.00 | $2.38 | $0.00 |
| 2023 | 7018 | FP - DNR Forest Fire Protection Assmt | $8.50 | $8.50 | $0.00 | $0.00 | $17.00 | $0.00 |
| 2023 | 7018 | FPLCA - DNR Landowner Contingency Assmt | $3.00 | $3.00 | $0.00 | $0.00 | $6.00 | $0.00 |
| 2023 | 7018 | JCCD - JC Conservation District | $2.61 | $2.61 | $0.00 | $0.00 | $5.22 | $0.00 |
| 2023 | 7018 | NWA - Noxious Weed Assessment | $2.45 | $2.45 | $0.00 | $0.00 | $4.90 | $0.00 |
| 2023 | 7018 | WAT - Clean Water District | $12.00 | $12.00 | $0.00 | $0.00 | $24.00 | $0.00 |
| 2023 | 7018 | FP ADMIN - FP ADMIN | $0.50 | $0.00 | $0.00 | $0.00 | $0.50 | $0.00 |
| 2023 | 7018 | TOTAL: | $350.63 | $350.00 | $0.00 | $0.00 | $700.63 | $0.00 |
|
| 2023 | 7018 | $350.63 | $350.00 | $0.00 | $0.00 | $700.63 | $0.00 |
Values
| (+) Improvement Homesite Value: | + | $0 | |
| (+) Improvement Non-Homesite Value: | + | $0 | |
| (+) Land Homesite Value: | + | $0 | |
| (+) Land Non-Homesite Value: | + | $96,526 | |
| (+) Curr Use (HS): | + | $0 | $0 |
| (+) Curr Use (NHS): | + | $0 | $0 |
| | | -------------------------- | |
| (=) Market Value: | = | $96,526 | |
| (–) Productivity Loss: | – | $0 | |
| | | -------------------------- | |
| (=) Subtotal: | = | $96,526 | |
| (+) Senior Appraised Value: | + | $0 | |
| (+) Non-Senior Appraised Value: | + | $96,526 | |
| | | -------------------------- | |
| (=) Total Appraised Value: | = | $96,526 | |
| (–) Senior Exemption Loss: | – | $0 | |
| (–) Exemption Loss: | – | $0 | |
| | | -------------------------- | |
| (=) Taxable Value: | = | $96,526 | |
Taxing Jurisdiction
| Owner: | KEITH BRKICH | | |
| % Ownership: | 100.0000000000% | | |
| Total Value: | N/A | | |
| Tax Area: | 0324 - 1-48F2E2H2C2L1Z3 |
| CE | COUNTY CURRENT EXPENSE | N/A | N/A | N/A | N/A | | |
| CNTYDD | DEVELOPMENTAL DISABILITIES | N/A | N/A | N/A | N/A | | |
| CNTYVET | VETERANS RELIEF | N/A | N/A | N/A | N/A | | |
| MENTAL | MENTAL HEALTH | N/A | N/A | N/A | N/A | | |
| ROADS | COUNTY ROADS | N/A | N/A | N/A | N/A | | |
| HOSP2CASH | HOSP DIST #2 GENERAL | N/A | N/A | N/A | N/A | | |
| SCH48MO | SCHOOL DIST #48 EP & O | N/A | N/A | N/A | N/A | | |
| CEM2 | CEMETERY DIST #2 GENERAL | N/A | N/A | N/A | N/A | | |
| CONSERVE | CONSERVATION FUTURES | N/A | N/A | N/A | N/A | | |
| FD2 | FIRE DIST #2 GENERAL | N/A | N/A | N/A | N/A | | |
| LIB1 | LIBRARY DIST #1 GENERAL | N/A | N/A | N/A | N/A | | |
| PORTPT | PORT OF PT GENERAL | N/A | N/A | N/A | N/A | | |
| PORTPTIDD | PORT OF PT IDD 2019 | N/A | N/A | N/A | N/A | | |
| PUD1 | PUD #1 GENERAL | N/A | N/A | N/A | N/A | | |
| STATE | STATE SCHOOL PART 1 | N/A | N/A | N/A | N/A | | |
| STATE2 | STATE SCHOOL PART 2 | N/A | N/A | N/A | N/A | | |
| EMS2 | FIRE DIST #2 EMS | N/A | N/A | N/A | N/A | | |
| | Total Tax Rate: | N/A | | | | | |
| | | | | Taxes w/Current Exemptions: | N/A | | |
| | | | | Taxes w/o Exemptions: | N/A | | |
Improvement / Building
Sketch
| No sketches available for this property. |
Property Image
Land
| 1 | 2335-1555A | | 0.0800 | 3484.80 | 0.00 | 0.00 | 0.00 | $736 | $0 |
| 2 | 2335-1555A | | 1.0800 | 47044.80 | 0.00 | 0.00 | 0.00 | $1,490 | $0 |
| 3 | 9804 | | 1.0000 | 43560.00 | 0.00 | 0.00 | 1.00 | $11,500 | $0 |
| 4 | 2335-1355S | | 1.0000 | 43560.00 | 0.00 | 0.00 | 1.00 | $82,800 | $0 |
Roll Value History
| 2026 | N/A | N/A | N/A | N/A | N/A |
| 2025 | $0 | $96,526 | $0 | $96,526 | $96,526 |
| 2024 | $0 | $96,526 | $0 | $96,526 | $96,526 |
| 2023 | $0 | $88,133 | $0 | $88,133 | $88,133 |
| 2022 | $0 | $83,694 | $0 | $83,694 | $83,694 |
Deed and Sales History
| 1 | 11/26/2018 | SWD | Statutory Warranty Deed | JAMIE ECKENRODE TRUST | KEITH BRKICH | | | $60,000.00 | 131454 | |
| 2 | 12/13/2016 | SPWD | Special Warranty Deed | JAMIE A ECKENRODE | JAMIE ECKENRODE TRUST | | | | 127051 | |
| 3 | 05/02/2016 | LOP | Lack of Probate | WESLEY NIELSEN | JAMIE A ECKENRODE | | | | 125505 | |
| 4 | 05/18/2016 | QCD | Quit Claim Deed | | | | | | 125504 | |
| 5 | 10/01/2007 | SWD | Statutory Warranty Deed | J K T DEVELOPMENT INC | NIELSEN, WESLEY | 0 | 0 | $85,000.00 | 110160 | 0 |
| 6 | 10/01/2007 | SWD | Statutory Warranty Deed | JKT DEVELOPMENT INC | NIELSEN, WESLEY | 0 | 0 | $0.00 | 118246 | 0 |
| 7 | 01/03/2005 | SWD | Statutory Warranty Deed | QUILCENE HEIGHTS LTD | JKT DEVELOPMENT INC | 0 | 0 | $267,520.00 | 102496 | 0 |
|   | |
| 8 | 12/15/1998 | QCD | Quit Claim Deed | QUILCENE HEIGHTS LTD | QUILCENE HEIGHTS LTD | 0 | 0 | $0.00 | 85926 | 0 |
Payout Agreement
| No payout information available.. |