Property
Account |
| Property ID: | 17497 | Abbreviated Legal Description: | S20 T27 R1W TAX 20 WITH EASE |
| Parcel # / Geo ID: | 701203006 | Agent Code: | |
| Type: | Real | | |
| Tax Area: | 0321 - 1-48F2E2H2C2L1 | Land Use Code | 91 |
| Open Space: | N | DFL | N |
| Historic Property: | N | Remodel Property: | N |
| Multi-Family Redevelopment: | N | | |
| Township: | 27N | Section: | 20 |
| Range: | 1W |
Location |
| Address: | | Mapsco: | 143/032 |
| Neighborhood: | S20, S21, & PTN S17 T27N R1W & TURNER S.P. | Map ID: | |
| Neighborhood CD: | 2345 |
Owner |
| Name: | DAVID VOURNAS | Owner ID: | 111924 |
| Mailing Address: | PO BOX 2482 LONGVIEW, WA 98632-8537 | % Ownership: | 100.0000000000% |
| | | Exemptions: | |
Pay Tax Due
Select the appropriate checkbox next to the year to be paid. Multiple years may be selected.
*Convenience Fee not included
Taxes and Assessment Details
Property Tax Information as of
03/12/2026
Click on "Statement Details" to expand or collapse a tax statement.
* Please enter a valid date ** Please enter a valid date *
Statement Details |
| 2026 | 7039 | STATE - STATE LEVY (SCHOOL) | $64.79 | $64.78 | $0.00 | $0.00 | $0.00 | $129.57 |
| 2026 | 7039 | COUNTY - COUNTY LEVIES (CE, DD, VET, MH) | $25.91 | $25.89 | $0.00 | $0.00 | $0.00 | $51.80 |
| 2026 | 7039 | CONSERVE - CONSERVATION FUTURES | $0.78 | $0.77 | $0.00 | $0.00 | $0.00 | $1.55 |
| 2026 | 7039 | COROADS - COUNTY ROADS (ROADS, DIV TO CE) | $20.90 | $20.89 | $0.00 | $0.00 | $0.00 | $41.79 |
| 2026 | 7039 | PORTPT - PORT DISTRICT | $10.47 | $10.46 | $0.00 | $0.00 | $0.00 | $20.93 |
| 2026 | 7039 | PUD1 - PUD #1 | $1.69 | $1.68 | $0.00 | $0.00 | $0.00 | $3.37 |
| 2026 | 7039 | LIB1 - LIBRARY DIST #1 | $8.09 | $8.08 | $0.00 | $0.00 | $0.00 | $16.17 |
| 2026 | 7039 | HD2 - HOSP DIST #2 | $1.51 | $1.51 | $0.00 | $0.00 | $0.00 | $3.02 |
| 2026 | 7039 | SD48 - SCHOOL DIST #48 | $39.79 | $39.79 | $0.00 | $0.00 | $0.00 | $79.58 |
| 2026 | 7039 | FD2 - FIRE DISTRICT #2 | $21.28 | $21.27 | $0.00 | $0.00 | $0.00 | $42.55 |
| 2026 | 7039 | EMS2 - FIRE DIST #2 EMS | $11.98 | $11.98 | $0.00 | $0.00 | $0.00 | $23.96 |
| 2026 | 7039 | CEM2 - CEMETERY DIST #2 | $0.68 | $0.68 | $0.00 | $0.00 | $0.00 | $1.36 |
| 2026 | 7039 | FP - DNR Forest Fire Protection Assmt | $8.50 | $8.50 | $0.00 | $0.00 | $0.00 | $17.00 |
| 2026 | 7039 | FPLCA - DNR Landowner Contingency Assmt | $3.00 | $3.00 | $0.00 | $0.00 | $0.00 | $6.00 |
| 2026 | 7039 | JCCD - JC Conservation District | $2.69 | $2.69 | $0.00 | $0.00 | $0.00 | $5.38 |
| 2026 | 7039 | NWA - Noxious Weed Assessment | $3.88 | $3.87 | $0.00 | $0.00 | $0.00 | $7.75 |
| 2026 | 7039 | WAT - Clean Water District | $13.00 | $13.00 | $0.00 | $0.00 | $0.00 | $26.00 |
| 2026 | 7039 | FP ADMIN - FP ADMIN | $0.50 | $0.00 | $0.00 | $0.00 | $0.00 | $0.50 |
| 2026 | 7039 | TOTAL: | $239.44 | $238.84 | $0.00 | $0.00 | $0.00 | $478.28 |
|
| 2026 | 7039 | $239.44 | $238.84 | $0.00 | $0.00 | $0.00 | $478.28 |
Statement Details |
| 2025 | 7060 | STATE - STATE LEVY (SCHOOL) | $64.64 | $64.63 | $0.00 | $0.00 | $129.27 | $0.00 |
| 2025 | 7060 | COUNTY - COUNTY LEVIES (CE, DD, VET, MH) | $25.44 | $25.40 | $0.00 | $0.00 | $50.84 | $0.00 |
| 2025 | 7060 | CONSERVE - CONSERVATION FUTURES | $0.76 | $0.76 | $0.00 | $0.00 | $1.52 | $0.00 |
| 2025 | 7060 | COROADS - COUNTY ROADS (ROADS, DIV TO CE) | $20.37 | $20.36 | $0.00 | $0.00 | $40.73 | $0.00 |
| 2025 | 7060 | PORTPT - PORT DISTRICT | $10.38 | $10.37 | $0.00 | $0.00 | $20.75 | $0.00 |
| 2025 | 7060 | PUD1 - PUD #1 | $1.67 | $1.66 | $0.00 | $0.00 | $3.33 | $0.00 |
| 2025 | 7060 | LIB1 - LIBRARY DIST #1 | $7.88 | $7.88 | $0.00 | $0.00 | $15.76 | $0.00 |
| 2025 | 7060 | HD2 - HOSP DIST #2 | $1.49 | $1.48 | $0.00 | $0.00 | $2.97 | $0.00 |
| 2025 | 7060 | SD48 - SCHOOL DIST #48 | $38.07 | $38.06 | $0.00 | $0.00 | $76.13 | $0.00 |
| 2025 | 7060 | FD2 - FIRE DISTRICT #2 | $21.02 | $21.01 | $0.00 | $0.00 | $42.03 | $0.00 |
| 2025 | 7060 | EMS2 - FIRE DIST #2 EMS | $11.84 | $11.83 | $0.00 | $0.00 | $23.67 | $0.00 |
| 2025 | 7060 | CEM2 - CEMETERY DIST #2 | $0.67 | $0.67 | $0.00 | $0.00 | $1.34 | $0.00 |
| 2025 | 7060 | FP - DNR Forest Fire Protection Assmt | $8.50 | $8.50 | $0.00 | $0.00 | $17.00 | $0.00 |
| 2025 | 7060 | FPLCA - DNR Landowner Contingency Assmt | $3.00 | $3.00 | $0.00 | $0.00 | $6.00 | $0.00 |
| 2025 | 7060 | JCCD - JC Conservation District | $2.69 | $2.69 | $0.00 | $0.00 | $5.38 | $0.00 |
| 2025 | 7060 | NWA - Noxious Weed Assessment | $2.75 | $2.75 | $0.00 | $0.00 | $5.50 | $0.00 |
| 2025 | 7060 | WAT - Clean Water District | $13.00 | $13.00 | $0.00 | $0.00 | $26.00 | $0.00 |
| 2025 | 7060 | FP ADMIN - FP ADMIN | $0.50 | $0.00 | $0.00 | $0.00 | $0.50 | $0.00 |
| 2025 | 7060 | TOTAL: | $234.67 | $234.05 | $0.00 | $0.00 | $468.72 | $0.00 |
|
| 2025 | 7060 | $234.67 | $234.05 | $0.00 | $0.00 | $468.72 | $0.00 |
Statement Details |
| 2024 | 7082 | STATE - STATE LEVY (SCHOOL) | $55.33 | $55.31 | $0.00 | $0.00 | $110.64 | $0.00 |
| 2024 | 7082 | COUNTY - COUNTY LEVIES (CE, DD, VET, MH) | $23.69 | $23.66 | $0.00 | $0.00 | $47.35 | $0.00 |
| 2024 | 7082 | CONSERVE - CONSERVATION FUTURES | $0.71 | $0.71 | $0.00 | $0.00 | $1.42 | $0.00 |
| 2024 | 7082 | COROADS - COUNTY ROADS (ROADS, DIV TO CE) | $19.06 | $19.04 | $0.00 | $0.00 | $38.10 | $0.00 |
| 2024 | 7082 | PORTPT - PORT DISTRICT | $9.79 | $9.77 | $0.00 | $0.00 | $19.56 | $0.00 |
| 2024 | 7082 | PUD1 - PUD #1 | $1.56 | $1.55 | $0.00 | $0.00 | $3.11 | $0.00 |
| 2024 | 7082 | LIB1 - LIBRARY DIST #1 | $7.37 | $7.37 | $0.00 | $0.00 | $14.74 | $0.00 |
| 2024 | 7082 | HD2 - HOSP DIST #2 | $1.38 | $1.38 | $0.00 | $0.00 | $2.76 | $0.00 |
| 2024 | 7082 | SD48 - SCHOOL DIST #48 | $24.78 | $24.77 | $0.00 | $0.00 | $49.55 | $0.00 |
| 2024 | 7082 | FD2 - FIRE DISTRICT #2 | $19.68 | $19.68 | $0.00 | $0.00 | $39.36 | $0.00 |
| 2024 | 7082 | EMS2 - FIRE DIST #2 EMS | $11.08 | $11.08 | $0.00 | $0.00 | $22.16 | $0.00 |
| 2024 | 7082 | CEM2 - CEMETERY DIST #2 | $0.63 | $0.63 | $0.00 | $0.00 | $1.26 | $0.00 |
| 2024 | 7082 | FP - DNR Forest Fire Protection Assmt | $8.50 | $8.50 | $0.00 | $0.00 | $17.00 | $0.00 |
| 2024 | 7082 | FPLCA - DNR Landowner Contingency Assmt | $3.00 | $3.00 | $0.00 | $0.00 | $6.00 | $0.00 |
| 2024 | 7082 | JCCD - JC Conservation District | $2.69 | $2.69 | $0.00 | $0.00 | $5.38 | $0.00 |
| 2024 | 7082 | NWA - Noxious Weed Assessment | $2.75 | $2.75 | $0.00 | $0.00 | $5.50 | $0.00 |
| 2024 | 7082 | WAT - Clean Water District | $12.50 | $12.50 | $0.00 | $0.00 | $25.00 | $0.00 |
| 2024 | 7082 | FP ADMIN - FP ADMIN | $0.50 | $0.00 | $0.00 | $0.00 | $0.50 | $0.00 |
| 2024 | 7082 | TOTAL: | $205.00 | $204.39 | $0.00 | $0.00 | $409.39 | $0.00 |
|
| 2024 | 7082 | $205.00 | $204.39 | $0.00 | $0.00 | $409.39 | $0.00 |
Statement Details |
| 2023 | 7096 | STATE - STATE LEVY (SCHOOL) | $54.20 | $54.18 | $0.00 | $0.00 | $108.38 | $0.00 |
| 2023 | 7096 | COUNTY - COUNTY LEVIES (CE, DD, VET, MH) | $23.67 | $23.63 | $0.00 | $0.00 | $47.30 | $0.00 |
| 2023 | 7096 | CONSERVE - CONSERVATION FUTURES | $0.71 | $0.71 | $0.00 | $0.00 | $1.42 | $0.00 |
| 2023 | 7096 | COROADS - COUNTY ROADS (ROADS, DIV TO CE) | $19.14 | $19.12 | $0.00 | $0.00 | $38.26 | $0.00 |
| 2023 | 7096 | PORTPT - PORT DISTRICT | $9.96 | $9.96 | $0.00 | $0.00 | $19.92 | $0.00 |
| 2023 | 7096 | PUD1 - PUD #1 | $1.57 | $1.56 | $0.00 | $0.00 | $3.13 | $0.00 |
| 2023 | 7096 | LIB1 - LIBRARY DIST #1 | $7.40 | $7.40 | $0.00 | $0.00 | $14.80 | $0.00 |
| 2023 | 7096 | HD2 - HOSP DIST #2 | $1.39 | $1.37 | $0.00 | $0.00 | $2.76 | $0.00 |
| 2023 | 7096 | SD48 - SCHOOL DIST #48 | $26.17 | $26.17 | $0.00 | $0.00 | $52.34 | $0.00 |
| 2023 | 7096 | FD2 - FIRE DISTRICT #2 | $20.53 | $20.52 | $0.00 | $0.00 | $41.05 | $0.00 |
| 2023 | 7096 | EMS2 - FIRE DIST #2 EMS | $11.51 | $11.51 | $0.00 | $0.00 | $23.02 | $0.00 |
| 2023 | 7096 | CEM2 - CEMETERY DIST #2 | $0.66 | $0.65 | $0.00 | $0.00 | $1.31 | $0.00 |
| 2023 | 7096 | FP - DNR Forest Fire Protection Assmt | $8.50 | $8.50 | $0.00 | $0.00 | $17.00 | $0.00 |
| 2023 | 7096 | FPLCA - DNR Landowner Contingency Assmt | $3.00 | $3.00 | $0.00 | $0.00 | $6.00 | $0.00 |
| 2023 | 7096 | JCCD - JC Conservation District | $2.69 | $2.69 | $0.00 | $0.00 | $5.38 | $0.00 |
| 2023 | 7096 | NWA - Noxious Weed Assessment | $2.75 | $2.75 | $0.00 | $0.00 | $5.50 | $0.00 |
| 2023 | 7096 | WAT - Clean Water District | $12.00 | $12.00 | $0.00 | $0.00 | $24.00 | $0.00 |
| 2023 | 7096 | FP ADMIN - FP ADMIN | $0.50 | $0.00 | $0.00 | $0.00 | $0.50 | $0.00 |
| 2023 | 7096 | TOTAL: | $206.35 | $205.72 | $0.00 | $0.00 | $412.07 | $0.00 |
|
| 2023 | 7096 | $206.35 | $205.72 | $0.00 | $0.00 | $412.07 | $0.00 |
Values
| (+) Improvement Homesite Value: | + | $0 | |
| (+) Improvement Non-Homesite Value: | + | $0 | |
| (+) Land Homesite Value: | + | $0 | |
| (+) Land Non-Homesite Value: | + | $56,359 | |
| (+) Curr Use (HS): | + | $0 | $0 |
| (+) Curr Use (NHS): | + | $0 | $0 |
| | | -------------------------- | |
| (=) Market Value: | = | $56,359 | |
| (–) Productivity Loss: | – | $0 | |
| | | -------------------------- | |
| (=) Subtotal: | = | $56,359 | |
| (+) Senior Appraised Value: | + | $0 | |
| (+) Non-Senior Appraised Value: | + | $56,359 | |
| | | -------------------------- | |
| (=) Total Appraised Value: | = | $56,359 | |
| (–) Senior Exemption Loss: | – | $0 | |
| (–) Exemption Loss: | – | $0 | |
| | | -------------------------- | |
| (=) Taxable Value: | = | $56,359 | |
Taxing Jurisdiction
| Owner: | DAVID VOURNAS | | |
| % Ownership: | 100.0000000000% | | |
| Total Value: | $56,359 | | |
| Tax Area: | 0321 - 1-48F2E2H2C2L1 |
| CE | COUNTY CURRENT EXPENSE | 0.9034619479 | $56,359 | $56,359 | $50.92 | | |
| CNTYDD | DEVELOPMENTAL DISABILITIES | 0.0052121823 | $56,359 | $56,359 | $0.29 | | |
| CNTYVET | VETERANS RELIEF | 0.0052777810 | $56,359 | $56,359 | $0.30 | | |
| MENTAL | MENTAL HEALTH | 0.0052121823 | $56,359 | $56,359 | $0.29 | | |
| ROADS | COUNTY ROADS | 0.7415066410 | $56,359 | $56,359 | $41.79 | | |
| ROADSCU | COUNTY ROADS TO CUR EXP | 0.0000000000 | $56,359 | $56,359 | $0.00 | | |
| HOSP2CASH | HOSP DIST #2 GENERAL | 0.0536075306 | $56,359 | $56,359 | $3.02 | | |
| SCH48MO | SCHOOL DIST #48 EP & O | 1.4120478917 | $56,359 | $56,359 | $79.58 | | |
| CEM2 | CEMETERY DIST #2 GENERAL | 0.0241266154 | $56,359 | $56,359 | $1.36 | | |
| CONSERVE | CONSERVATION FUTURES | 0.0275621078 | $56,359 | $56,359 | $1.55 | | |
| FD2 | FIRE DIST #2 GENERAL | 0.7549976873 | $56,359 | $56,359 | $42.55 | | |
| LIB1 | LIBRARY DIST #1 GENERAL | 0.2868827388 | $56,359 | $56,359 | $16.17 | | |
| PORTPT | PORT OF PT GENERAL | 0.1134941229 | $56,359 | $56,359 | $6.40 | | |
| PORTPTIDD | PORT OF PT IDD 2019 | 0.2577346692 | $56,359 | $56,359 | $14.53 | | |
| PUD1 | PUD #1 GENERAL | 0.0597888892 | $56,359 | $56,359 | $3.37 | | |
| STATE | STATE SCHOOL PART 1 | 1.4940692947 | $56,359 | $56,359 | $84.20 | | |
| STATE2 | STATE SCHOOL PART 2 | 0.8050170049 | $56,359 | $56,359 | $45.37 | | |
| EMS2 | FIRE DIST #2 EMS | 0.4251727858 | $56,359 | $56,359 | $23.96 | | |
| | Total Tax Rate: | 7.3751720728 | | | | | |
| | | | | Taxes w/Current Exemptions: | $415.65 | | |
| | | | | Taxes w/o Exemptions: | $415.65 | | |
Improvement / Building
Sketch
| No sketches available for this property. |
Property Image
Land
| 1 | 2345-1355S | | 1.0000 | 43560.00 | 0.00 | 0.00 | 1.00 | $34,500 | $0 |
| 2 | 1575A | | 3.9600 | 172497.60 | 0.00 | 0.00 | 0.00 | $21,859 | $0 |
Roll Value History
| 2026 | N/A | N/A | N/A | N/A | N/A |
| 2025 | $0 | $56,359 | $0 | $56,359 | $56,359 |
| 2024 | $0 | $53,909 | $0 | $53,909 | $53,909 |
| 2023 | $0 | $47,820 | $0 | $47,820 | $47,820 |
| 2022 | $0 | $46,038 | $0 | $46,038 | $46,038 |
Deed and Sales History
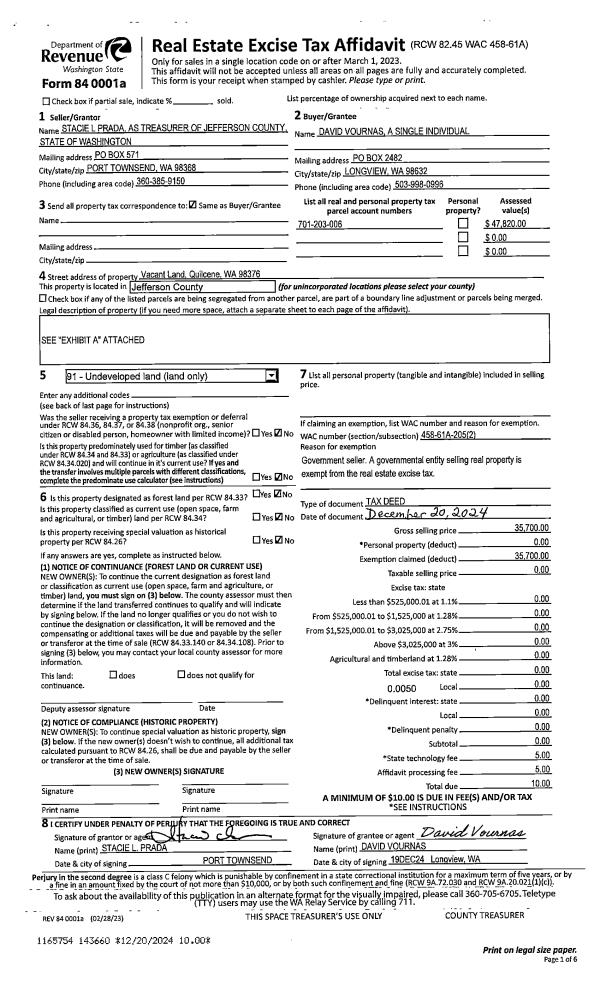
| 1 | 12/20/2024 | TXD | Tax Deed | JEFFERSON COUNTY | DAVID VOURNAS | | | $35,700.00 | 143660 | |
| 2 | 02/14/2005 | SWD | Statutory Warranty Deed | LINNENKAMP, JAMES & MARLE | SHAW, EVAN & HU, HSIAO-CHEN HU | 0 | 0 | $32,000.00 | 102751 | 0 |
| 3 | 07/16/2002 | SWD | Statutory Warranty Deed | DAVID LINNENKAMP | JAMES & MARLENE LINNENKAMP | 0 | 0 | $20,500.00 | 95178 | 0 |
Payout Agreement
| No payout information available.. |