Property
Account |
| Property ID: | 17511 | Abbreviated Legal Description: | QUILCENE BAY VISTA LOT 2 SURVEY V9/P136 |
| Parcel # / Geo ID: | 701205002 | Agent Code: | |
| Type: | Real | | |
| Tax Area: | 0321 - 1-48F2E2H2C2L1 | Land Use Code | 18 |
| Open Space: | N | DFL | N |
| Historic Property: | N | Remodel Property: | N |
| Multi-Family Redevelopment: | N | | |
| Township: | 27N | Section: | 20 |
| Range: | 1W |
Location |
| Address: | 12 OLD LINDSAY HILL RD QUILCENE, WA 98376 | Mapsco: | 182/056 |
| Neighborhood: | S19T27R1W(W OF BAY)/QUIL BAY VISTA/QUILCREST/HOY/BATCHELDER | Map ID: | |
| Neighborhood CD: | 2340 |
Owner |
| Name: | SAMANTHA L PEPPER | Owner ID: | 110849 |
| Mailing Address: | JOEL T PEPPER 904 BILLINGS ST HENDERSON, NV 89002-9541 | % Ownership: | 100.0000000000% |
| | | Exemptions: | |
Pay Tax Due
Select the appropriate checkbox next to the year to be paid. Multiple years may be selected.
*Convenience Fee not included
Taxes and Assessment Details
Property Tax Information as of
03/11/2026
Click on "Statement Details" to expand or collapse a tax statement.
* Please enter a valid date ** Please enter a valid date *
Statement Details |
| 2026 | 7053 | STATE - STATE LEVY (SCHOOL) | $224.56 | $224.54 | $0.00 | $0.00 | $0.00 | $449.10 |
| 2026 | 7053 | COUNTY - COUNTY LEVIES (CE, DD, VET, MH) | $89.78 | $89.77 | $0.00 | $0.00 | $0.00 | $179.55 |
| 2026 | 7053 | CONSERVE - CONSERVATION FUTURES | $2.69 | $2.69 | $0.00 | $0.00 | $0.00 | $5.38 |
| 2026 | 7053 | COROADS - COUNTY ROADS (ROADS, DIV TO CE) | $72.42 | $72.42 | $0.00 | $0.00 | $0.00 | $144.84 |
| 2026 | 7053 | PORTPT - PORT DISTRICT | $36.26 | $36.25 | $0.00 | $0.00 | $0.00 | $72.51 |
| 2026 | 7053 | PUD1 - PUD #1 | $5.84 | $5.84 | $0.00 | $0.00 | $0.00 | $11.68 |
| 2026 | 7053 | LIB1 - LIBRARY DIST #1 | $28.02 | $28.02 | $0.00 | $0.00 | $0.00 | $56.04 |
| 2026 | 7053 | HD2 - HOSP DIST #2 | $5.24 | $5.23 | $0.00 | $0.00 | $0.00 | $10.47 |
| 2026 | 7053 | SD48 - SCHOOL DIST #48 | $137.91 | $137.91 | $0.00 | $0.00 | $0.00 | $275.82 |
| 2026 | 7053 | FD2 - FIRE DISTRICT #2 | $73.74 | $73.74 | $0.00 | $0.00 | $0.00 | $147.48 |
| 2026 | 7053 | EMS2 - FIRE DIST #2 EMS | $41.53 | $41.52 | $0.00 | $0.00 | $0.00 | $83.05 |
| 2026 | 7053 | CEM2 - CEMETERY DIST #2 | $2.36 | $2.35 | $0.00 | $0.00 | $0.00 | $4.71 |
| 2026 | 7053 | FPLCA - DNR Landowner Contingency Assmt | $3.00 | $3.00 | $0.00 | $0.00 | $0.00 | $6.00 |
| 2026 | 7053 | JCCD - JC Conservation District | $2.73 | $2.73 | $0.00 | $0.00 | $0.00 | $5.46 |
| 2026 | 7053 | NWA - Noxious Weed Assessment | $4.10 | $4.10 | $0.00 | $0.00 | $0.00 | $8.20 |
| 2026 | 7053 | OSS - On Site Septic | $23.10 | $23.10 | $0.00 | $0.00 | $0.00 | $46.20 |
| 2026 | 7053 | WAT - Clean Water District | $13.00 | $13.00 | $0.00 | $0.00 | $0.00 | $26.00 |
| 2026 | 7053 | TOTAL: | $766.28 | $766.21 | $0.00 | $0.00 | $0.00 | $1532.49 |
|
| 2026 | 7053 | $766.28 | $766.21 | $0.00 | $0.00 | $0.00 | $1532.49 |
Statement Details |
| 2025 | 7074 | STATE - STATE LEVY (SCHOOL) | $224.24 | $224.23 | $0.00 | $0.00 | $448.47 | $0.00 |
| 2025 | 7074 | COUNTY - COUNTY LEVIES (CE, DD, VET, MH) | $88.19 | $88.17 | $0.00 | $0.00 | $176.36 | $0.00 |
| 2025 | 7074 | CONSERVE - CONSERVATION FUTURES | $2.65 | $2.64 | $0.00 | $0.00 | $5.29 | $0.00 |
| 2025 | 7074 | COROADS - COUNTY ROADS (ROADS, DIV TO CE) | $70.65 | $70.64 | $0.00 | $0.00 | $141.29 | $0.00 |
| 2025 | 7074 | PORTPT - PORT DISTRICT | $35.99 | $35.98 | $0.00 | $0.00 | $71.97 | $0.00 |
| 2025 | 7074 | PUD1 - PUD #1 | $5.77 | $5.77 | $0.00 | $0.00 | $11.54 | $0.00 |
| 2025 | 7074 | LIB1 - LIBRARY DIST #1 | $27.33 | $27.33 | $0.00 | $0.00 | $54.66 | $0.00 |
| 2025 | 7074 | HD2 - HOSP DIST #2 | $5.15 | $5.14 | $0.00 | $0.00 | $10.29 | $0.00 |
| 2025 | 7074 | SD48 - SCHOOL DIST #48 | $132.05 | $132.04 | $0.00 | $0.00 | $264.09 | $0.00 |
| 2025 | 7074 | FD2 - FIRE DISTRICT #2 | $72.91 | $72.90 | $0.00 | $0.00 | $145.81 | $0.00 |
| 2025 | 7074 | EMS2 - FIRE DIST #2 EMS | $41.05 | $41.05 | $0.00 | $0.00 | $82.10 | $0.00 |
| 2025 | 7074 | CEM2 - CEMETERY DIST #2 | $2.33 | $2.32 | $0.00 | $0.00 | $4.65 | $0.00 |
| 2025 | 7074 | FPLCA - DNR Landowner Contingency Assmt | $3.00 | $3.00 | $0.00 | $0.00 | $6.00 | $0.00 |
| 2025 | 7074 | JCCD - JC Conservation District | $2.80 | $2.80 | $0.00 | $0.00 | $5.60 | $0.00 |
| 2025 | 7074 | NWA - Noxious Weed Assessment | $2.90 | $2.90 | $0.00 | $0.00 | $5.80 | $0.00 |
| 2025 | 7074 | OSS - On Site Septic | $21.50 | $21.50 | $0.00 | $0.00 | $43.00 | $0.00 |
| 2025 | 7074 | WAT - Clean Water District | $13.00 | $13.00 | $0.00 | $0.00 | $26.00 | $0.00 |
| 2025 | 7074 | TOTAL: | $751.51 | $751.41 | $0.00 | $0.00 | $1502.92 | $0.00 |
|
| 2025 | 7074 | $751.51 | $751.41 | $0.00 | $0.00 | $1502.92 | $0.00 |
Statement Details |
| 2024 | 7096 | STATE - STATE LEVY (SCHOOL) | $195.71 | $195.70 | $0.00 | $0.00 | $391.41 | $0.00 |
| 2024 | 7096 | COUNTY - COUNTY LEVIES (CE, DD, VET, MH) | $83.76 | $83.74 | $0.00 | $0.00 | $167.50 | $0.00 |
| 2024 | 7096 | CONSERVE - CONSERVATION FUTURES | $2.51 | $2.51 | $0.00 | $0.00 | $5.02 | $0.00 |
| 2024 | 7096 | COROADS - COUNTY ROADS (ROADS, DIV TO CE) | $67.39 | $67.38 | $0.00 | $0.00 | $134.77 | $0.00 |
| 2024 | 7096 | PORTPT - PORT DISTRICT | $34.59 | $34.59 | $0.00 | $0.00 | $69.18 | $0.00 |
| 2024 | 7096 | PUD1 - PUD #1 | $5.50 | $5.50 | $0.00 | $0.00 | $11.00 | $0.00 |
| 2024 | 7096 | LIB1 - LIBRARY DIST #1 | $26.07 | $26.07 | $0.00 | $0.00 | $52.14 | $0.00 |
| 2024 | 7096 | HD2 - HOSP DIST #2 | $4.89 | $4.88 | $0.00 | $0.00 | $9.77 | $0.00 |
| 2024 | 7096 | SD48 - SCHOOL DIST #48 | $87.65 | $87.65 | $0.00 | $0.00 | $175.30 | $0.00 |
| 2024 | 7096 | FD2 - FIRE DISTRICT #2 | $69.62 | $69.62 | $0.00 | $0.00 | $139.24 | $0.00 |
| 2024 | 7096 | EMS2 - FIRE DIST #2 EMS | $39.19 | $39.19 | $0.00 | $0.00 | $78.38 | $0.00 |
| 2024 | 7096 | CEM2 - CEMETERY DIST #2 | $2.23 | $2.23 | $0.00 | $0.00 | $4.46 | $0.00 |
| 2024 | 7096 | FPLCA - DNR Landowner Contingency Assmt | $3.00 | $3.00 | $0.00 | $0.00 | $6.00 | $0.00 |
| 2024 | 7096 | JCCD - JC Conservation District | $2.80 | $2.80 | $0.00 | $0.00 | $5.60 | $0.00 |
| 2024 | 7096 | NWA - Noxious Weed Assessment | $2.90 | $2.90 | $0.00 | $0.00 | $5.80 | $0.00 |
| 2024 | 7096 | OSS - On Site Septic | $21.00 | $21.00 | $0.00 | $0.00 | $42.00 | $0.00 |
| 2024 | 7096 | WAT - Clean Water District | $12.50 | $12.50 | $0.00 | $0.00 | $25.00 | $0.00 |
| 2024 | 7096 | TOTAL: | $661.31 | $661.26 | $0.00 | $0.00 | $1322.57 | $0.00 |
|
| 2024 | 7096 | $661.31 | $661.26 | $0.00 | $0.00 | $1322.57 | $0.00 |
Statement Details |
| 2023 | 7110 | STATE - STATE LEVY (SCHOOL) | $182.18 | $182.17 | $0.00 | $0.00 | $364.35 | $0.00 |
| 2023 | 7110 | COUNTY - COUNTY LEVIES (CE, DD, VET, MH) | $79.50 | $79.48 | $0.00 | $0.00 | $158.98 | $0.00 |
| 2023 | 7110 | CONSERVE - CONSERVATION FUTURES | $2.39 | $2.38 | $0.00 | $0.00 | $4.77 | $0.00 |
| 2023 | 7110 | COROADS - COUNTY ROADS (ROADS, DIV TO CE) | $64.32 | $64.31 | $0.00 | $0.00 | $128.63 | $0.00 |
| 2023 | 7110 | PORTPT - PORT DISTRICT | $33.49 | $33.48 | $0.00 | $0.00 | $66.97 | $0.00 |
| 2023 | 7110 | PUD1 - PUD #1 | $5.27 | $5.27 | $0.00 | $0.00 | $10.54 | $0.00 |
| 2023 | 7110 | LIB1 - LIBRARY DIST #1 | $24.89 | $24.88 | $0.00 | $0.00 | $49.77 | $0.00 |
| 2023 | 7110 | HD2 - HOSP DIST #2 | $4.65 | $4.63 | $0.00 | $0.00 | $9.28 | $0.00 |
| 2023 | 7110 | SD48 - SCHOOL DIST #48 | $87.98 | $87.97 | $0.00 | $0.00 | $175.95 | $0.00 |
| 2023 | 7110 | FD2 - FIRE DISTRICT #2 | $69.01 | $69.00 | $0.00 | $0.00 | $138.01 | $0.00 |
| 2023 | 7110 | EMS2 - FIRE DIST #2 EMS | $38.69 | $38.69 | $0.00 | $0.00 | $77.38 | $0.00 |
| 2023 | 7110 | CEM2 - CEMETERY DIST #2 | $2.20 | $2.19 | $0.00 | $0.00 | $4.39 | $0.00 |
| 2023 | 7110 | FPLCA - DNR Landowner Contingency Assmt | $3.00 | $3.00 | $0.00 | $0.00 | $6.00 | $0.00 |
| 2023 | 7110 | JCCD - JC Conservation District | $2.80 | $2.80 | $0.00 | $0.00 | $5.60 | $0.00 |
| 2023 | 7110 | NWA - Noxious Weed Assessment | $2.90 | $2.90 | $0.00 | $0.00 | $5.80 | $0.00 |
| 2023 | 7110 | OSS - On Site Septic | $20.50 | $20.50 | $0.00 | $0.00 | $41.00 | $0.00 |
| 2023 | 7110 | WAT - Clean Water District | $12.00 | $12.00 | $0.00 | $0.00 | $24.00 | $0.00 |
| 2023 | 7110 | TOTAL: | $635.77 | $635.65 | $0.00 | $0.00 | $1271.42 | $0.00 |
|
| 2023 | 7110 | $635.77 | $635.65 | $0.00 | $0.00 | $1271.42 | $0.00 |
Values
| (+) Improvement Homesite Value: | + | $0 | |
| (+) Improvement Non-Homesite Value: | + | $96,712 | |
| (+) Land Homesite Value: | + | $0 | |
| (+) Land Non-Homesite Value: | + | $98,624 | |
| (+) Curr Use (HS): | + | $0 | $0 |
| (+) Curr Use (NHS): | + | $0 | $0 |
| | | -------------------------- | |
| (=) Market Value: | = | $195,336 | |
| (–) Productivity Loss: | – | $0 | |
| | | -------------------------- | |
| (=) Subtotal: | = | $195,336 | |
| (+) Senior Appraised Value: | + | $0 | |
| (+) Non-Senior Appraised Value: | + | $195,336 | |
| | | -------------------------- | |
| (=) Total Appraised Value: | = | $195,336 | |
| (–) Senior Exemption Loss: | – | $0 | |
| (–) Exemption Loss: | – | $0 | |
| | | -------------------------- | |
| (=) Taxable Value: | = | $195,336 | |
Taxing Jurisdiction
| Owner: | SAMANTHA L PEPPER | | |
| % Ownership: | 100.0000000000% | | |
| Total Value: | $195,336 | | |
| Tax Area: | 0321 - 1-48F2E2H2C2L1 |
| CE | COUNTY CURRENT EXPENSE | 0.9034619479 | $195,336 | $195,336 | $176.48 | | |
| CNTYDD | DEVELOPMENTAL DISABILITIES | 0.0052121823 | $195,336 | $195,336 | $1.02 | | |
| CNTYVET | VETERANS RELIEF | 0.0052777810 | $195,336 | $195,336 | $1.03 | | |
| MENTAL | MENTAL HEALTH | 0.0052121823 | $195,336 | $195,336 | $1.02 | | |
| ROADS | COUNTY ROADS | 0.7415066410 | $195,336 | $195,336 | $144.84 | | |
| ROADSCU | COUNTY ROADS TO CUR EXP | 0.0000000000 | $195,336 | $195,336 | $0.00 | | |
| HOSP2CASH | HOSP DIST #2 GENERAL | 0.0536075306 | $195,336 | $195,336 | $10.47 | | |
| SCH48MO | SCHOOL DIST #48 EP & O | 1.4120478917 | $195,336 | $195,336 | $275.82 | | |
| CEM2 | CEMETERY DIST #2 GENERAL | 0.0241266154 | $195,336 | $195,336 | $4.71 | | |
| CONSERVE | CONSERVATION FUTURES | 0.0275621078 | $195,336 | $195,336 | $5.38 | | |
| FD2 | FIRE DIST #2 GENERAL | 0.7549976873 | $195,336 | $195,336 | $147.48 | | |
| LIB1 | LIBRARY DIST #1 GENERAL | 0.2868827388 | $195,336 | $195,336 | $56.04 | | |
| PORTPT | PORT OF PT GENERAL | 0.1134941229 | $195,336 | $195,336 | $22.17 | | |
| PORTPTIDD | PORT OF PT IDD 2019 | 0.2577346692 | $195,336 | $195,336 | $50.34 | | |
| PUD1 | PUD #1 GENERAL | 0.0597888892 | $195,336 | $195,336 | $11.68 | | |
| STATE | STATE SCHOOL PART 1 | 1.4940692947 | $195,336 | $195,336 | $291.85 | | |
| STATE2 | STATE SCHOOL PART 2 | 0.8050170049 | $195,336 | $195,336 | $157.25 | | |
| EMS2 | FIRE DIST #2 EMS | 0.4251727858 | $195,336 | $195,336 | $83.05 | | |
| | Total Tax Rate: | 7.3751720728 | | | | | |
| | | | | Taxes w/Current Exemptions: | $1,440.63 | | |
| | | | | Taxes w/o Exemptions: | $1,440.63 | | |
Improvement / Building
| Improvement #1: | Residential Bldg | State Code: | 19 | 0.0 sqft | Value: | $96,712 |
Sketch
Property Image
Land
| 1 | 1575A | | 4.4700 | 194713.20 | 0.00 | 0.00 | 0.00 | $41,124 | $0 |
| 2 | 2340-1375S | | 1.0000 | 43560.00 | 0.00 | 0.00 | 1.00 | $57,500 | $0 |
Roll Value History
| 2026 | N/A | N/A | N/A | N/A | N/A |
| 2025 | $96,712 | $98,624 | $0 | $195,336 | $195,336 |
| 2024 | $92,682 | $94,336 | $0 | $187,018 | $187,018 |
| 2023 | $88,652 | $80,525 | $0 | $169,177 | $169,177 |
| 2022 | $80,593 | $74,173 | $0 | $154,766 | $154,766 |
Deed and Sales History
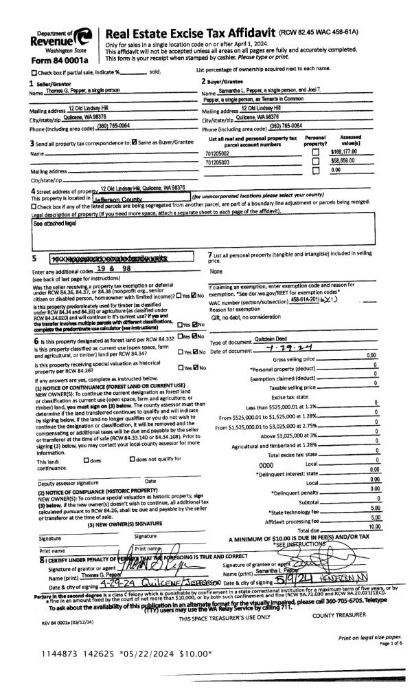
| 1 | 04/29/2024 | QCD | Quit Claim Deed | THOMAS G PEPPER | SAMANTHA L PEPPER | | | | 142625 | |
| 2 | 03/02/1995 | SWD | Statutory Warranty Deed | PATTEN CORPORATION | PEPPER, THOMAS G | 0 | 0 | $0.00 | 76454 | 0 |
| 3 | 12/09/1994 | QCD | Quit Claim Deed | BANKERS TRUST COMPANY | PATTEN CORPORATION | 0 | 0 | $0.00 | 76453 | 0 |
| 4 | 06/29/1994 | WD | Warranty Deed | BLACKSTONE CORPORATION | BANKERS TRUST COMPANY | 0 | 0 | $0.00 | 74696 | 0 |
Payout Agreement
| No payout information available.. |