Property
Account |
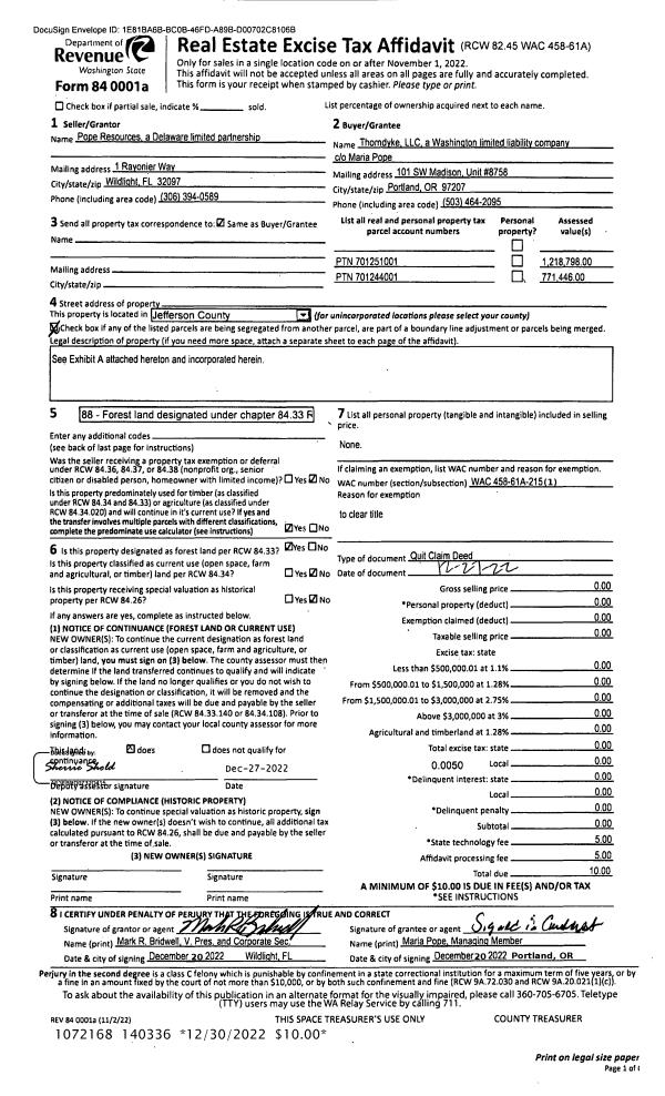
| Property ID: | 17573 | Abbreviated Legal Description: | S25 T27N R1W W1/4(LS E150' OF THE N3717.77' W/RD) - PARCEL C BND THRU LOT CERTIFICATION MLA#22-00061/AF#6581061 |
| Parcel # / Geo ID: | 701251001 | Agent Code: | |
| Type: | Real | | |
| Tax Area: | 0323 - 1-48F2E2P1H2C2L1 | Land Use Code | 88 |
| Open Space: | N | DFL | Y |
| Historic Property: | N | Remodel Property: | N |
| Multi-Family Redevelopment: | N | | |
| Township: | 27N | Section: | 25 |
| Range: | 1W |
Location |
| Address: | | Mapsco: | 145/017A |
| Neighborhood: | S24 & S25 T27N R1W | Map ID: | |
| Neighborhood CD: | 2375 |
Owner |
| Name: | POPE RESOURCES | Owner ID: | 25002 |
| Mailing Address: | C/O PROPERTY TAX COORDINATOR 1 RAYONIER WY YULEE, FL 32097 | % Ownership: | 100.0000000000% |
| | | Exemptions: | |
Pay Tax Due
Select the appropriate checkbox next to the year to be paid. Multiple years may be selected.
*Convenience Fee not included
Taxes and Assessment Details
Property Tax Information as of
03/11/2026
Click on "Statement Details" to expand or collapse a tax statement.
* Please enter a valid date ** Please enter a valid date *
Statement Details |
| 2026 | 7112 | STATE - STATE LEVY (SCHOOL) | $23.00 | $22.99 | $0.00 | $0.00 | $0.00 | $45.99 |
| 2026 | 7112 | COUNTY - COUNTY LEVIES (CE, DD, VET, MH) | $9.20 | $9.18 | $0.00 | $0.00 | $0.00 | $18.38 |
| 2026 | 7112 | CONSERVE - CONSERVATION FUTURES | $0.28 | $0.27 | $0.00 | $0.00 | $0.00 | $0.55 |
| 2026 | 7112 | COROADS - COUNTY ROADS (ROADS, DIV TO CE) | $7.42 | $7.41 | $0.00 | $0.00 | $0.00 | $14.83 |
| 2026 | 7112 | PORTPT - PORT DISTRICT | $3.72 | $3.71 | $0.00 | $0.00 | $0.00 | $7.43 |
| 2026 | 7112 | PUD1 - PUD #1 | $0.60 | $0.60 | $0.00 | $0.00 | $0.00 | $1.20 |
| 2026 | 7112 | LIB1 - LIBRARY DIST #1 | $2.87 | $2.87 | $0.00 | $0.00 | $0.00 | $5.74 |
| 2026 | 7112 | HD2 - HOSP DIST #2 | $0.54 | $0.53 | $0.00 | $0.00 | $0.00 | $1.07 |
| 2026 | 7112 | SD48 - SCHOOL DIST #48 | $14.13 | $14.12 | $0.00 | $0.00 | $0.00 | $28.25 |
| 2026 | 7112 | FD2 - FIRE DISTRICT #2 | $7.55 | $7.55 | $0.00 | $0.00 | $0.00 | $15.10 |
| 2026 | 7112 | EMS2 - FIRE DIST #2 EMS | $4.26 | $4.25 | $0.00 | $0.00 | $0.00 | $8.51 |
| 2026 | 7112 | CEM2 - CEMETERY DIST #2 | $0.24 | $0.24 | $0.00 | $0.00 | $0.00 | $0.48 |
| 2026 | 7112 | PARK1 - PARK & REC DIST #1 | $1.48 | $1.47 | $0.00 | $0.00 | $0.00 | $2.95 |
| 2026 | 7112 | FP - DNR Forest Fire Protection Assmt | $21.34 | $21.34 | $0.00 | $0.00 | $0.00 | $42.68 |
| 2026 | 7112 | FPLCA - DNR Landowner Contingency Assmt | $10.14 | $10.13 | $0.00 | $0.00 | $0.00 | $20.27 |
| 2026 | 7112 | NWA - Noxious Weed Assessment | $3.54 | $3.54 | $0.00 | $0.00 | $0.00 | $7.08 |
| 2026 | 7112 | OSS - On Site Septic | $23.10 | $23.10 | $0.00 | $0.00 | $0.00 | $46.20 |
| 2026 | 7112 | FP ADMIN - FP ADMIN | $0.50 | $0.00 | $0.00 | $0.00 | $0.00 | $0.50 |
| 2026 | 7112 | TOTAL: | $133.91 | $133.30 | $0.00 | $0.00 | $0.00 | $267.21 |
|
| 2026 | 7112 | $133.91 | $133.30 | $0.00 | $0.00 | $0.00 | $267.21 |
Statement Details |
| 2025 | 7133 | STATE - STATE LEVY (SCHOOL) | $24.09 | $24.07 | $0.00 | $0.00 | $48.16 | $0.00 |
| 2025 | 7133 | COUNTY - COUNTY LEVIES (CE, DD, VET, MH) | $9.49 | $9.46 | $0.00 | $0.00 | $18.95 | $0.00 |
| 2025 | 7133 | CONSERVE - CONSERVATION FUTURES | $0.29 | $0.28 | $0.00 | $0.00 | $0.57 | $0.00 |
| 2025 | 7133 | COROADS - COUNTY ROADS (ROADS, DIV TO CE) | $7.59 | $7.58 | $0.00 | $0.00 | $15.17 | $0.00 |
| 2025 | 7133 | PORTPT - PORT DISTRICT | $3.87 | $3.86 | $0.00 | $0.00 | $7.73 | $0.00 |
| 2025 | 7133 | PUD1 - PUD #1 | $0.62 | $0.62 | $0.00 | $0.00 | $1.24 | $0.00 |
| 2025 | 7133 | LIB1 - LIBRARY DIST #1 | $2.94 | $2.93 | $0.00 | $0.00 | $5.87 | $0.00 |
| 2025 | 7133 | HD2 - HOSP DIST #2 | $0.55 | $0.55 | $0.00 | $0.00 | $1.10 | $0.00 |
| 2025 | 7133 | SD48 - SCHOOL DIST #48 | $14.18 | $14.18 | $0.00 | $0.00 | $28.36 | $0.00 |
| 2025 | 7133 | FD2 - FIRE DISTRICT #2 | $7.83 | $7.83 | $0.00 | $0.00 | $15.66 | $0.00 |
| 2025 | 7133 | EMS2 - FIRE DIST #2 EMS | $4.41 | $4.41 | $0.00 | $0.00 | $8.82 | $0.00 |
| 2025 | 7133 | CEM2 - CEMETERY DIST #2 | $0.25 | $0.25 | $0.00 | $0.00 | $0.50 | $0.00 |
| 2025 | 7133 | PARK1 - PARK & REC DIST #1 | $1.15 | $1.14 | $0.00 | $0.00 | $2.29 | $0.00 |
| 2025 | 7133 | FP - DNR Forest Fire Protection Assmt | $21.34 | $21.34 | $0.00 | $0.00 | $42.68 | $0.00 |
| 2025 | 7133 | FPLCA - DNR Landowner Contingency Assmt | $10.14 | $10.13 | $0.00 | $0.00 | $20.27 | $0.00 |
| 2025 | 7133 | NWA - Noxious Weed Assessment | $2.38 | $2.37 | $0.00 | $0.00 | $4.75 | $0.00 |
| 2025 | 7133 | OSS - On Site Septic | $21.50 | $21.50 | $0.00 | $0.00 | $43.00 | $0.00 |
| 2025 | 7133 | FP ADMIN - FP ADMIN | $0.50 | $0.00 | $0.00 | $0.00 | $0.50 | $0.00 |
| 2025 | 7133 | TOTAL: | $133.12 | $132.50 | $0.00 | $0.00 | $265.62 | $0.00 |
|
| 2025 | 7133 | $133.12 | $132.50 | $0.00 | $0.00 | $265.62 | $0.00 |
Statement Details |
| 2024 | 7155 | STATE - STATE LEVY (SCHOOL) | $22.88 | $22.86 | $0.00 | $0.00 | $45.74 | $0.00 |
| 2024 | 7155 | COUNTY - COUNTY LEVIES (CE, DD, VET, MH) | $9.80 | $9.77 | $0.00 | $0.00 | $19.57 | $0.00 |
| 2024 | 7155 | CONSERVE - CONSERVATION FUTURES | $0.30 | $0.29 | $0.00 | $0.00 | $0.59 | $0.00 |
| 2024 | 7155 | COROADS - COUNTY ROADS (ROADS, DIV TO CE) | $7.88 | $7.87 | $0.00 | $0.00 | $15.75 | $0.00 |
| 2024 | 7155 | PORTPT - PORT DISTRICT | $4.05 | $4.04 | $0.00 | $0.00 | $8.09 | $0.00 |
| 2024 | 7155 | PUD1 - PUD #1 | $0.65 | $0.64 | $0.00 | $0.00 | $1.29 | $0.00 |
| 2024 | 7155 | LIB1 - LIBRARY DIST #1 | $3.05 | $3.04 | $0.00 | $0.00 | $6.09 | $0.00 |
| 2024 | 7155 | HD2 - HOSP DIST #2 | $0.57 | $0.57 | $0.00 | $0.00 | $1.14 | $0.00 |
| 2024 | 7155 | SD48 - SCHOOL DIST #48 | $10.25 | $10.24 | $0.00 | $0.00 | $20.49 | $0.00 |
| 2024 | 7155 | FD2 - FIRE DISTRICT #2 | $8.14 | $8.13 | $0.00 | $0.00 | $16.27 | $0.00 |
| 2024 | 7155 | EMS2 - FIRE DIST #2 EMS | $4.58 | $4.58 | $0.00 | $0.00 | $9.16 | $0.00 |
| 2024 | 7155 | CEM2 - CEMETERY DIST #2 | $0.26 | $0.26 | $0.00 | $0.00 | $0.52 | $0.00 |
| 2024 | 7155 | PARK1 - PARK & REC DIST #1 | $1.15 | $1.14 | $0.00 | $0.00 | $2.29 | $0.00 |
| 2024 | 7155 | FP - DNR Forest Fire Protection Assmt | $32.50 | $32.50 | $0.00 | $0.00 | $65.00 | $0.00 |
| 2024 | 7155 | FPLCA - DNR Landowner Contingency Assmt | $16.34 | $16.33 | $0.00 | $0.00 | $32.67 | $0.00 |
| 2024 | 7155 | NWA - Noxious Weed Assessment | $2.38 | $2.37 | $0.00 | $0.00 | $4.75 | $0.00 |
| 2024 | 7155 | OSS - On Site Septic | $21.00 | $21.00 | $0.00 | $0.00 | $42.00 | $0.00 |
| 2024 | 7155 | FP ADMIN - FP ADMIN | $0.50 | $0.00 | $0.00 | $0.00 | $0.50 | $0.00 |
| 2024 | 7155 | TOTAL: | $146.28 | $145.63 | $0.00 | $0.00 | $291.91 | $0.00 |
|
| 2024 | 7155 | $146.28 | $145.63 | $0.00 | $0.00 | $291.91 | $0.00 |
Statement Details |
| 2023 | 7169 | STATE - STATE LEVY (SCHOOL) | $45.28 | $0.00 | $0.00 | $0.00 | $45.28 | $0.00 |
| 2023 | 7169 | COUNTY - COUNTY LEVIES (CE, DD, VET, MH) | $19.75 | $0.00 | $0.00 | $0.00 | $19.75 | $0.00 |
| 2023 | 7169 | CONSERVE - CONSERVATION FUTURES | $0.59 | $0.00 | $0.00 | $0.00 | $0.59 | $0.00 |
| 2023 | 7169 | COROADS - COUNTY ROADS (ROADS, DIV TO CE) | $15.98 | $0.00 | $0.00 | $0.00 | $15.98 | $0.00 |
| 2023 | 7169 | PORTPT - PORT DISTRICT | $8.32 | $0.00 | $0.00 | $0.00 | $8.32 | $0.00 |
| 2023 | 7169 | PUD1 - PUD #1 | $1.31 | $0.00 | $0.00 | $0.00 | $1.31 | $0.00 |
| 2023 | 7169 | LIB1 - LIBRARY DIST #1 | $6.18 | $0.00 | $0.00 | $0.00 | $6.18 | $0.00 |
| 2023 | 7169 | HD2 - HOSP DIST #2 | $1.15 | $0.00 | $0.00 | $0.00 | $1.15 | $0.00 |
| 2023 | 7169 | SD48 - SCHOOL DIST #48 | $21.87 | $0.00 | $0.00 | $0.00 | $21.87 | $0.00 |
| 2023 | 7169 | FD2 - FIRE DISTRICT #2 | $17.15 | $0.00 | $0.00 | $0.00 | $17.15 | $0.00 |
| 2023 | 7169 | EMS2 - FIRE DIST #2 EMS | $9.62 | $0.00 | $0.00 | $0.00 | $9.62 | $0.00 |
| 2023 | 7169 | CEM2 - CEMETERY DIST #2 | $0.55 | $0.00 | $0.00 | $0.00 | $0.55 | $0.00 |
| 2023 | 7169 | PARK1 - PARK & REC DIST #1 | $2.15 | $0.00 | $0.00 | $0.00 | $2.15 | $0.00 |
| 2023 | 7169 | FP - DNR Forest Fire Protection Assmt | $65.00 | $0.00 | $0.00 | $0.00 | $65.00 | $0.00 |
| 2023 | 7169 | FPLCA - DNR Landowner Contingency Assmt | $32.67 | $0.00 | $0.00 | $0.00 | $32.67 | $0.00 |
| 2023 | 7169 | NWA - Noxious Weed Assessment | $7.27 | $0.00 | $0.00 | $0.00 | $7.27 | $0.00 |
| 2023 | 7169 | OSS - On Site Septic | $41.00 | $0.00 | $0.00 | $0.00 | $41.00 | $0.00 |
| 2023 | 7169 | WAT - Clean Water District | $24.00 | $0.00 | $0.00 | $0.00 | $24.00 | $0.00 |
| 2023 | 7169 | FP ADMIN - FP ADMIN | $0.50 | $0.00 | $0.00 | $0.00 | $0.50 | $0.00 |
| 2023 | 7169 | TOTAL: | $320.34 | $0.00 | $0.00 | $0.00 | $320.34 | $0.00 |
|
| 2023 | 7169 | $320.34 | $0.00 | $0.00 | $0.00 | $320.34 | $0.00 |
Values
| (+) Improvement Homesite Value: | + | $0 | |
| (+) Improvement Non-Homesite Value: | + | $0 | |
| (+) Land Homesite Value: | + | $0 | |
| (+) Land Non-Homesite Value: | + | $0 | |
| (+) Curr Use (HS): | + | $0 | $0 |
| (+) Curr Use (NHS): | + | $888,990 | $20,004 |
| | | -------------------------- | |
| (=) Market Value: | = | $888,990 | |
| (–) Productivity Loss: | – | $868,986 | |
| | | -------------------------- | |
| (=) Subtotal: | = | $20,004 | |
| (+) Senior Appraised Value: | + | $0 | |
| (+) Non-Senior Appraised Value: | + | $20,004 | |
| | | -------------------------- | |
| (=) Total Appraised Value: | = | $20,004 | |
| (–) Senior Exemption Loss: | – | $0 | |
| (–) Exemption Loss: | – | $0 | |
| | | -------------------------- | |
| (=) Taxable Value: | = | $20,004 | |
Taxing Jurisdiction
| Owner: | POPE RESOURCES | | |
| % Ownership: | 100.0000000000% | | |
| Total Value: | $888,990 | | |
| Tax Area: | 0323 - 1-48F2E2P1H2C2L1 |
| CE | COUNTY CURRENT EXPENSE | 0.9034619479 | $20,004 | $20,004 | $18.07 | | |
| CNTYDD | DEVELOPMENTAL DISABILITIES | 0.0052121823 | $20,004 | $20,004 | $0.10 | | |
| CNTYVET | VETERANS RELIEF | 0.0052777810 | $20,004 | $20,004 | $0.11 | | |
| MENTAL | MENTAL HEALTH | 0.0052121823 | $20,004 | $20,004 | $0.10 | | |
| ROADS | COUNTY ROADS | 0.7415066410 | $20,004 | $20,004 | $14.83 | | |
| ROADSCU | COUNTY ROADS TO CUR EXP | 0.0000000000 | $20,004 | $20,004 | $0.00 | | |
| HOSP2CASH | HOSP DIST #2 GENERAL | 0.0536075306 | $20,004 | $20,004 | $1.07 | | |
| SCH48MO | SCHOOL DIST #48 EP & O | 1.4120478917 | $20,004 | $20,004 | $28.25 | | |
| CEM2 | CEMETERY DIST #2 GENERAL | 0.0241266154 | $20,004 | $20,004 | $0.48 | | |
| CONSERVE | CONSERVATION FUTURES | 0.0275621078 | $20,004 | $20,004 | $0.55 | | |
| FD2 | FIRE DIST #2 GENERAL | 0.7549976873 | $20,004 | $20,004 | $15.10 | | |
| LIB1 | LIBRARY DIST #1 GENERAL | 0.2868827388 | $20,004 | $20,004 | $5.74 | | |
| PARK1 | PARK & REC DIST #1 GENERAL | 0.1474441110 | $20,004 | $20,004 | $2.95 | | |
| PORTPT | PORT OF PT GENERAL | 0.1134941229 | $20,004 | $20,004 | $2.27 | | |
| PORTPTIDD | PORT OF PT IDD 2019 | 0.2577346692 | $20,004 | $20,004 | $5.16 | | |
| PUD1 | PUD #1 GENERAL | 0.0597888892 | $20,004 | $20,004 | $1.20 | | |
| STATE | STATE SCHOOL PART 1 | 1.4940692947 | $20,004 | $20,004 | $29.89 | | |
| STATE2 | STATE SCHOOL PART 2 | 0.8050170049 | $20,004 | $20,004 | $16.10 | | |
| EMS2 | FIRE DIST #2 EMS | 0.4251727858 | $20,004 | $20,004 | $8.51 | | |
| | Total Tax Rate: | 7.5226161838 | | | | | |
| | | | | Taxes w/Current Exemptions: | $150.48 | | |
| | | | | Taxes w/o Exemptions: | $150.48 | | |
Improvement / Building
Sketch
| No sketches available for this property. |
Property Image
Land
| 1 | 1775A | | 22.4100 | 976179.60 | 0.00 | 0.00 | 0.00 | $148,187 | $4,168 |
| 2 | 1973A | | 66.1100 | 2879751.60 | 0.00 | 0.00 | 0.00 | $399,140 | $7,404 |
| 3 | 1973A | | 56.5900 | 2465060.40 | 0.00 | 0.00 | 0.00 | $341,663 | $8,432 |
Roll Value History
| 2026 | N/A | N/A | N/A | N/A | N/A |
| 2025 | $0 | $888,990 | $20,004 | $20,004 | $20,004 |
| 2024 | $0 | $850,338 | $20,084 | $20,084 | $20,084 |
| 2023 | $0 | $773,594 | $19,770 | $19,770 | $19,770 |
| 2022 | $0 | $664,200 | $19,234 | $19,234 | $19,234 |
Deed and Sales History
Payout Agreement
| No payout information available.. |