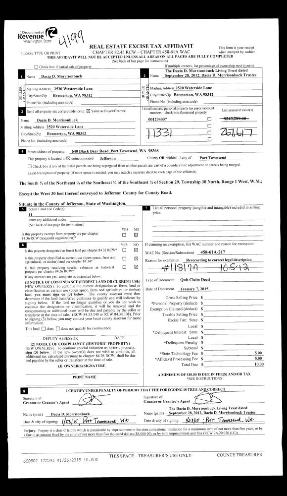
Property
Account |
| Property ID: | 17671 | Abbreviated Legal Description: | S30 T27 R1W TAX 7 (S100') LESS R/W |
| Parcel # / Geo ID: | 701301007 | Agent Code: | |
| Type: | Real | | |
| Tax Area: | 0321 - 1-48F2E2H2C2L1 | Land Use Code | 11 |
| Open Space: | N | DFL | N |
| Historic Property: | N | Remodel Property: | N |
| Multi-Family Redevelopment: | N | | |
| Township: | 27N | Section: | 30 |
| Range: | 1W |
Location |
| Address: | | Mapsco: | 148/008 |
| Neighborhood: | S30 & S31 T27N R1W + S5 & S6 T26N R1W + GAETZ & GUSTAVSON SP | Map ID: | |
| Neighborhood CD: | 2355 |
Owner |
| Name: | ADAM NEWMAN | Owner ID: | 111089 |
| Mailing Address: | RYAN NEWMAN PO BOX 872 QUILCENE, WA 98376-0872 | % Ownership: | 100.0000000000% |
| | | Exemptions: | |
Pay Tax Due
Select the appropriate checkbox next to the year to be paid. Multiple years may be selected.
*Convenience Fee not included
Taxes and Assessment Details
Property Tax Information as of
03/10/2026
Click on "Statement Details" to expand or collapse a tax statement.
* Please enter a valid date ** Please enter a valid date *
Statement Details |
| 2026 | 7209 | STATE - STATE LEVY (SCHOOL) | $56.19 | $56.18 | $0.00 | $0.00 | $0.00 | $112.37 |
| 2026 | 7209 | COUNTY - COUNTY LEVIES (CE, DD, VET, MH) | $22.47 | $22.45 | $0.00 | $0.00 | $0.00 | $44.92 |
| 2026 | 7209 | CONSERVE - CONSERVATION FUTURES | $0.68 | $0.67 | $0.00 | $0.00 | $0.00 | $1.35 |
| 2026 | 7209 | COROADS - COUNTY ROADS (ROADS, DIV TO CE) | $18.12 | $18.12 | $0.00 | $0.00 | $0.00 | $36.24 |
| 2026 | 7209 | PORTPT - PORT DISTRICT | $9.08 | $9.07 | $0.00 | $0.00 | $0.00 | $18.15 |
| 2026 | 7209 | PUD1 - PUD #1 | $1.46 | $1.46 | $0.00 | $0.00 | $0.00 | $2.92 |
| 2026 | 7209 | LIB1 - LIBRARY DIST #1 | $7.01 | $7.01 | $0.00 | $0.00 | $0.00 | $14.02 |
| 2026 | 7209 | HD2 - HOSP DIST #2 | $1.31 | $1.31 | $0.00 | $0.00 | $0.00 | $2.62 |
| 2026 | 7209 | SD48 - SCHOOL DIST #48 | $34.51 | $34.50 | $0.00 | $0.00 | $0.00 | $69.01 |
| 2026 | 7209 | FD2 - FIRE DISTRICT #2 | $18.45 | $18.45 | $0.00 | $0.00 | $0.00 | $36.90 |
| 2026 | 7209 | EMS2 - FIRE DIST #2 EMS | $10.39 | $10.39 | $0.00 | $0.00 | $0.00 | $20.78 |
| 2026 | 7209 | CEM2 - CEMETERY DIST #2 | $0.59 | $0.59 | $0.00 | $0.00 | $0.00 | $1.18 |
| 2026 | 7209 | FPLCA - DNR Landowner Contingency Assmt | $3.00 | $3.00 | $0.00 | $0.00 | $0.00 | $6.00 |
| 2026 | 7209 | JCCD - JC Conservation District | $2.60 | $2.60 | $0.00 | $0.00 | $0.00 | $5.20 |
| 2026 | 7209 | NWA - Noxious Weed Assessment | $3.20 | $3.20 | $0.00 | $0.00 | $0.00 | $6.40 |
| 2026 | 7209 | WAT - Clean Water District | $13.00 | $13.00 | $0.00 | $0.00 | $0.00 | $26.00 |
| 2026 | 7209 | TOTAL: | $202.06 | $202.00 | $0.00 | $0.00 | $0.00 | $404.06 |
|
| 2026 | 7209 | $202.06 | $202.00 | $0.00 | $0.00 | $0.00 | $404.06 |
Statement Details |
| 2025 | 7230 | STATE - STATE LEVY (SCHOOL) | $56.06 | $56.05 | $0.00 | $0.00 | $112.11 | $0.00 |
| 2025 | 7230 | COUNTY - COUNTY LEVIES (CE, DD, VET, MH) | $22.06 | $22.02 | $0.00 | $0.00 | $44.08 | $0.00 |
| 2025 | 7230 | CONSERVE - CONSERVATION FUTURES | $0.66 | $0.66 | $0.00 | $0.00 | $1.32 | $0.00 |
| 2025 | 7230 | COROADS - COUNTY ROADS (ROADS, DIV TO CE) | $17.66 | $17.66 | $0.00 | $0.00 | $35.32 | $0.00 |
| 2025 | 7230 | PORTPT - PORT DISTRICT | $9.00 | $8.99 | $0.00 | $0.00 | $17.99 | $0.00 |
| 2025 | 7230 | PUD1 - PUD #1 | $1.44 | $1.44 | $0.00 | $0.00 | $2.88 | $0.00 |
| 2025 | 7230 | LIB1 - LIBRARY DIST #1 | $6.83 | $6.83 | $0.00 | $0.00 | $13.66 | $0.00 |
| 2025 | 7230 | HD2 - HOSP DIST #2 | $1.29 | $1.28 | $0.00 | $0.00 | $2.57 | $0.00 |
| 2025 | 7230 | SD48 - SCHOOL DIST #48 | $33.01 | $33.01 | $0.00 | $0.00 | $66.02 | $0.00 |
| 2025 | 7230 | FD2 - FIRE DISTRICT #2 | $18.23 | $18.22 | $0.00 | $0.00 | $36.45 | $0.00 |
| 2025 | 7230 | EMS2 - FIRE DIST #2 EMS | $10.26 | $10.26 | $0.00 | $0.00 | $20.52 | $0.00 |
| 2025 | 7230 | CEM2 - CEMETERY DIST #2 | $0.58 | $0.58 | $0.00 | $0.00 | $1.16 | $0.00 |
| 2025 | 7230 | FPLCA - DNR Landowner Contingency Assmt | $3.00 | $3.00 | $0.00 | $0.00 | $6.00 | $0.00 |
| 2025 | 7230 | JCCD - JC Conservation District | $2.60 | $2.60 | $0.00 | $0.00 | $5.20 | $0.00 |
| 2025 | 7230 | NWA - Noxious Weed Assessment | $2.30 | $2.30 | $0.00 | $0.00 | $4.60 | $0.00 |
| 2025 | 7230 | WAT - Clean Water District | $13.00 | $13.00 | $0.00 | $0.00 | $26.00 | $0.00 |
| 2025 | 7230 | TOTAL: | $197.98 | $197.90 | $0.00 | $0.00 | $395.88 | $0.00 |
|
| 2025 | 7230 | $197.98 | $197.90 | $0.00 | $0.00 | $395.88 | $0.00 |
Statement Details |
| 2024 | 7253 | STATE - STATE LEVY (SCHOOL) | $49.17 | $49.16 | $0.00 | $0.00 | $98.33 | $0.00 |
| 2024 | 7253 | COUNTY - COUNTY LEVIES (CE, DD, VET, MH) | $21.04 | $21.04 | $0.00 | $0.00 | $42.08 | $0.00 |
| 2024 | 7253 | CONSERVE - CONSERVATION FUTURES | $0.63 | $0.63 | $0.00 | $0.00 | $1.26 | $0.00 |
| 2024 | 7253 | COROADS - COUNTY ROADS (ROADS, DIV TO CE) | $16.94 | $16.92 | $0.00 | $0.00 | $33.86 | $0.00 |
| 2024 | 7253 | PORTPT - PORT DISTRICT | $8.69 | $8.69 | $0.00 | $0.00 | $17.38 | $0.00 |
| 2024 | 7253 | PUD1 - PUD #1 | $1.38 | $1.38 | $0.00 | $0.00 | $2.76 | $0.00 |
| 2024 | 7253 | LIB1 - LIBRARY DIST #1 | $6.55 | $6.55 | $0.00 | $0.00 | $13.10 | $0.00 |
| 2024 | 7253 | HD2 - HOSP DIST #2 | $1.23 | $1.22 | $0.00 | $0.00 | $2.45 | $0.00 |
| 2024 | 7253 | SD48 - SCHOOL DIST #48 | $22.02 | $22.02 | $0.00 | $0.00 | $44.04 | $0.00 |
| 2024 | 7253 | FD2 - FIRE DISTRICT #2 | $17.49 | $17.49 | $0.00 | $0.00 | $34.98 | $0.00 |
| 2024 | 7253 | EMS2 - FIRE DIST #2 EMS | $9.85 | $9.84 | $0.00 | $0.00 | $19.69 | $0.00 |
| 2024 | 7253 | CEM2 - CEMETERY DIST #2 | $0.56 | $0.56 | $0.00 | $0.00 | $1.12 | $0.00 |
| 2024 | 7253 | FPLCA - DNR Landowner Contingency Assmt | $3.00 | $3.00 | $0.00 | $0.00 | $6.00 | $0.00 |
| 2024 | 7253 | JCCD - JC Conservation District | $2.60 | $2.60 | $0.00 | $0.00 | $5.20 | $0.00 |
| 2024 | 7253 | NWA - Noxious Weed Assessment | $2.30 | $2.30 | $0.00 | $0.00 | $4.60 | $0.00 |
| 2024 | 7253 | WAT - Clean Water District | $12.50 | $12.50 | $0.00 | $0.00 | $25.00 | $0.00 |
| 2024 | 7253 | TOTAL: | $175.95 | $175.90 | $0.00 | $0.00 | $351.85 | $0.00 |
|
| 2024 | 7253 | $175.95 | $175.90 | $0.00 | $0.00 | $351.85 | $0.00 |
Statement Details |
| 2023 | 7267 | STATE - STATE LEVY (SCHOOL) | $50.04 | $50.02 | $0.00 | $0.00 | $100.06 | $0.00 |
| 2023 | 7267 | COUNTY - COUNTY LEVIES (CE, DD, VET, MH) | $21.85 | $21.81 | $0.00 | $0.00 | $43.66 | $0.00 |
| 2023 | 7267 | CONSERVE - CONSERVATION FUTURES | $0.66 | $0.65 | $0.00 | $0.00 | $1.31 | $0.00 |
| 2023 | 7267 | COROADS - COUNTY ROADS (ROADS, DIV TO CE) | $17.66 | $17.66 | $0.00 | $0.00 | $35.32 | $0.00 |
| 2023 | 7267 | PORTPT - PORT DISTRICT | $9.20 | $9.19 | $0.00 | $0.00 | $18.39 | $0.00 |
| 2023 | 7267 | PUD1 - PUD #1 | $1.45 | $1.44 | $0.00 | $0.00 | $2.89 | $0.00 |
| 2023 | 7267 | LIB1 - LIBRARY DIST #1 | $6.84 | $6.83 | $0.00 | $0.00 | $13.67 | $0.00 |
| 2023 | 7267 | HD2 - HOSP DIST #2 | $1.28 | $1.27 | $0.00 | $0.00 | $2.55 | $0.00 |
| 2023 | 7267 | SD48 - SCHOOL DIST #48 | $24.16 | $24.16 | $0.00 | $0.00 | $48.32 | $0.00 |
| 2023 | 7267 | FD2 - FIRE DISTRICT #2 | $18.95 | $18.95 | $0.00 | $0.00 | $37.90 | $0.00 |
| 2023 | 7267 | EMS2 - FIRE DIST #2 EMS | $10.63 | $10.62 | $0.00 | $0.00 | $21.25 | $0.00 |
| 2023 | 7267 | CEM2 - CEMETERY DIST #2 | $0.61 | $0.60 | $0.00 | $0.00 | $1.21 | $0.00 |
| 2023 | 7267 | FPLCA - DNR Landowner Contingency Assmt | $3.00 | $3.00 | $0.00 | $0.00 | $6.00 | $0.00 |
| 2023 | 7267 | JCCD - JC Conservation District | $2.57 | $2.57 | $0.00 | $0.00 | $5.14 | $0.00 |
| 2023 | 7267 | NWA - Noxious Weed Assessment | $2.30 | $2.30 | $0.00 | $0.00 | $4.60 | $0.00 |
| 2023 | 7267 | WAT - Clean Water District | $12.00 | $12.00 | $0.00 | $0.00 | $24.00 | $0.00 |
| 2023 | 7267 | TOTAL: | $183.20 | $183.07 | $0.00 | $0.00 | $366.27 | $0.00 |
|
| 2023 | 7267 | $183.20 | $183.07 | $0.00 | $0.00 | $366.27 | $0.00 |
Values
| (+) Improvement Homesite Value: | + | $0 | |
| (+) Improvement Non-Homesite Value: | + | $0 | |
| (+) Land Homesite Value: | + | $0 | |
| (+) Land Non-Homesite Value: | + | $48,875 | |
| (+) Curr Use (HS): | + | $0 | $0 |
| (+) Curr Use (NHS): | + | $0 | $0 |
| | | -------------------------- | |
| (=) Market Value: | = | $48,875 | |
| (–) Productivity Loss: | – | $0 | |
| | | -------------------------- | |
| (=) Subtotal: | = | $48,875 | |
| (+) Senior Appraised Value: | + | $0 | |
| (+) Non-Senior Appraised Value: | + | $48,875 | |
| | | -------------------------- | |
| (=) Total Appraised Value: | = | $48,875 | |
| (–) Senior Exemption Loss: | – | $0 | |
| (–) Exemption Loss: | – | $0 | |
| | | -------------------------- | |
| (=) Taxable Value: | = | $48,875 | |
Taxing Jurisdiction
| Owner: | ADAM NEWMAN | | |
| % Ownership: | 100.0000000000% | | |
| Total Value: | $48,875 | | |
| Tax Area: | 0321 - 1-48F2E2H2C2L1 |
| CE | COUNTY CURRENT EXPENSE | 0.9034619479 | $48,875 | $48,875 | $44.16 | | |
| CNTYDD | DEVELOPMENTAL DISABILITIES | 0.0052121823 | $48,875 | $48,875 | $0.25 | | |
| CNTYVET | VETERANS RELIEF | 0.0052777810 | $48,875 | $48,875 | $0.26 | | |
| MENTAL | MENTAL HEALTH | 0.0052121823 | $48,875 | $48,875 | $0.25 | | |
| ROADS | COUNTY ROADS | 0.7415066410 | $48,875 | $48,875 | $36.24 | | |
| ROADSCU | COUNTY ROADS TO CUR EXP | 0.0000000000 | $48,875 | $48,875 | $0.00 | | |
| HOSP2CASH | HOSP DIST #2 GENERAL | 0.0536075306 | $48,875 | $48,875 | $2.62 | | |
| SCH48MO | SCHOOL DIST #48 EP & O | 1.4120478917 | $48,875 | $48,875 | $69.01 | | |
| CEM2 | CEMETERY DIST #2 GENERAL | 0.0241266154 | $48,875 | $48,875 | $1.18 | | |
| CONSERVE | CONSERVATION FUTURES | 0.0275621078 | $48,875 | $48,875 | $1.35 | | |
| FD2 | FIRE DIST #2 GENERAL | 0.7549976873 | $48,875 | $48,875 | $36.90 | | |
| LIB1 | LIBRARY DIST #1 GENERAL | 0.2868827388 | $48,875 | $48,875 | $14.02 | | |
| PORTPT | PORT OF PT GENERAL | 0.1134941229 | $48,875 | $48,875 | $5.55 | | |
| PORTPTIDD | PORT OF PT IDD 2019 | 0.2577346692 | $48,875 | $48,875 | $12.60 | | |
| PUD1 | PUD #1 GENERAL | 0.0597888892 | $48,875 | $48,875 | $2.92 | | |
| STATE | STATE SCHOOL PART 1 | 1.4940692947 | $48,875 | $48,875 | $73.02 | | |
| STATE2 | STATE SCHOOL PART 2 | 0.8050170049 | $48,875 | $48,875 | $39.35 | | |
| EMS2 | FIRE DIST #2 EMS | 0.4251727858 | $48,875 | $48,875 | $20.78 | | |
| | Total Tax Rate: | 7.3751720728 | | | | | |
| | | | | Taxes w/Current Exemptions: | $360.46 | | |
| | | | | Taxes w/o Exemptions: | $360.46 | | |
Improvement / Building
Sketch
| No sketches available for this property. |
Property Image
Land
| 1 | 2355-1535F | | 0.0000 | 0.00 | 0.00 | 0.00 | 0.00 | $48,875 | $0 |
Roll Value History
| 2026 | N/A | N/A | N/A | N/A | N/A |
| 2025 | $0 | $48,875 | $0 | $48,875 | $48,875 |
| 2024 | $0 | $46,750 | $0 | $46,750 | $46,750 |
| 2023 | $0 | $42,500 | $0 | $42,500 | $42,500 |
| 2022 | $0 | $42,500 | $0 | $42,500 | $42,500 |
Deed and Sales History
| 1 | 04/18/2024 | SWD | Statutory Warranty Deed | JOHN & JENNIFER NEWMAN | ADAM NEWMAN | | | | 142868 | |
| 2 | 02/28/2018 | SWD | Statutory Warranty Deed | STEPHEN J WOELKE | JOHN & JENNIFER NEWMAN | | | $290,000.00 | 129663 | |
|   | |
| 3 | 10/03/2014 | PRD | Personal Representatives Deed | YVONNE E WOELKE | STEPHEN J WOELKE | | | | 122086 | |
Payout Agreement
| No payout information available.. |